Скачать Типовой проект 902-1-44/79 Альбом XII. Технические решения. Архитектурно-строительные решения. Электрооборудования и автоматизация. Условия привязки типового проекта. Установка решетки РМВ 350/650

Дата актуализации: 01.01.2021

Типовой проект 902-1-44/79

Альбом XII. Технические решения. Архитектурно-строительные решения. Электрооборудования и автоматизация. Условия привязки типового проекта. Установка решетки РМВ 350/650

Обозначение: Типовой проект 902-1-44/79
Обозначение англ: 902-1-44/79
Статус:не действует
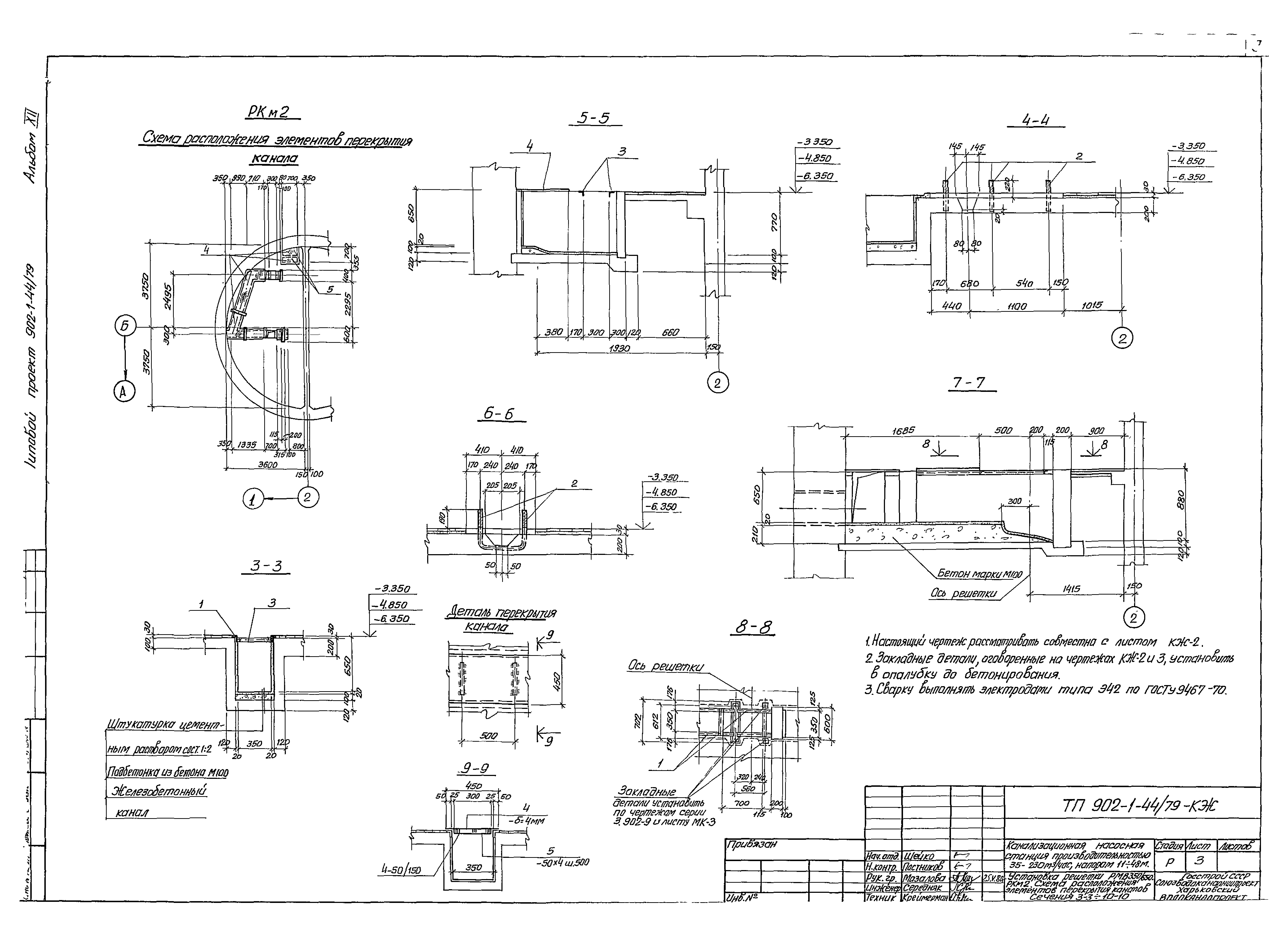
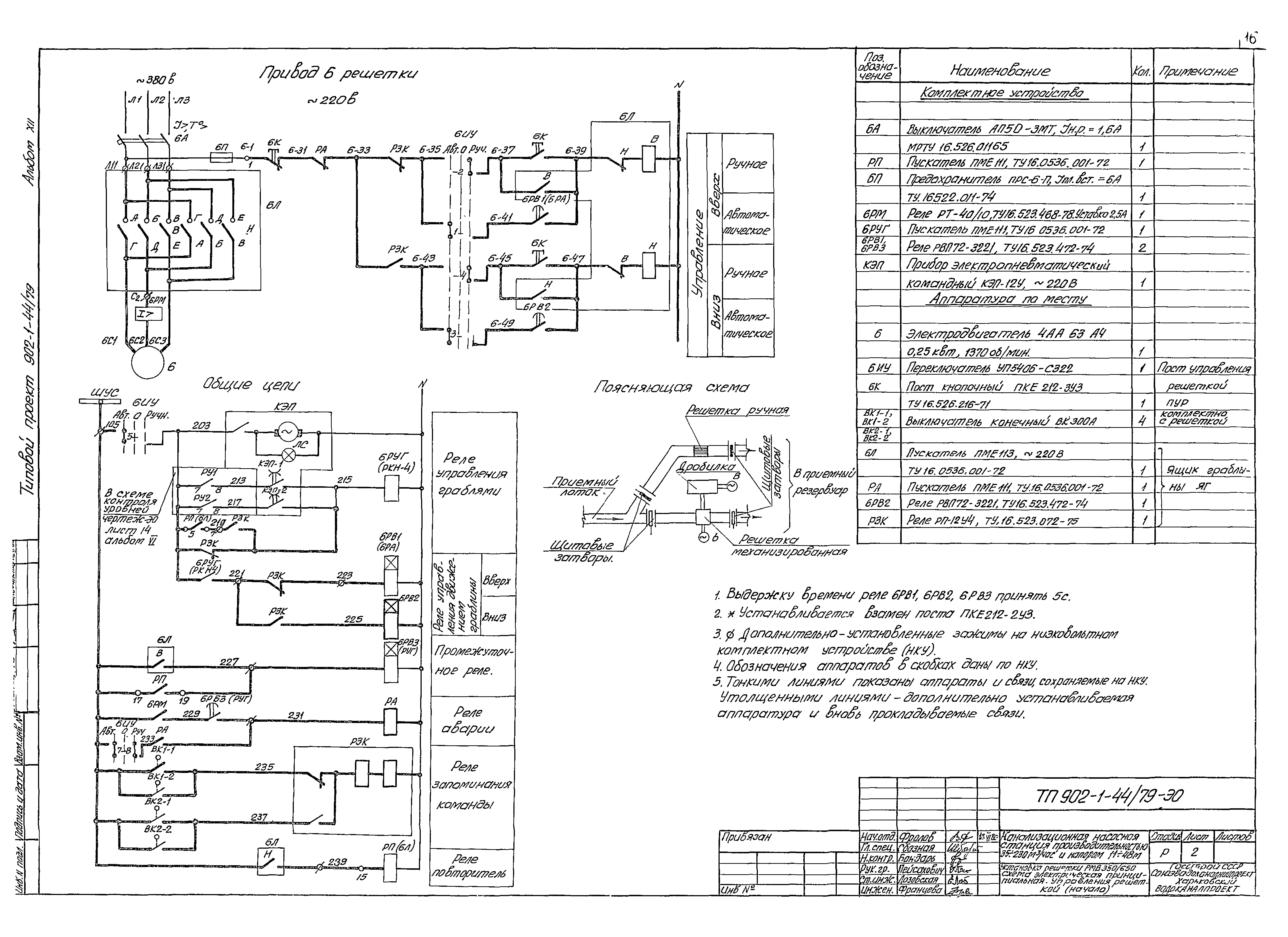
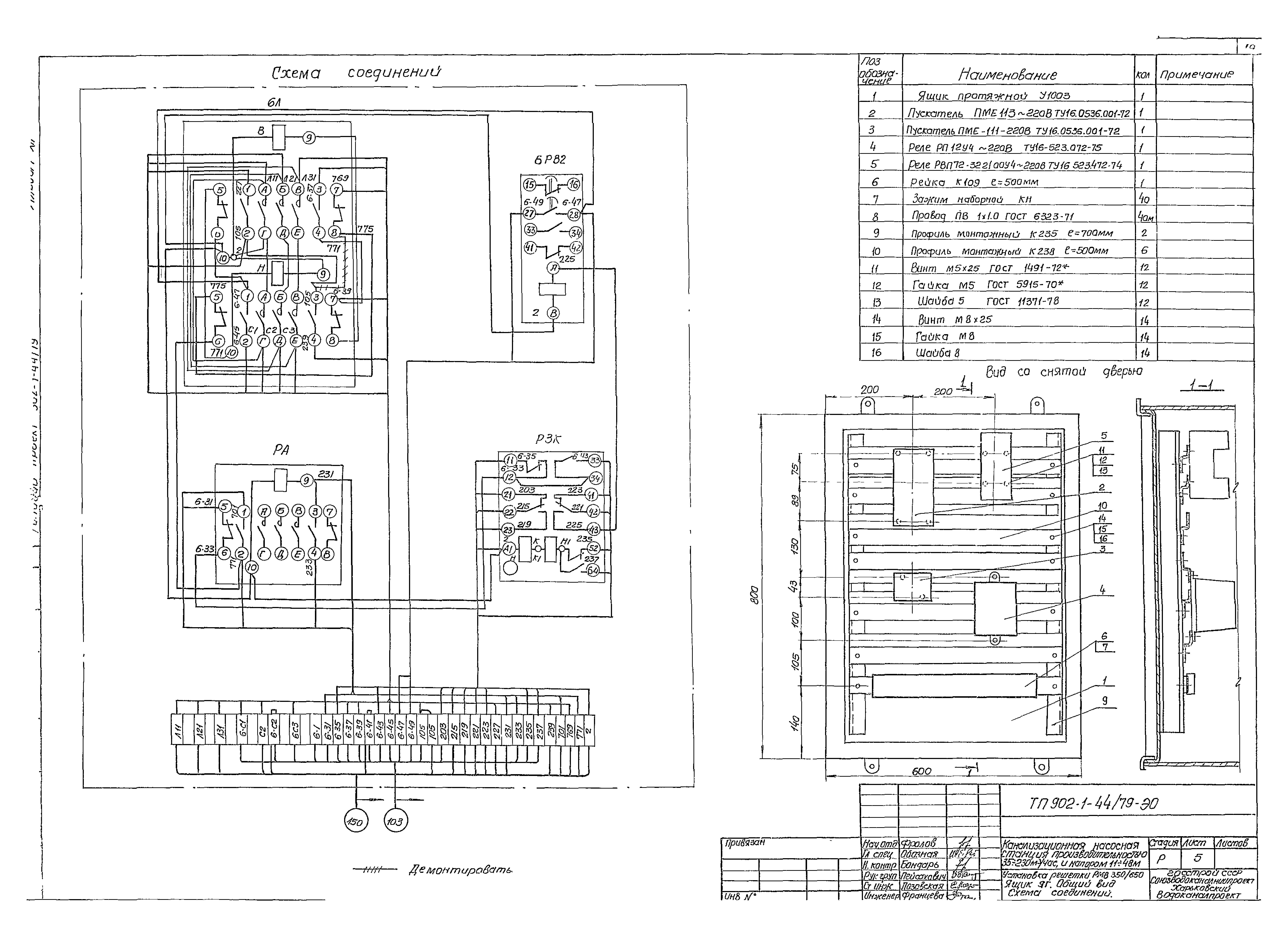
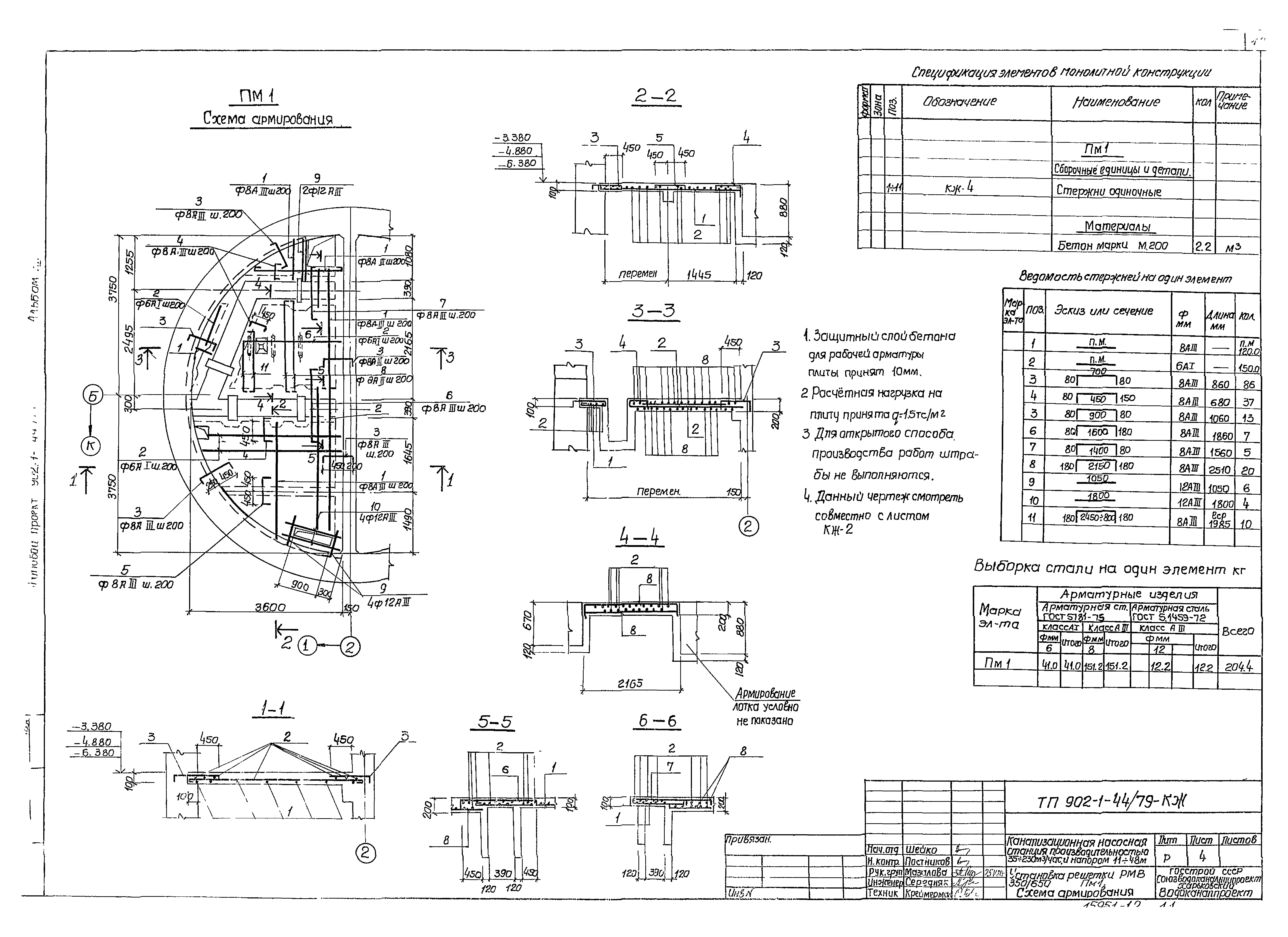
Название рус.:Альбом XII. Технические решения. Архитектурно-строительные решения. Электрооборудования и автоматизация. Условия привязки типового проекта. Установка решетки РМВ 350/650
Дата добавления в базу:01.01.2019
Дата актуализации:01.01.2021
Дата введения:25.03.1979
Дата окончания срока действия:01.07.1984
Разработан: Харьковский Водоканалпроект
Утверждён:05.08.1976 Главпромстройпроект Госстроя СССР (50)
Заменяет собой:
  • Типовой проект 902-1-44
Типовой проект 902-1-44/79Типовой проект 902-1-44/79Типовой проект 902-1-44/79Типовой проект 902-1-44/79Типовой проект 902-1-44/79Типовой проект 902-1-44/79Типовой проект 902-1-44/79Типовой проект 902-1-44/79Типовой проект 902-1-44/79Типовой проект 902-1-44/79Типовой проект 902-1-44/79Типовой проект 902-1-44/79Типовой проект 902-1-44/79Типовой проект 902-1-44/79Типовой проект 902-1-44/79Типовой проект 902-1-44/79Типовой проект 902-1-44/79Типовой проект 902-1-44/79Типовой проект 902-1-44/79Типовой проект 902-1-44/79