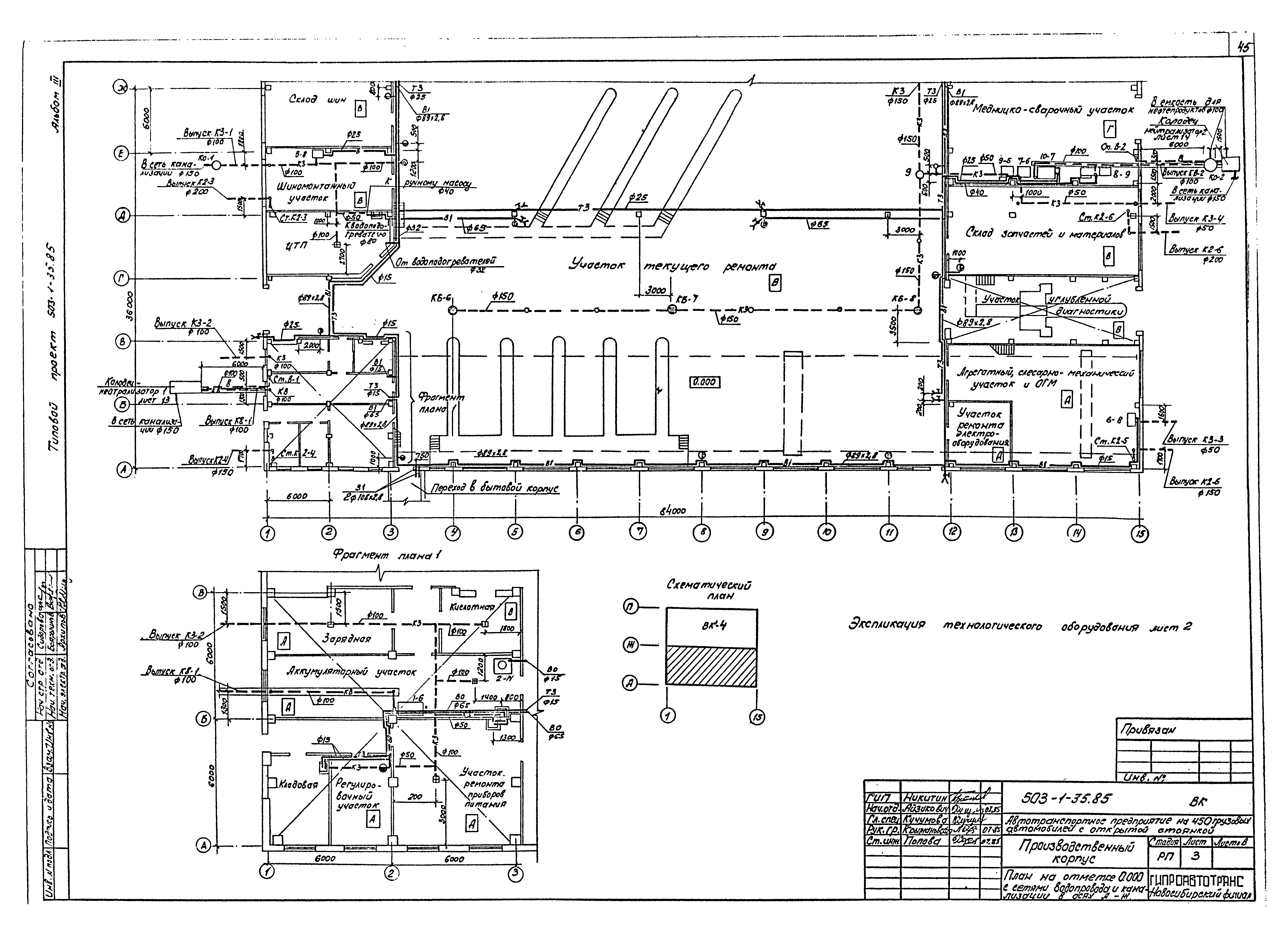
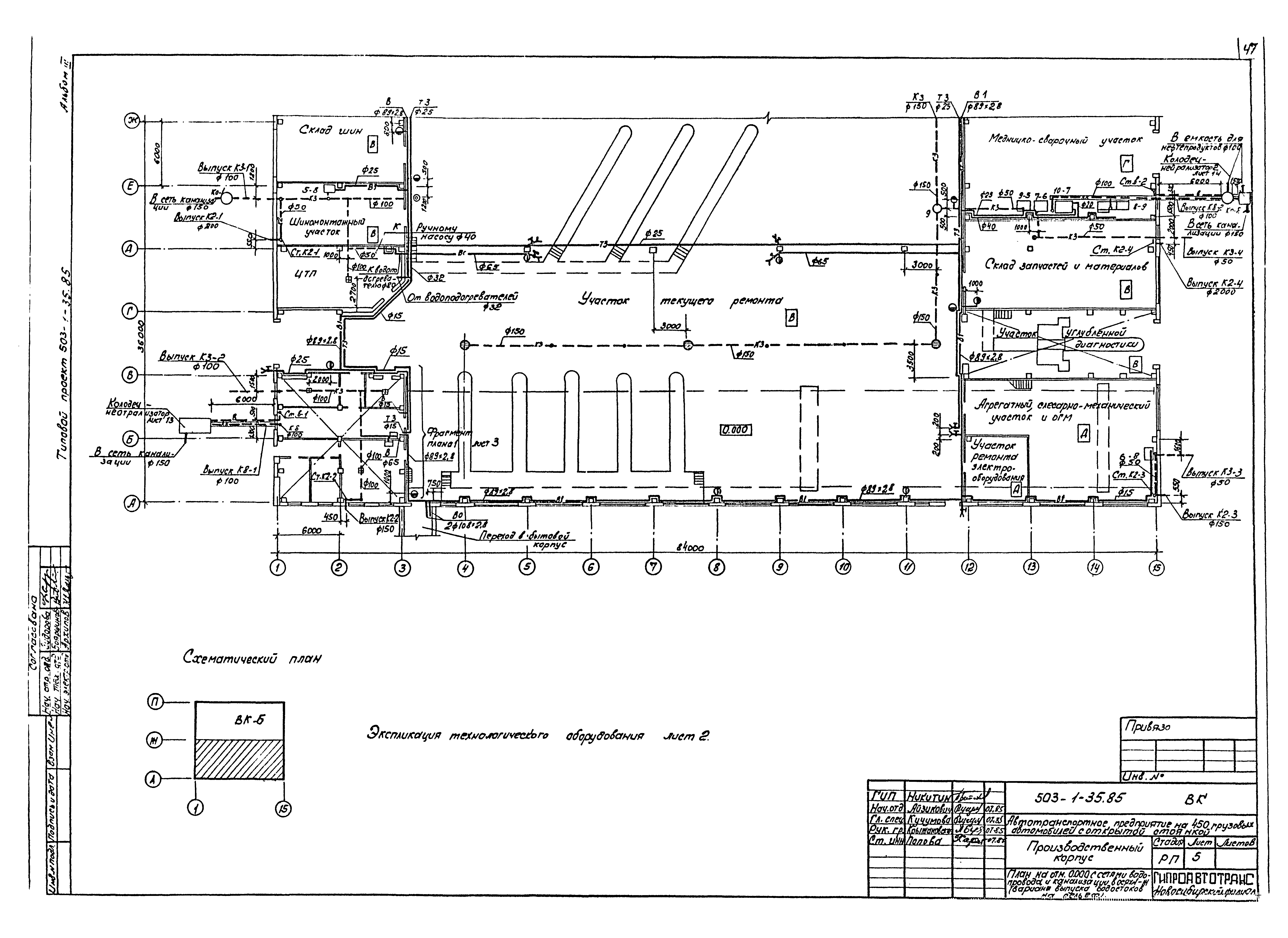
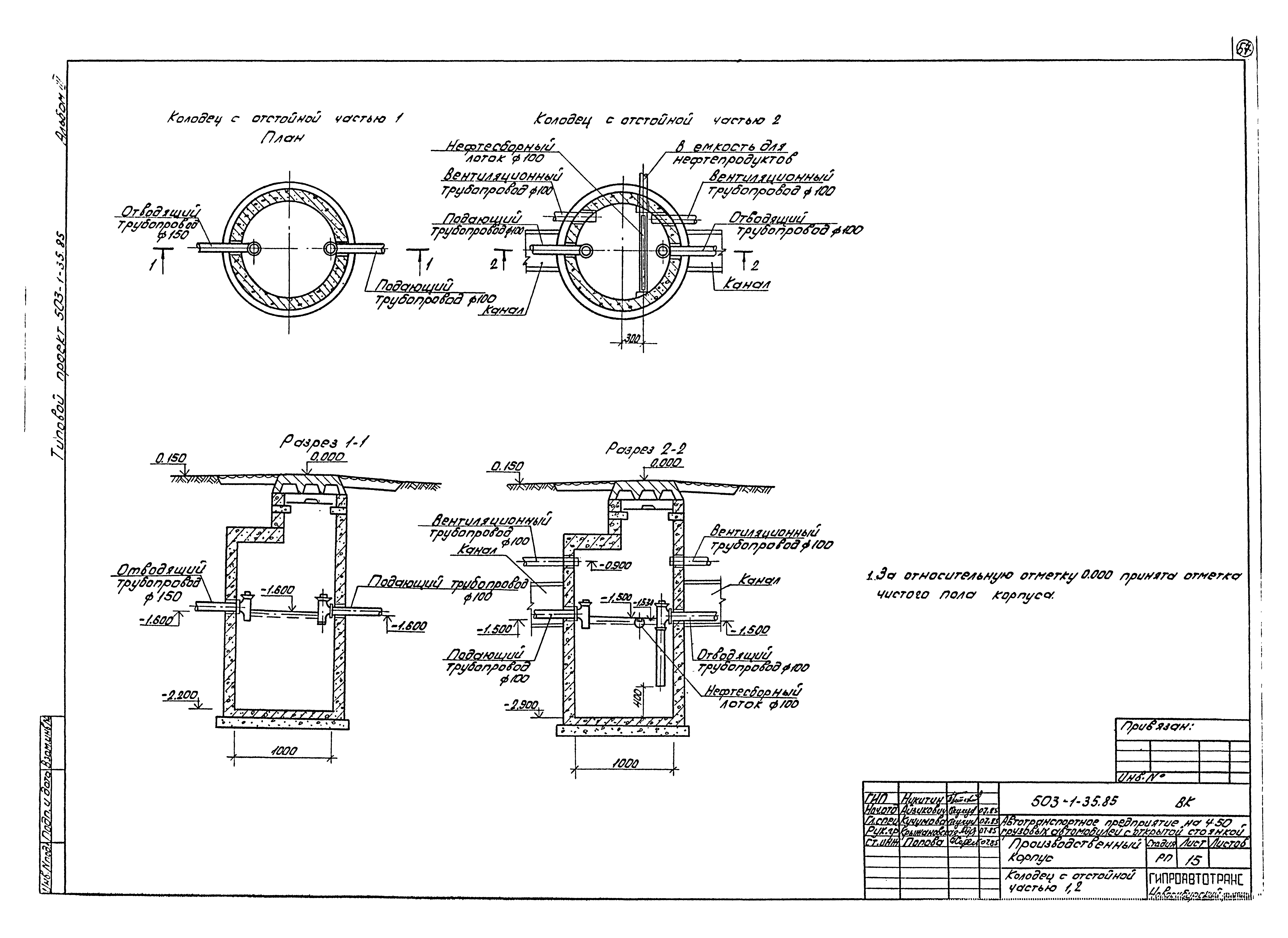
Скачать Типовой проект 503-1-35.85 Альбом III. Отопление и вентиляция, внутренние водопровод и канализацияДата актуализации: 01.01.2021 Типовой проект 503-1-35.85
Альбом III. Отопление и вентиляция, внутренние водопровод и канализация| Обозначение: | Типовой проект 503-1-35.85 | | Обозначение англ: | 503-1-35.85 | | Статус: | не определен законодательством | | Название рус.: | Альбом III. Отопление и вентиляция, внутренние водопровод и канализация | | Дата добавления в базу: | 01.01.2019 | | Дата актуализации: | 01.01.2021 | | Дата введения: | 23.01.1985 | | Дата окончания срока действия: | 30.06.2003 | | Разработан: | Гипроавтотранс
| | Утверждён: | 23.01.1985 Минавтотранс РСФСР (Russian Federation Minavtotrans 93)
| | Издан: | ЦИТП Госстроя СССР (CITP, Gosstroy (USSR) 1986 г. )
|
                                                         
|