Скачать Серия ПК-01-125 Выпуск VI. Подстропильные фермы пролетами 18 и 24 м и элементы связей. Шаг ферм 6 м. Чертежи КМДата актуализации: 01.01.2021
|
| Обозначение: | Серия ПК-01-125 |
| Обозначение англ: | Series ПК-01-125 |
| Статус: | действует |
| Название рус.: | Выпуск VI. Подстропильные фермы пролетами 18 и 24 м и элементы связей. Шаг ферм 6 м. Чертежи КМ |
| Дата добавления в базу: | 01.01.2019 |
| Дата актуализации: | 01.01.2021 |
| Дата введения: | 01.12.1970 |
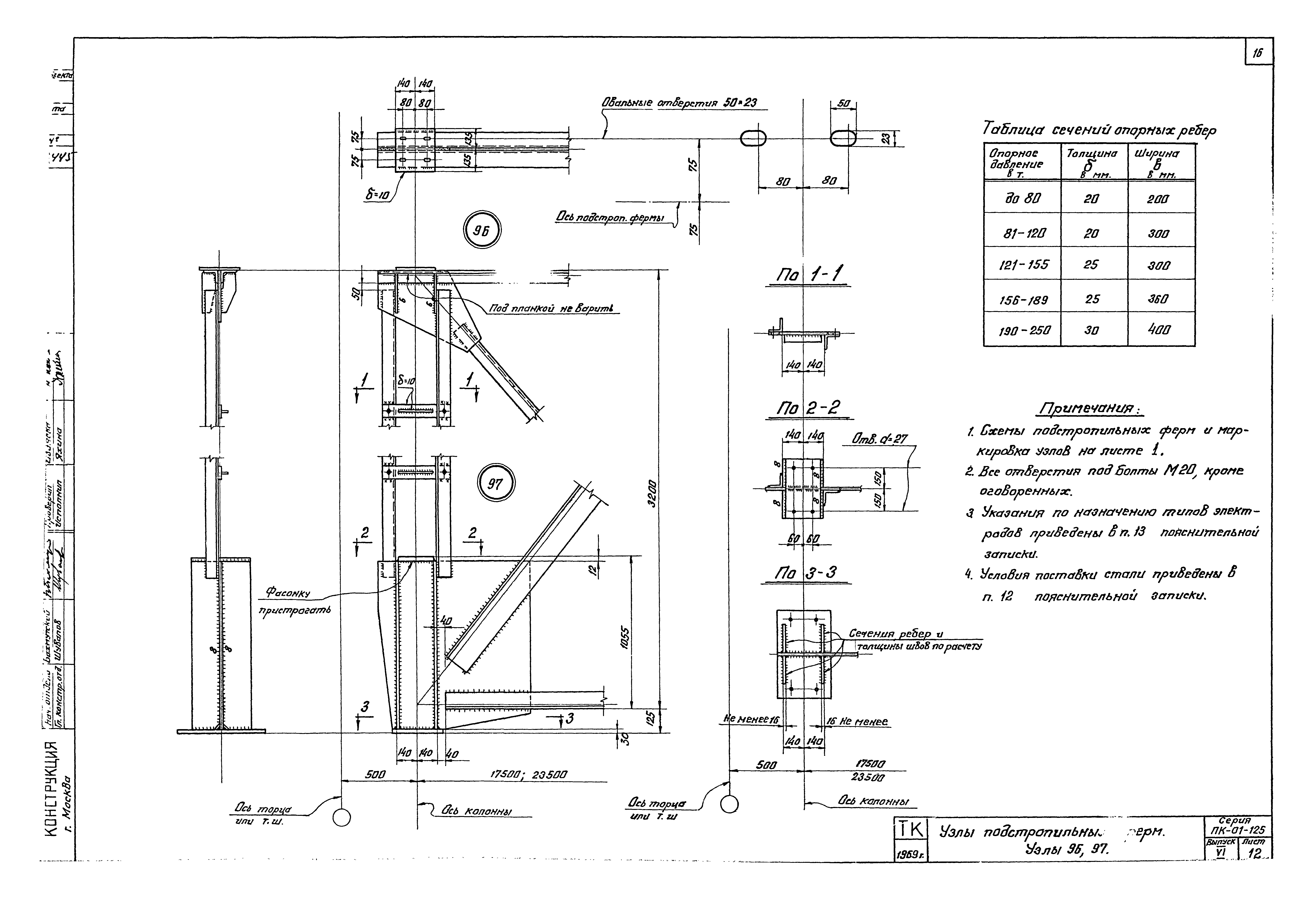
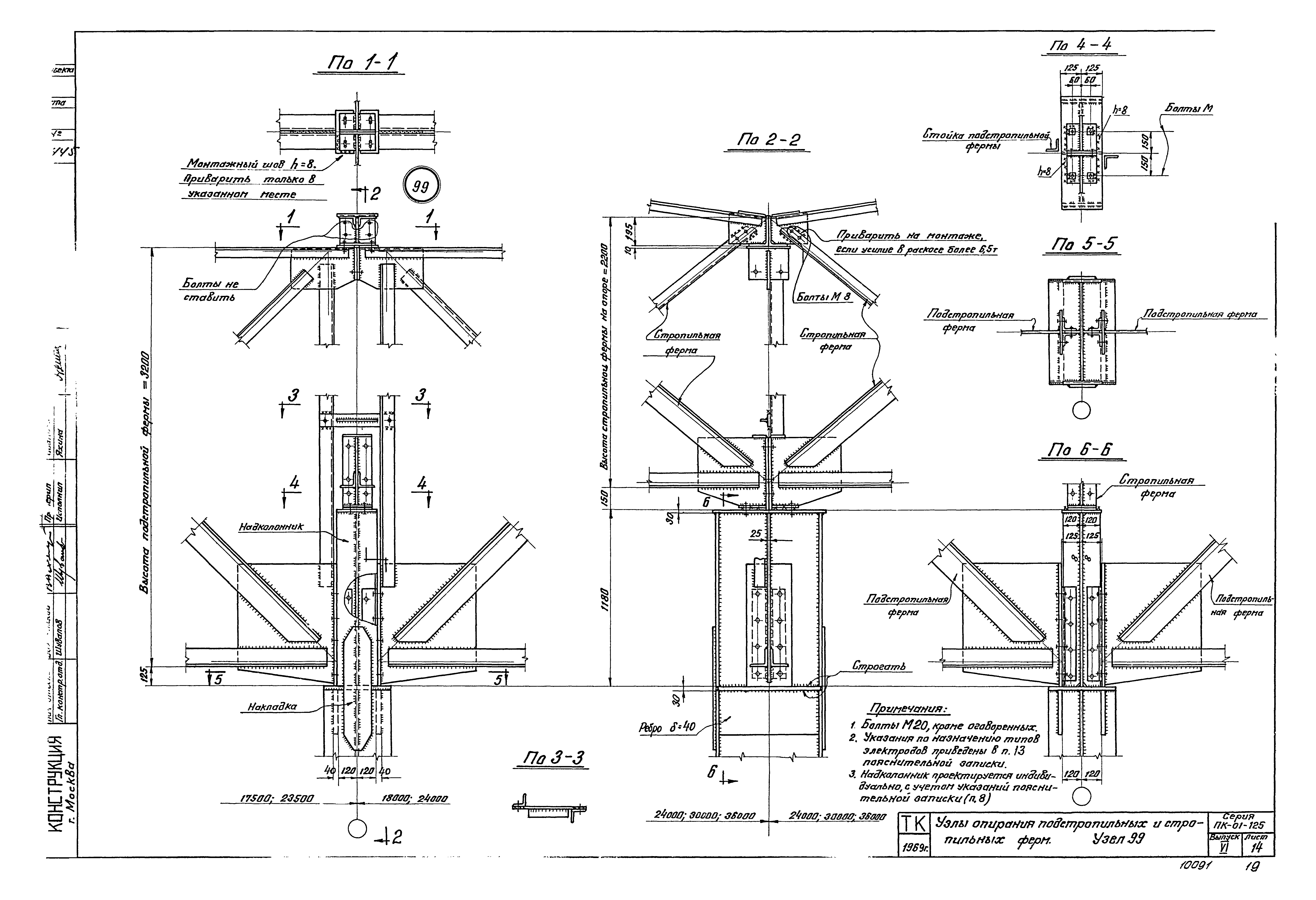
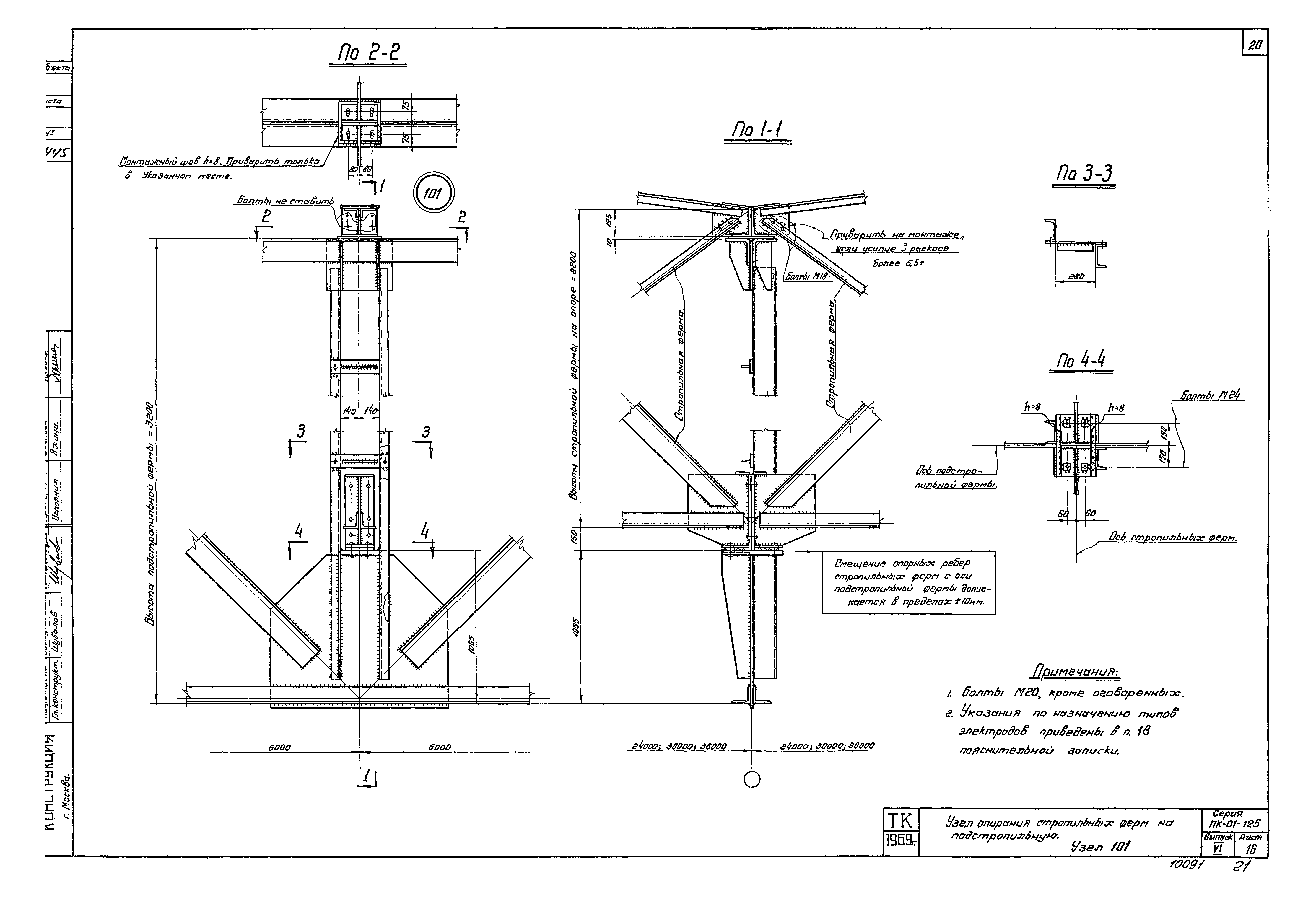
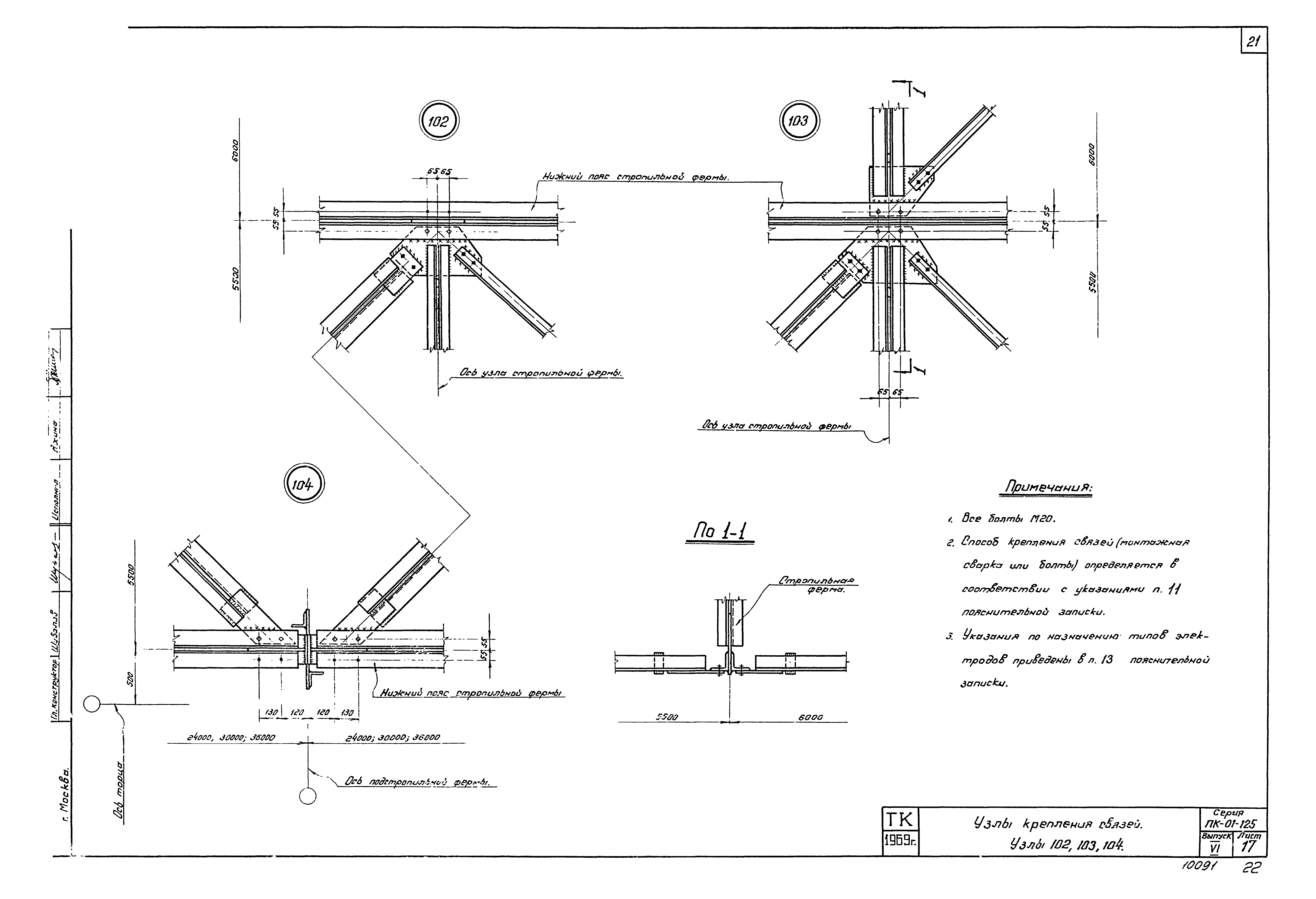
| Оглавление: | Пояснительная записка Эквивалентные равномерно-распределенные расчетные нагрузки на ферму от снегового покрова, подвесных грузов и фонаря Эквивалентные равномерно-распределенные расчетные нагрузки на ферму от кран-балок. Расчетные нагрузки на подвески ферм Основные параметры и схемы подвески кран-балок. Нагрузки от подвесных грузов Схемы стропильных ферм с маркировкой узлов. Маркировка узлов опирания стропильных ферм на колонны и подстропильные фермы Схемы связей по верхним поясам стропильных ферм. Фермы с фонарем и без фонаря. Схемы связей 2го типа по нижним поясам стропильных ферм. Шаг ферм 6 м Схемы связей по верхним поясам стропильных ферм. Фермы с фонарем и без фонаря. Схемы связей 2го типа по нижним поясам стропильных ферм. Шаг ферм 12 м Пример решения схемы связей 1го типа по нижним поясам стропильных ферм при числе пролетов в температурном отсеке до 3х включительно. Схемы расположения растяжек по нижним поясам ферм. Шаг ферм 6 м Пример решения схемы связей 1го типа по нижним поясам стропильных ферм при числе пролетов в температурном отсеке до 3х включительно. Схемы расположения растяжек по нижним поясам ферм. Шаг ферм 12 м Пример решения схемы связей 1го типа по нижним поясам стропильных ферм при числе пролетов в температурном отсеке более 3х. Шаг ферм 6 м Пример решения схемы связей 1го типа по нижним поясам стропильных ферм при числе пролетов в температурном отсеке более 3х. Шаг ферм 6 м. Шаг колонн по крайним рядам 6 м, по средним 12 м Пример решения схемы связей 1го типа по нижним поясам стропильных ферм при числе пролетов в температурном отсеке более 3х. Шаг ферм и колонн 12 м Маркировка узлов стропильных ферм и схемы связей по нижним поясам стропильных ферм при наличии подвесных кранбалок. Шаг ферм 6 м Маркировка узлов стропильных ферм и схемы связей по нижним поясам стропильных ферм при наличии подвесных кран-балок. Шаг ферм 12 м Маркировка узлов стропильных ферм и схемы связей по нижним поясам стропильных ферм при наличии подвесных кран-балок или подвесных грузов (тельферов). Шаг ферм 6 и 12 м Сортамент бесшпренгельных стропильных ферм Сортамент шпренгельных стропильных ферм Узлы стропильных ферм. Узлы 74-76. Разметка отверстий по верхним и нижним поясам стропильных ферм Узлы крепления связей. Узлы 77-81 Узлы стропильных ферм при наличии подвесных кран-балок или подвесных грузов (тельферов). Узлы 65,83-86 Узлы связей при наличии подвесных кран-балок или подвесных грузов (тельферов). Узлы 64,87-90 Весовые показатели стропильных ферм. Усилия в стержнях стропильных ферм от единичных нагрузок Спецификация стали стропильных ферм |
| Разработан: | Проектстальконструкция Госстроя СССР |
| Утверждён: | 19.04.1970 Госстрой СССР (Государственный комитет Совета Министров СССР по делам строительства) (USSR Gosstroy 111) |
| Издан: | ЦИТП Госстроя СССР (CITP, Gosstroy (USSR) 1970 г. ) |
























