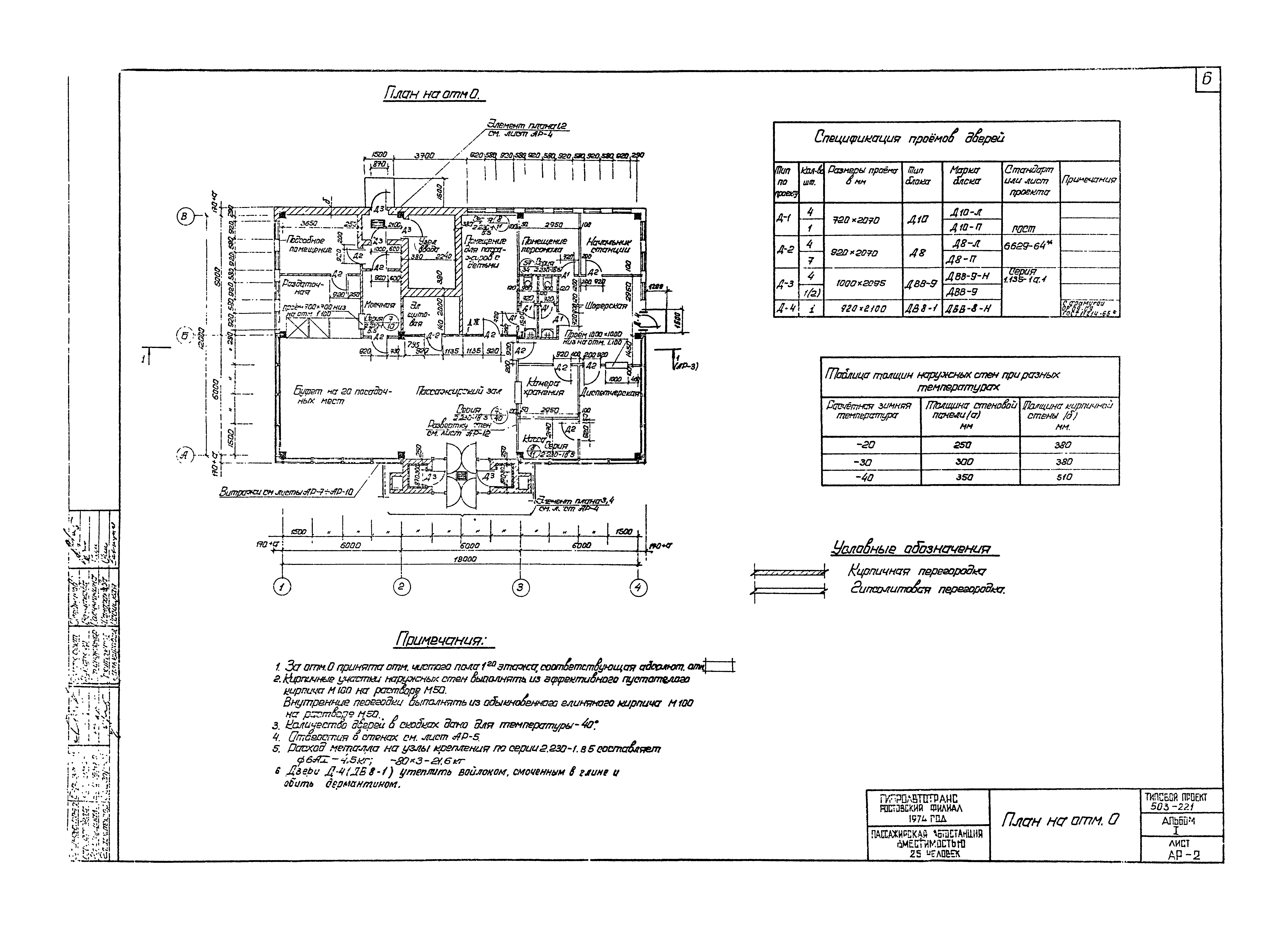
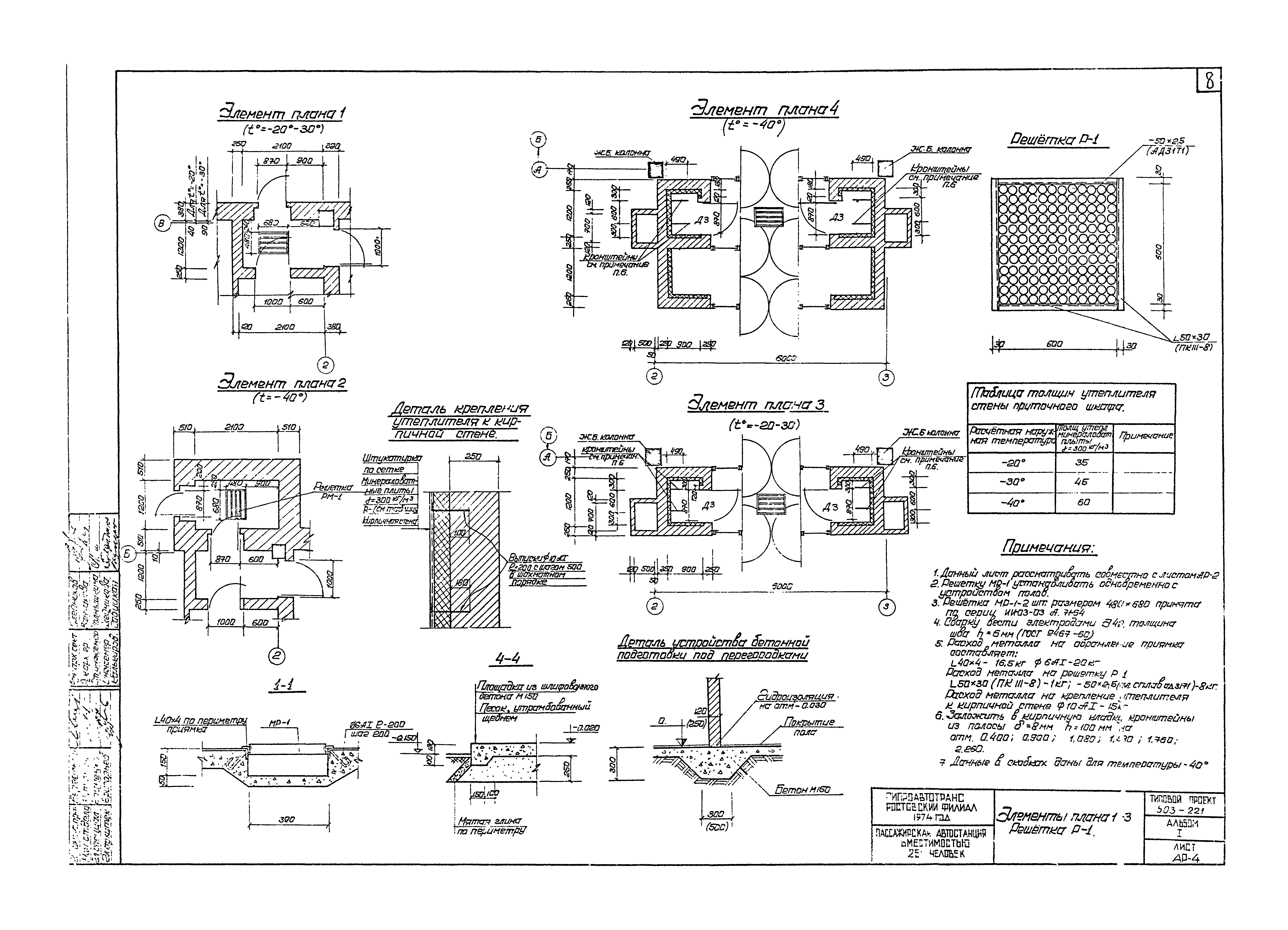
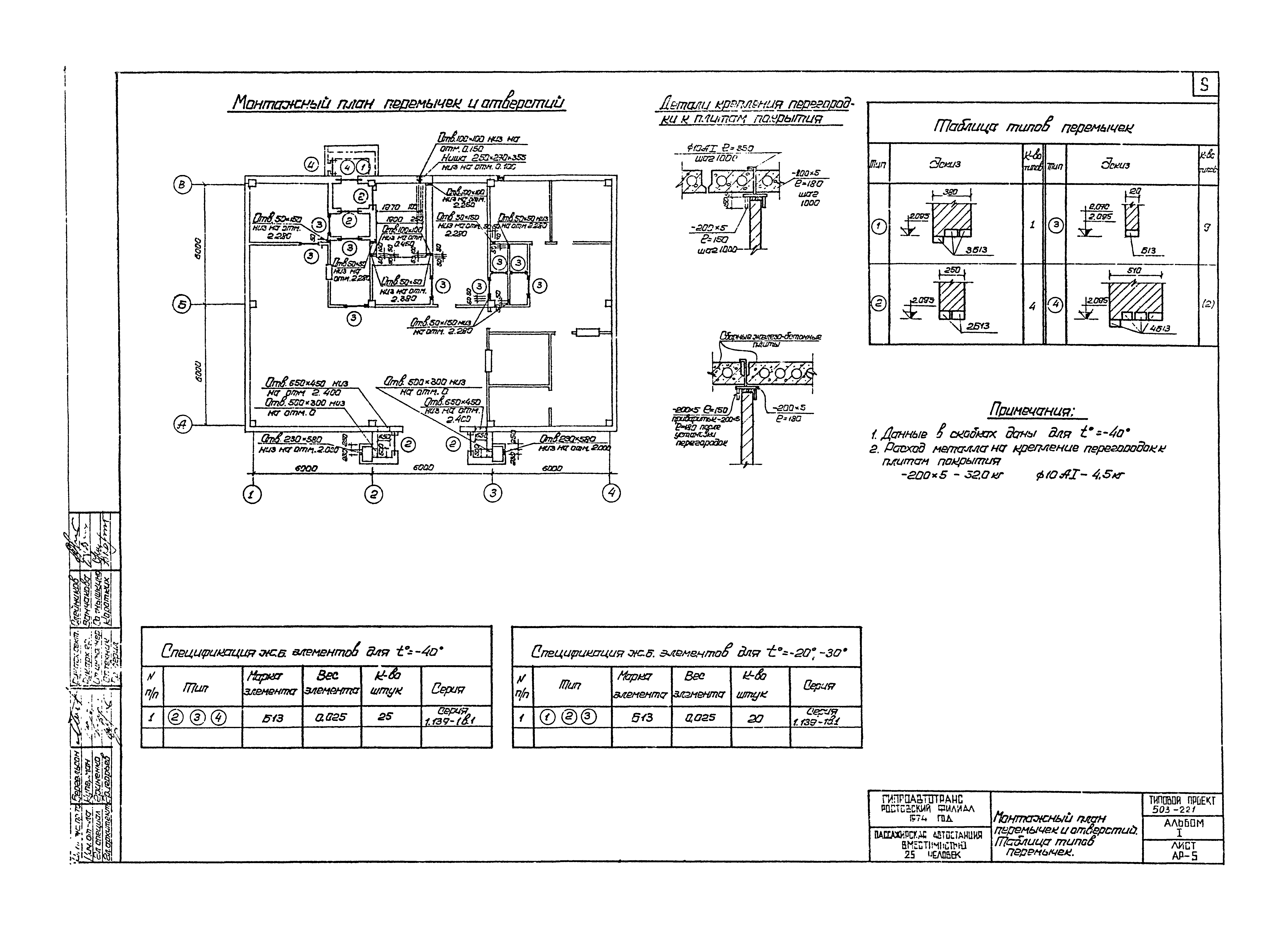
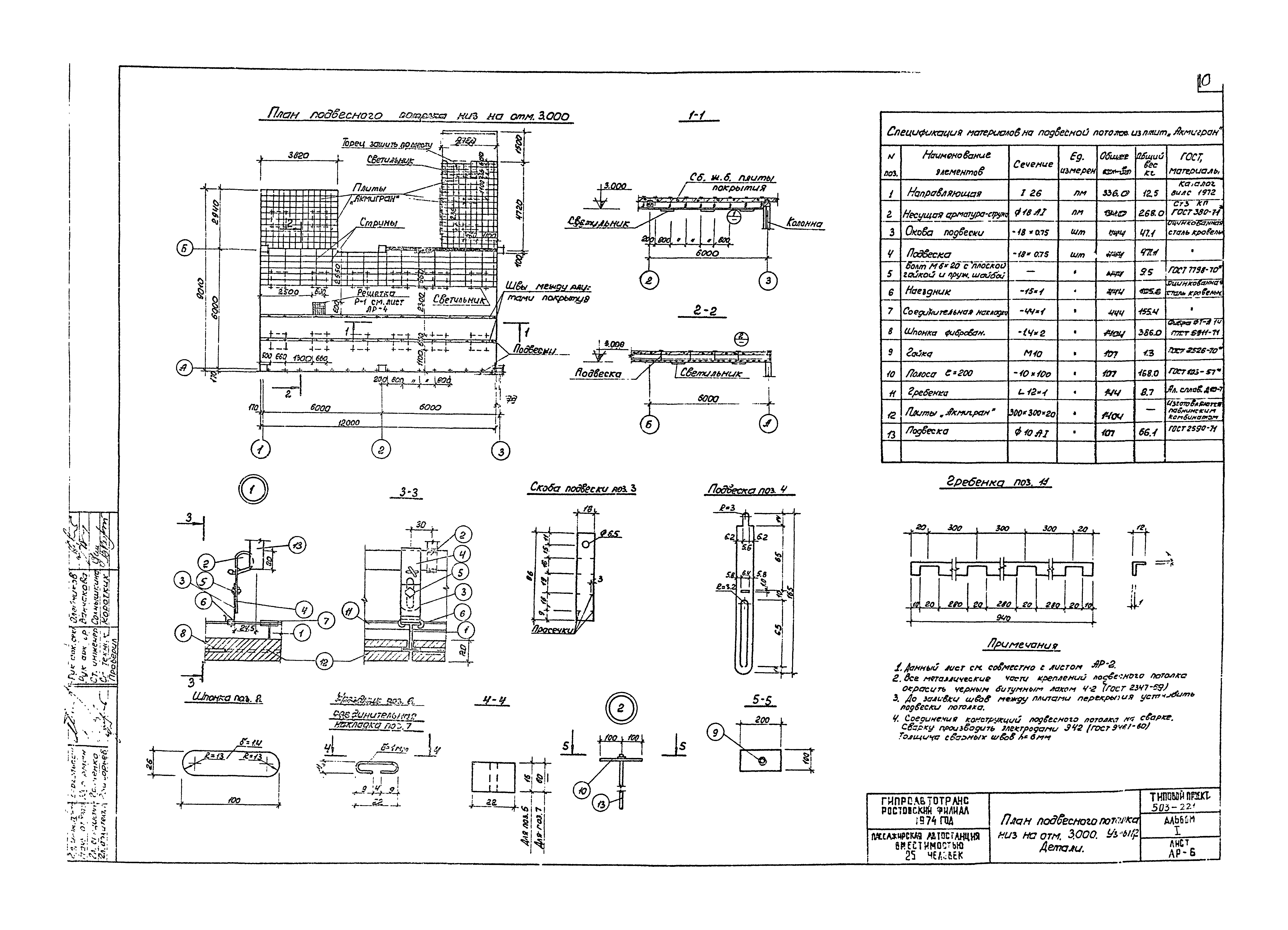
Скачать Типовой проект 503-221 Альбом I. Архитектурно-строительная частьДата актуализации: 01.01.2021 Типовой проект 503-221
Альбом I. Архитектурно-строительная часть| Обозначение: | Типовой проект 503-221 | | Обозначение англ: | 503-221 | | Статус: | действует | | Название рус.: | Альбом I. Архитектурно-строительная часть | | Дата добавления в базу: | 01.01.2019 | | Дата актуализации: | 01.01.2021 | | Дата введения: | 30.12.1974 | | Разработан: | Гипроавтотранс
| | Утверждён: | 30.12.1974 Минавтотранс РСФСР (Russian Federation Minavtotrans 139)
| | Издан: | ЦИТП Госстроя СССР (CITP, Gosstroy (USSR) 1977 г. )
|
                                  
|