Скачать Том 2 Архитектурно-планировочные и энергосберегающие решения реконструируемых типовых школьных зданийДата актуализации: 01.01.2021
|
| Обозначение: | Том 2 |
| Обозначение англ: | Том 2 |
| Статус: | действует |
| Название рус.: | Архитектурно-планировочные и энергосберегающие решения реконструируемых типовых школьных зданий |
| Дата добавления в базу: | 01.01.2019 |
| Дата актуализации: | 01.01.2021 |
| Область применения: | Методические рекомендации по составу, порядку разработки, согласованию и утверждению документации на энергосберегающую реконструкцию школьных зданий являются документом, обобщающим многочисленные государственные нормативные документы, разработанные на основе действующего законодательства. Кроме того, проанализированы и использованы региональные нормы и рекомендации, в том числе Москвы и Московской области. В рекомендациях рассматриваются следующие вопросы: права и обязанности заказчика (инвестора); состав и порядок подготовки исходно-разрешительной документации для разработки проекта реконструкции школьных зданий; проведение комплексного технического обследования конструкций и инженерных систем для постановки здания на реконструкцию; стадии проектирования, состав и содержание проектно-сметной документации; разработка проекта организации реконструкции; порядок разработки раздела теплозащиты и энергоэффективности; согласование и утверждение проектно-сметной документации; порядок передачи объекта под реконструкцию и эксплуатацию. |
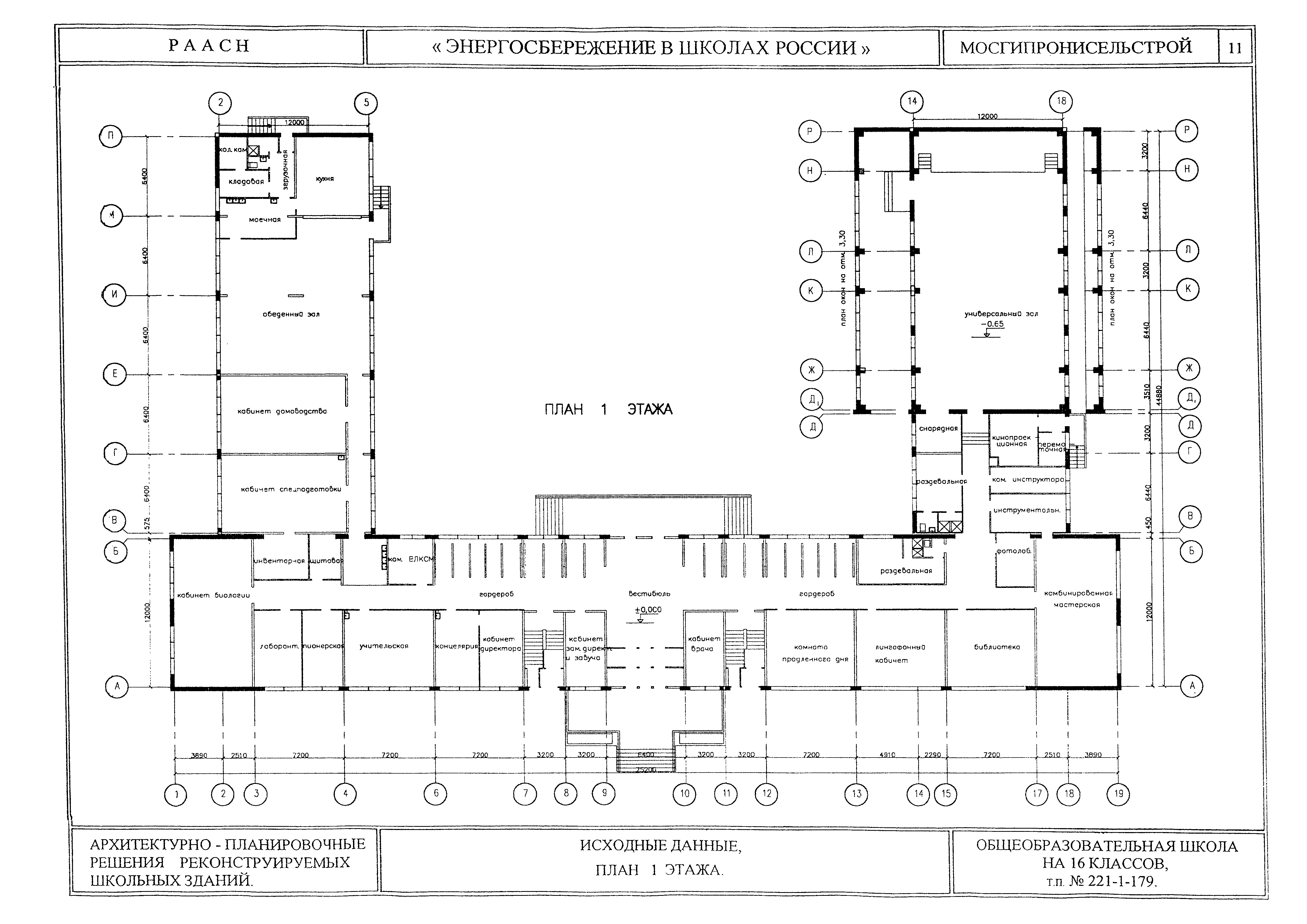
| Оглавление: | 1. Общеобразовательная школа на 16 классов (604 - 624 учащихся) т.п. № 221-1-179 Исходные данные Фасады в осях 1-19, а-р, р-в Фасады в осях 19-1, В-П, П-А План 1 этажа. Разрез I-I Планы 2 и 3 этажей Предлагаемые решения Фасады в осях 1-19, А-Р, Р-В Фасады в осях 19-1, В-П, П-А План 1 этажа. Разрез I-I Планы 2 и 3 этажей 2. Крупноблочная школа на 1000 учащихся т.п. № 65-426/1 Исходные данные Фасады в осях 1-25, 25-1, И-А Фасады в осях 3-23, 23-3. Разрез 1-1 Планы 1, 2, 3 этажей Предлагаемые решения Фасады в осях 1-25, 25-1 Фасады в осях 23-3, И-А Фасад в осях 3-23. Разрез 1-1 Планы 1, 2, 3 этажей 3. Общеобразовательная школа на 24 класса (960 - 1000 учащихся) со стенами из кирпича, т.п. № 2С-02-8 Исходные данные Фасады в осях 2-13, 14-1, 1-14 Фасады в осях 13-2, И-А, А-И Планы 1, 2, 3 этажей Предлагаемые решения Фасады в осях 2-13, 14-1, 1-14 Фасады в осях 13-2, И-А, А-И Планы 1, 2, 3 этажей 4. Общеобразовательная школа на 30 классов (1176 учащихся) т.п. № 222-1-126 Исходные данные Фасады в осях 1-18, Я-А, 14-1 Фасады в осях 18-1, А-Я, В-Ш Планы 1, 2, 3 этажей Предлагаемые решения Фасады в осях 1-18, Я-А, 14-1 Фасады в осях 18-1, А-Я, В-Ш Планы 1, 2, 3 этажей 5. Заключение |
| Разработан: | ГУП Мосгипронисельстрой РААСН ГОСИНКОР |
| Утверждён: | 29.12.2000 Госстрой России (Russian Federation Gosstroy 309) |
| Нормативные ссылки: |













































