Скачать Том 4 Технические решения и проектная документация по утеплению ограждающих конструкций реконструируемых школьных зданийДата актуализации: 01.01.2021
|
| Обозначение: | Том 4 |
| Обозначение англ: | Том 4 |
| Статус: | действует |
| Название рус.: | Технические решения и проектная документация по утеплению ограждающих конструкций реконструируемых школьных зданий |
| Дата добавления в базу: | 01.01.2019 |
| Дата актуализации: | 01.01.2021 |
| Область применения: | Альбом содержит материалы по повышению теплозащиты ограждающих конструкций существующих школьных зданий и предназначен для широкого круга руководителей и специалистов, занимающихся вопросами снижения теплопотерь и энергосбережения при эксплуатации школьных зданий |
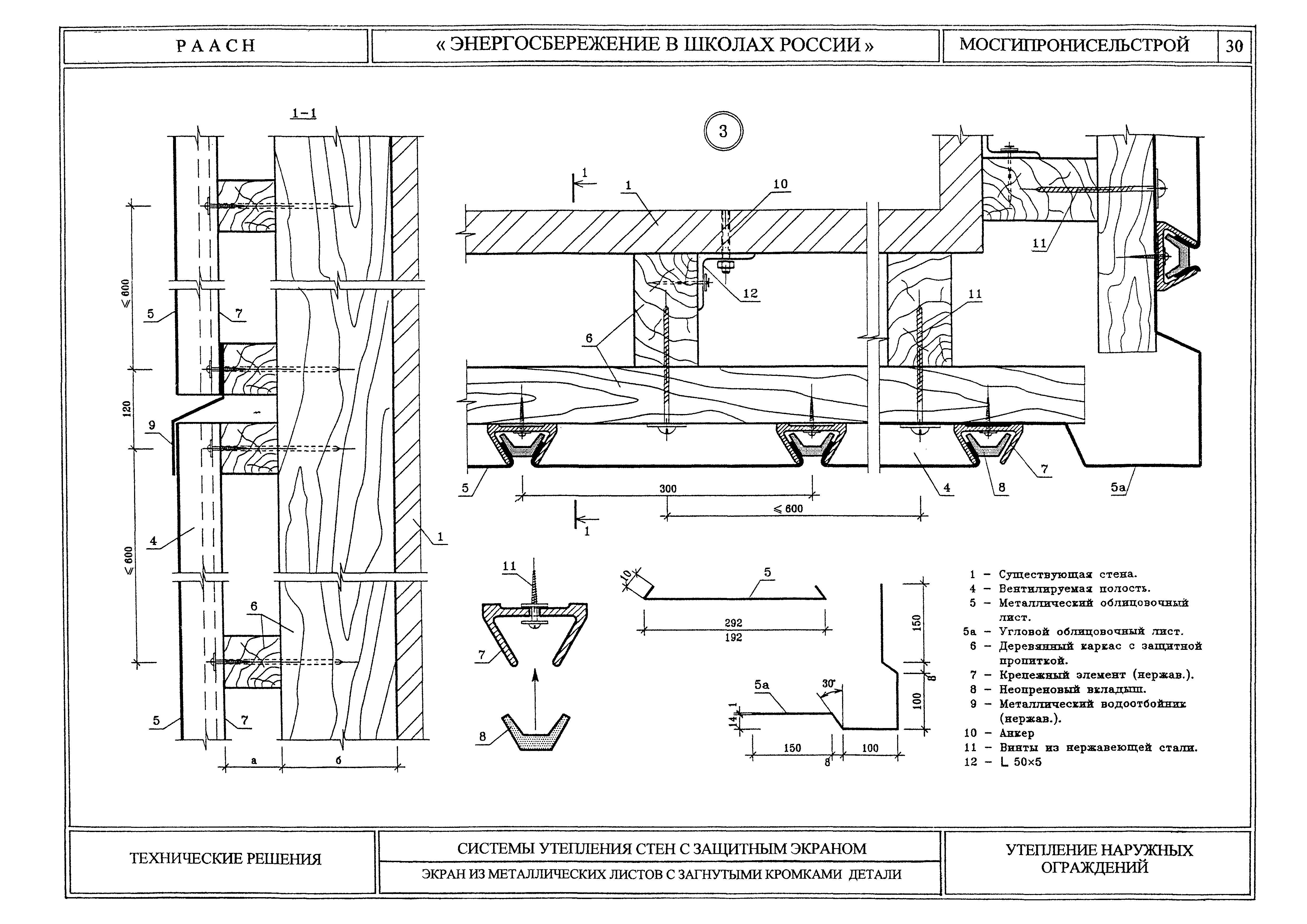
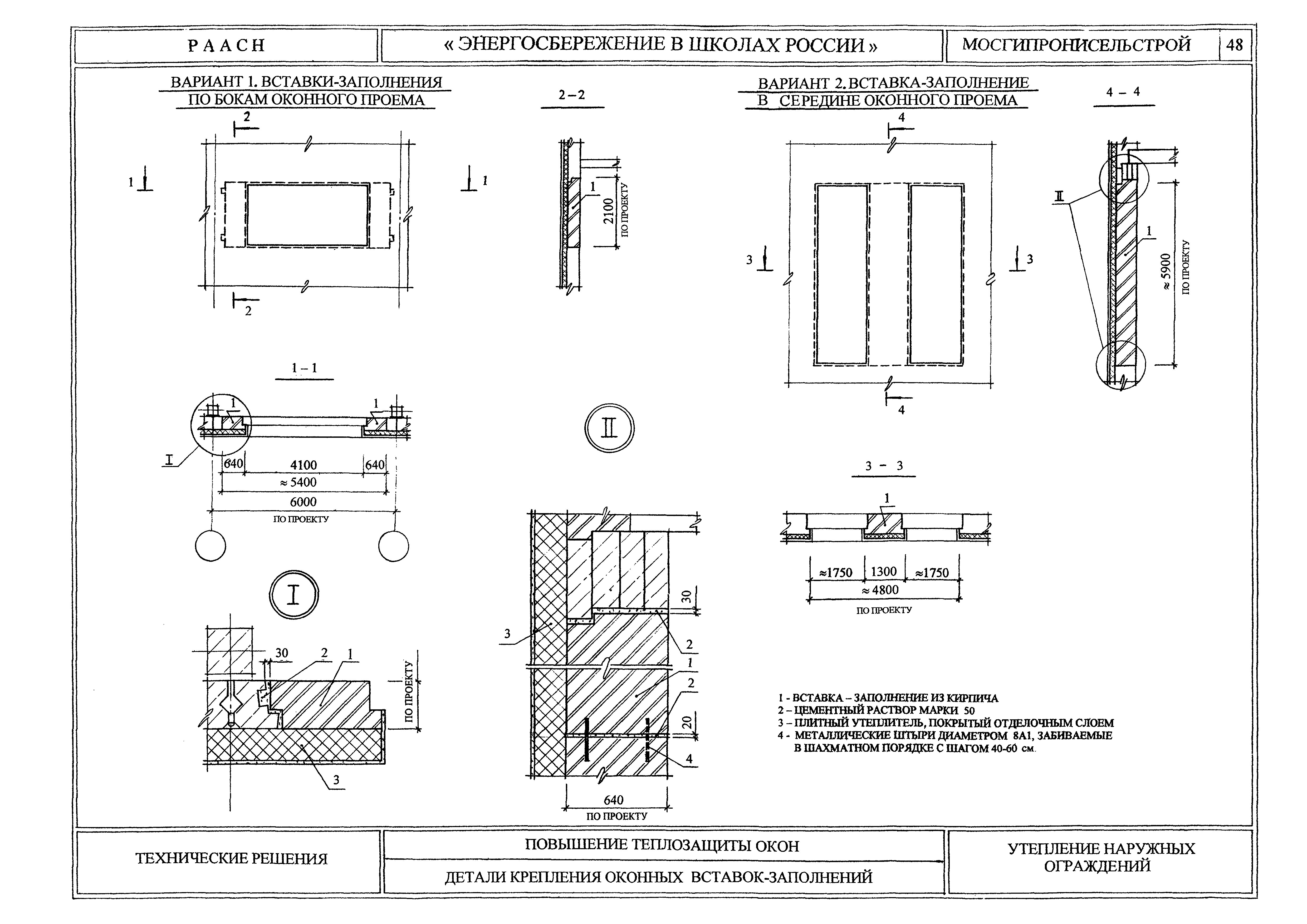
| Оглавление: | 1 Общая часть 2 Требования к теплозащитным свойствам ограждающих конструкций 3 Конструктивные решения систем утепления стен 3.1. Общие положения 3.2. Подбор толщины и вида утеплителя для реконструируемых стен Пример подбора толщины утеплителя при утеплении стен 3.3. Системы утепления с оштукатуриванием фасадов Общая схема устройства утепления Утепление стен, а также внешнего и внутреннего углов здания Примыкание утеплителя к карнизу и парапету Примыкание утеплителя к цоколю Температурный шов. Раскладка плит утеплителя Детали примыкания к парапету и оконному и дверному проемам Варианты устройства деформационных швов Утепление стен системы "АЛСЕКО" 3.4. Системы утепления с облицовкой кирпичом Устройство утепления стен из кирпича, бетонных и легкобетонных блоков 3.5. Системы утепления с защитным экраном Экран из облицовочных элементов "SIDING" с креплениями "SPIDI" Экран из облицовочных элементов "SIDING" с креплениями "SPIDI" Экран из облицовочных плит типа "RATI" по металлическому каркасу Экран из облицовочных плит типа "RATI" по деревянному каркасу Крепление крупных облицовочных плит по деревянному каркасу Экран из металлических листов с загнутыми кромками Экран из металлических листов с загнутыми кромками. Детали Экран из облицовочных плит типа "Полиалпан" по деревянному каркасу 3.6 Системы утепления деревянных стен школ Утепление стен с отделкой обшивочной доской Утепление стен с оштукатуриванием фасадов Утепление стен с облицовкой металлическим листом Утепление стен с облицовкой типа "SIDING" 4 Конструктивные решения утепления покрытий 4.1 Общие положения 4.2 Подбор толщины и вида утеплителя для реконструируемого покрытия Пример подбора толщины утеплителя при утепления покрытий Утепление совмещенных крыш Утепление чердачных перекрытий на проходном чердаке Утепление чердачных перекрытий на полупроходном чердаке 5 Конструктивные решения утепления перекрытия и цоколя техподполья 5.1 Общие положения 5.2 Подбор толщины и вида утеплителя для ограждений техподполья Пример подбора толщины утеплителя при утеплении цоколей техподполья Утепление перекрытий над техподпольем с цоколем из керамзитобетонных панелей и блоков Утепление перекрытий над техподпольем с цоколями из тяжелого бетона и кирпича 6 Повышение теплозащиты окон Установка дополнительных стекол и створок Установка уплотняющих прокладок окна Утепление оконных откосов Детали крепления оконных вставок-заполнений 7 Технико-экономические показатели реконструкции ограждающих конструкций Заключение Используемые документы Приложение 1. Требуемое сопротивление теплопередаче для ограждающих конструкций школьных зданий Приложение 2. Графики подбора толщины утеплителя при дополнительном утеплении наружных стен Приложение 3. Графики подбора толщины утеплителя при утеплении покрытий Приложение 4. Требуемое сопротивление теплопередаче ограждений техподполья и графики подбора толщины утепления для цоколей Приложение 5. Эффективные утеплители Общие требования Номенклатура современных материалов для утепления наружных стен, крыш и перекрытий Приложение 6. Рекомендуемые крепежные детали Приложение 7. Физико-технические характеристики облицовочных элементов защитных экранов |
| Разработан: | ГУП Мосгипронисельстрой РААСН ГОСИНКОР Академический центр теплоэнергоэффективных технологий |
| Утверждён: | 29.12.2000 Госстрой России (Russian Federation Gosstroy 309) |
| Нормативные ссылки: |


































































































