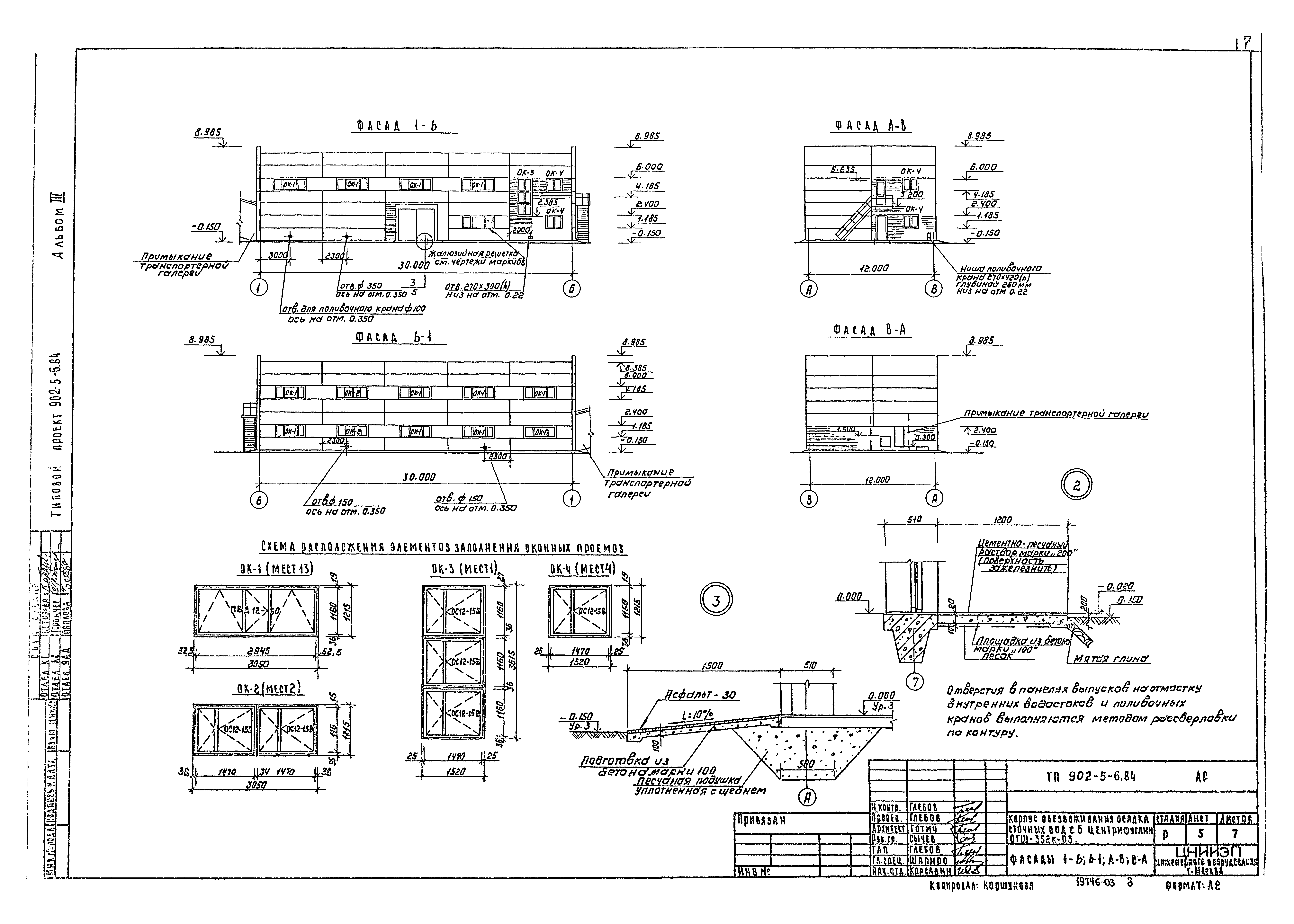
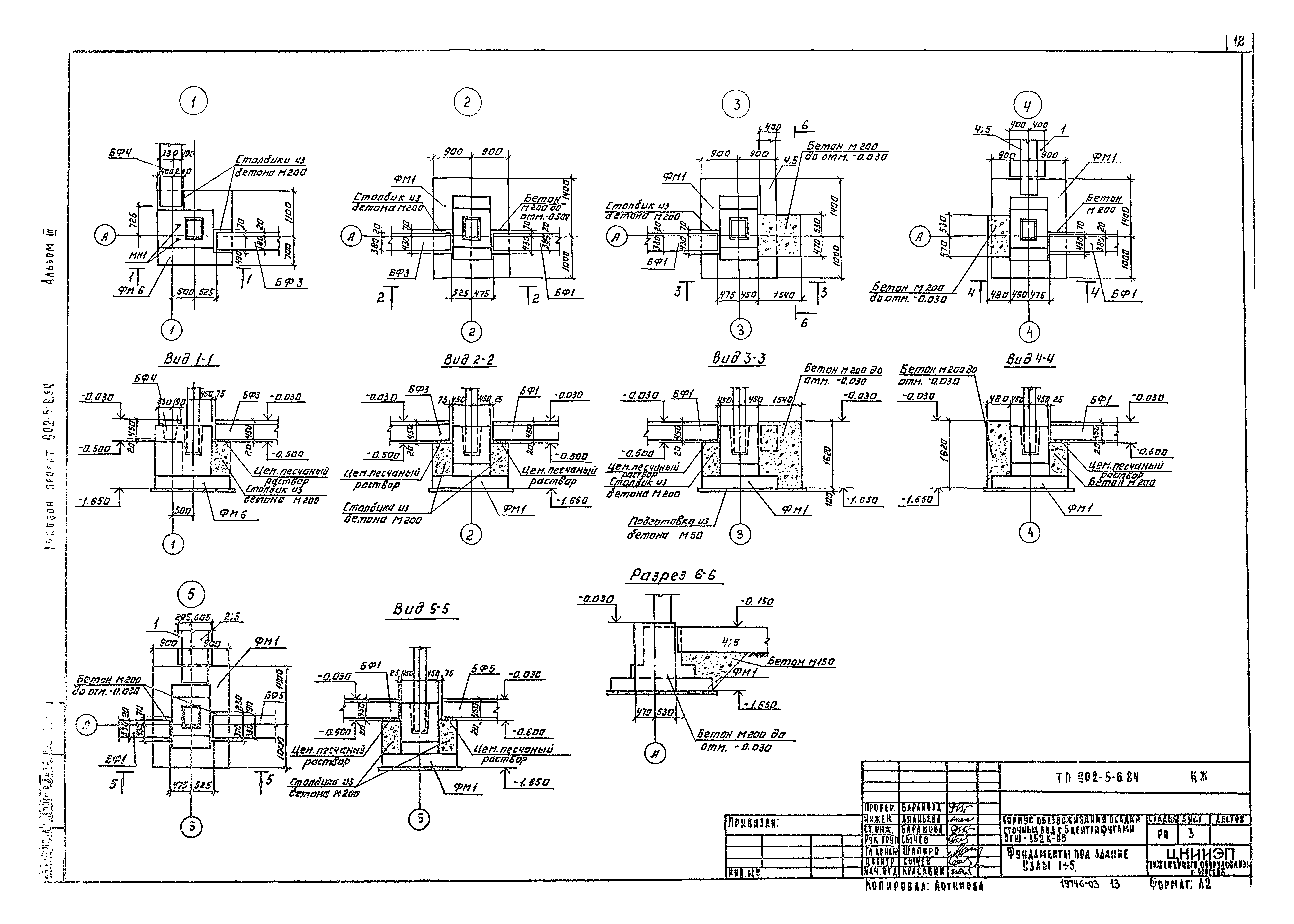
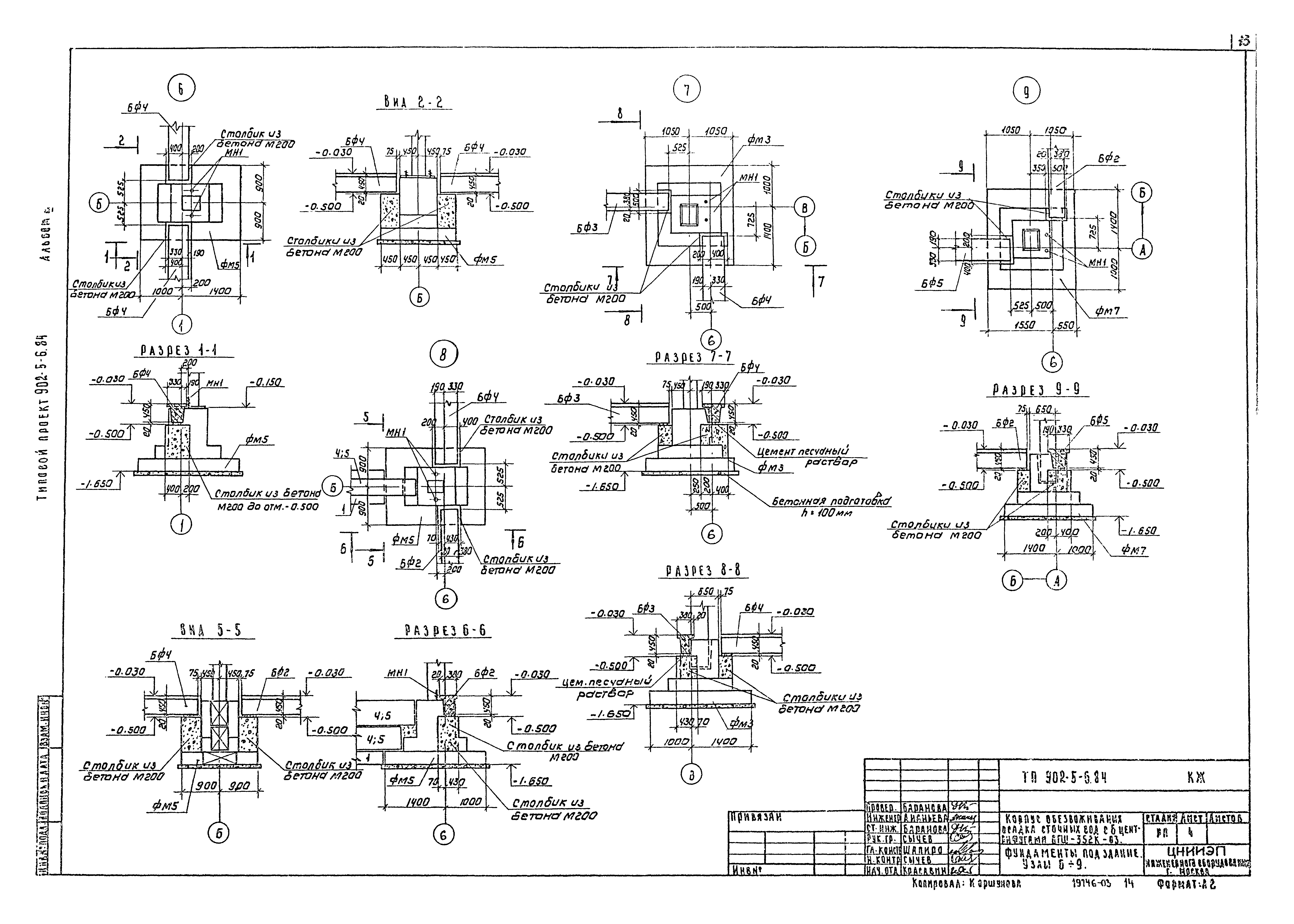
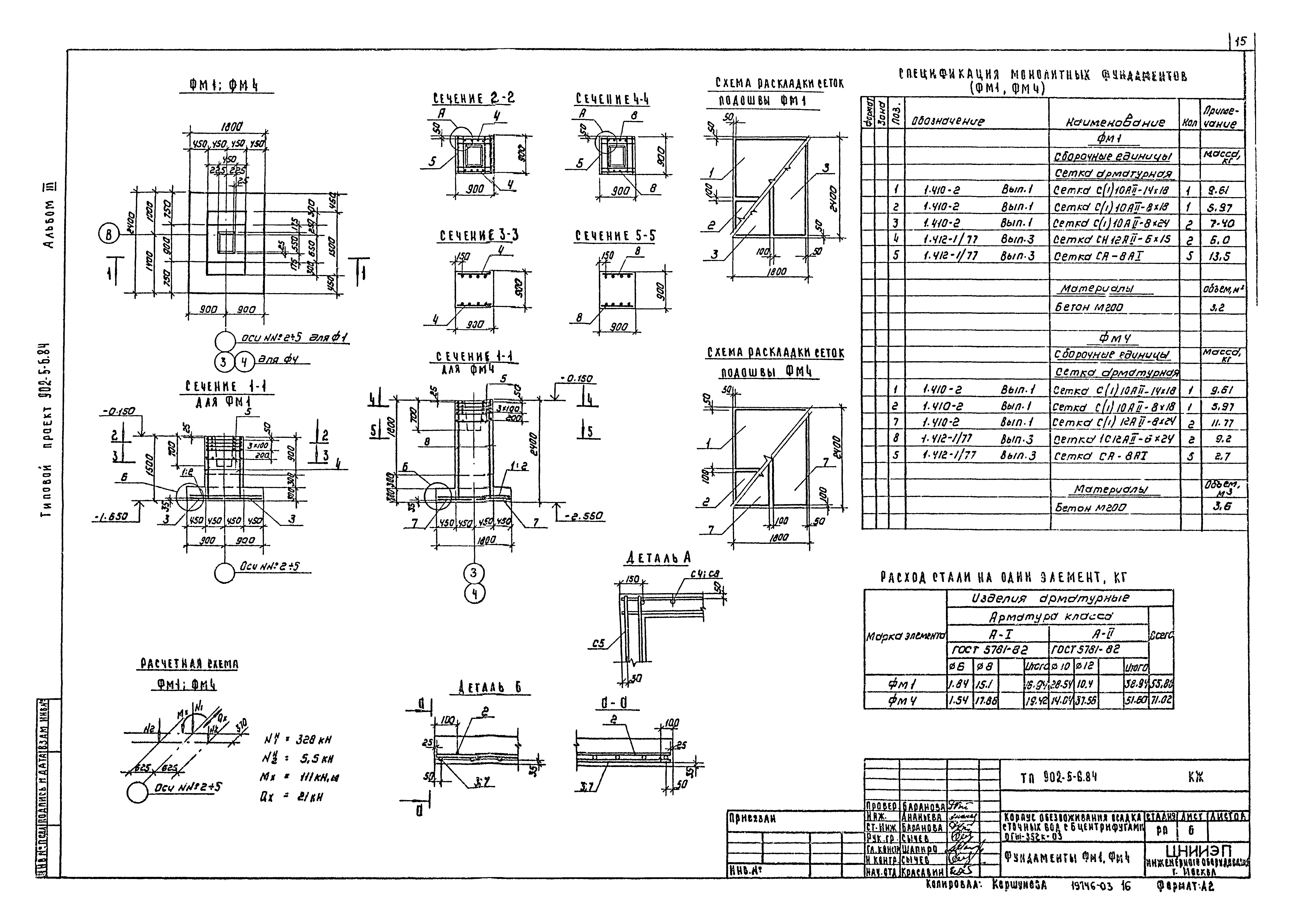
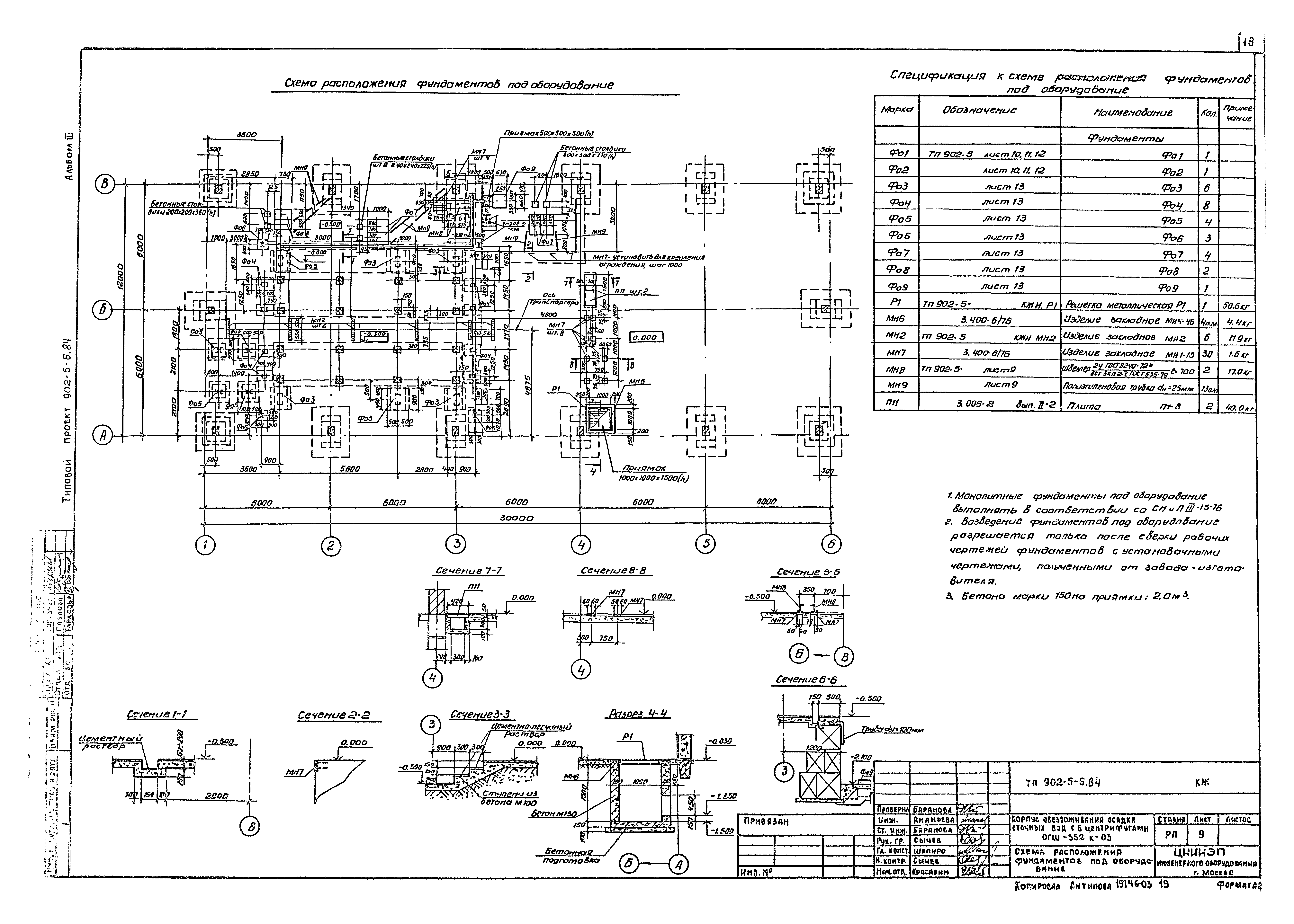
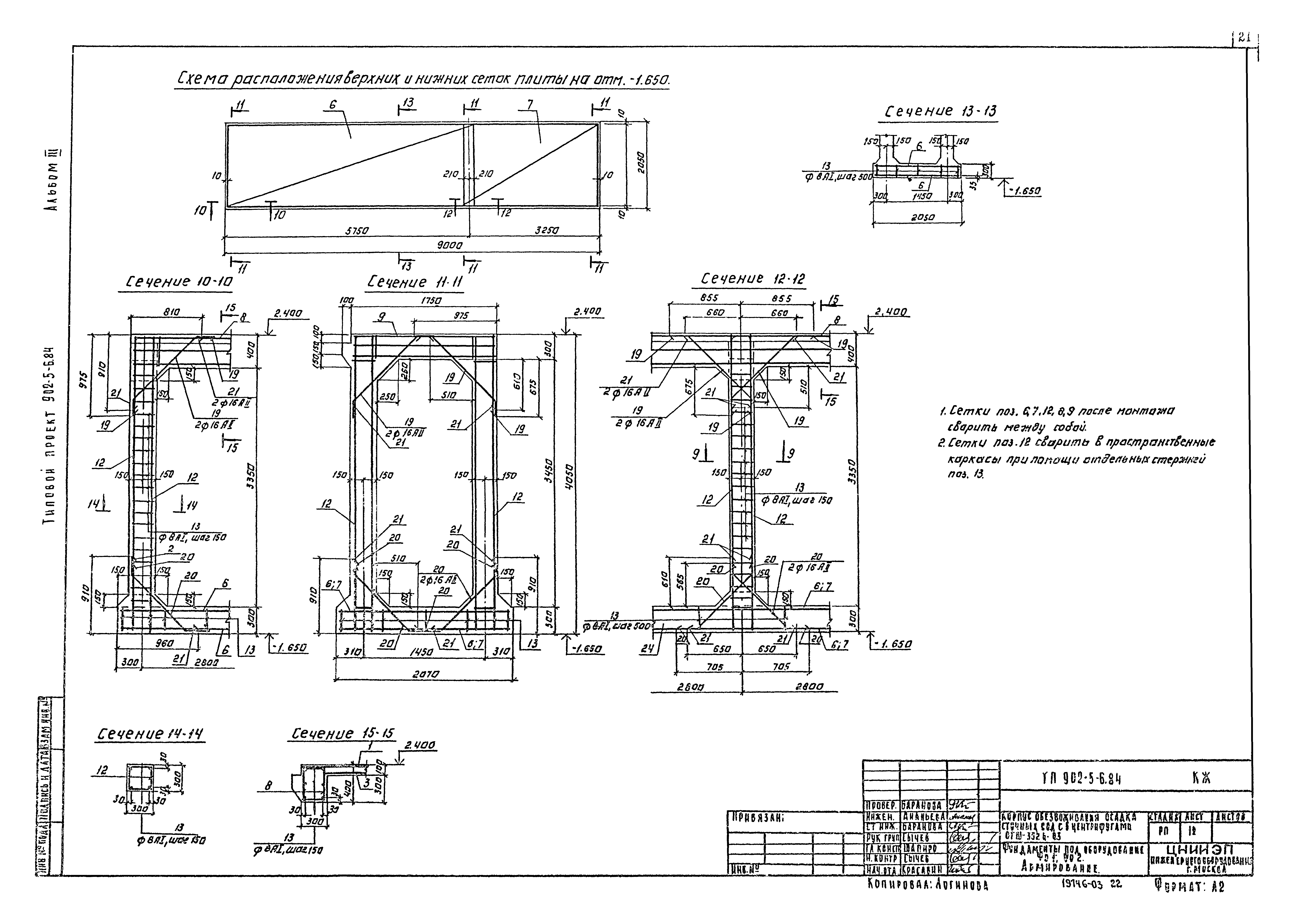
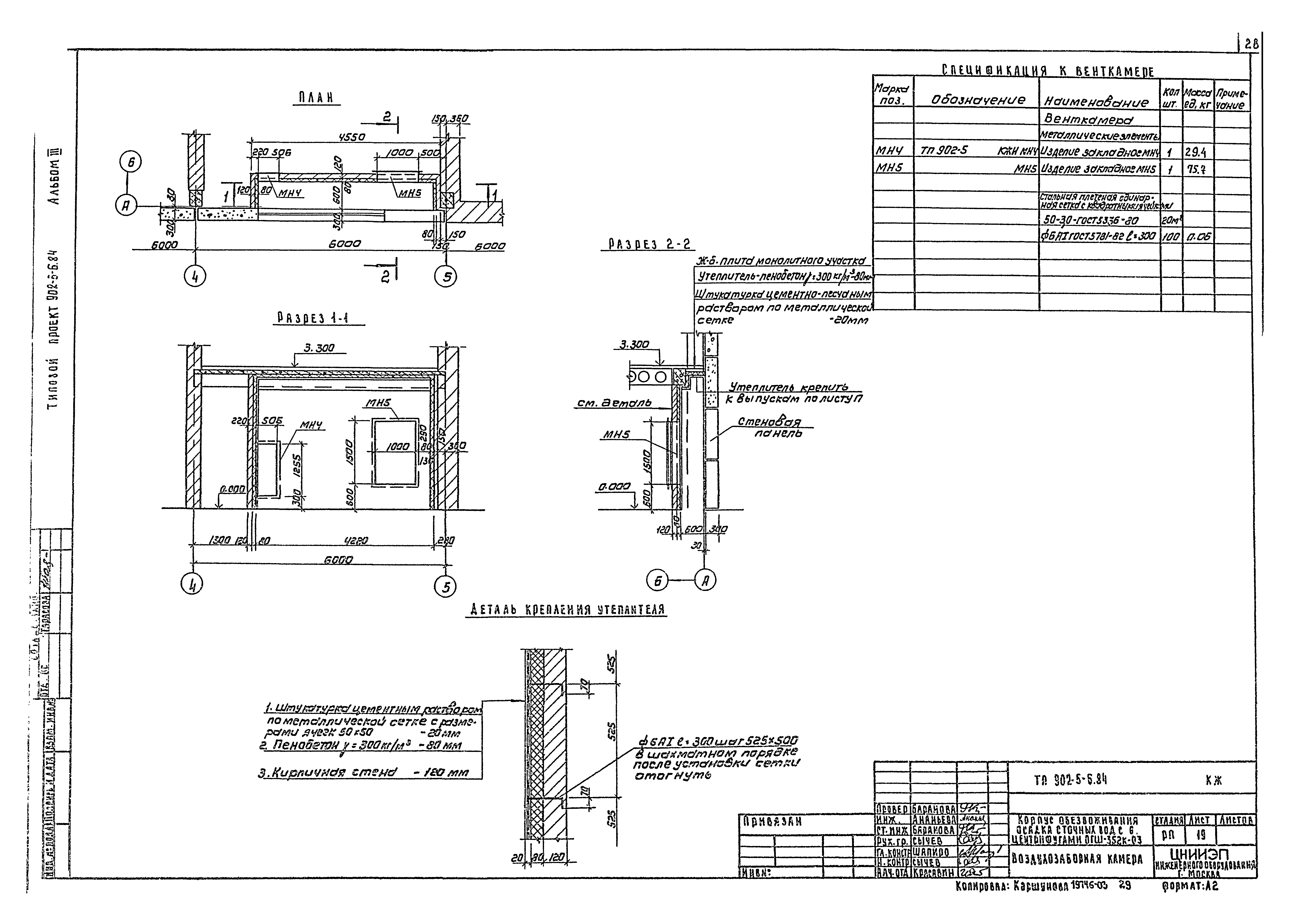
Скачать Типовой проект 902-5-6.84 Альбом III. Архитектурно-строительные решения. Конструкции железобетонные и металлическиеДата актуализации: 01.01.2021
|
| Обозначение: | Типовой проект 902-5-6.84 |
| Обозначение англ: | 902-5-6.84 |
| Статус: | не действует |
| Название рус.: | Альбом III. Архитектурно-строительные решения. Конструкции железобетонные и металлические |
| Дата добавления в базу: | 01.01.2019 |
| Дата актуализации: | 01.01.2021 |
| Дата введения: | 08.06.1984 |
| Дата окончания срока действия: | 01.02.1992 |
| Разработан: | ЦНИИЭП инженерного оборудования |
| Утверждён: | 23.09.1983 Госгражданстрой (Gosgrazhdanstroy 280) |
| Издан: | ЦИТП Госстроя СССР (CITP, Gosstroy (USSR) 1985 г. ) |










































