Скачать Автономные системы инженерного оборудования жилых домов и общественных зданий (водоснабжение, канализация, теплоснабжение, электроснабжение). Технические решенияДата актуализации: 01.01.2021
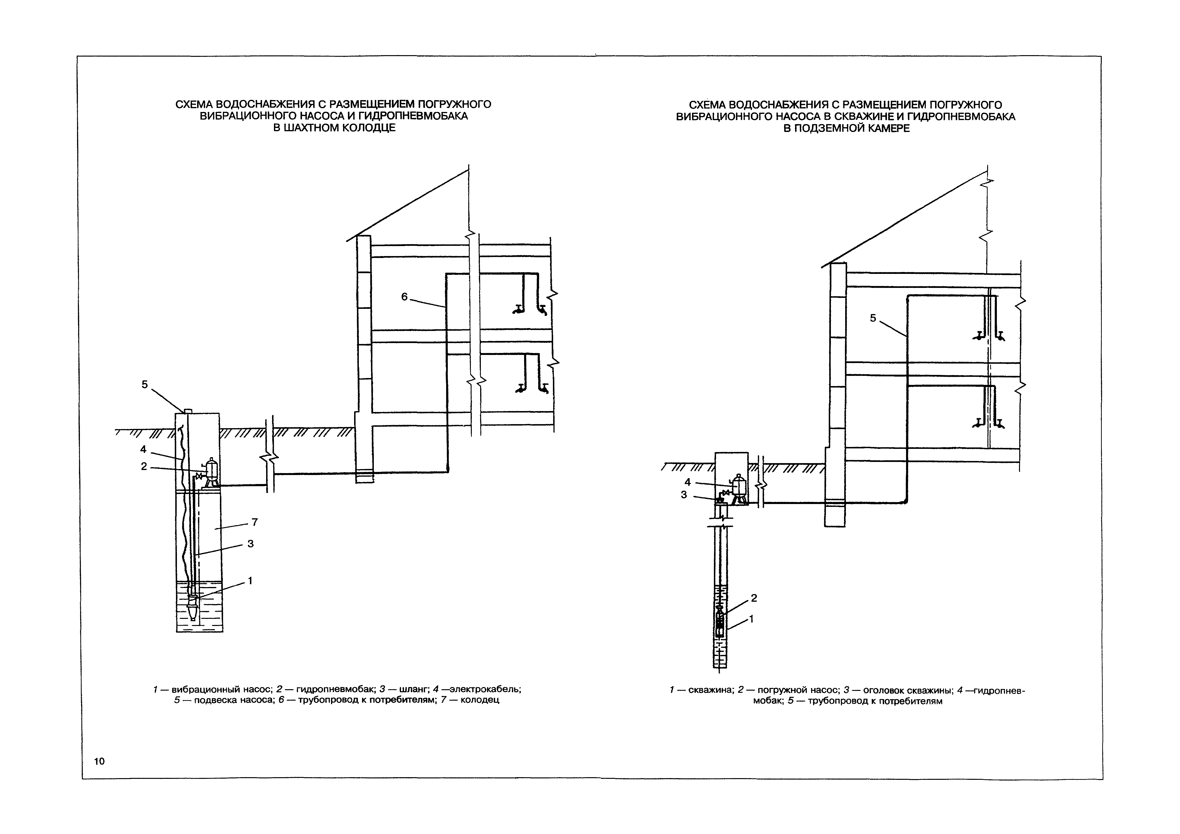
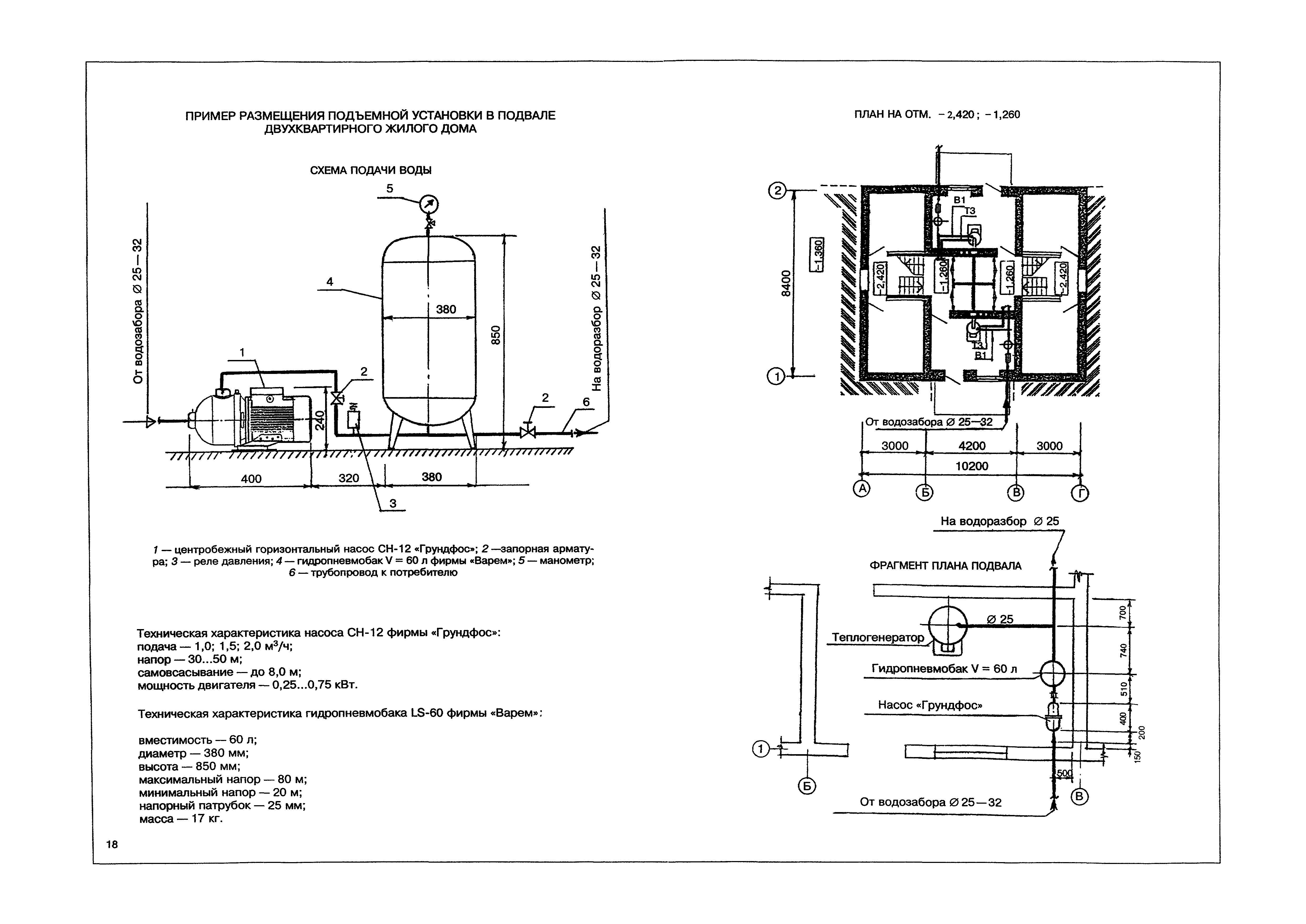
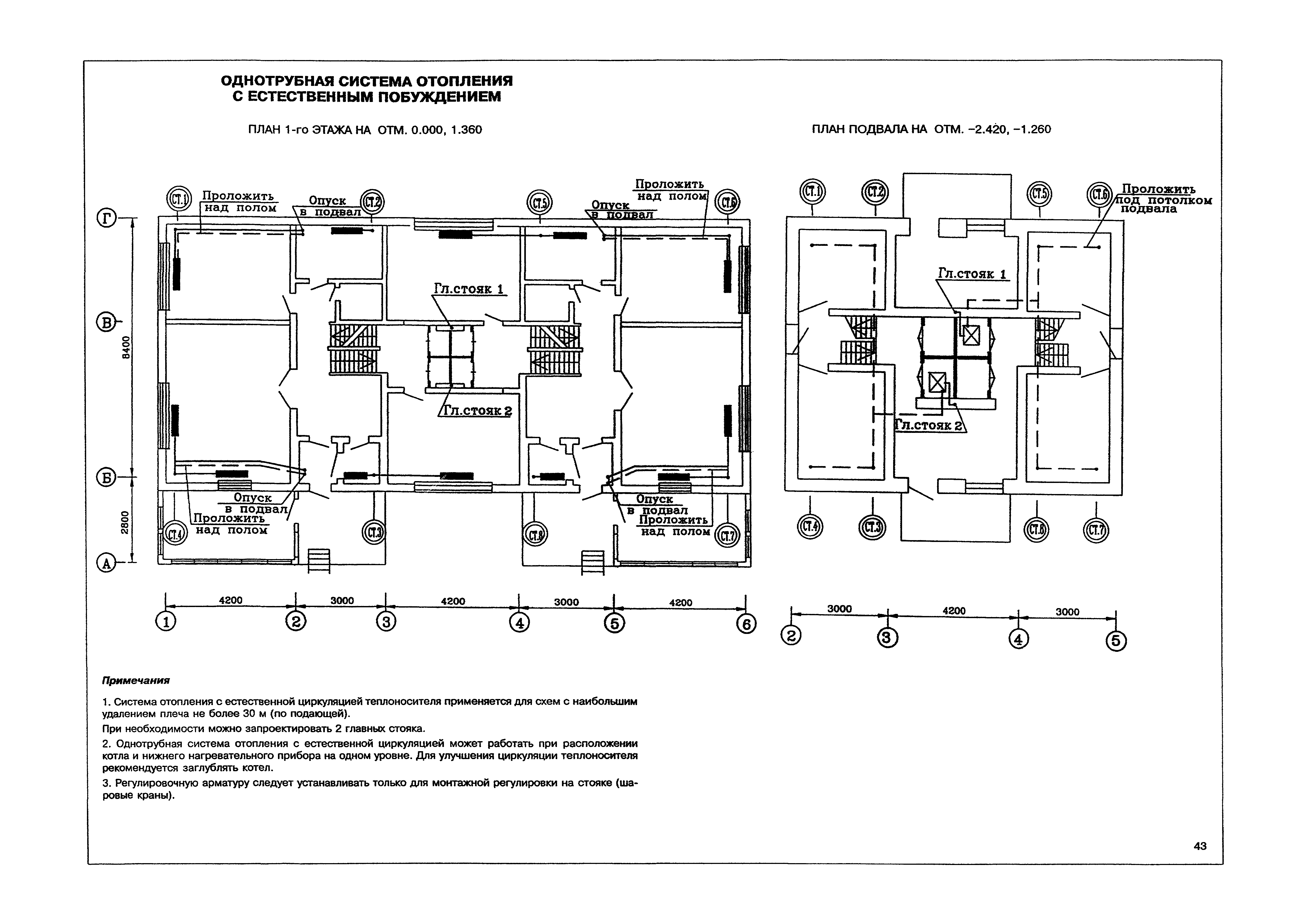
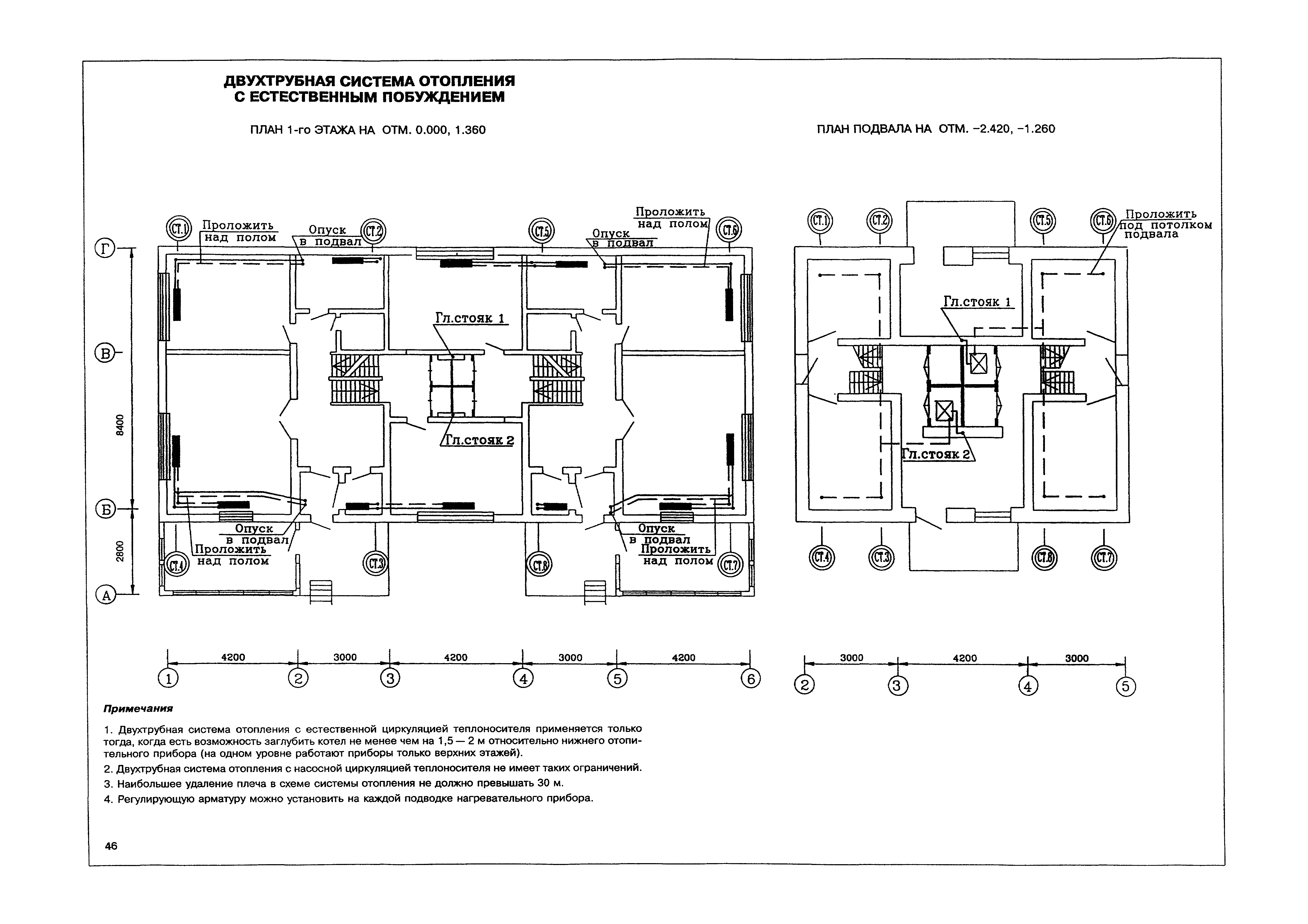
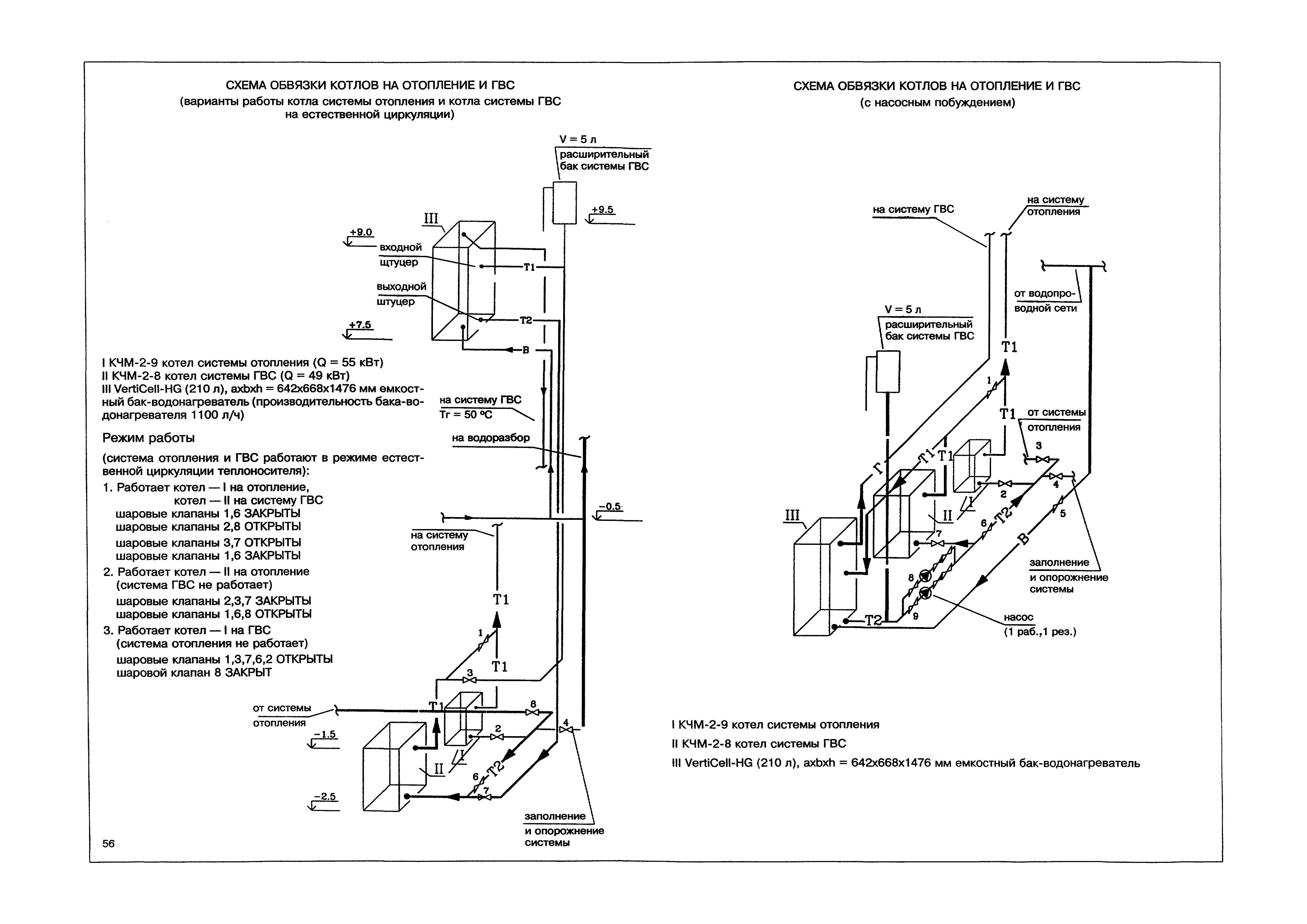
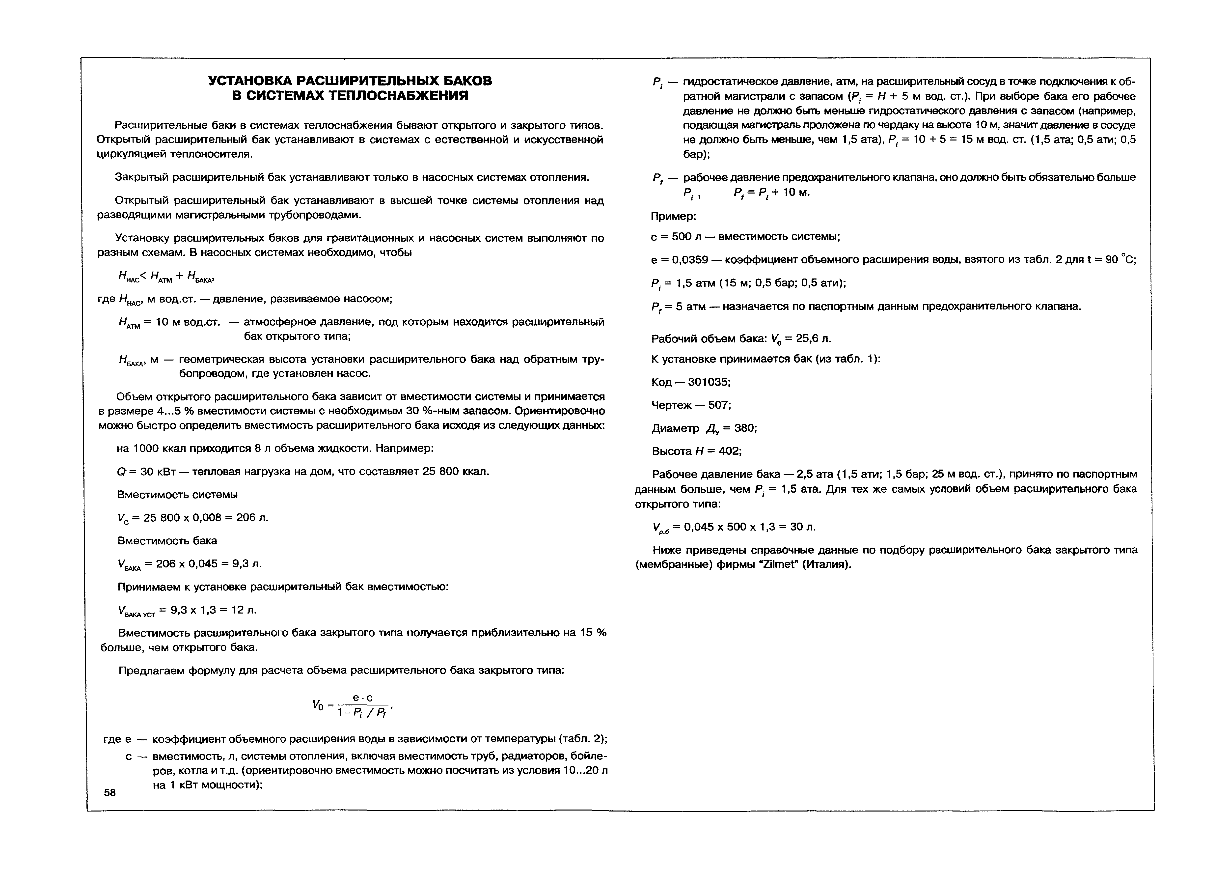
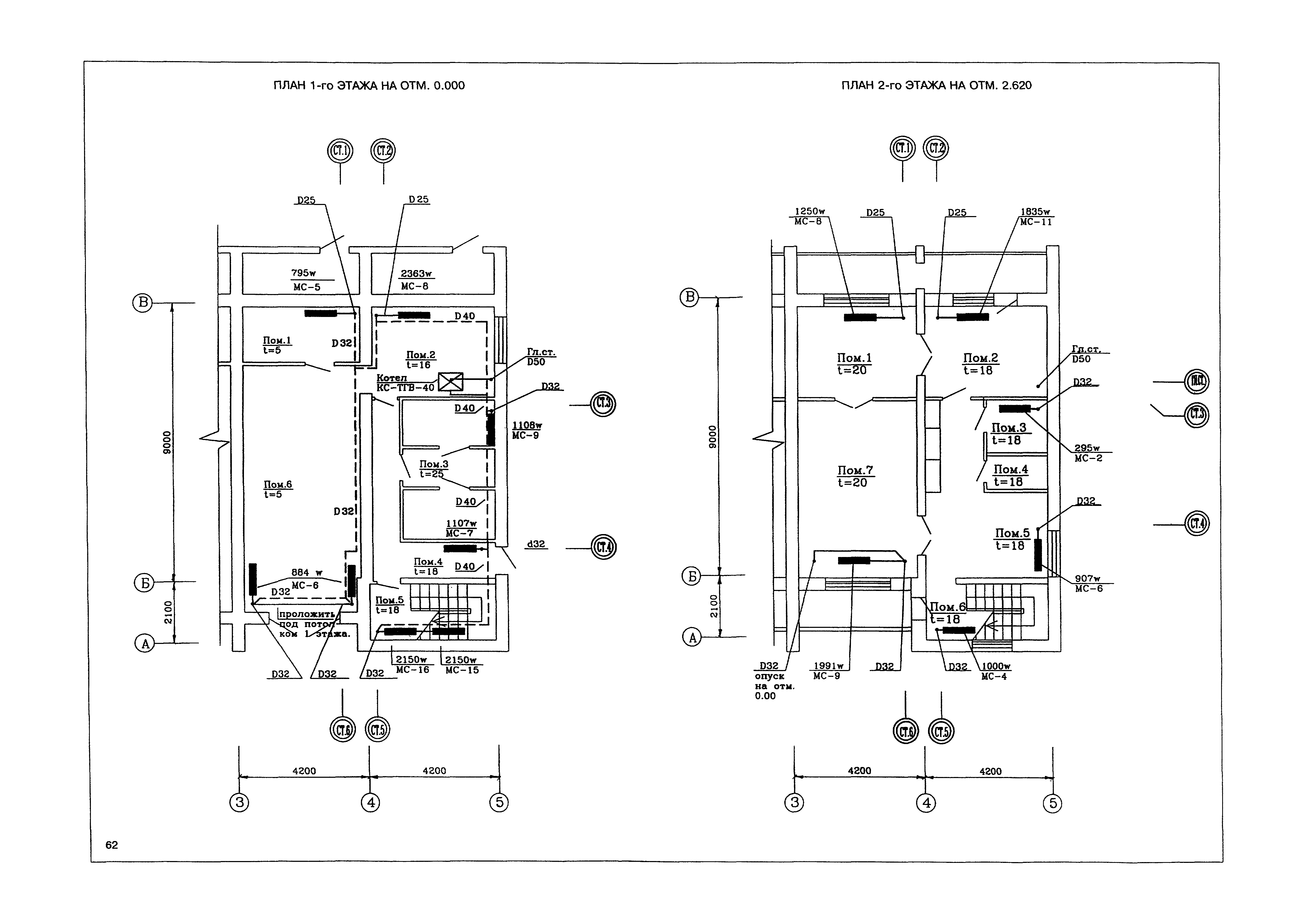
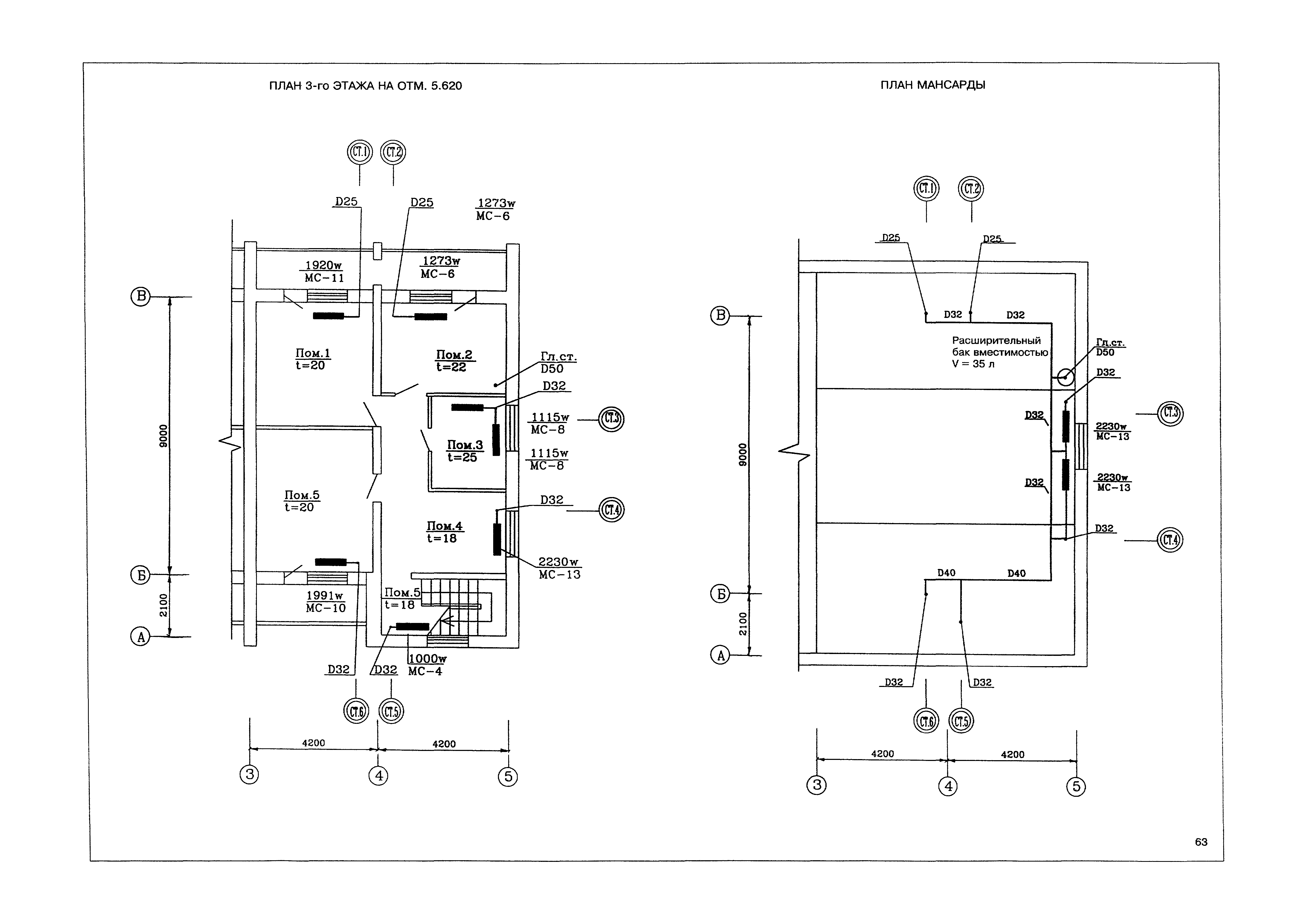
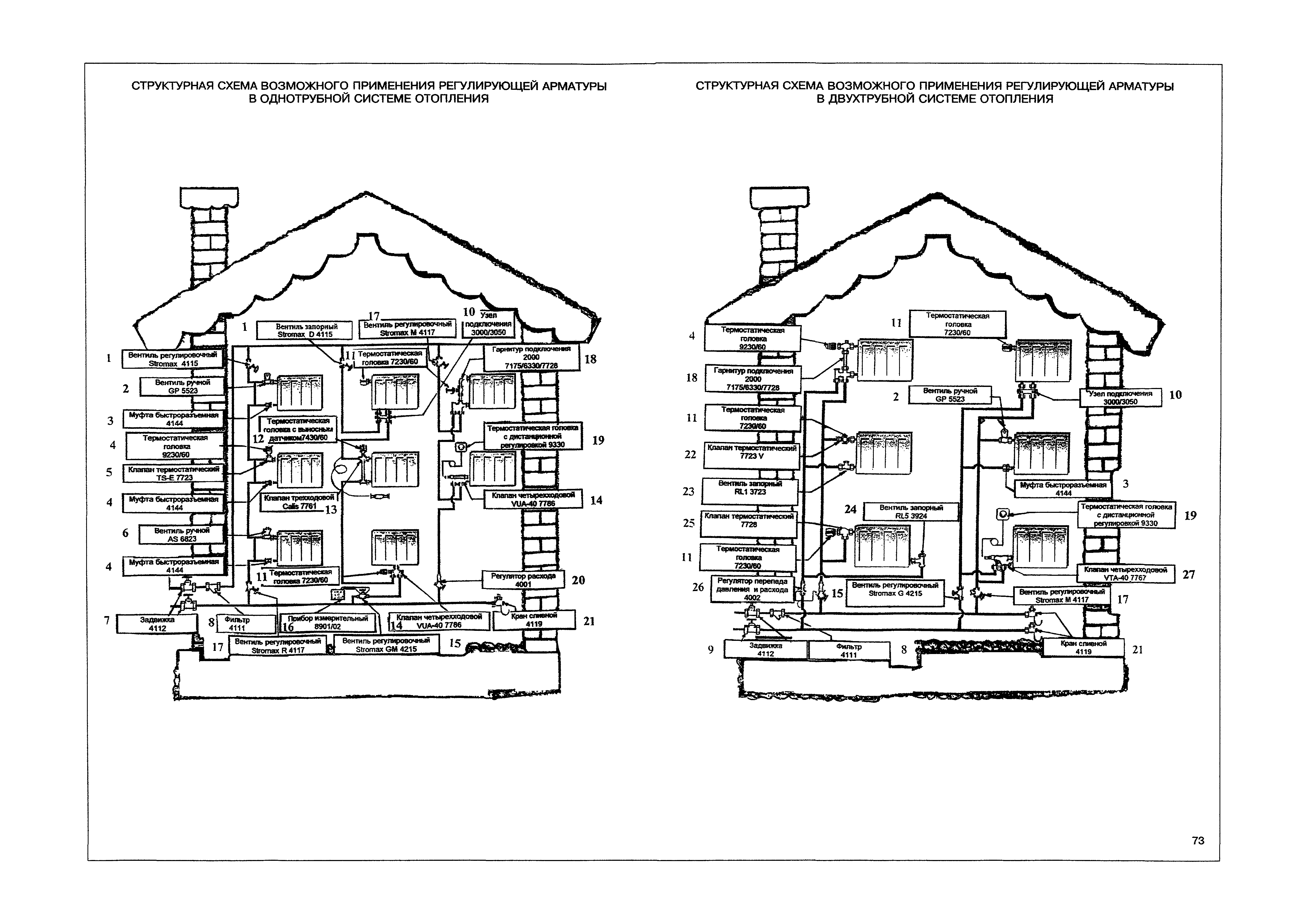
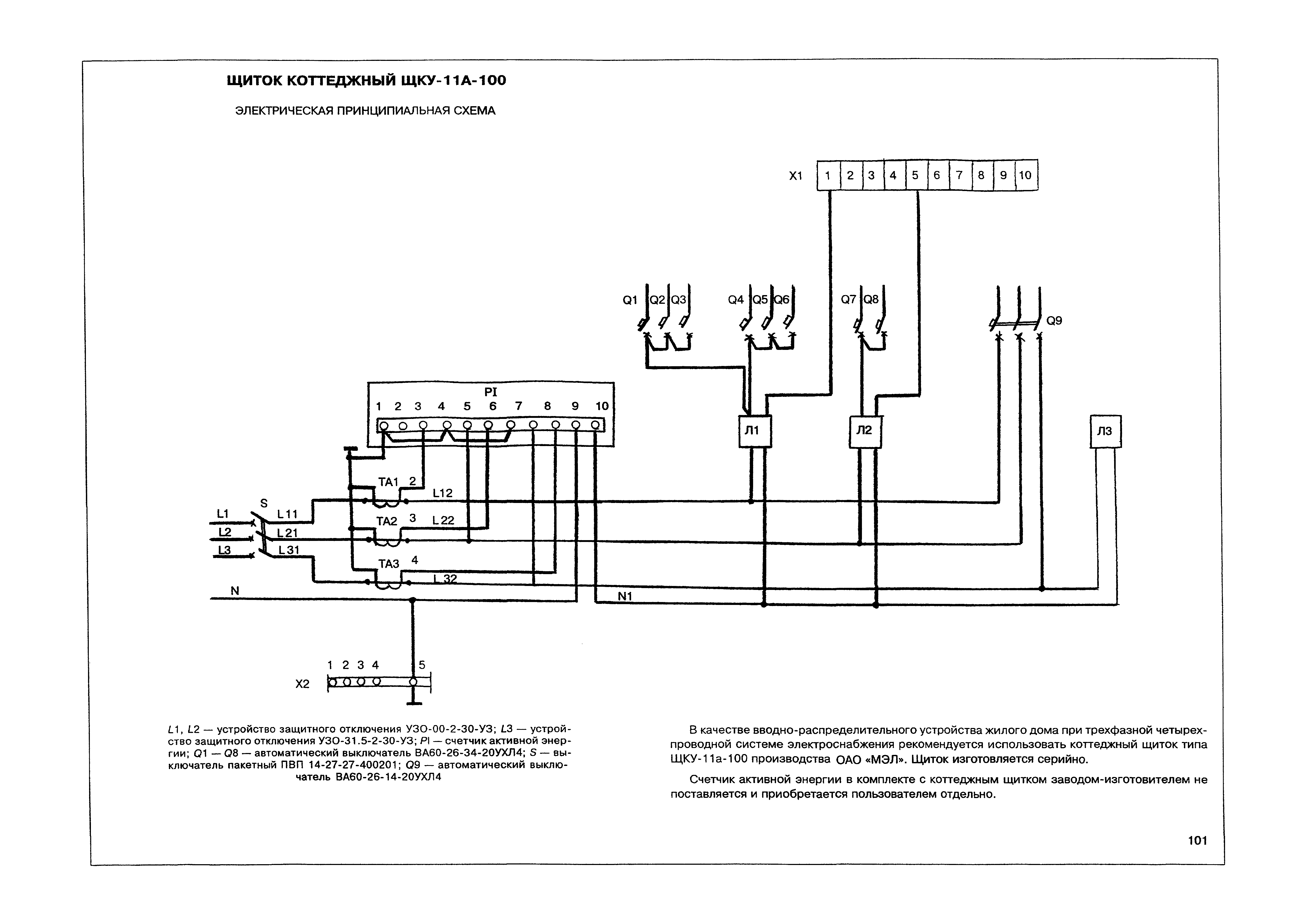
Автономные системы инженерного оборудования жилых домов и общественных зданий (водоснабжение, канализация, теплоснабжение, электроснабжение). Технические решения| Статус: | справочные материалы, мп, тпр | | Название рус.: | Автономные системы инженерного оборудования жилых домов и общественных зданий (водоснабжение, канализация, теплоснабжение, электроснабжение). Технические решения | | Дата добавления в базу: | 01.02.2020 | | Дата актуализации: | 01.01.2021 | | Область применения: | Технические решения выполнены для различных условий качества исходной питьевой воды сброса очищенных сточных вод, гидрогеологических условий строительства, вида топлива, состава потребителей, архитектурно-планировочных решений жилого дома. Альбом технических решений рассчитан на широкий круг специалистов, связанных с проектированием и строительством малоэтажных домов, а также на инвесторов-заказчиков, индивидуальных застройщиков. | | Оглавление: | Введение Автономные сети и сооружения Водоснабжение Общие положения Схемы водоснабжения жилого дома Водозаборная скважина Шахтный колодец из сборных железобетонных колец Пример размещения насоса в шахтном колодце Пример размещения водоподъемных устройств Пример размещения водоподъемной установки жилого дома Примеры размещения водоочистных установок в жилом доме Безнапорный регулирующий бак Типовые решения применения изделий фирмы "GEBERIT" в системах водоснабжения и канализации Канализация Общие положения Схемы применения очистных сооружений различных типов Устройство септиков Фильтрующие колодцы Поля подземной фильтрации Фильтрующая кассета Песчано-гравийные фильтры Биологические пруды Установка "ОСИНА" (септик-биофильтр) Установка "БИОКЛЕР" (септик-биофильтр) Установка комбинированной очистки сточных вод "Тверь-1,5" Установка очистки дождевых сточных вод автозаправочных станций "Свирь" Установка анаэробно-аэробной очистки "БРИЗ" Установка "ВОДОЛЕЙ" для очистки сточных вод Дисковый биофильтр с септиком Установка очистки сточных вод "БИОВАК ФД" Установка перекачки сточных вод Теплоснабжение Общие положения Однотрубная система отопления с естественным побуждением Двухтрубная система отопления с естественным побуждением Напольное отопление с использованием пластиковых труб Установка электрических котлов ЭВП для отопления жилых помещений Использование солнечной энергии в системах теплоснабжения Принципиальные схемы обвязки котлов Установка расширительных баков в системах теплоснабжения Использование пластинчатых теплообменников в системах горячего водоснабжения Примеры решения отопления жилого дома Трубопроводы, применяемые в системах отопления и горячего водоснабжения Коллекторная система отопления с горизонтальной разводкой полиэтиленовых труб "FENPEX" с защитным гофрированным чехлом Отопительные приборы в системах теплоснабжения Насосы циркуляционные в системах теплоснабжения Арматура, используемая в системах теплоснабжения Длинноволновые электрические отопительные приборы потолочного крепления "Эколайн" Автоматизация систем теплоснабжения зданий с помощью приборов и устройств фирмы "Данфосс" Примеры схем автоматизации систем теплоснабжения зданий на основе оборудования фирмы "Данфосс" Краткое описание основных элементов схем автоматизации систем теплоснабжения зданий Газоснабжение Общие положения Определение расхода и запаса газа в резервуаре Установка газовых плит и баллонов Установка газовых плит Шкафная наружная баллонная установка Индивидуальные резервуарные установки Газовый ввод Установка отопительного газового аппарата (котла) Установка газового проточного водонагревателя Газооборудование жилого дома Подключение теплогенератора к дымоходу Учет расхода газа Испарительная способность баллонов Определение точки росы газовой смеси Электроснабжение Общие положения Электроснабжение жилого дома от ДЭС на напряжение 220 В Электроснабжение жилого дома от ДЭС на напряжение 380/220 В Дизельная электростанция (ДЭС), выполненная на базе электроагрегата АД16-Т400-1ВП ДЭС на базе блок-контейнера типа "Север" Щиток коттеджный ЩКУ-3-63 Щиток коттеджный ЩКУ-11а-100 Молниезащита здания ДЭС Распределительные электрические сети Электроснабжение жилого дома на базе микроГЭС Электроснабжение на базе ВЭУ Ветроагрегат ВТН8-8 Установка ветроагрегата на приусадебном участке Электроснабжение жилого дома на базе СФУ Фотоэлектрические модули Техническая характеристика фотоэлектрических модулей Электрическая схема электроснабжения на базе СФУ | | Разработан: | Торговый дом Инженерное оборудование
|
                                                                                                                 
|