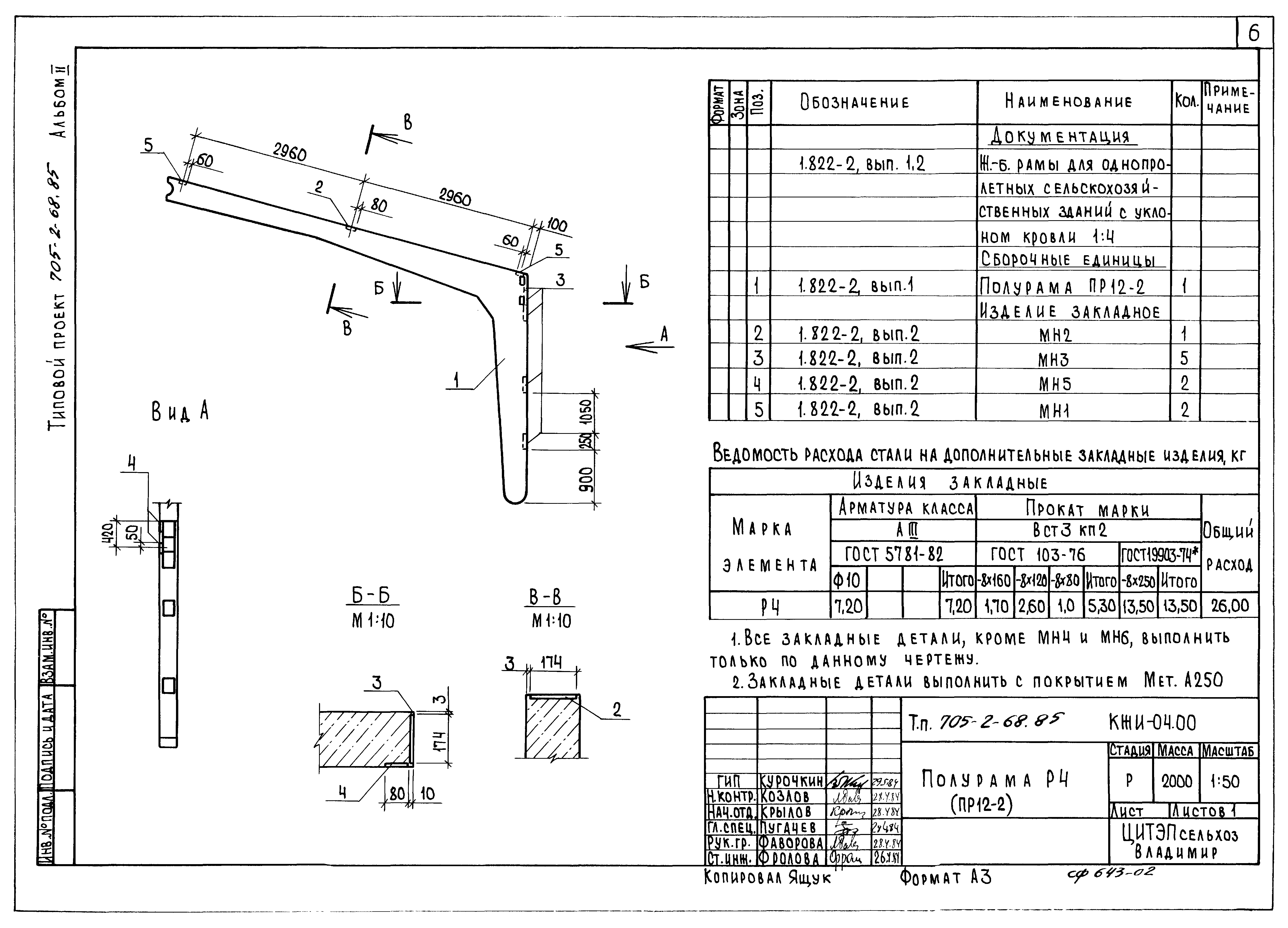
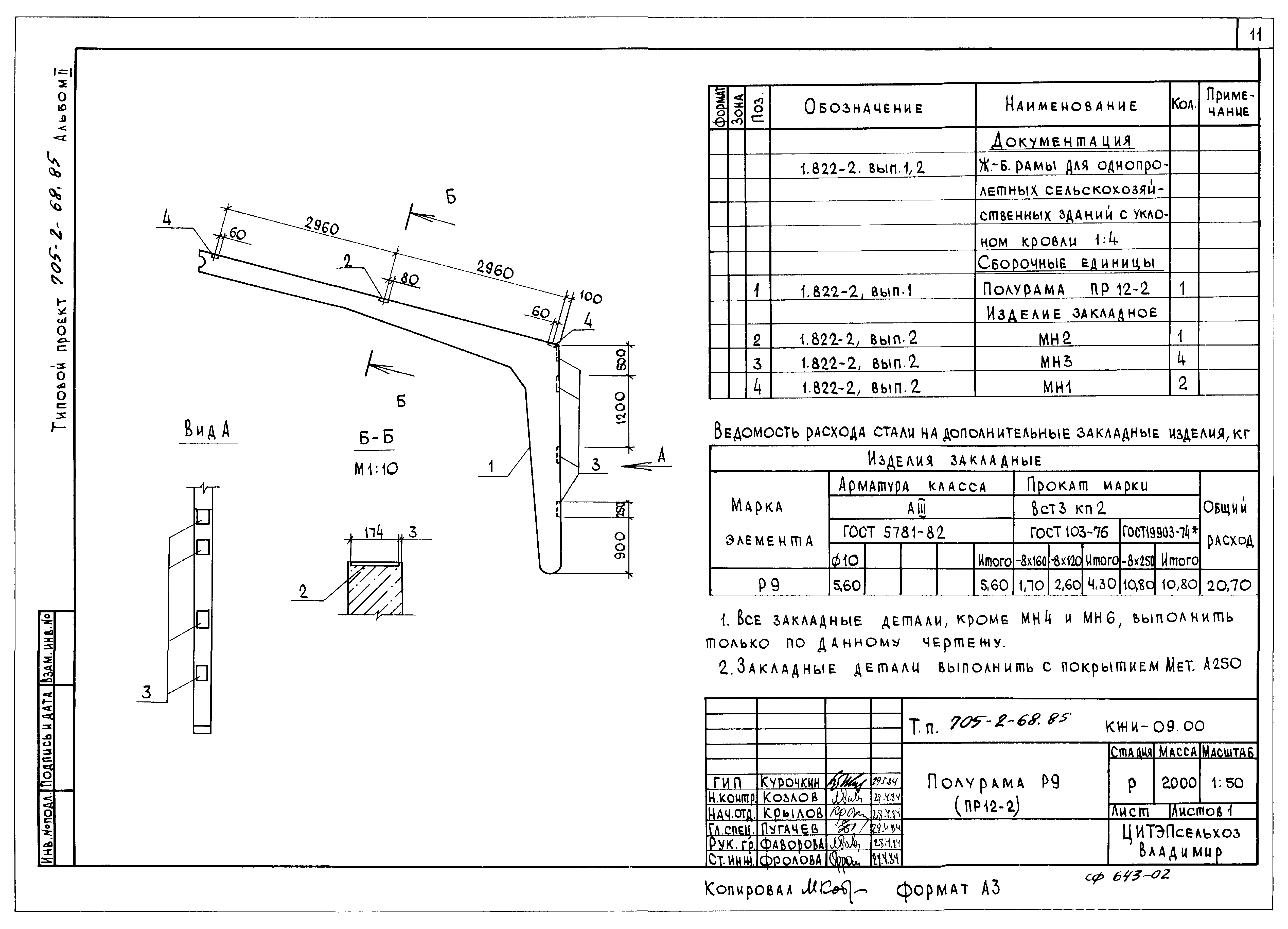
Скачать Типовой проект 705-2-68.85 Альбом II. Строительные изделияДата актуализации: 01.01.2021
|
| Обозначение: | Типовой проект 705-2-68.85 |
| Обозначение англ: | 705-2-68.85 |
| Статус: | не определен законодательством |
| Название рус.: | Альбом II. Строительные изделия |
| Дата добавления в базу: | 01.02.2020 |
| Дата актуализации: | 01.01.2021 |
| Дата введения: | 27.09.1984 |
| Дата окончания срока действия: | 30.06.2003 |
| Разработан: | ЦИТЭПсельхозпром |
| Утверждён: | 04.04.1984 Главсельстройпроект Минсельхоза СССР (Glavselstroyproject, USSR Minselkhoz 20-ЭГ) |

















