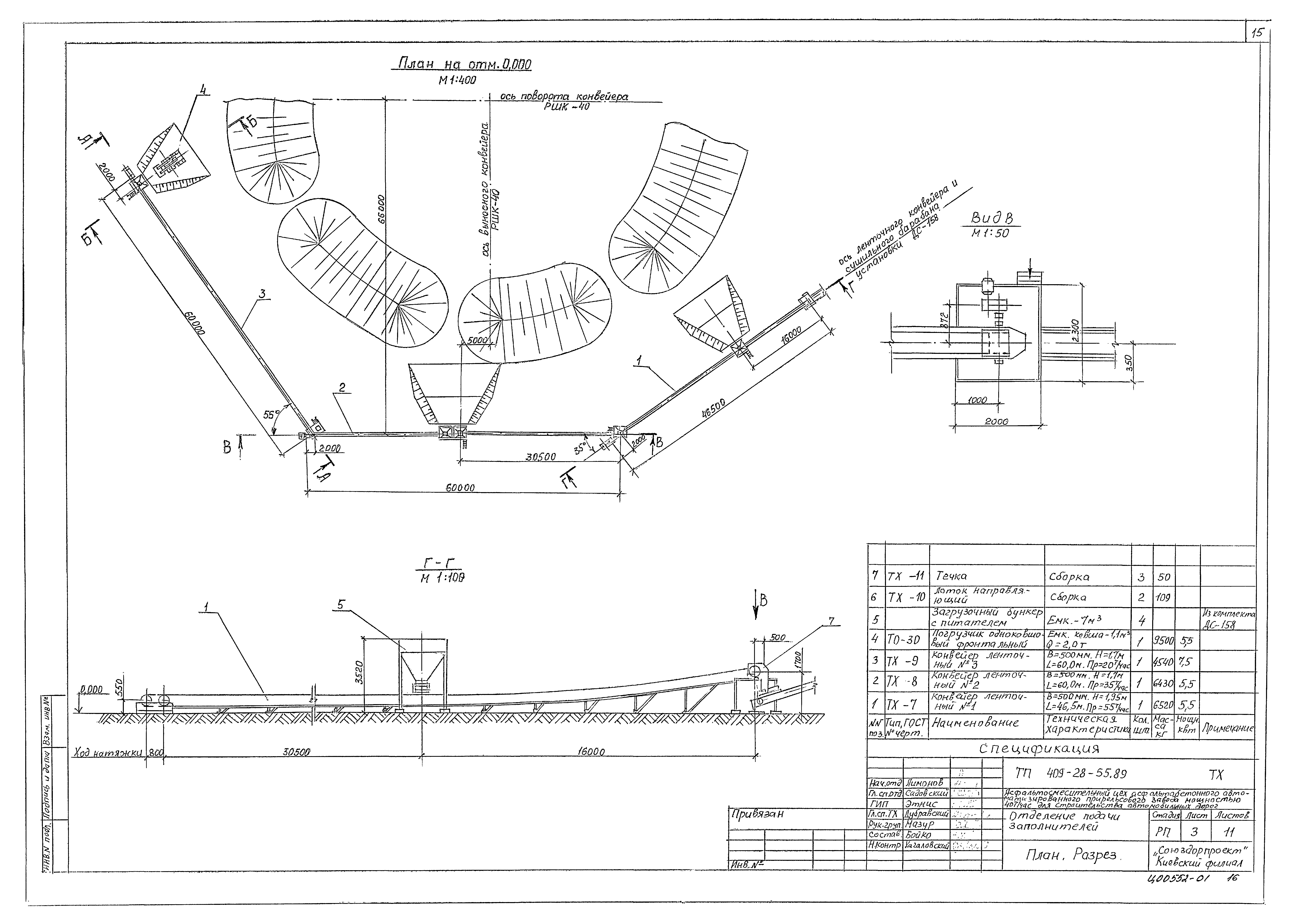
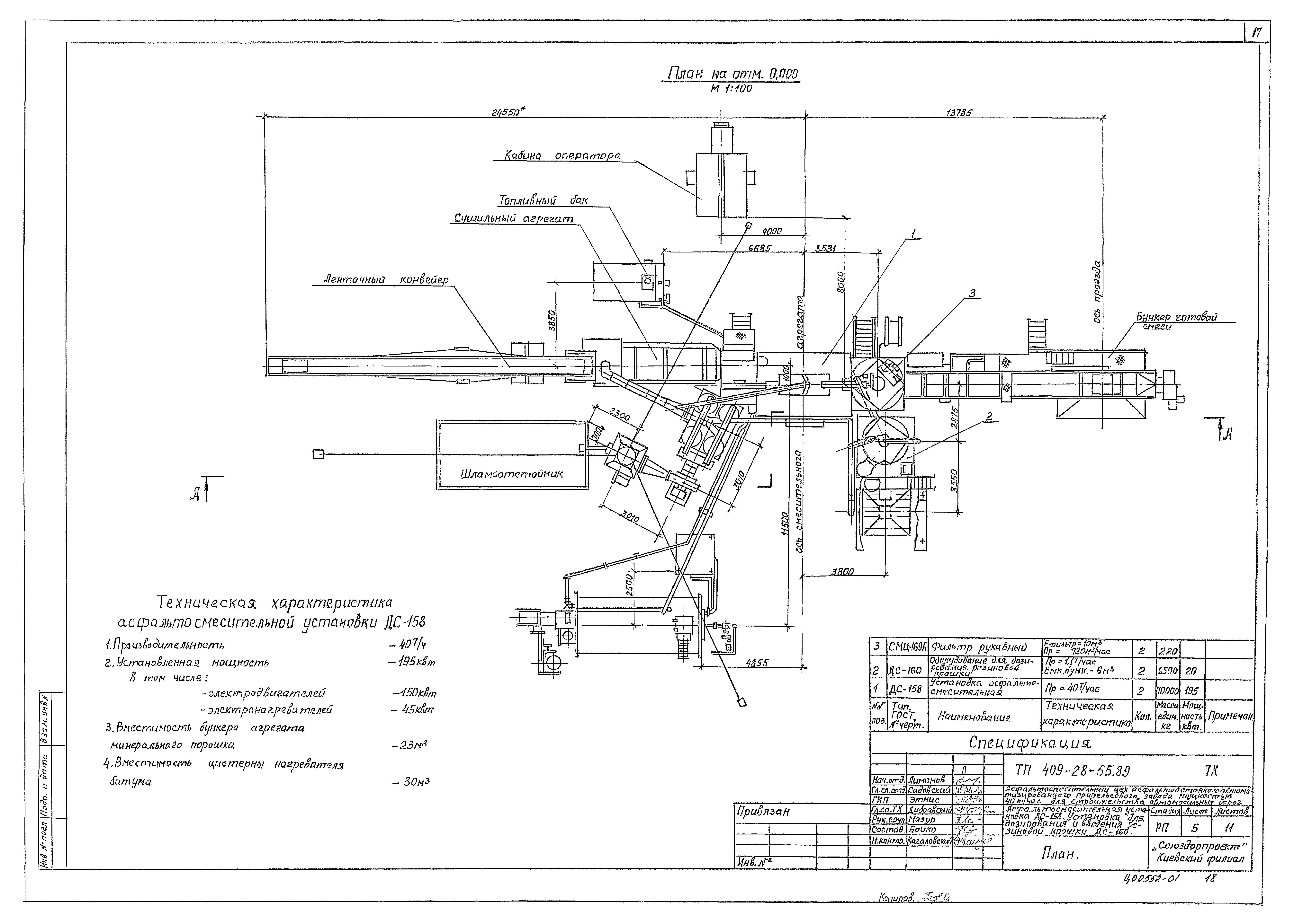
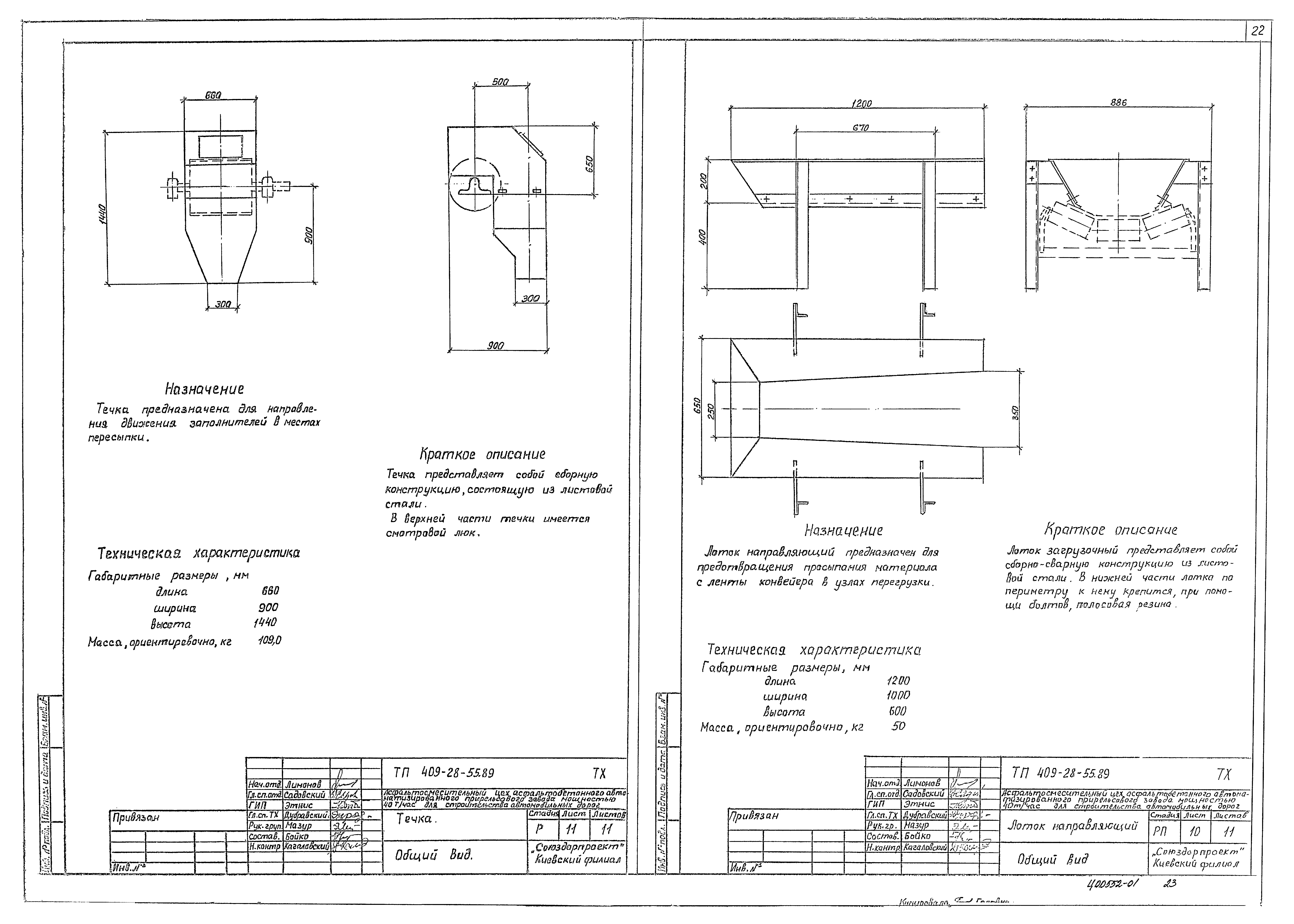
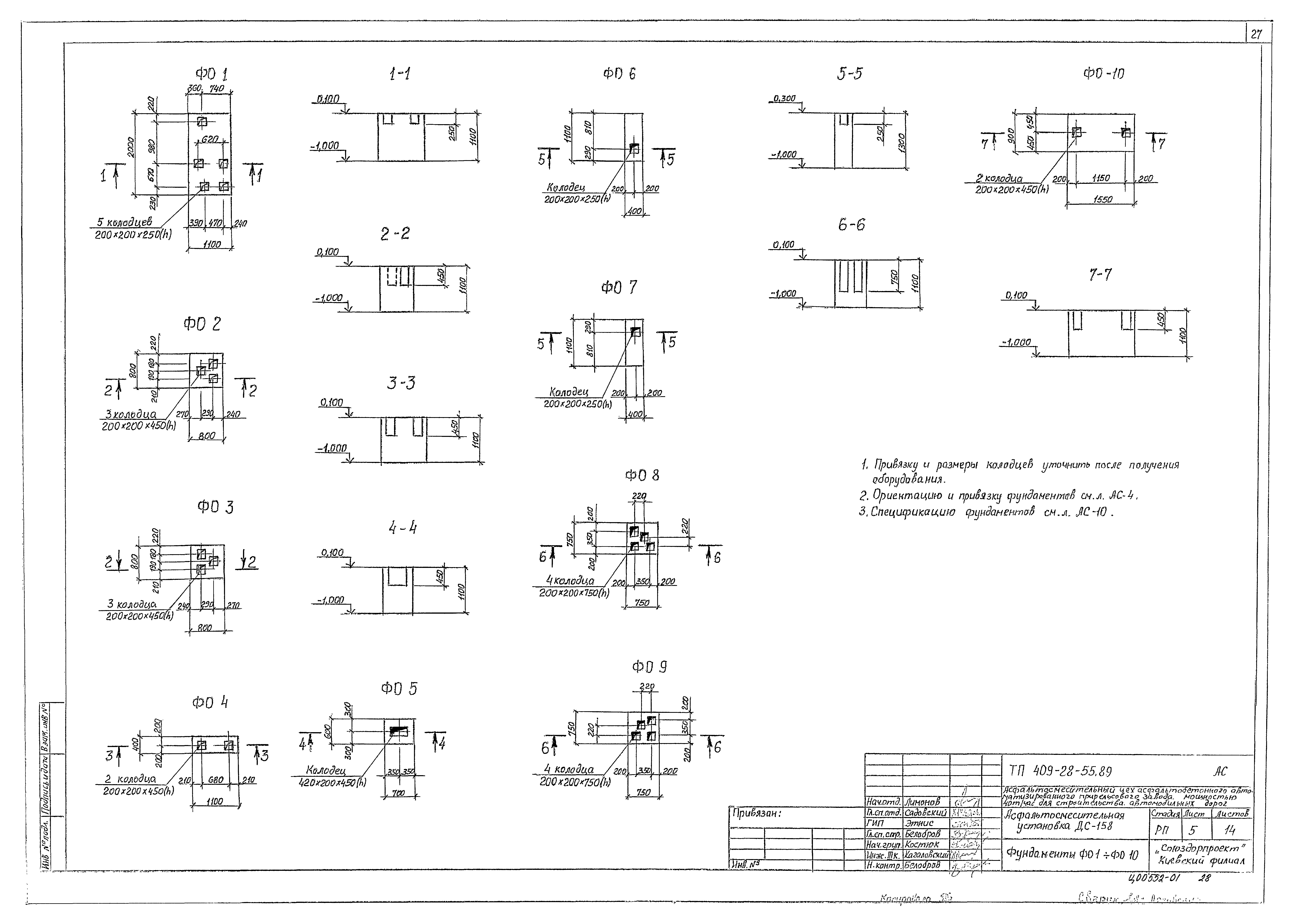
Скачать Типовой проект 409-28-55.89 Альбом 1. Пояснительная записка. Технологические решения. Архитектурно-строительные решения. ЭлектрооборудованияДата актуализации: 01.01.2021
|
| Обозначение: | Типовой проект 409-28-55.89 |
| Обозначение англ: | 409-28-55.89 |
| Статус: | не определен законодательством |
| Название рус.: | Альбом 1. Пояснительная записка. Технологические решения. Архитектурно-строительные решения. Электрооборудования |
| Дата добавления в базу: | 01.02.2020 |
| Дата актуализации: | 01.01.2021 |
| Дата введения: | 04.11.1989 |
| Дата окончания срока действия: | 30.06.2003 |
| Разработан: | Киевский филиал Союздорпроекта |
| Утверждён: | 04.11.1989 Минтрансстрой (Mintransstroy АВ-491) |























































