Скачать Типовой проект 503-5-51.94 Альбом 2. Архитектурно-строительные решения. Отопление и вентиляция. Внутренние водопровод и канализация. Электрическое освещение. Силовое электрооборудование. Автоматизация систем отопления и вентиляции. Связь и сигнализация. Пожарная сигнализация. Задание заводу-изготовителю на изготовление щитов управления и автоматизации

Дата актуализации: 01.01.2021

Типовой проект 503-5-51.94

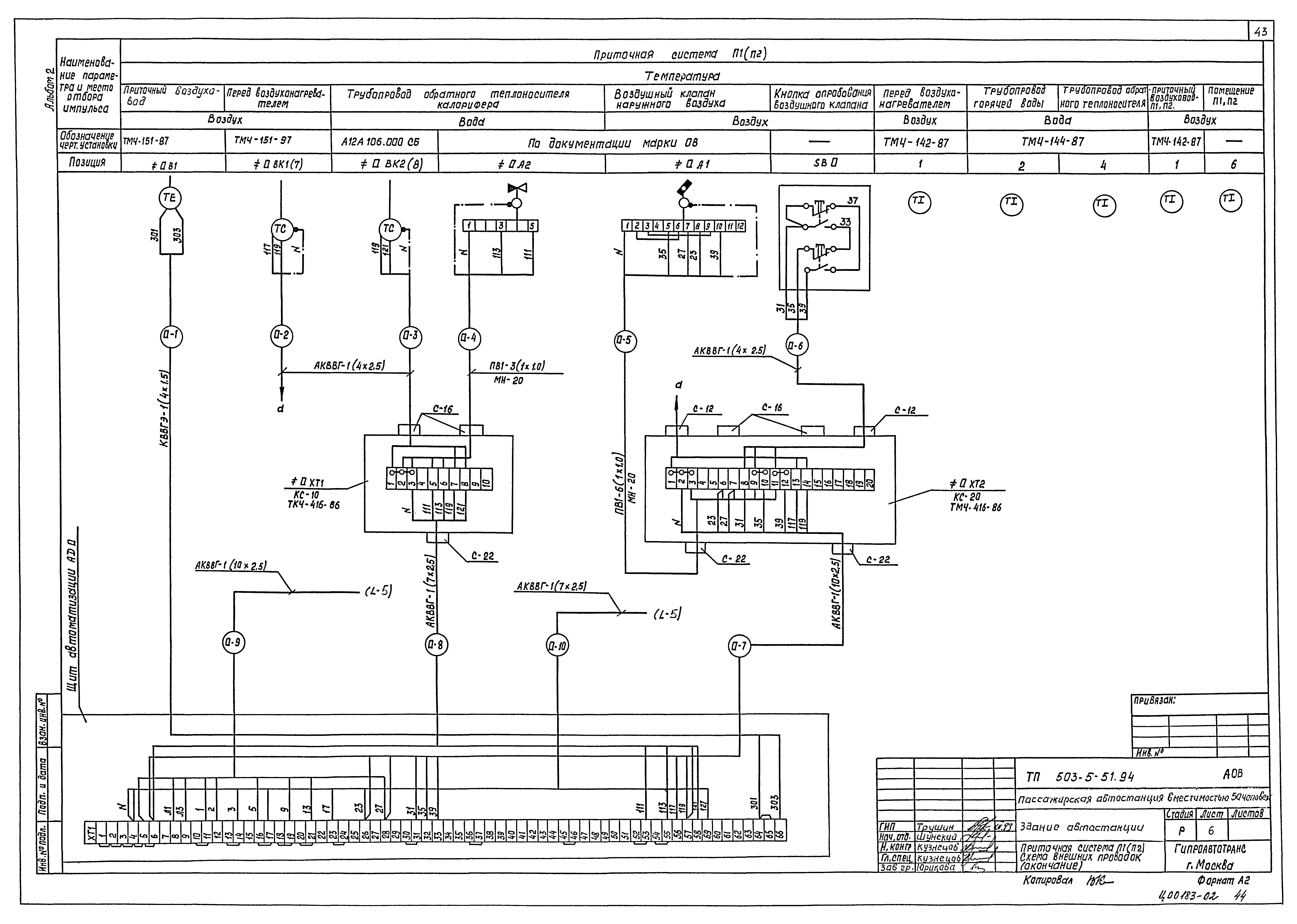
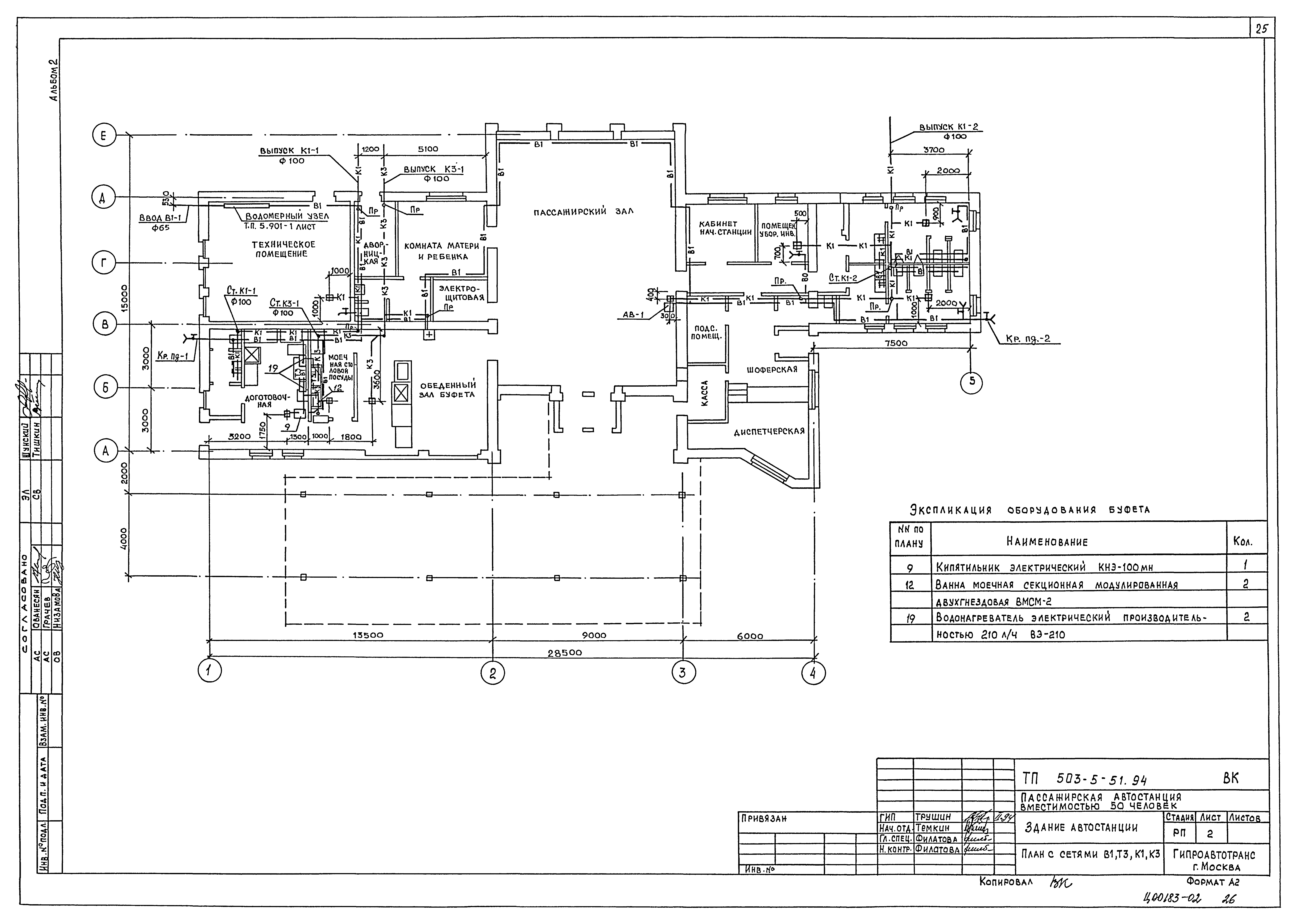
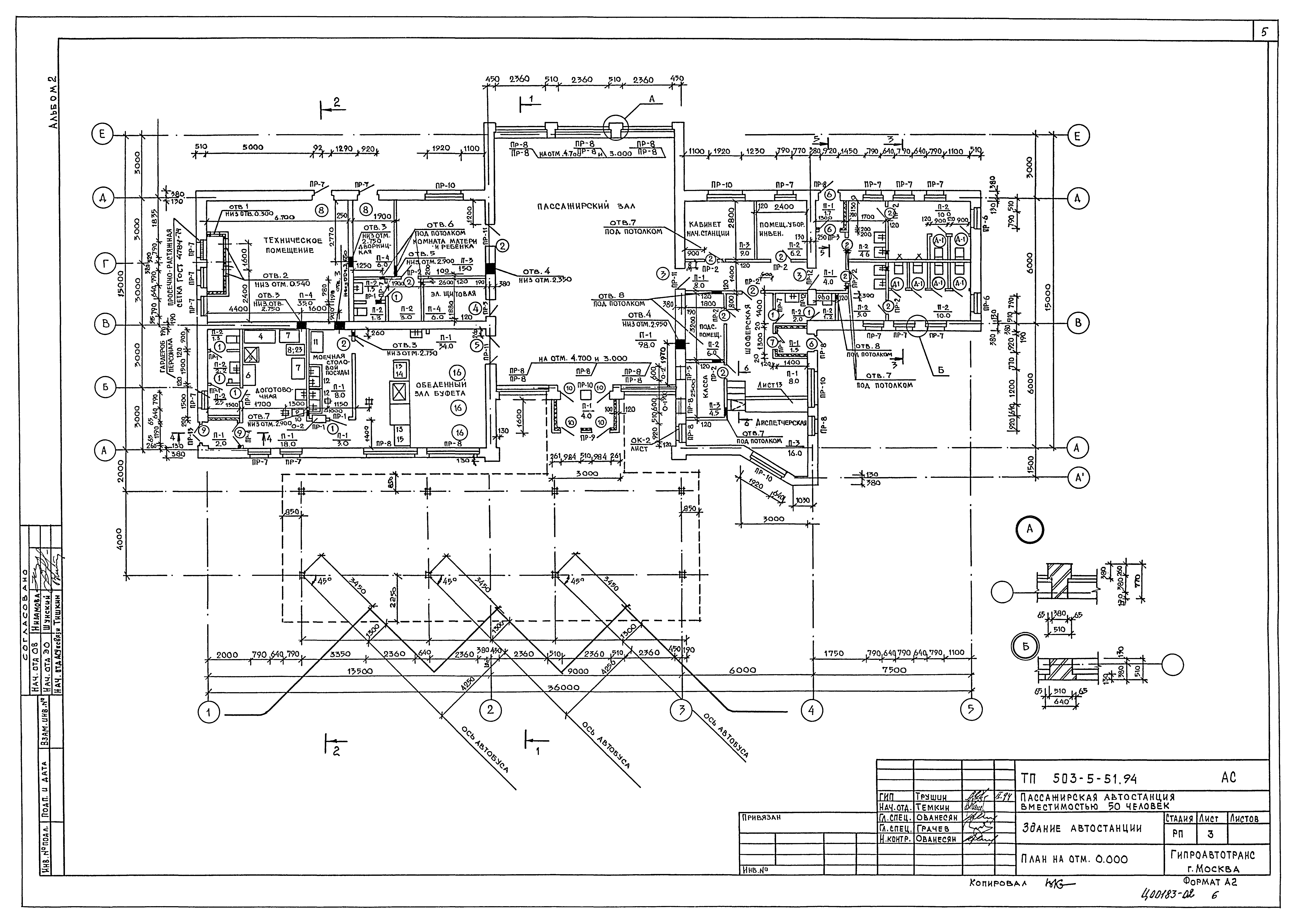
Альбом 2. Архитектурно-строительные решения. Отопление и вентиляция. Внутренние водопровод и канализация. Электрическое освещение. Силовое электрооборудование. Автоматизация систем отопления и вентиляции. Связь и сигнализация. Пожарная сигнализация. Задание заводу-изготовителю на изготовление щитов управления и автоматизации

Обозначение: Типовой проект 503-5-51.94
Обозначение англ: 503-5-51.94
Статус:не определен законодательством
Название рус.:Альбом 2. Архитектурно-строительные решения. Отопление и вентиляция. Внутренние водопровод и канализация. Электрическое освещение. Силовое электрооборудование. Автоматизация систем отопления и вентиляции. Связь и сигнализация. Пожарная сигнализация. Задание заводу-изготовителю на изготовление щитов управления и автоматизации
Дата добавления в базу:01.02.2020
Дата актуализации:01.01.2021
Дата введения:04.03.1994
Дата окончания срока действия:30.06.2003
Разработан: Гипроавтотранс
Утверждён:04.03.1994 Департамент автомобильного транспорта Минтранса России (1)
Заменяет собой:
Типовой проект 503-5-51.94Типовой проект 503-5-51.94Типовой проект 503-5-51.94Типовой проект 503-5-51.94Типовой проект 503-5-51.94Типовой проект 503-5-51.94Типовой проект 503-5-51.94Типовой проект 503-5-51.94Типовой проект 503-5-51.94Типовой проект 503-5-51.94Типовой проект 503-5-51.94Типовой проект 503-5-51.94Типовой проект 503-5-51.94Типовой проект 503-5-51.94Типовой проект 503-5-51.94Типовой проект 503-5-51.94Типовой проект 503-5-51.94Типовой проект 503-5-51.94Типовой проект 503-5-51.94Типовой проект 503-5-51.94Типовой проект 503-5-51.94Типовой проект 503-5-51.94Типовой проект 503-5-51.94Типовой проект 503-5-51.94Типовой проект 503-5-51.94Типовой проект 503-5-51.94Типовой проект 503-5-51.94Типовой проект 503-5-51.94Типовой проект 503-5-51.94Типовой проект 503-5-51.94Типовой проект 503-5-51.94Типовой проект 503-5-51.94Типовой проект 503-5-51.94Типовой проект 503-5-51.94Типовой проект 503-5-51.94Типовой проект 503-5-51.94Типовой проект 503-5-51.94Типовой проект 503-5-51.94Типовой проект 503-5-51.94Типовой проект 503-5-51.94Типовой проект 503-5-51.94Типовой проект 503-5-51.94Типовой проект 503-5-51.94Типовой проект 503-5-51.94Типовой проект 503-5-51.94Типовой проект 503-5-51.94Типовой проект 503-5-51.94Типовой проект 503-5-51.94Типовой проект 503-5-51.94Типовой проект 503-5-51.94Типовой проект 503-5-51.94Типовой проект 503-5-51.94Типовой проект 503-5-51.94Типовой проект 503-5-51.94Типовой проект 503-5-51.94Типовой проект 503-5-51.94