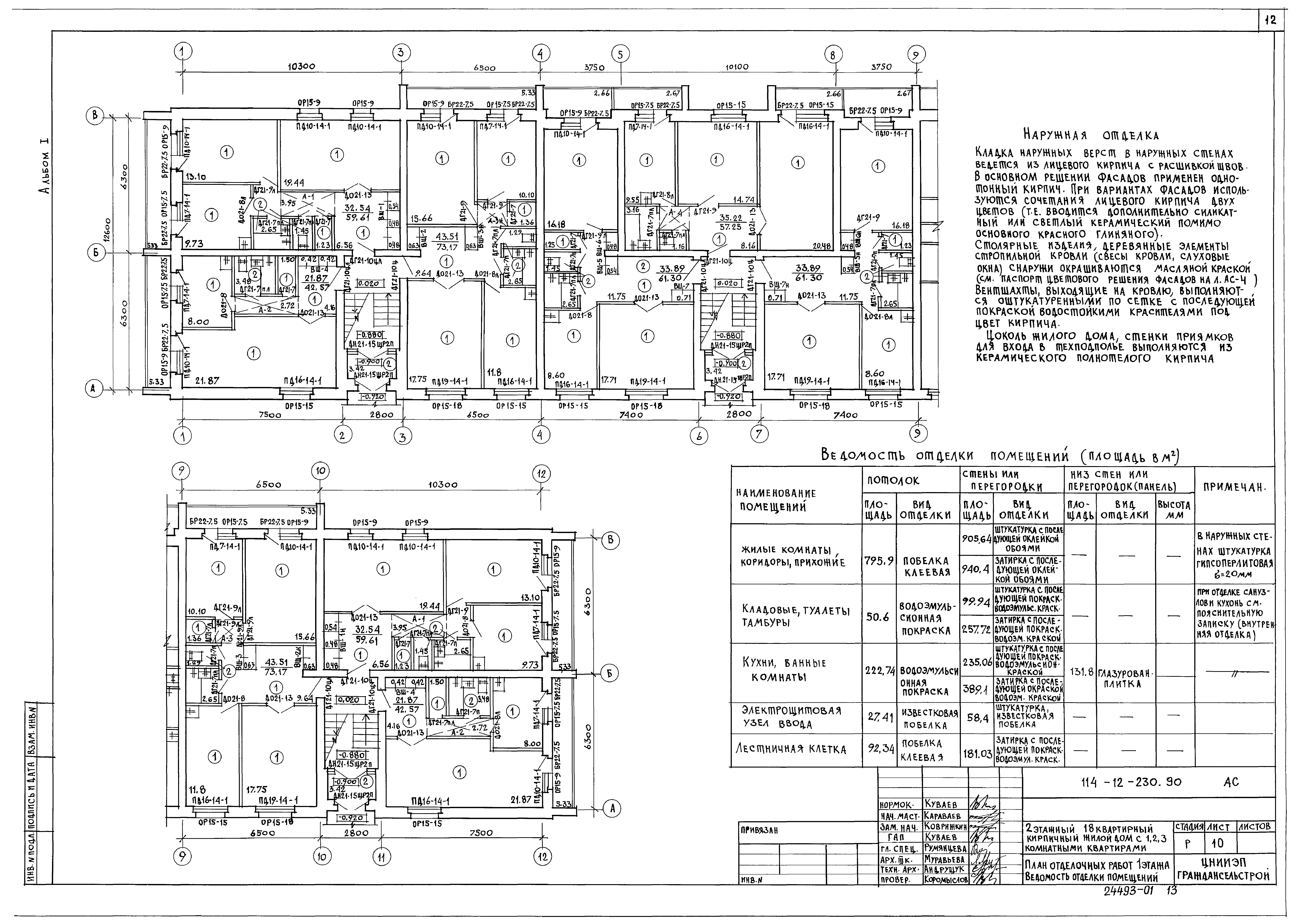
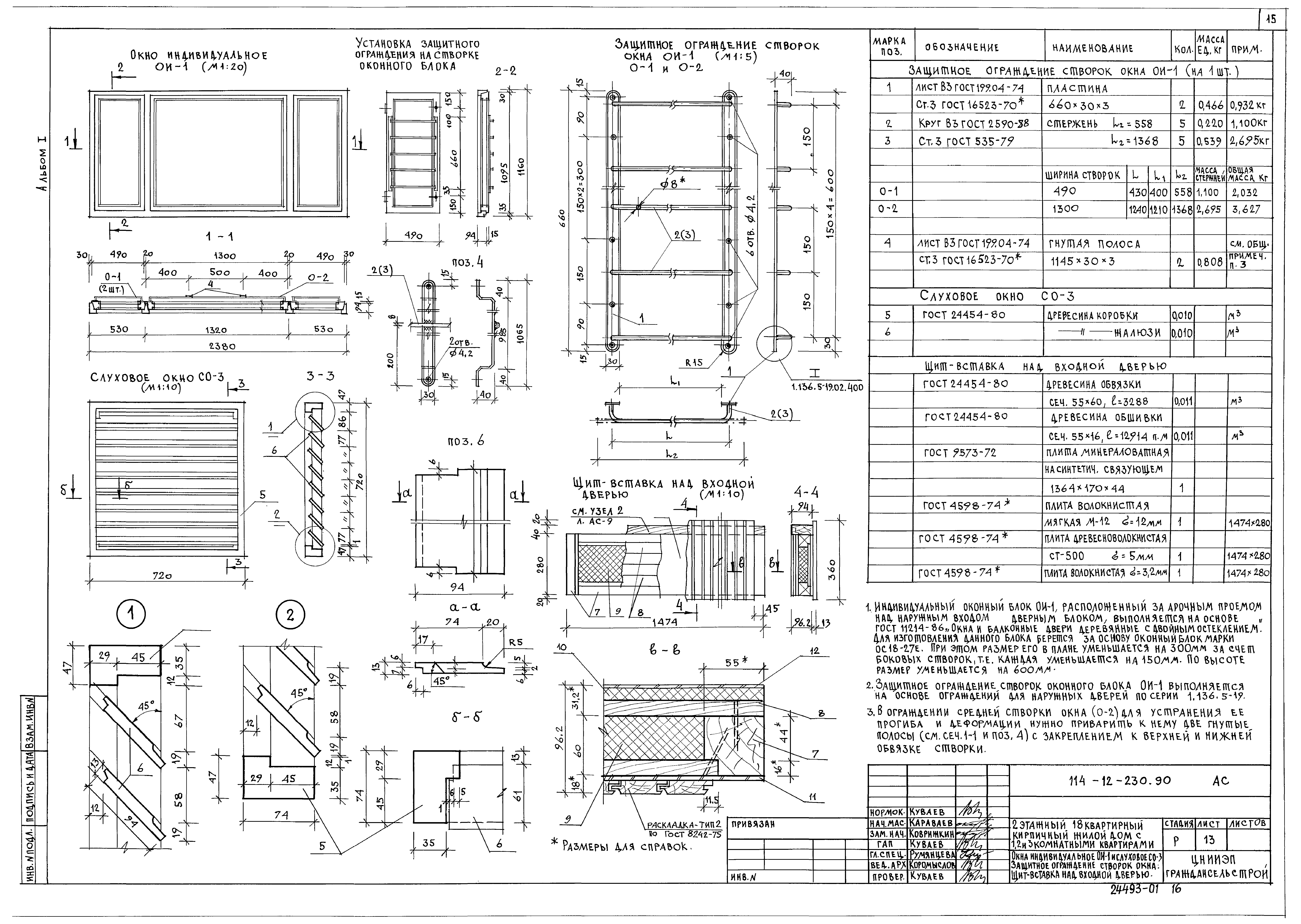
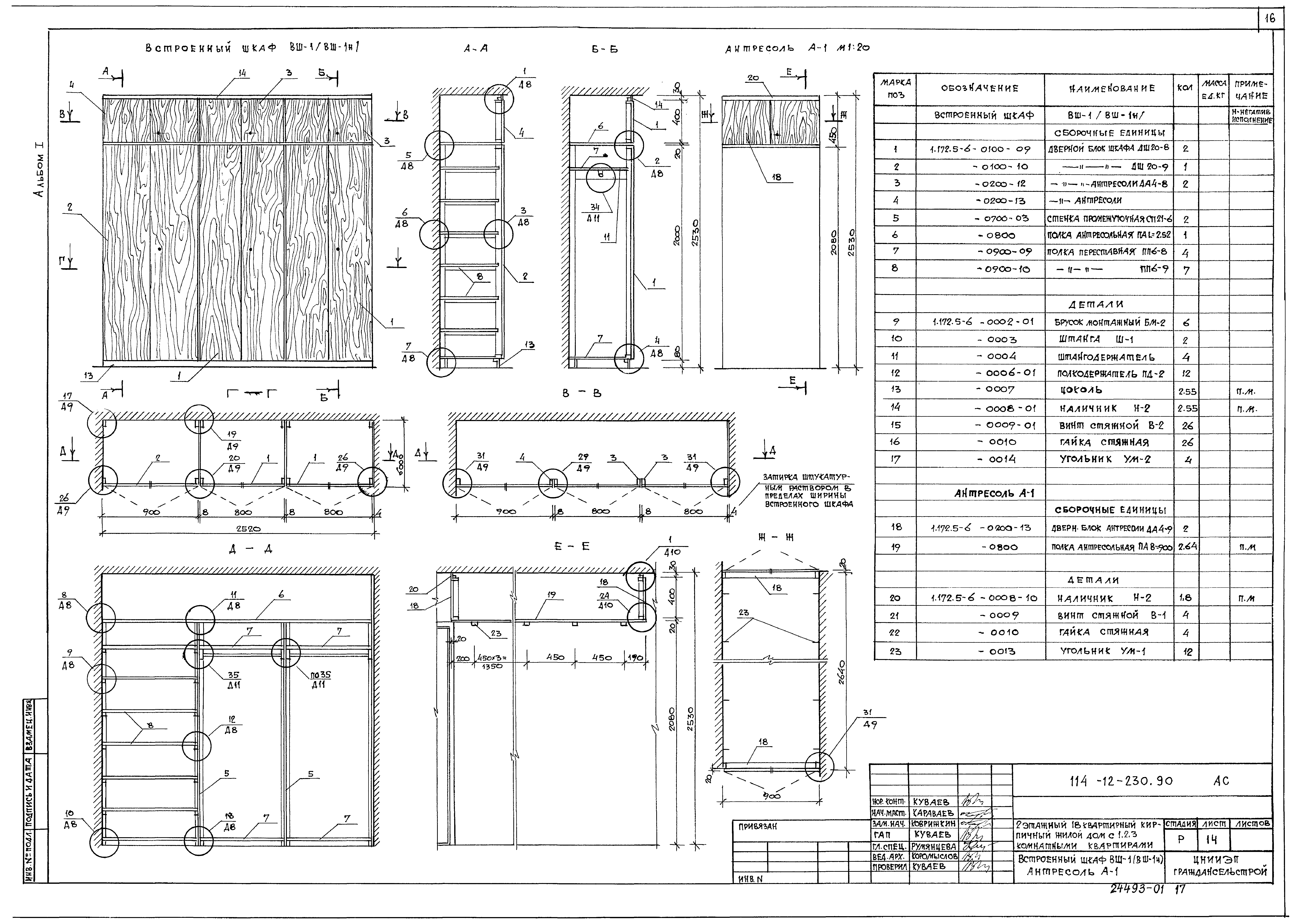
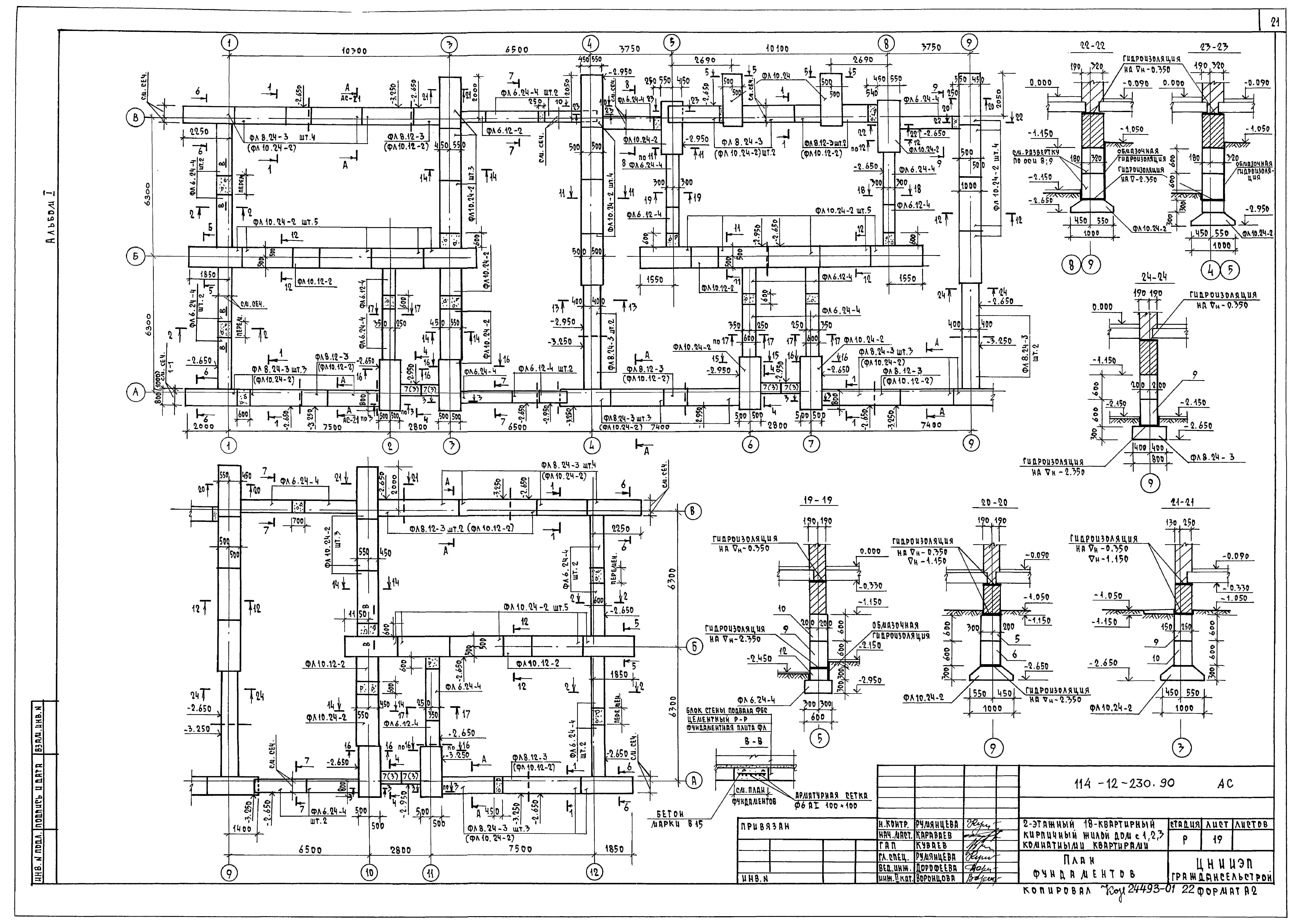
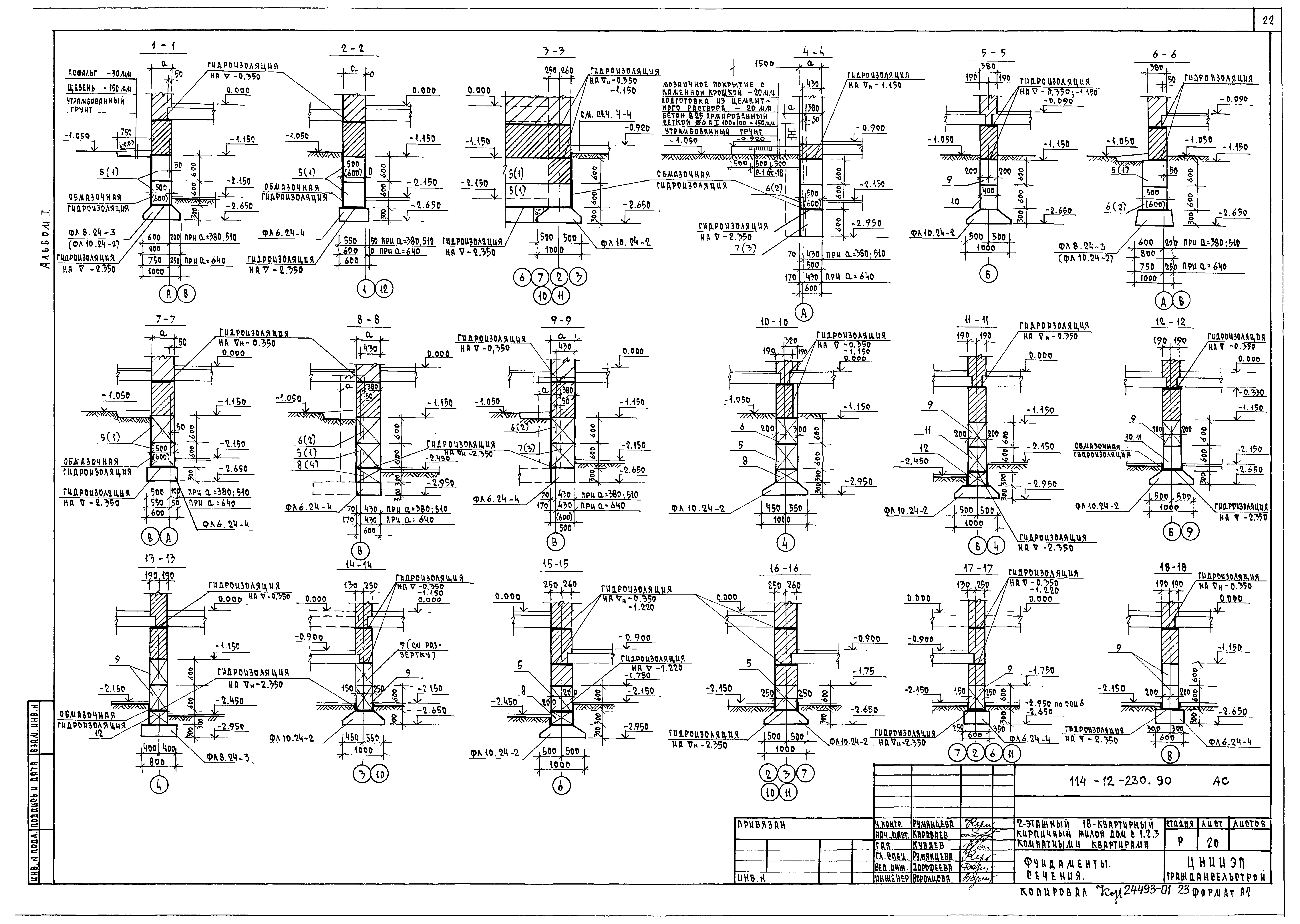
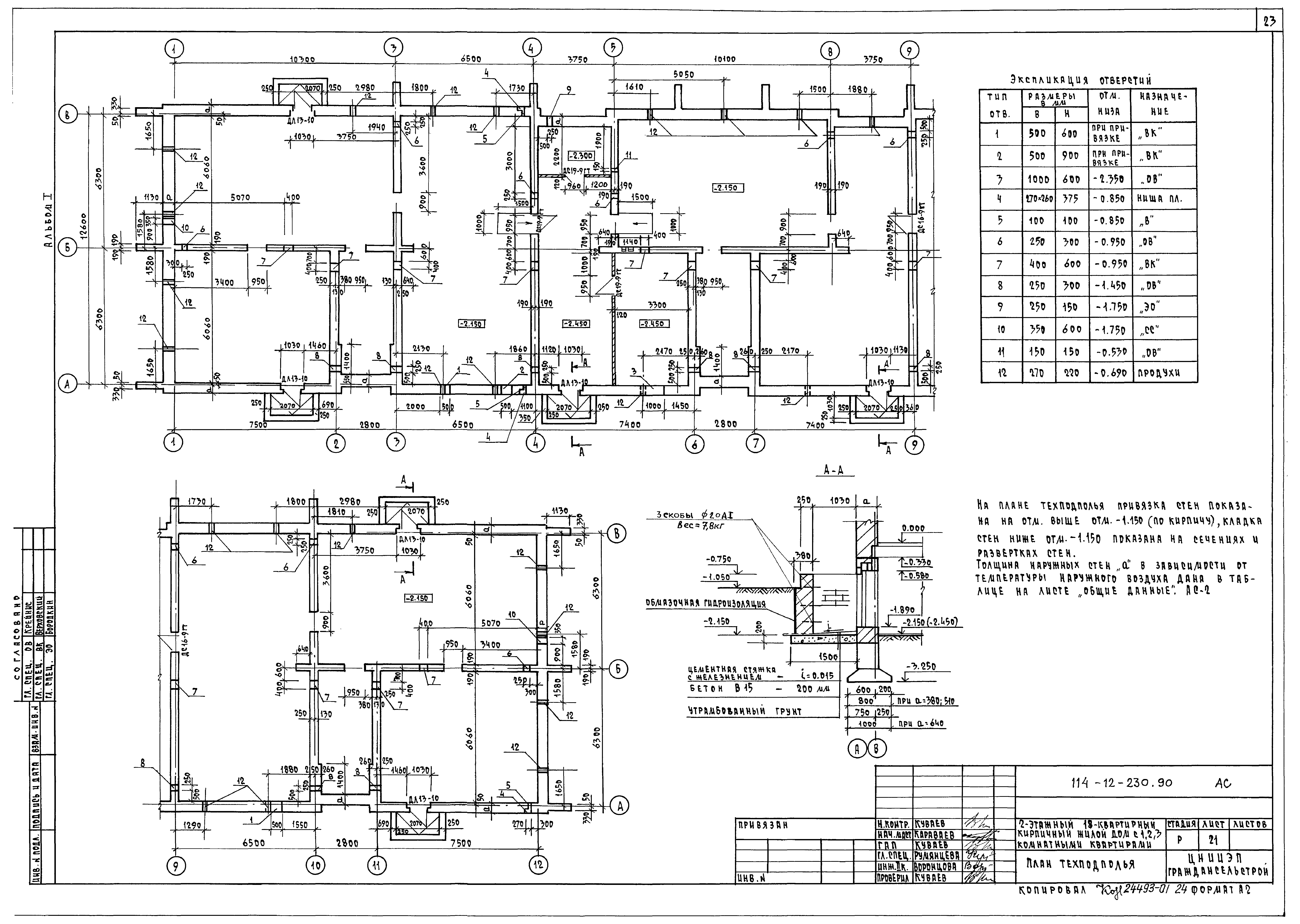
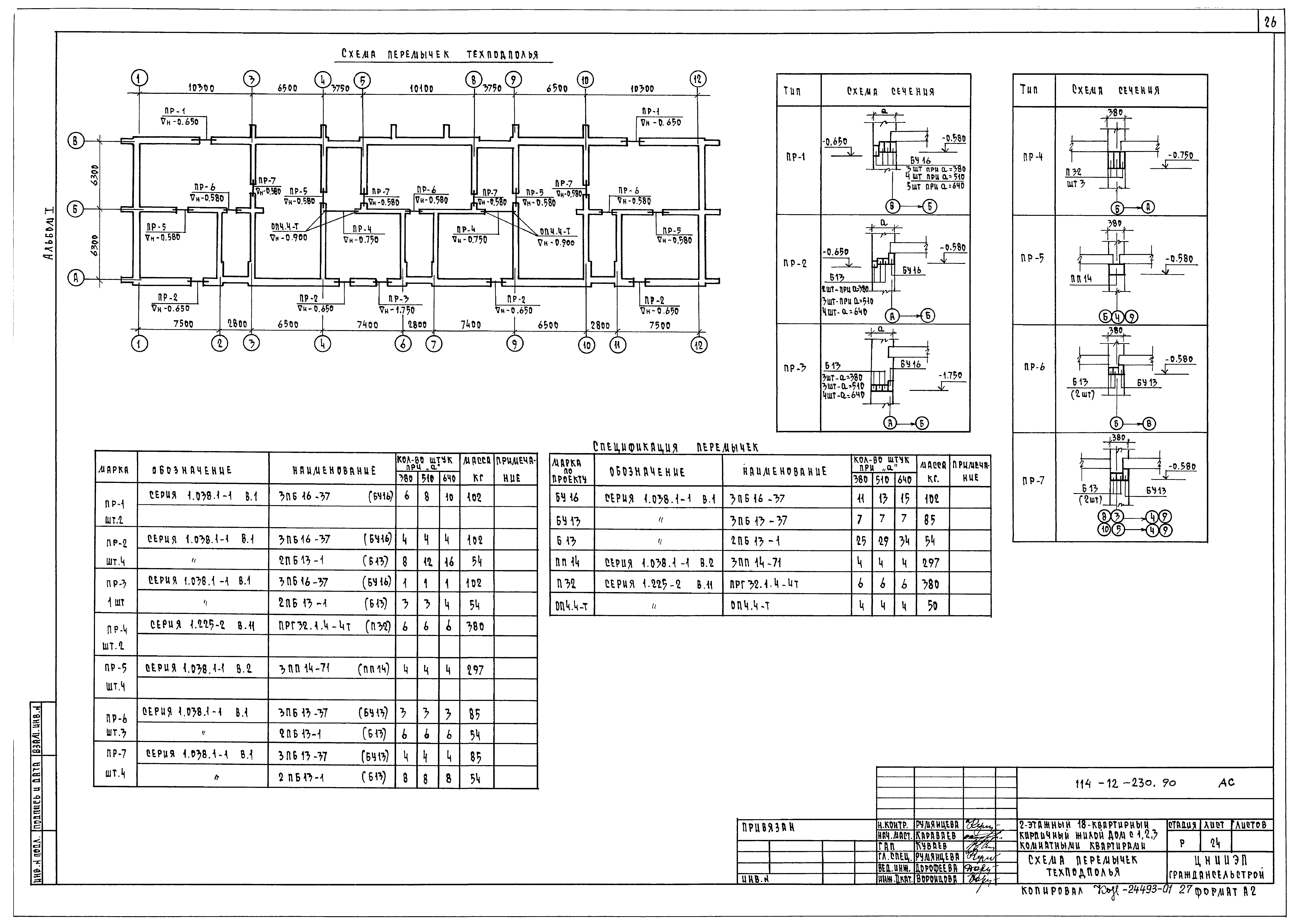
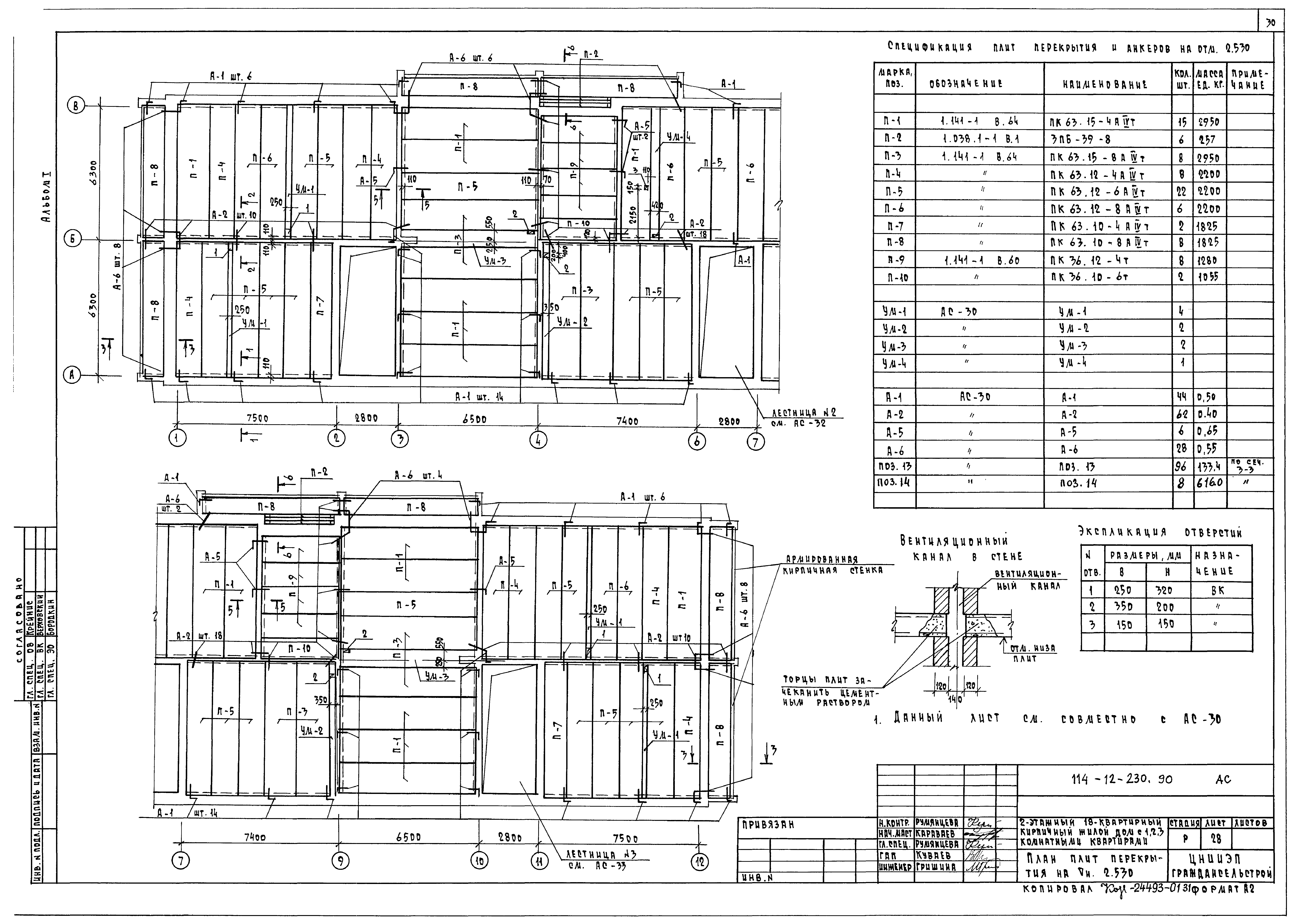
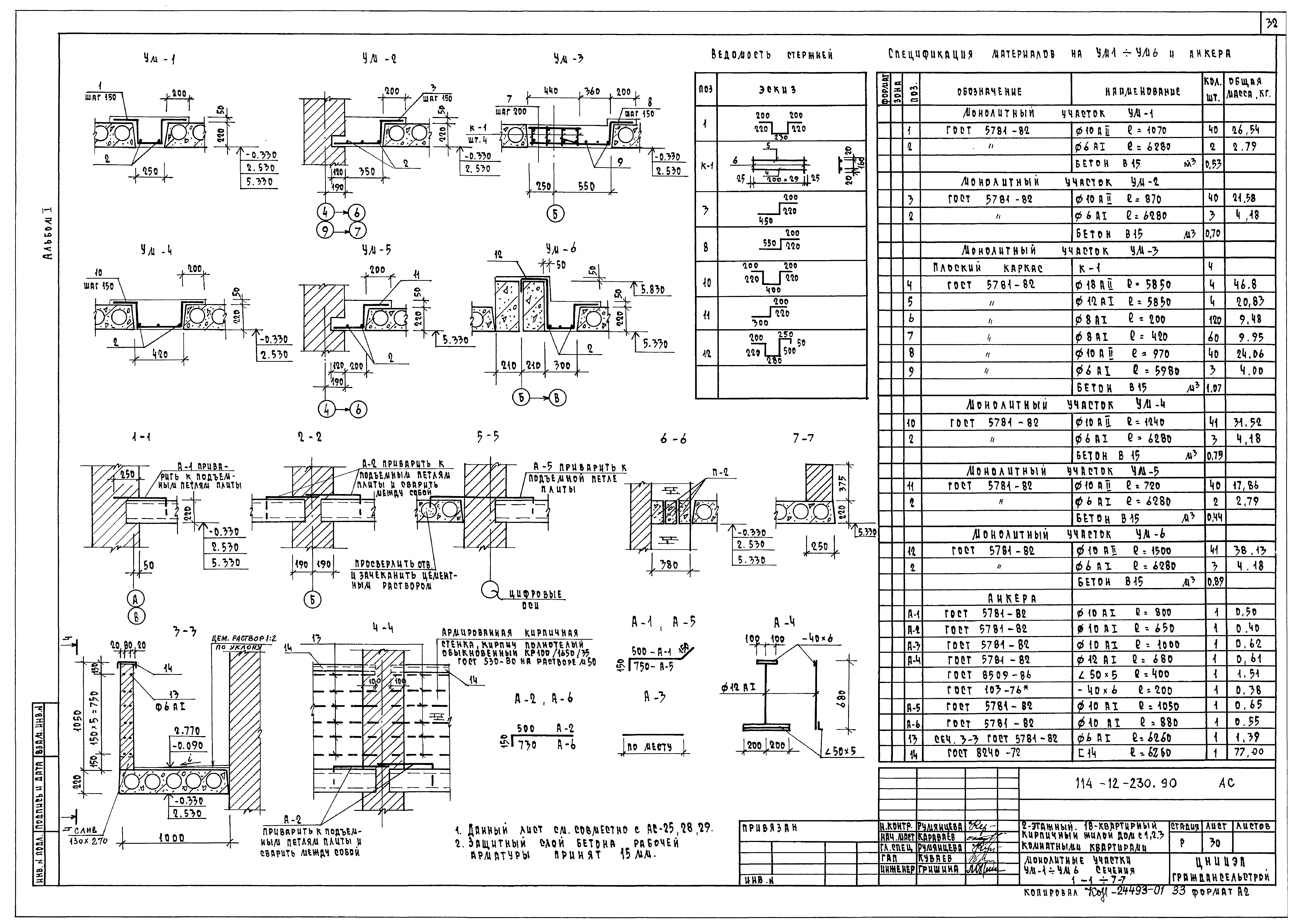
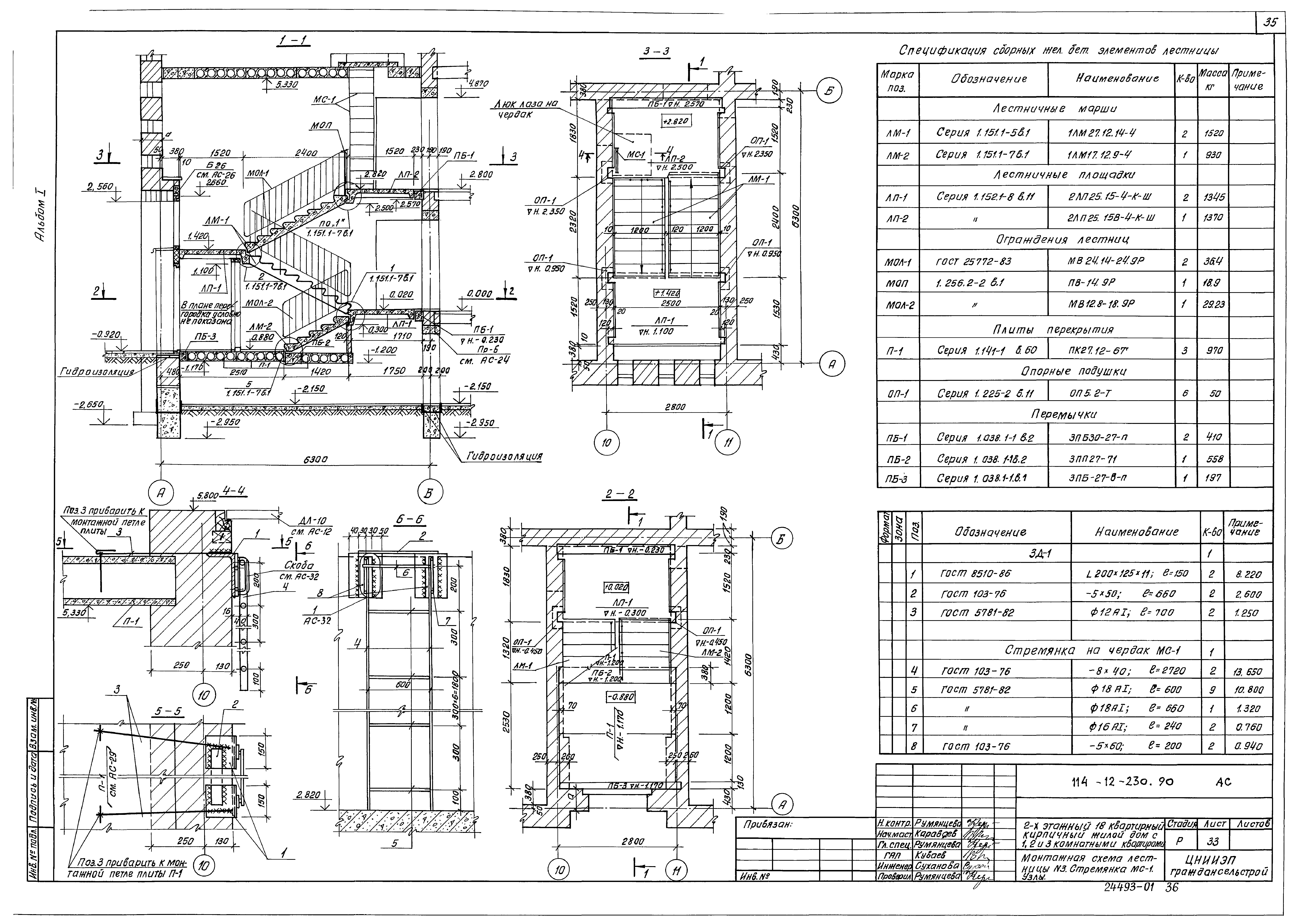
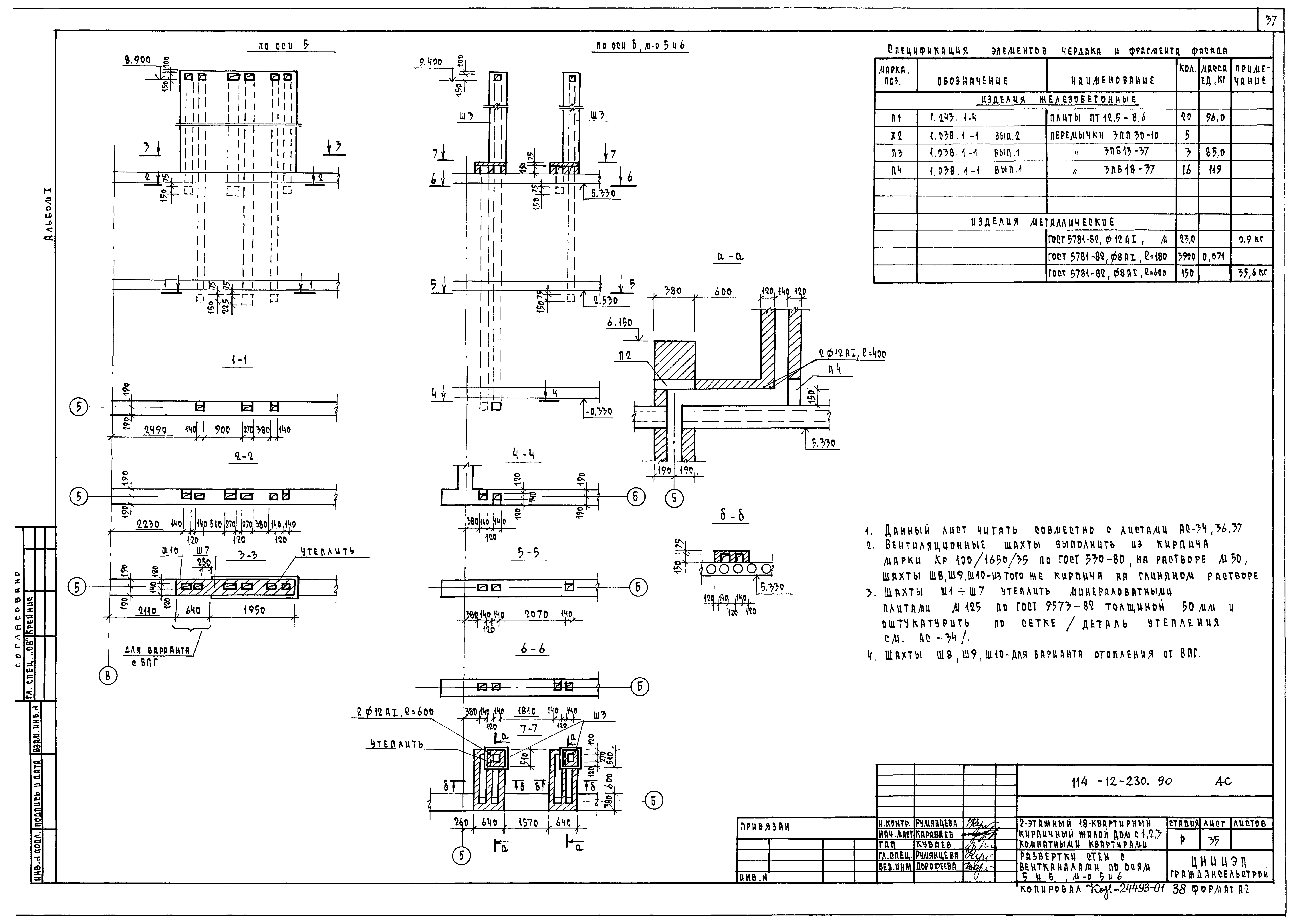
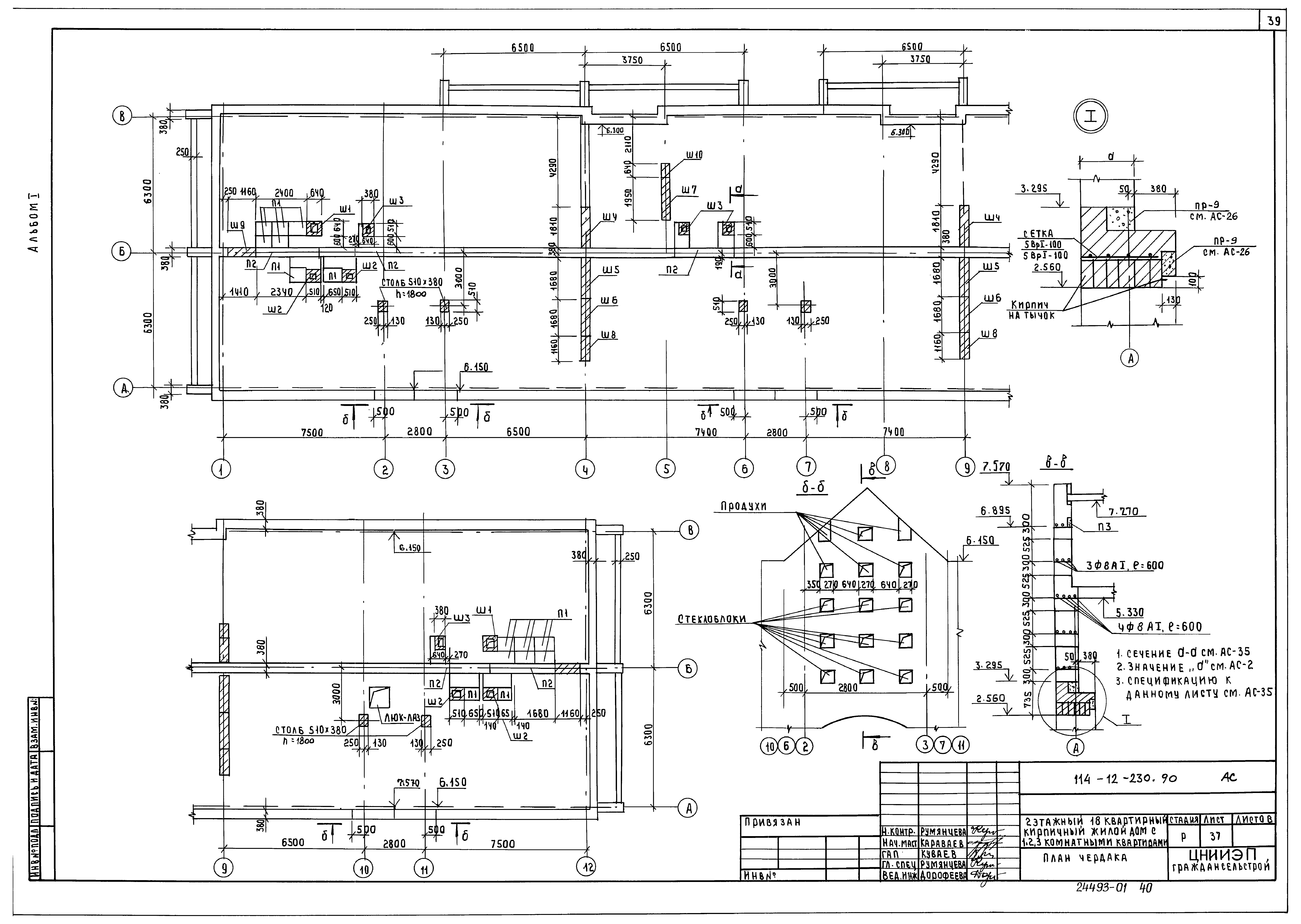
Скачать Типовой проект 114-12-230.90 Альбом I. Архитектурно-строительные чертежиДата актуализации: 01.01.2021
|
| Обозначение: | Типовой проект 114-12-230.90 |
| Обозначение англ: | 114-12-230.90 |
| Статус: | не определен законодательством |
| Название рус.: | Альбом I. Архитектурно-строительные чертежи |
| Дата добавления в базу: | 01.02.2020 |
| Дата актуализации: | 01.01.2021 |
| Дата введения: | 19.09.1990 |
| Дата окончания срока действия: | 30.06.2003 |
| Разработан: | ЦНИИЭП граждансельстрой |
| Утверждён: | 11.02.1983 Госгражданстрой (Gosgrazhdanstroy 6/Т) |
| Заменяет собой: |
|












































