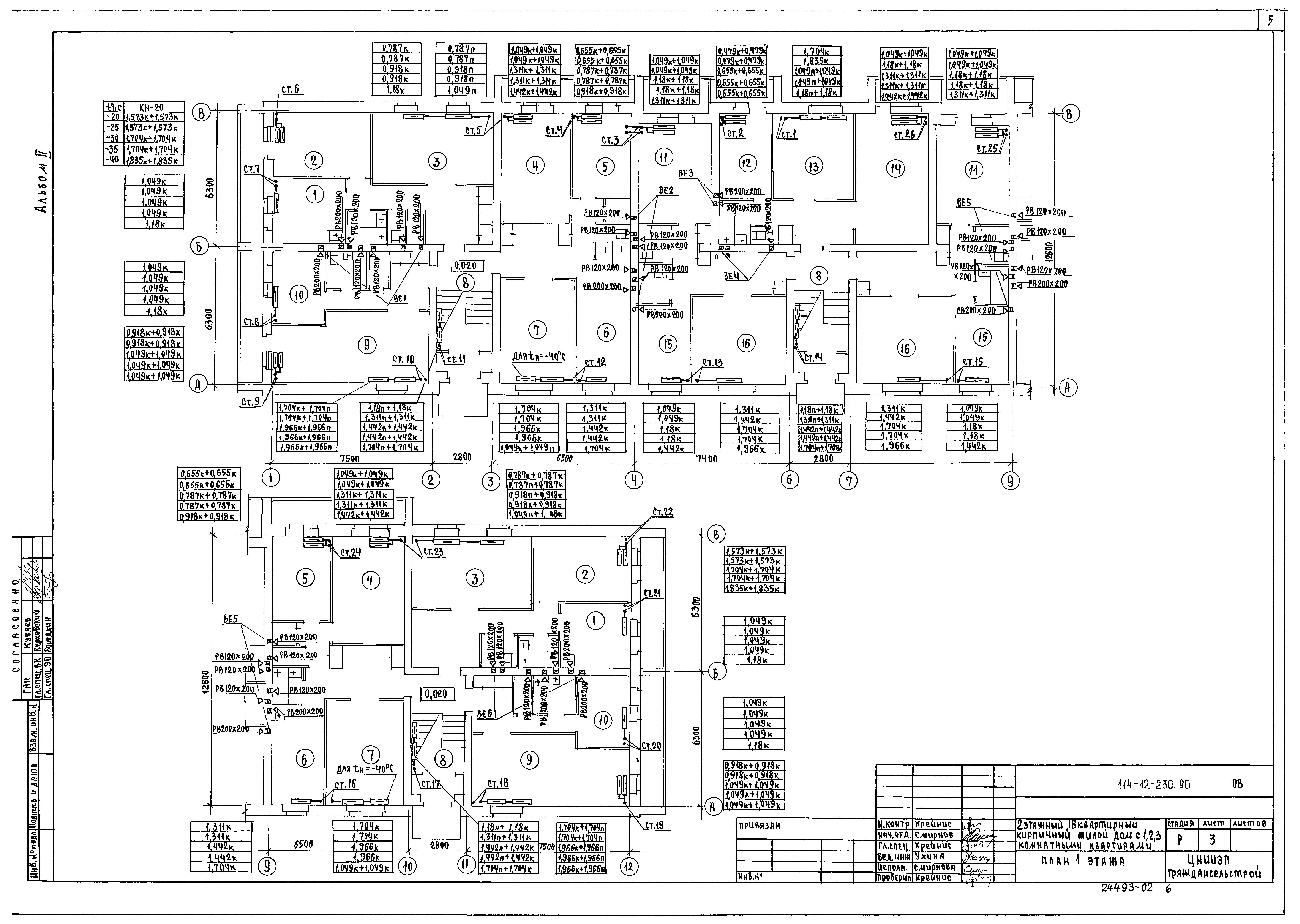
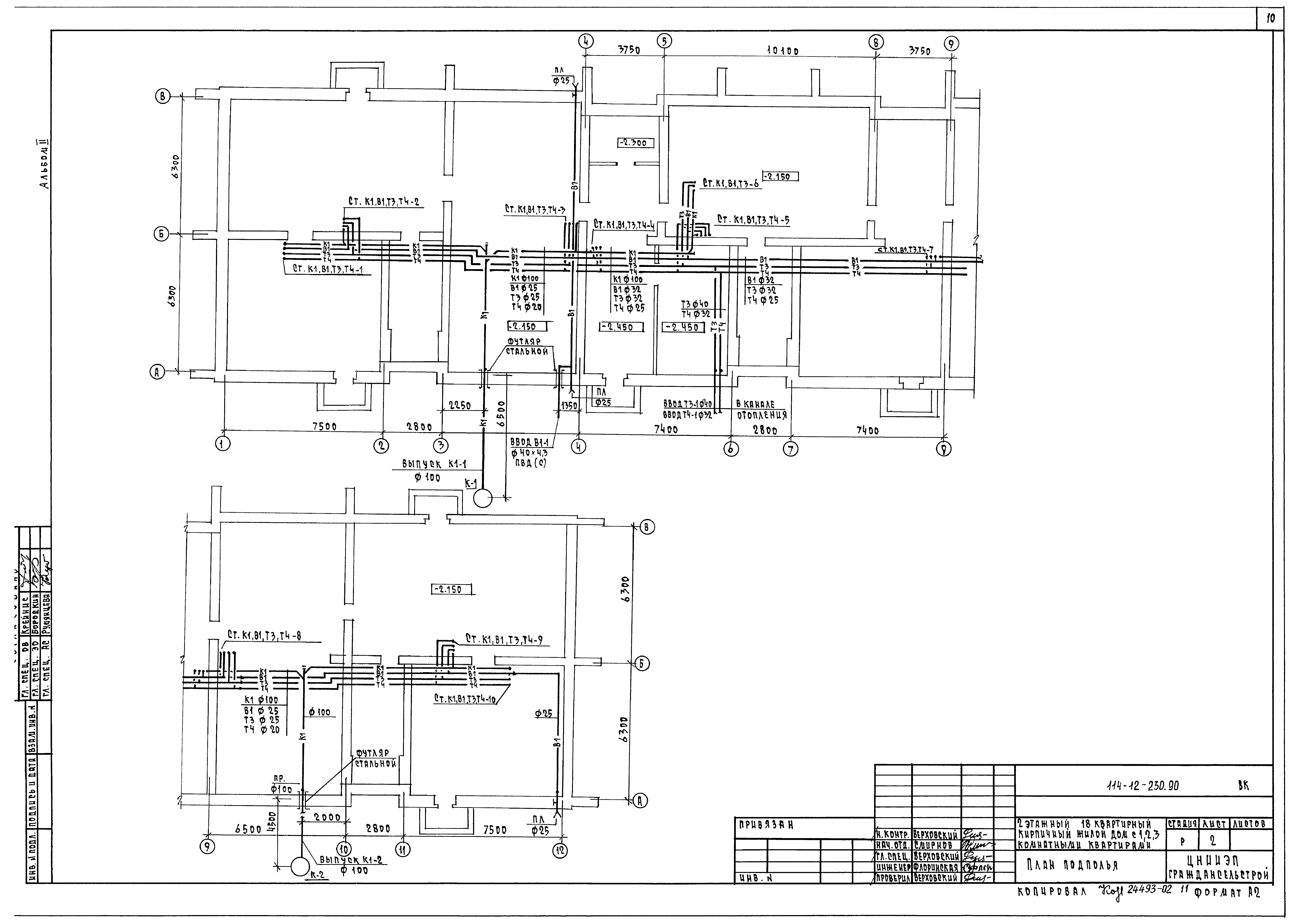
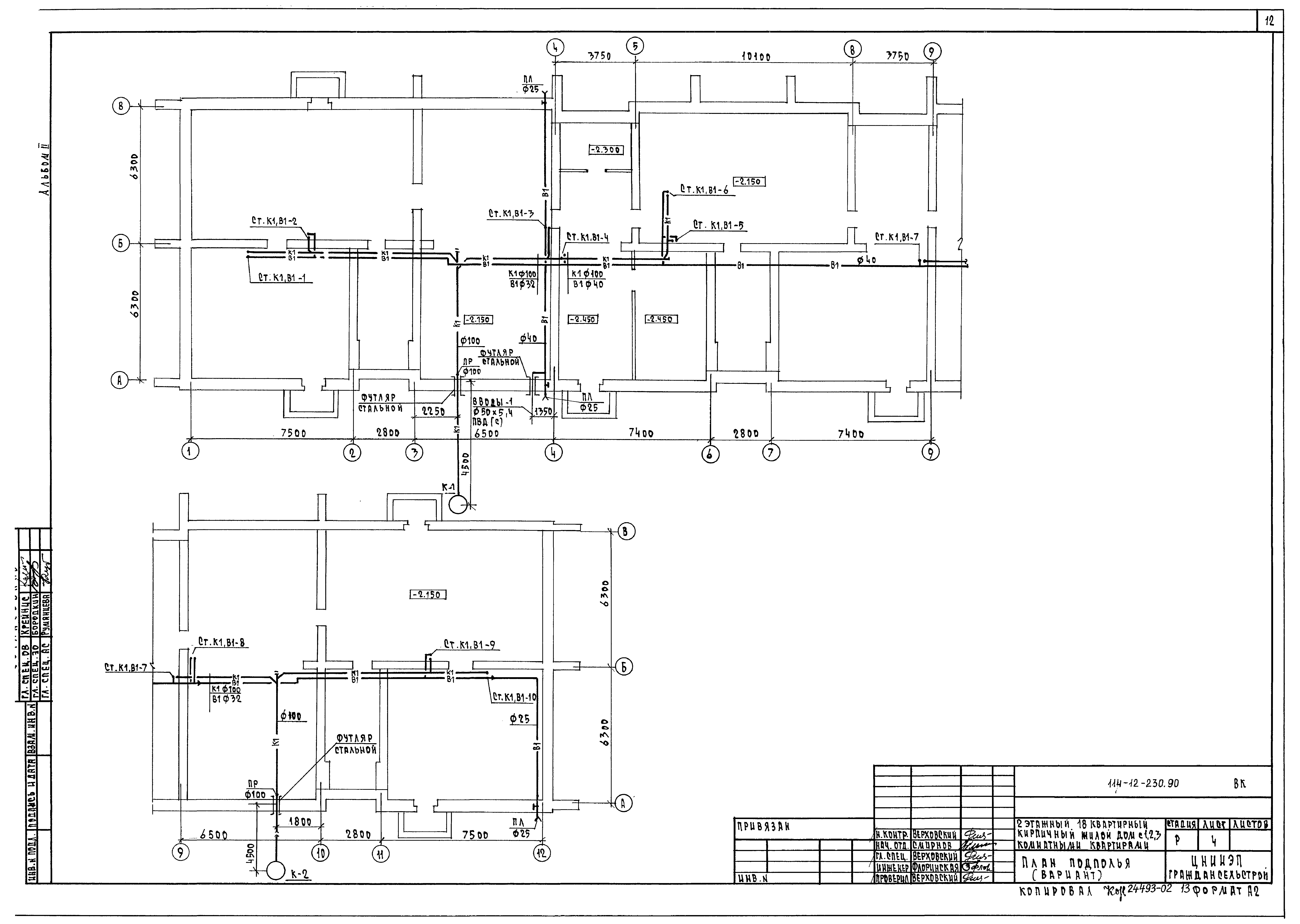
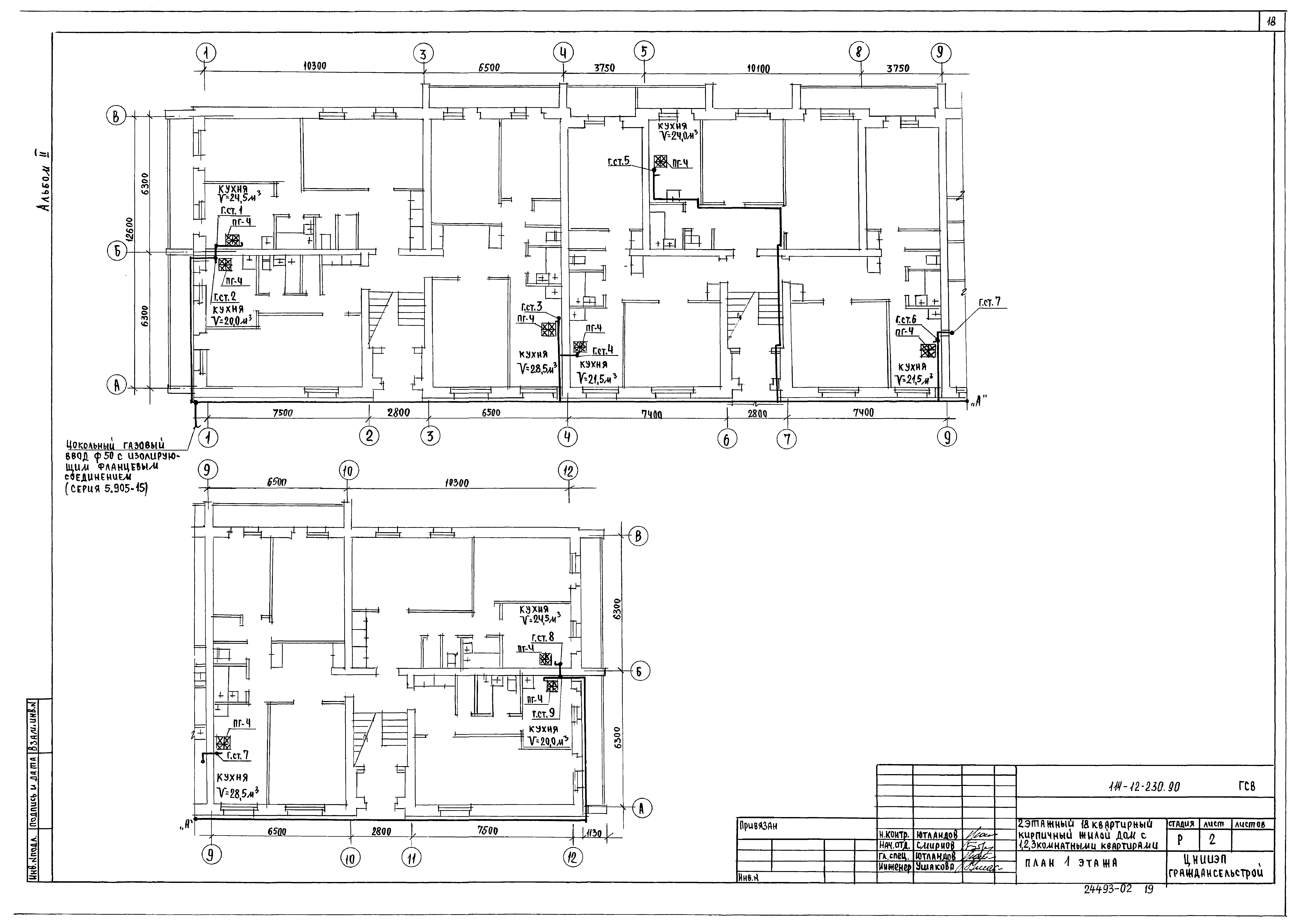
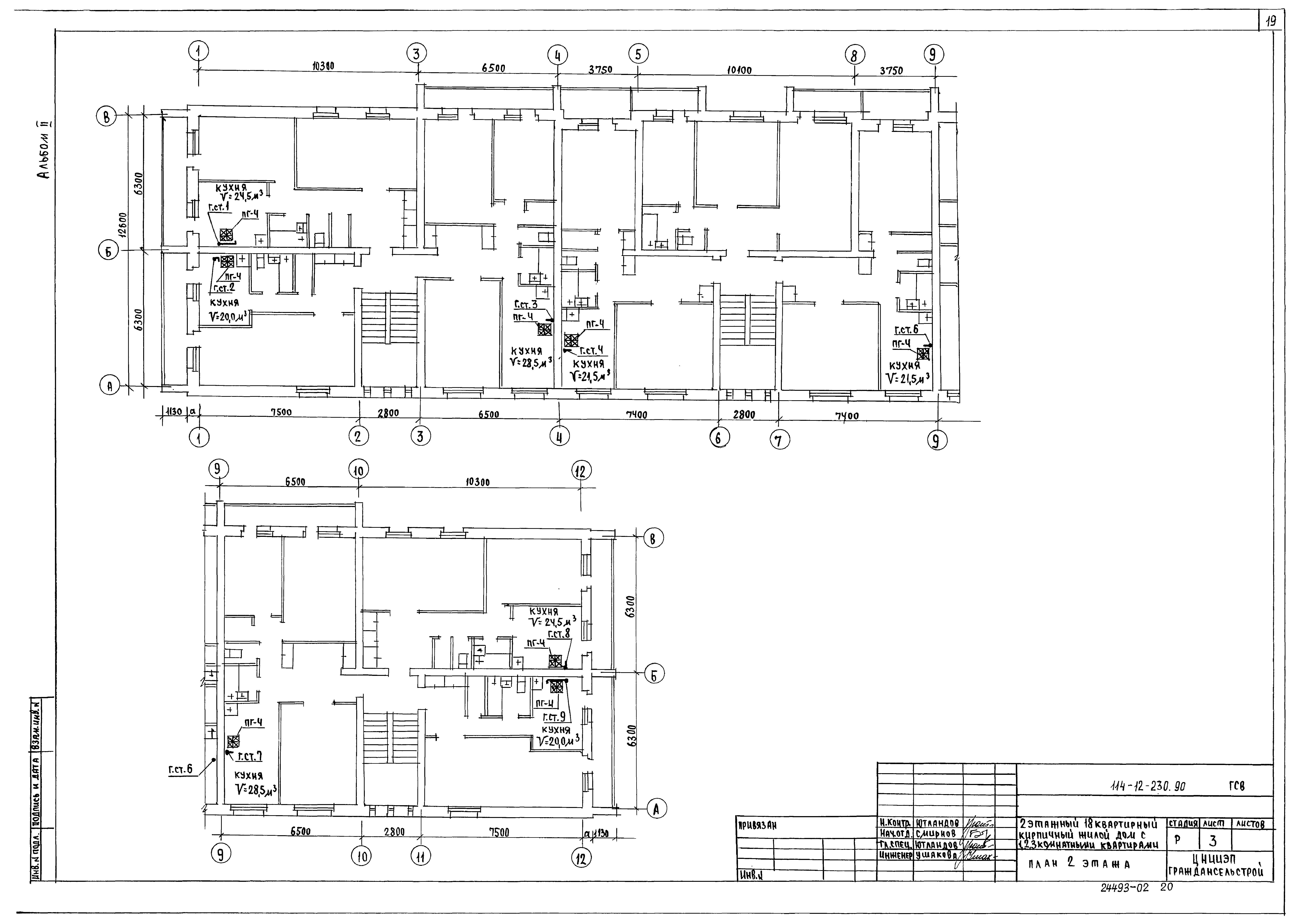
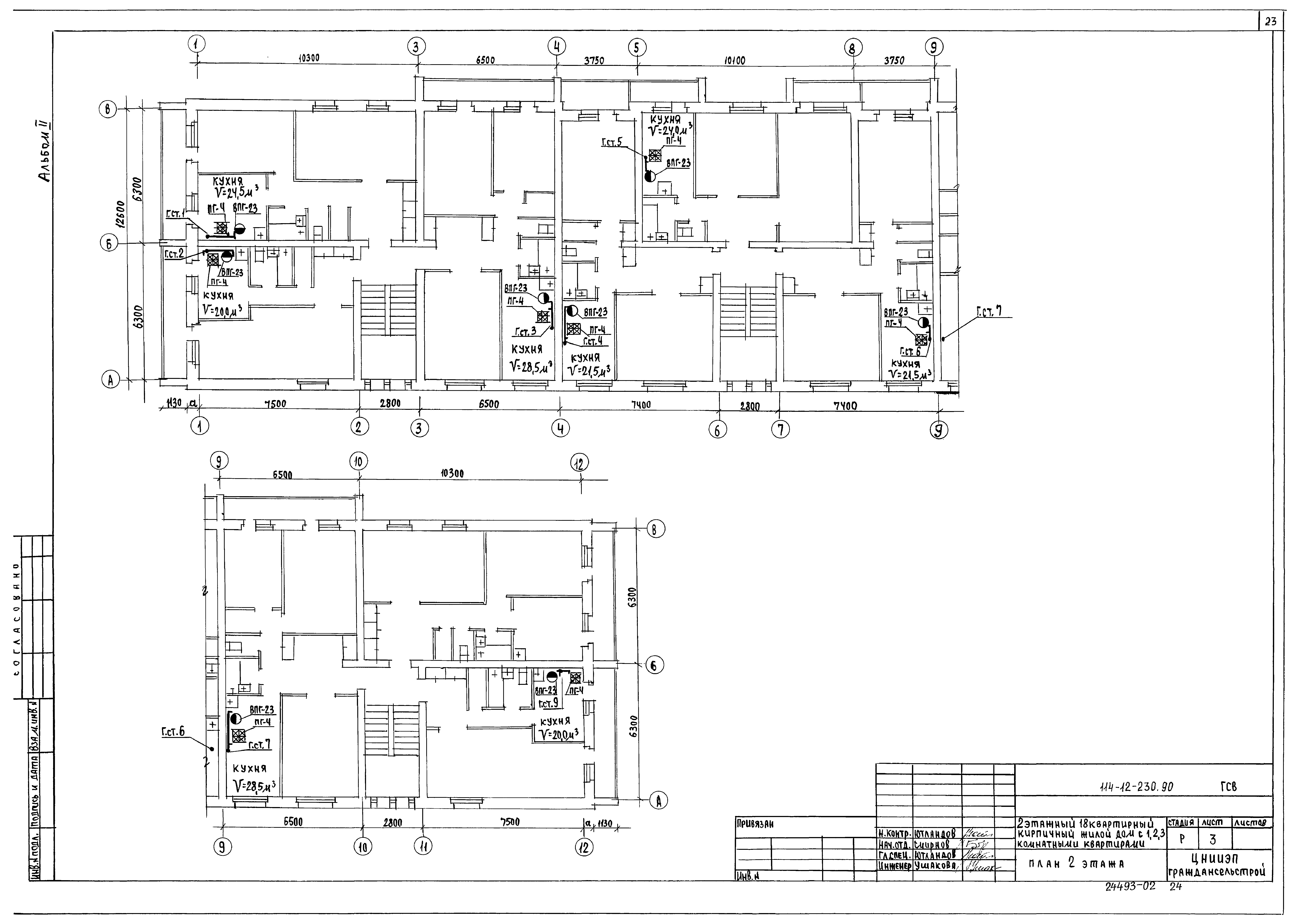
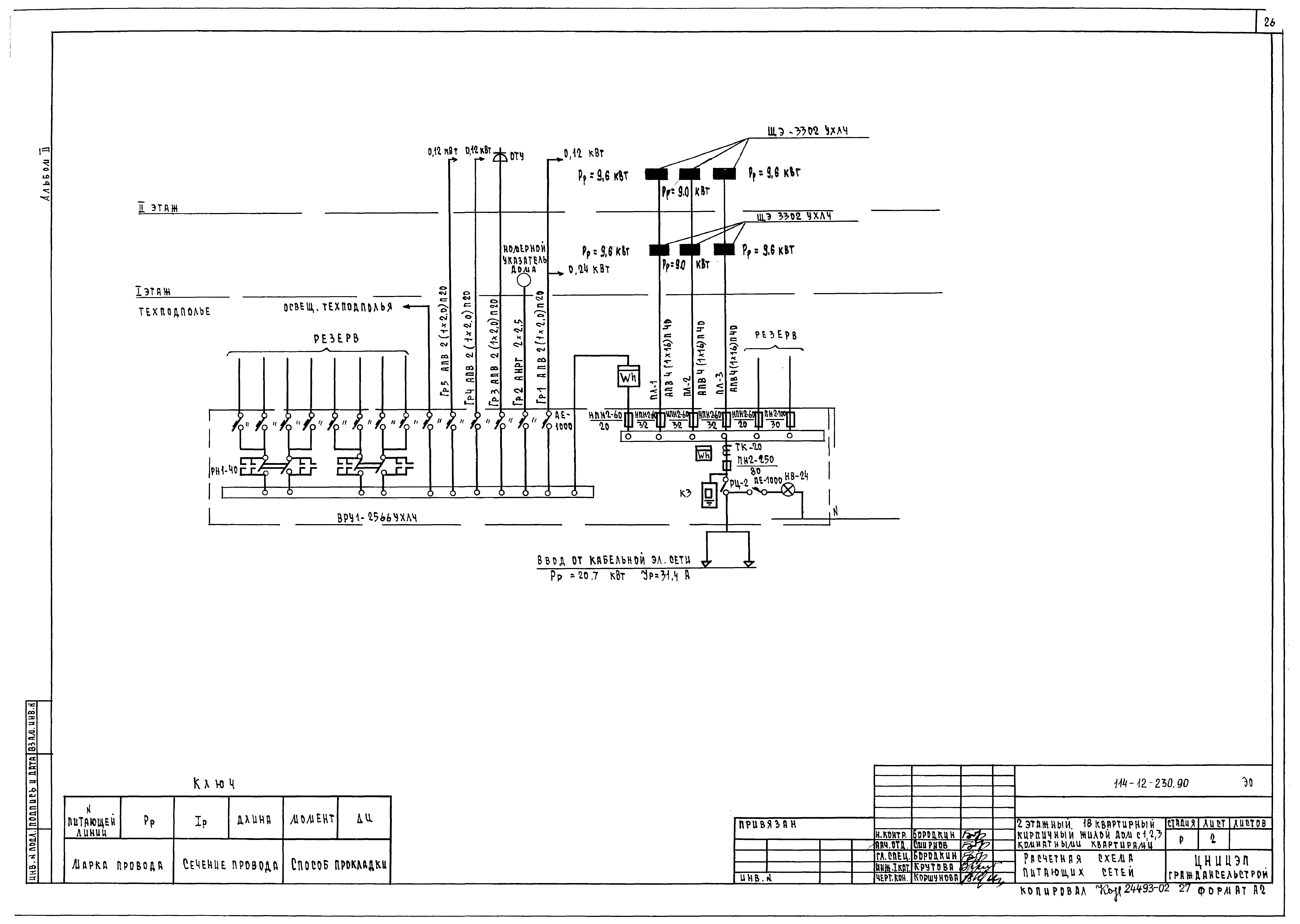
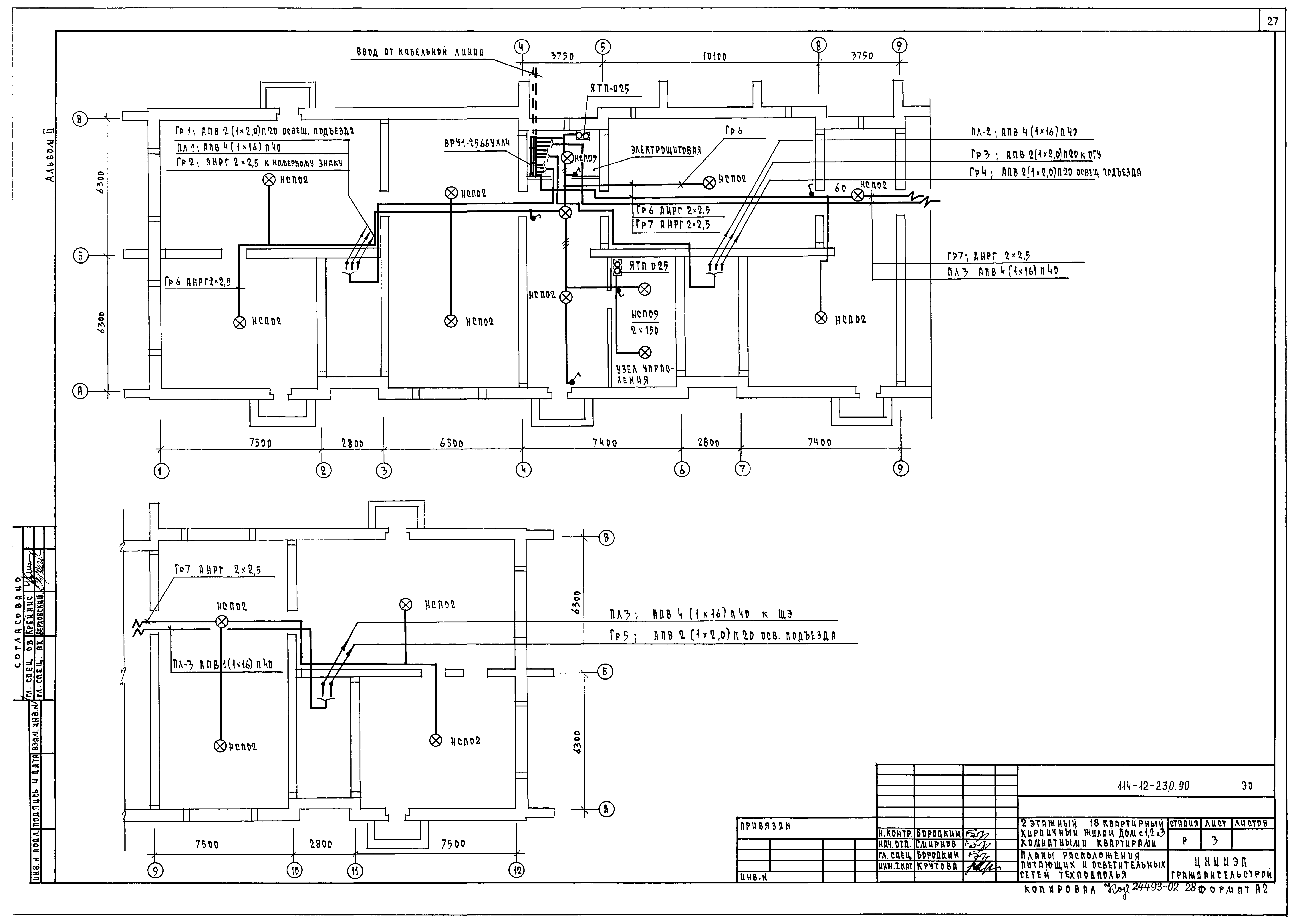
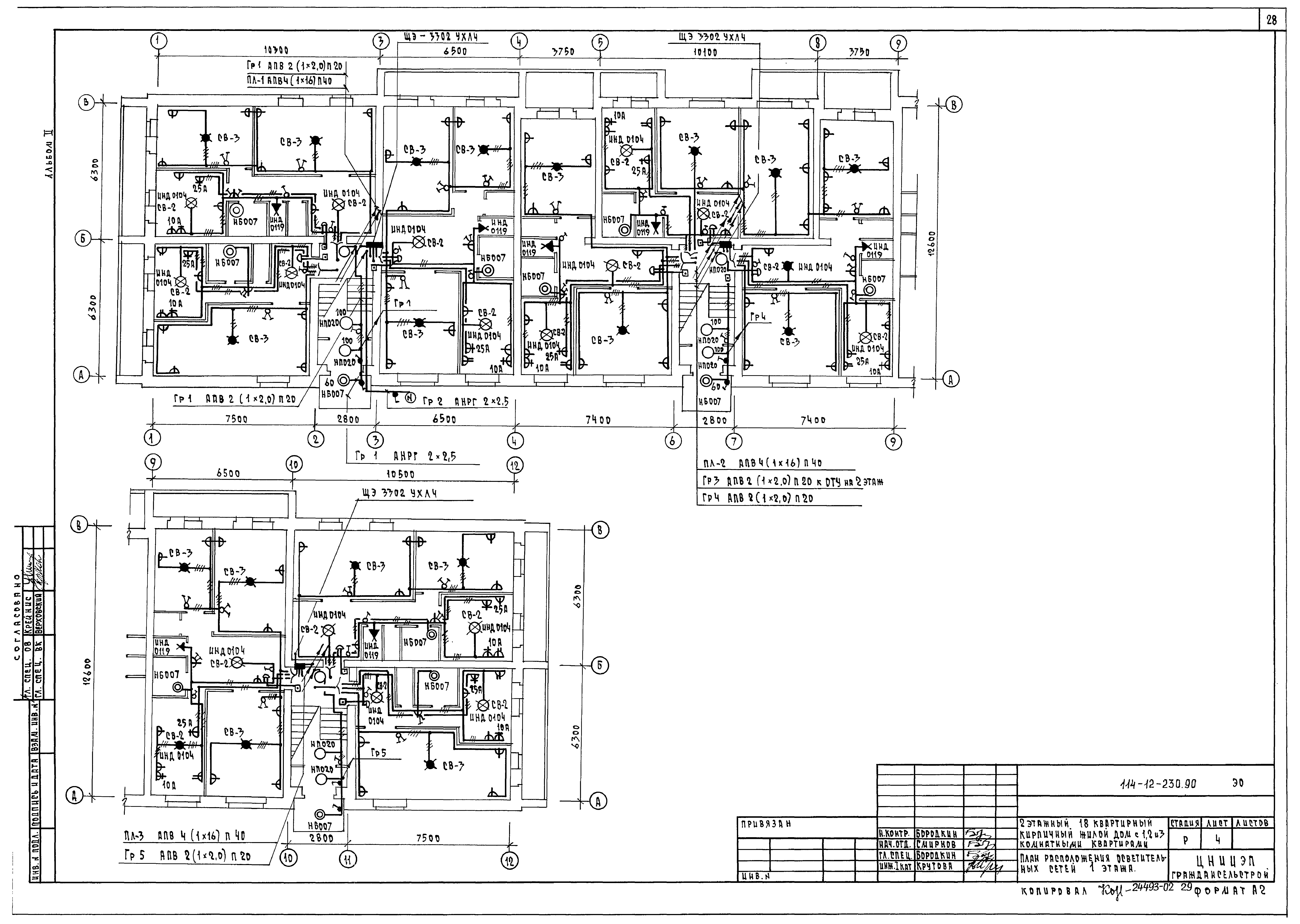
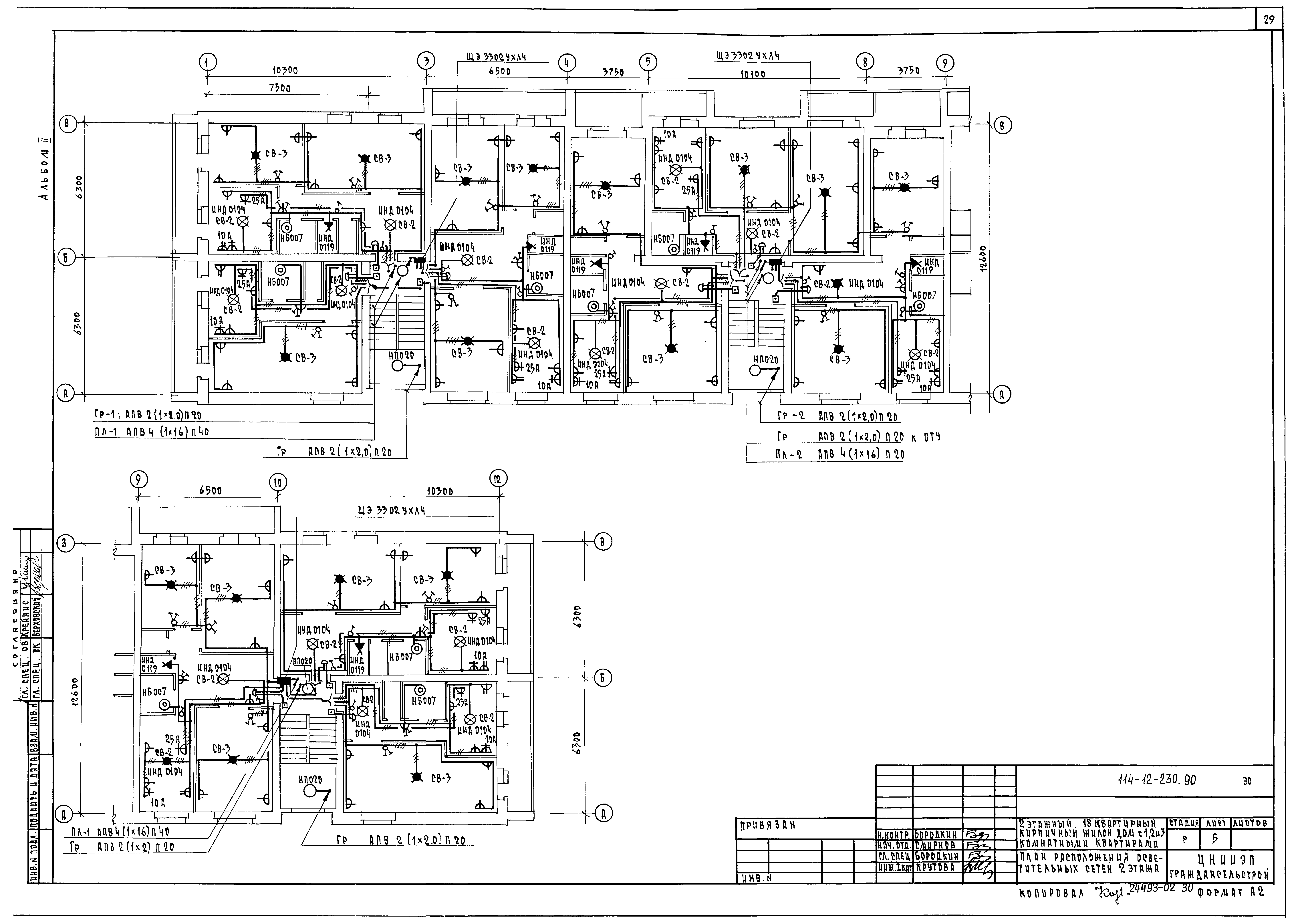
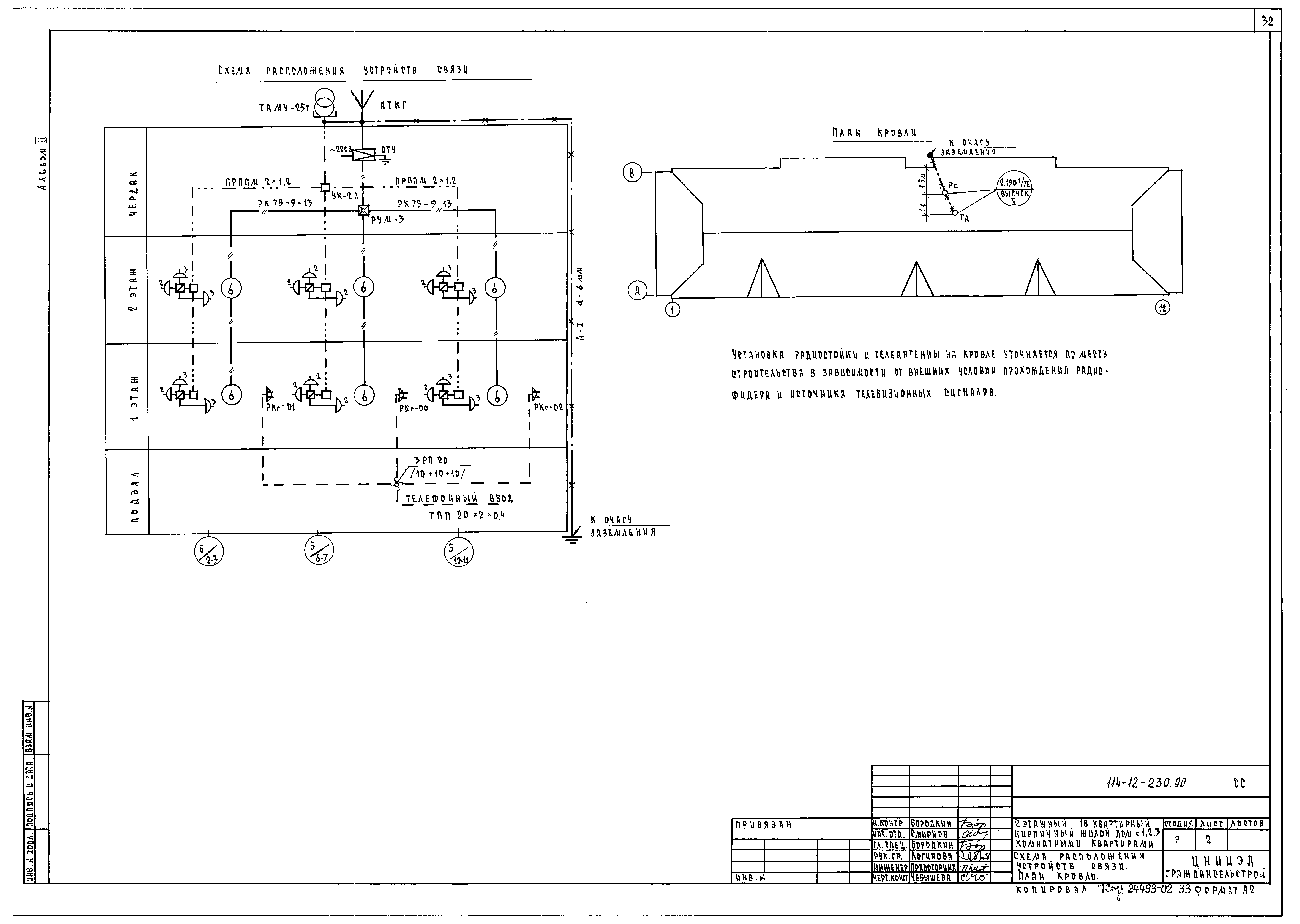
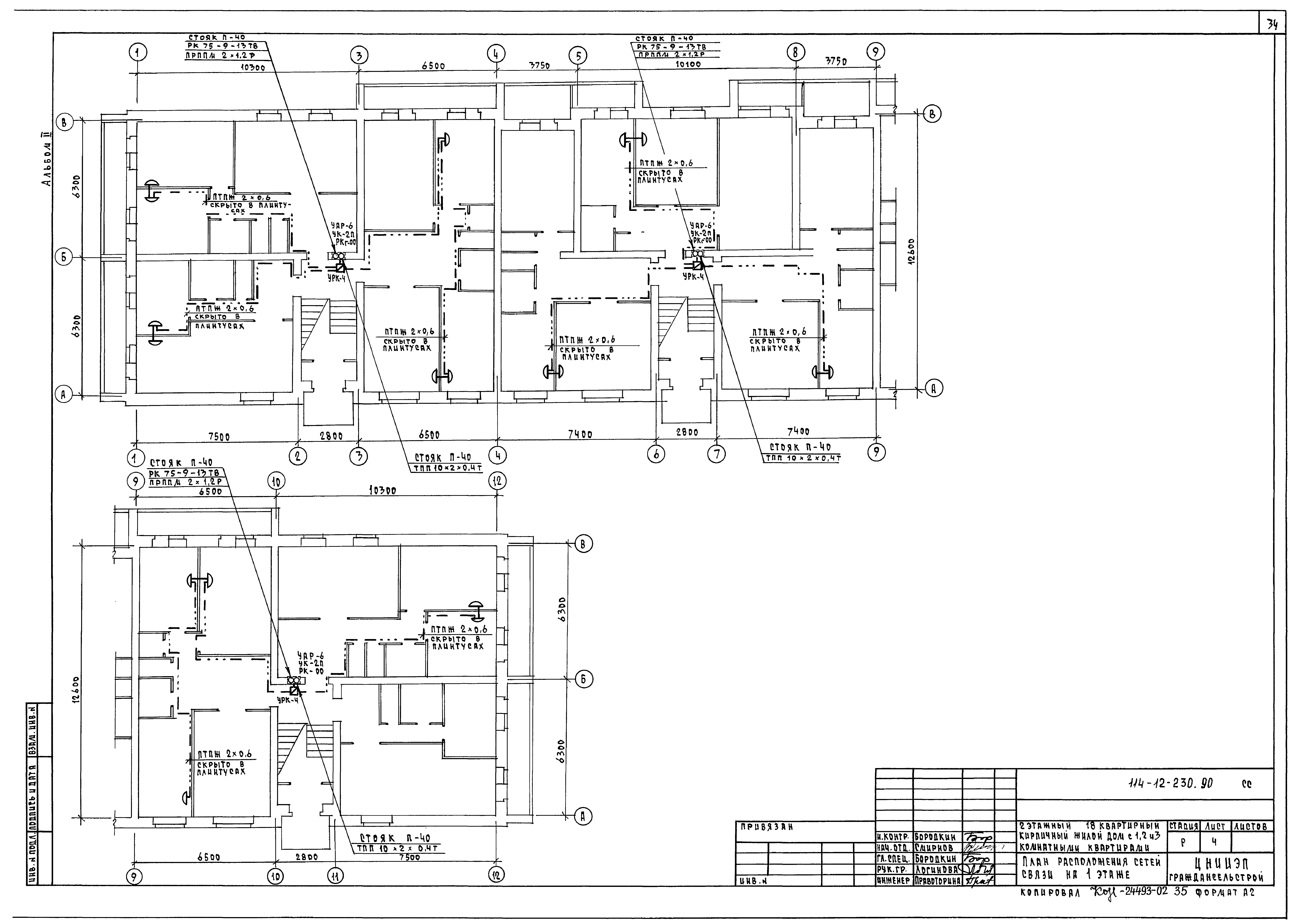
Скачать Типовой проект 114-12-230.90 Альбом II. Отопление и вентиляция, водопровод и канализация, газоснабжение, электроосвещение и электрооборудование, связь и сигнализацияДата актуализации: 01.01.2021 Типовой проект 114-12-230.90
Альбом II. Отопление и вентиляция, водопровод и канализация, газоснабжение, электроосвещение и электрооборудование, связь и сигнализация| Обозначение: | Типовой проект 114-12-230.90 | | Обозначение англ: | 114-12-230.90 | | Статус: | не определен законодательством | | Название рус.: | Альбом II. Отопление и вентиляция, водопровод и канализация, газоснабжение, электроосвещение и электрооборудование, связь и сигнализация | | Дата добавления в базу: | 01.02.2020 | | Дата актуализации: | 01.01.2021 | | Дата введения: | 19.09.1990 | | Дата окончания срока действия: | 30.06.2003 | | Разработан: | ЦНИИЭП граждансельстрой
| | Утверждён: | 11.02.1983 Госгражданстрой (Gosgrazhdanstroy 6/Т)
| | Заменяет собой: | - Типовой проект 114-12-93/72.2
|
                                  
|