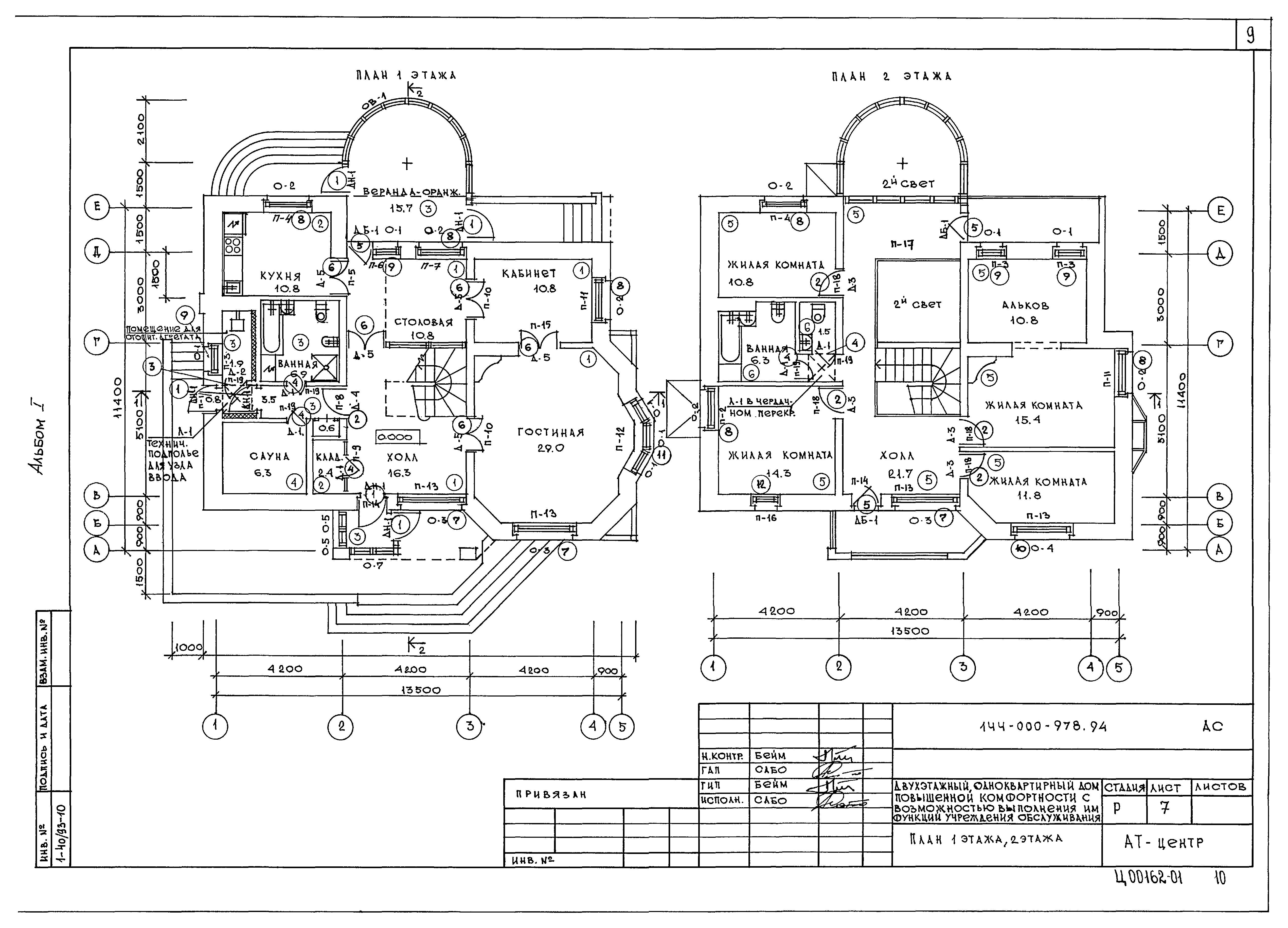
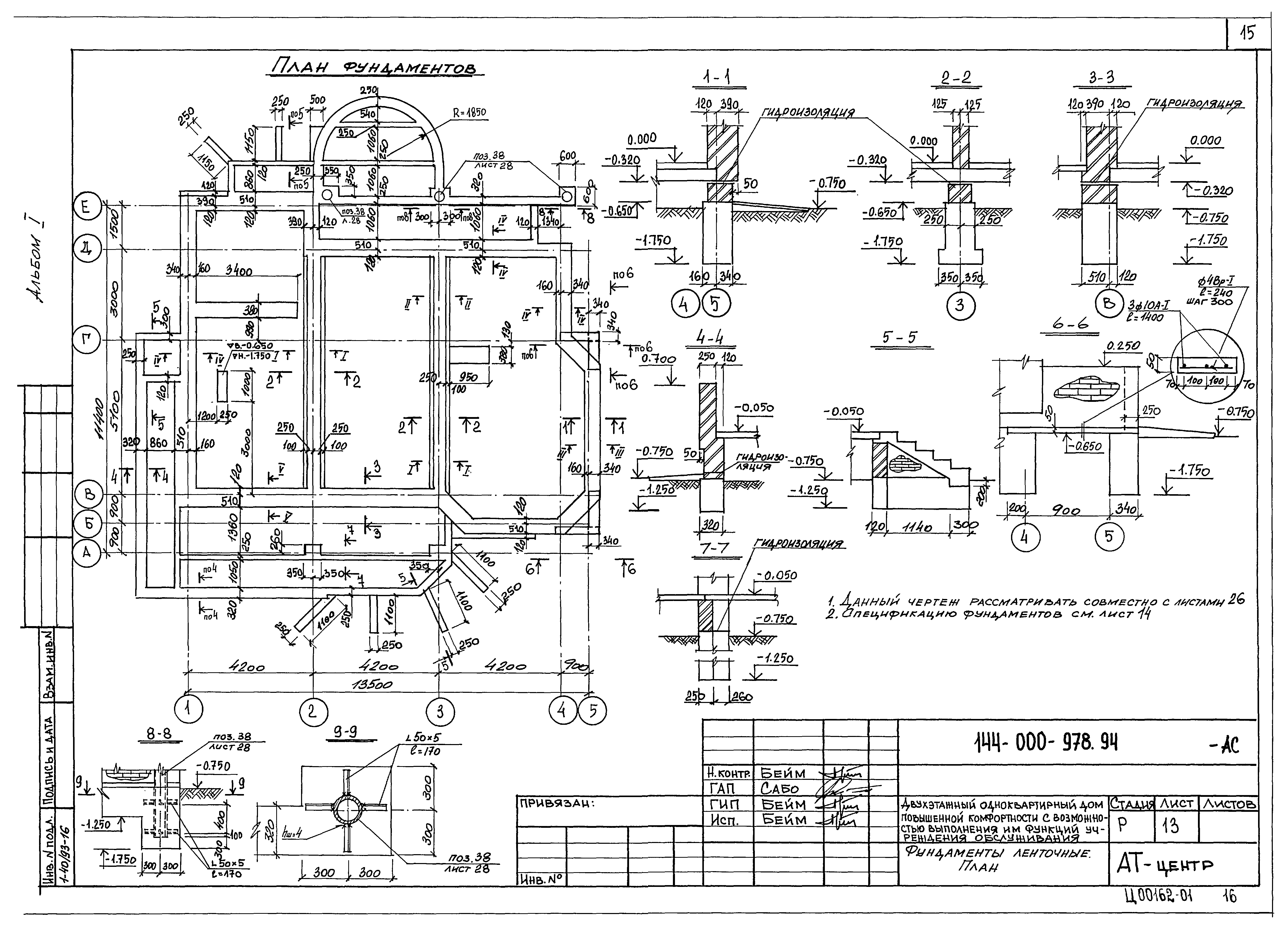
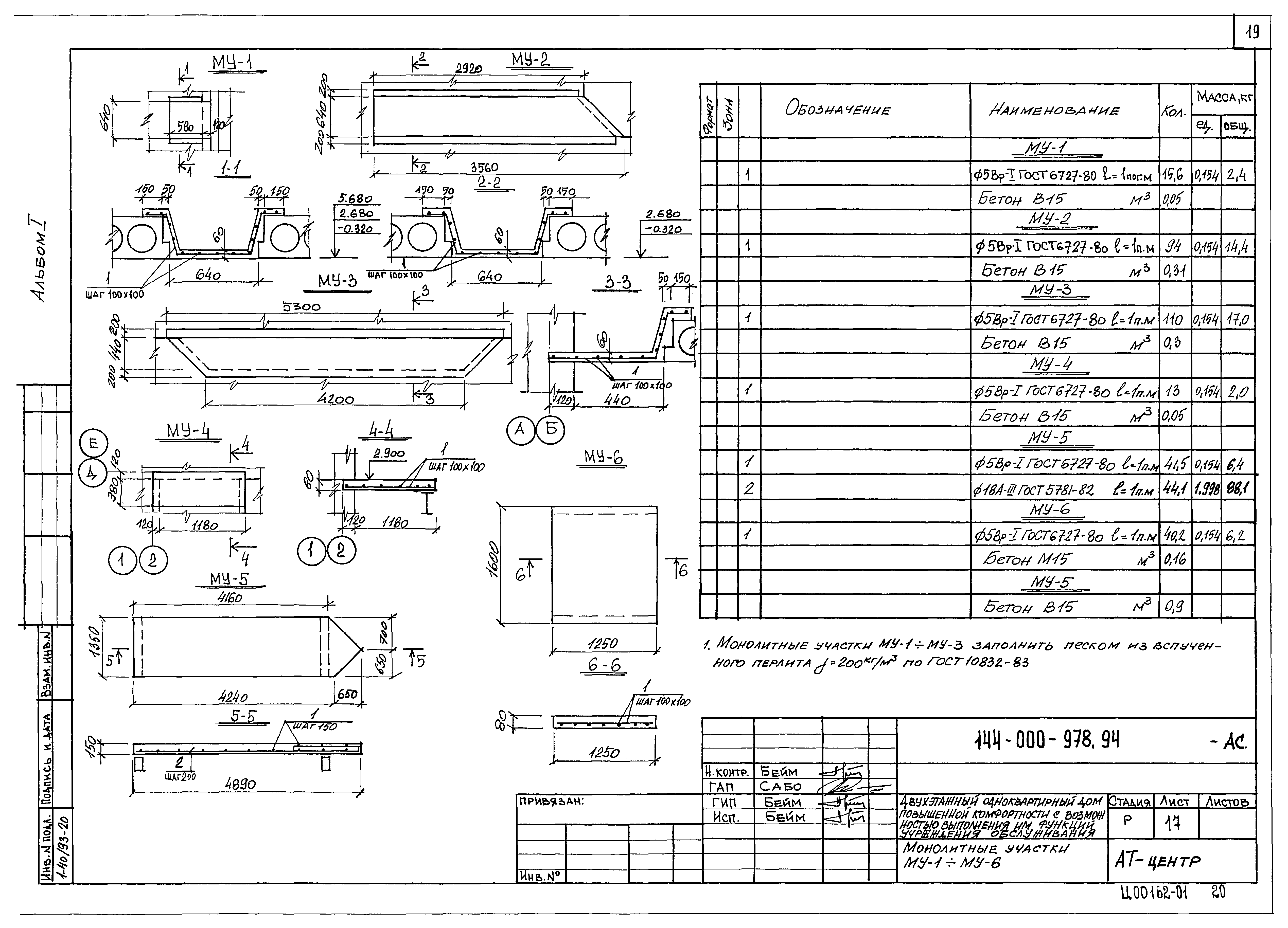
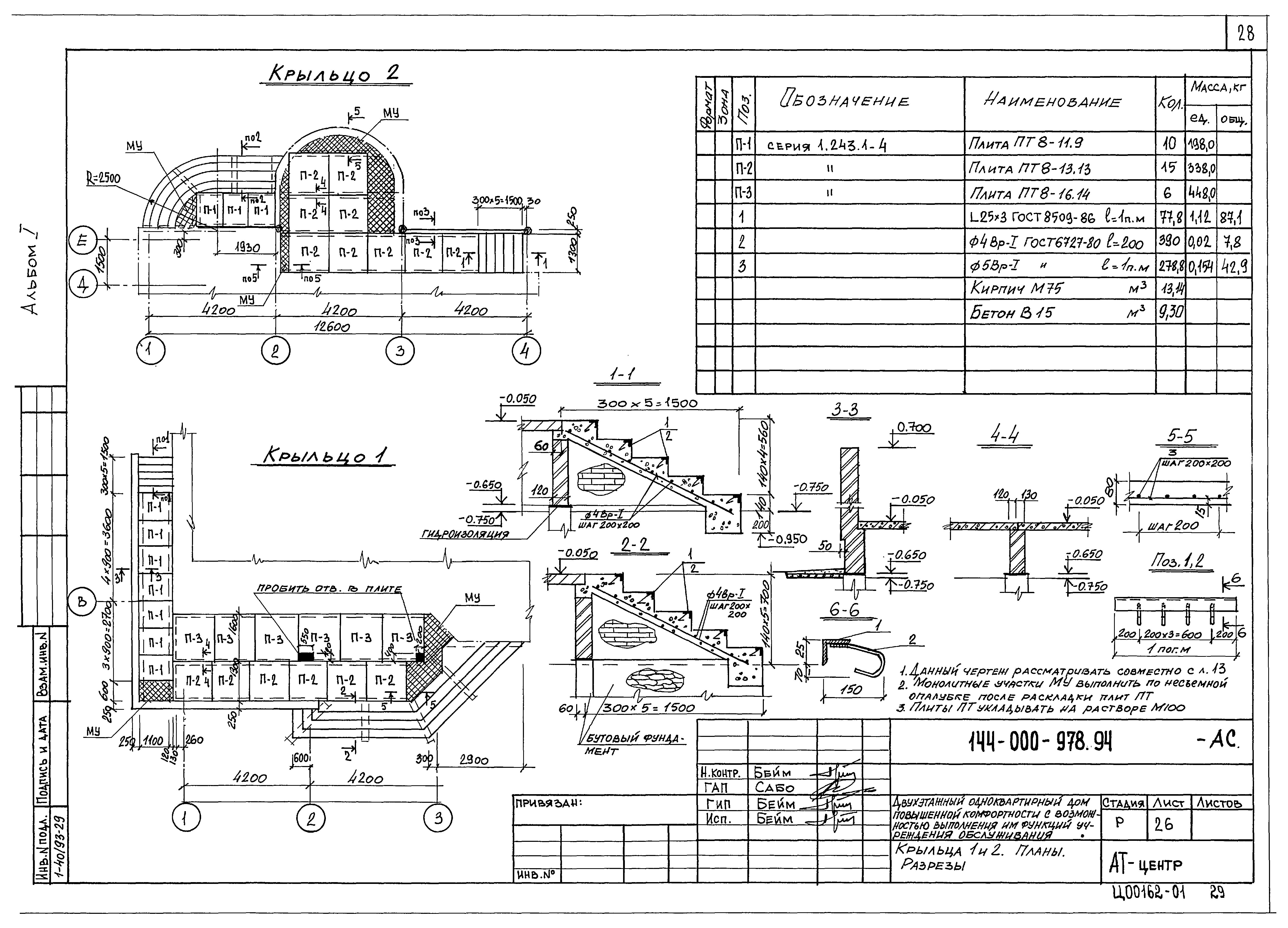
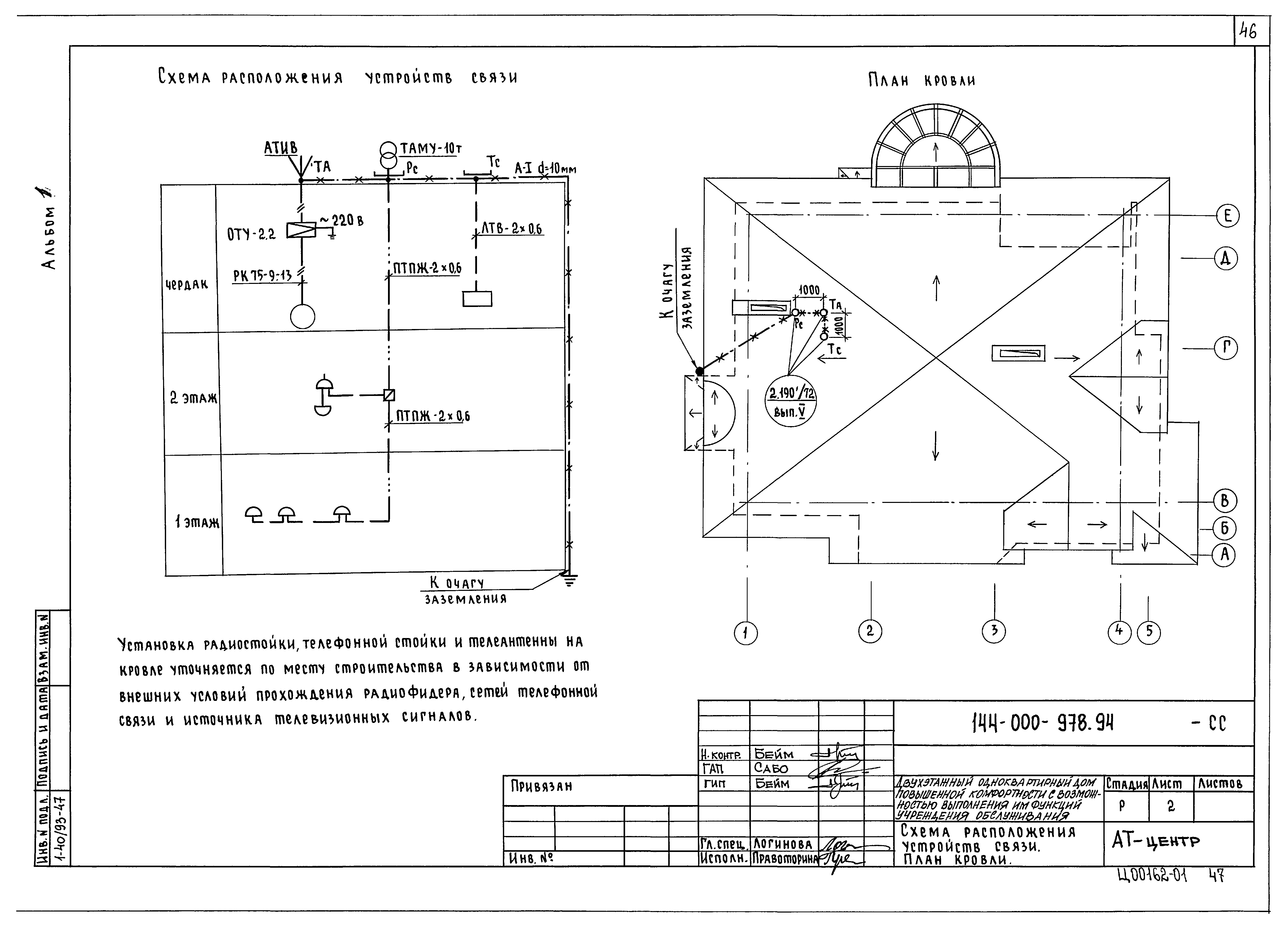
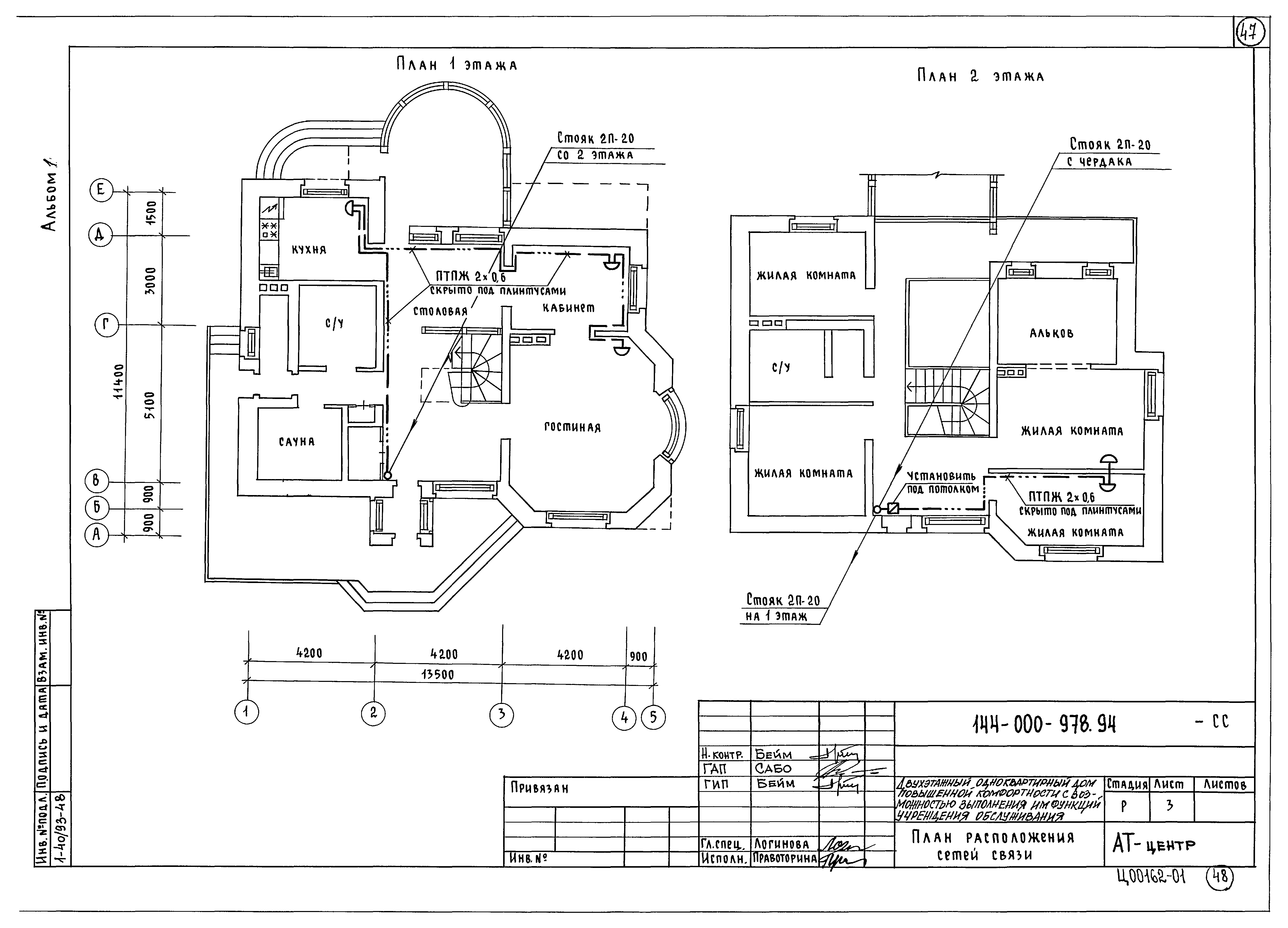
Скачать Типовой проект 144-000-978.94 Альбом I. Архитектурно-строительные чертежи. Отопление и вентиляция. Водоснабжение и канализация. Электроснабжение и освещение. Связь и сигнализацияДата актуализации: 01.01.2021
|
| Обозначение: | Типовой проект 144-000-978.94 |
| Обозначение англ: | 144-000-978.94 |
| Статус: | не определен законодательством |
| Название рус.: | Альбом I. Архитектурно-строительные чертежи. Отопление и вентиляция. Водоснабжение и канализация. Электроснабжение и освещение. Связь и сигнализация |
| Дата добавления в базу: | 01.02.2020 |
| Дата актуализации: | 01.01.2021 |
| Дата введения: | 25.12.1993 |
| Дата окончания срока действия: | 30.06.2003 |
| Разработан: | АТ-центр |
| Утверждён: | 02.03.1994 Госстрой России (Russian Federation Gosstroy 9-3-1/38) |















































