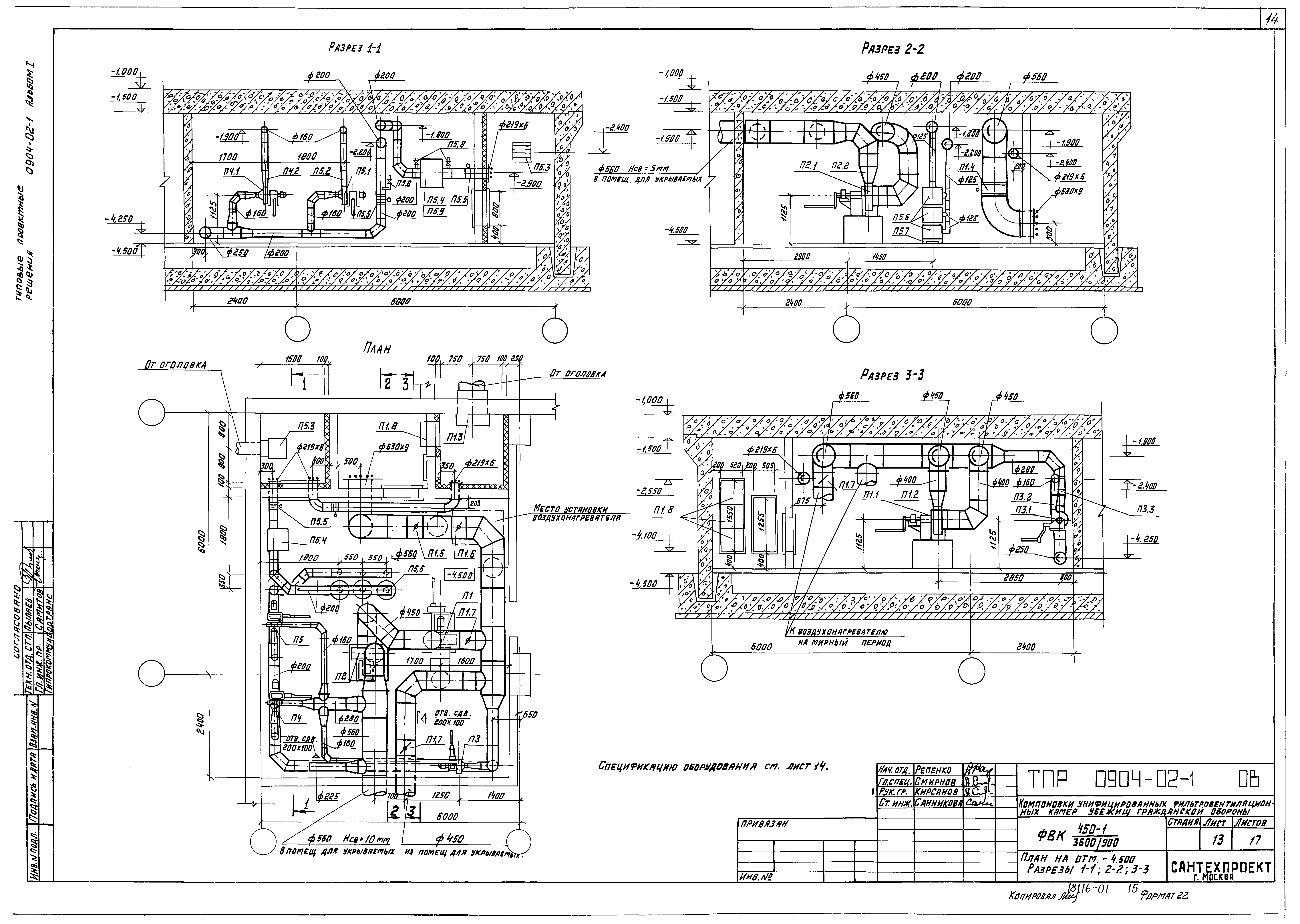
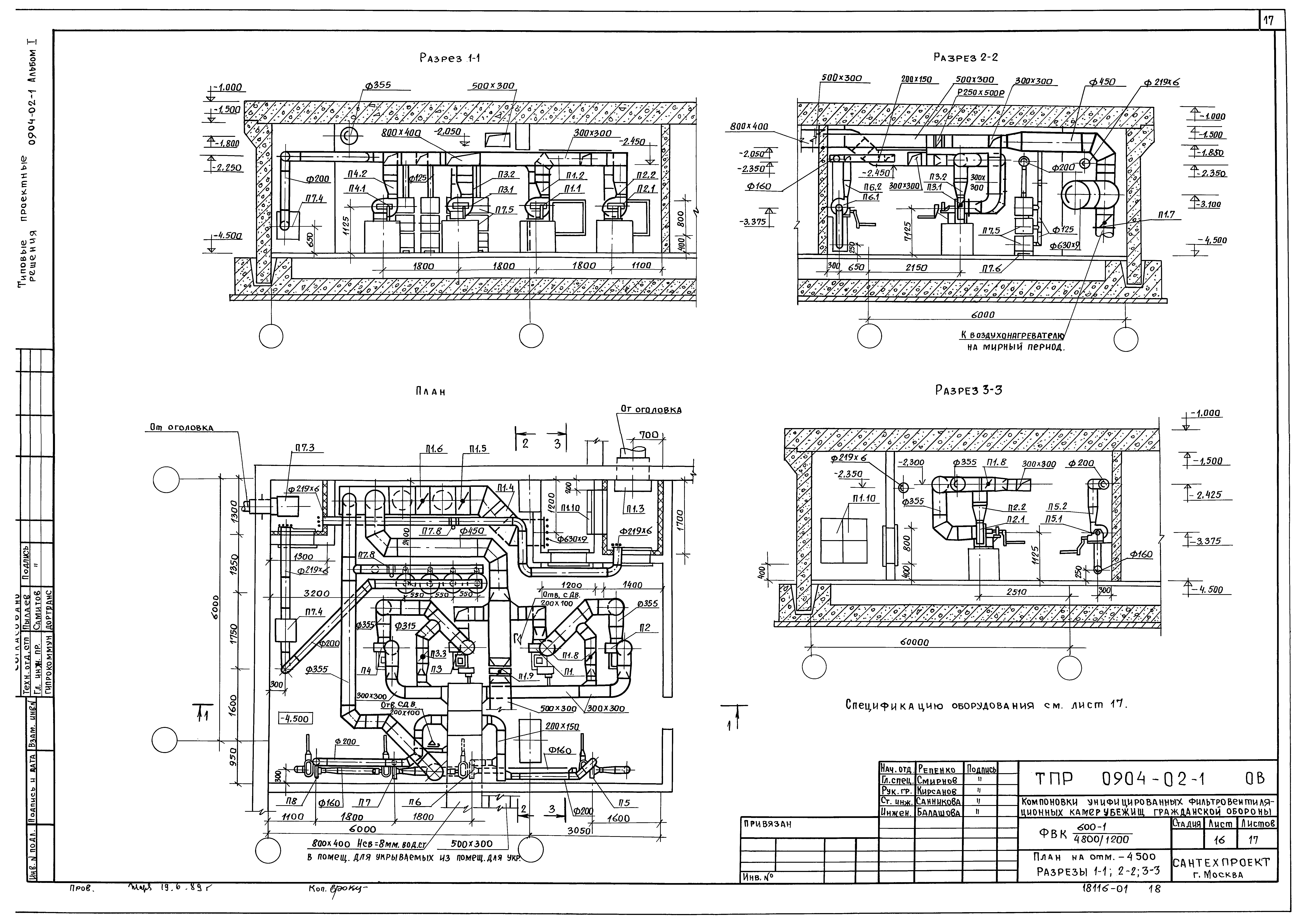
Скачать Типовые проектные решения 0904-02-1 Альбом I. Чертежи ФВК для сооружений гражданской обороны вместимостью на 150, 300, 450 и 600 человекДата актуализации: 01.01.2021 Типовые проектные решения 0904-02-1
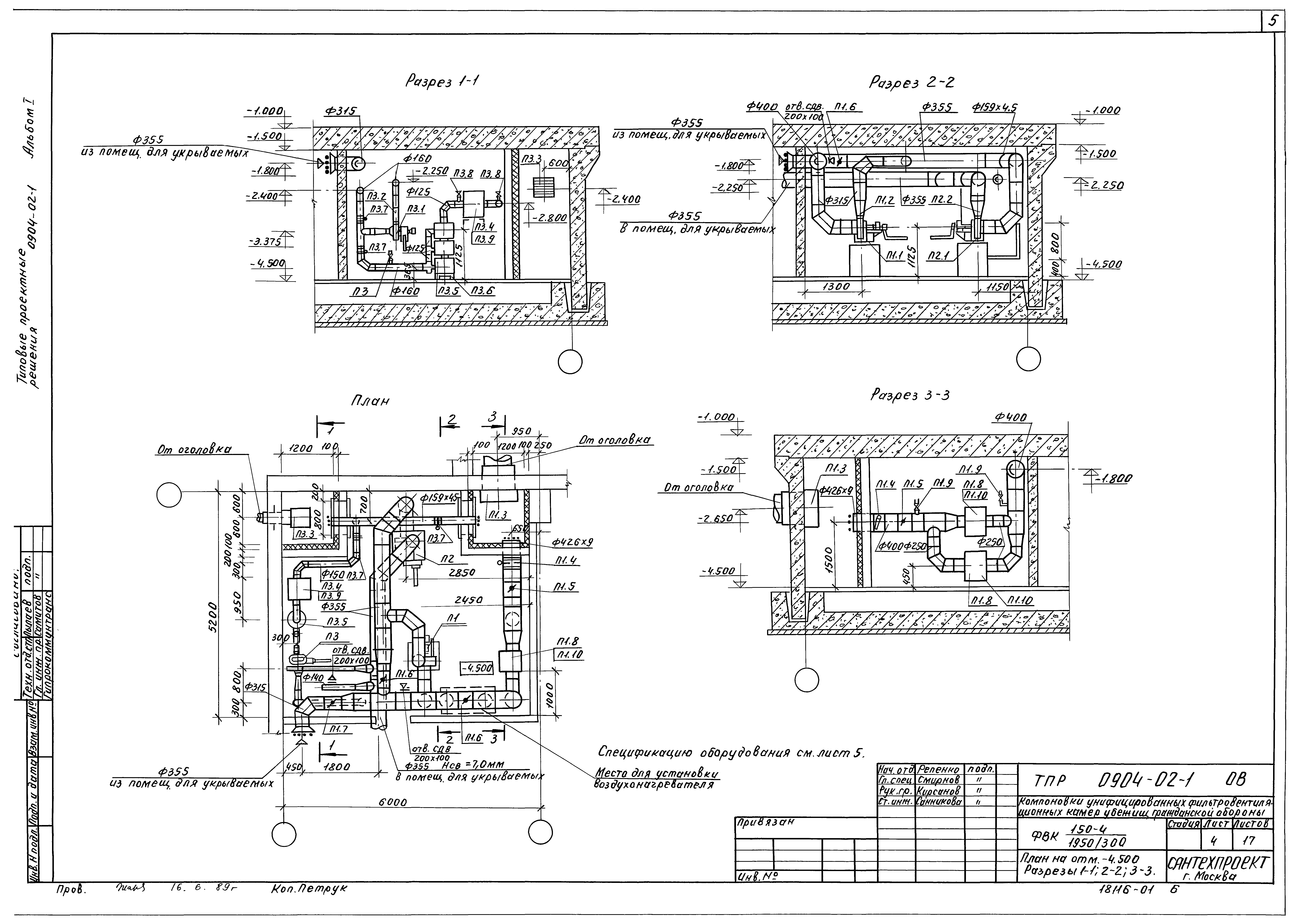
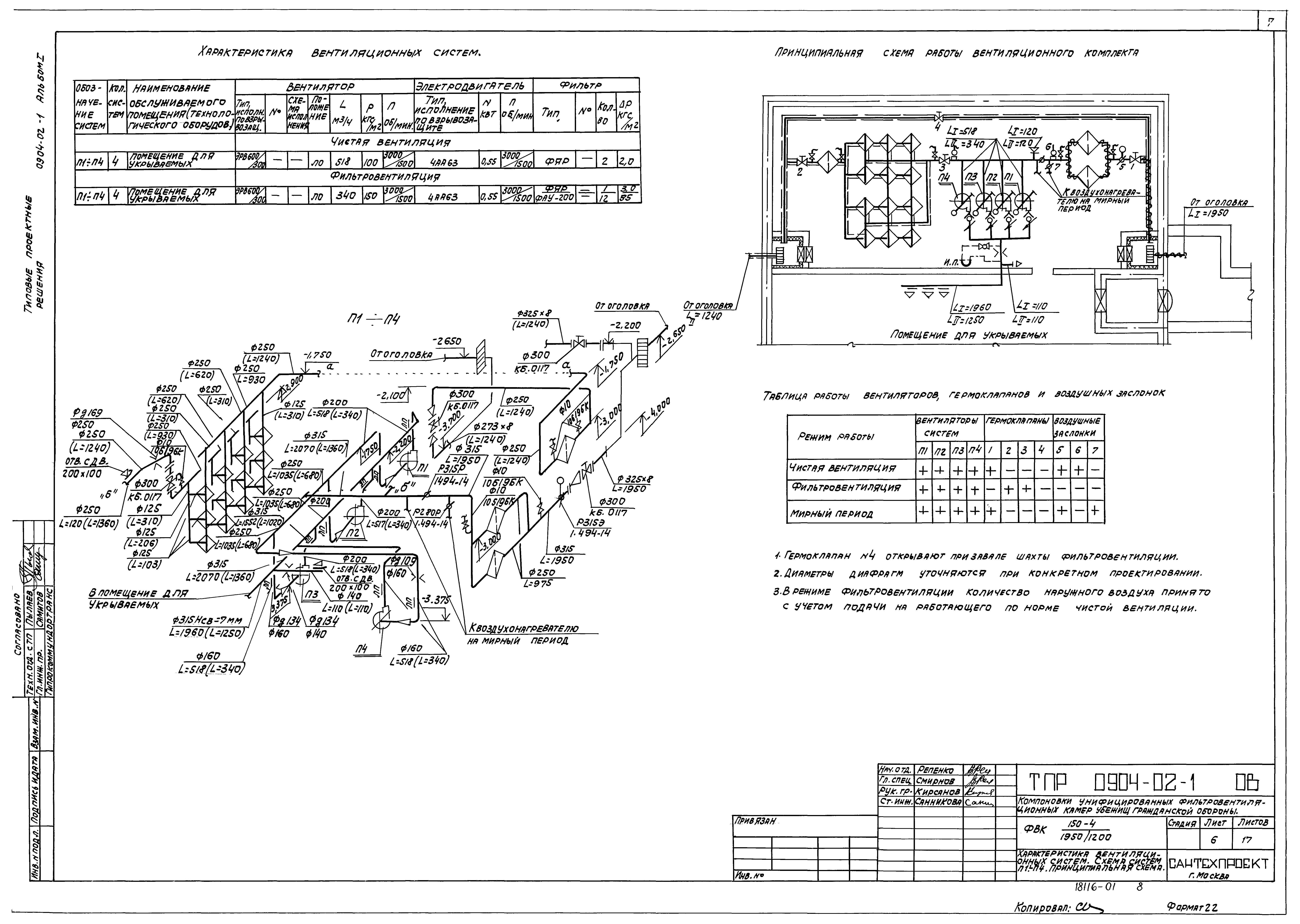
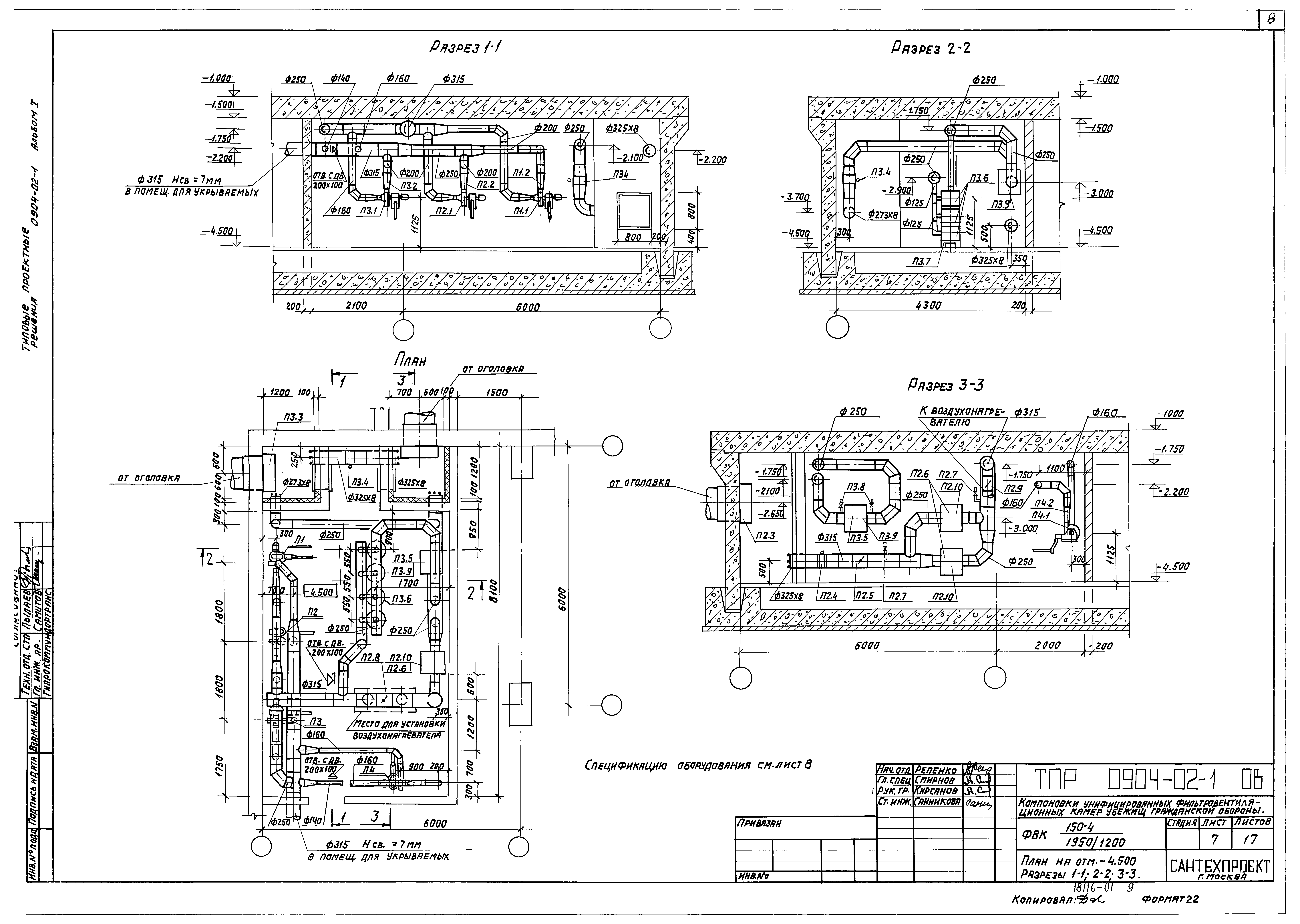
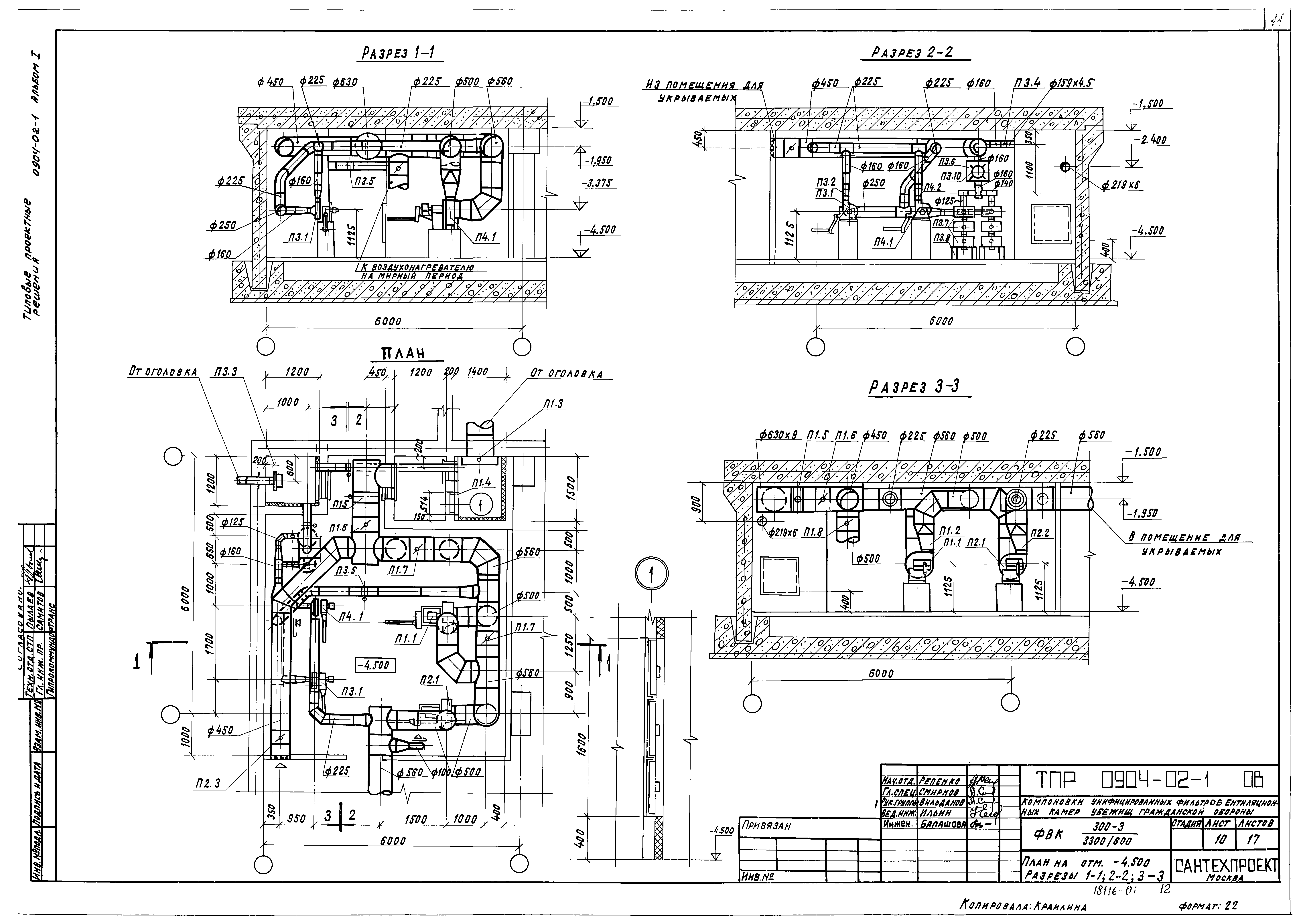
Альбом I. Чертежи ФВК для сооружений гражданской обороны вместимостью на 150, 300, 450 и 600 человек| Обозначение: | Типовые проектные решения 0904-02-1 | | Обозначение англ: | 0904-02-1 | | Статус: | справочные материалы, мп, тпр | | Название рус.: | Альбом I. Чертежи ФВК для сооружений гражданской обороны вместимостью на 150, 300, 450 и 600 человек | | Дата добавления в базу: | 01.02.2020 | | Дата актуализации: | 01.01.2021 | | Дата введения: | 30.03.1981 | | Разработан: | Сантехпроект Госстроя СССР
| | Утверждён: | 30.03.1981 11 Управление Г.О. СССР
|
                 
|