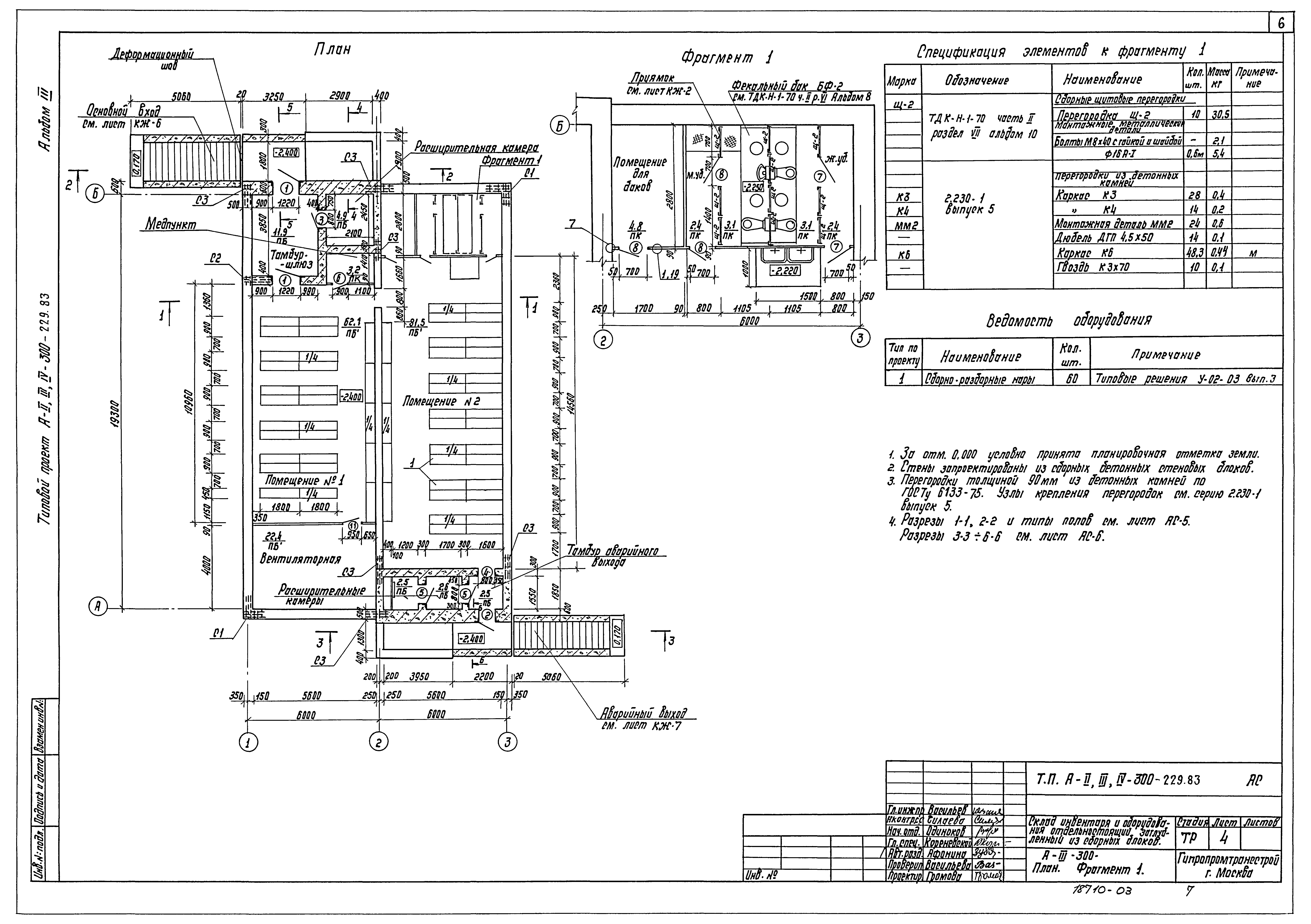
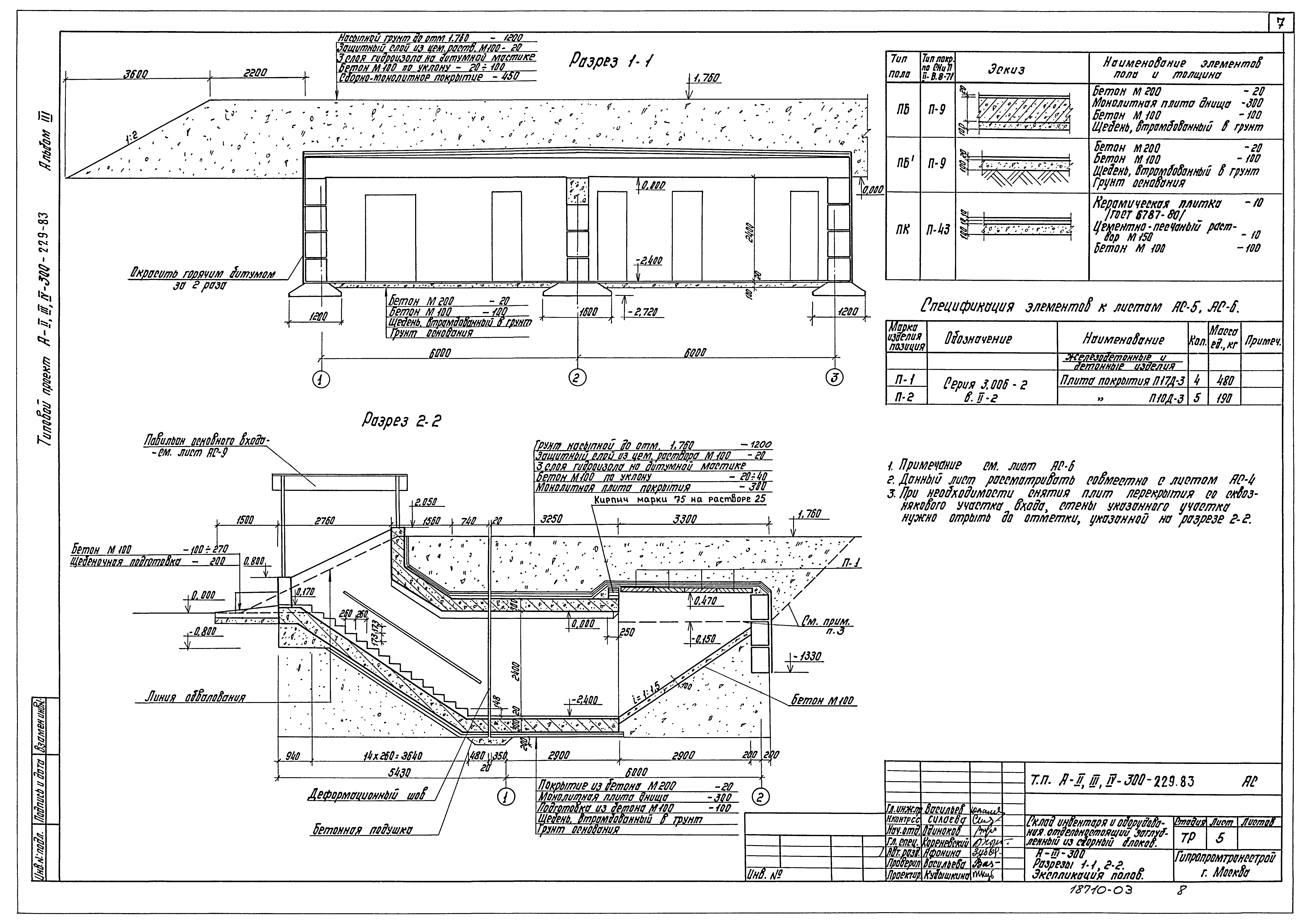
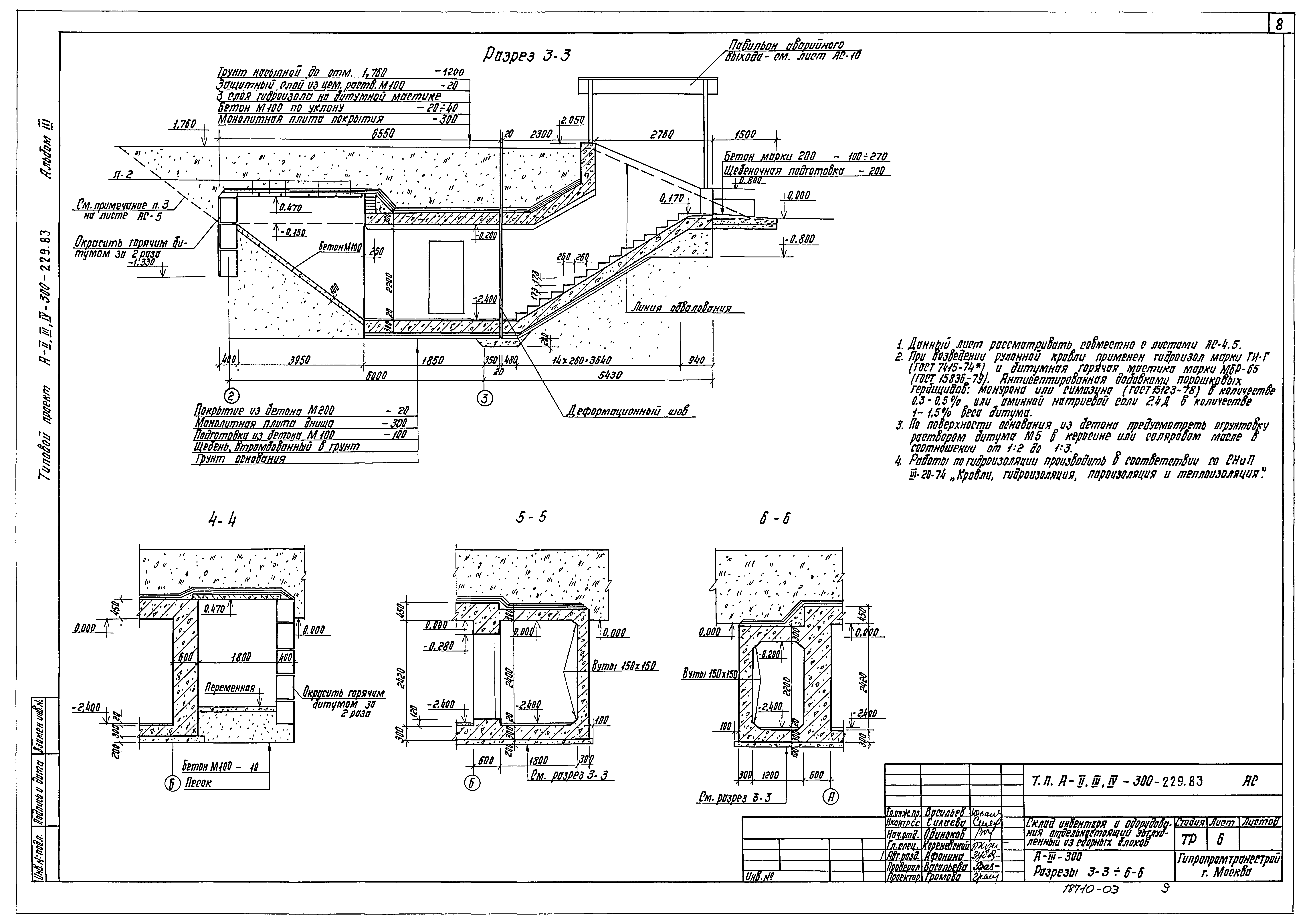
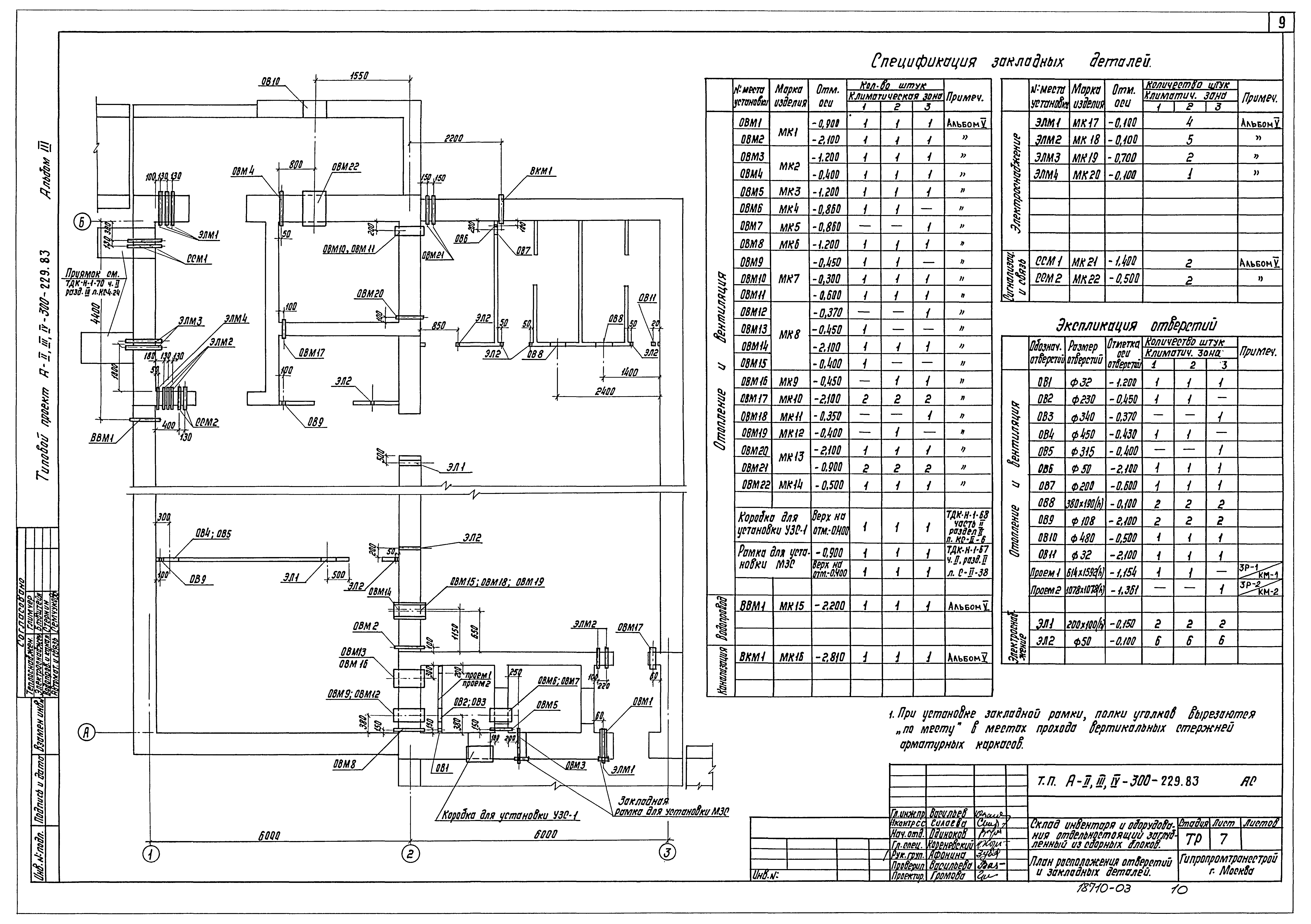
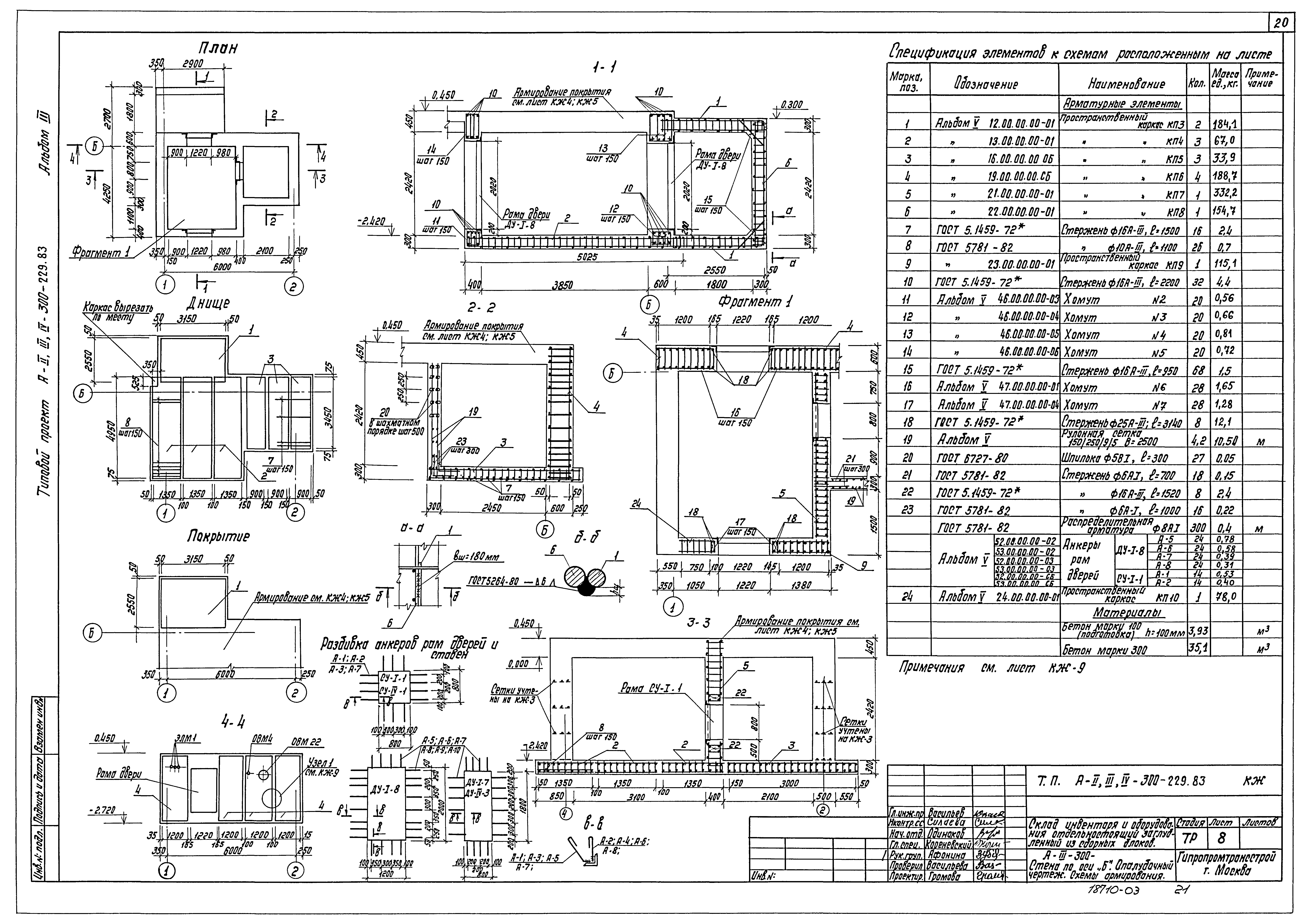
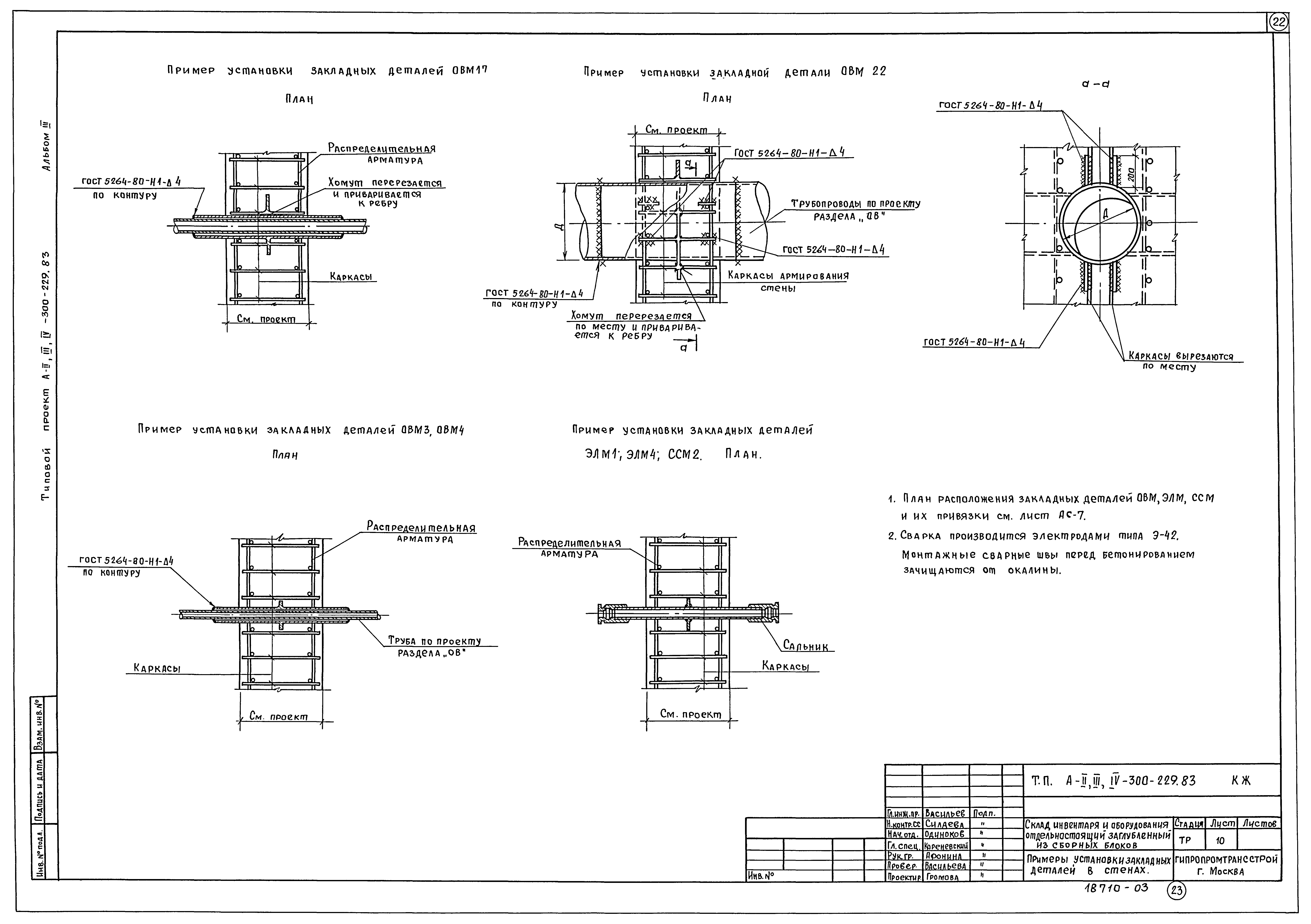
Скачать Типовой проект А-II,III,IV-300-229.83 Альбом III. Архитектурно-строительные решения для склада А-IIIДата актуализации: 01.01.2021 Типовой проект А-II,III,IV-300-229.83
Альбом III. Архитектурно-строительные решения для склада А-III| Обозначение: | Типовой проект А-II,III,IV-300-229.83 | | Обозначение англ: | А-II,III,IV-300-229.83 | | Статус: | не определен законодательством | | Название рус.: | Альбом III. Архитектурно-строительные решения для склада А-III | | Дата добавления в базу: | 01.02.2020 | | Дата актуализации: | 01.01.2021 | | Дата введения: | 01.02.1983 | | Дата окончания срока действия: | 30.06.2003 | | Разработан: | Гипропромтрансстрой
| | Утверждён: | 03.01.1983 МПС (Ministry of Railroads А-27)
| | Издан: | ЦИТП Госстроя СССР (CITP, Gosstroy (USSR) 1988 г. )
|
                     
|