Скачать Руководство по эксплуатации систем управления ВМП и контроля проветривания тупиковых выработок угольных шахтДата актуализации: 01.01.2021
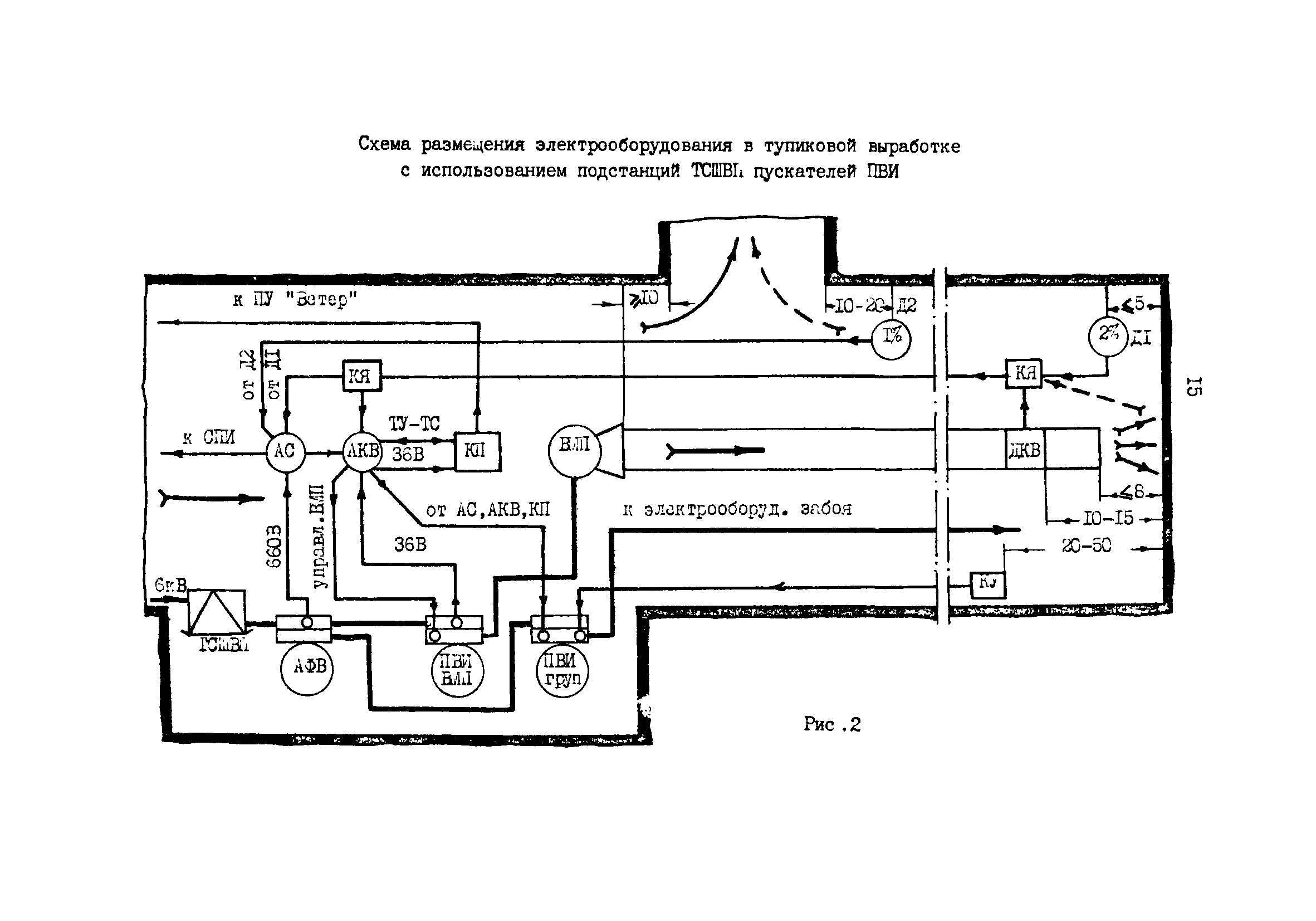
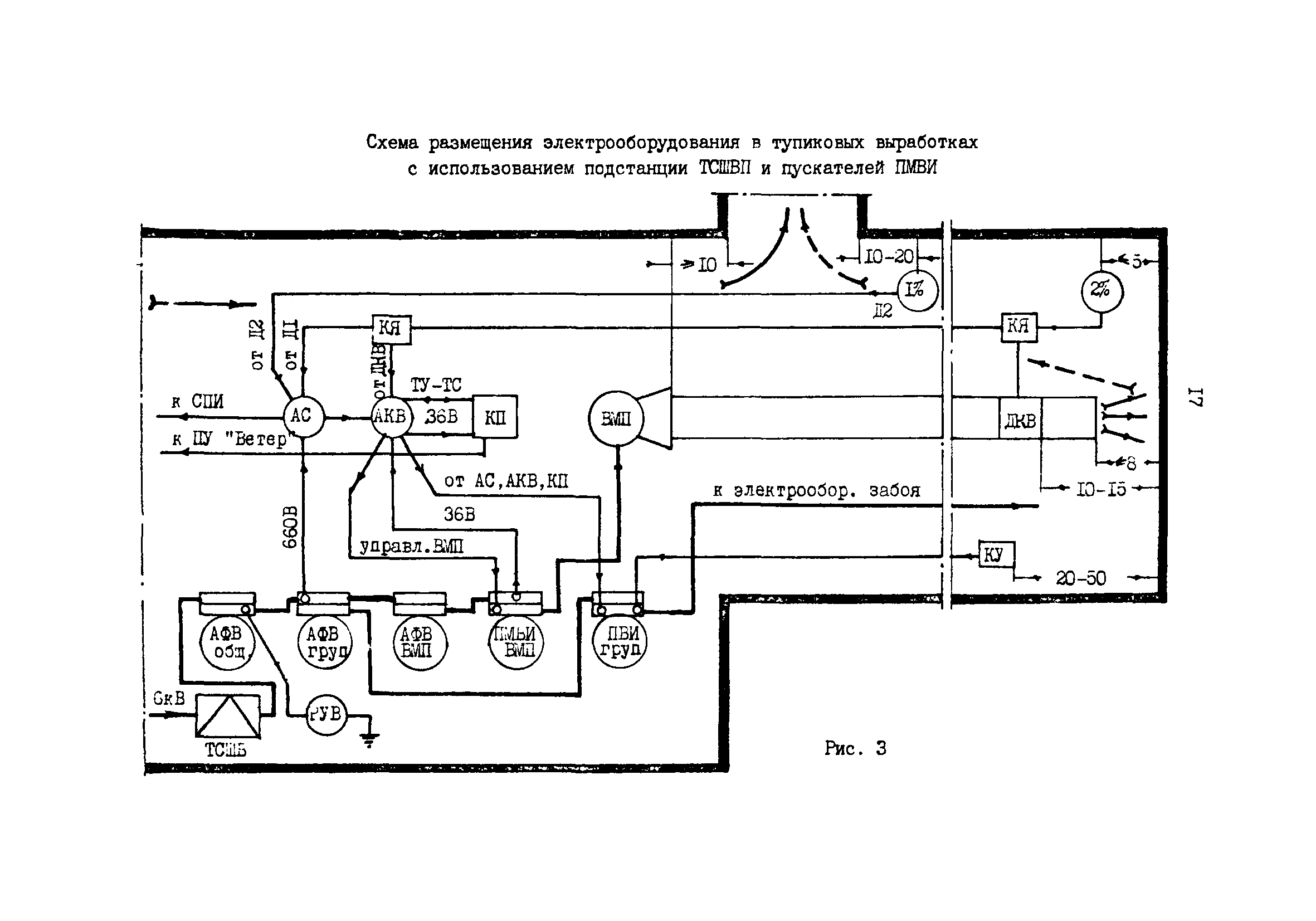
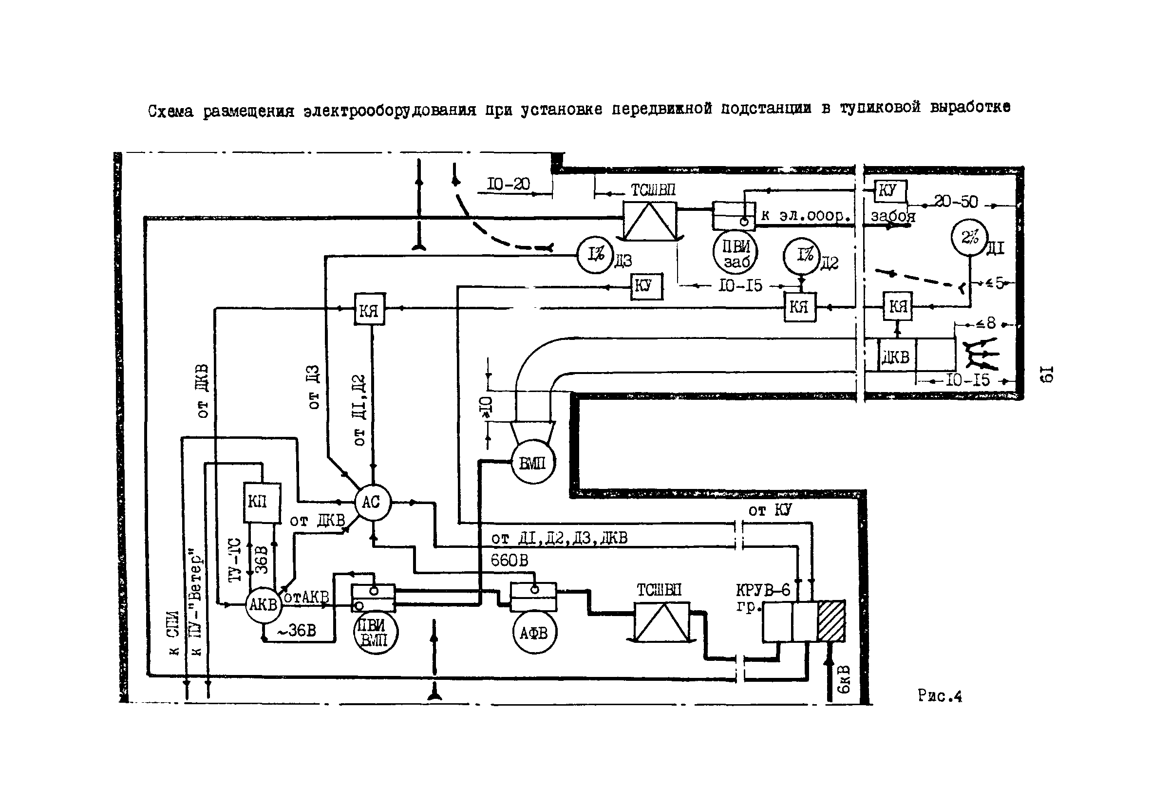
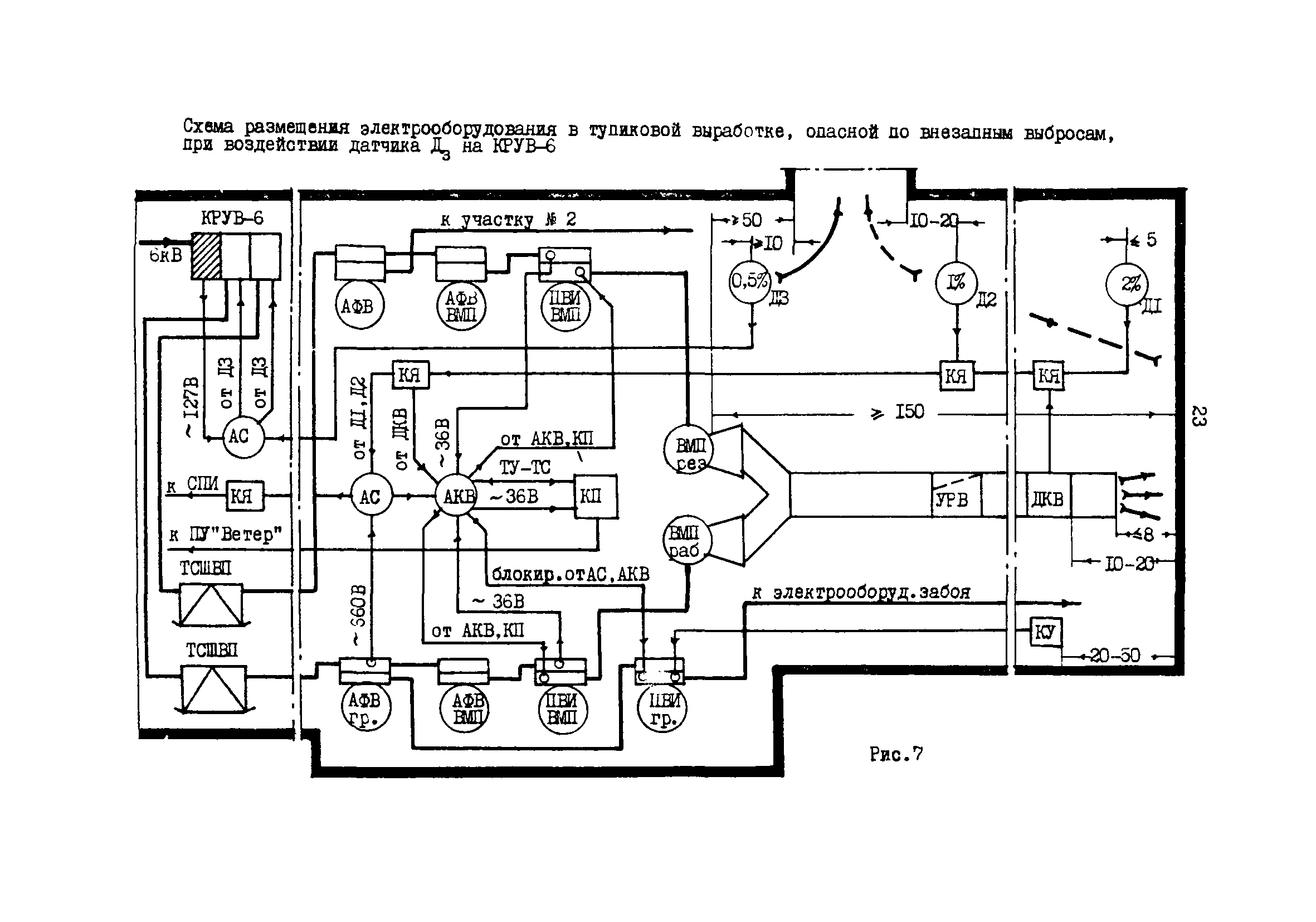
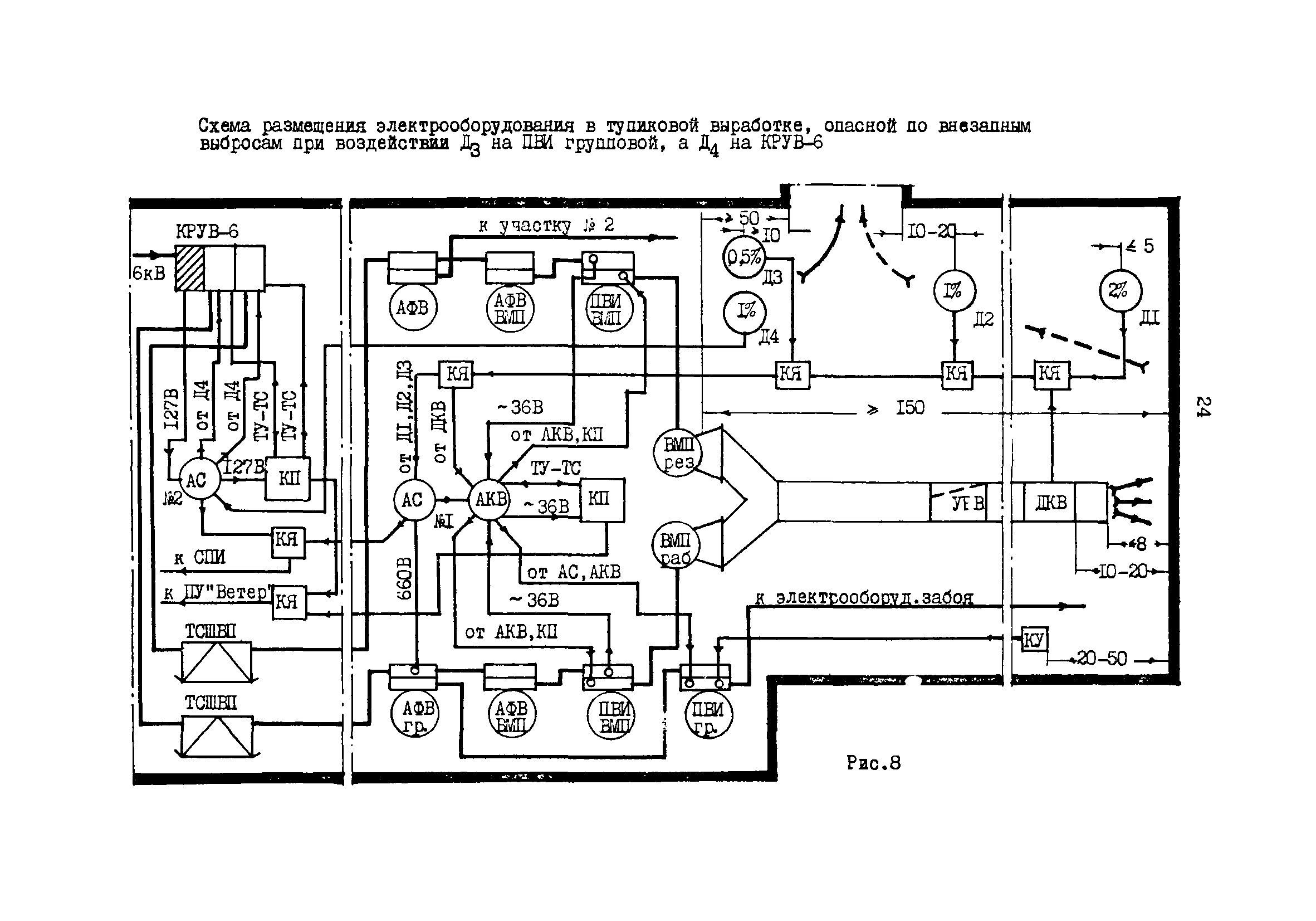
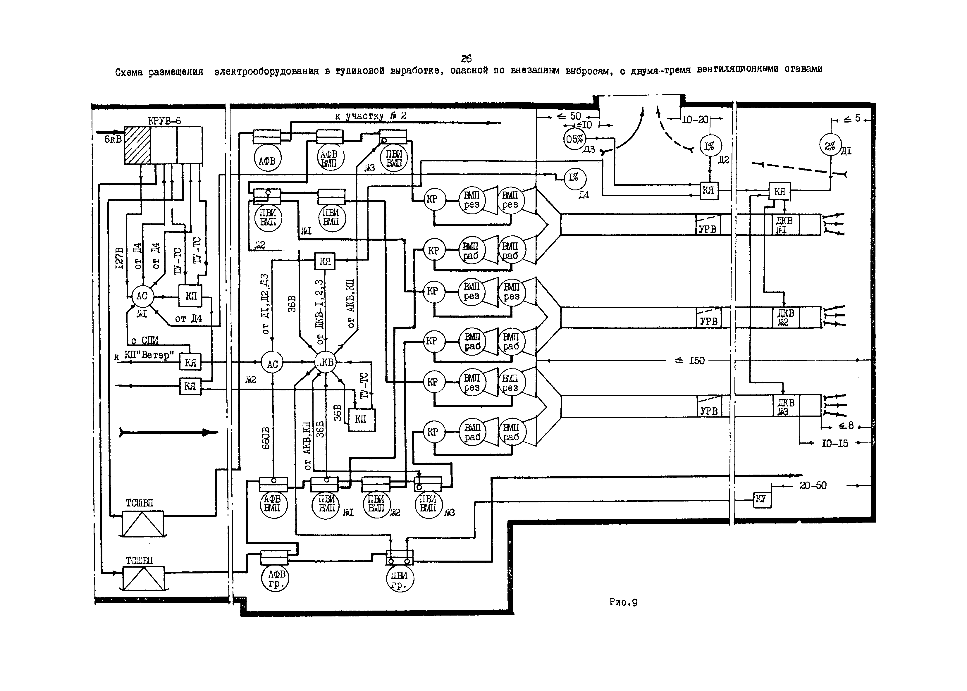
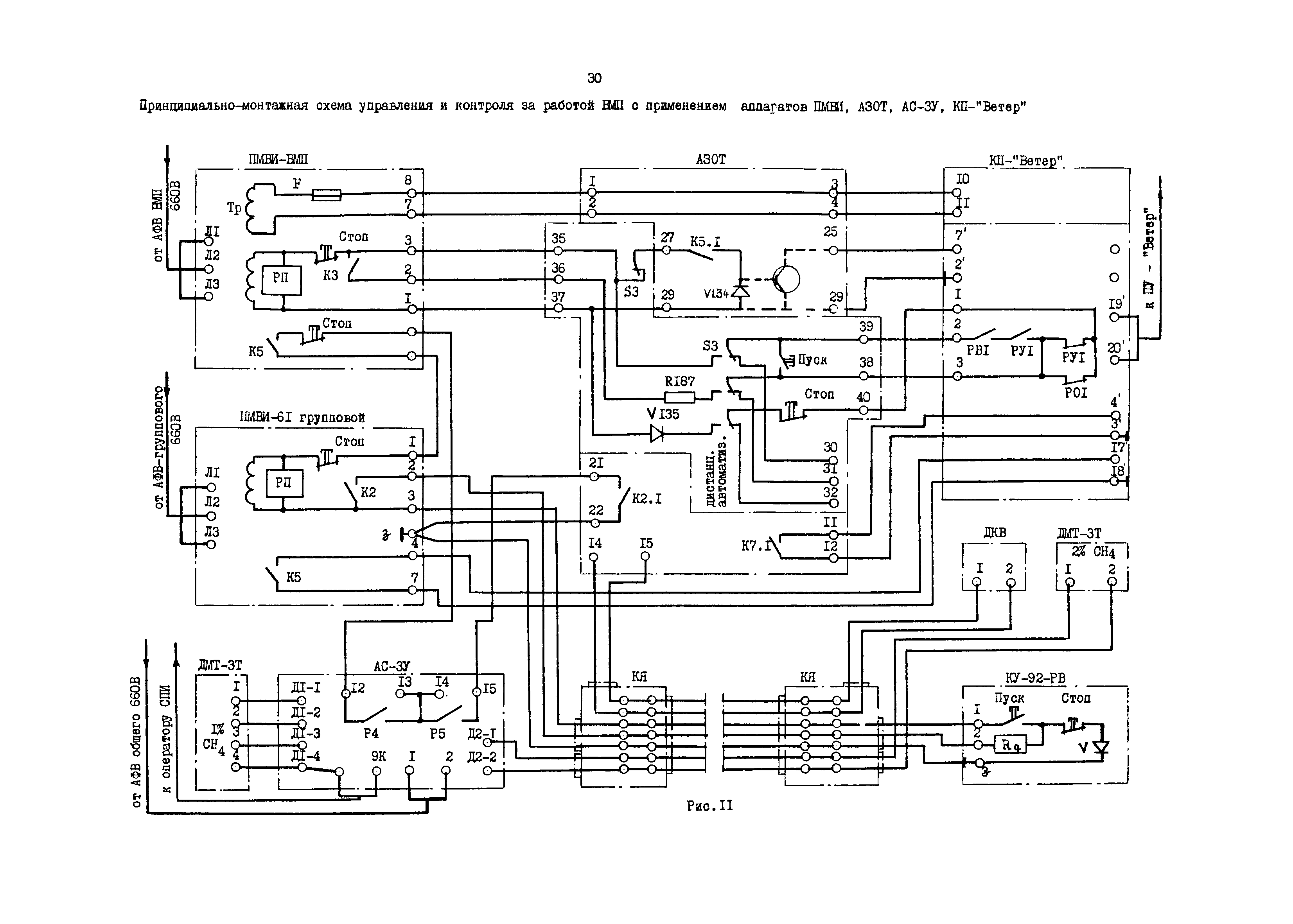
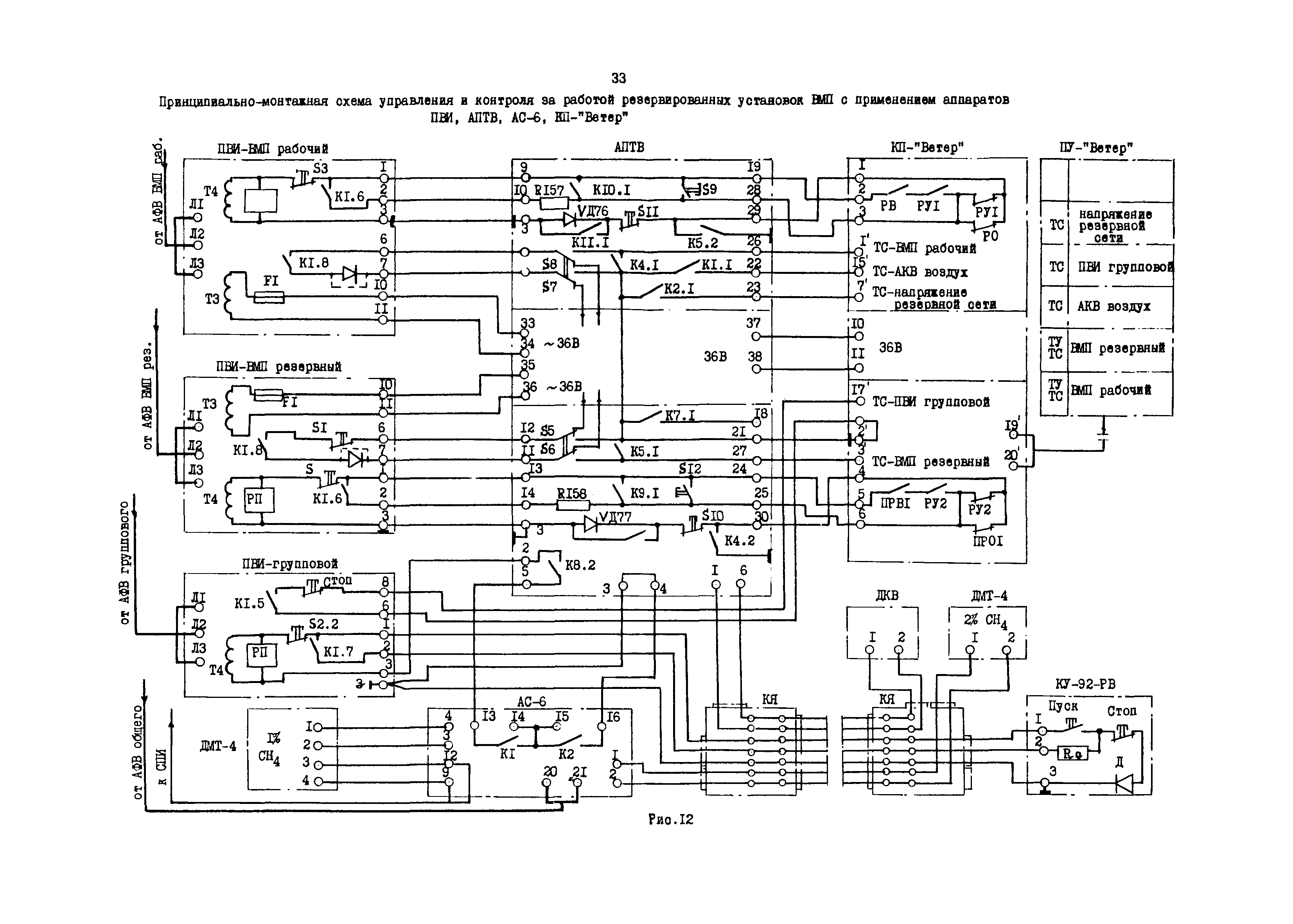
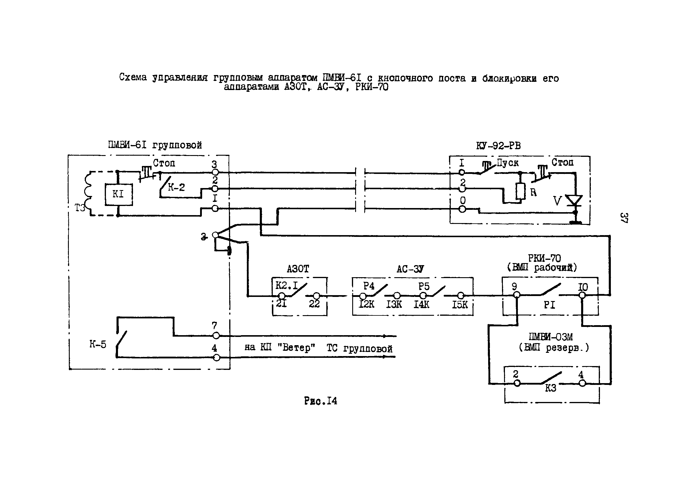
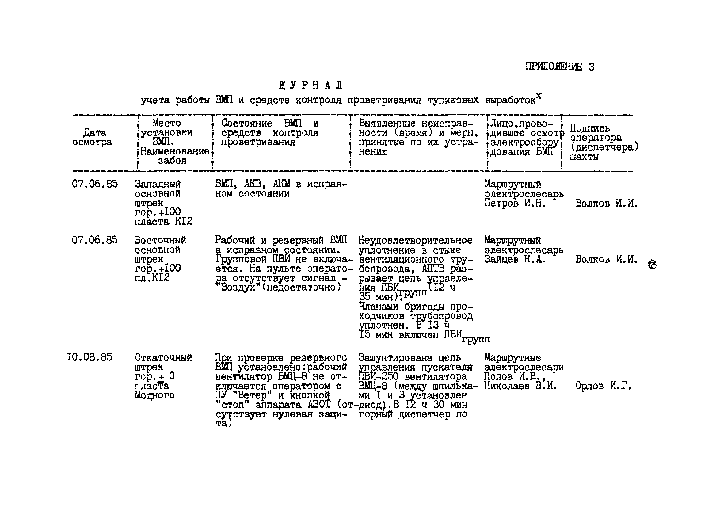
Руководство по эксплуатации систем управления ВМП и контроля проветривания тупиковых выработок угольных шахт| Статус: | справочные материалы, мп, тпр | | Название рус.: | Руководство по эксплуатации систем управления ВМП и контроля проветривания тупиковых выработок угольных шахт | | Дата добавления в базу: | 01.02.2020 | | Дата актуализации: | 01.01.2021 | | Область применения: | Документ является обязательным для работников шахт, эксплуатирующих оборудование ВМП, специализированных организаций Минуглепрома СССР, осуществляющих фирменное обслуживание аппаратуры, а также для организаций, проектирующих проведение тупиковых выработок, проветриваемых ВМП. Руководство содержит общие требования к схемам электроснабжения ВМП, а также к схемам управления и контроля за работой вентиляторов и проветриванием тупиковых выработок угольных шахт, опасных по газу, и определяет порядок обслуживания электрооборудования ВМП | | Оглавление: | 1. Общие положения 2. Требования к электроснабжению, управлению и контролю за работой вентиляторов тупиковых выработок 3. Дополнительные требования к вентиляторным установкам тупиковых выработок с резервированием ВМП 4. Монтаж и эксплуатация электрооборудования ВМП 5. Состав и размещение электрооборудования ВМП в тупиковых выработках 6. Принципиально-монтажные схемы управления и контроля за работой вентиляторов 6.1. Схема управления и контроля за работой ВМП при использовании аппаратов ПВИ, АПТВ, АТЗ-1, КП «Ветер» 6.2. Схема управления и контроля за работой ВМП при использовании аппаратов ПМВИ, АЗОТ, АМТ-3, КП «Ветер» 6.3. Схема управления и контроля за работой резервированных ВМП с использованием аппаратов ПВИ, АПТВ, ATЗ-1, КП «Ветер» 6.4. Схема управления и контроля за работой резервированных ВМП с использованием аппаратов ПМВИ, АЗОТ, АМТ-3, РКИ-70, КП «Ветер» Приложение 1 1. Обязанности оператора пульта управления 2. Обязанности маршрутного электрослесаря 3. Обязанности машиниста ВМП Приложение 2 Программа занятий Приложение 3 Приложение 4 Сокращенные и условные обозначения | | Разработан: | ВостНИИ (Восточный научно-исследовательский институт по безопасности работ в горной промышленности) КНИУИ МакНИИ
| | Утверждён: | 28.08.1985 Минуглепром СССР (USSR Minugleprom )
| | Принят: | 27.08.1985 Госгортехнадзор СССР (USSR Gosgortekhnadzor )
|
                                                      
|