Скачать Типовые проектные решения 0-900-05 Альбом I. Архитектурно-строительные решения, водопровод, канализация и вентиляция санузлов убежищ ГО вместимостью 1200 челДата актуализации: 01.01.2021 Типовые проектные решения 0-900-05
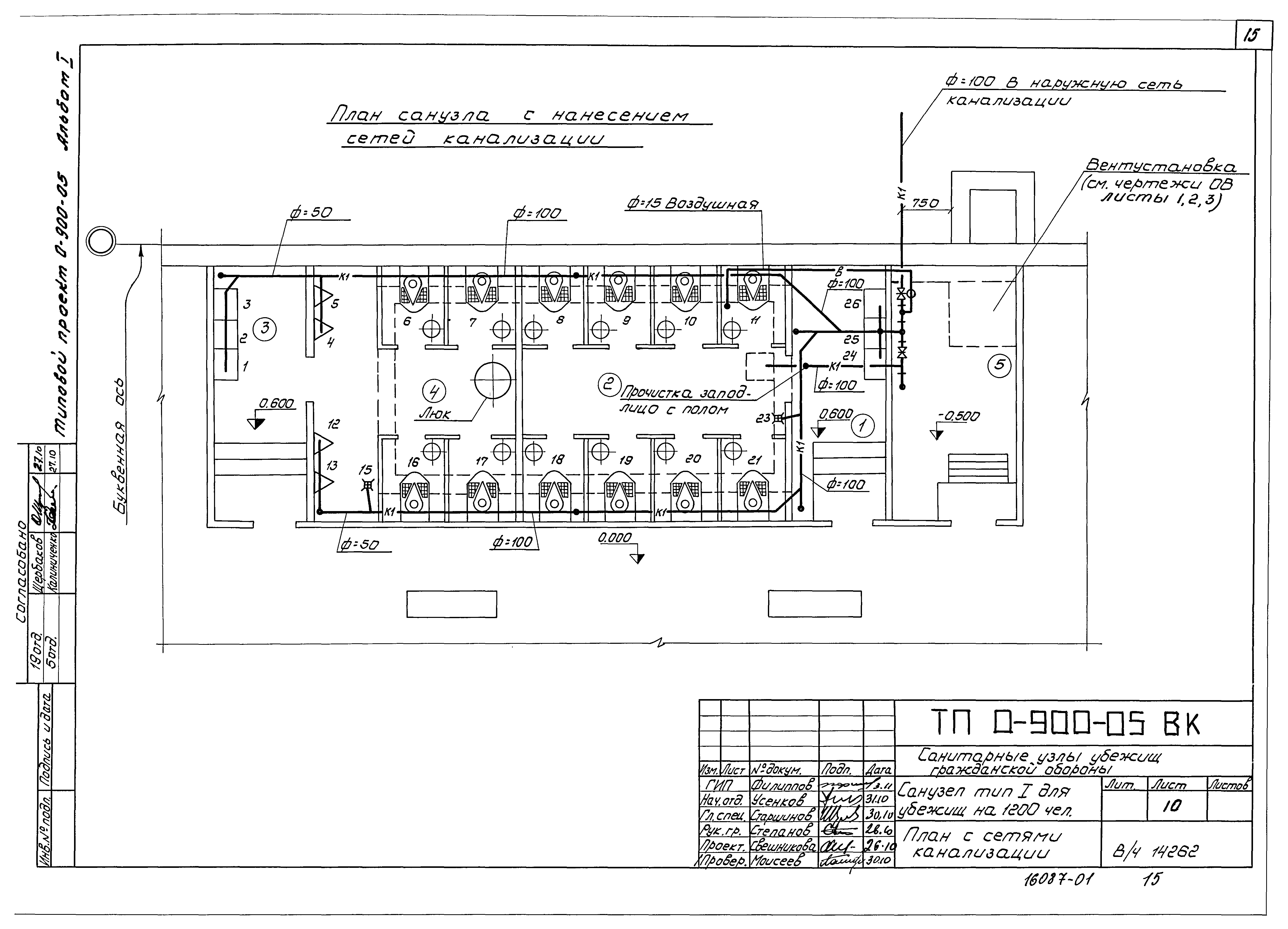
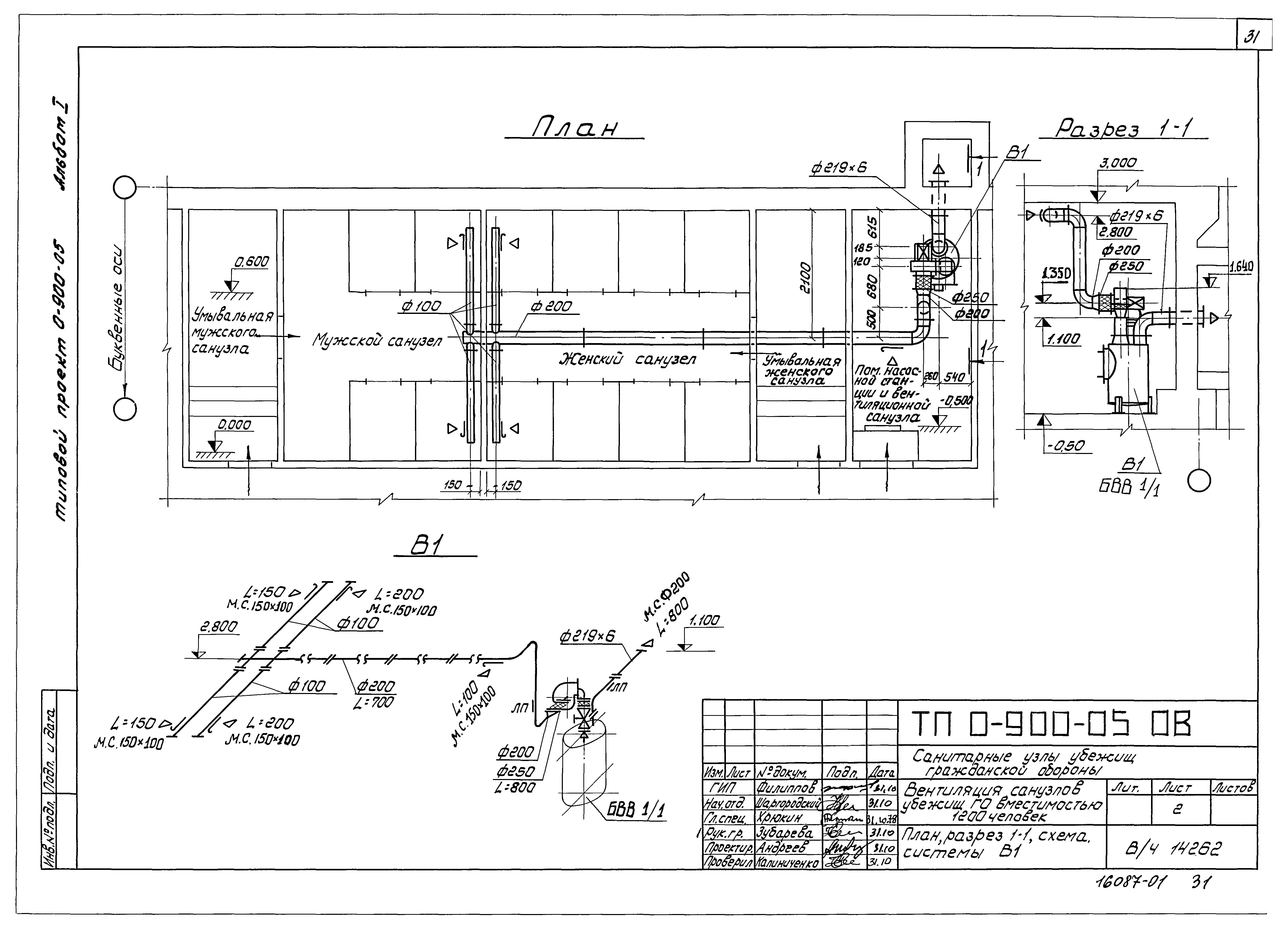
Альбом I. Архитектурно-строительные решения, водопровод, канализация и вентиляция санузлов убежищ ГО вместимостью 1200 чел| Обозначение: | Типовые проектные решения 0-900-05 | | Обозначение англ: | 0-900-05 | | Статус: | справочные материалы, мп, тпр | | Название рус.: | Альбом I. Архитектурно-строительные решения, водопровод, канализация и вентиляция санузлов убежищ ГО вместимостью 1200 чел | | Дата добавления в базу: | 01.02.2020 | | Дата актуализации: | 01.01.2021 | | Дата введения: | 10.02.1979 | | Разработан: | В/ч 14262
| | Утверждён: | 15.03.1978 Штаб ГО СССР (235/11/809)
| | Нормативные ссылки: | |
                              
|