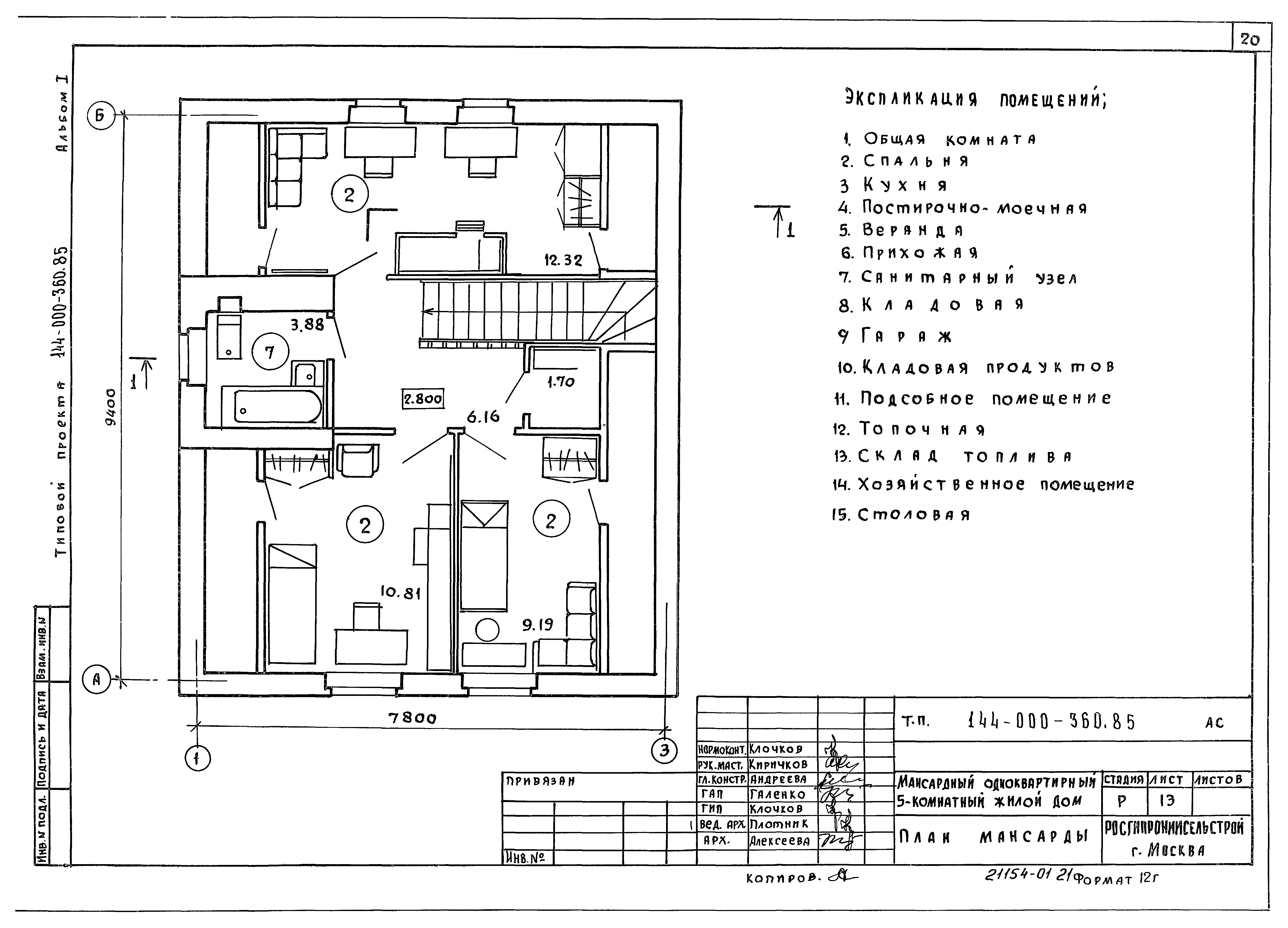
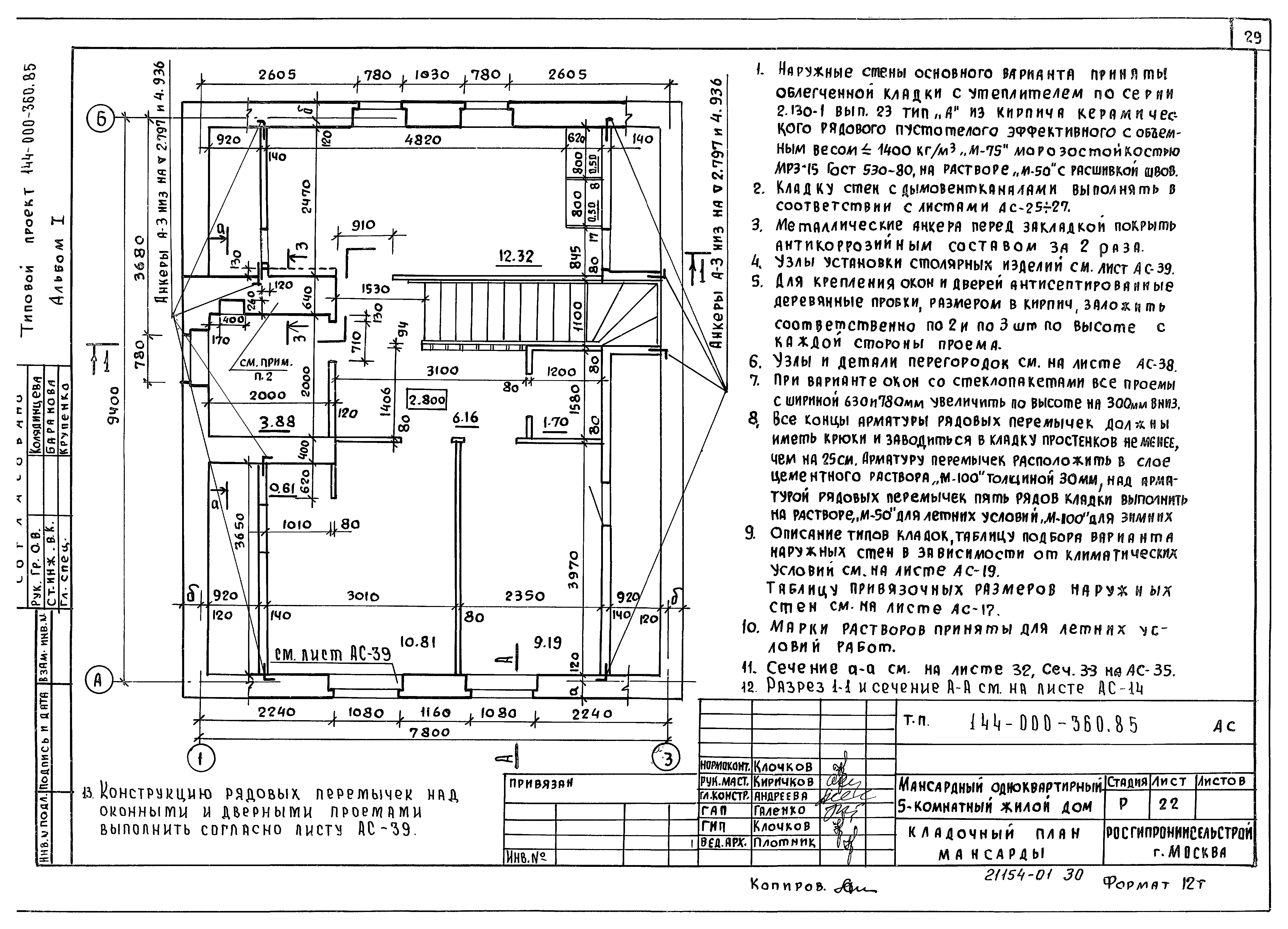
Скачать Типовой проект 144-000-360.85 Альбом I. Архитектурно-строительные решения; отопление и вентиляция; водопровод и канализация; газоснабжение; электрооборудование; связьДата актуализации: 01.01.2021
|
| Обозначение: | Типовой проект 144-000-360.85 |
| Обозначение англ: | 144-000-360.85 |
| Статус: | не определен законодательством |
| Название рус.: | Альбом I. Архитектурно-строительные решения; отопление и вентиляция; водопровод и канализация; газоснабжение; электрооборудование; связь |
| Дата добавления в базу: | 01.02.2020 |
| Дата актуализации: | 01.01.2021 |
| Дата введения: | 26.06.1985 |
| Дата окончания срока действия: | 30.06.2003 |
| Разработан: | Росгипрониисельстрой |
| Утверждён: | 01.06.1984 Госстрой РСФСР (Russian Federation Gosstroy 37) |

































































































