Скачать Прогрессивные технологические схемы разработки пластов на угольных шахтах. Часть II. Пояснительная запискаДата актуализации: 01.01.2021
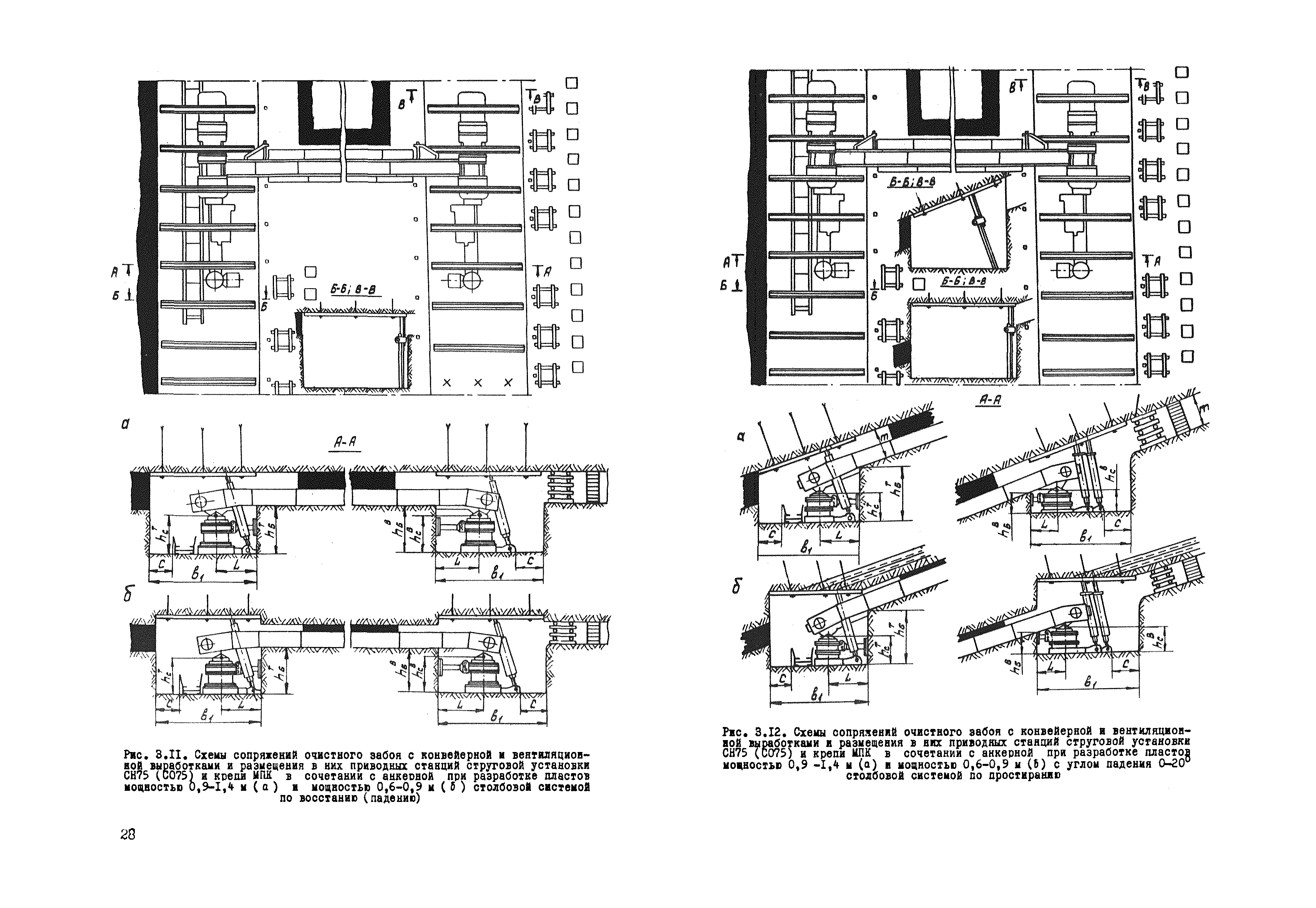
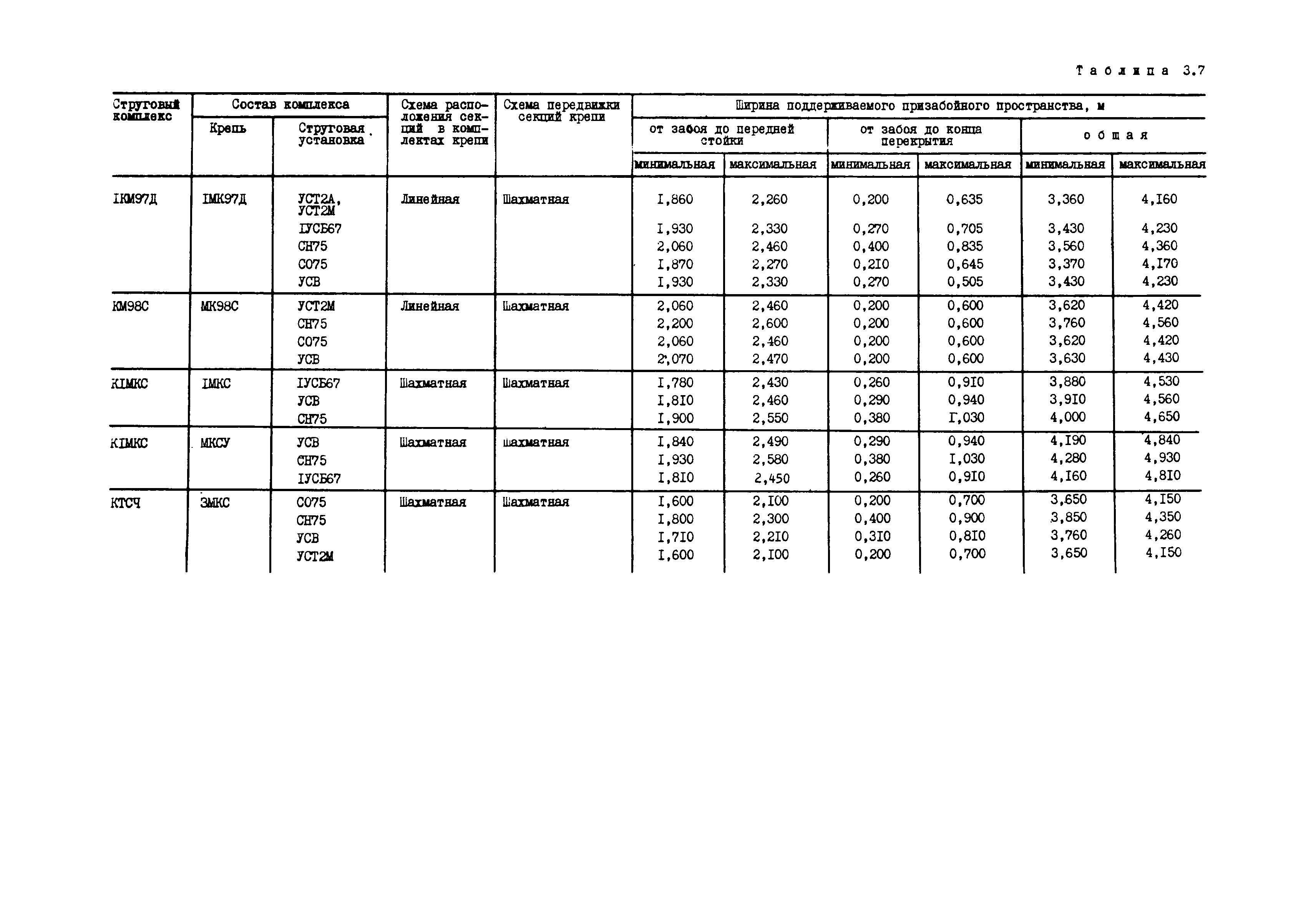
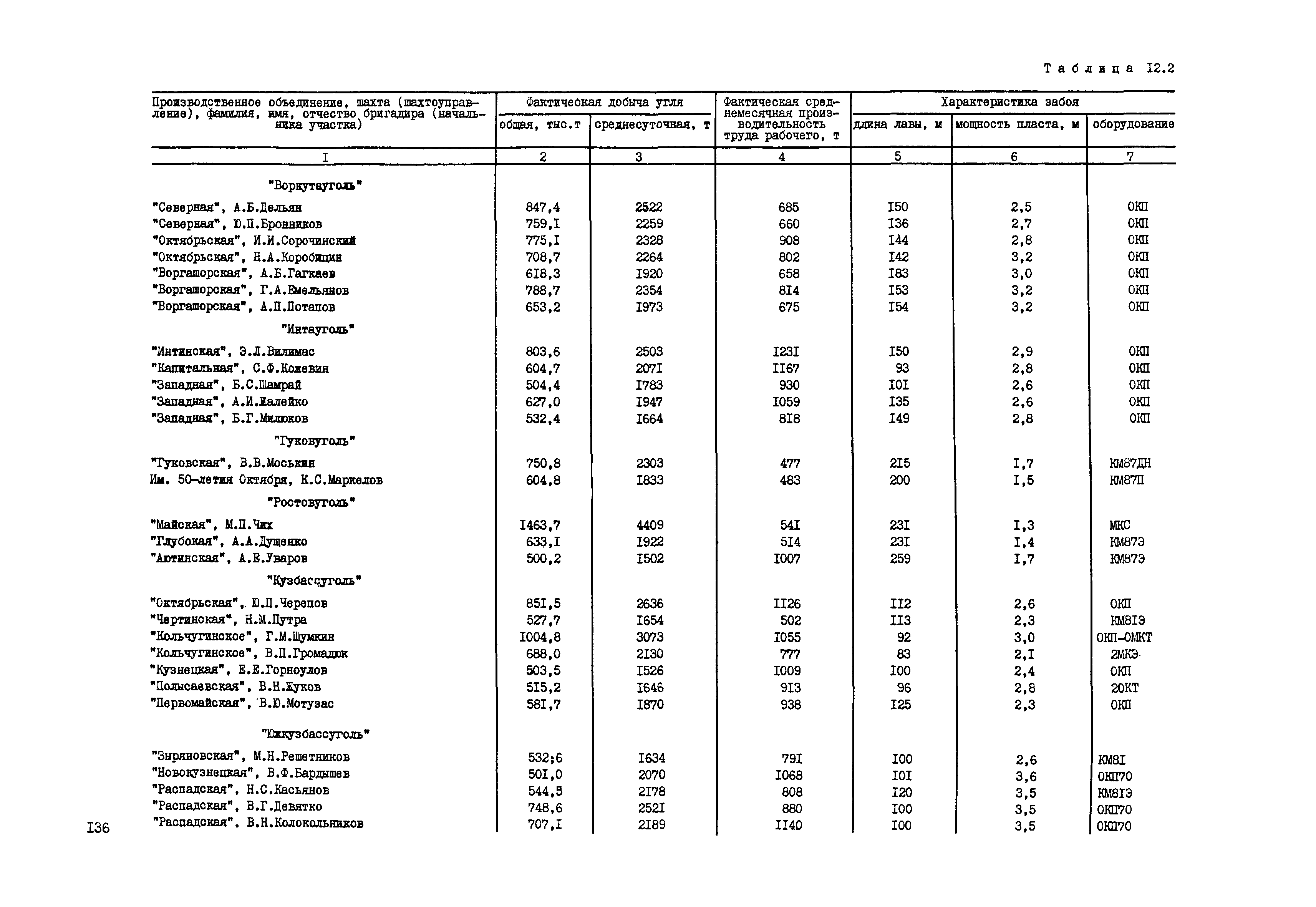
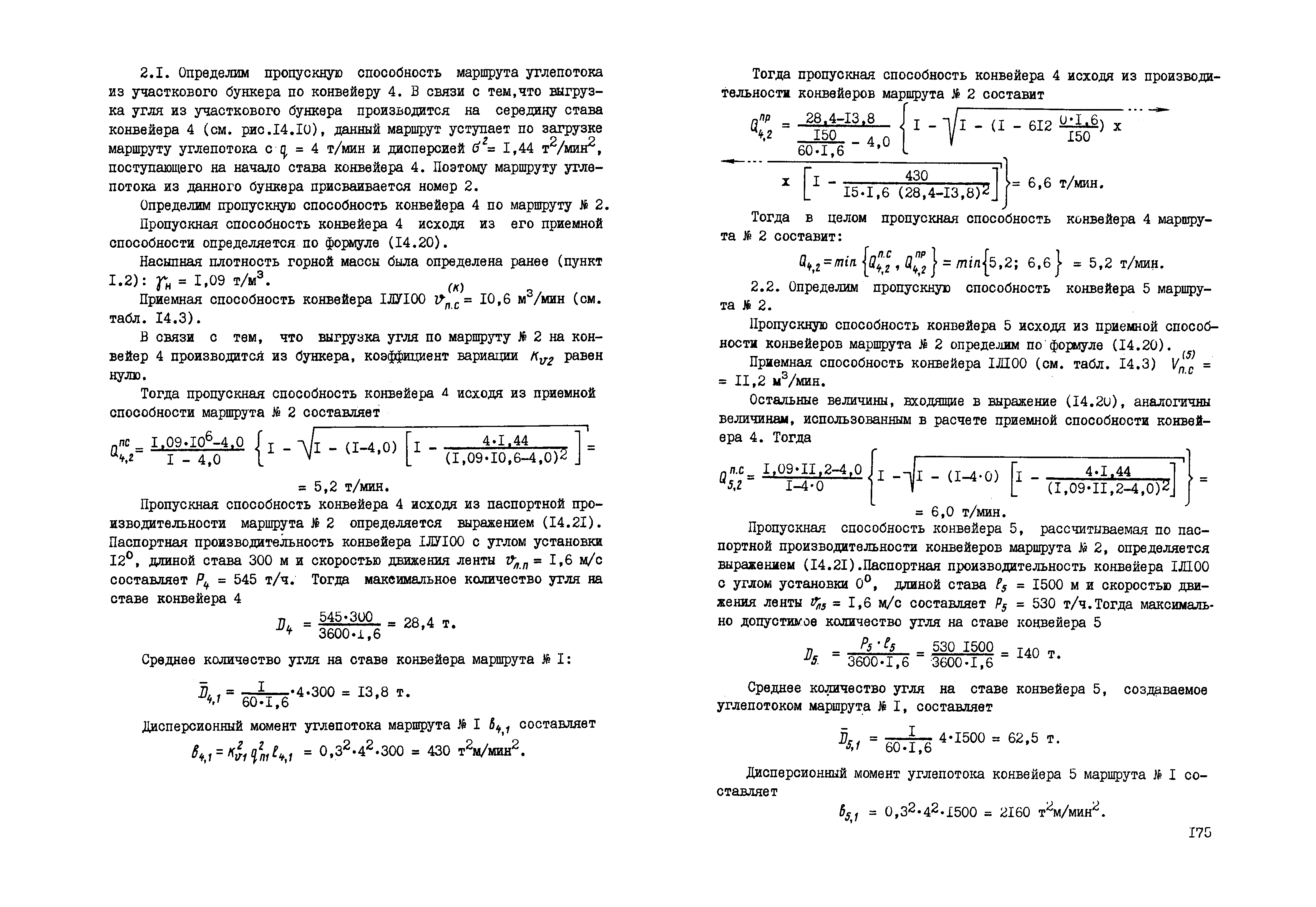
Прогрессивные технологические схемы разработки пластов на угольных шахтах. Часть II. Пояснительная записка| Статус: | справочные материалы, мп, тпр | | Название рус.: | Прогрессивные технологические схемы разработки пластов на угольных шахтах. Часть II. Пояснительная записка | | Дата добавления в базу: | 01.02.2020 | | Дата актуализации: | 01.01.2021 | | Область применения: | Технологические схемы предназначены для административно-технических руководителей и других должностных лиц действующих и строящихся шахт, а также для работников проектных, научно-исследовательских, учебных и других институтов и организаций. Содержат технические решения вопросов применения высокопроизводительной техники и технологии горных работ с оптимальными параметрами для всех горно-геологических условий на основе использования новейших достижений горной науки, техники, научной организации труда и опыта работы передовых шахт, участков и бригад | | Оглавление: | Введение 1. Современное состояние и пути совершенствования технологии подземной угледобычи 1.1. Геологические и горнотехнические условия разработки 1.2. Развитие технологии подземной добычи угля 1.3. Пути совершенствования технологии очистных работ 1.4. Пути совершенствования технологии подготовительных работ 2. Основные принципы и методические положения разработки технологических схем очистных и подготовительных работ 2.1. Основные принципы 2.2. Горно-геологические условия 2.3. Способы подготовки 2.4. Системы разработки 2.5. Способы управления кровлей 2.6. Технология выемки 2.7. Средства механизации 2.8. Крепь очистного и подготовительного забоев 2.9. Параметры способов подготовки и систем разработки 2.10. Нагрузка на очистной забой 2.11. Безопасность работ 2.12. Организация и режим работы 3. Средства механизации очистных работ 3.1. Механизированная крепь комбайновых комплексов 3.2. Очистные угольные комбайны 3.3. Струговые комплексы и струговые установки 3.4. Скребковые забойные конвейеры 3.5. Индивидуальная крепь 3.6. Основные средства механизации вспомогательных работ в очистных забоях 4. Участковый транспорт 4.1. Конвейерные линии 4.2. Узлы сопряжения лавы с конвейерной линией 4.3. Узлы сопряжения горизонтальных и наклонных конвейерных линий (перегрузочные пункты) 4.4. Погрузочные и перегрузочные пункты на главном штреке 4.5. Транспорт угля, горной массы или породы от подготовительных забоев 4.6. Вспомогательный транспорт 5. Технические мероприятия по повышению эффективности разработки угольных пластов в выемочном поле 5.1. Защита выработок от воды 5.2. Ослабление труднообрушаемых пород кровли 5.3. Улучшение слеживаемости обрушенных пород для последовательной выемки наклонных слоев без оставления межслоевых пачек угля 5.4. Охрана, крепление подготовительных выработок и особенности разработки угольных пластов на глубоких горизонтах шахт 5.5. Закладка выработанного пространства 5.6. Разработка пологих пластов угля в сложных горно-геологических условиях с применением механизированных комплексов 5.7. Составление картограмм - плановых графиков технологических и ремонтных работ в выемочном поле 5.8. Обеспечение качества угля при разработке пластов 6. Подготовительные работы 6.1. Унификация сечений подготовительных выработок 6.2. Выбор рациональных вариантов проходческого оборудования 6.3. Средства механизации вспомогательных работ в подготовительных забоях 6.4. Методика расчета рациональных параметров подготовки очистного фронта 6.5. Выбор рационального способа проведения выработок смешанным забоем 7. Вопросы вентиляции, борьбы с газом, пылью, внезапными выбросами угля и газа, самовозгоранием углей 7.1. Аэродинамические параметры вентиляционных схем 7.2. Дегазация шахт 7.3. Автоматическая газовая защита 7.4. Требования к разработке угольных пластов, склонных к внезапным выбросам угля и газа 7.5. Мероприятия по борьбе с пылью 7.6. Основные мероприятия, направленные на уменьшение пожарной опасности шахт 8. Электроснабжение очистных и подготовительных работ 8.1. Общие положения 8.2. Методика расчета шахтных участковых электрических сетей 9. Технологическая связь и сигнализация 10. Энергоснабжение сжатым воздухом 11. Производственная эстетика и культура труда на подземных участках угольных шахт 12. Опыт работы передовых бригад, обеспечивающих нагрузку на очистной забой 1000 т/сут и более 13. Научная организация труда в комплексно-механизированных очистных забоях 13.1. Общие положения 13.2. Организация работ в очистном забое, оборудованном механизированным комплексом (при однокомбайновой выемке угля) 13.3. Организация работ в очистном забое, оборудованном механизированным струговым комплексом 14. Методика расчета среднесуточной нагрузки на очистной забой 14.1. Расчет нагрузки на очистной забой при однокомбайновой выемке 14.2. Расчет нагрузки на очистной забой при работе двух комбайнов на одну конвейерную линию 14.3. Расчет нагрузки на очистной забой, оборудованный струговой установкой 14.4. Расчет нагрузки на очистной забой, оборудованный скрепероструготаранной установкой 14.5. Расчет коэффициента уменьшения нагрузки при работе очистного забоя в зоне горно-геологических нарушений 14.6. Проверка нагрузки на очистной забой по газовому фактору для действующих шахт 14.7. Проверка нагрузки на очистной забой при проектировании и реконструкции угольных шахт 14.8. Инструкция по расчету нормативов средней нагрузки на очистной .забой при различных способах механизации по производственному объединению, бассейну и отрасли 14.9. Определение коэффициента машинного времени работы комбайна с помощью устройства УПМ2Р 15. Мероприятия по обеспечению надежности и ритмичности работы очистных забоев и шахты 15.1. Прогноз ритмичности работы очистных забоев и шахт 15.2. Расчет максимально допустимой средней длительности перерывов в поступлении углепотоков из очистных забоев 15.3. Нормативы резерва очистного фронта 16. Расчет экономической эффективности применения технологических схем 17. Методические указания по внедрению технологических схем Заключение Приложение 1. Эксплуатационные потери угля в ведрах Приложение 2. Удельные объемы проведения Подготовительных выработок | | Разработан: | ИГД им. А.А. Скочинского
| | Утверждён: | 19.05.1979 Министерство угольной промышленности СССР (USSR Ministry of the Coal Industry )
| | Издан: | ИГД им. А.А. Скочинского (1979 г. )
| | Нормативные ссылки: | |
                                                                                                                                                                                                                                                      
|