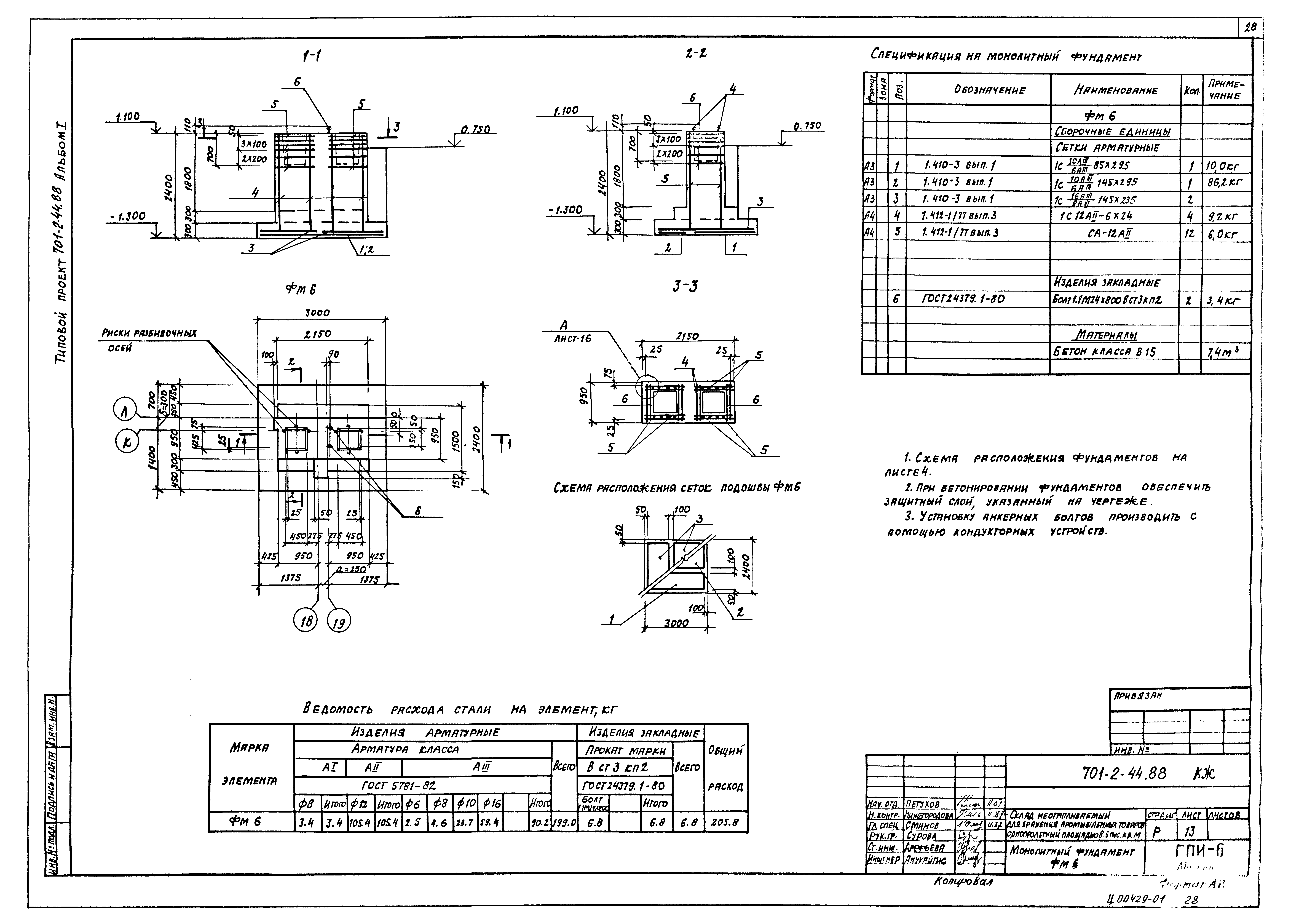
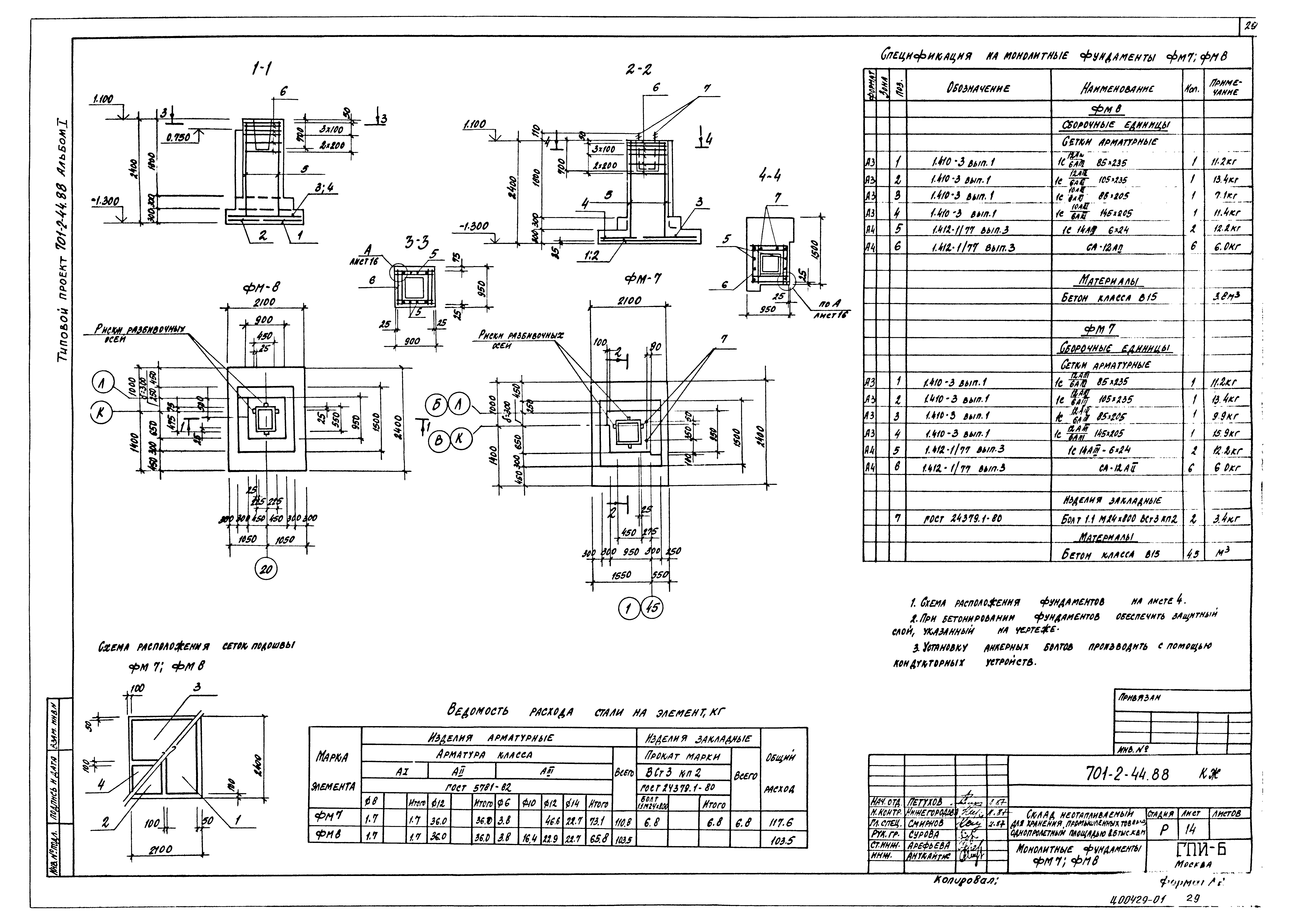
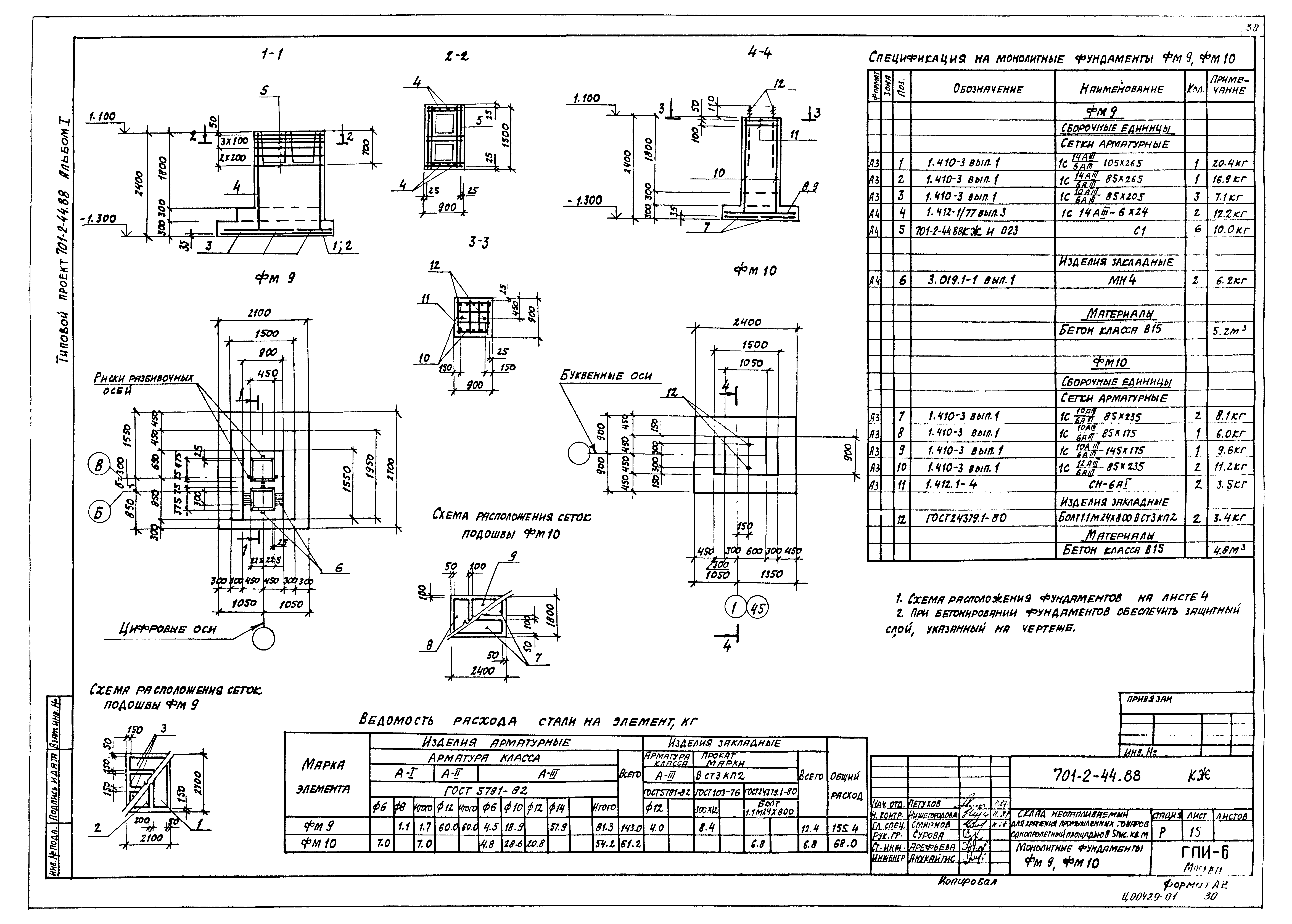
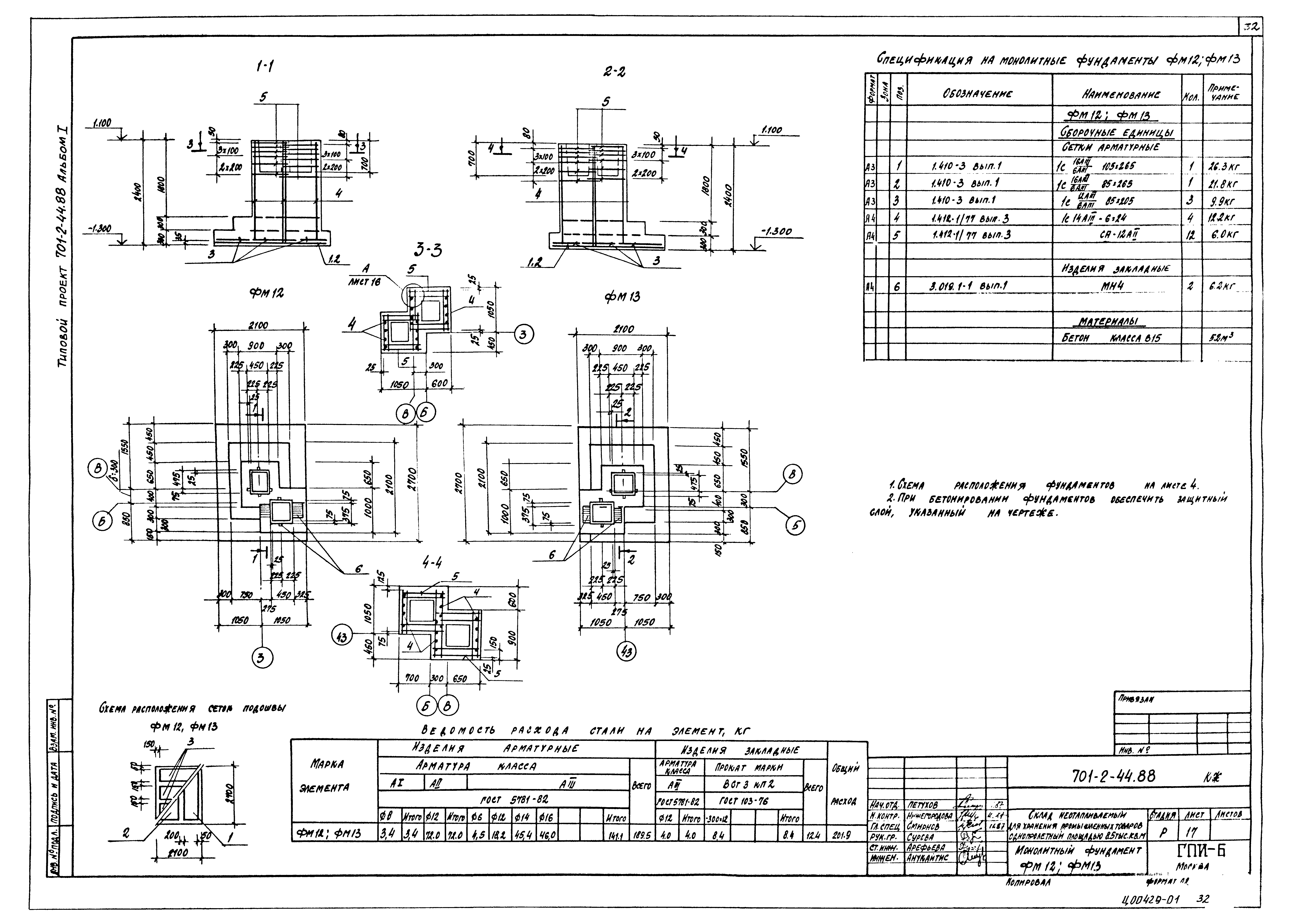
Скачать Типовой проект 701-2-44.88 Альбом I. Пояснительная записка. Архитектурные решения. Конструкции железобетонные. Конструкции металлическиеДата актуализации: 01.01.2021
|
| Обозначение: | Типовой проект 701-2-44.88 |
| Обозначение англ: | 701-2-44.88 |
| Статус: | не определен законодательством |
| Название рус.: | Альбом I. Пояснительная записка. Архитектурные решения. Конструкции железобетонные. Конструкции металлические |
| Дата добавления в базу: | 01.02.2020 |
| Дата актуализации: | 01.01.2021 |
| Дата введения: | 31.12.1987 |
| Дата окончания срока действия: | 30.06.2003 |
| Разработан: | ГГПИ-6 Минсевзапстроя СССР |
| Утверждён: | 31.12.1987 Госкомрезерва СССР |
| Заменяет собой: |
|






























































