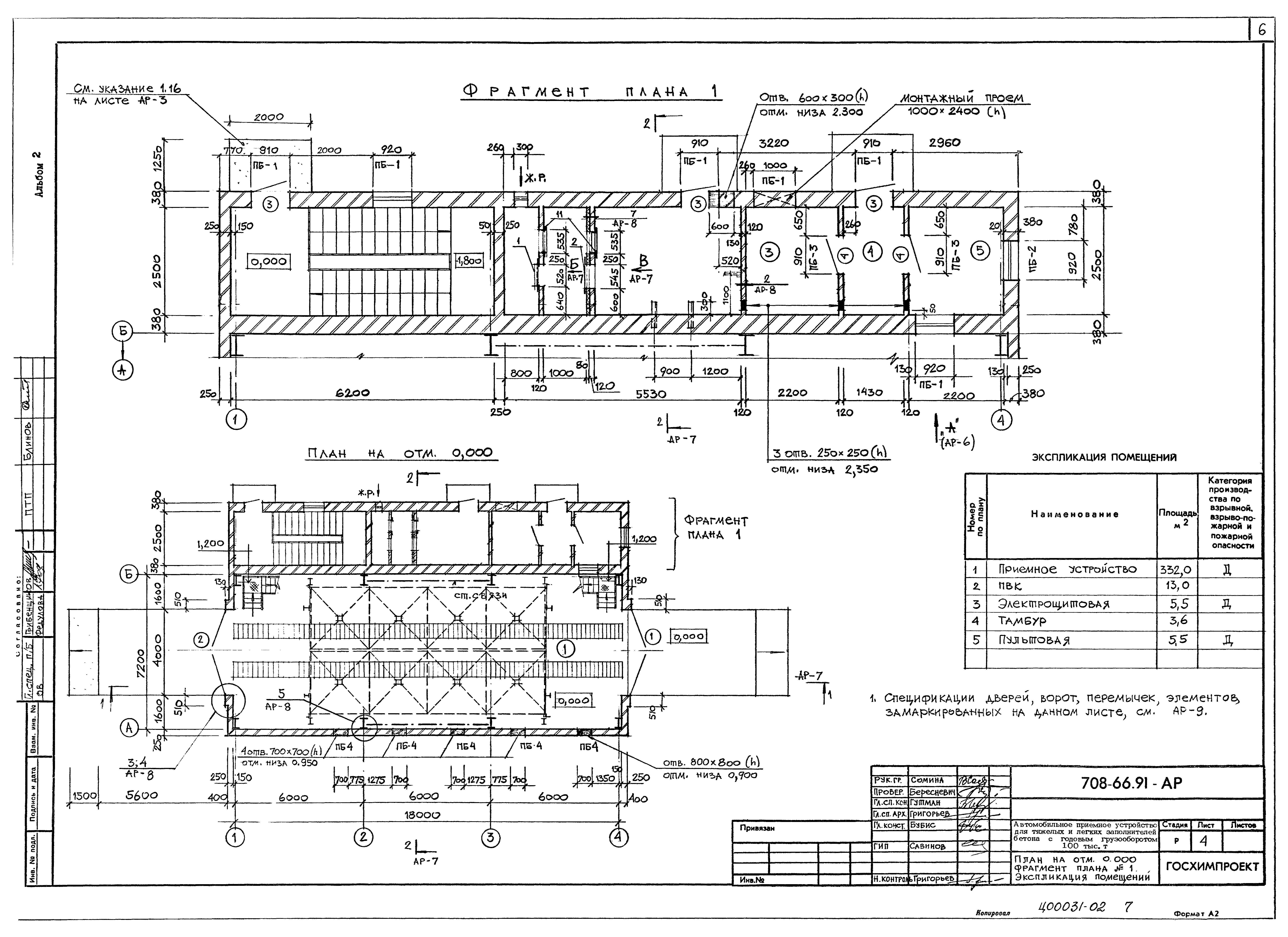
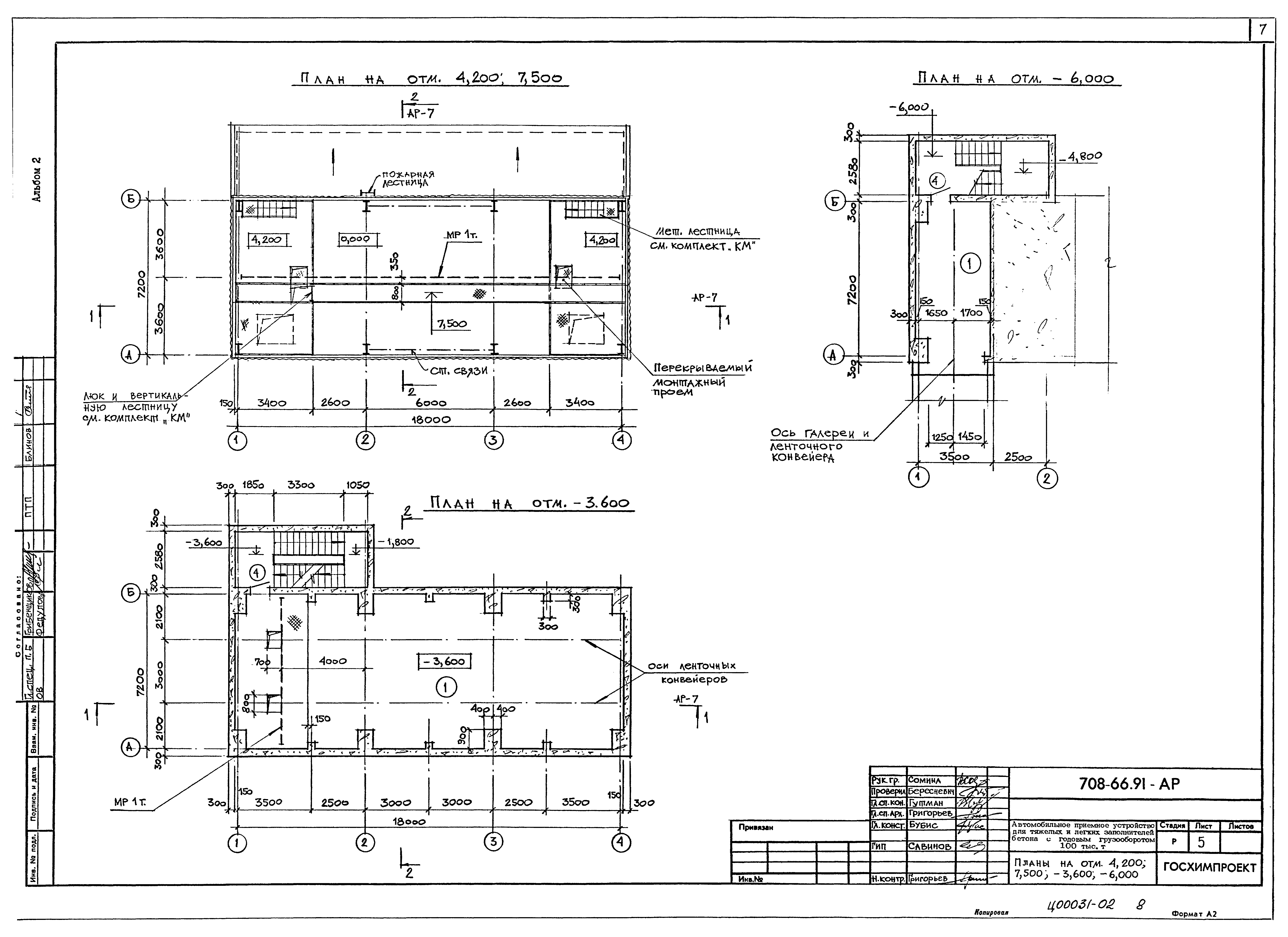
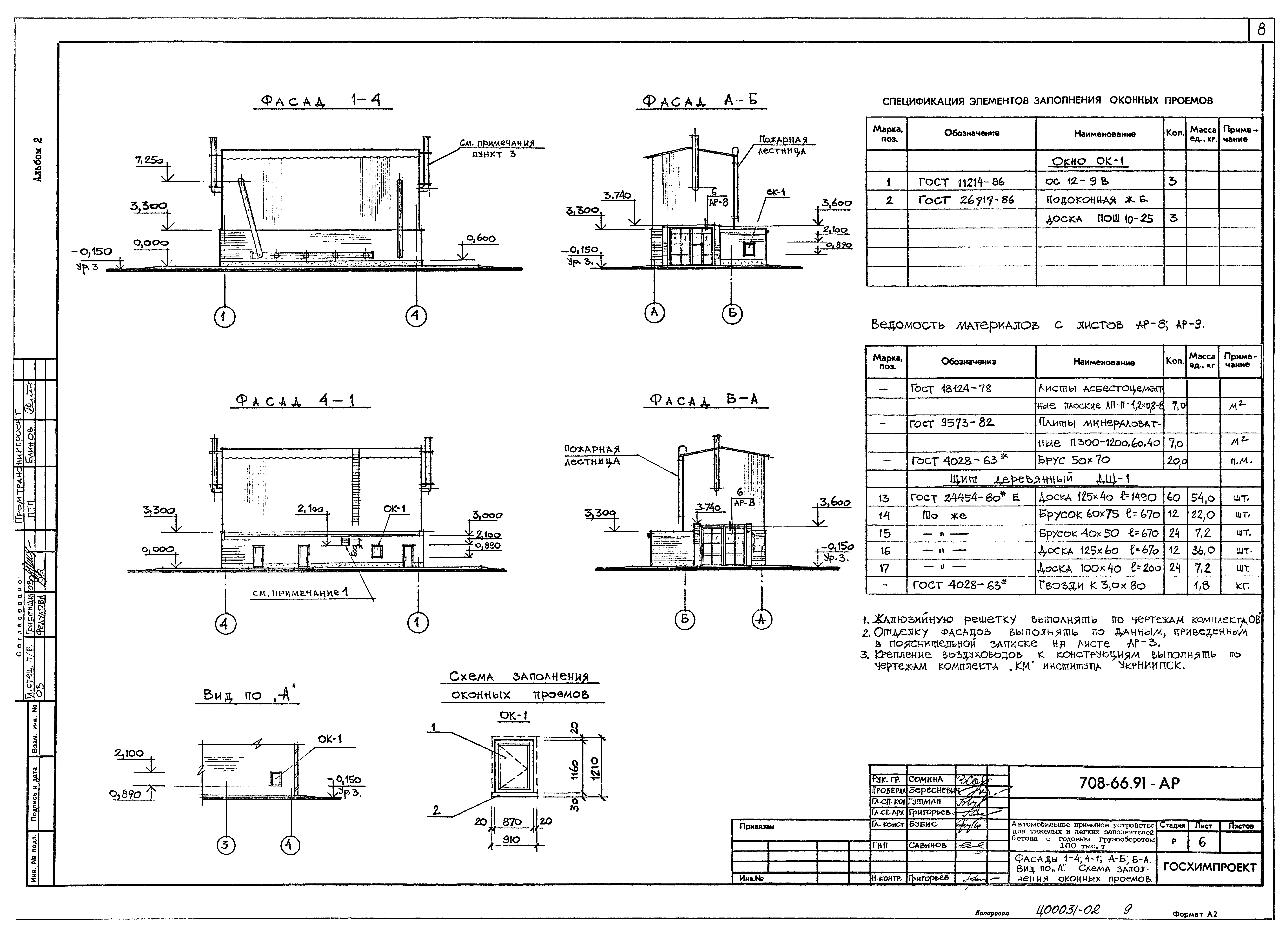
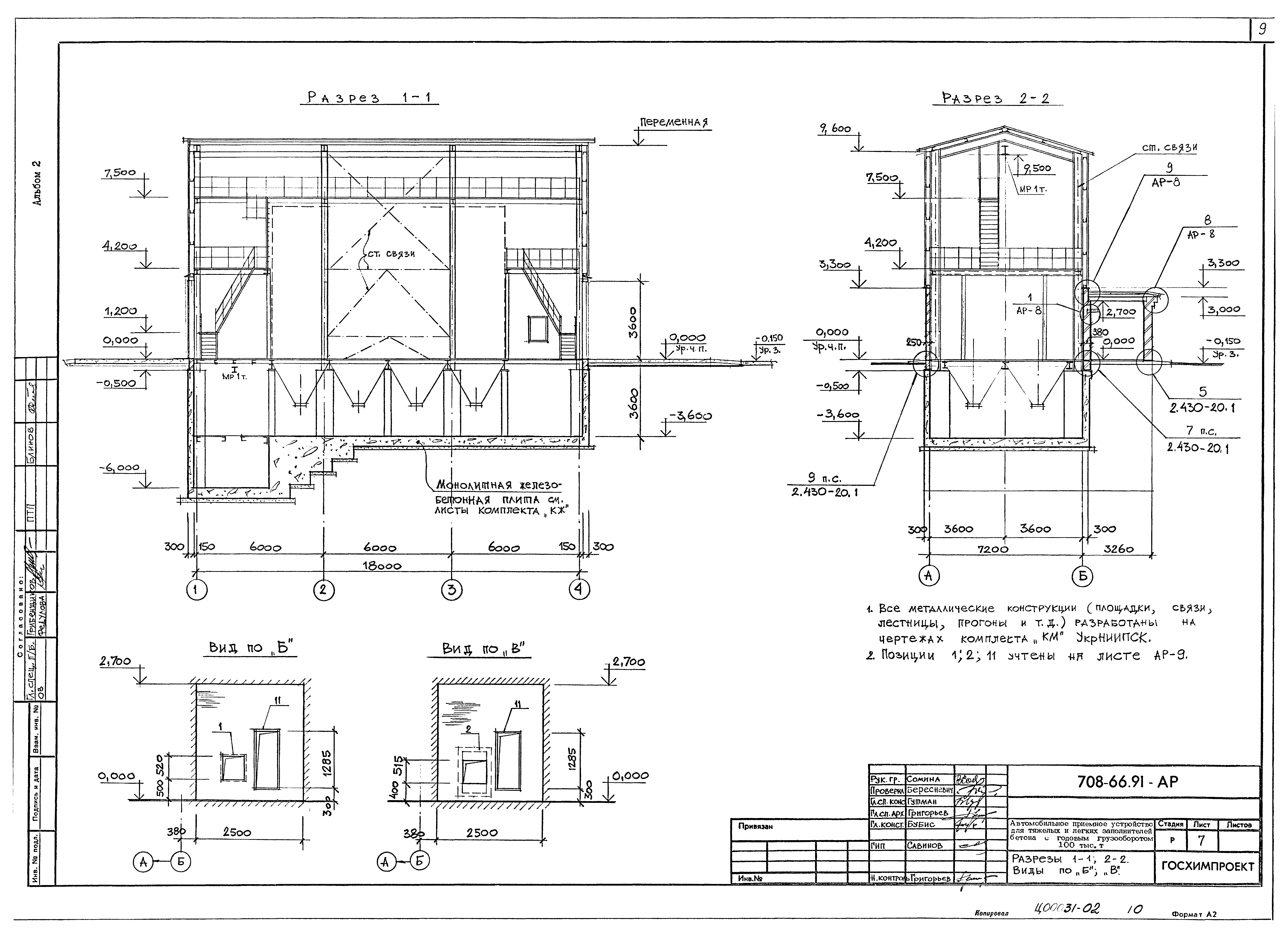
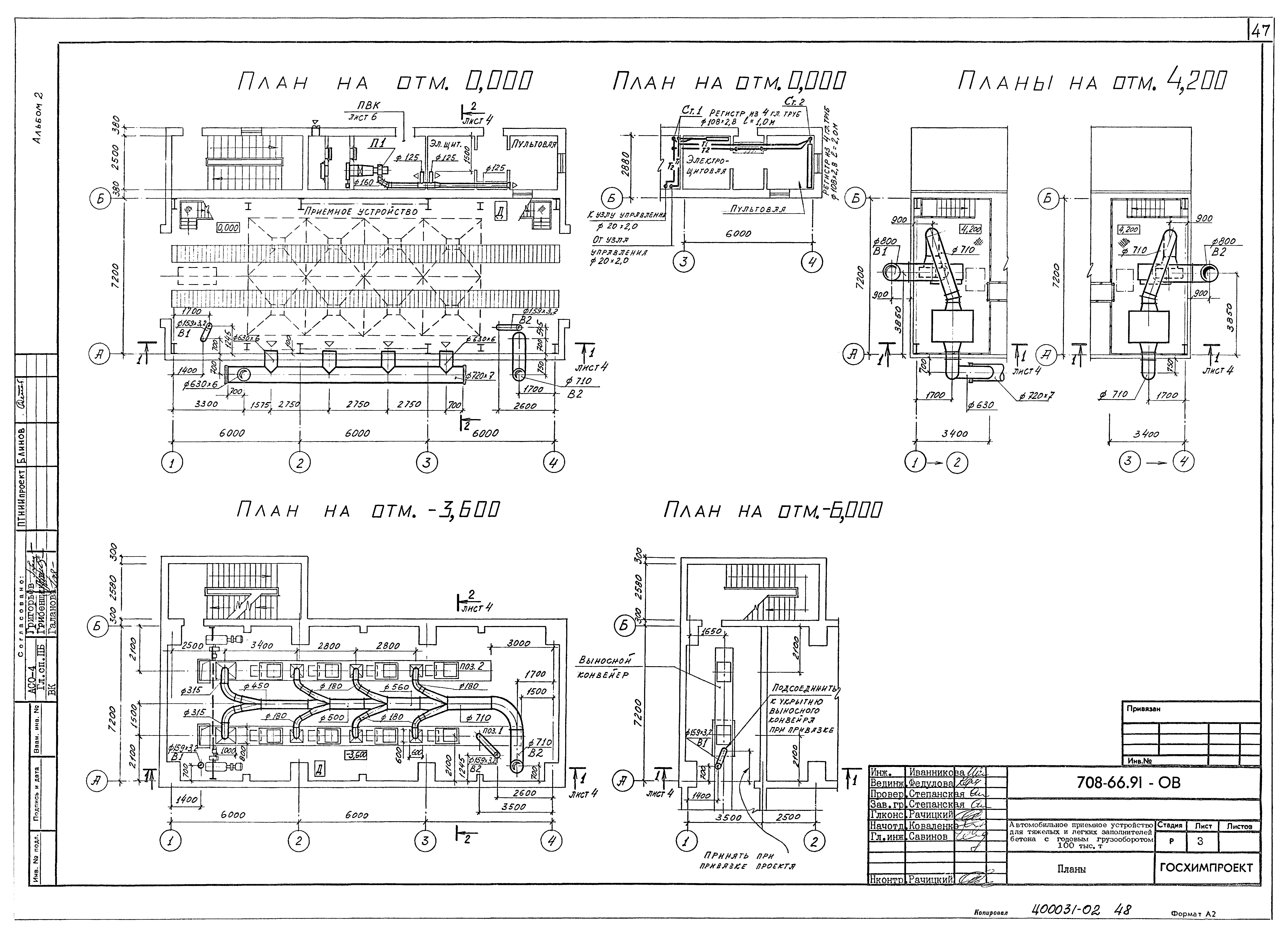
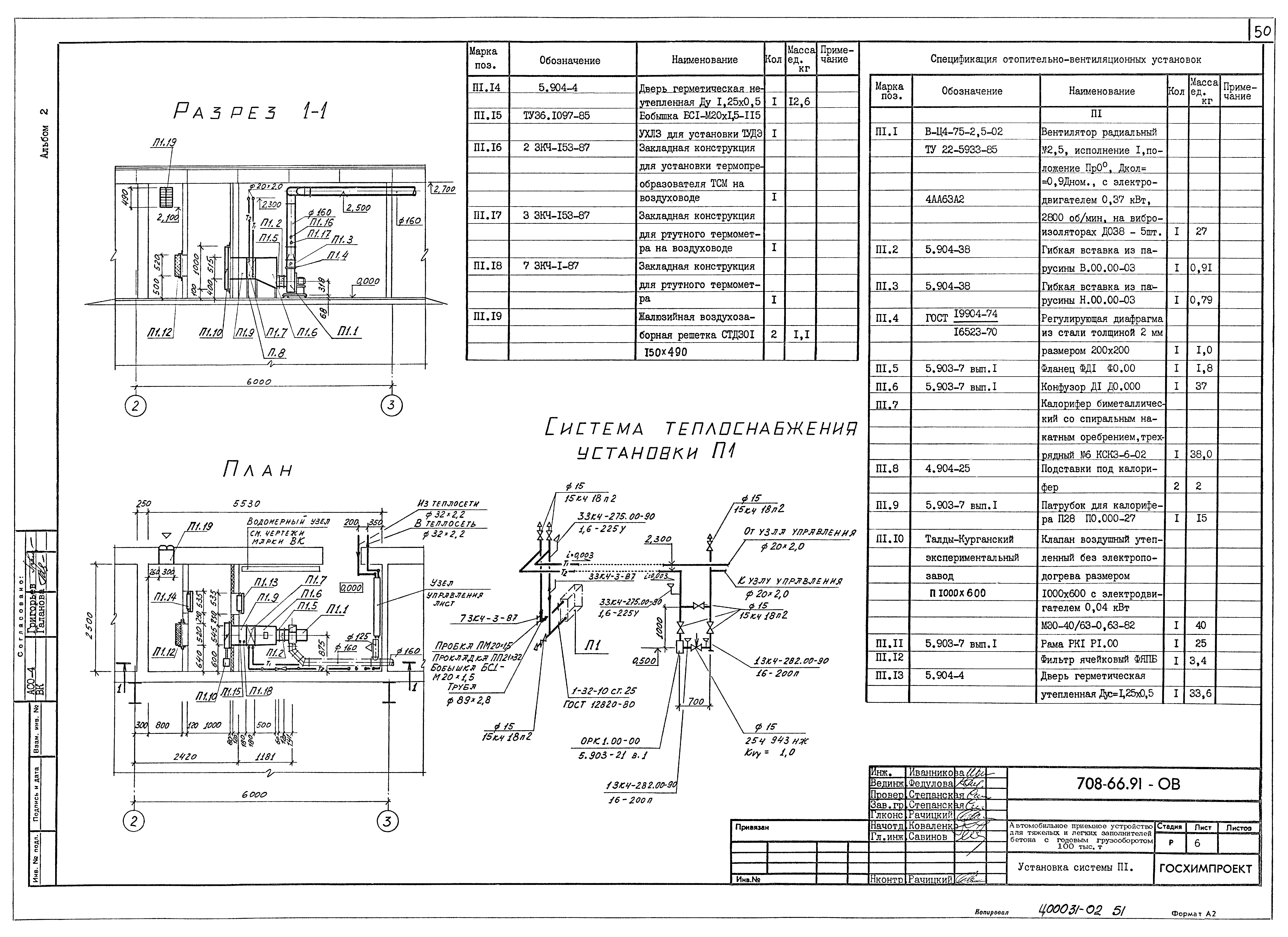
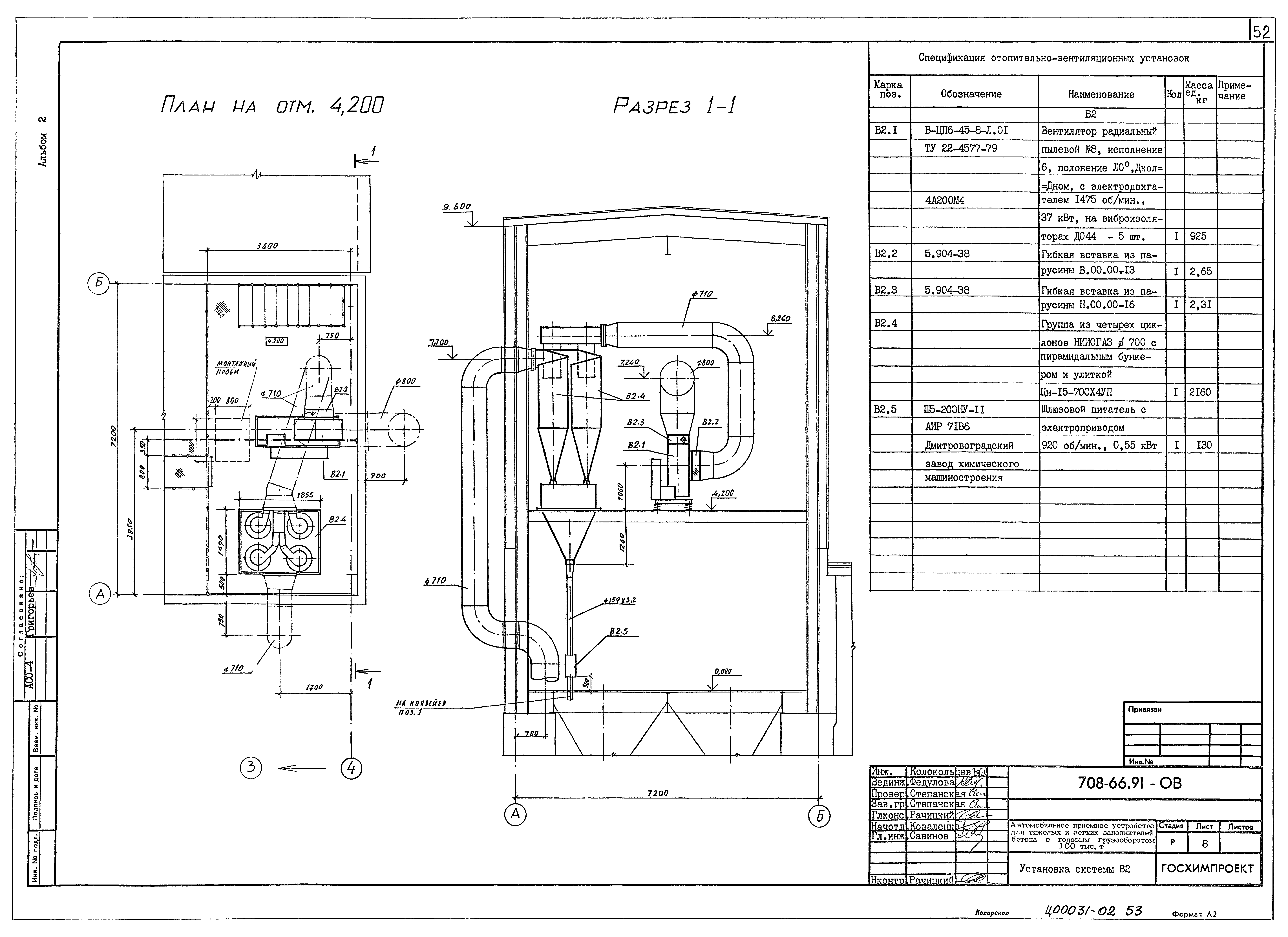
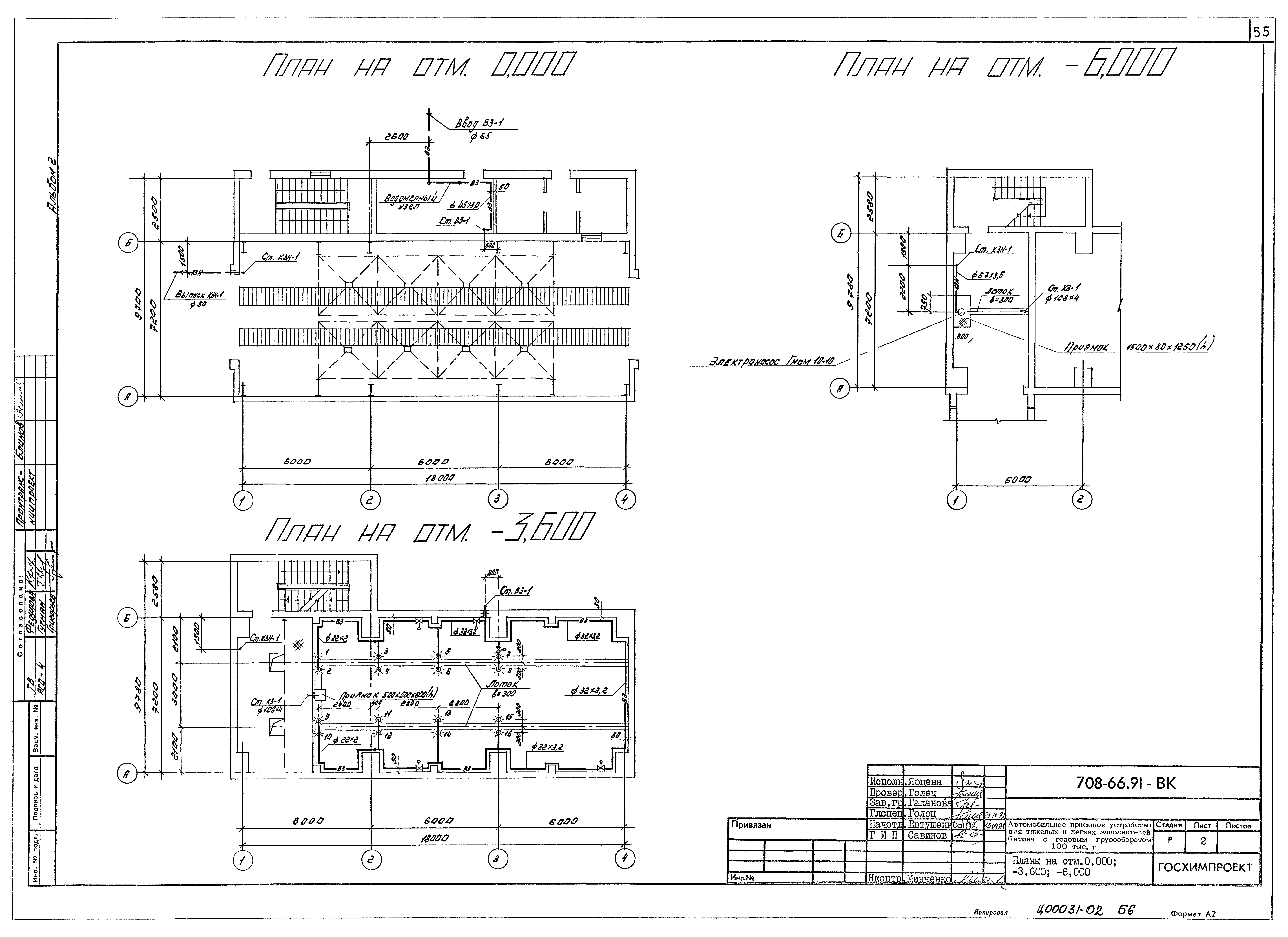
Скачать Типовой проект 708-66.91 Альбом 2. Архитектурные решения. Конструкции железобетонные. Строительные изделия. Отопление и вентиляция. Водопровод и канализацияДата актуализации: 01.01.2021
|
| Обозначение: | Типовой проект 708-66.91 |
| Обозначение англ: | 708-66.91 |
| Статус: | не определен законодательством |
| Название рус.: | Альбом 2. Архитектурные решения. Конструкции железобетонные. Строительные изделия. Отопление и вентиляция. Водопровод и канализация |
| Дата добавления в базу: | 01.02.2020 |
| Дата актуализации: | 01.01.2021 |
| Дата введения: | 01.12.1992 |
| Дата окончания срока действия: | 30.06.2003 |
| Разработан: | Госхимпроект Промтрансниипроект Укрниипроектстальконструкция |
| Утверждён: | 01.12.1992 Промтрансниипроект (Promtransniiproject 4-АО) |



























































