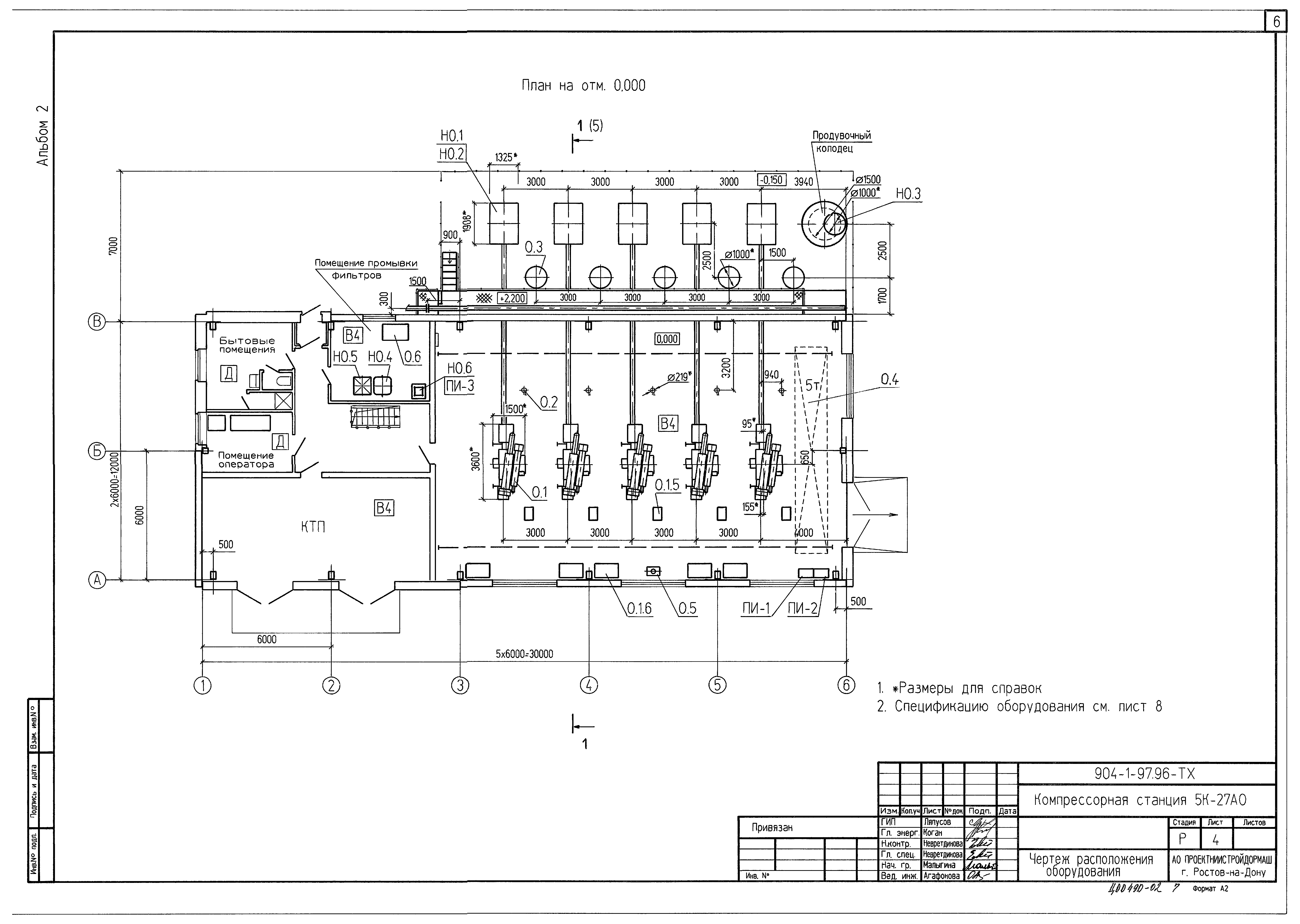
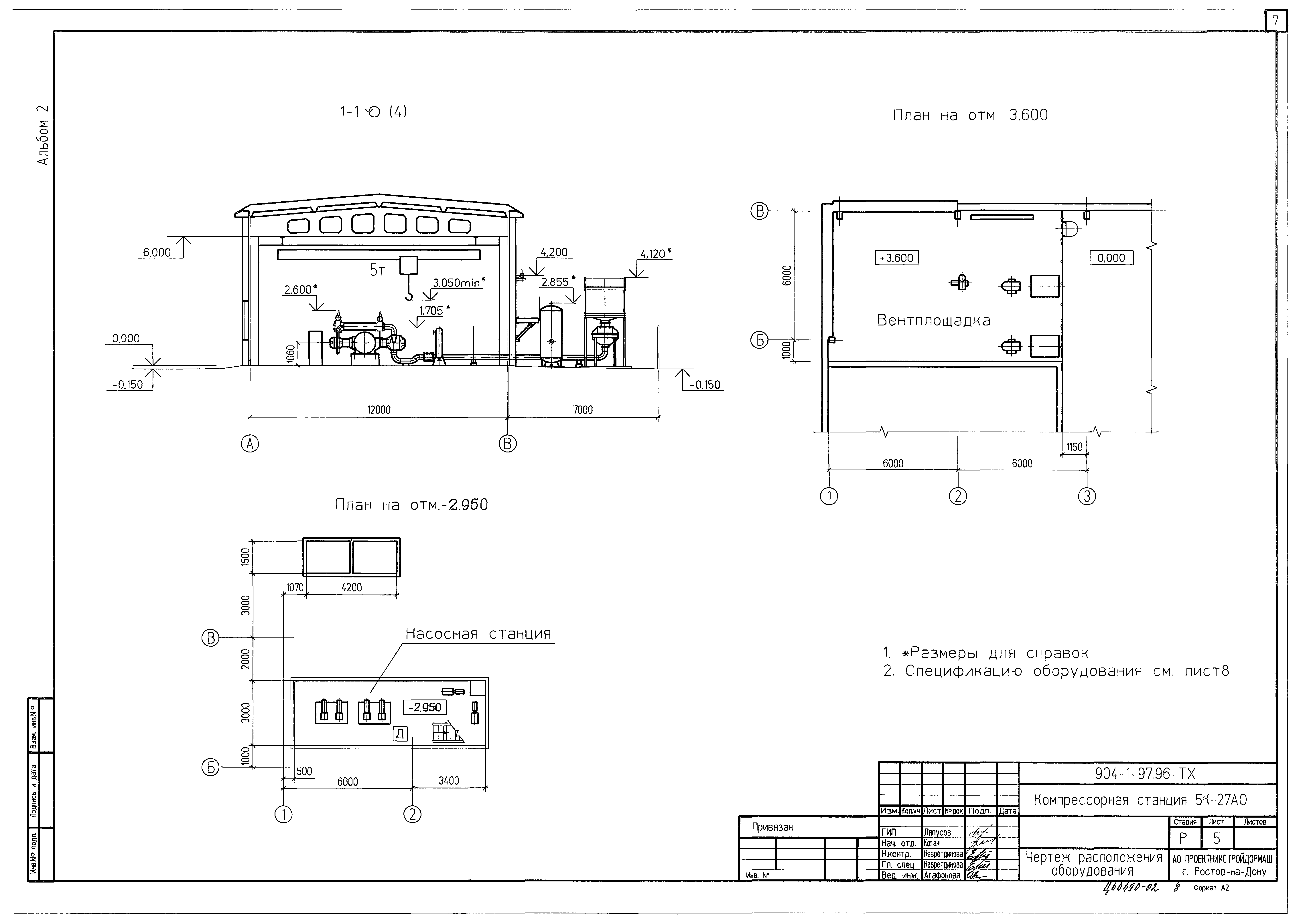
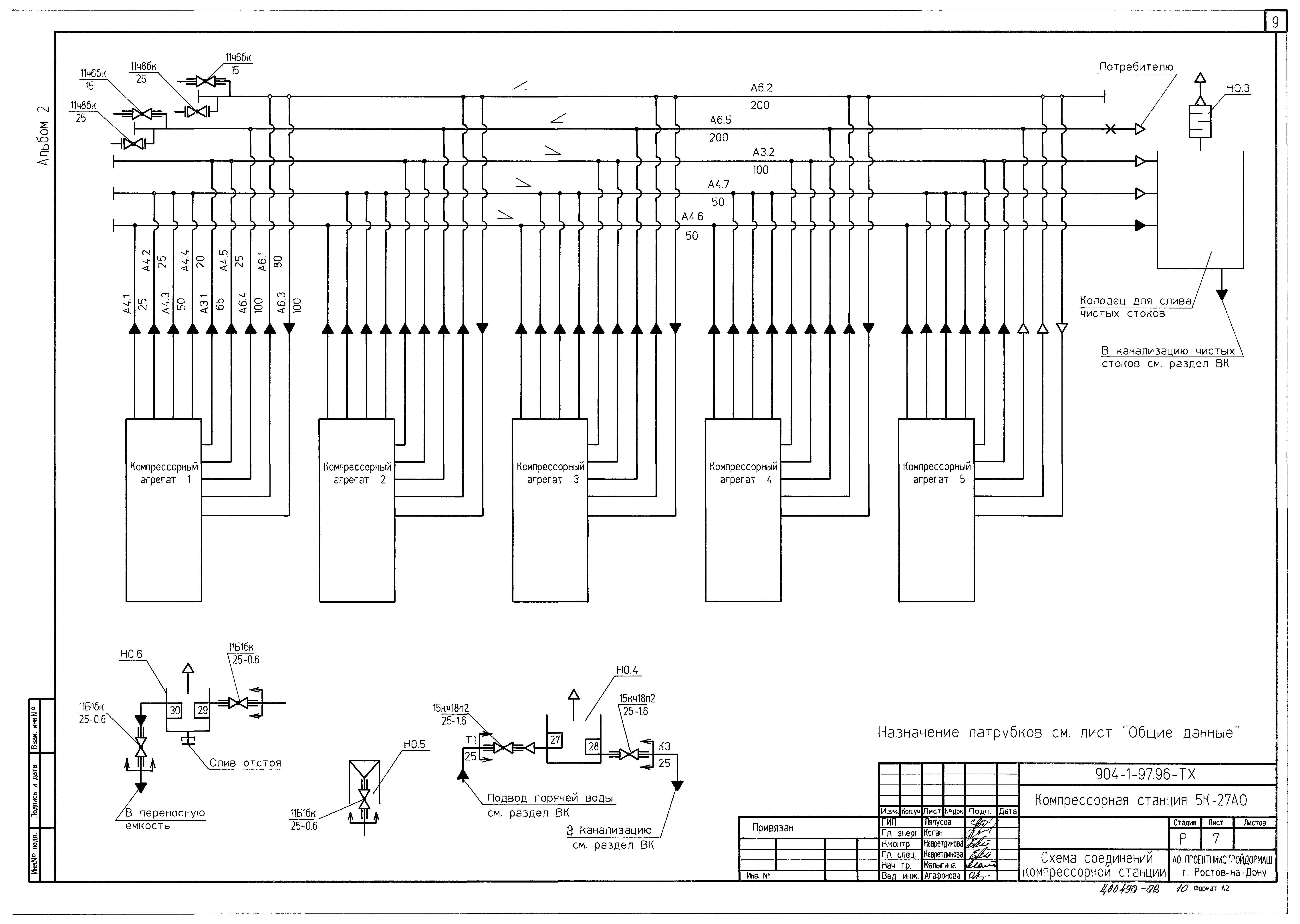
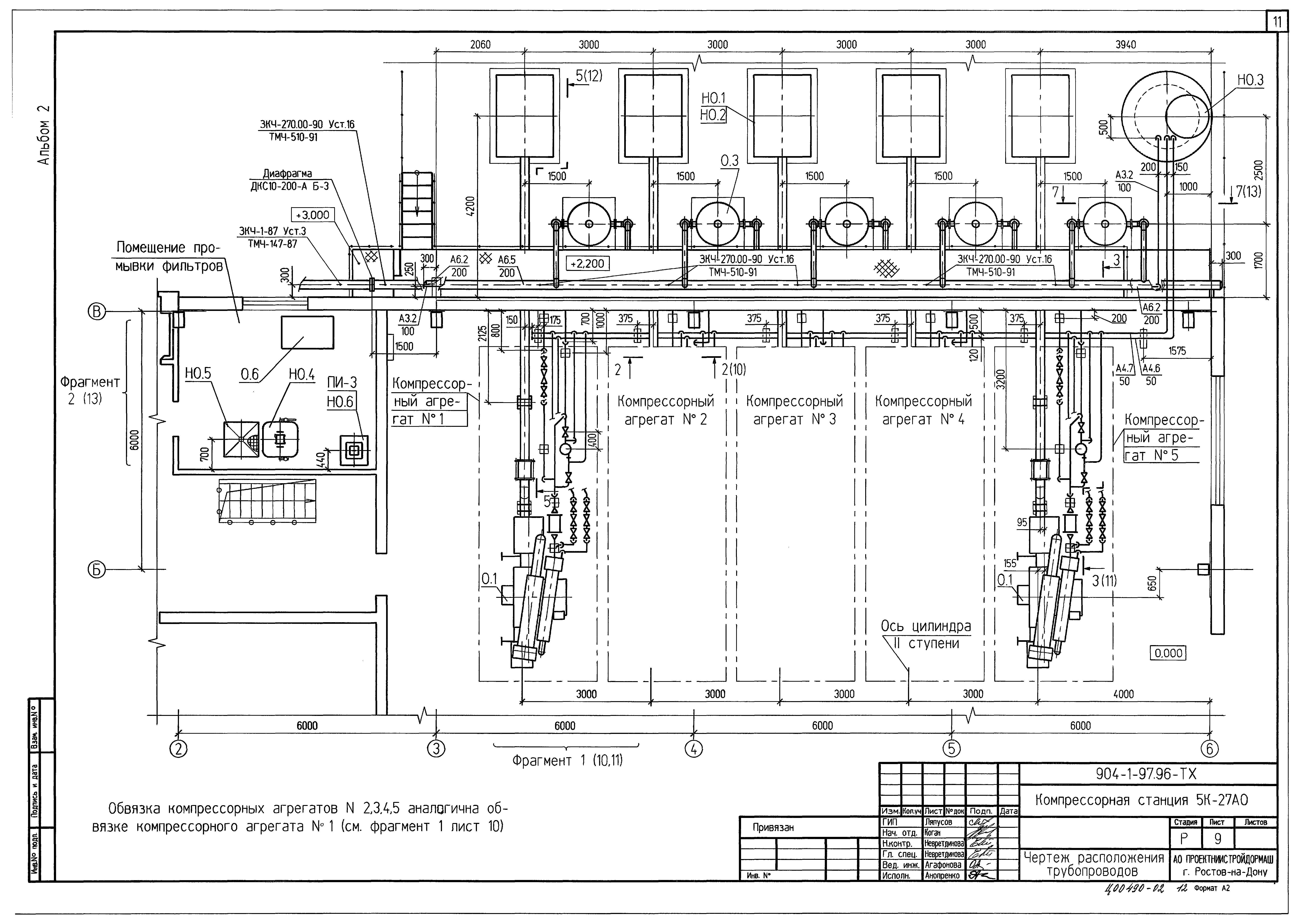
Скачать Типовой проект 904-1-97.96 Альбом 2. Технология производстваДата актуализации: 01.01.2021
|
| Обозначение: | Типовой проект 904-1-97.96 |
| Обозначение англ: | 904-1-97.96 |
| Статус: | не определен законодательством |
| Название рус.: | Альбом 2. Технология производства |
| Дата добавления в базу: | 01.02.2020 |
| Дата актуализации: | 01.01.2021 |
| Дата введения: | 04.12.1996 |
| Дата окончания срока действия: | 30.06.2003 |
| Разработан: | Проектниистройдормаш |
| Утверждён: | 04.12.1996 АООТ Проектниистройдормаш (66-п) |






























