Скачать Принципиальные технологические схемы разработки крутых пластов, подверженных внезапным выбросам угля и газаДата актуализации: 01.01.2021
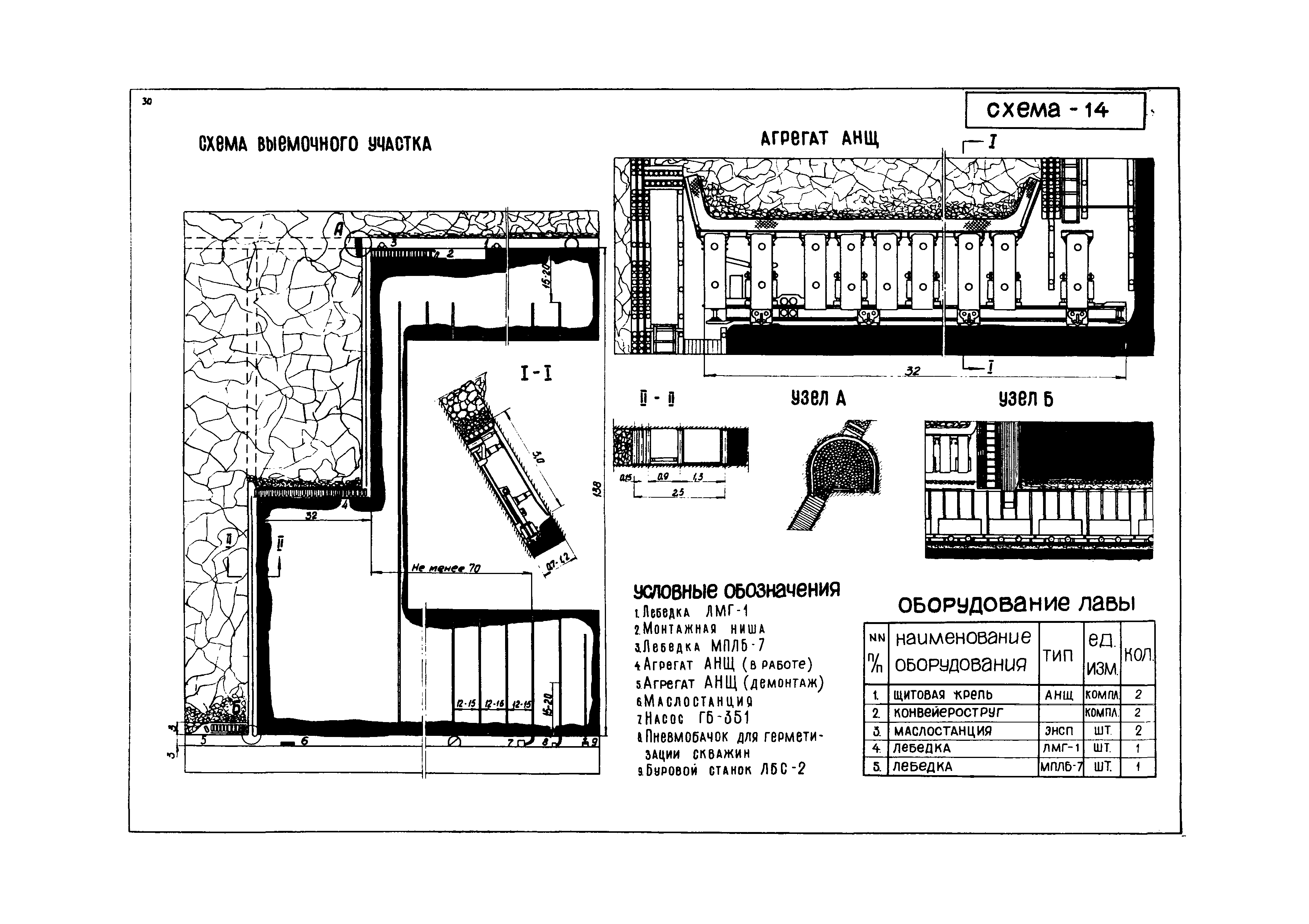
Принципиальные технологические схемы разработки крутых пластов, подверженных внезапным выбросам угля и газа| Статус: | справочные материалы, мп, тпр | | Название рус.: | Принципиальные технологические схемы разработки крутых пластов, подверженных внезапным выбросам угля и газа | | Дата добавления в базу: | 01.02.2020 | | Дата актуализации: | 01.01.2021 | | Область применения: | В альбоме приведены варианты систем разработки, принципиальные схемы технологии и механизации выемки угля с учетом серийного и находящегося в разработке оборудования. Альбом может служить пособием для инженерно-технических работников угольных шахт при определении наиболее целесообразных технологических решений и выборе средств механизации горных работ для конкретных горногеологических условий. Альбом может быть использован институтами, проектными конторами и проектно-конструкторскими группами шахт, а также студентами и преподавателями горных вузов и техникумов. | | Оглавление: | Общие положения по применению технологических схем Проветривание очистных забоев Дегазация при очистной выемке Мероприятия по борьбе с угольной пылью Энергоснабжение участков Организация труда в очистных забоях Варианты группирования горных выработок Очередность отработки и группирования пластов Схема отработки защитных пластов Технологическая схема отработки весьма тонкого защитного пласта установкой саморегулирующихся стругов Схема подрезки выбросоопасного пласта канатной пилой Использование опережающей отработки защитных пластов Противовыбросные мероприятия Проветривание очистных забоев Расстановка пневмоприемников на участке Агрегат АЩ Агрегат АНЩ Гидрофицированная крепь КГД Гидрофицированная крепь "Днепр" Гидрофицированная крепь КДЗ Посадочная крепь "Спутник-К" Машинная лава с управлением кровлей удержанием на кострах Машинная лава с управлением кровлей обрушением на тумбы Машинная лава с управлением кровлей обрушением на органную крепь Машинная лава с управлением кровлей плавным опусканием Машинная лава с управлением кровлей сплошной закладкой Безмагазинная схема очистного забоя с управлением кровлей удержанием на кострах Безмагазинная схема очистного забоя с управлением кровлей обрушением на тумбы ОКУ Безмагазинная схема очистного забоя с управлением кровлей плавным опусканием Заводка комбайна в отставную нишу Потолкоуступная форма забоя с управлением кровлей удержанием на кострах Потолкоуступная форма забоя с управлением плавным опусканием Потолкоуступная форма забоя с управлением кровлей обрушением на тумбы ОКУ Потолкоуступная форма забоя с управлением кровлей с полным обрушением на огранку Потолкоуступная форма забоя с управлением кровлей частичной закладкой Потолкоуступная форма забоя с управлением кровлей полной закладкой Примерный расчет организации работ для выемки угля крутого пласта, опасного по внезапным выбросам угля и газа Приложение к расчету 1 Приложение к расчету 2 | | Разработан: | ДонУГИ
| | Утверждён: | 15.10.1970 Министерство угольной промышленности СССР (USSR Ministry of the Coal Industry )
|
                                                                                                
|