Скачать Прогрессивные технологические схемы разработки пластов на угольных шахтах. Часть I. Технологические схемыДата актуализации: 01.01.2021
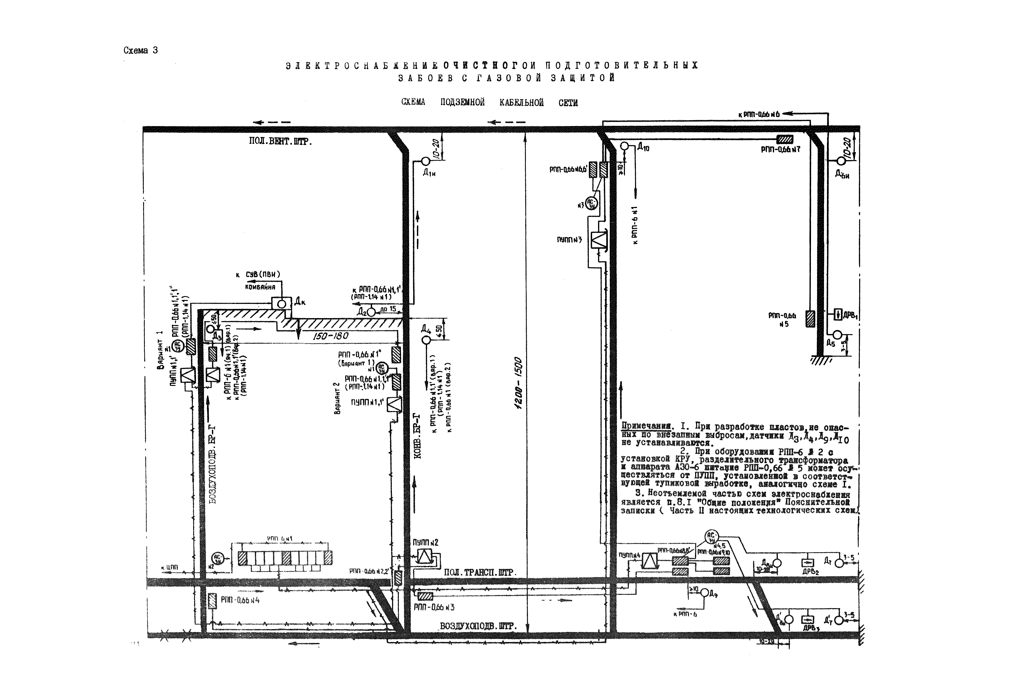
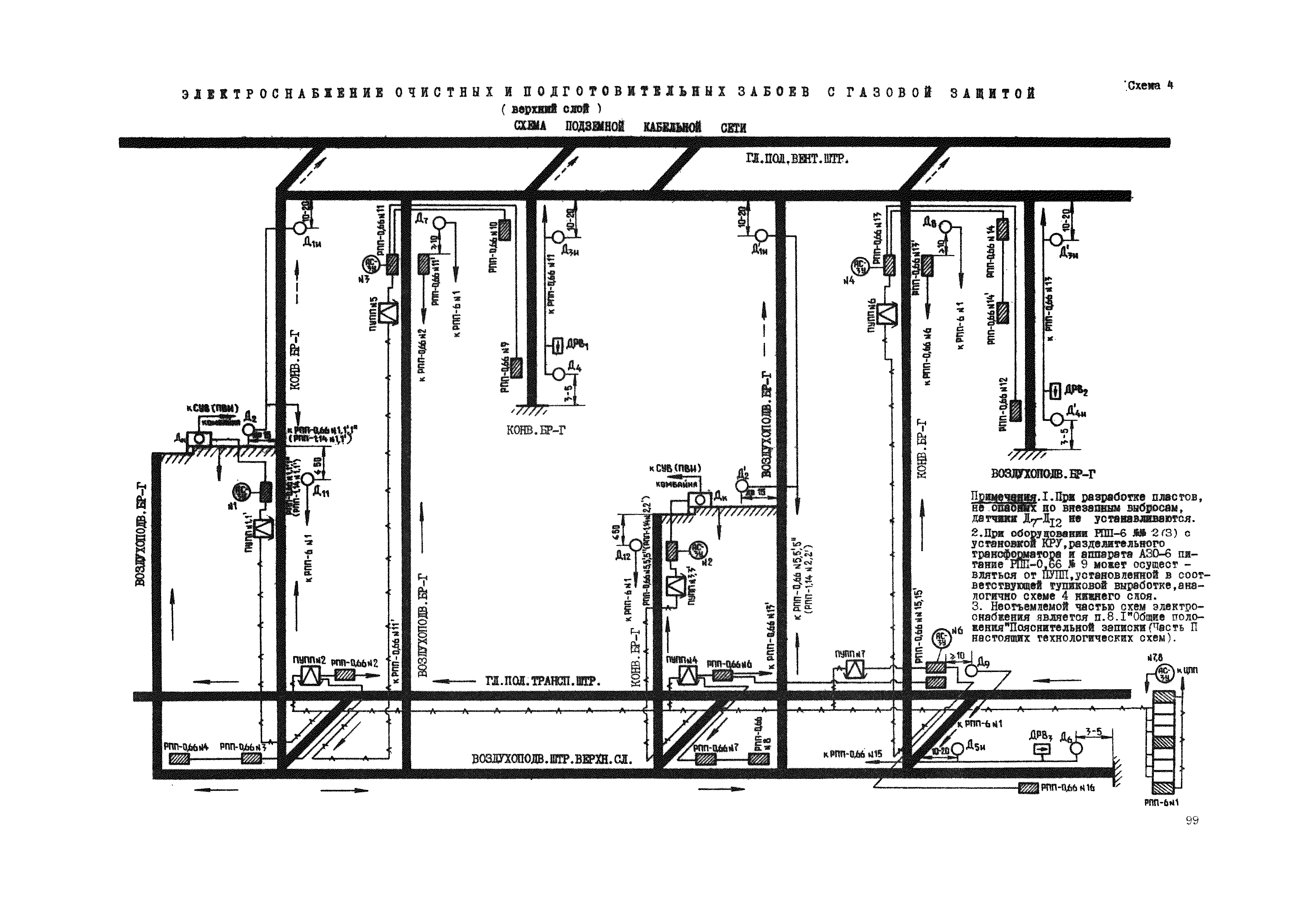
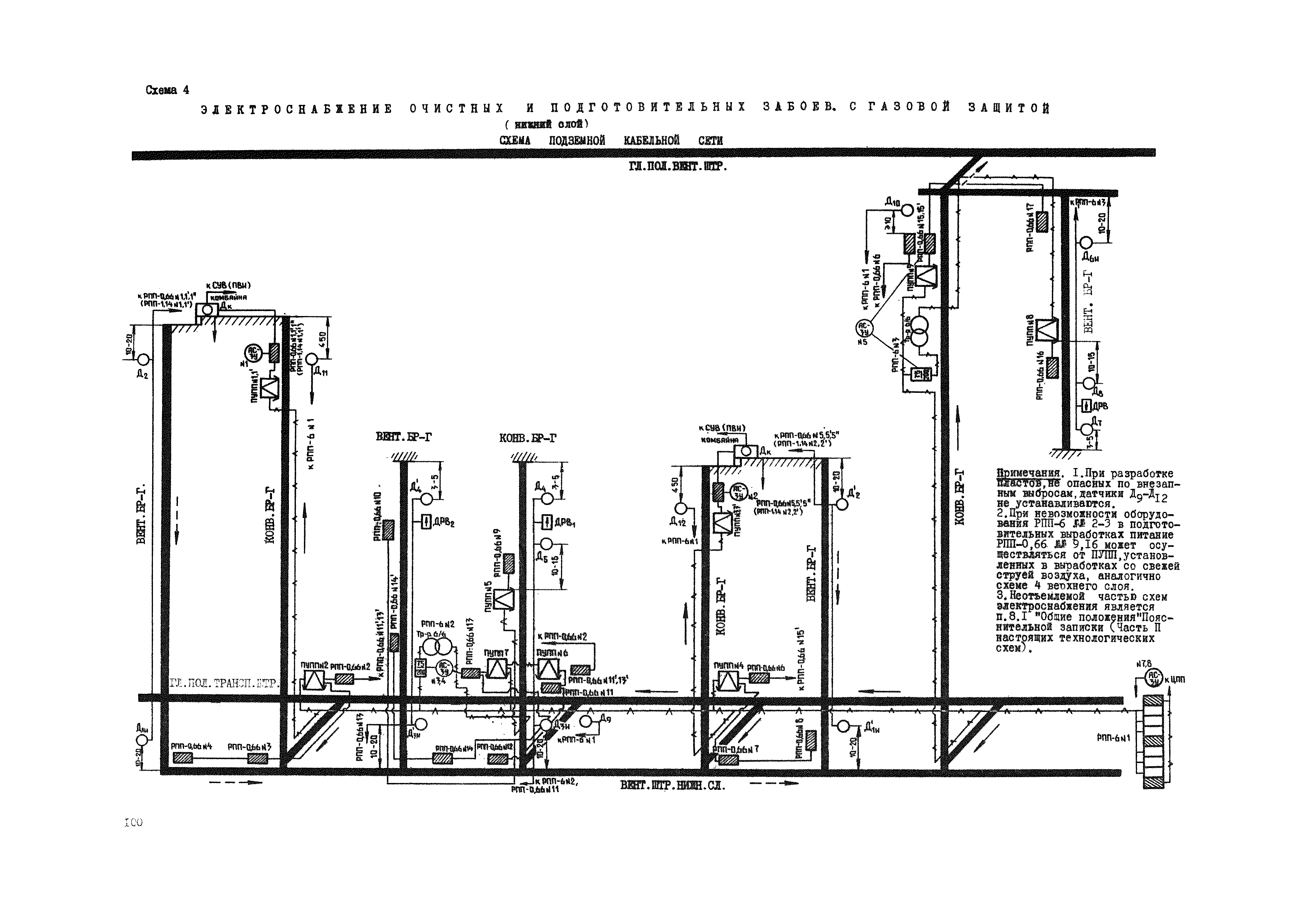
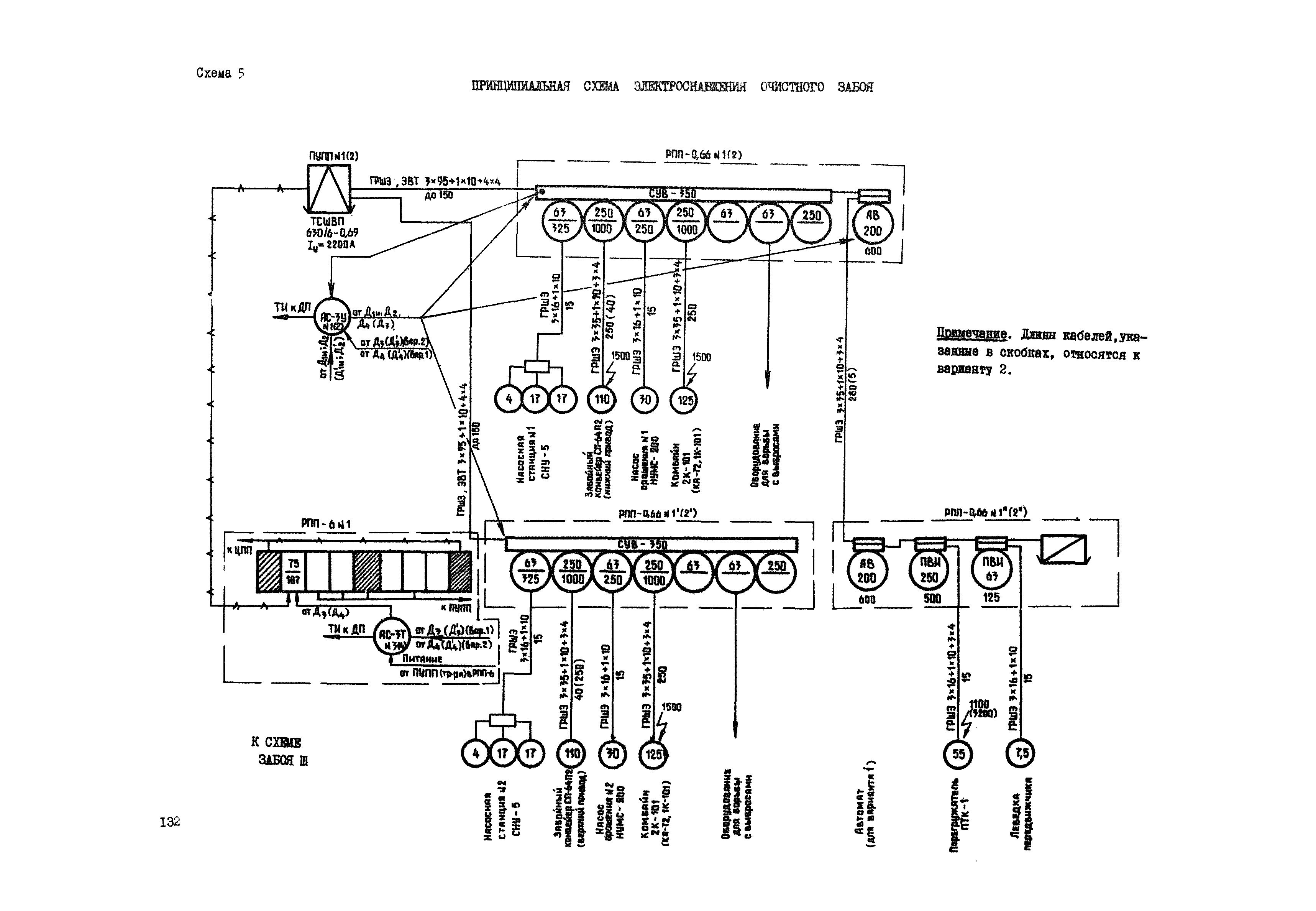
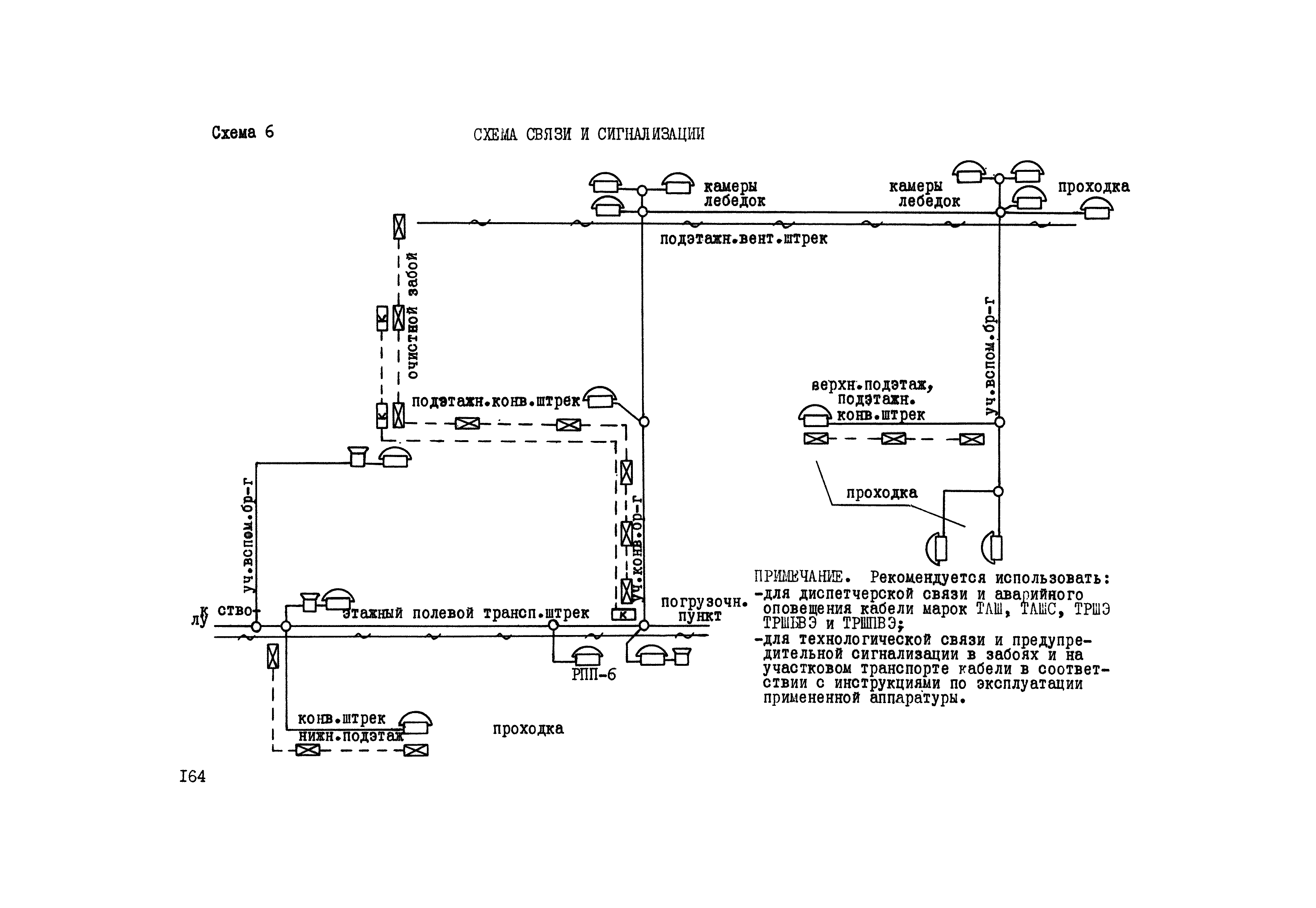
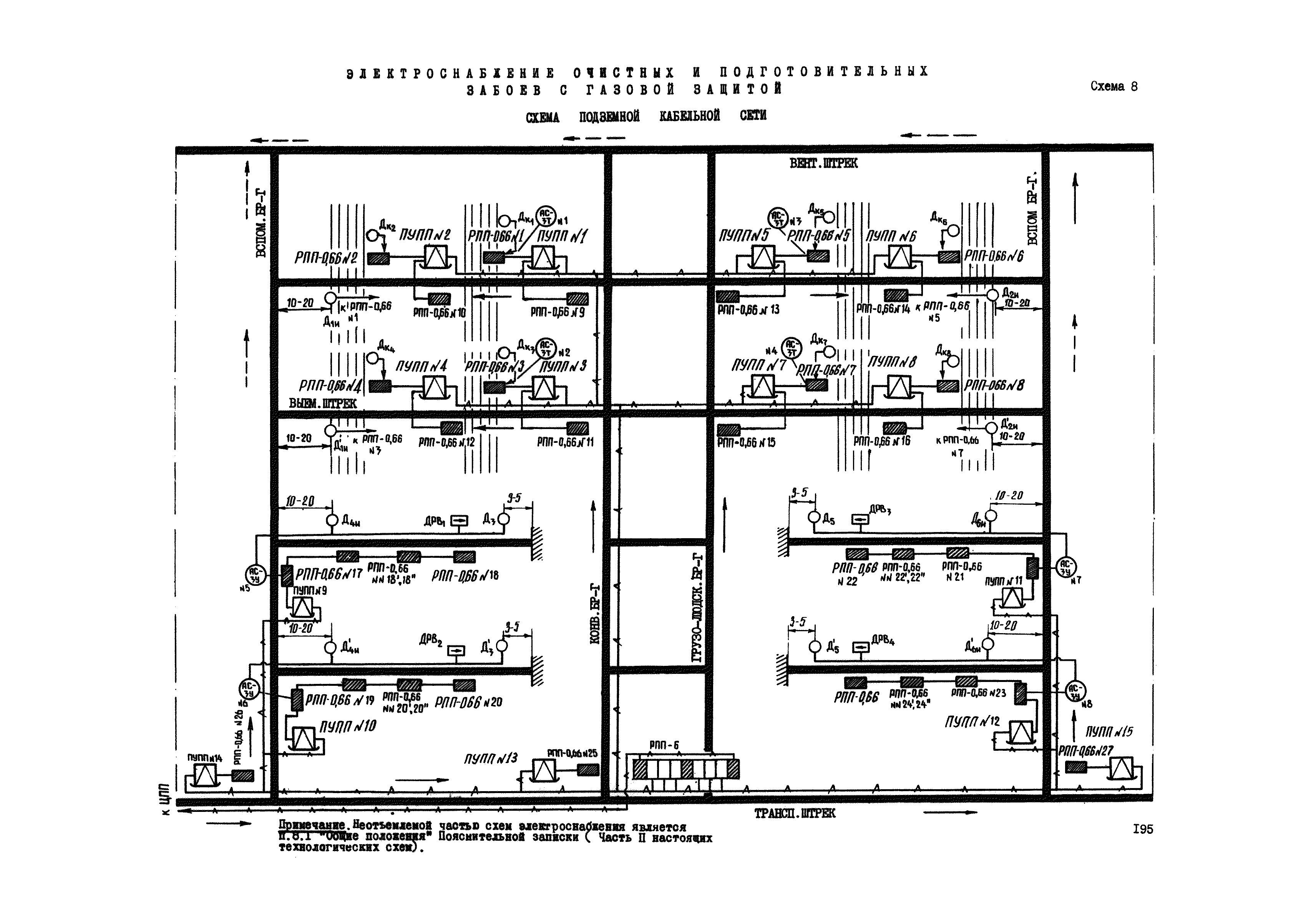
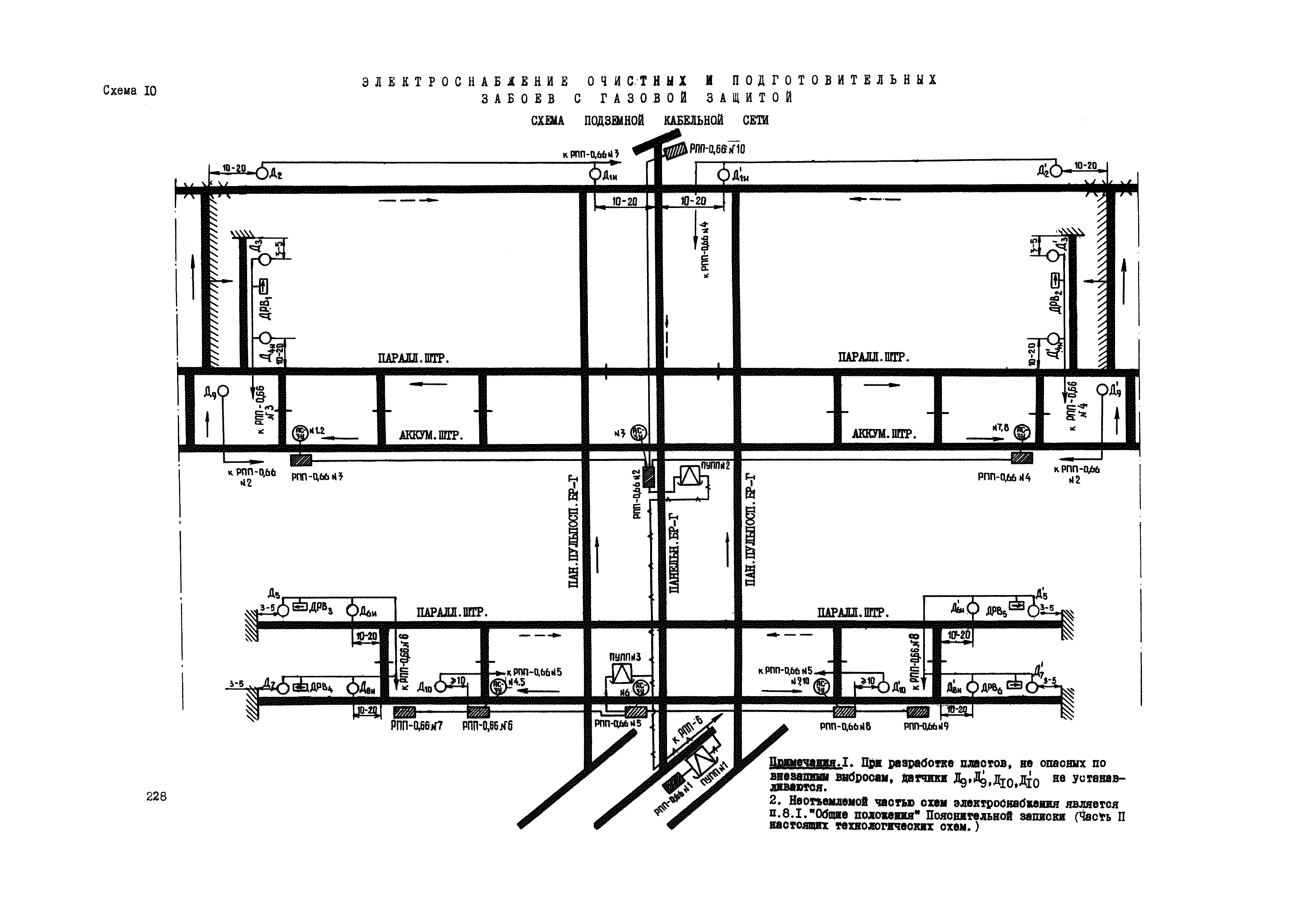
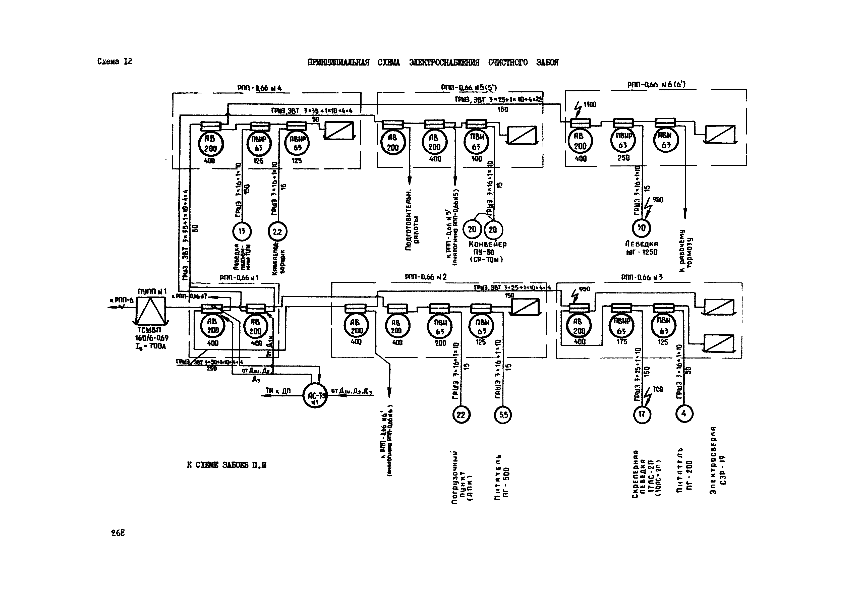
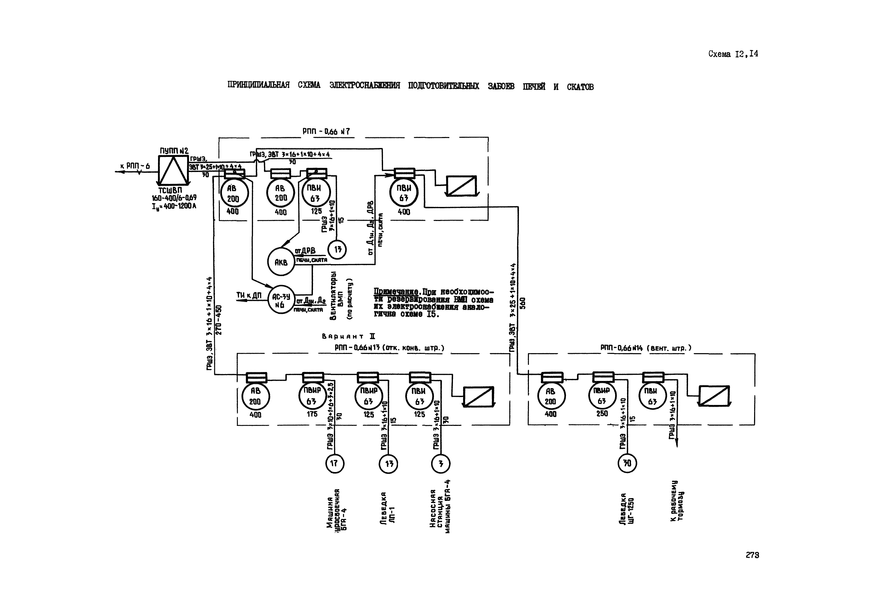
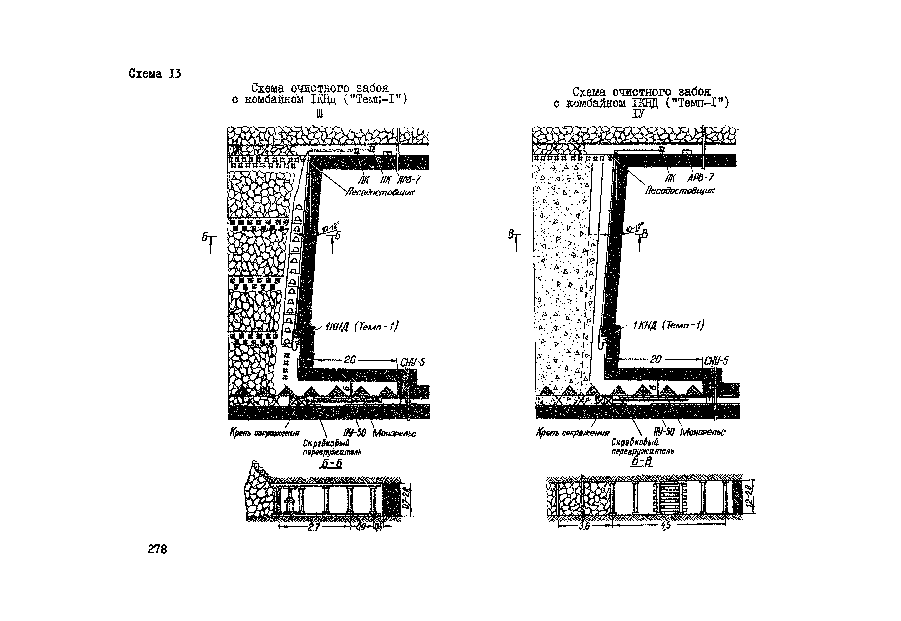
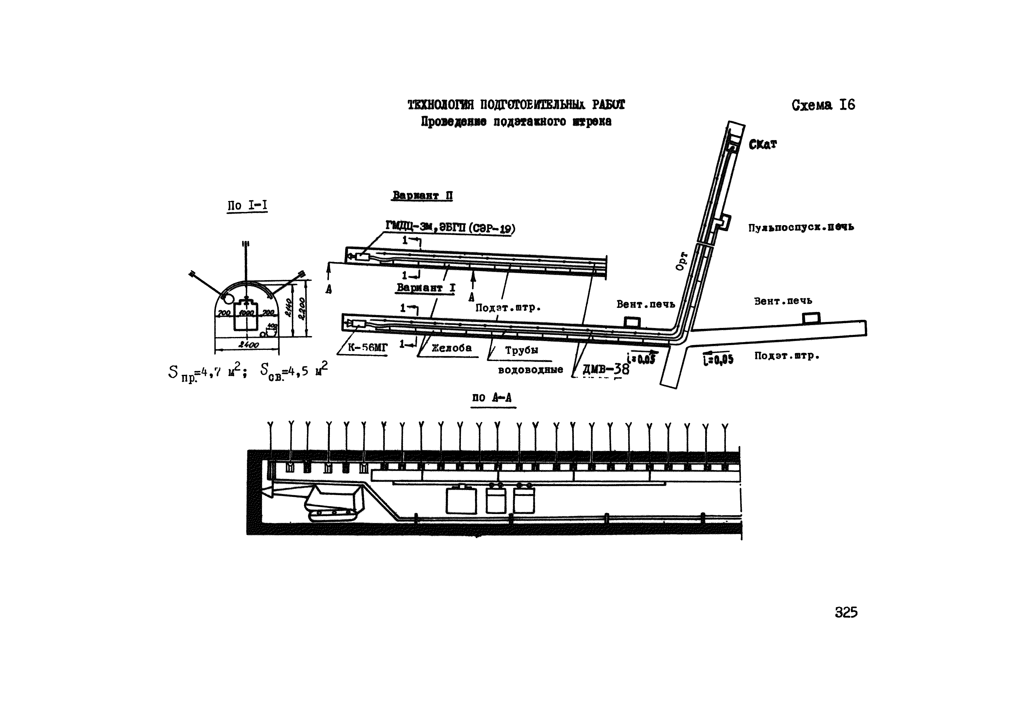
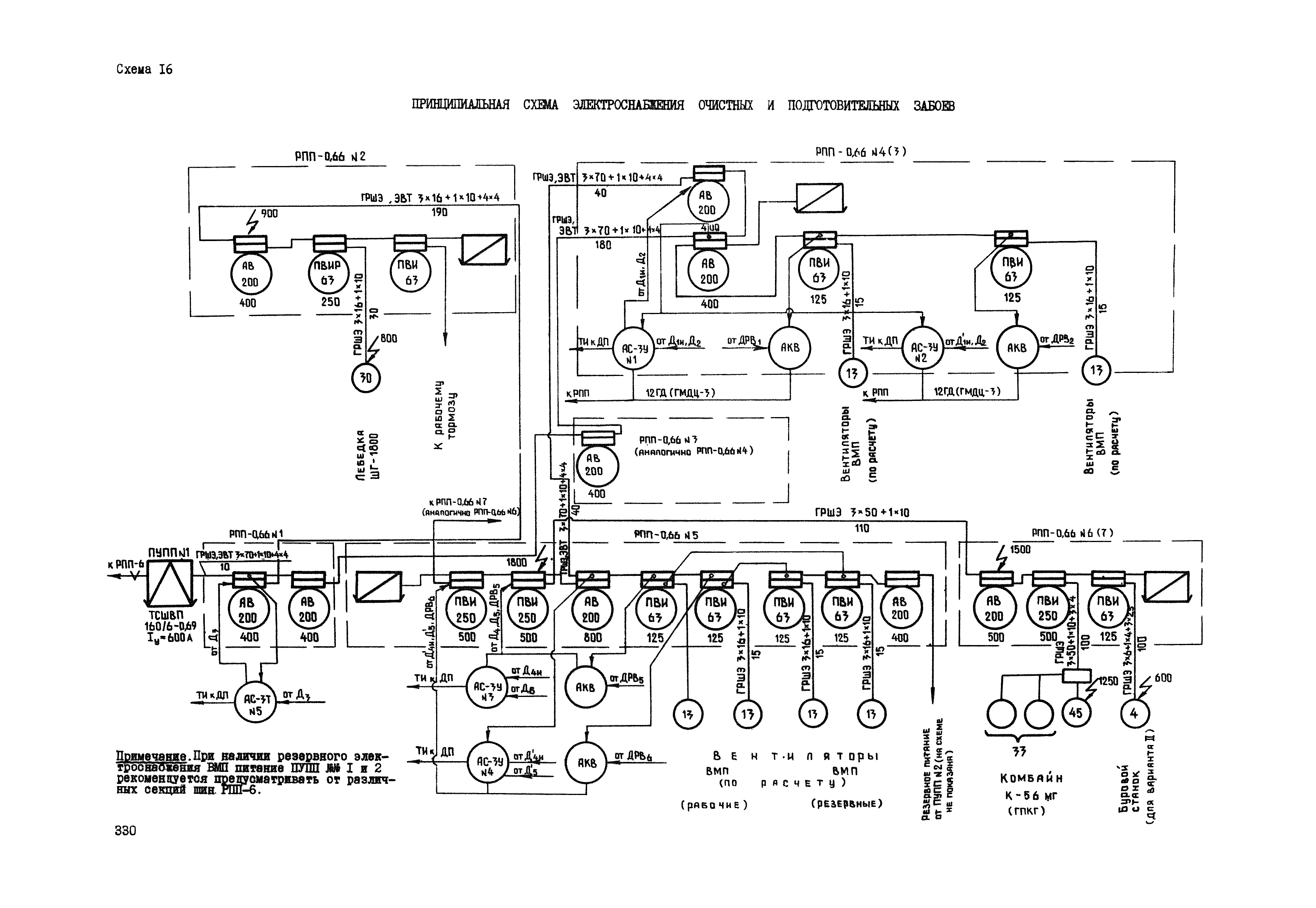
Прогрессивные технологические схемы разработки пластов на угольных шахтах. Часть I. Технологические схемы| Статус: | справочные материалы, мп, тпр | | Название рус.: | Прогрессивные технологические схемы разработки пластов на угольных шахтах. Часть I. Технологические схемы | | Дата добавления в базу: | 01.02.2020 | | Дата актуализации: | 01.01.2021 | | Область применения: | Технологические схемы предназначены для административно-технических руководителей и других должностных лиц действующих или строящихся шахт, а также для работников проектных, научно-исследовательских, учебных и других организаций | | Оглавление: | Условные обозначения к технологическим схемам очистных и подготовительных работ Технологические схемы разработки пластов с углами падения до 35° Схема 1. Технологическая схема подготовки ж отработки по восстанию пластов мощностью 0,7 - 0,7 - 2,0 м с углом падения 0 - 10° Схема 2. Технологическая схема подготовки и отработки по восстанию (падению) пластов мощностью 0,9 - 1,4 м с углом падения 0 - 10° (шахта "Должанская-Капитальная") Схема 3. Технологическая схема подготовки и отработки по падению пластов мощностью 1,1 - 3,5 м с углом падения 0 - 10° Схема 4. Технологическая схема подготовки и отработки по падению пластов мощностью более 5,0 м с углом падения 0 - 10° (последовательная выемка слоев) Схема 5. Технологическая .схема подготовки и отработки по простиранию пластов мощностью 0,5 - 3,5 м с углом падения 3 - 18° Схема 6. Технологическая схема подготовки и отработки по простиранию пластов мощностью 0,9 - 3,5 м с углом падения 10 - 35° Схема 7. Технологическая схема подготовки и отработки по простиранию пластов мощностью более 3,5 м с углом падения 3 - 35° Схема 8. Технологическая схема подготовкой отработки по простиранию пластов мощностью 0,55 - 0,80 м с углом падения 0 - 15° (бурошнековый способ) Схема 9. Технологическая схема подготовки и отработки горизонтальных пластов- мощностью 1,4 - 3,5 м со сложной гипсометрией Схема 10. Технологическая схема подготовки и отработки по падению пластов мощностью 0,8 - 8,0 м с углом падения 5 - 35° (гидравлический способ) Технологические схемы разработки пластов о углами падения более 35° Схема 11. Технологическая схема подготовки и отработки по падению пластов мощностью 0,7 - 2,2 м с углом падения более 40 - 45° Схема 12. Технологическая схема подготовки ж отработки по падению пластов мощностью 1,2 - 2,2 м и 3 - 10 м с углом падения более 35° Схема 13. Технологическая схема подготовки и отработки по простиранию пластов мощностью 0,5 - 2,0 м с углом падения более 35° Схема 14. Технологическая схема подготовки ж отработки по простиранию пластов мощностью 1,7 - 2,4 м с углом падения более 35° Схема 15. Технологическая схема подготовки и отработки по восстанию пластов мощностью 3,5 - 4,5 м с углом падения более 60° Схема 16. Технологическая схема подготовки и отработки по падению налетов мощностью 0,8 - 8,0 м и более с углом падения 35 - 90° | | Разработан: | ИГД им. А.А. Скочинского
| | Утверждён: | 19.05.1979 Министерство угольной промышленности СССР (USSR Ministry of the Coal Industry )
| | Нормативные ссылки: | |
                                                                                                                                                                                                                                                                                                                                            
|