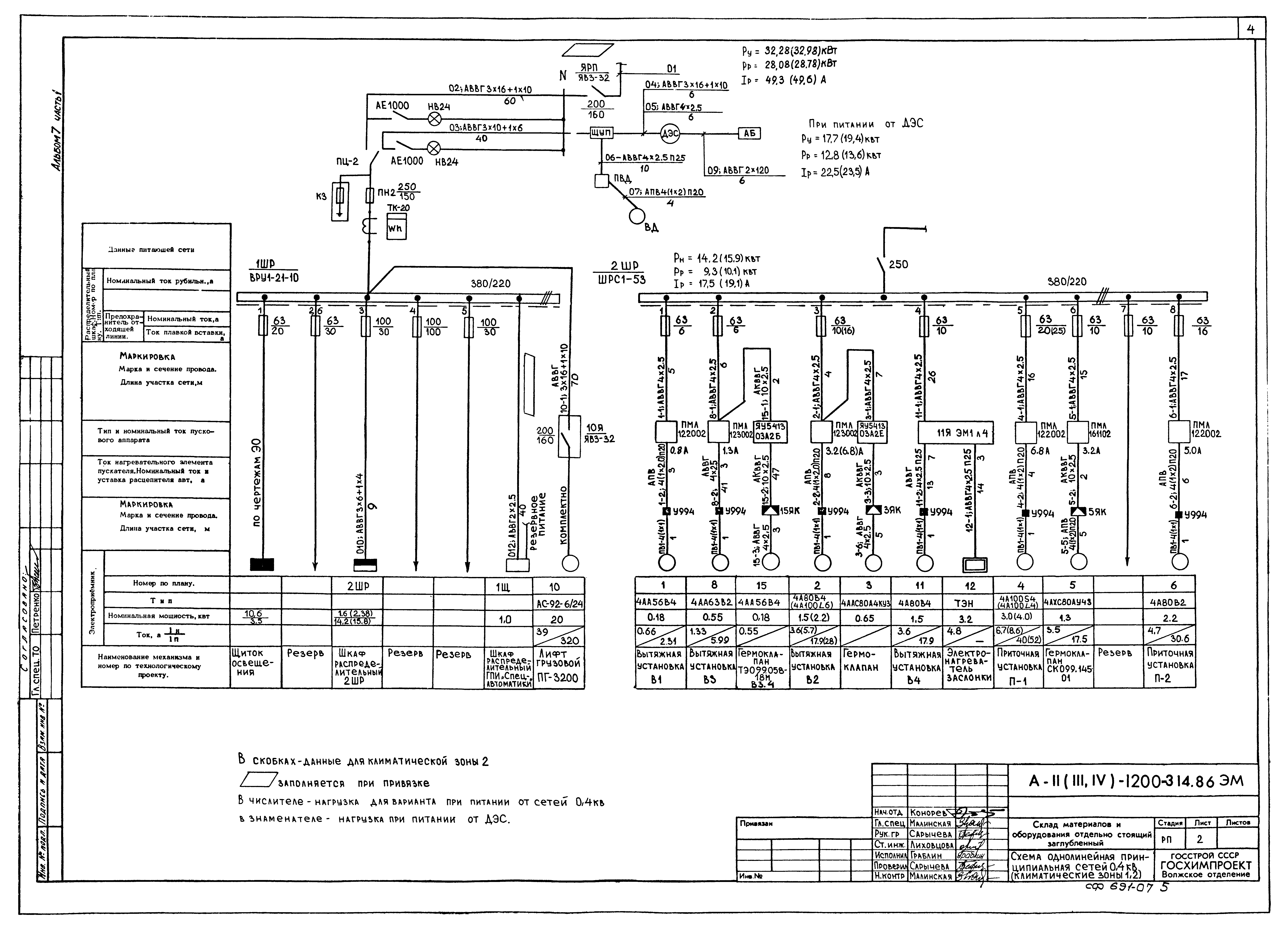
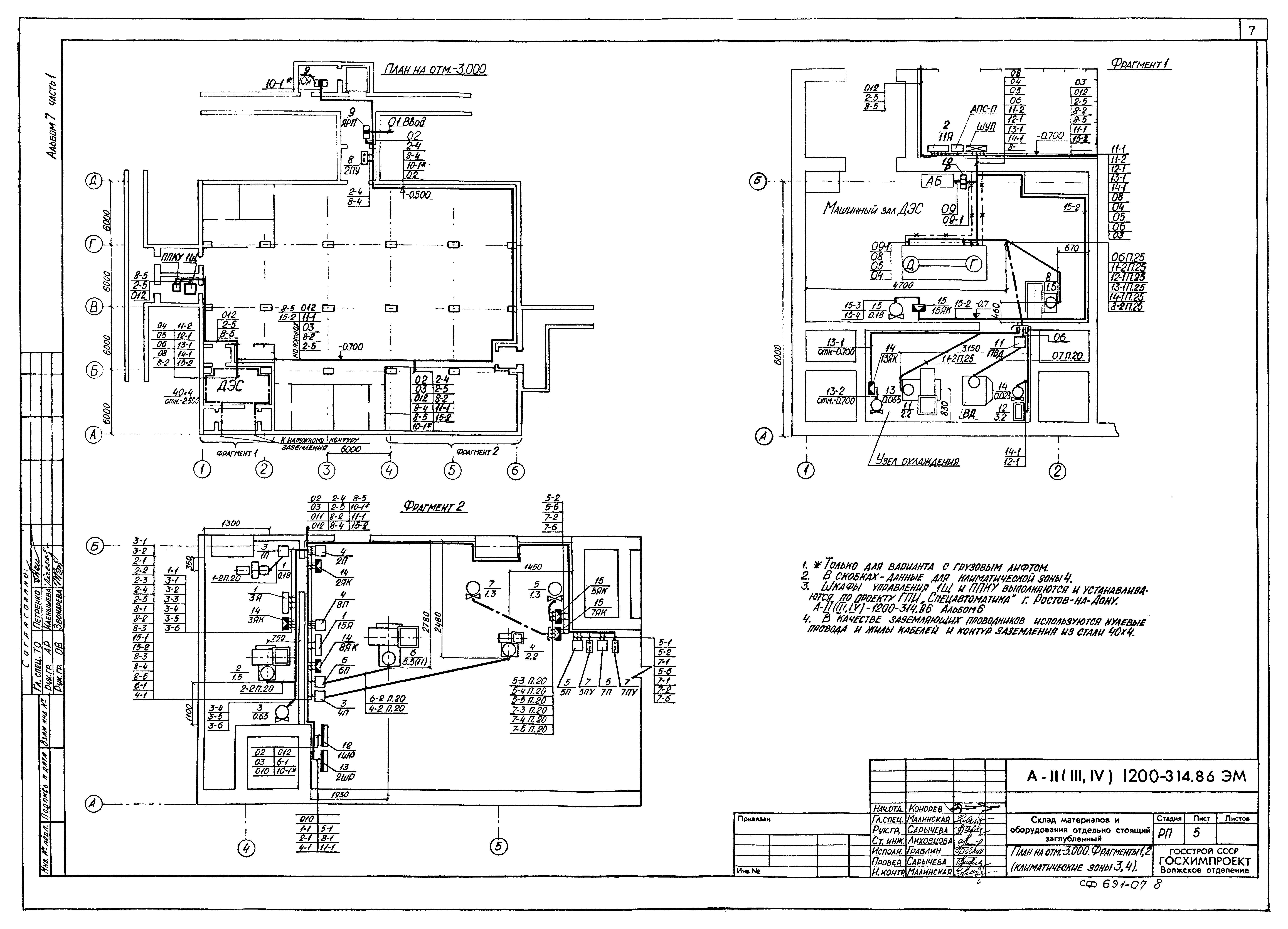
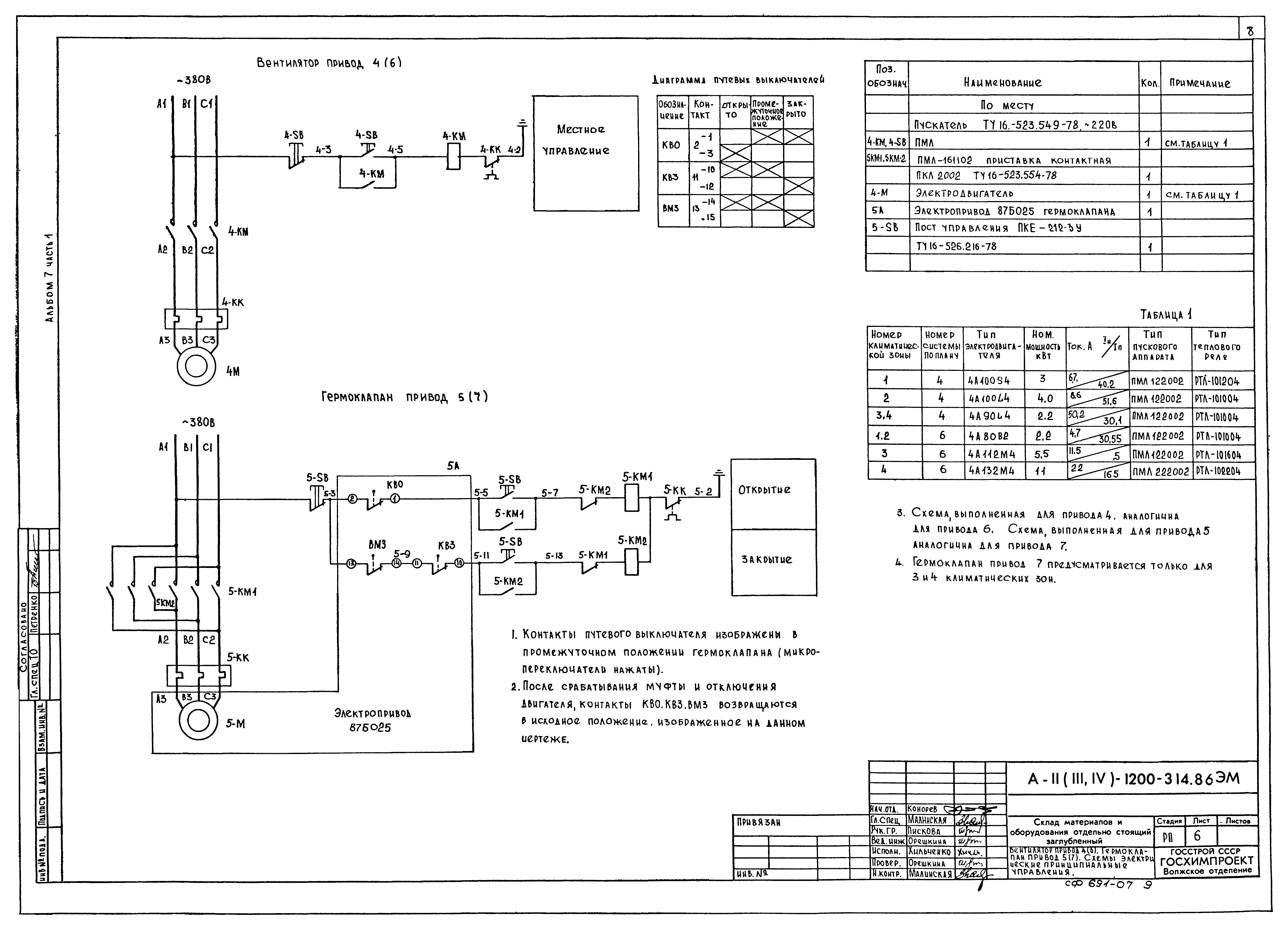
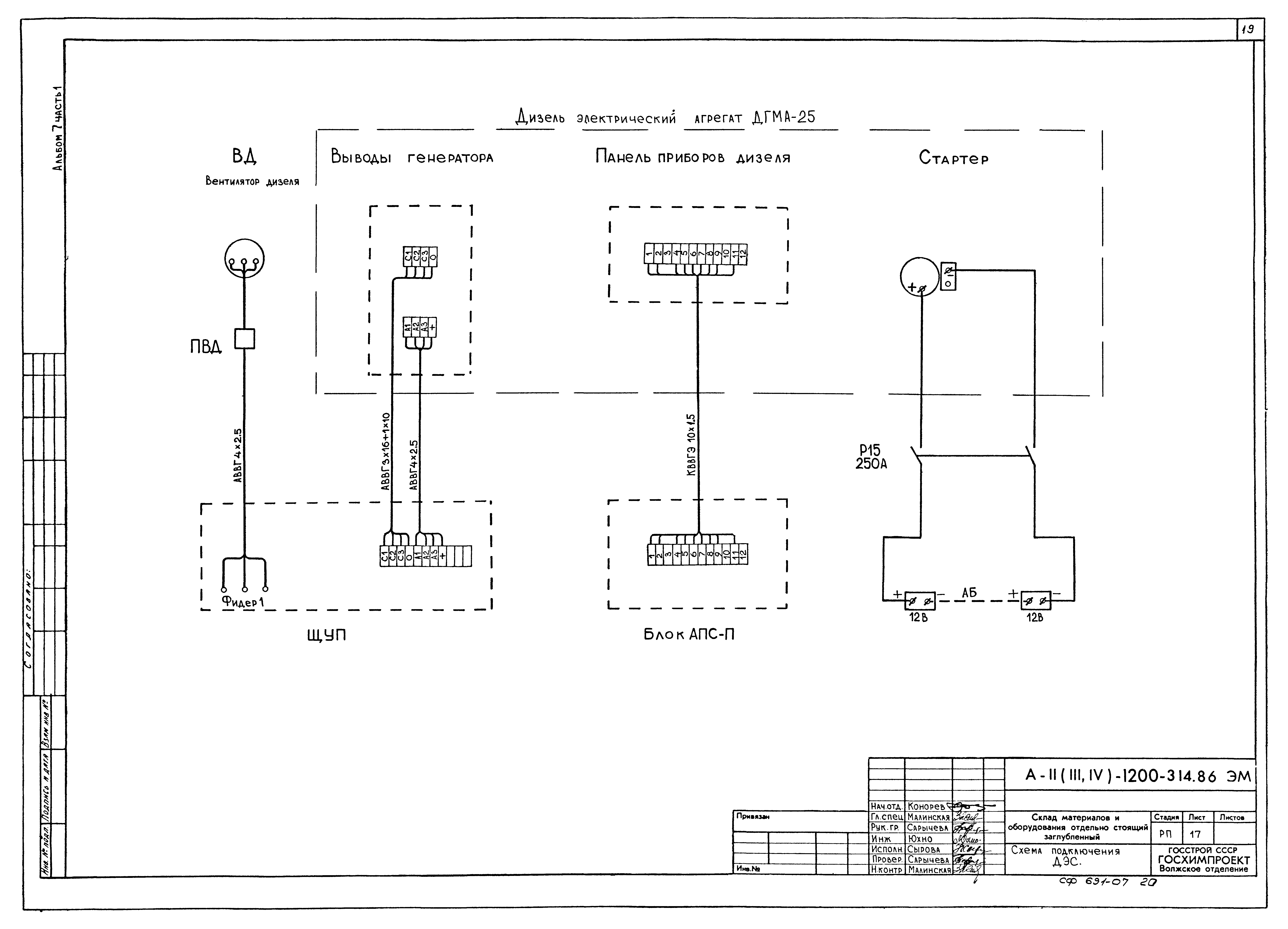
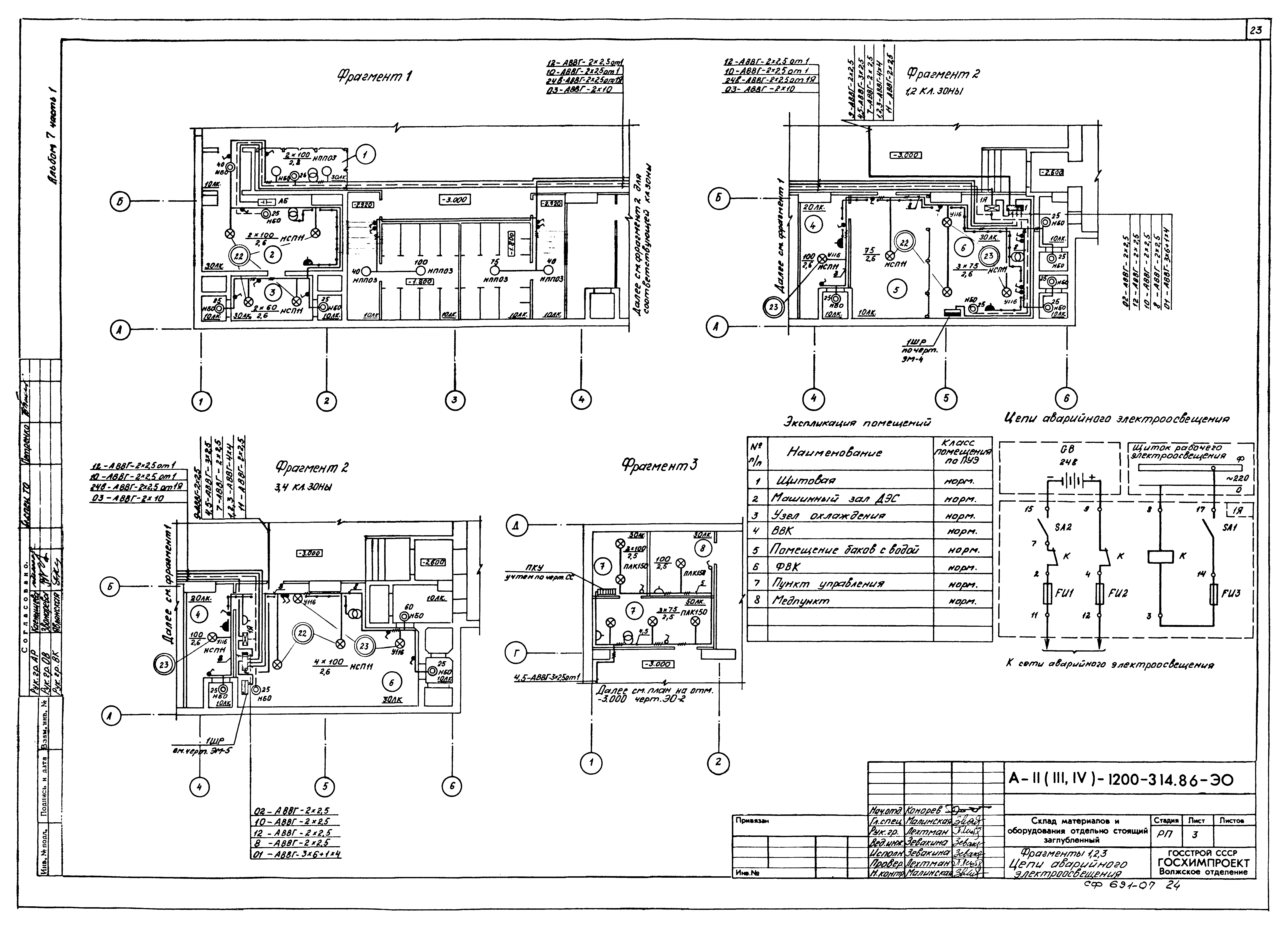
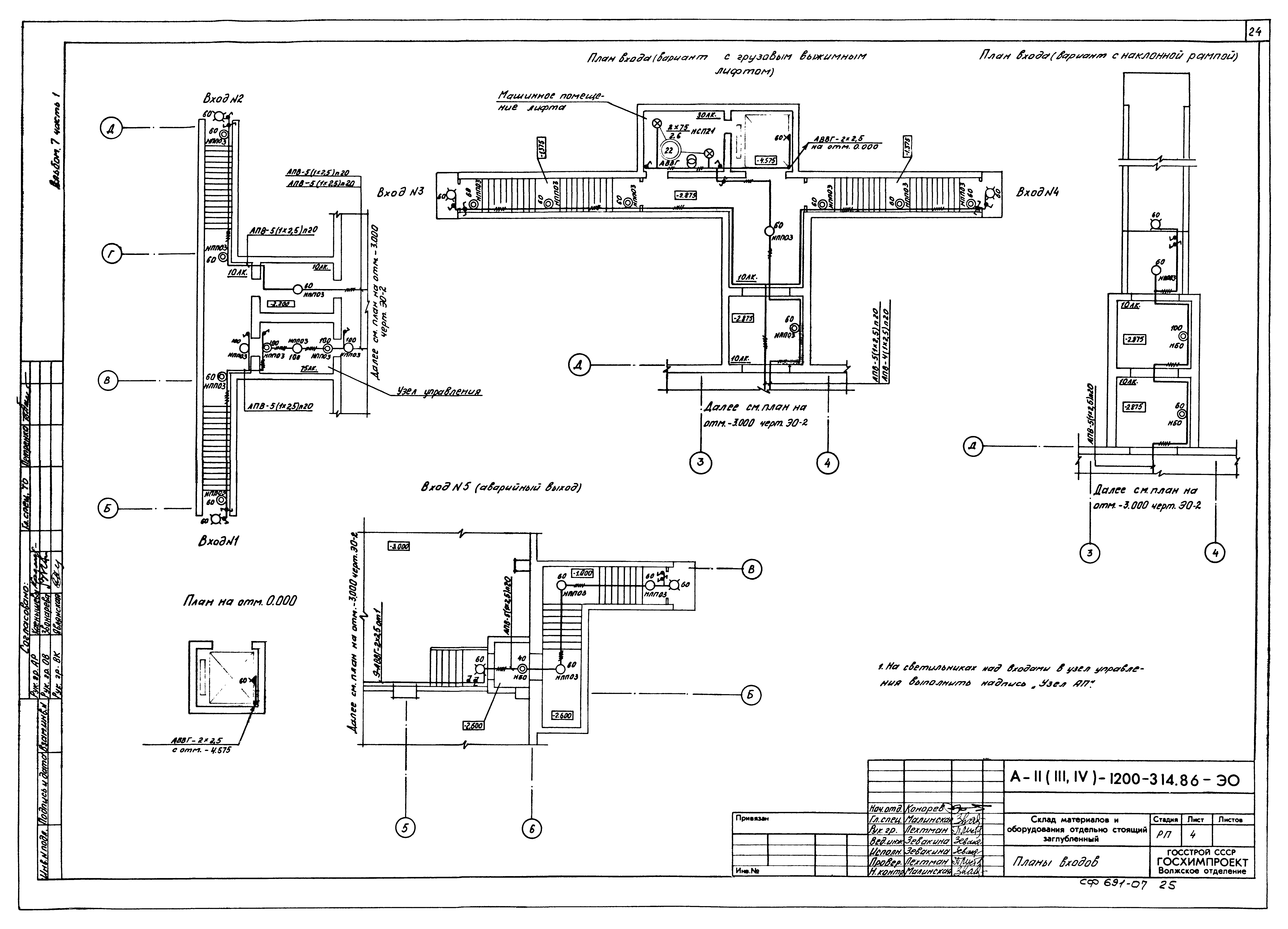
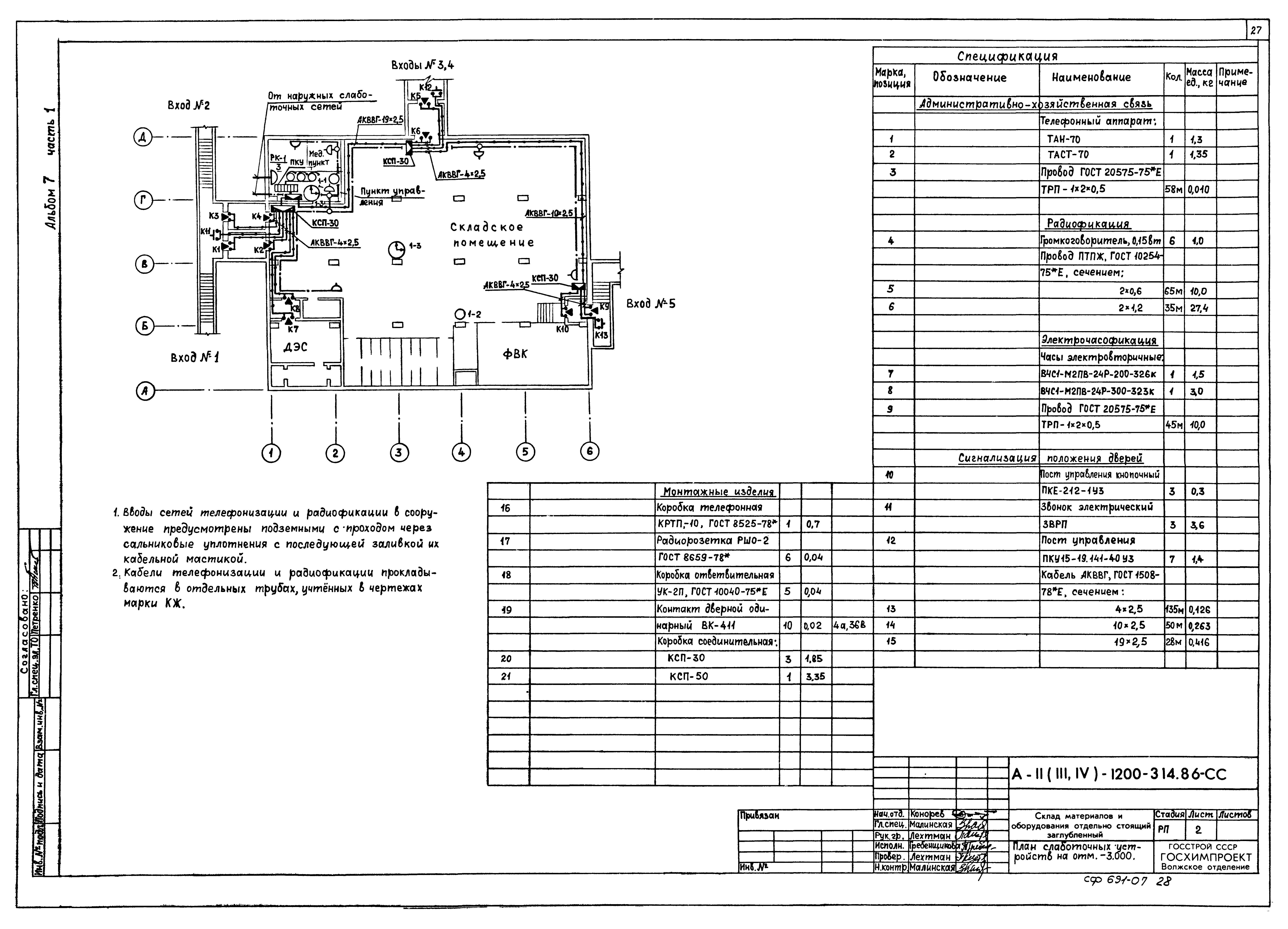
Скачать Типовой проект А-II,III,IV-1200-314.86 Альбом 7. Часть 1. Силовое электрооборудование. Автоматизация. Электроосвещение. Связь и сигнализацияДата актуализации: 01.01.2021 Типовой проект А-II,III,IV-1200-314.86
Альбом 7. Часть 1. Силовое электрооборудование. Автоматизация. Электроосвещение. Связь и сигнализация| Обозначение: | Типовой проект А-II,III,IV-1200-314.86 | | Обозначение англ: | А-II,III,IV-1200-314.86 | | Статус: | не определен законодательством | | Название рус.: | Альбом 7. Часть 1. Силовое электрооборудование. Автоматизация. Электроосвещение. Связь и сигнализация | | Дата добавления в базу: | 01.02.2020 | | Дата актуализации: | 01.01.2021 | | Дата введения: | 10.12.1985 | | Дата окончания срока действия: | 30.06.2003 | | Разработан: | Волжское отделение института Госхимпроект
| | Утверждён: | 10.12.1985 Госстрой СССР (АЧ-59)
|
                           
|