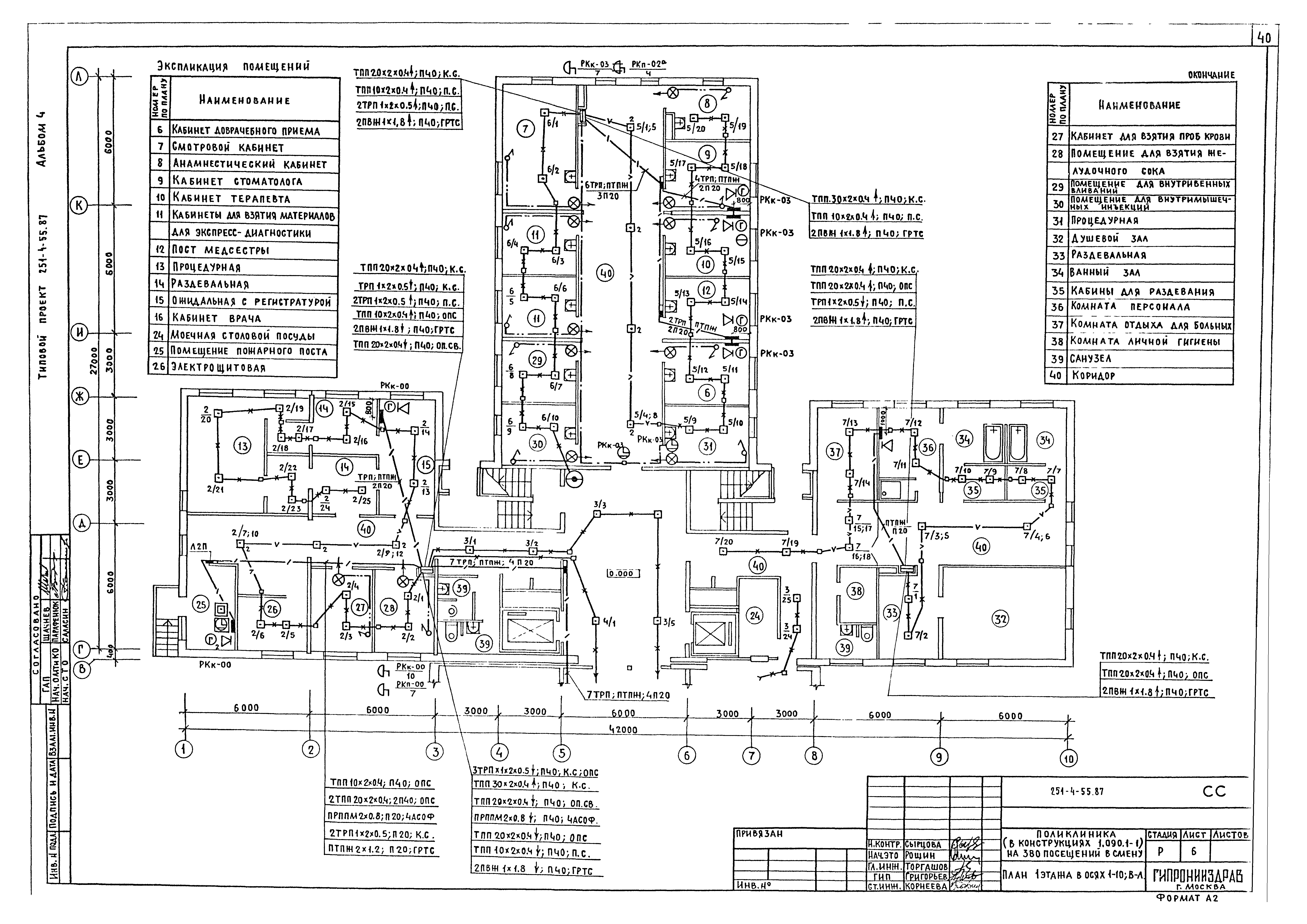
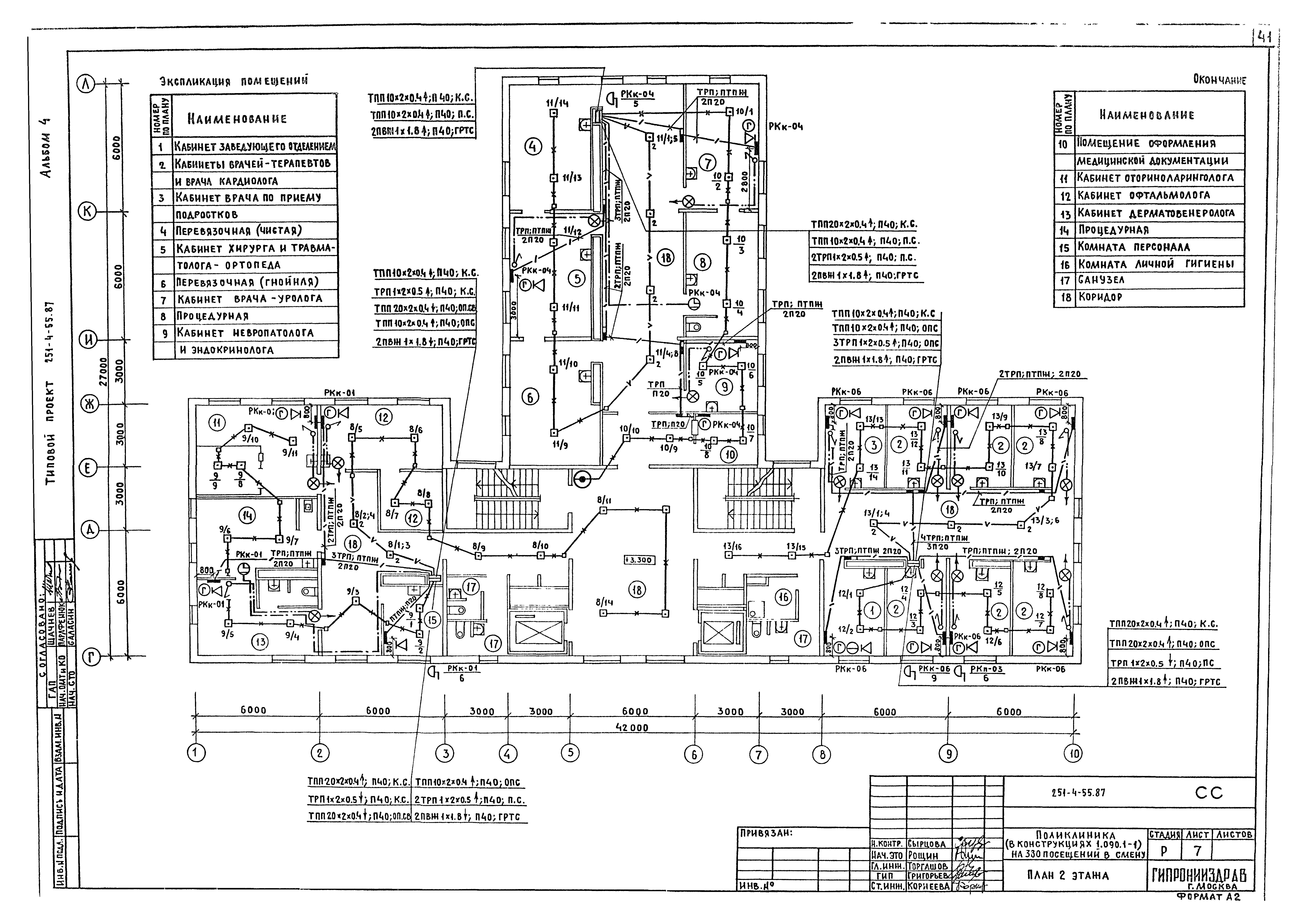
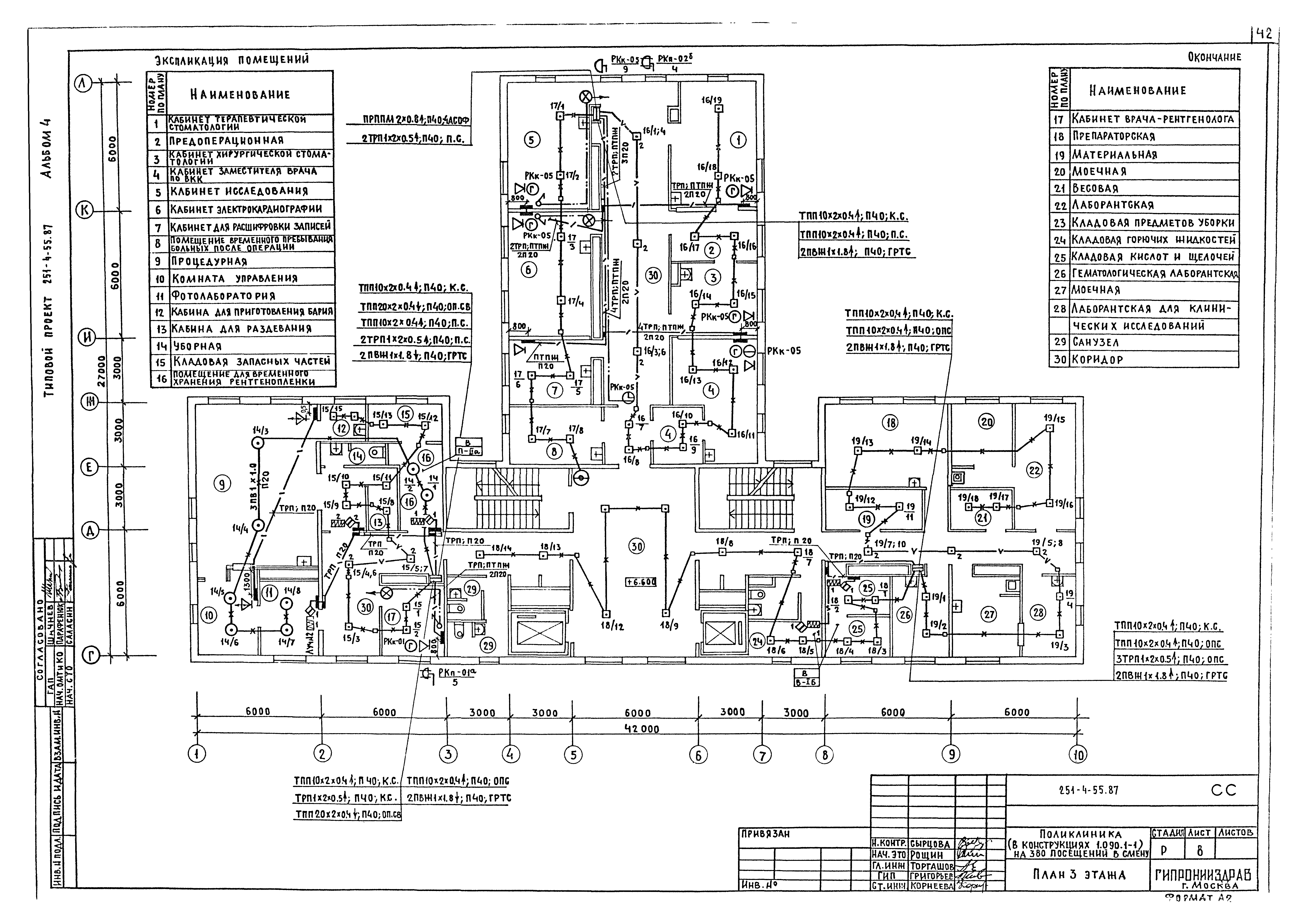
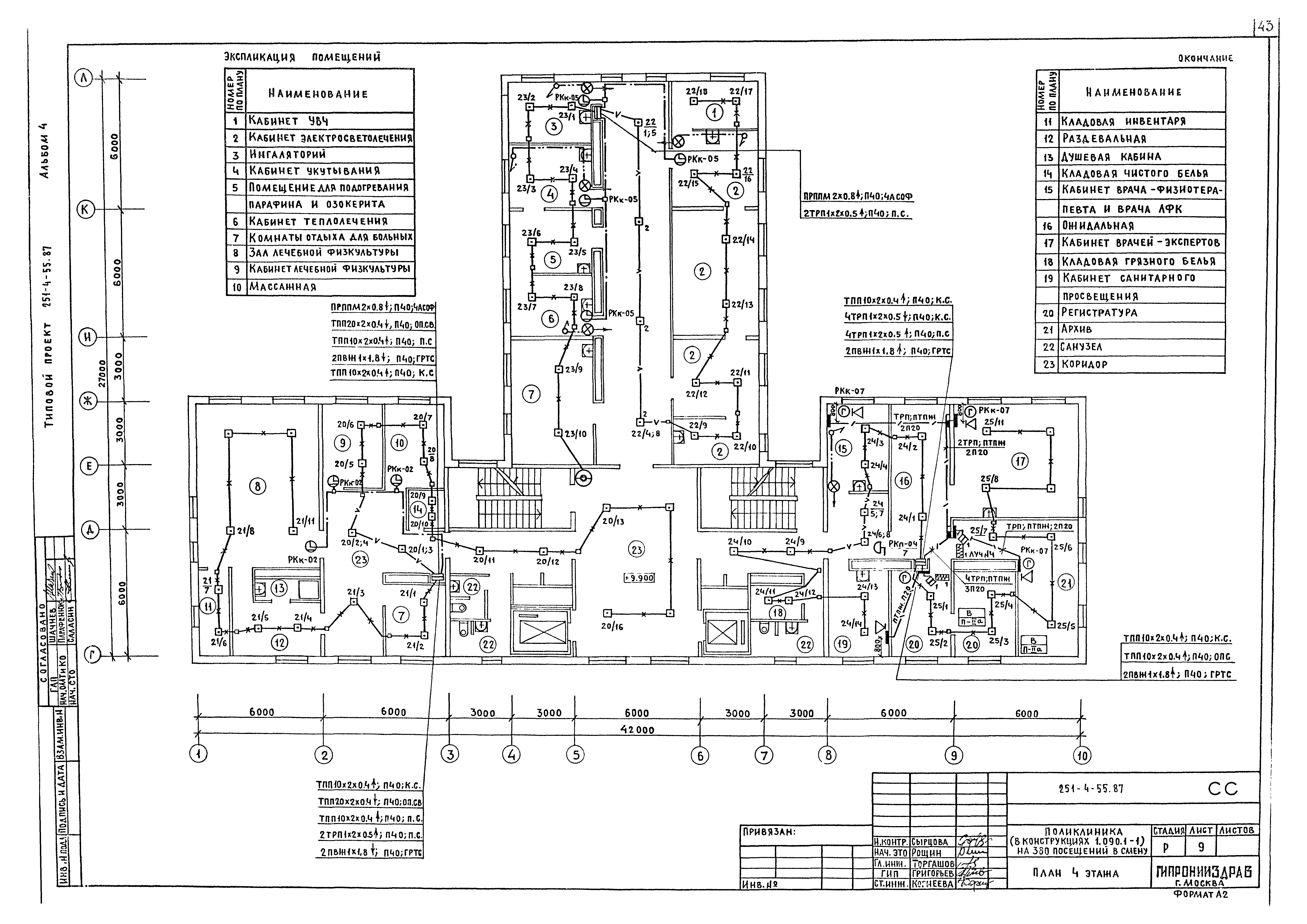
Скачать Типовой проект 251-4-55.87 Альбом 4. Электрическое освещение. Силовое электрооборудование. Связь и сигнализацияДата актуализации: 01.01.2021
|
| Обозначение: | Типовой проект 251-4-55.87 |
| Обозначение англ: | 251-4-55.87 |
| Статус: | не определен законодательством |
| Название рус.: | Альбом 4. Электрическое освещение. Силовое электрооборудование. Связь и сигнализация |
| Дата добавления в базу: | 01.02.2020 |
| Дата актуализации: | 01.01.2021 |
| Дата введения: | 25.12.1986 |
| Дата окончания срока действия: | 30.06.2003 |
| Разработан: | ГипроНИИздрав Минздрава СССР |
| Утверждён: | 02.08.1985 Госгражданстрой (Gosgrazhdanstroy 225) |














































