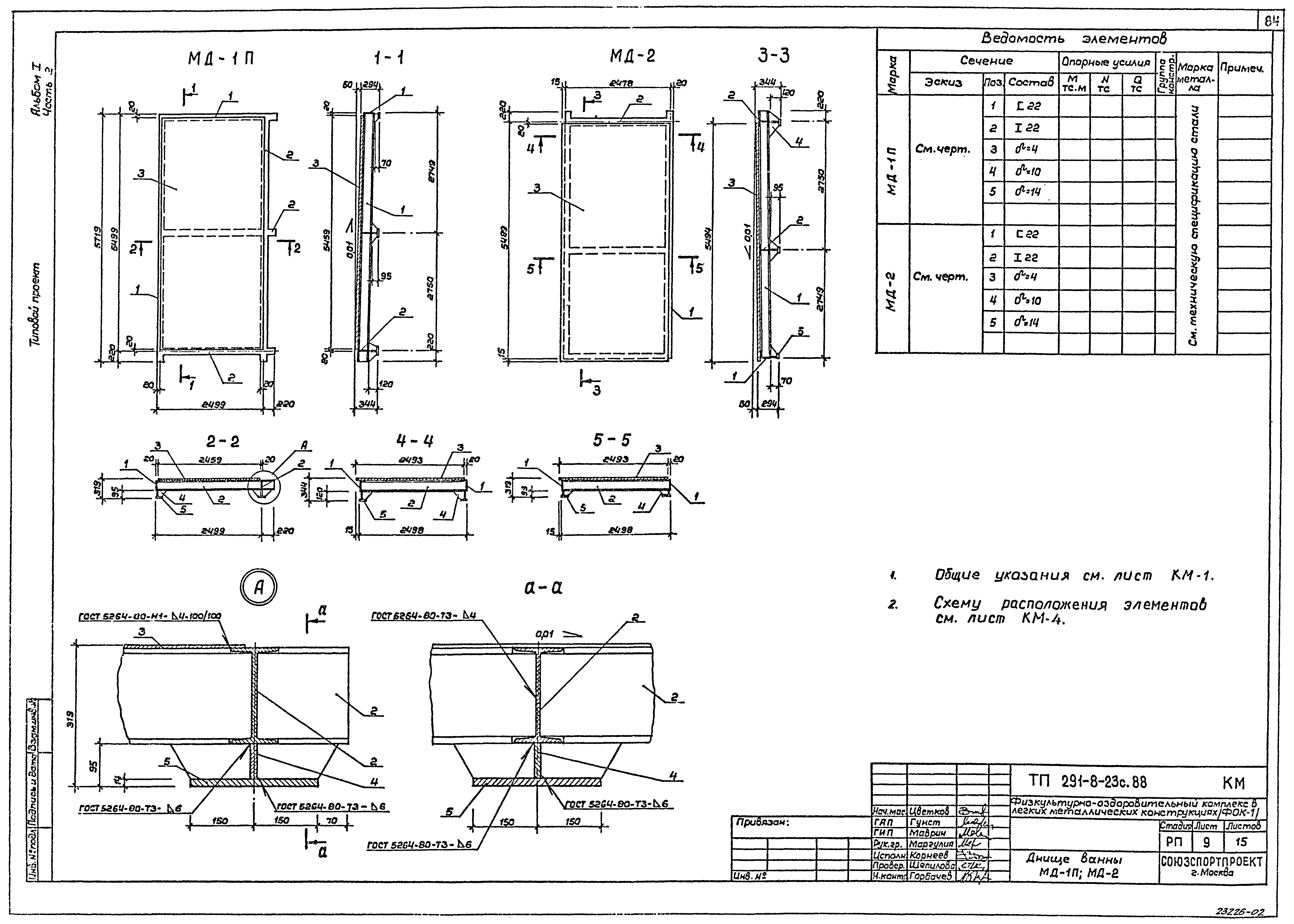
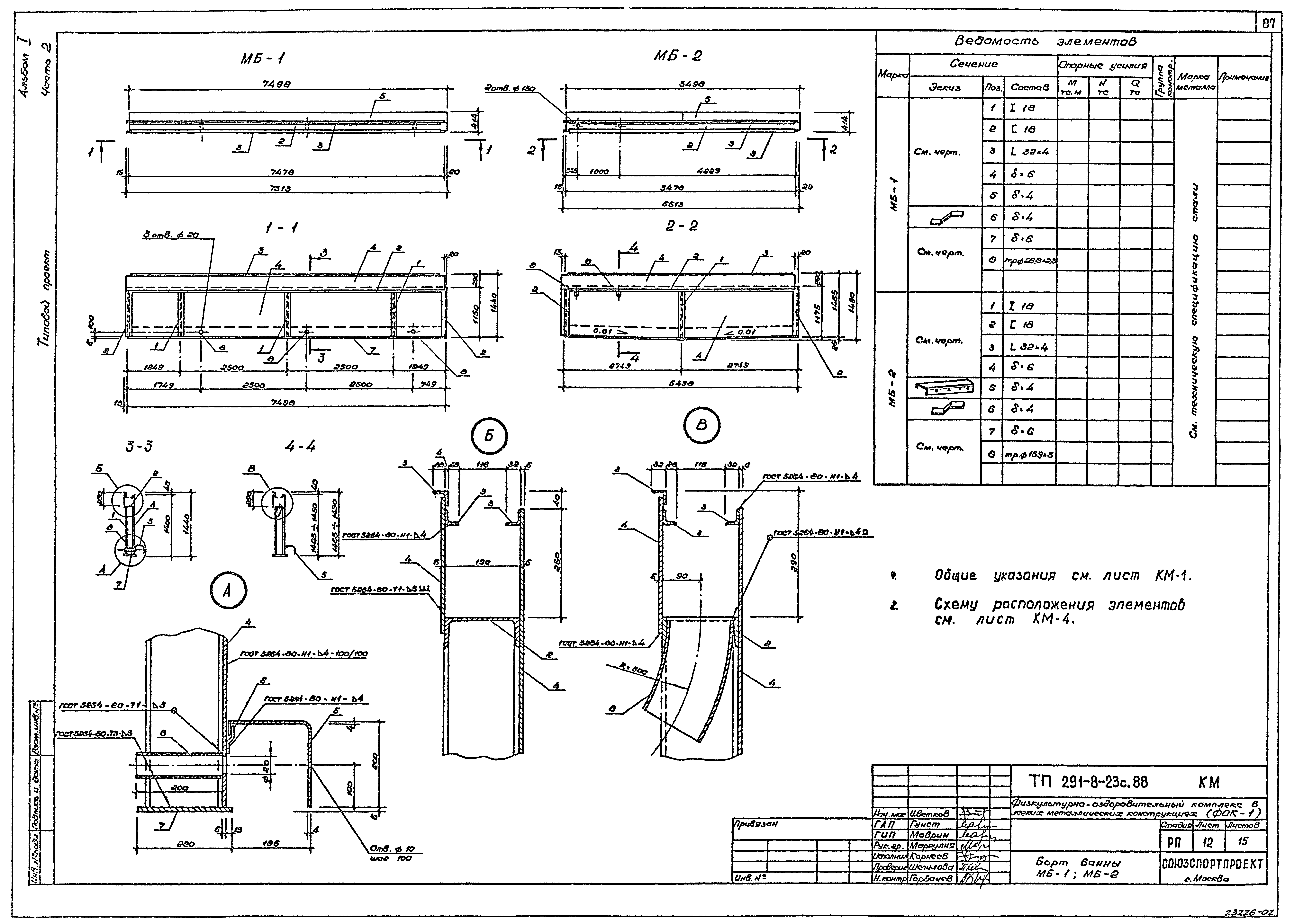
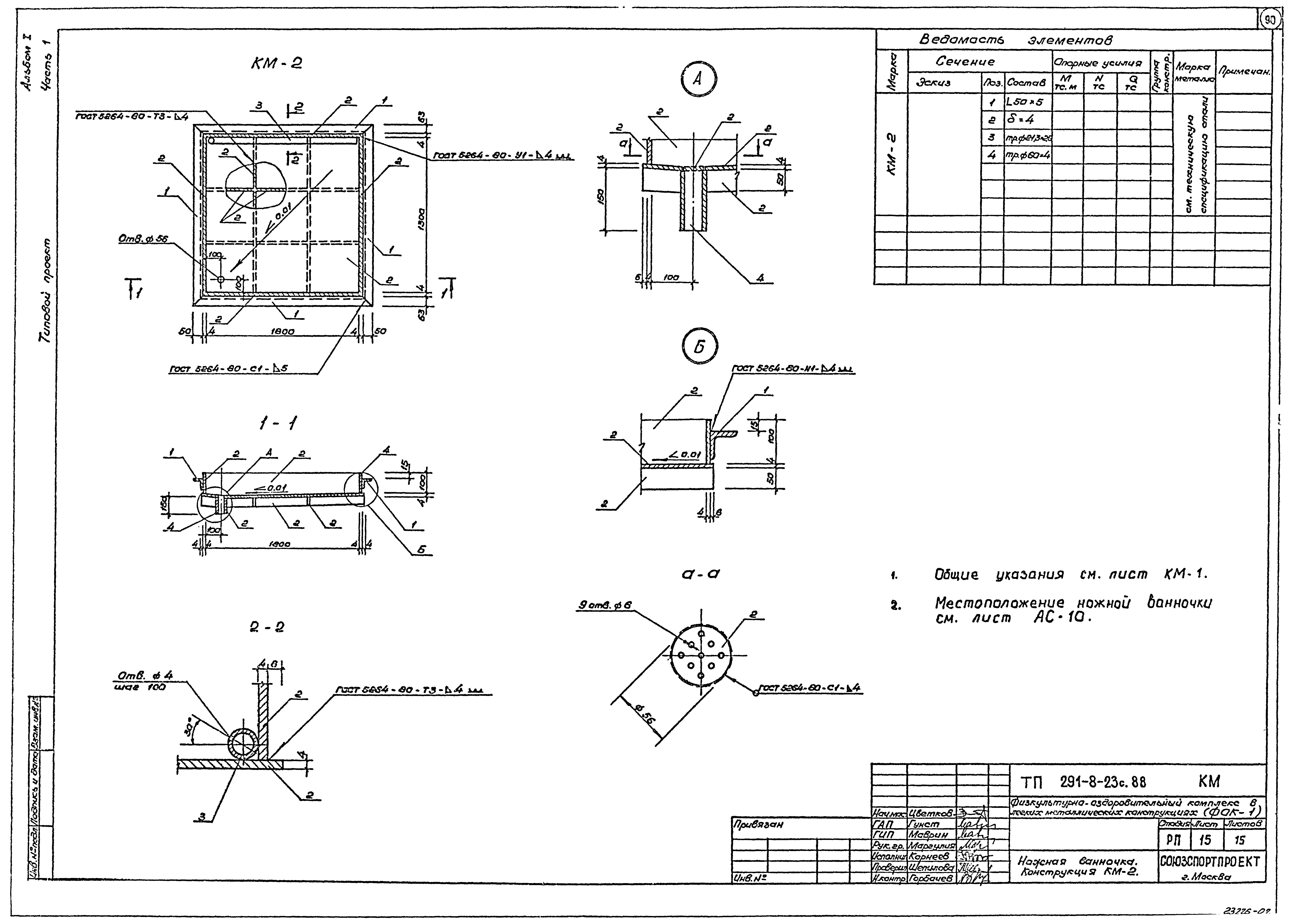
Скачать Типовой проект 291-8-23с.88 Альбом I. Часть 2. Конструкция металлической ванныДата актуализации: 01.01.2021
|
| Обозначение: | Типовой проект 291-8-23с.88 |
| Обозначение англ: | 291-8-23с.88 |
| Статус: | не определен законодательством |
| Название рус.: | Альбом I. Часть 2. Конструкция металлической ванны |
| Дата добавления в базу: | 01.02.2020 |
| Дата актуализации: | 01.01.2021 |
| Дата введения: | 14.06.1988 |
| Дата окончания срока действия: | 30.06.2003 |
| Разработан: | Союзспортпроект Спорткомитета СССР |
| Утверждён: | 03.11.1987 Госгражданстрой (Gosgrazhdanstroy 351) |
| Издан: | ЦИТП Госстроя СССР (CITP, Gosstroy (USSR) 1988 г. ) |















