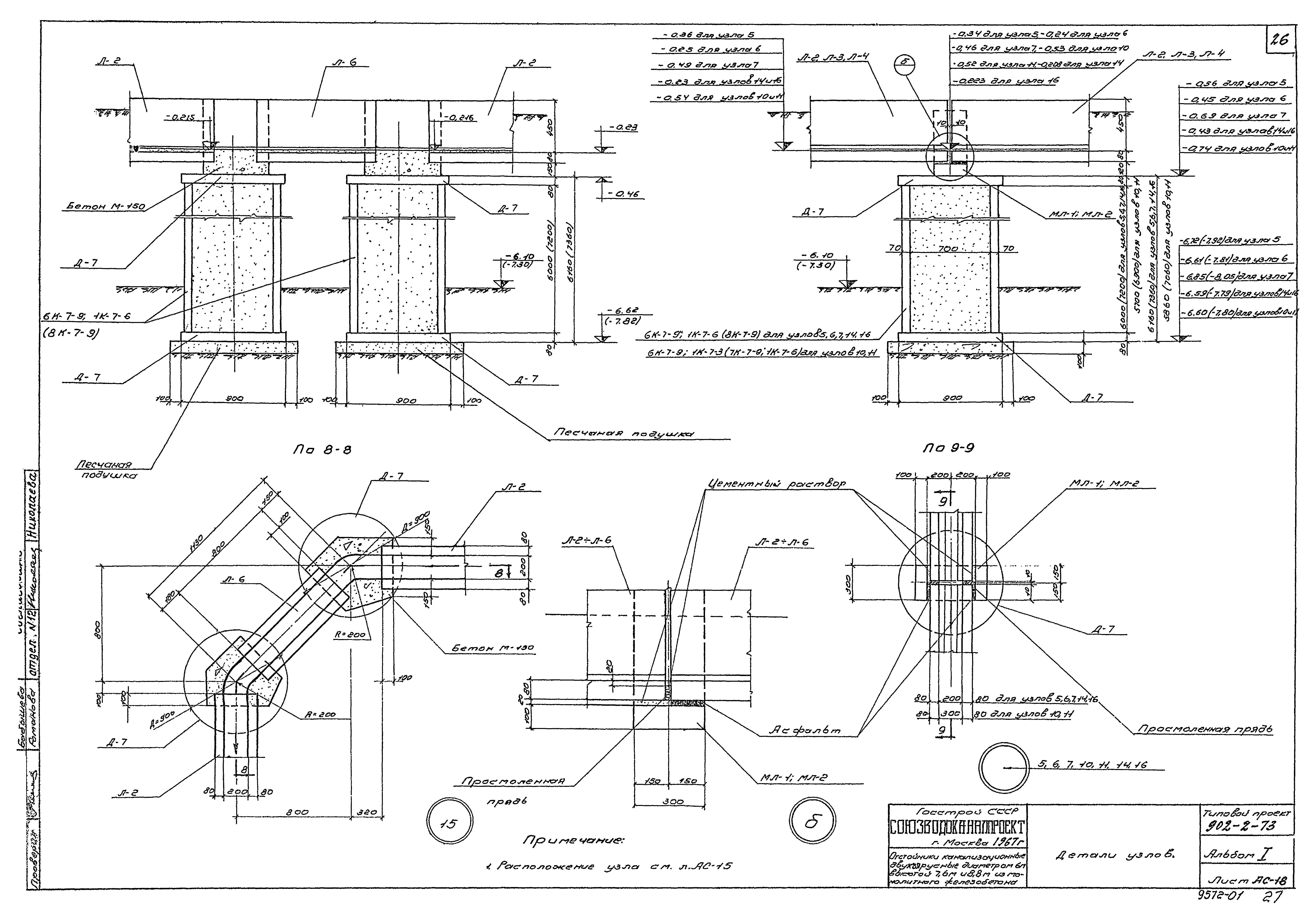
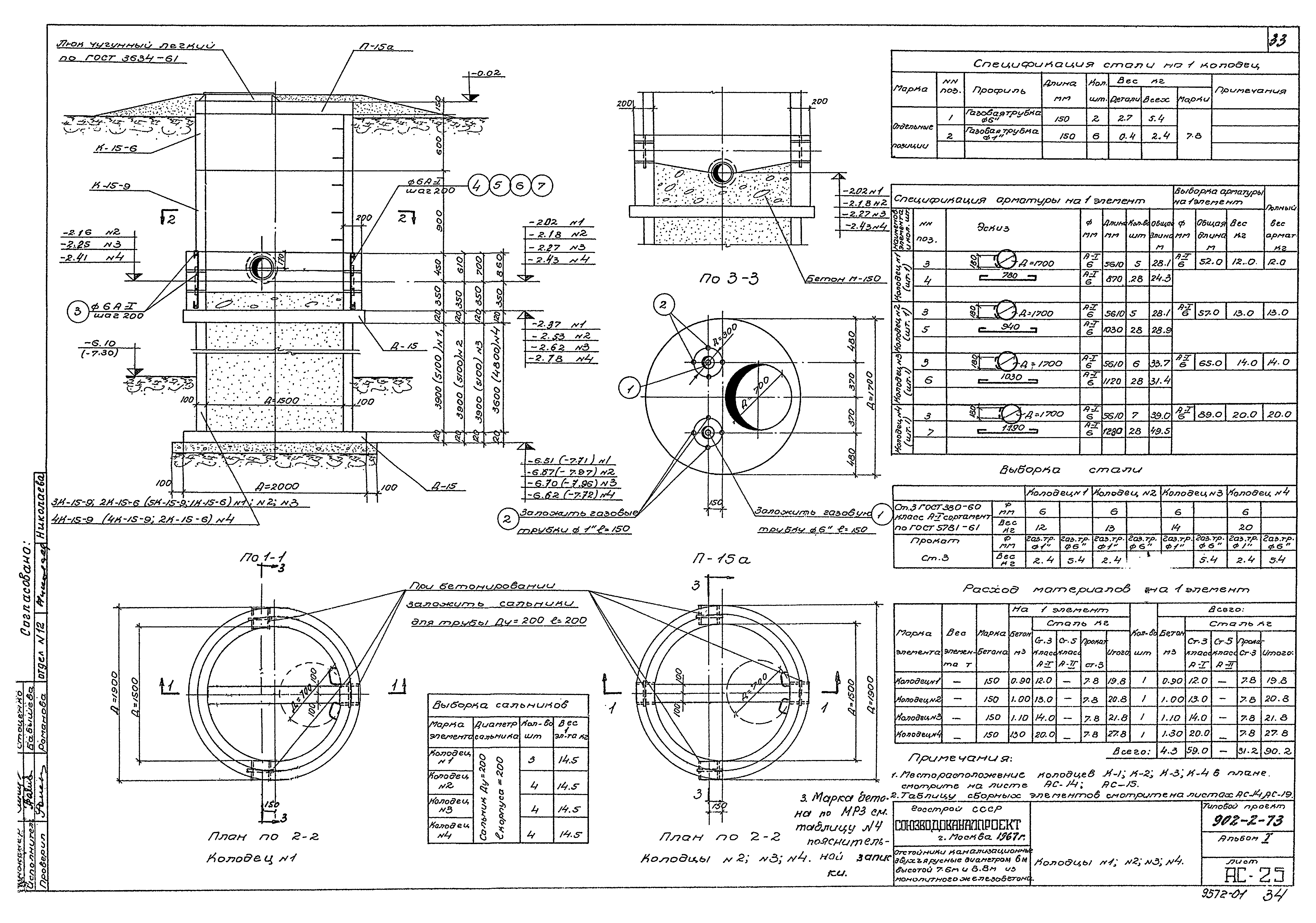
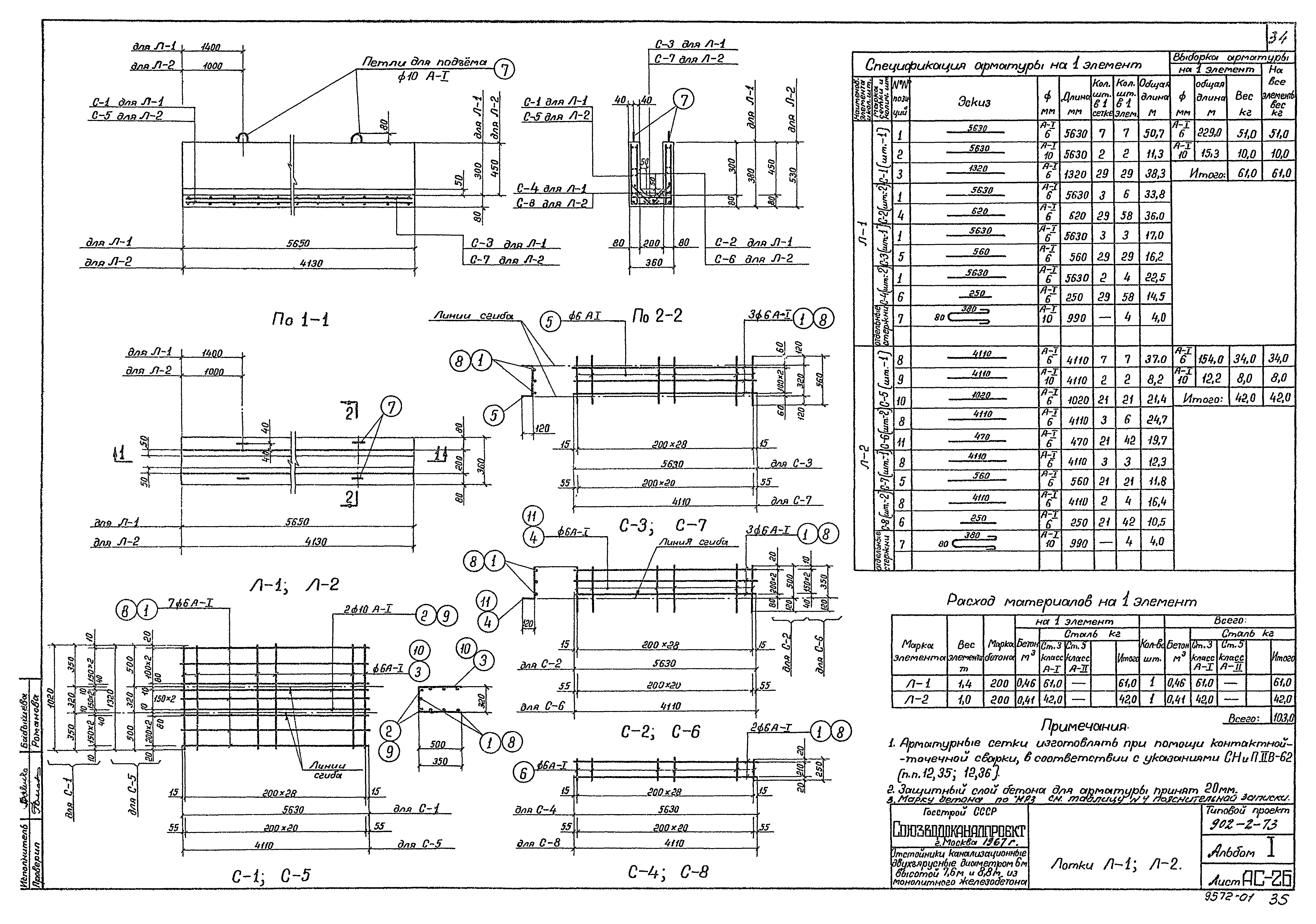
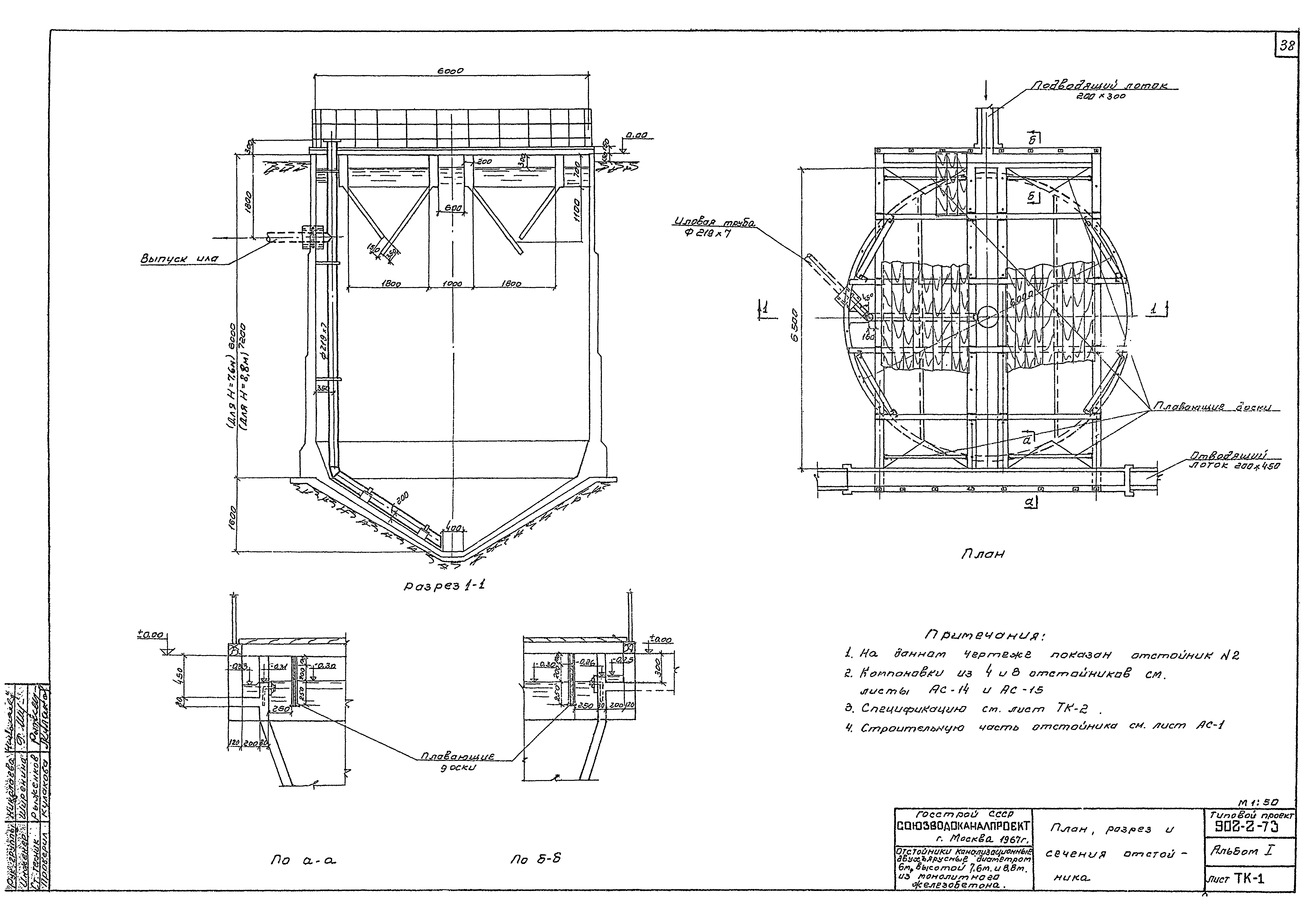
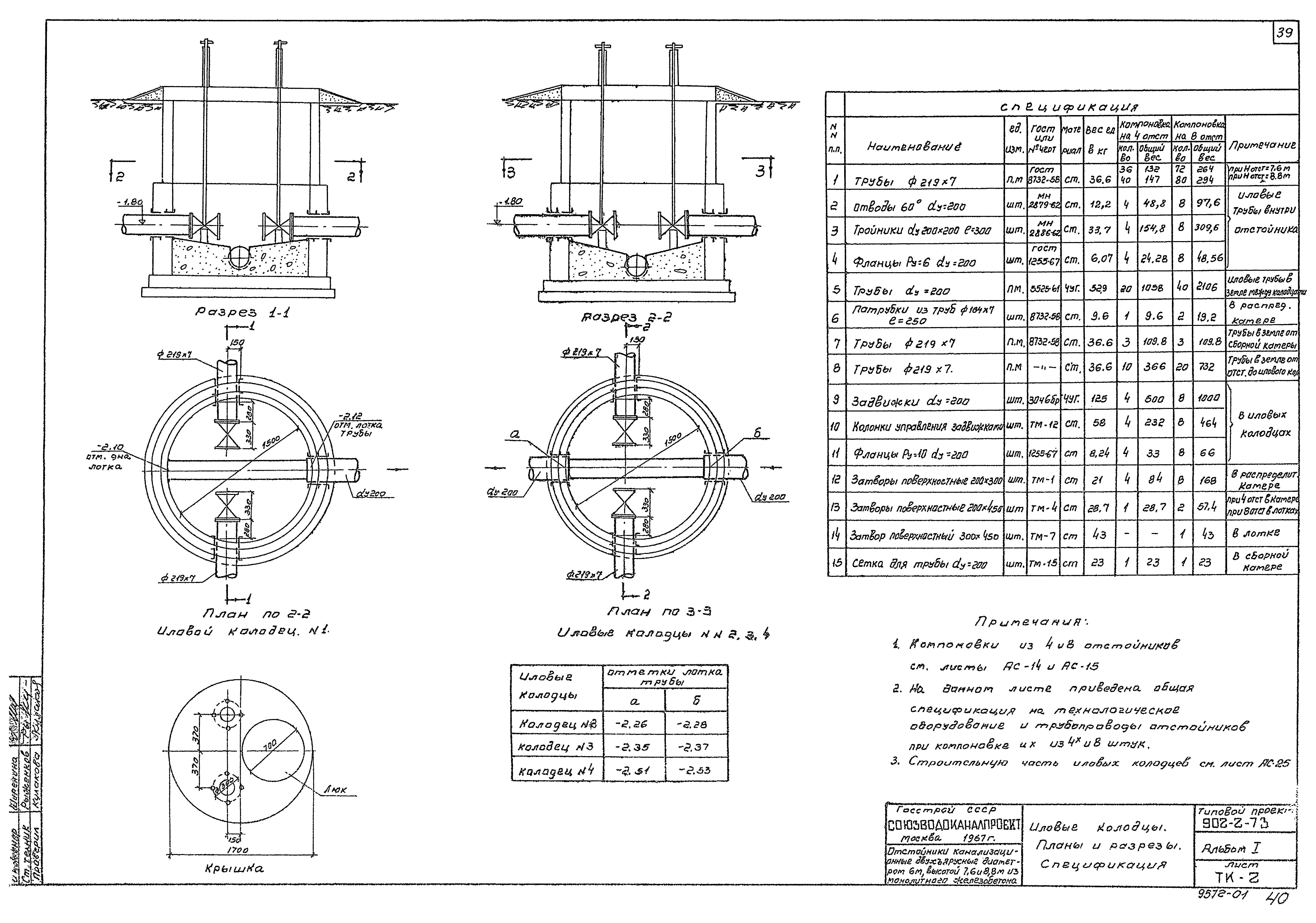
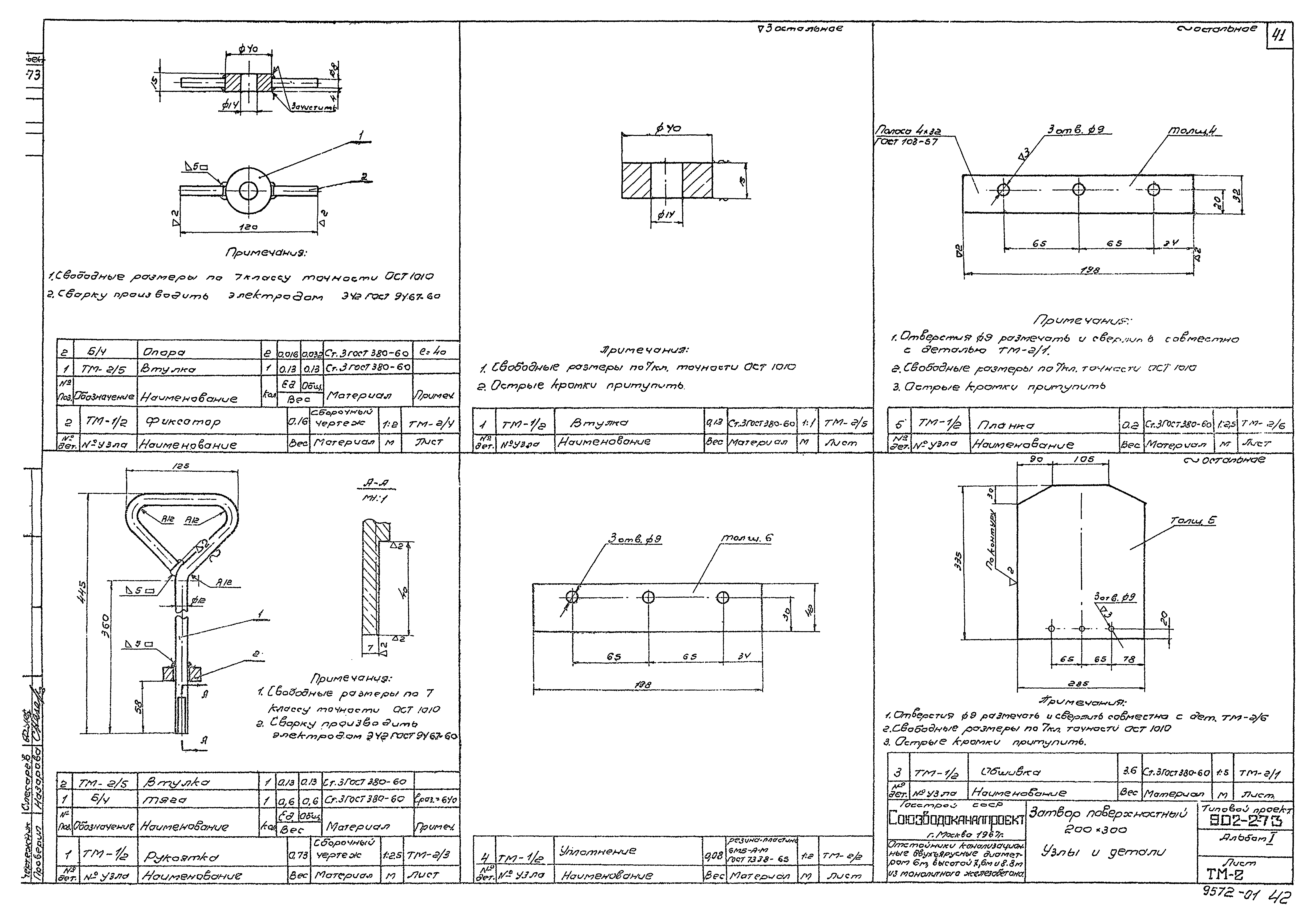
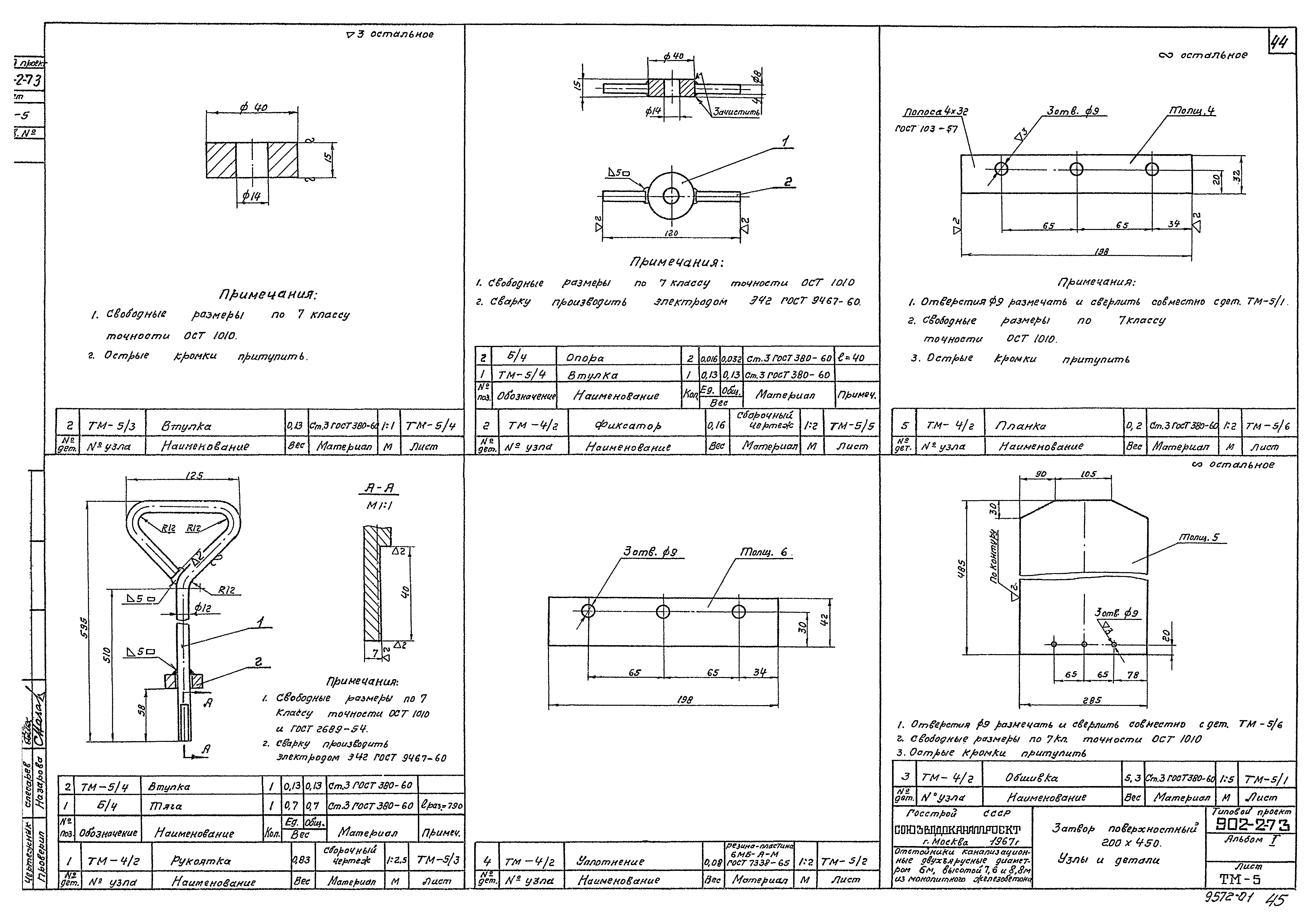
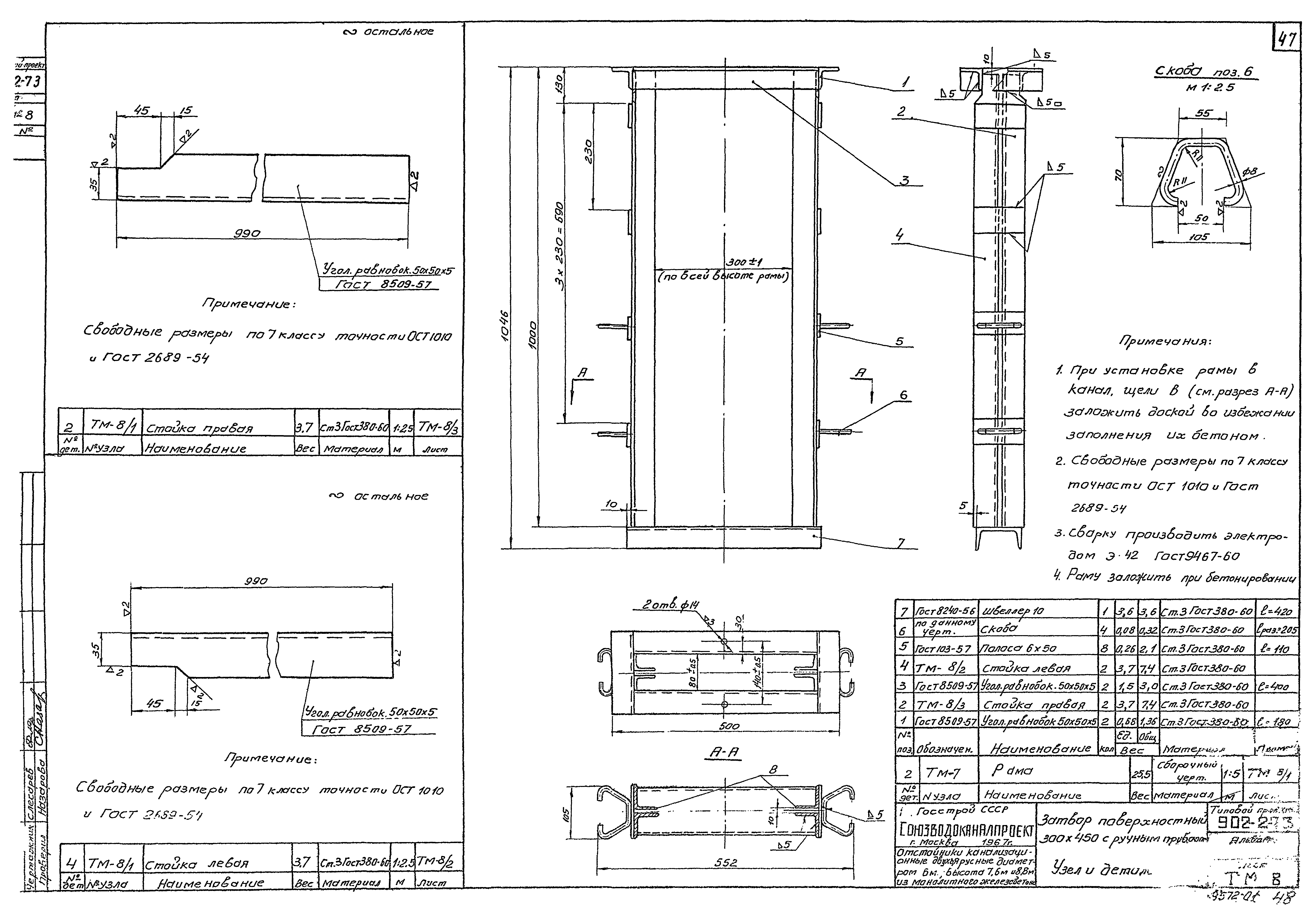
Скачать Типовой проект 902-2-73 Альбом I. Пояснительная записка и чертежиДата актуализации: 01.01.2021 Типовой проект 902-2-73
Альбом I. Пояснительная записка и чертежи| Обозначение: | Типовой проект 902-2-73 | | Обозначение англ: | 902-2-73 | | Статус: | отменен | | Название рус.: | Альбом I. Пояснительная записка и чертежи | | Дата добавления в базу: | 01.02.2020 | | Дата актуализации: | 01.01.2021 | | Дата введения: | 01.12.1967 | | Дата окончания срока действия: | 01.02.1984 | | Разработан: | ГПИ Союзводоканалпроект
| | Утверждён: | 01.12.1967 Союзводоканалпроект (Soyuzvodokanalproject 248)
|
                                                    
|