Скачать СТО 34.01-2.2-033.1-2017 Линейное коммутационное оборудование 6 - 35 кВ - секционирующие пункты (реклоузеры) Том 1.2 Секционирующие пункты (реклоузеры) Книга 1.2.1 Реклоузеры АО ГК Таврида ЭлектрикДата актуализации: 01.01.2021
|
| Обозначение: | СТО 34.01-2.2-033.1-2017 |
| Обозначение англ: | STO 34.01-2.2-033.1-2017 |
| Статус: | введен впервые |
| Название рус.: | Линейное коммутационное оборудование 6 - 35 кВ - секционирующие пункты (реклоузеры) Том 1.2 Секционирующие пункты (реклоузеры) Книга 1.2.1 "Реклоузеры АО "ГК "Таврида Электрик" |
| Дата добавления в базу: | 01.02.2020 |
| Дата актуализации: | 01.01.2021 |
| Дата введения: | 14.11.2017 |
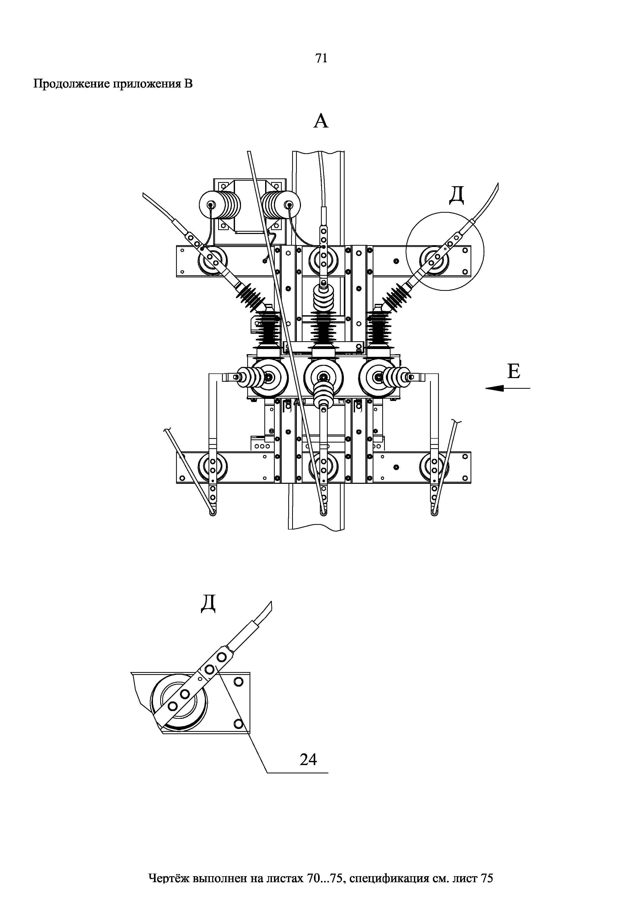
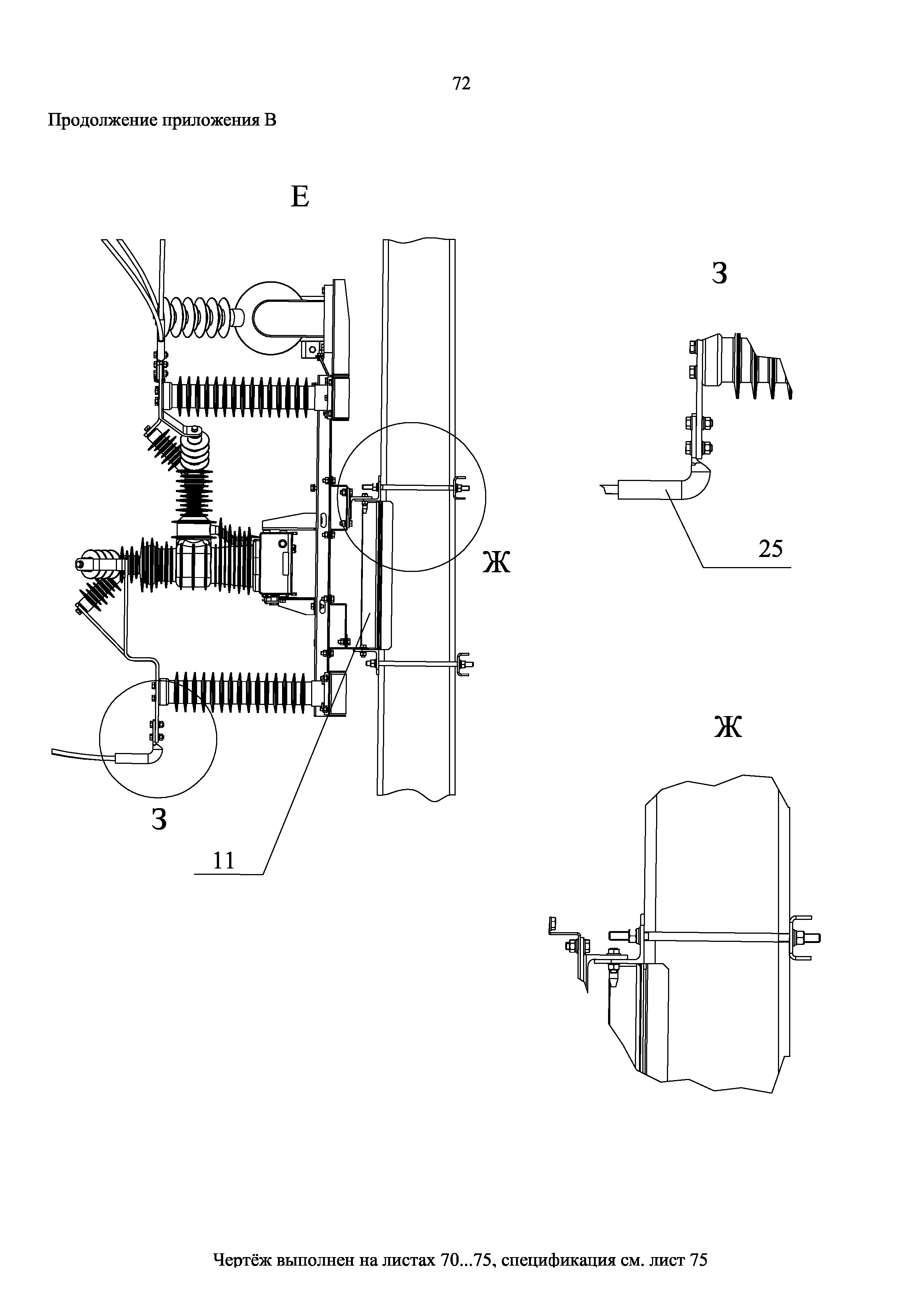
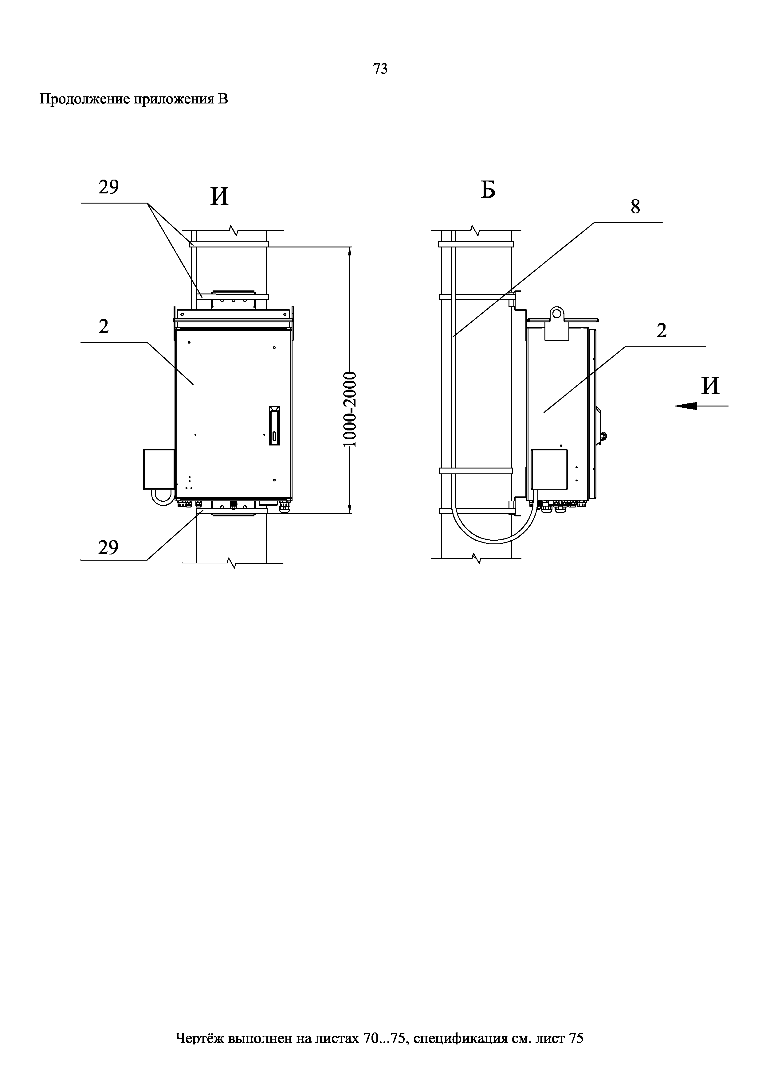
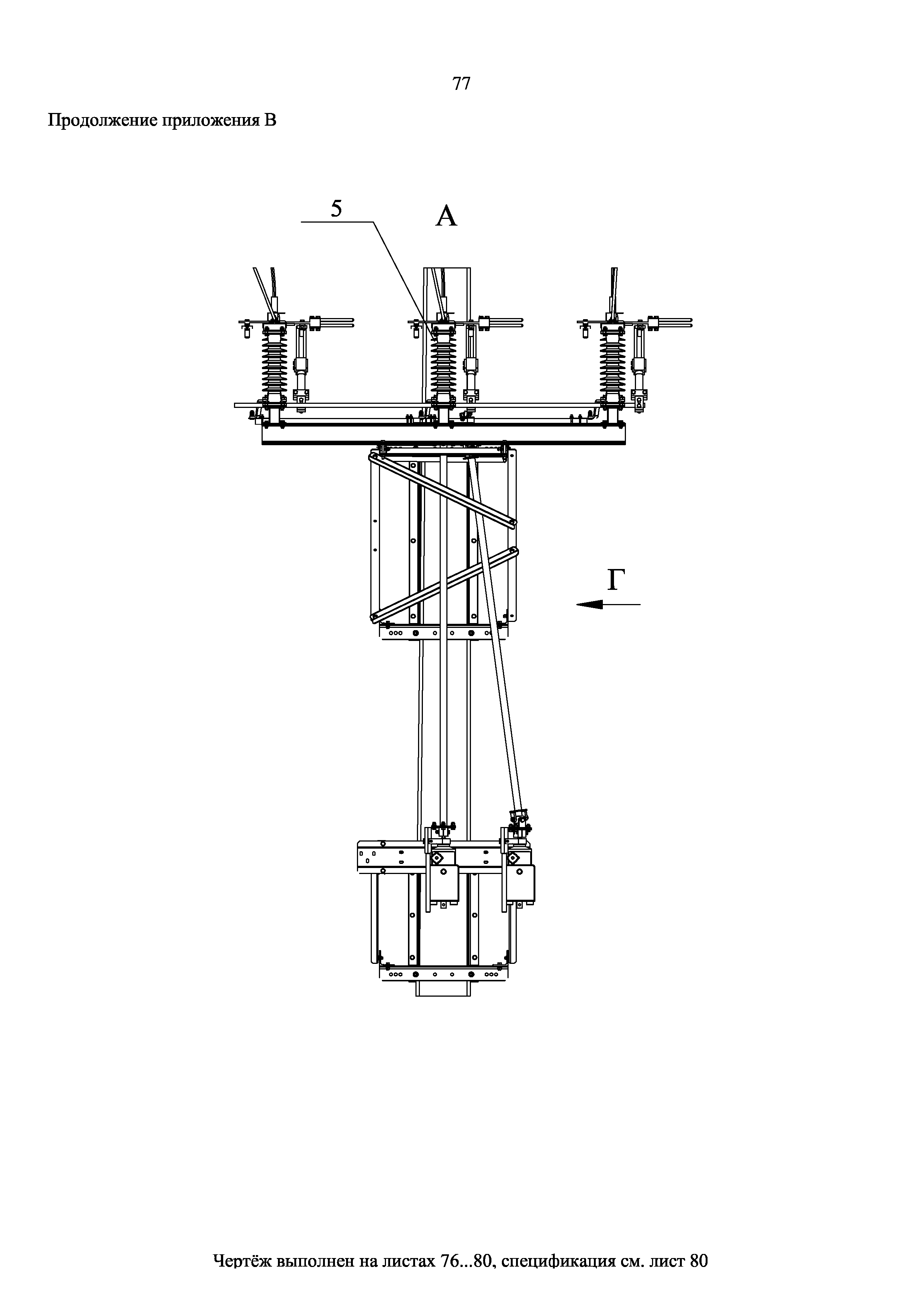
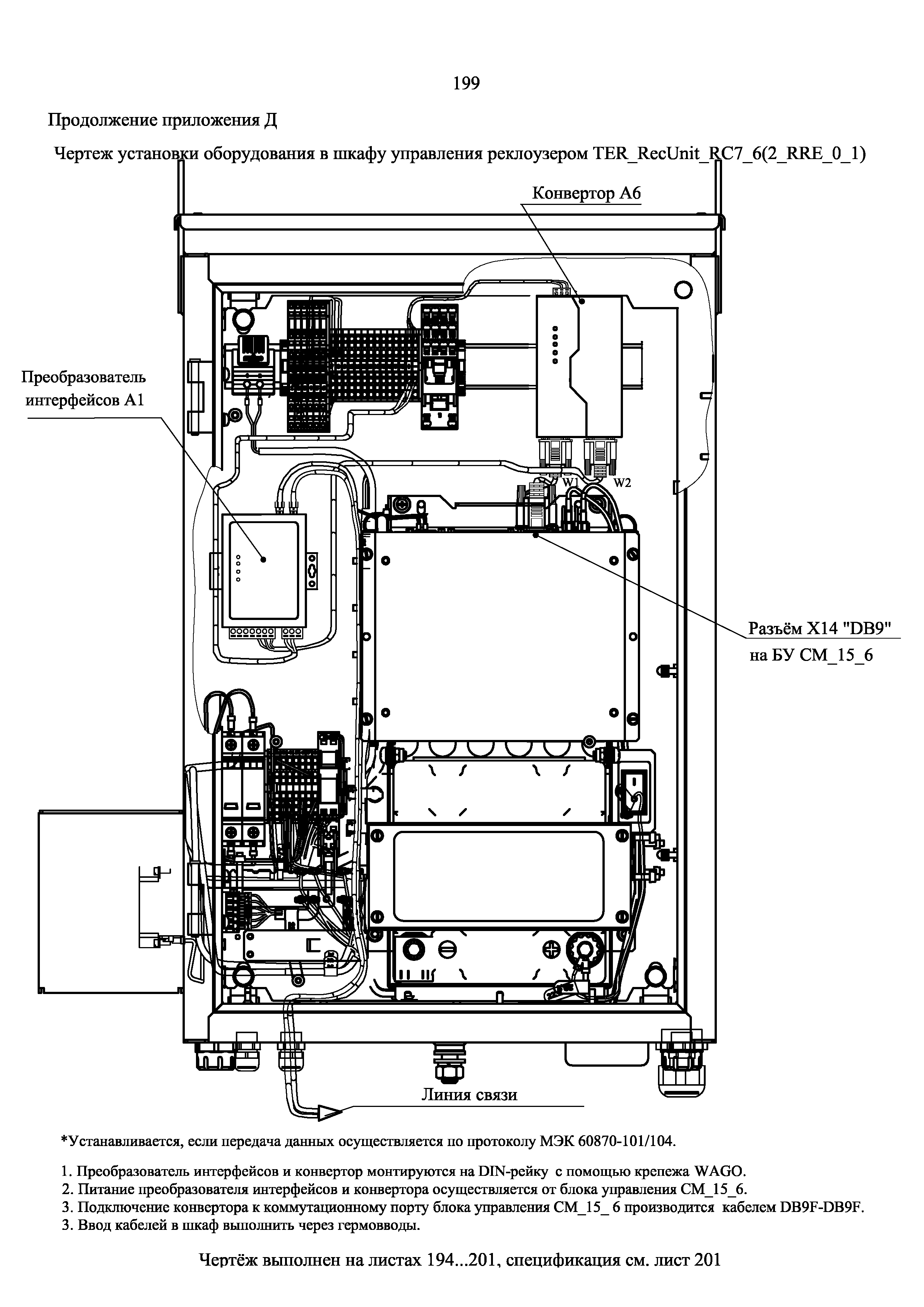
| Область применения: | В составе Книги № 1.2.1 представлены решения по установке реклоузеров на напряжение 15 кВ (Reс15), 25 кВ (Rec25) и 35 кВ (Rec35). Рассмотрены алгоритмы работы реклоузеров, схемы передачи данных посредством GSM канала |
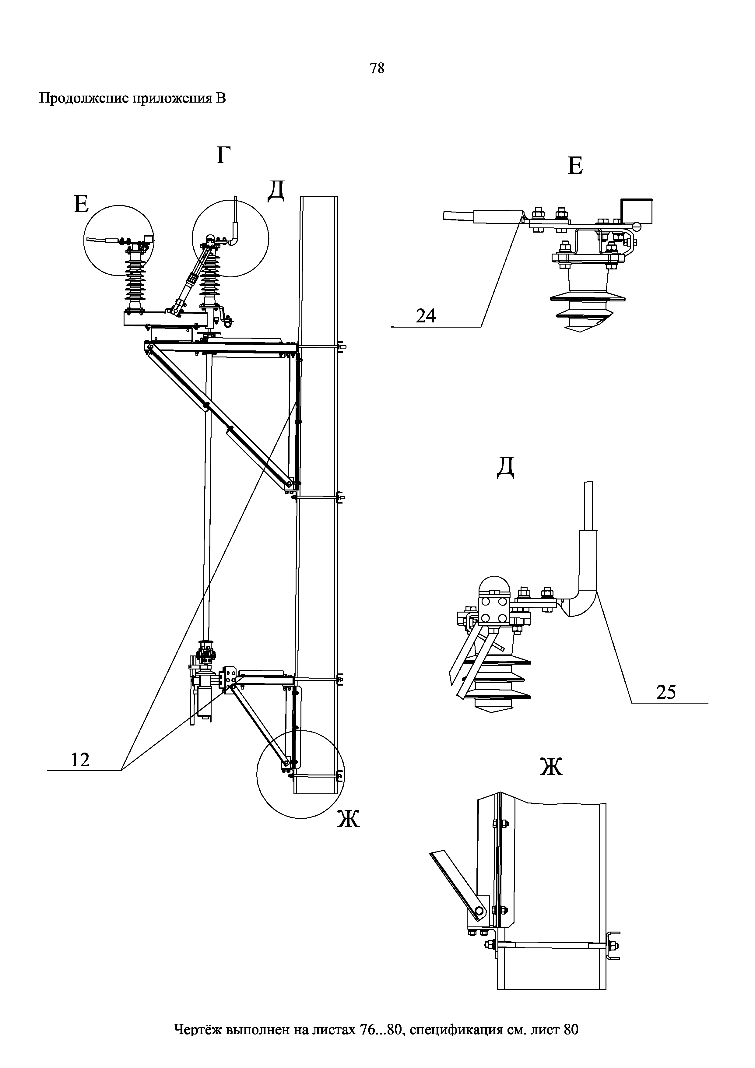
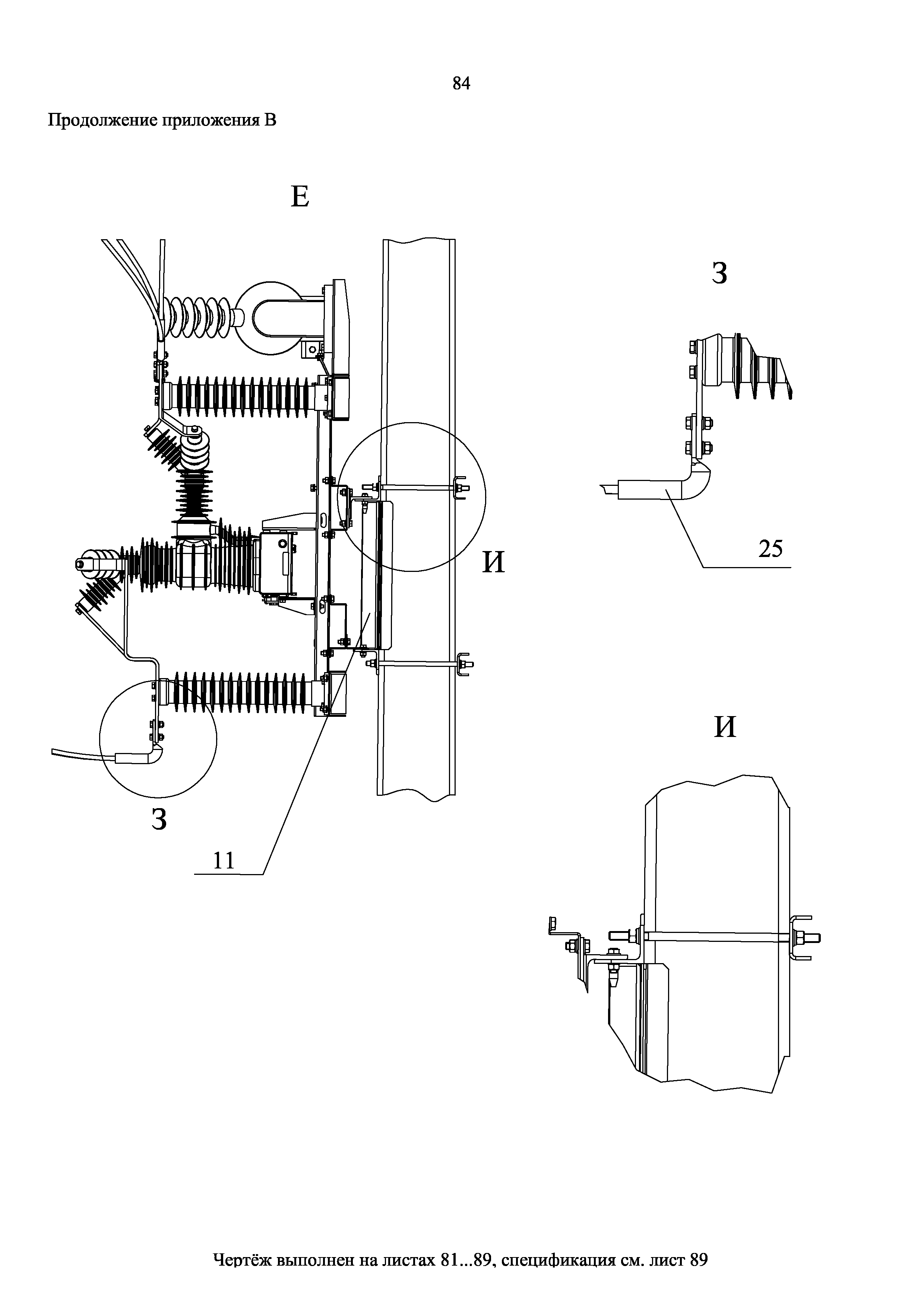
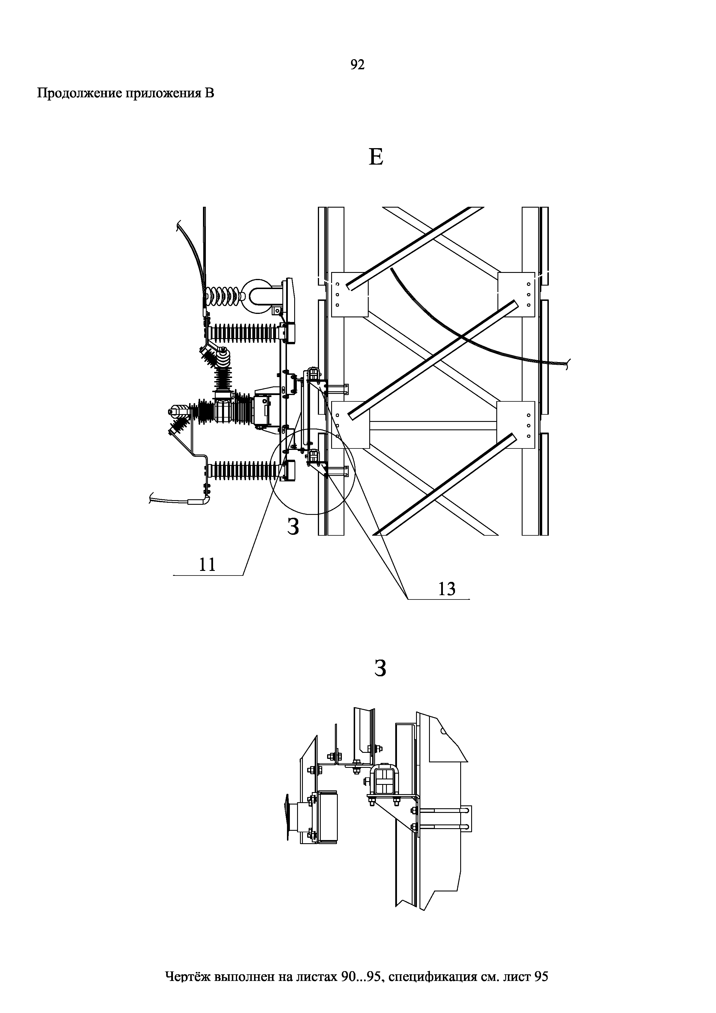
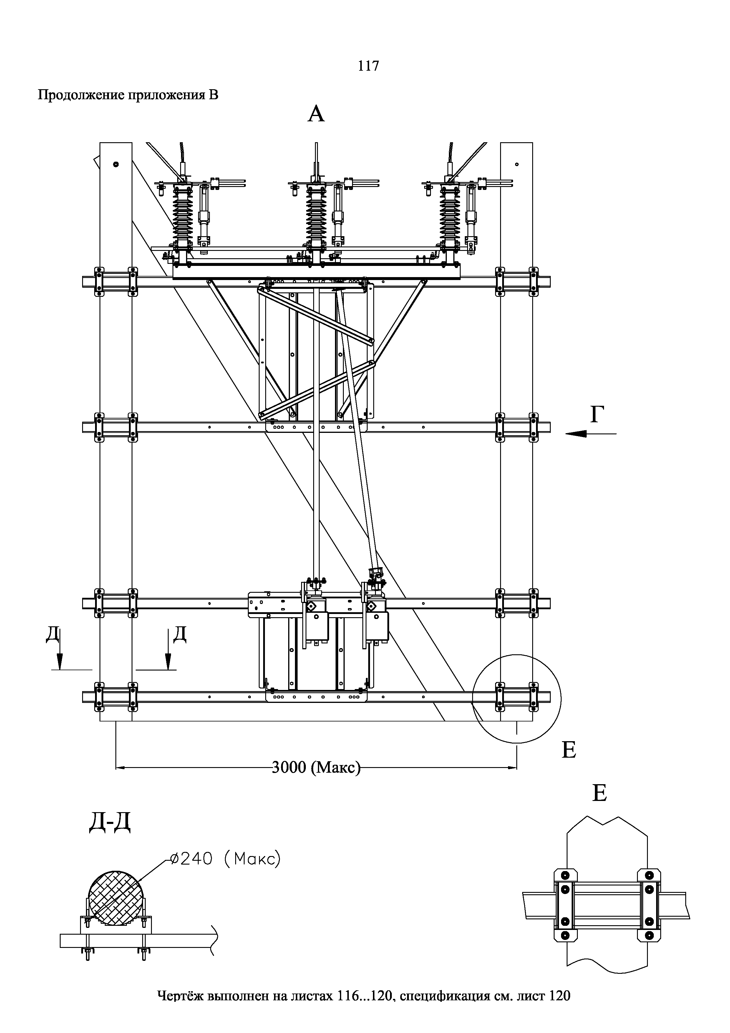
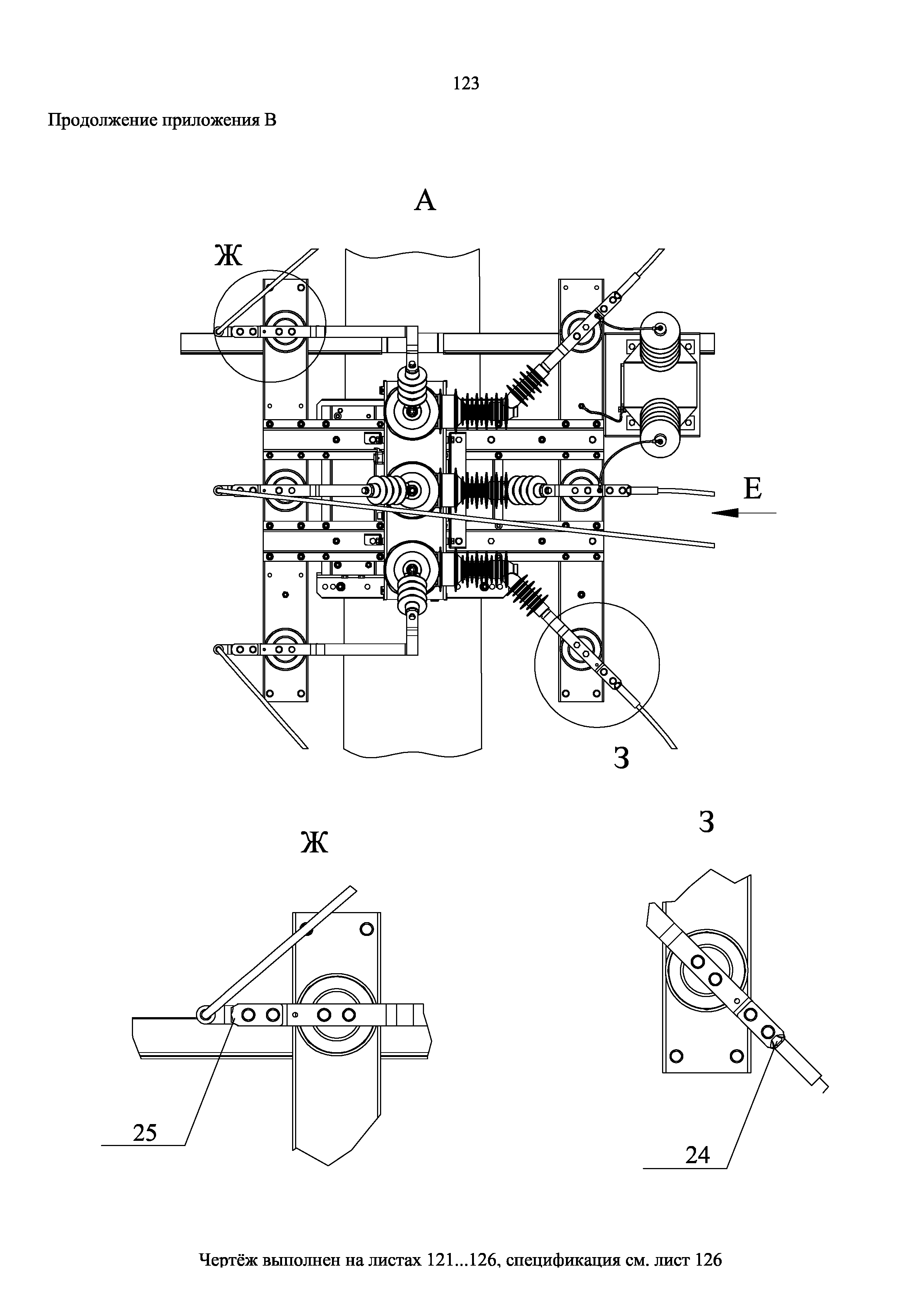
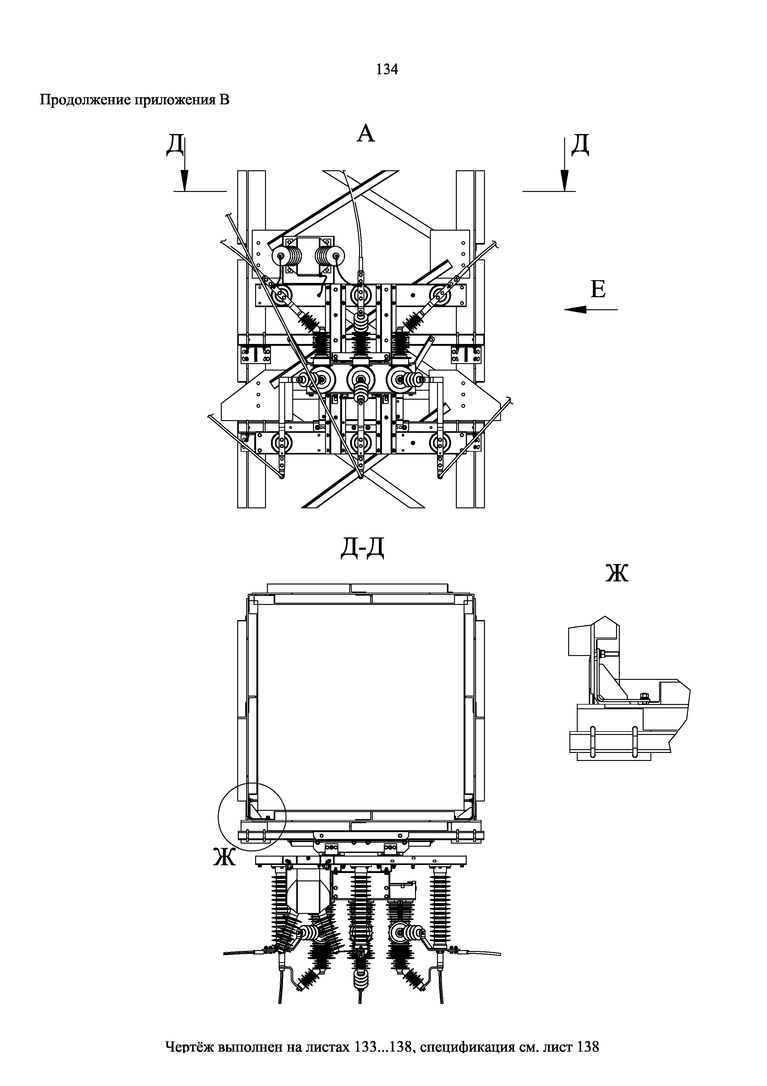
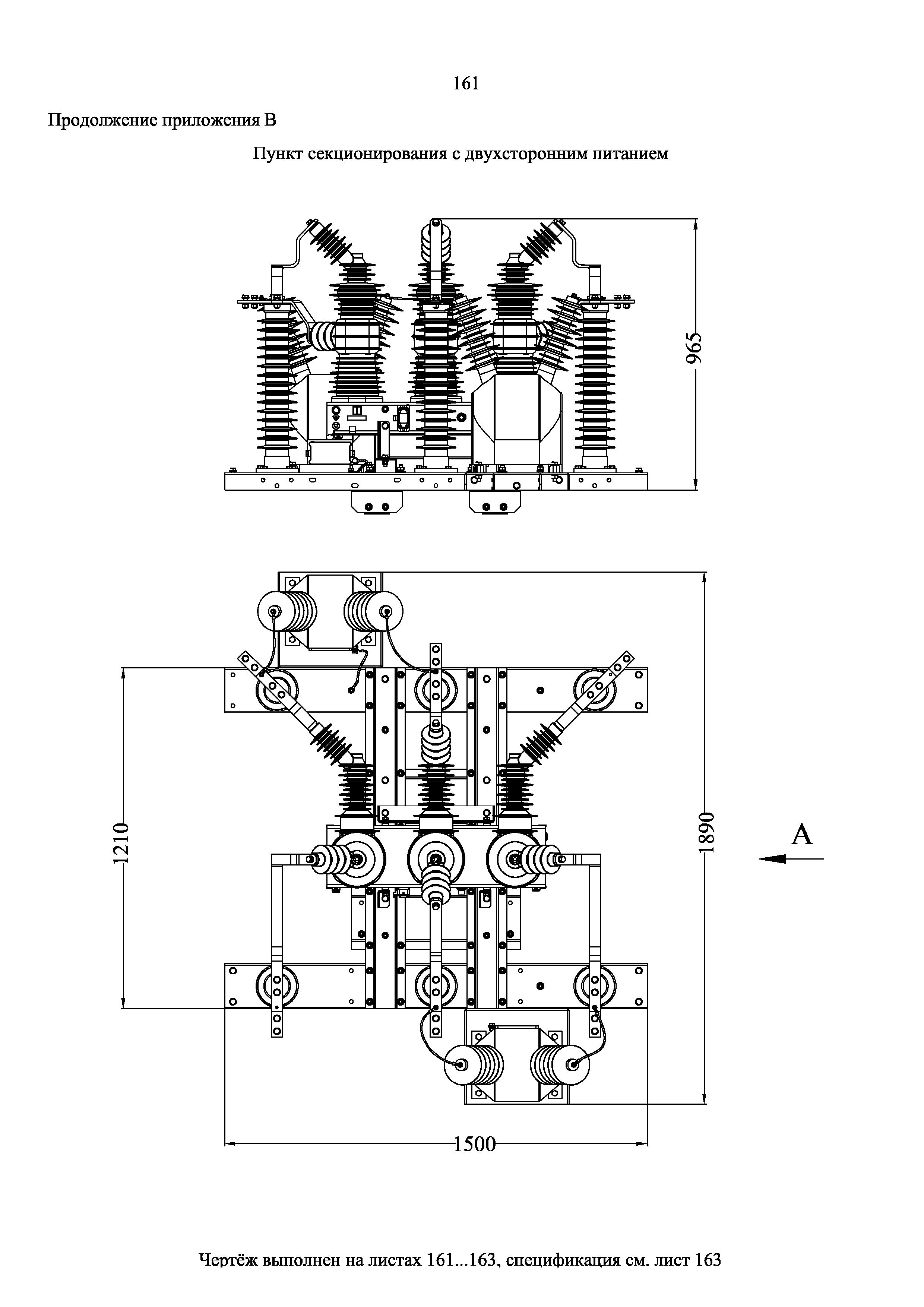
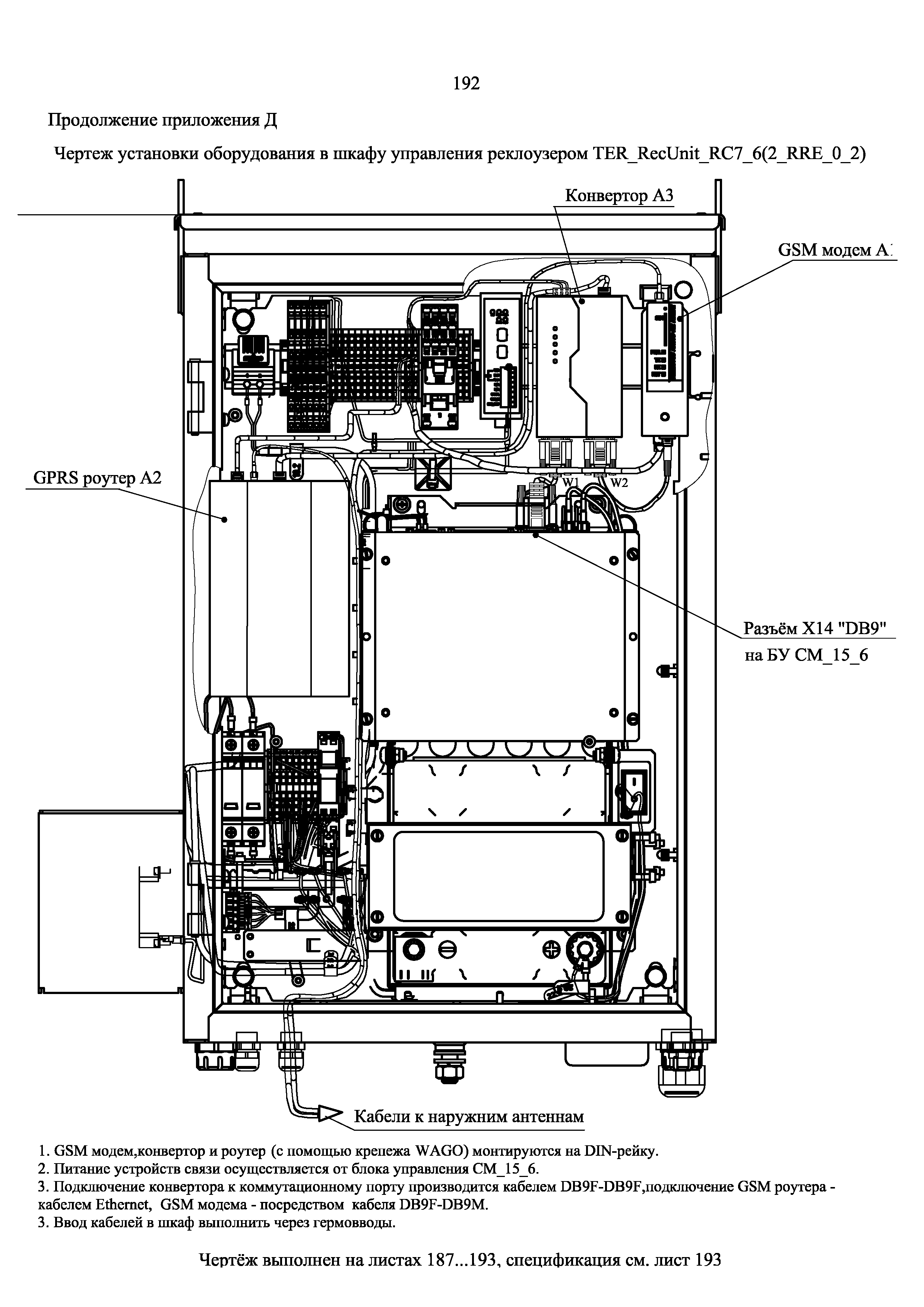
| Оглавление: | 1. Общая часть 2. Основные технические решения с применением реклоузеров Приложение А. Алгоритмы работы реклоузеров при КЗ А.1 Радиальный фидер А.2 Кольцевой фидер Приложение Б. Строительные решения для реклоузеров Reс15 Приложение В. Строительные решения для реклоузеров Rec35_Smart Приложение Г. Решения по передаче данных для реклоузеров Reс15 Приложение Д. Решения по передаче данных для реклоузеров Rec35_Smart |
| Разработан: | ПАО Россети АО ЦТЗ АО Янтарьэнерго |
| Утверждён: | 14.11.2017 ПАО Россети (617р) |
| Издан: | ПАО Россети |
| Нормативные ссылки: |
|







































































































































































































