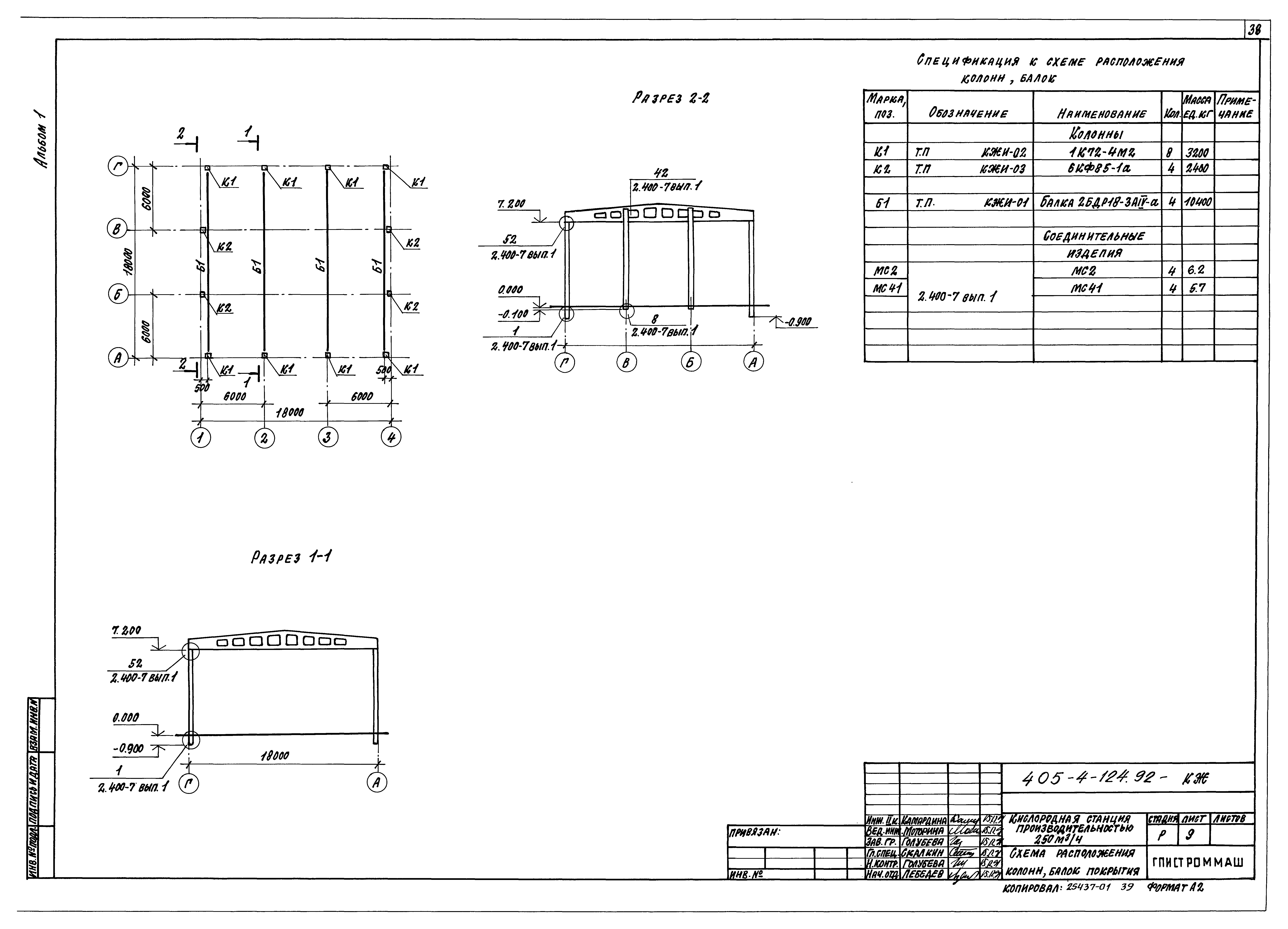
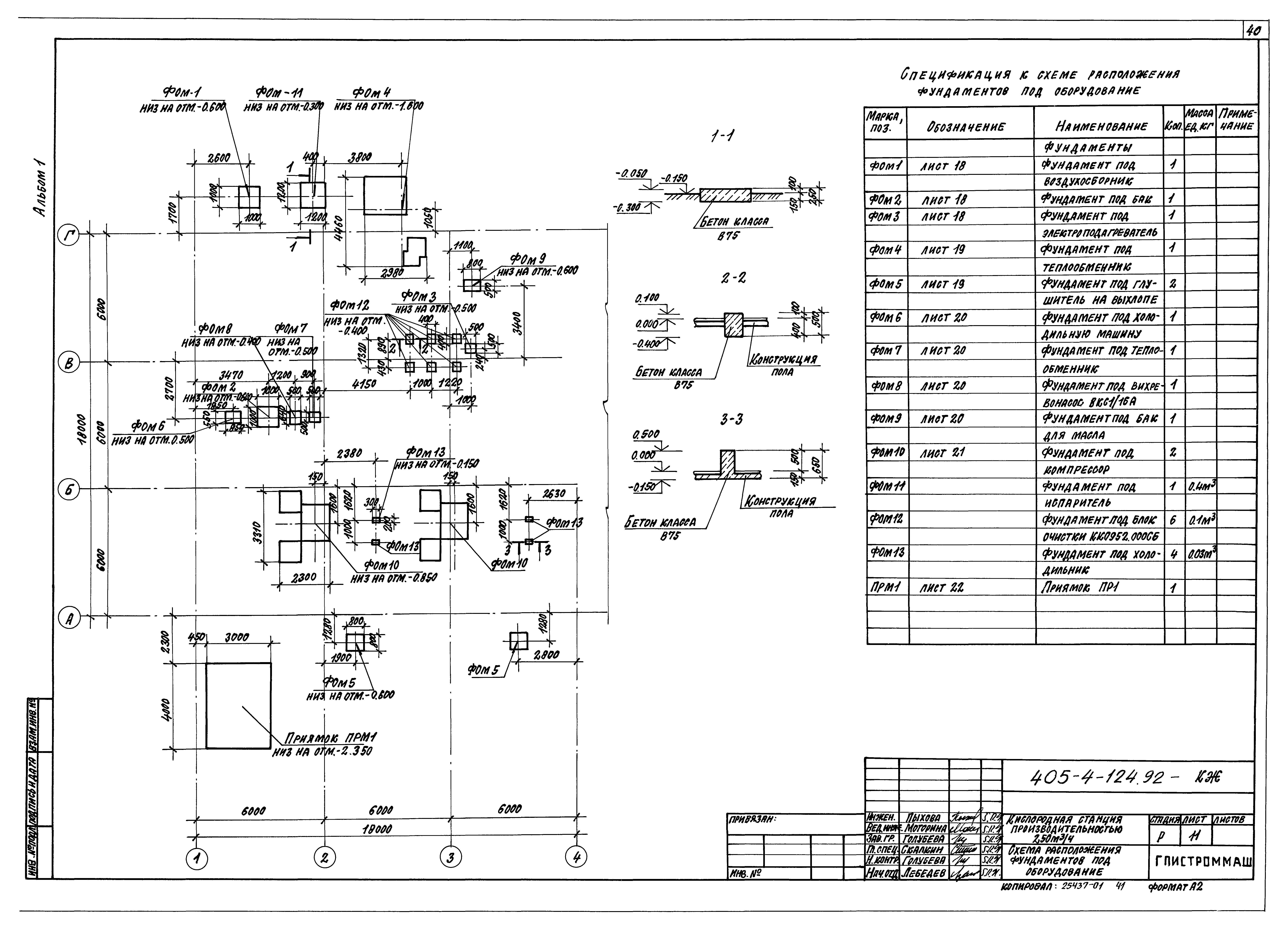
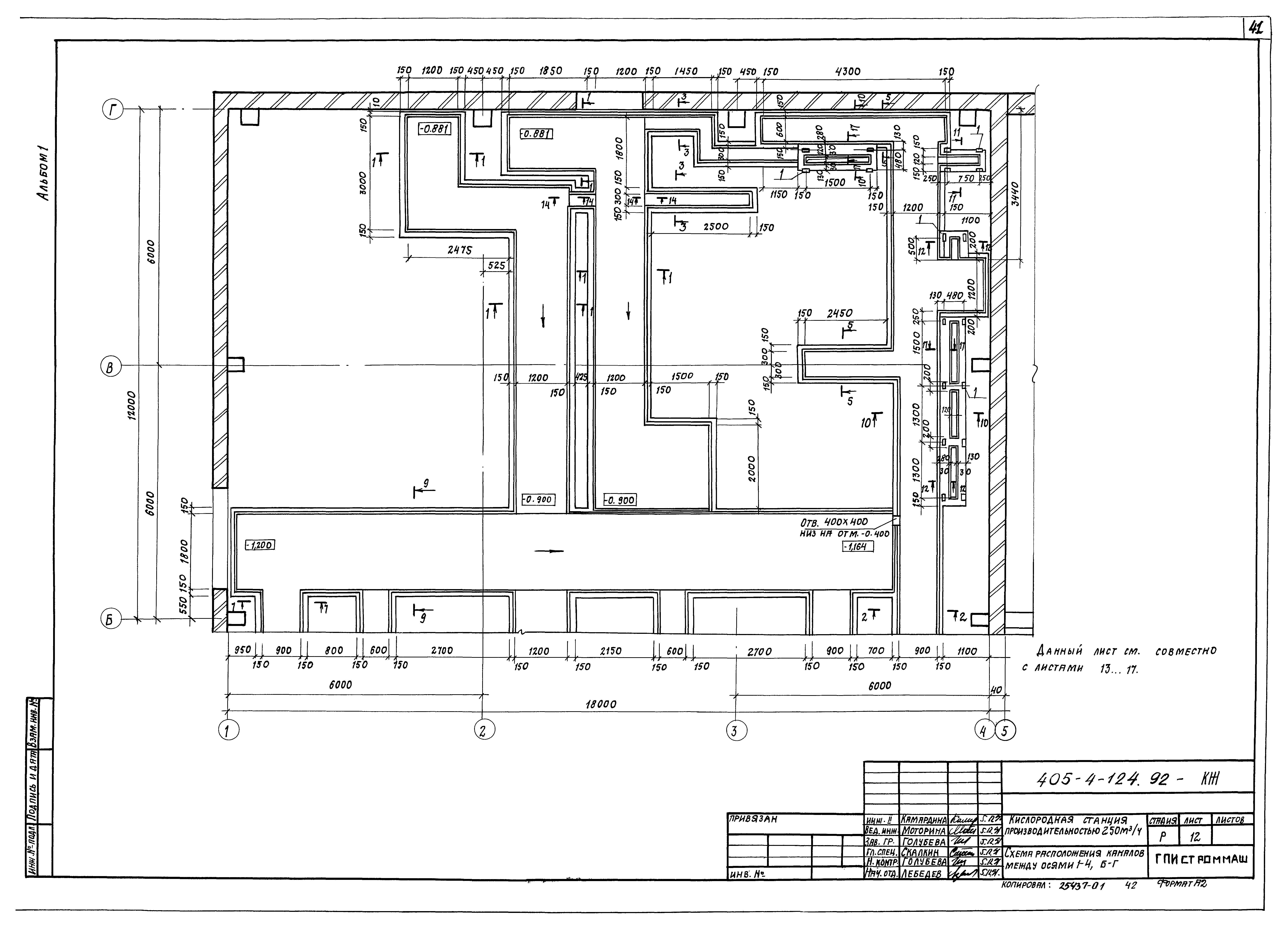
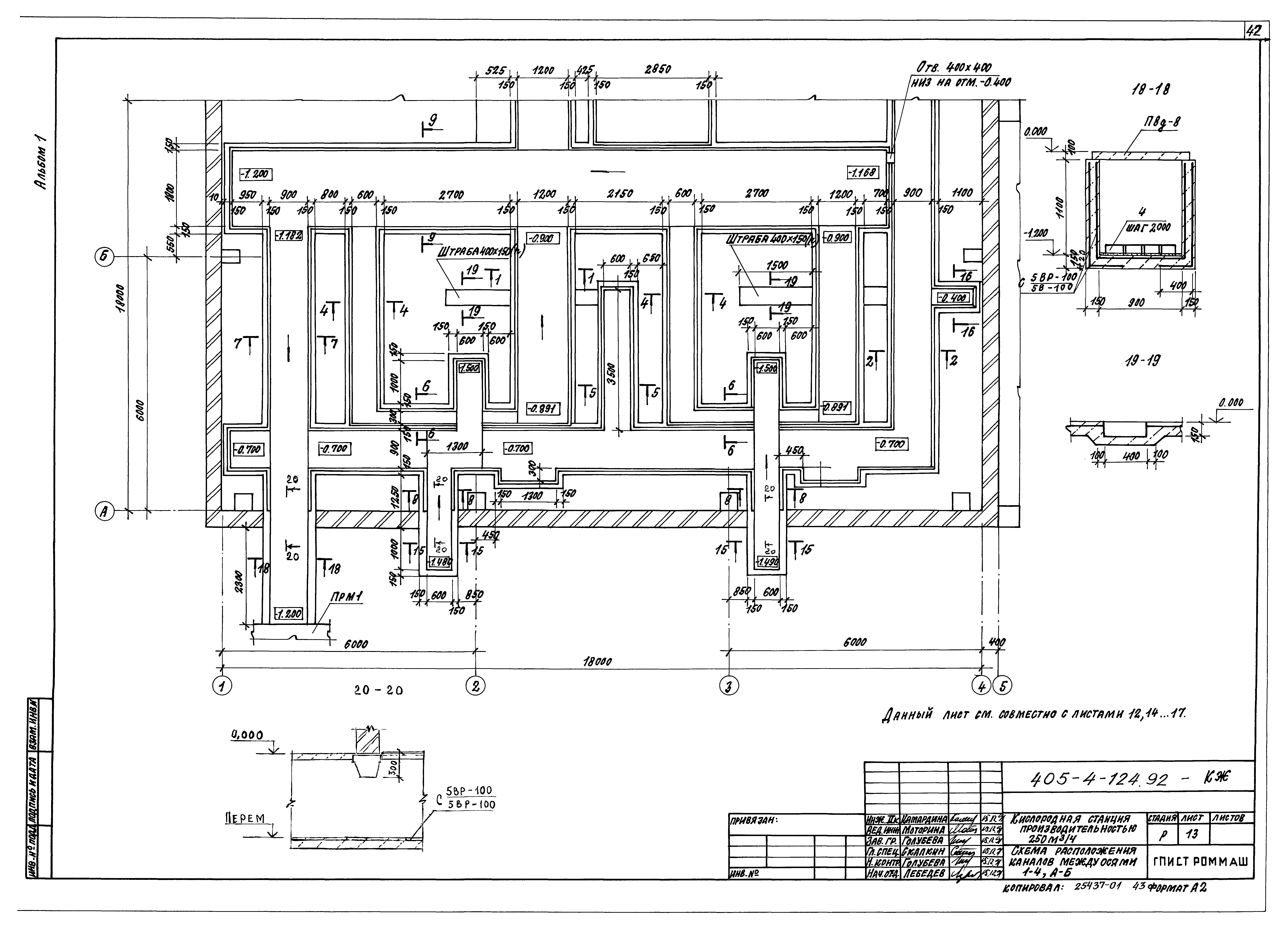
Скачать Типовой проект 405-4-124.92 Альбом 1. Пояснительная записка. Архитектурно-строительные решения. Конструкции железобетонные. Отопление, вентиляция (и кондиционирование воздуха). Внутренние водопровод и канализацияДата актуализации: 01.01.2021 Типовой проект 405-4-124.92
Альбом 1. Пояснительная записка. Архитектурно-строительные решения. Конструкции железобетонные. Отопление, вентиляция (и кондиционирование воздуха). Внутренние водопровод и канализация| Обозначение: | Типовой проект 405-4-124.92 | | Обозначение англ: | 405-4-124.92 | | Статус: | не определен законодательством | | Название рус.: | Альбом 1. Пояснительная записка. Архитектурно-строительные решения. Конструкции железобетонные. Отопление, вентиляция (и кондиционирование воздуха). Внутренние водопровод и канализация | | Дата добавления в базу: | 01.02.2020 | | Дата актуализации: | 01.01.2021 | | Дата введения: | 23.06.1992 | | Дата окончания срока действия: | 30.06.2003 | | Разработан: | ГПИ Строммаш
| | Утверждён: | 13.05.1992 МО Строммаш (16)
|
                                                              
|