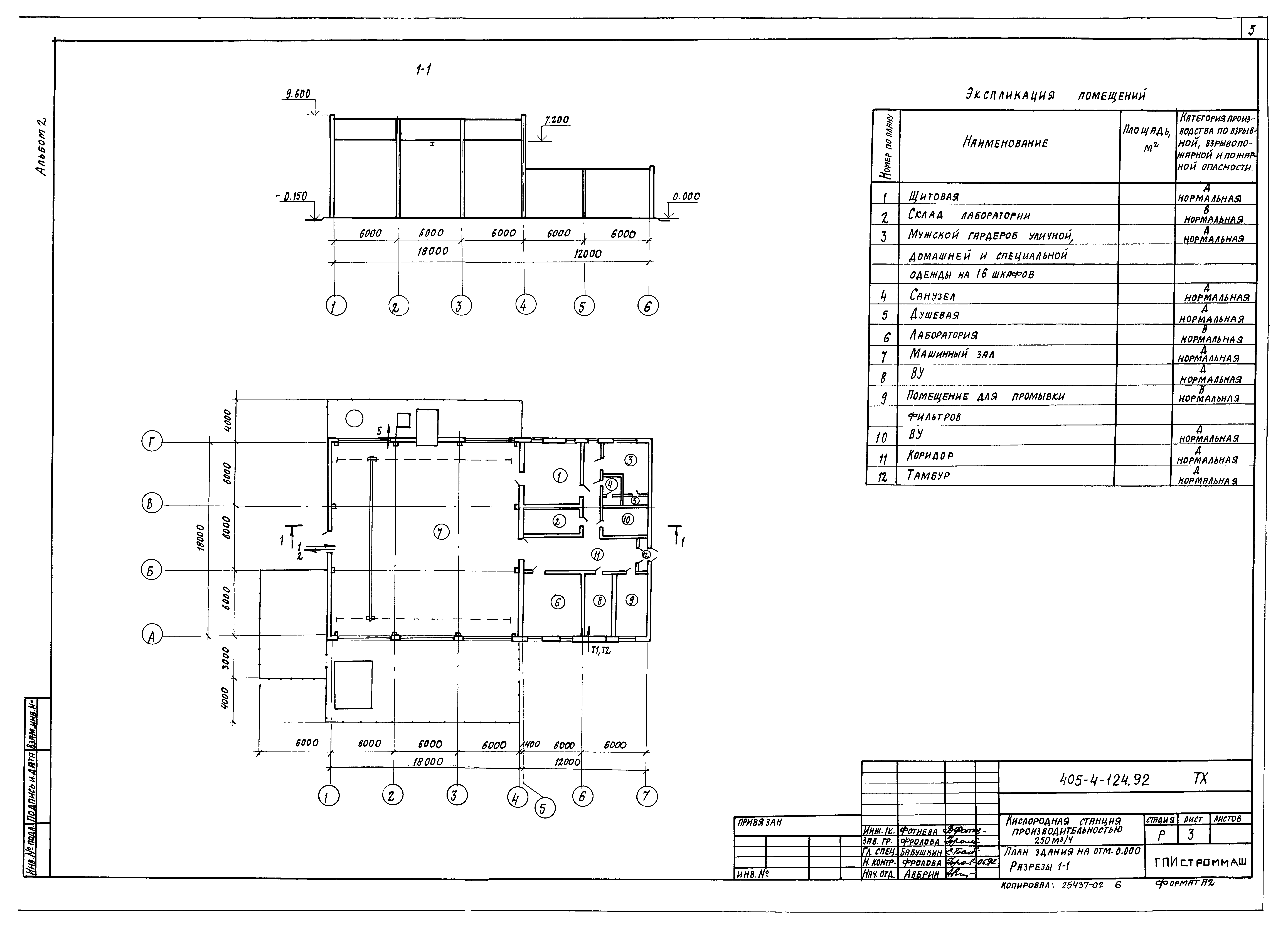
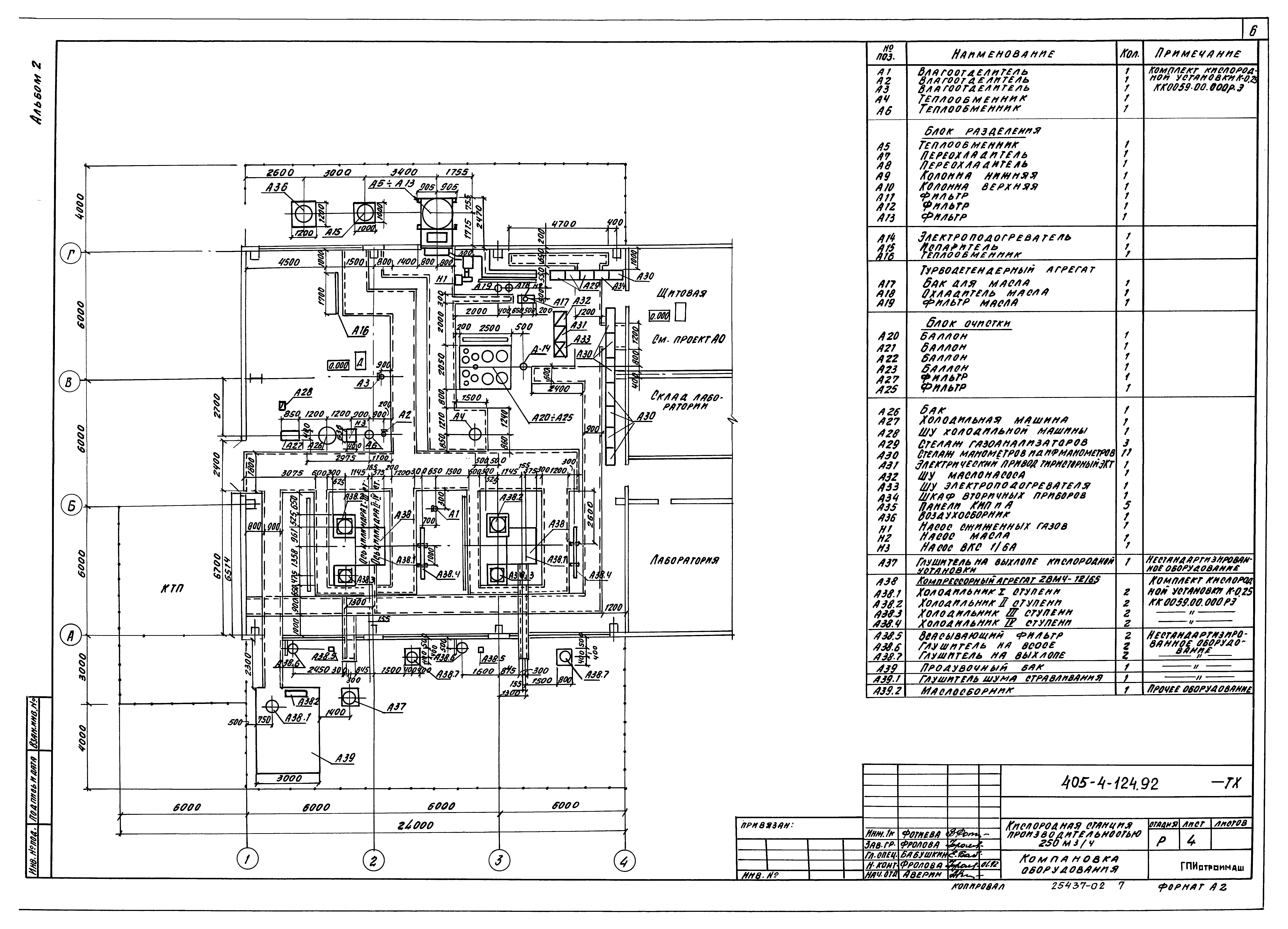
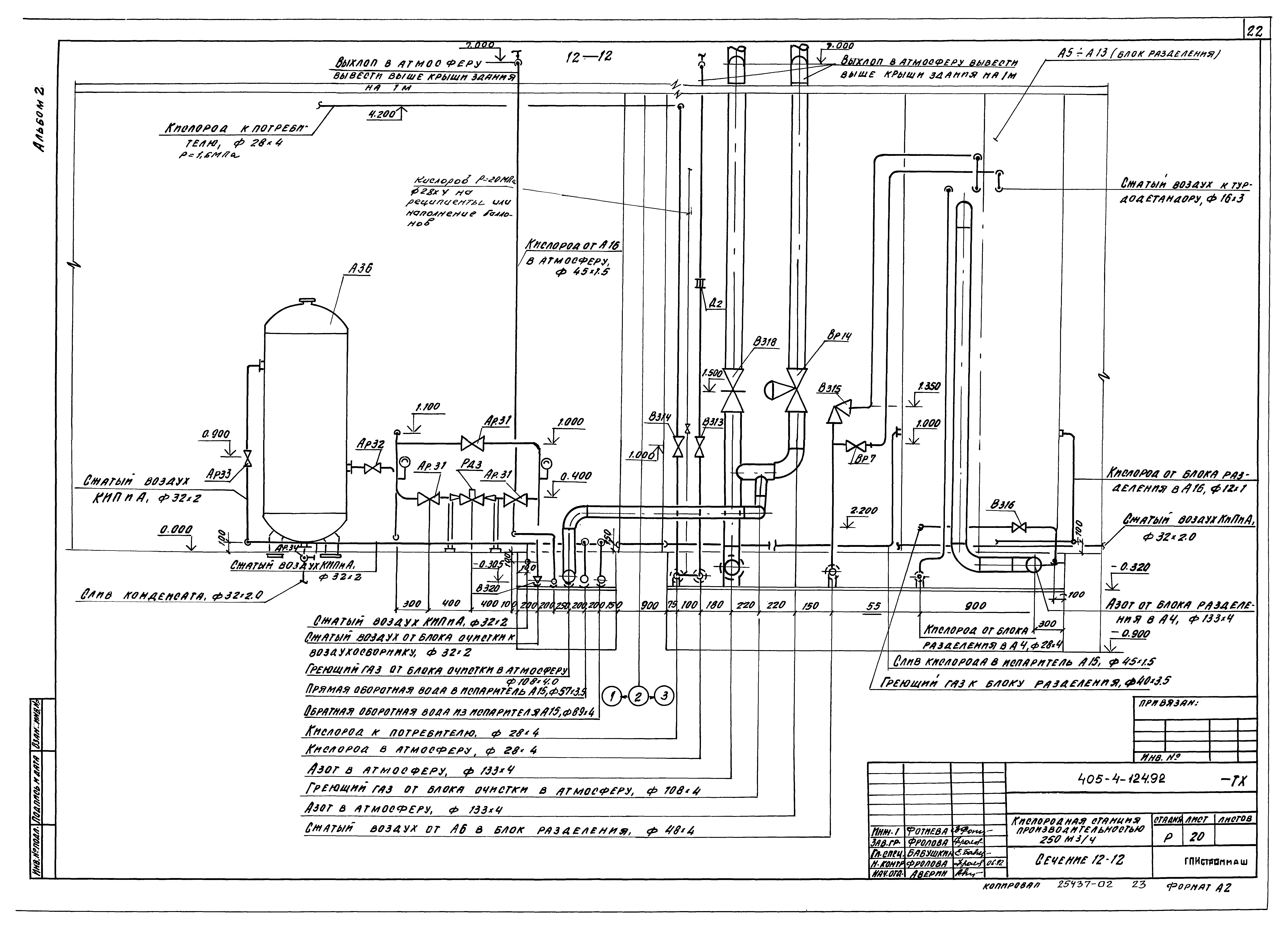
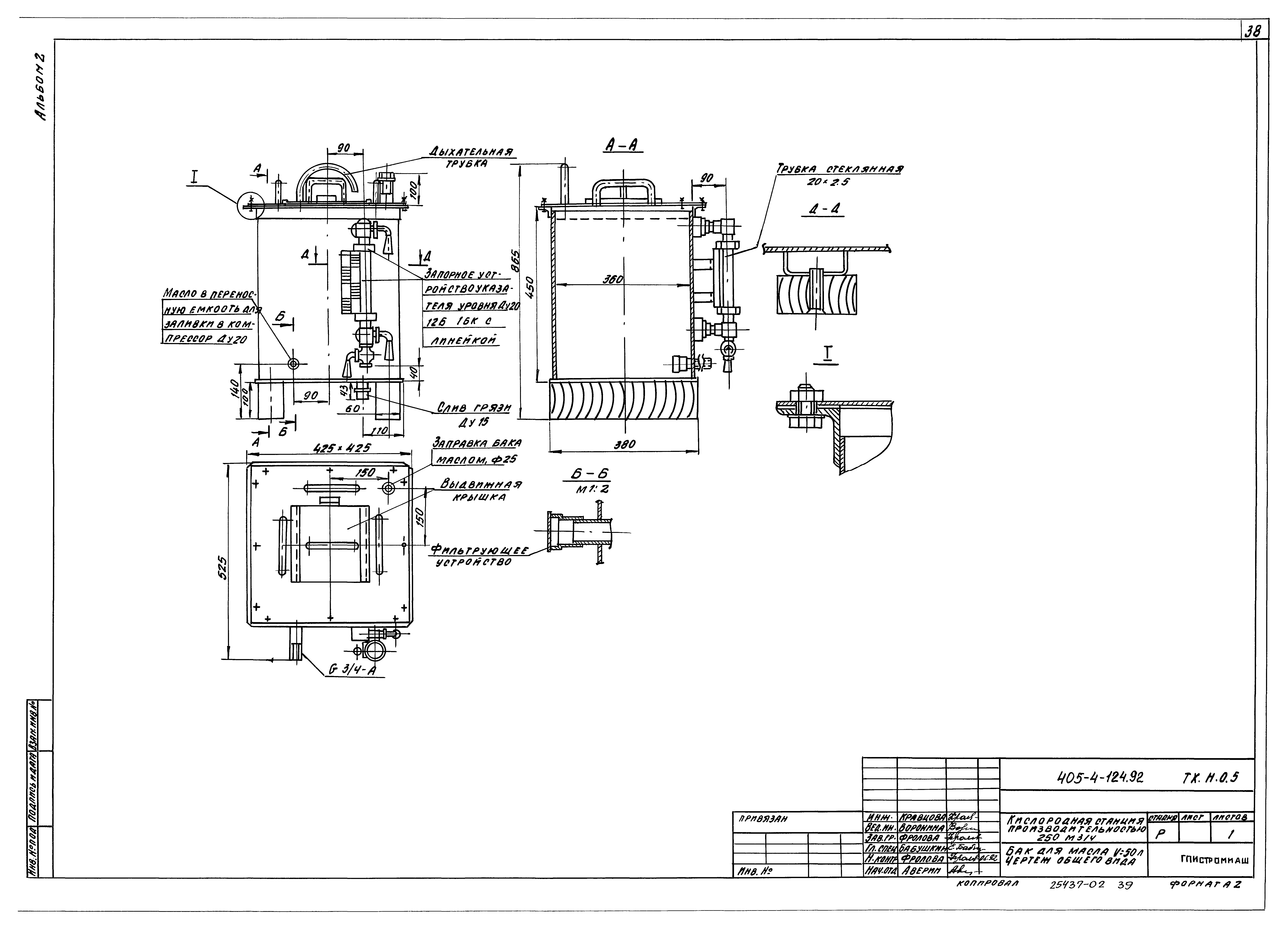
Скачать Типовой проект 405-4-124.92 Альбом 2. Технология производстваДата актуализации: 01.01.2021
|
| Обозначение: | Типовой проект 405-4-124.92 |
| Обозначение англ: | 405-4-124.92 |
| Статус: | не определен законодательством |
| Название рус.: | Альбом 2. Технология производства |
| Дата добавления в базу: | 01.02.2020 |
| Дата актуализации: | 01.01.2021 |
| Дата введения: | 23.06.1992 |
| Дата окончания срока действия: | 30.06.2003 |
| Разработан: | ГПИ Строммаш |
| Утверждён: | 13.05.1992 МО Строммаш (16) |
















































