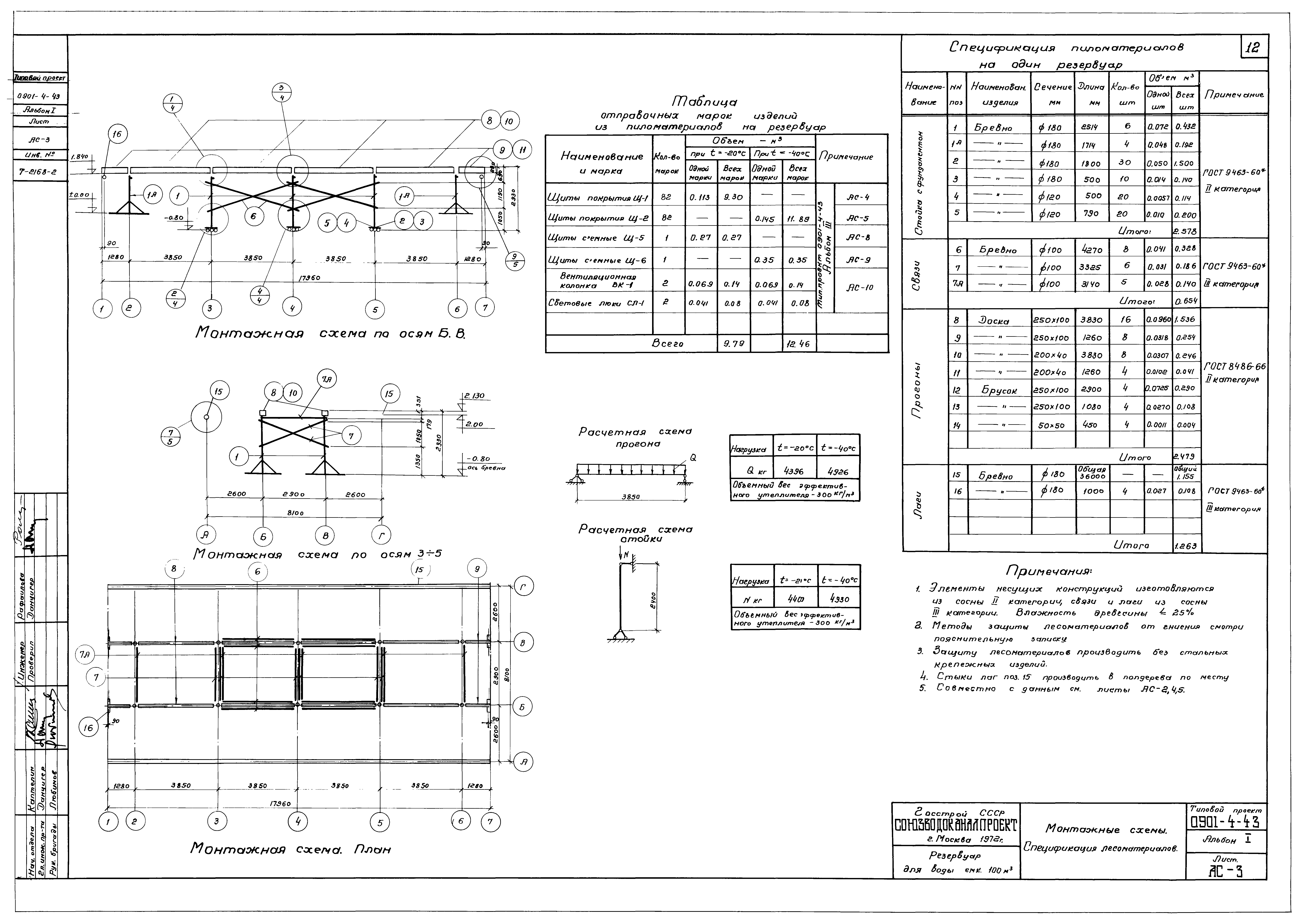
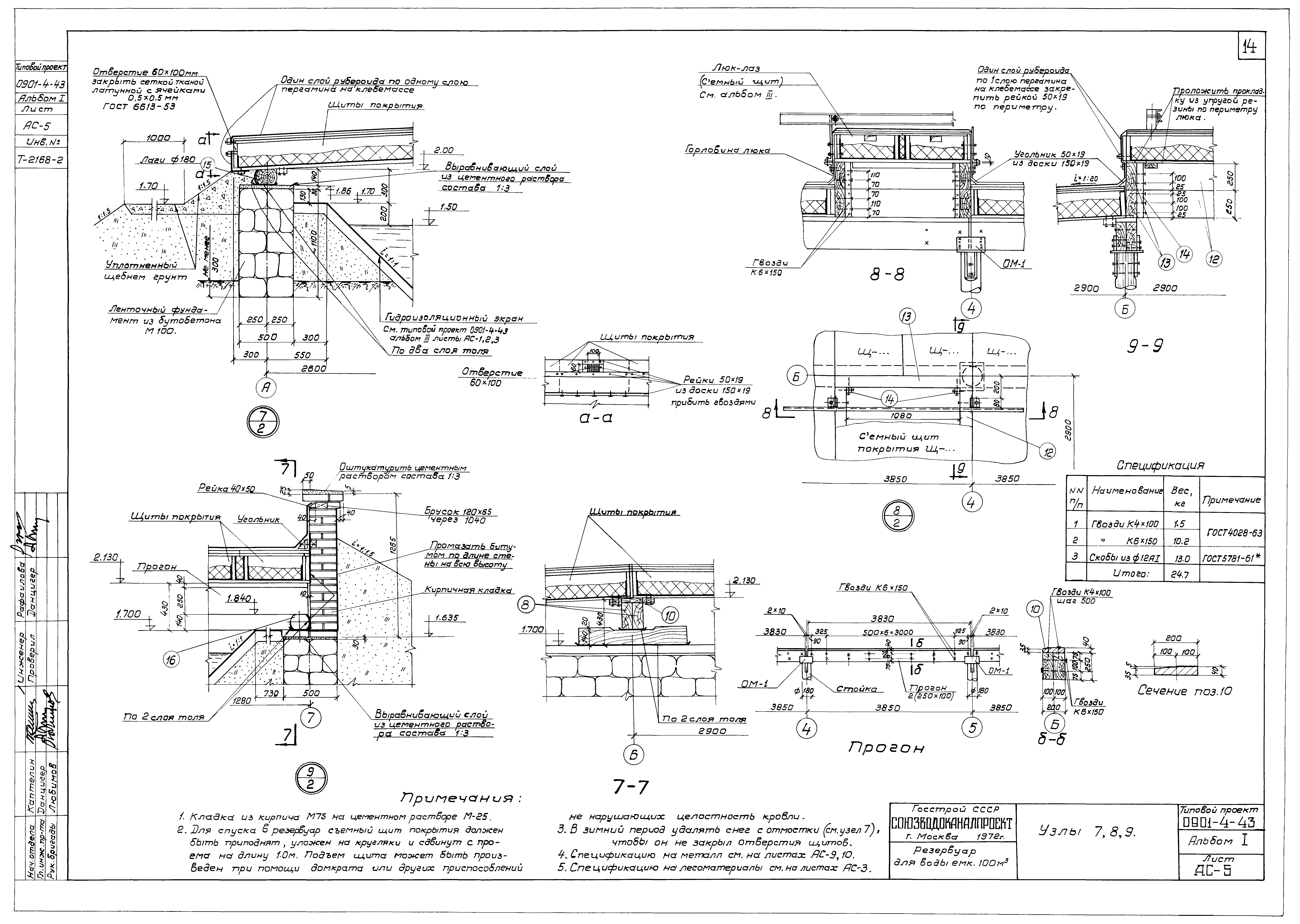
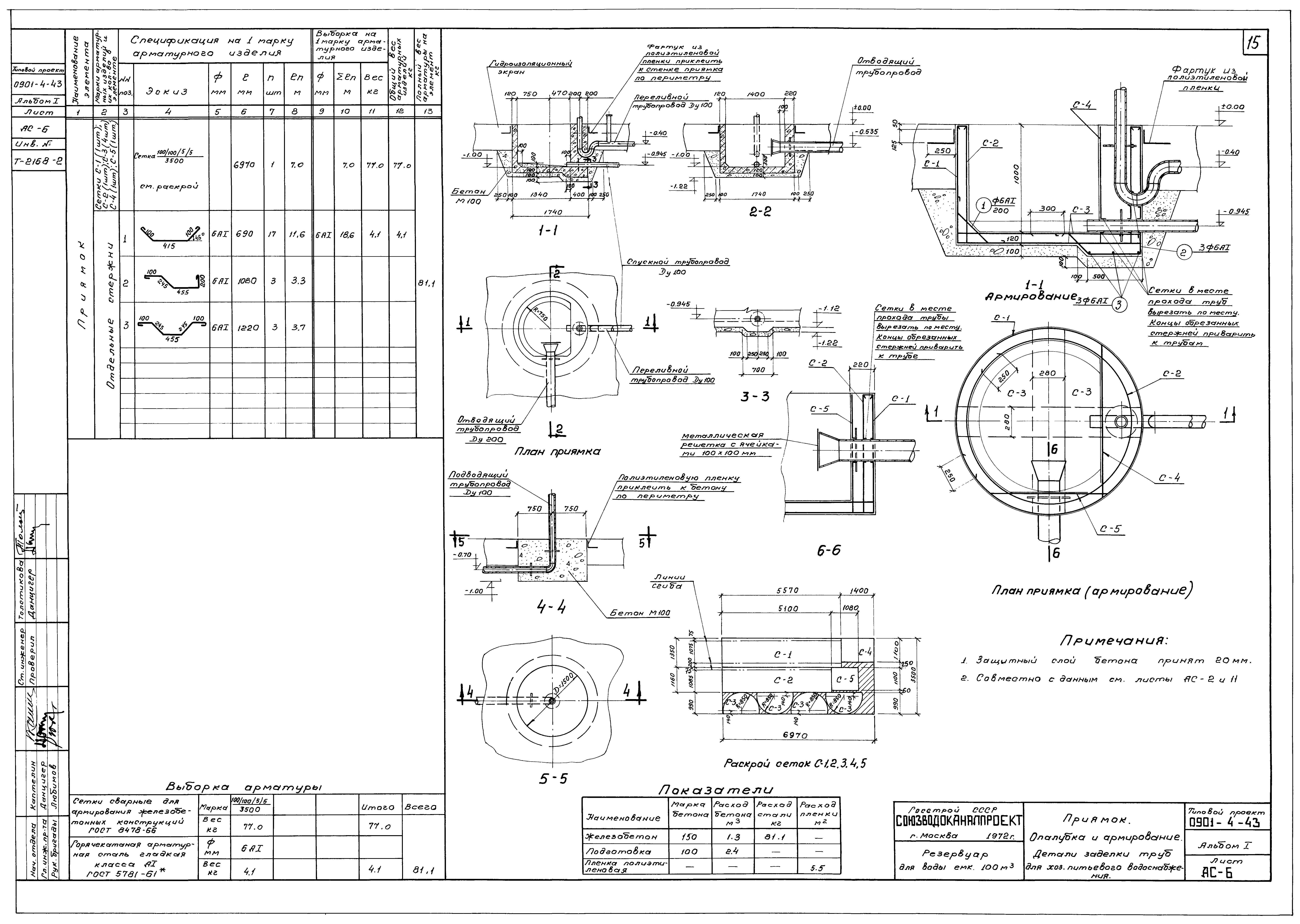
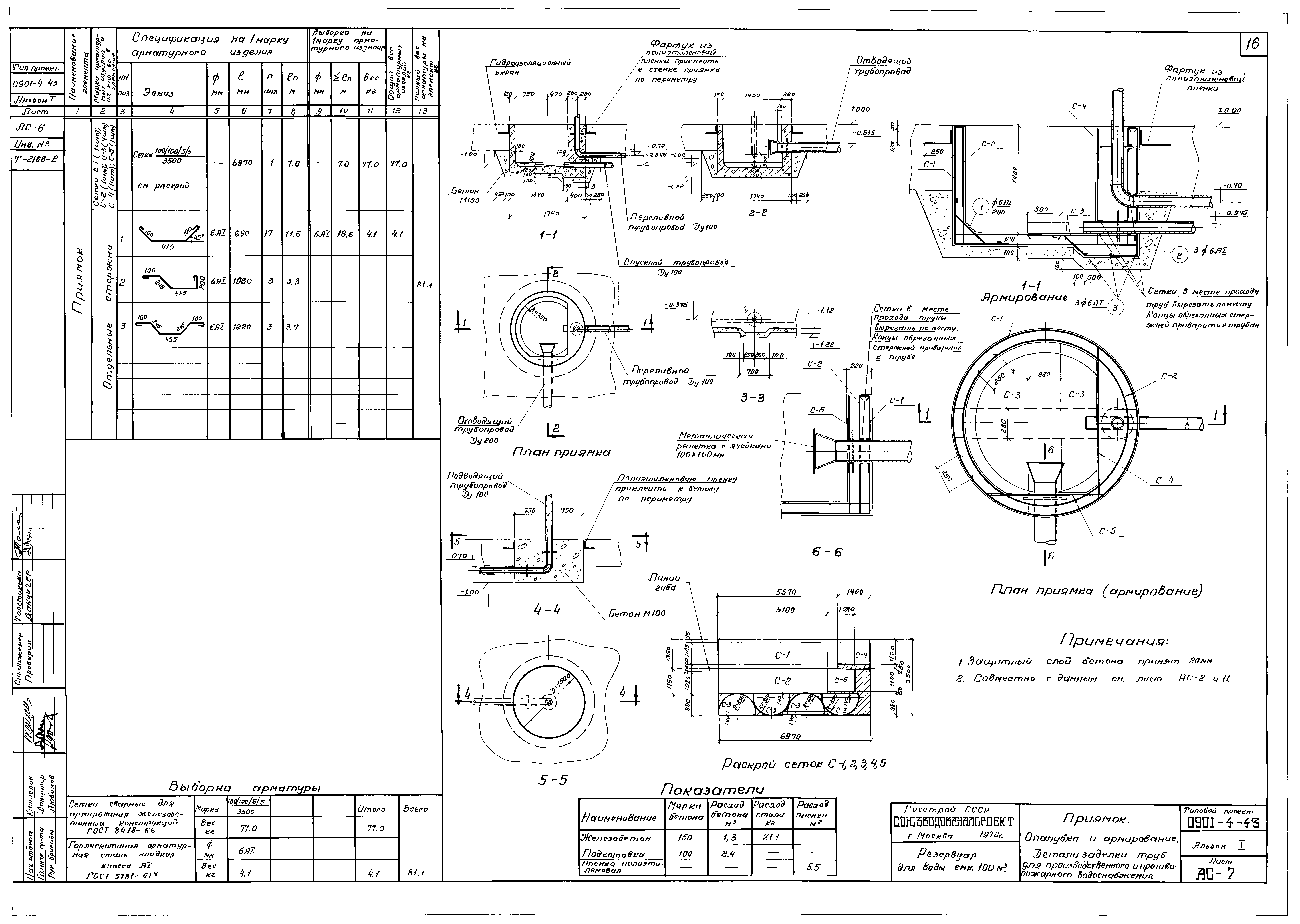
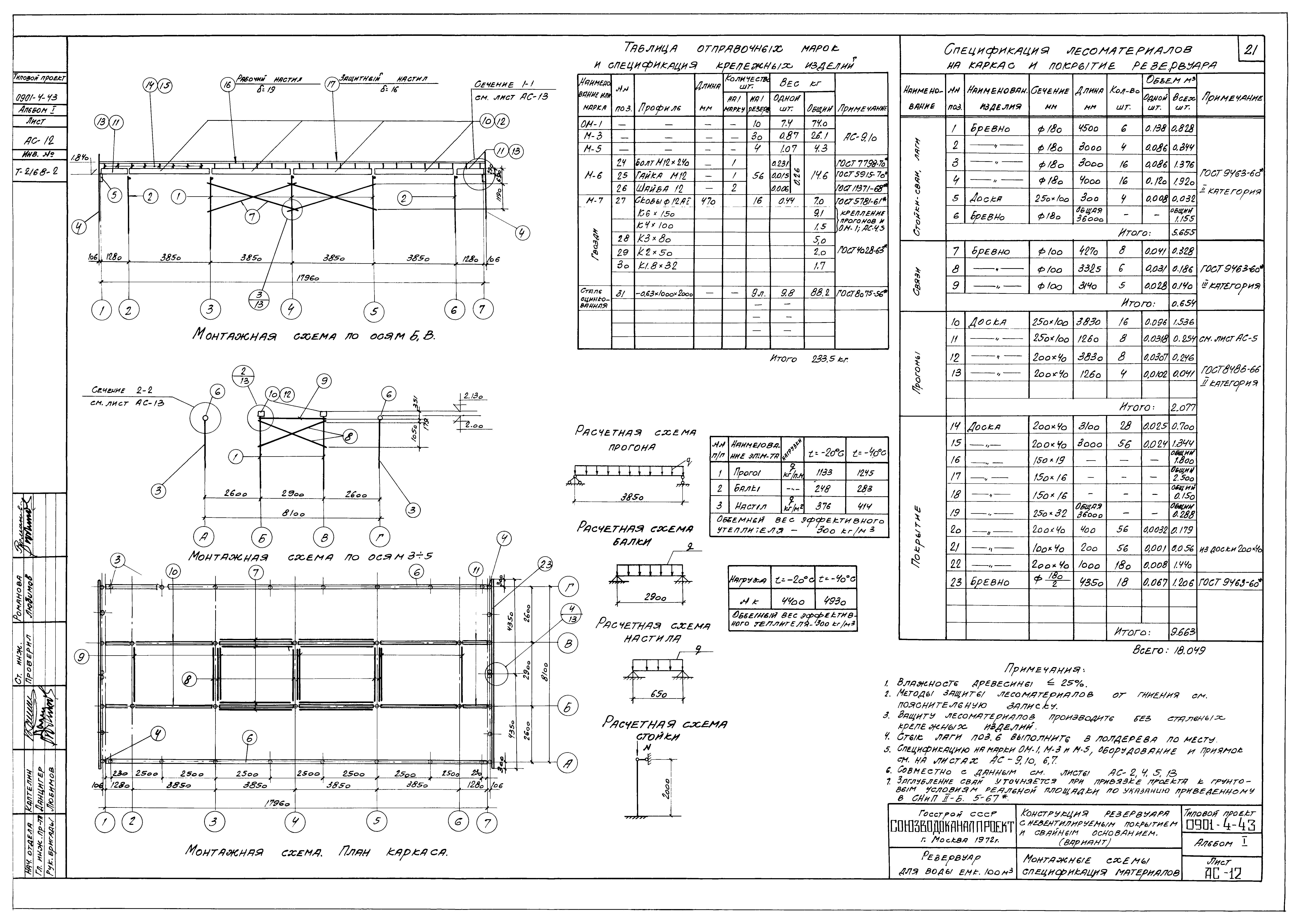
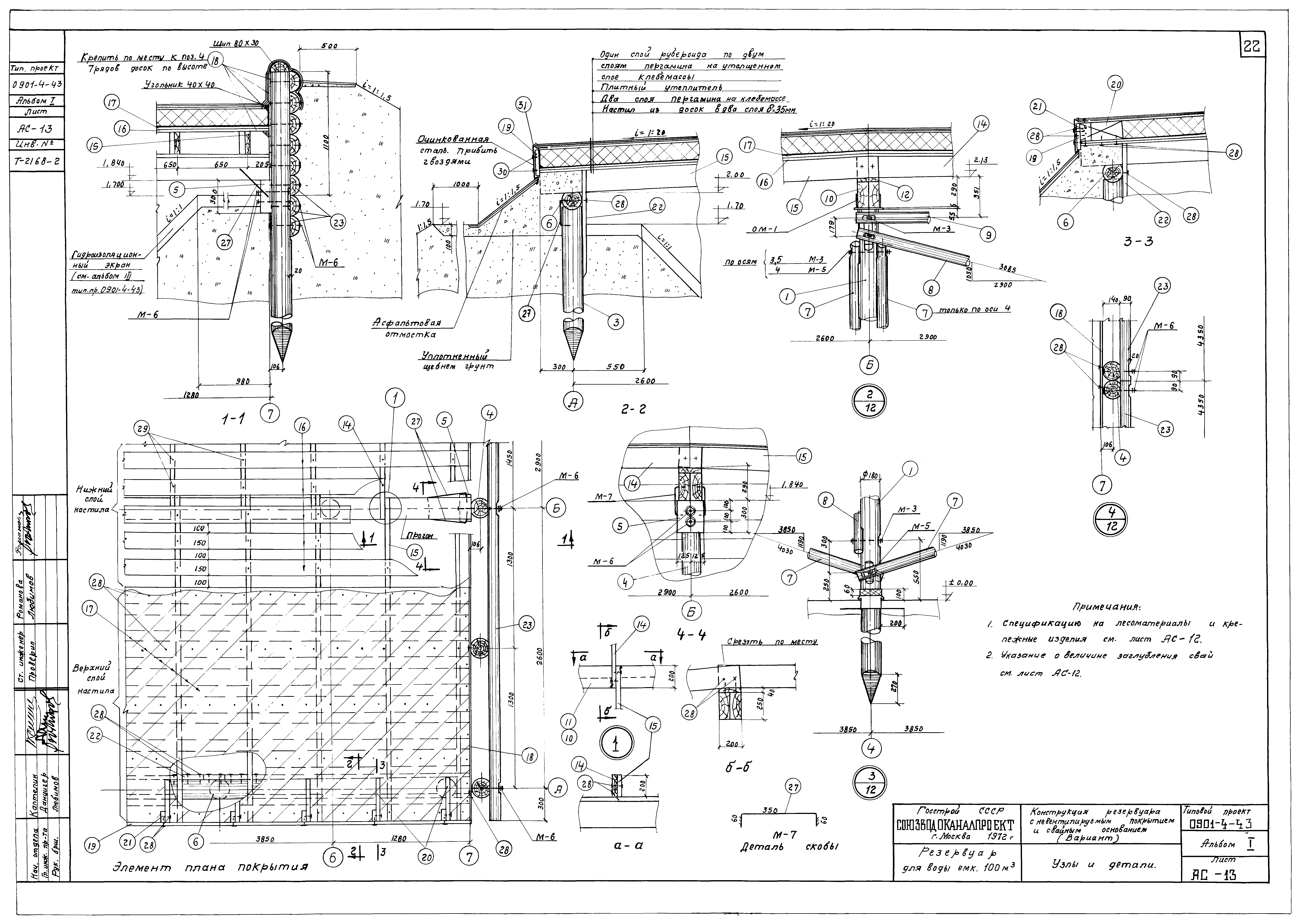
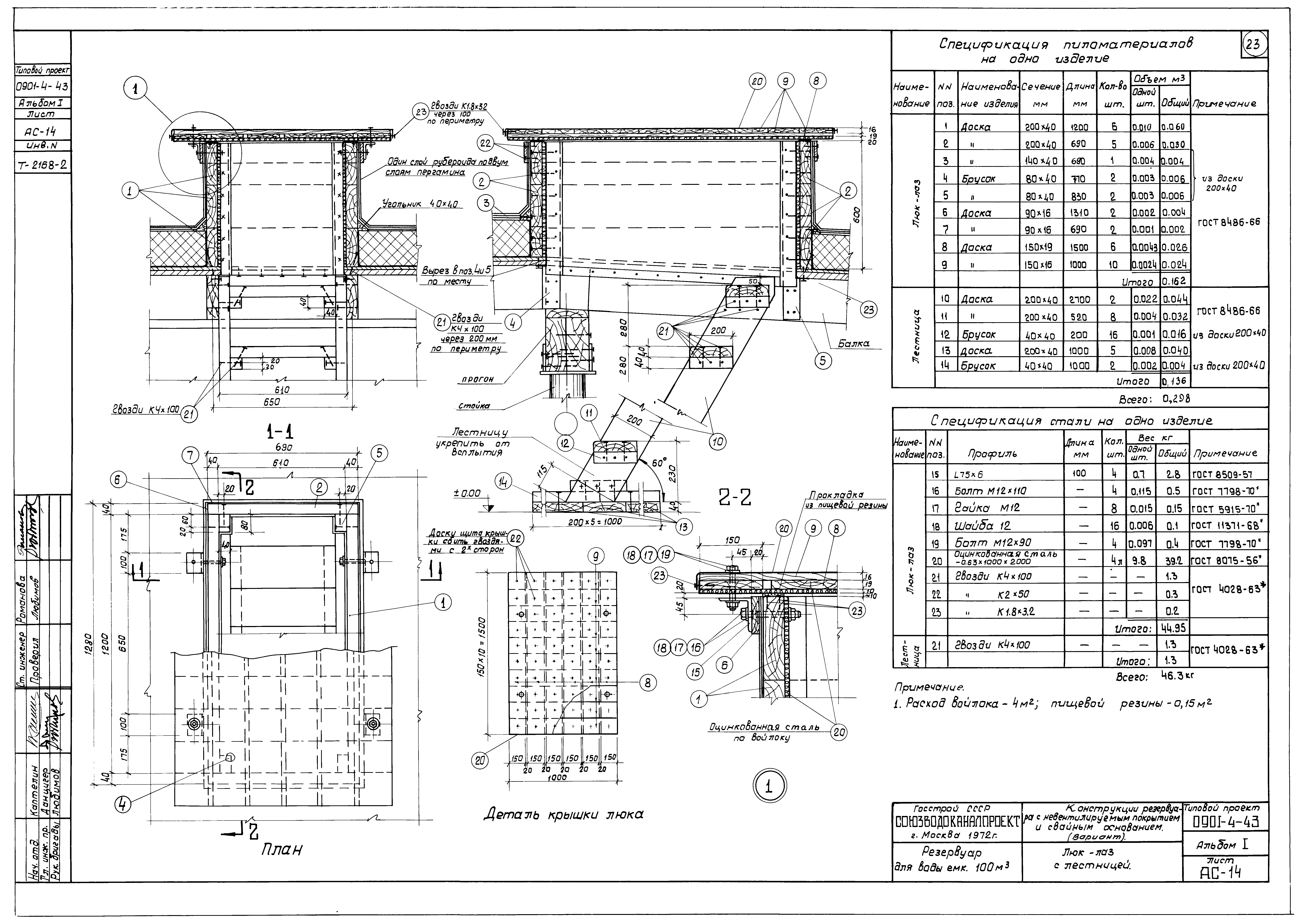
Скачать Типовой проект 0901-4-43 Альбом I. Строительная часть, оборудование (траншея с крутизной откосов 1:1)Дата актуализации: 01.01.2021 Типовой проект 0901-4-43
Альбом I. Строительная часть, оборудование (траншея с крутизной откосов 1:1)| Обозначение: | Типовой проект 0901-4-43 | | Обозначение англ: | 0901-4-43 | | Статус: | действует | | Название рус.: | Альбом I. Строительная часть, оборудование (траншея с крутизной откосов 1:1) | | Дата добавления в базу: | 01.02.2020 | | Дата актуализации: | 01.01.2021 | | Дата введения: | 10.09.1973 | | Разработан: | ГПИ Союзводоканалпроект
| | Утверждён: | 10.09.1973 СоюзводоканалНИИпроект (SoyuzvodokanalNIIproject 200)
|
                      
|