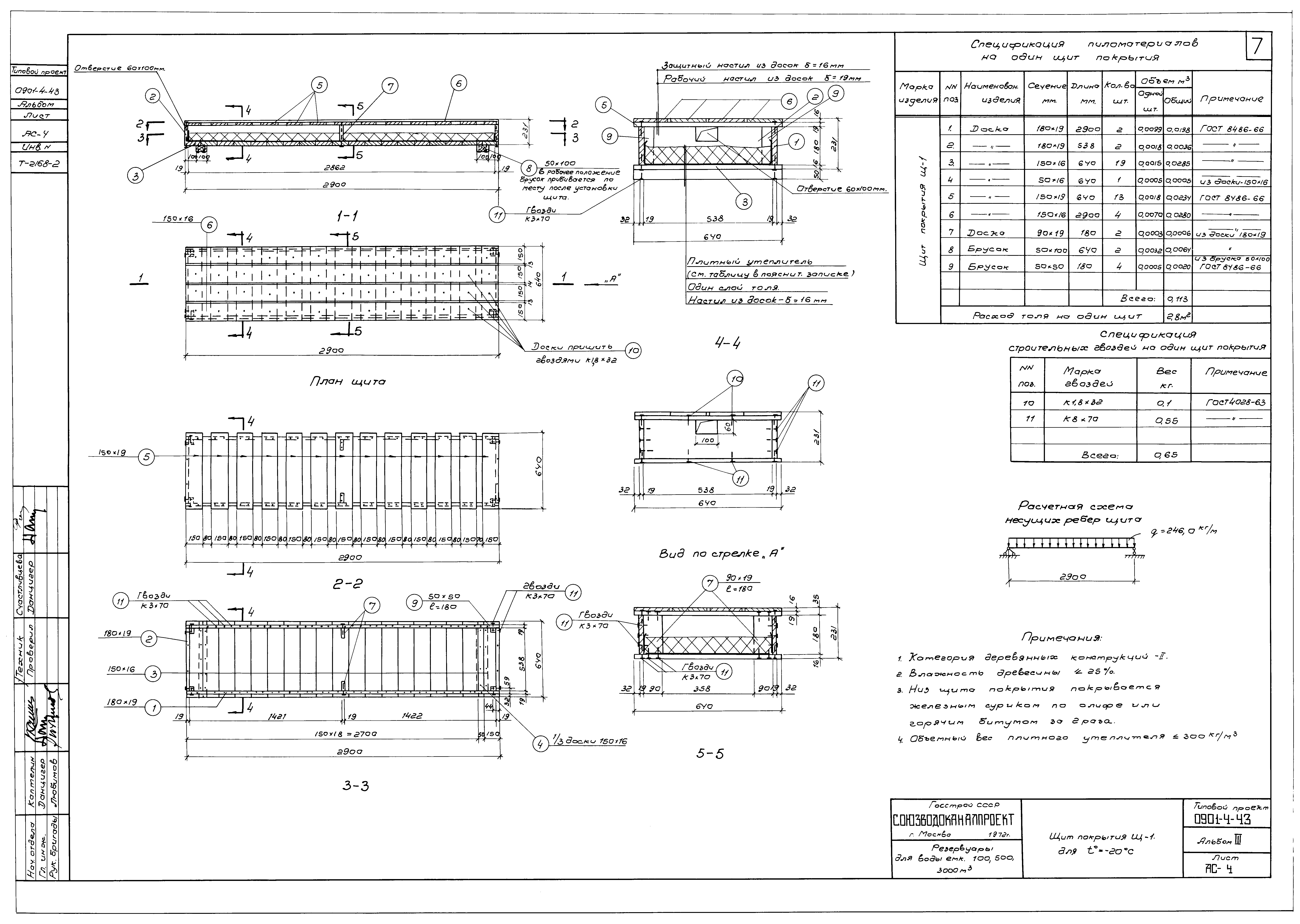
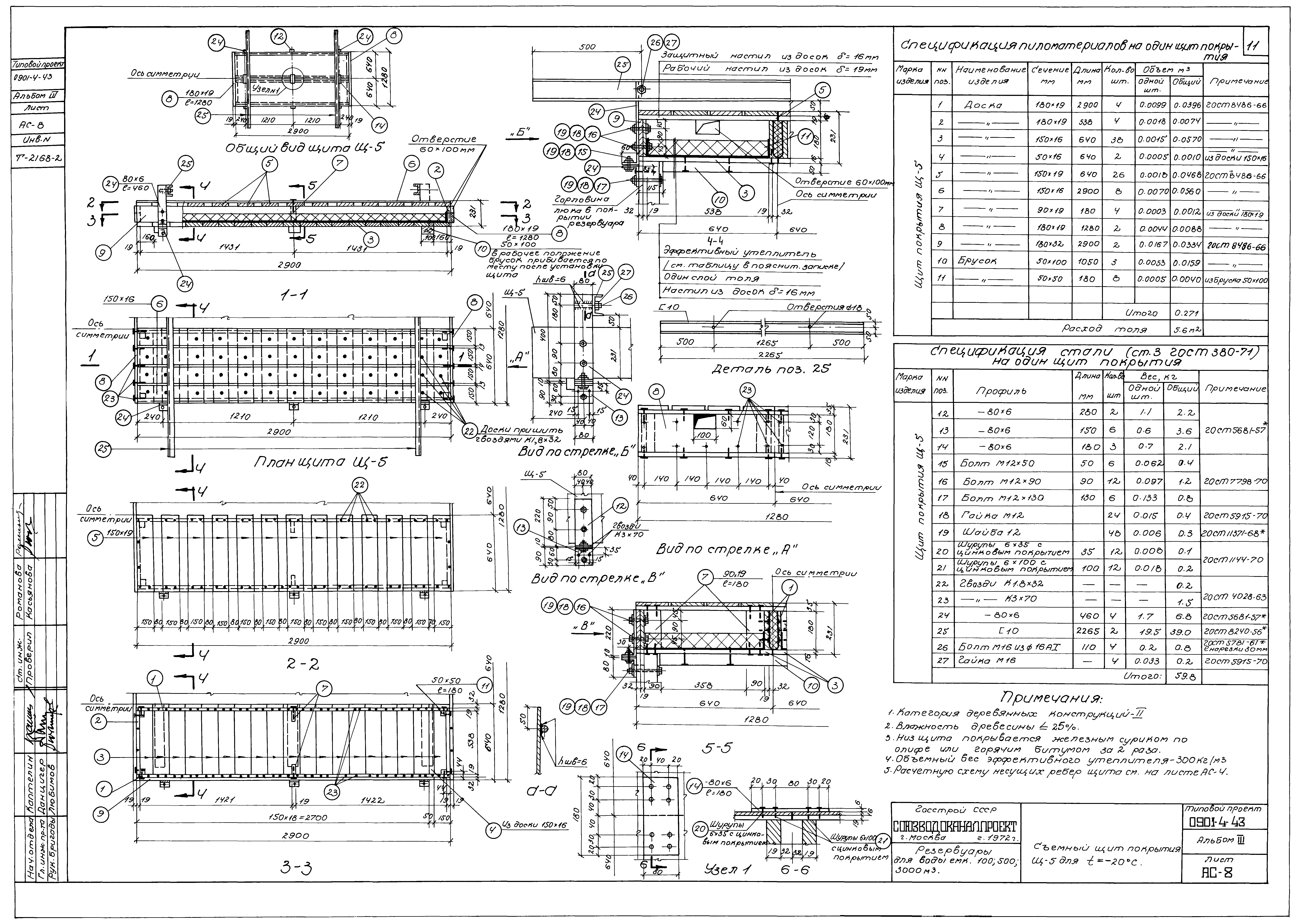
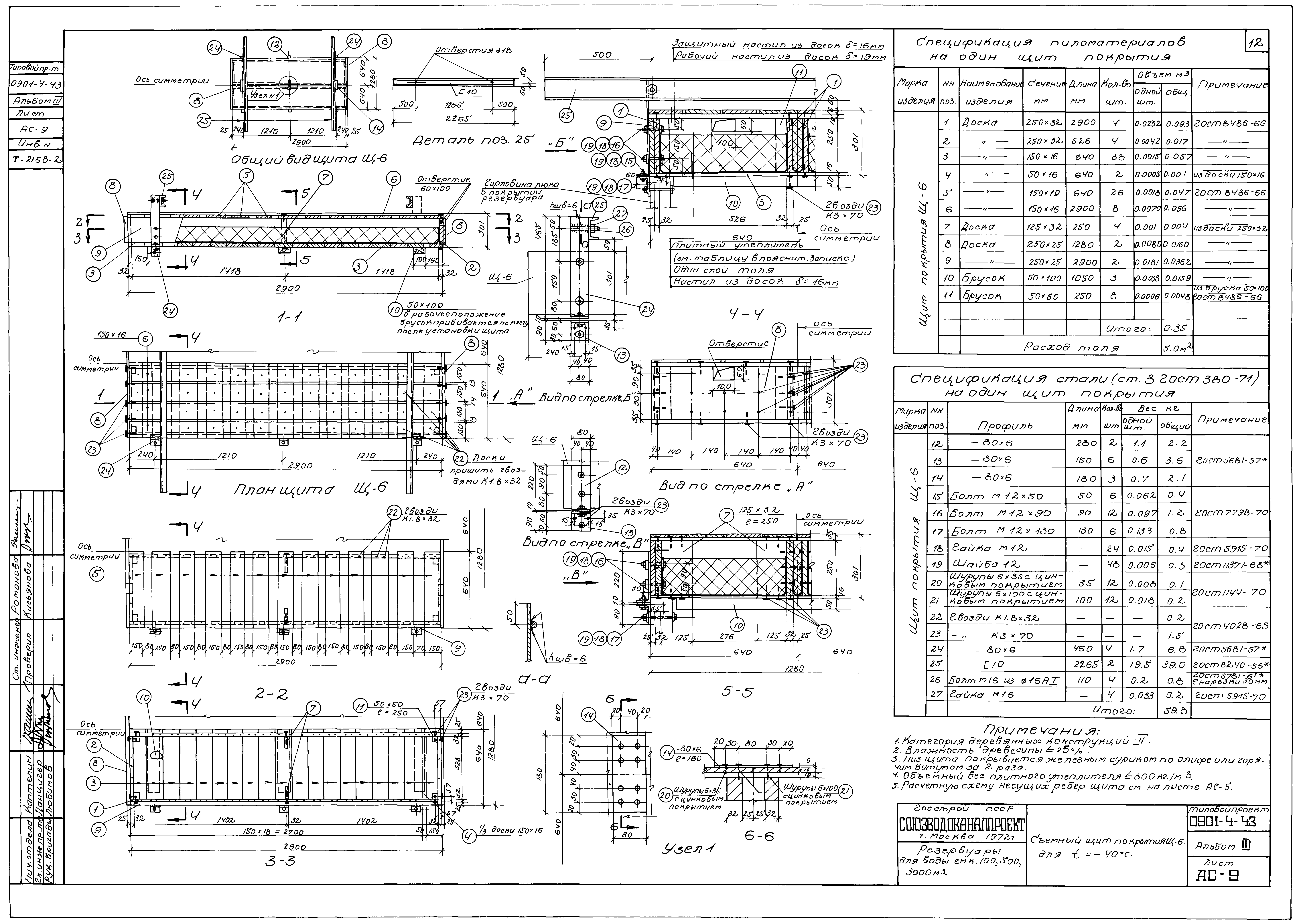
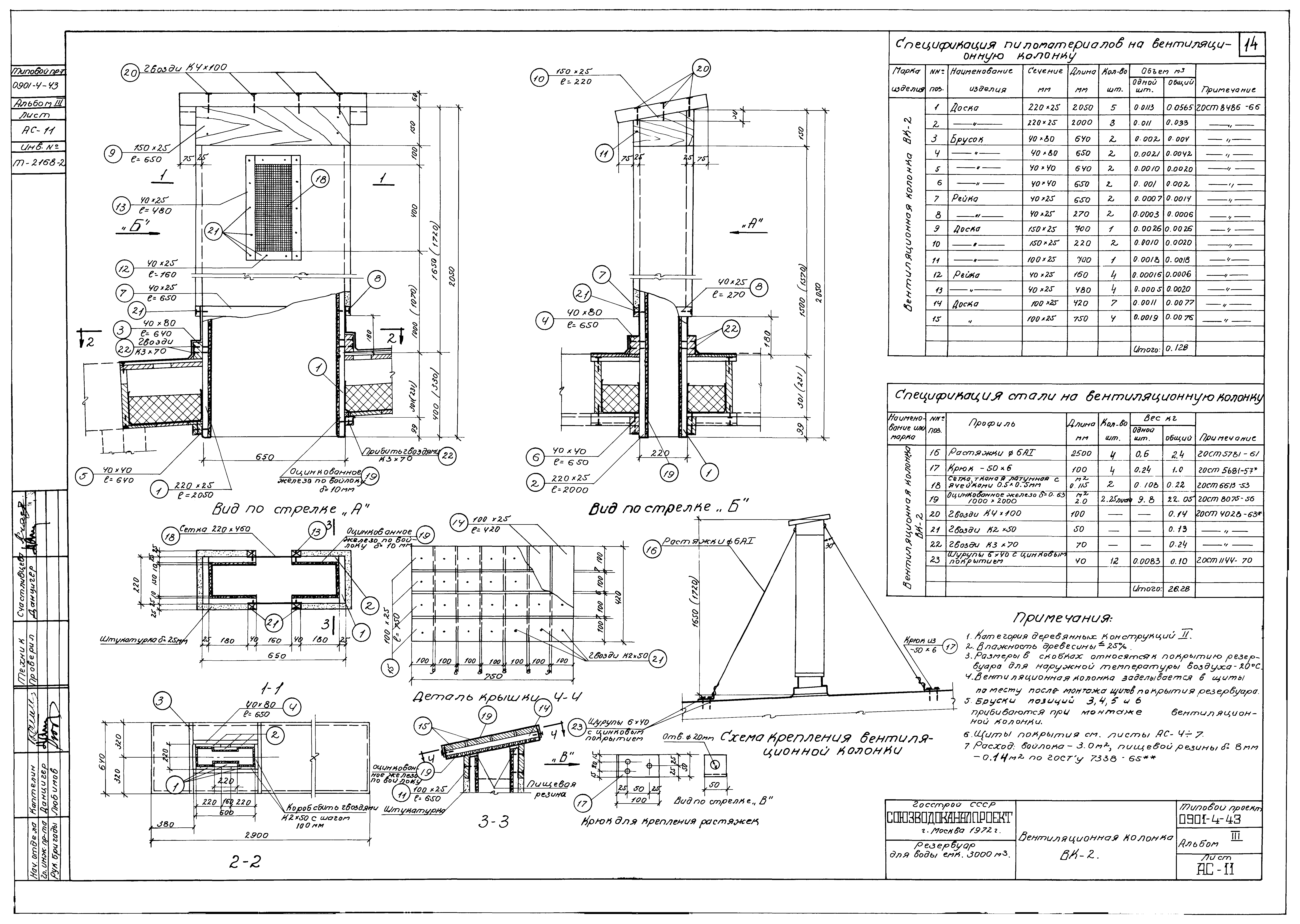
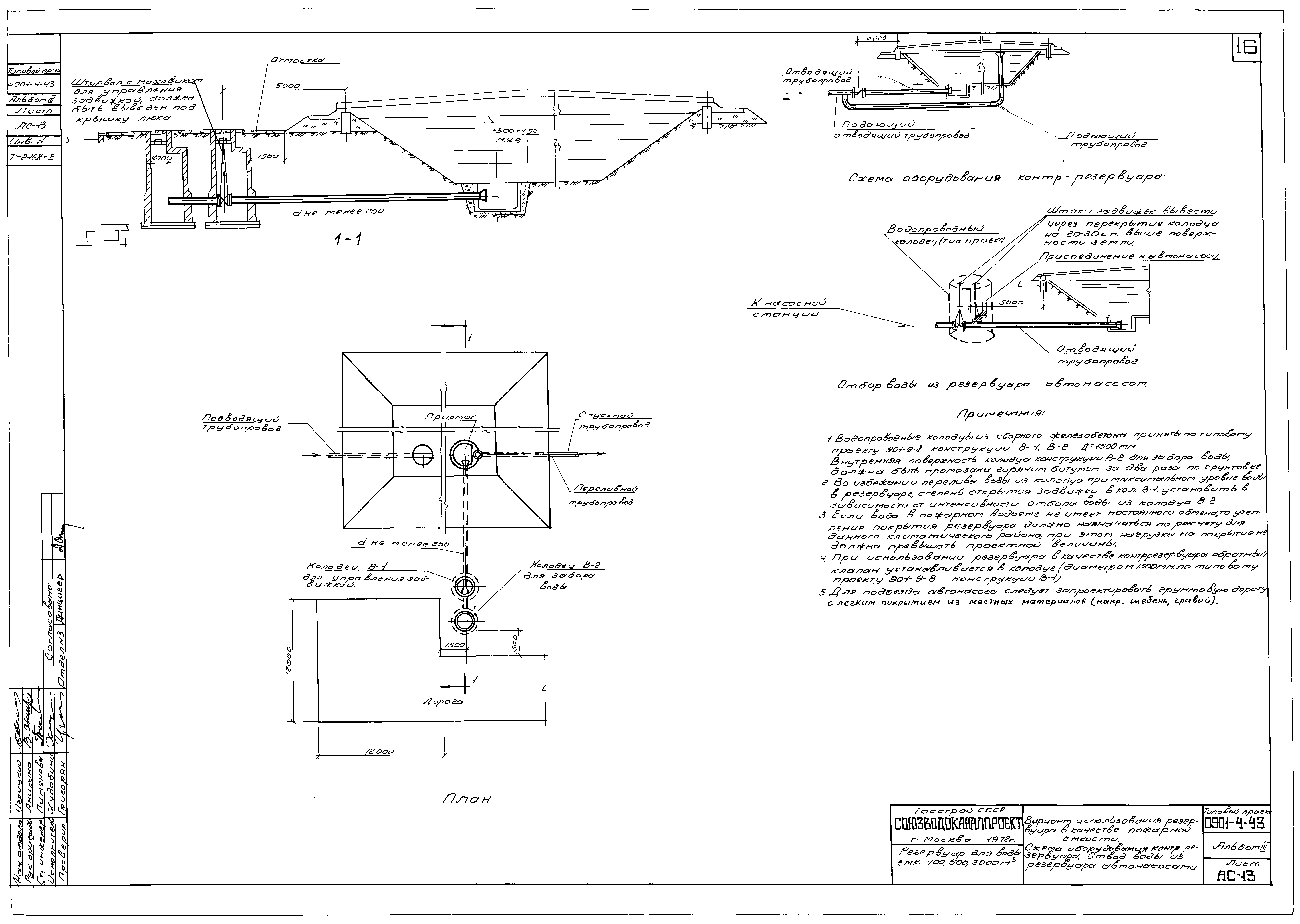
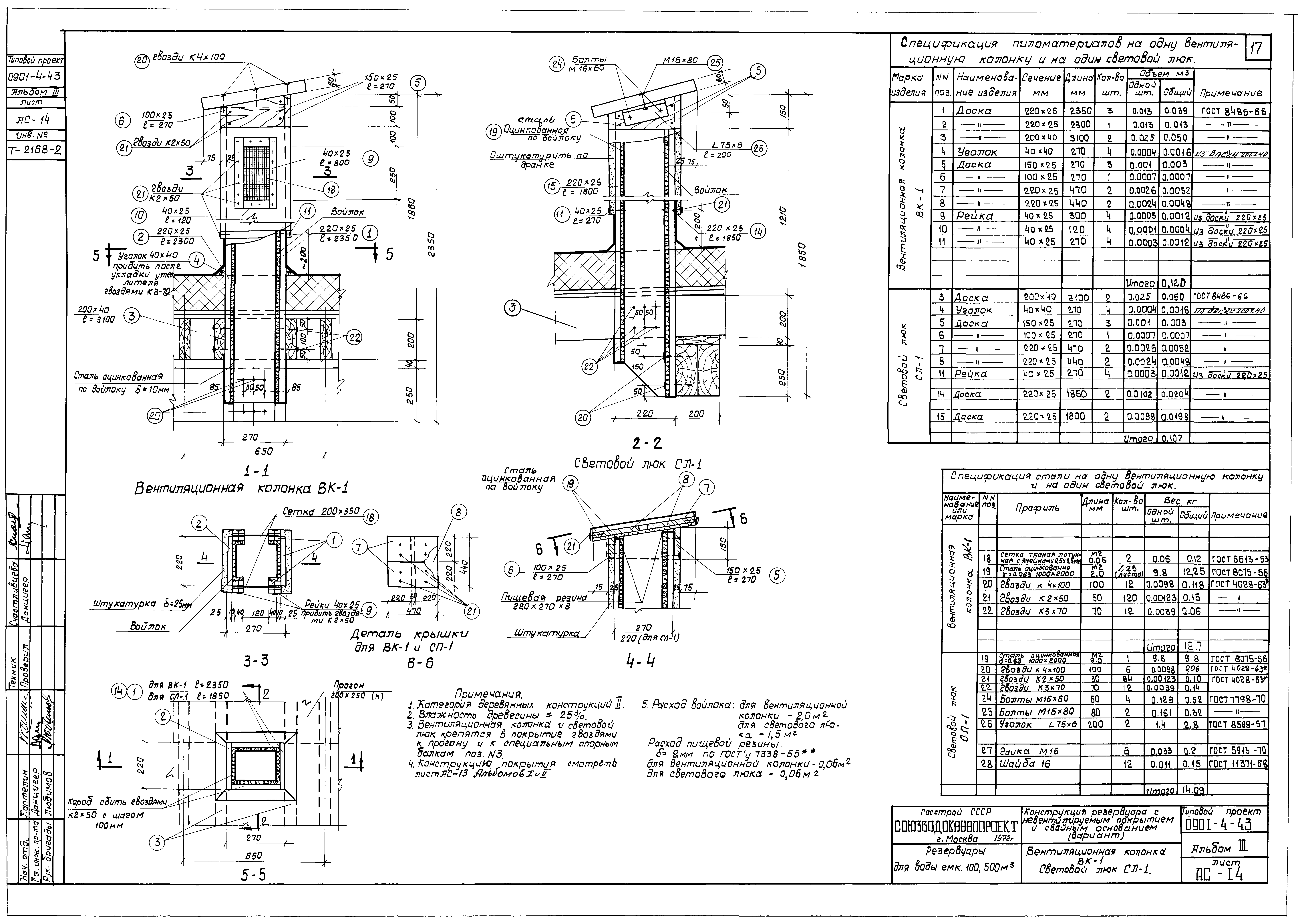
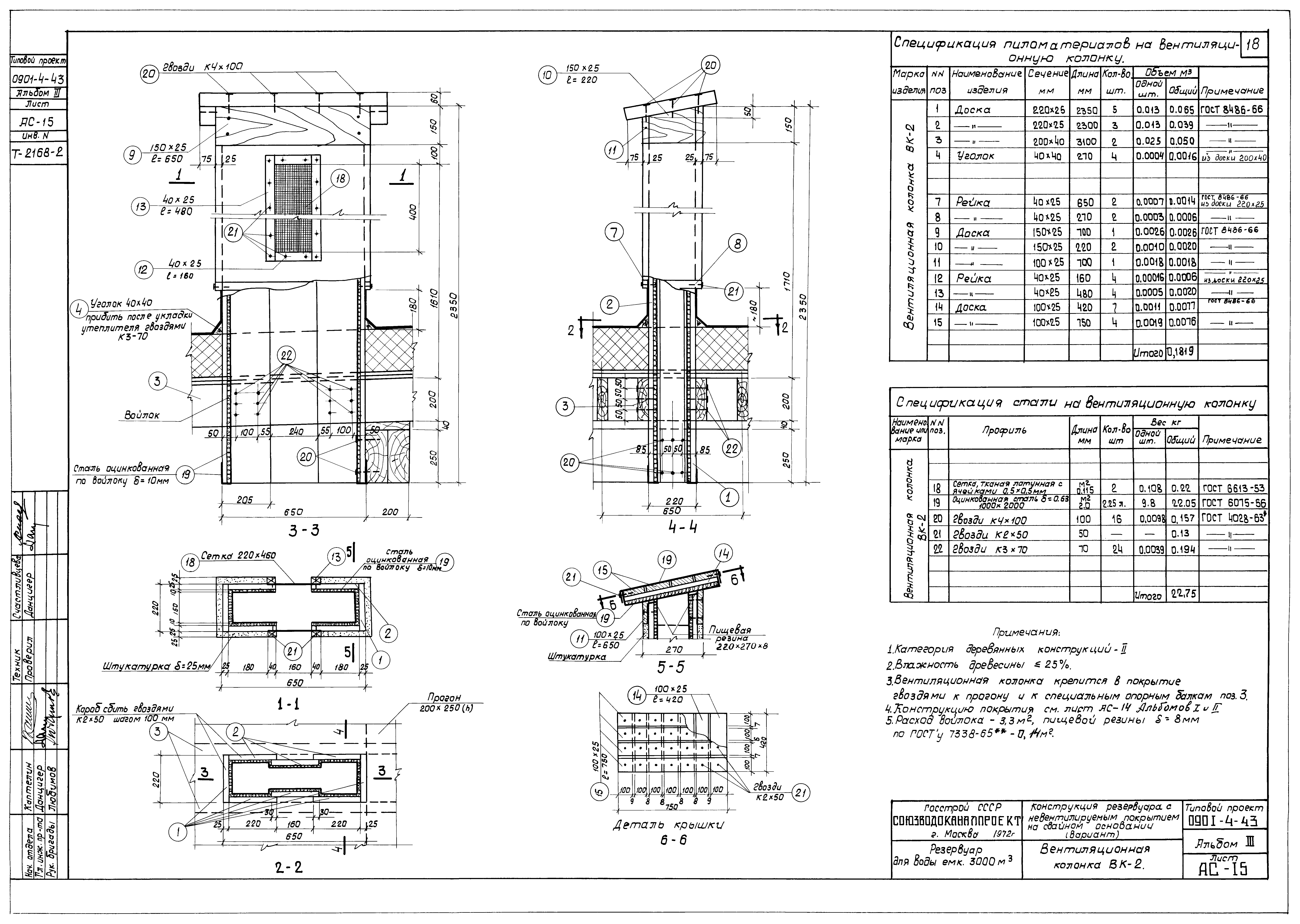
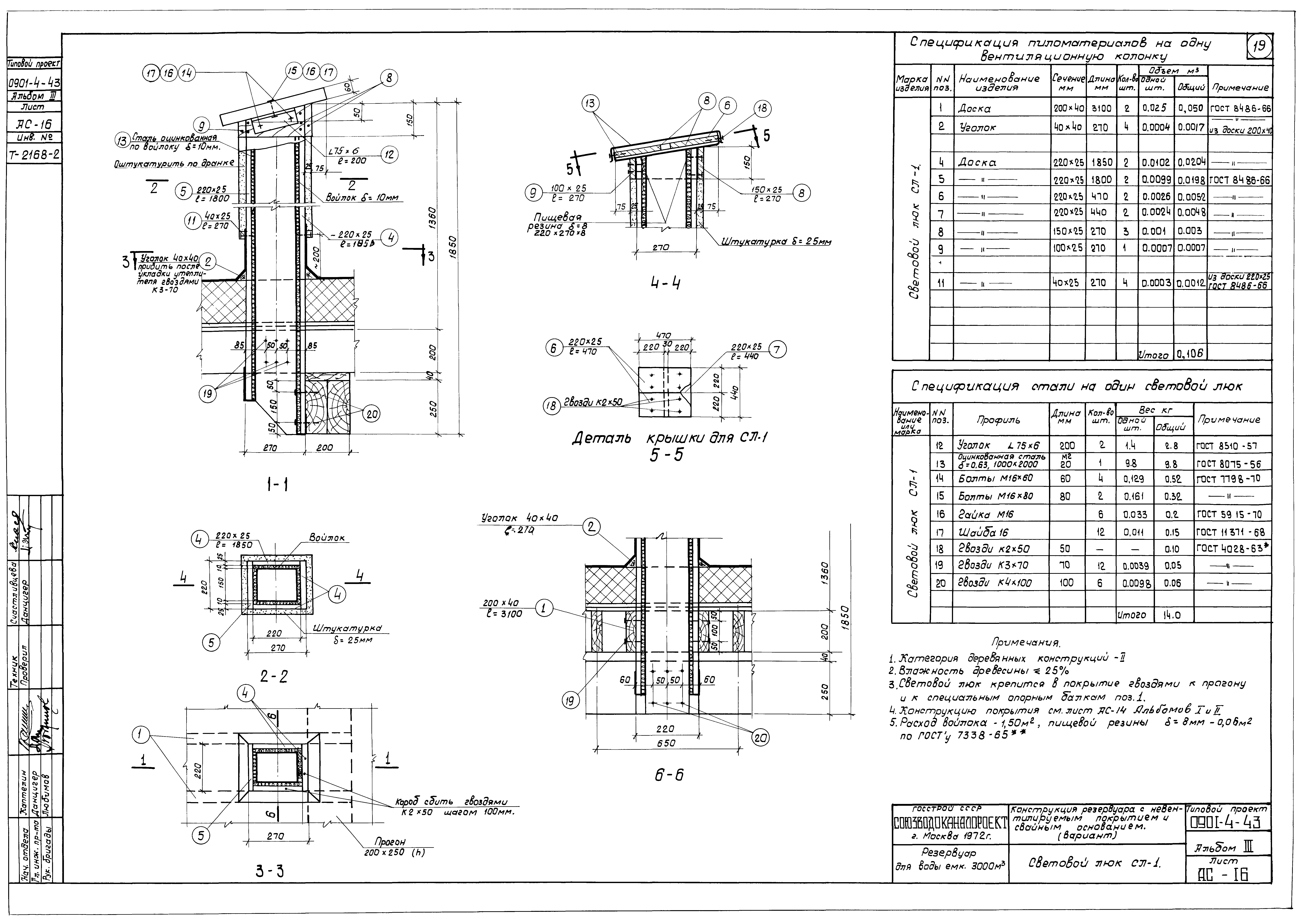
Скачать Типовой проект 0901-4-43 Альбом III. Детали и изделияДата актуализации: 01.01.2021
|
| Обозначение: | Типовой проект 0901-4-43 |
| Обозначение англ: | 0901-4-43 |
| Статус: | действует |
| Название рус.: | Альбом III. Детали и изделия |
| Дата добавления в базу: | 01.02.2020 |
| Дата актуализации: | 01.01.2021 |
| Дата введения: | 10.09.1973 |
| Разработан: | ГПИ Союзводоканалпроект |
| Утверждён: | 10.09.1973 СоюзводоканалНИИпроект (SoyuzvodokanalNIIproject 200) |



















