Скачать СТ РК EN 13480-2-2013 Трубопроводы промышленные металлические. Часть 2. МатериалыДата актуализации: 01.01.2021
|
| Обозначение: | СТ РК EN 13480-2-2013 |
| Обозначение англ: | 13480-2-2013 |
| Статус: | применяется в еаэс |
| Название рус.: | Трубопроводы промышленные металлические. Часть 2. Материалы |
| Дата добавления в базу: | 01.02.2020 |
| Дата актуализации: | 01.01.2021 |
| Дата введения: | 01.01.2015 |
| Область применения: | Стандарт устанавливает требования к материалам (включая металлические плакированные материалы) для промышленных трубопроводов и опор, соответствующих EN 13480-1, изготовленных из металлических материалов. Стандарт распространяется на материалы, ограниченные сталями достаточной пластичности. Стандарт не применим к материалам, с определенной степенью ползучести. Стандарт также устанавливает требования к выбору, испытаниям и маркировке металлических материалов для изготовления промышленных трубопроводов. |
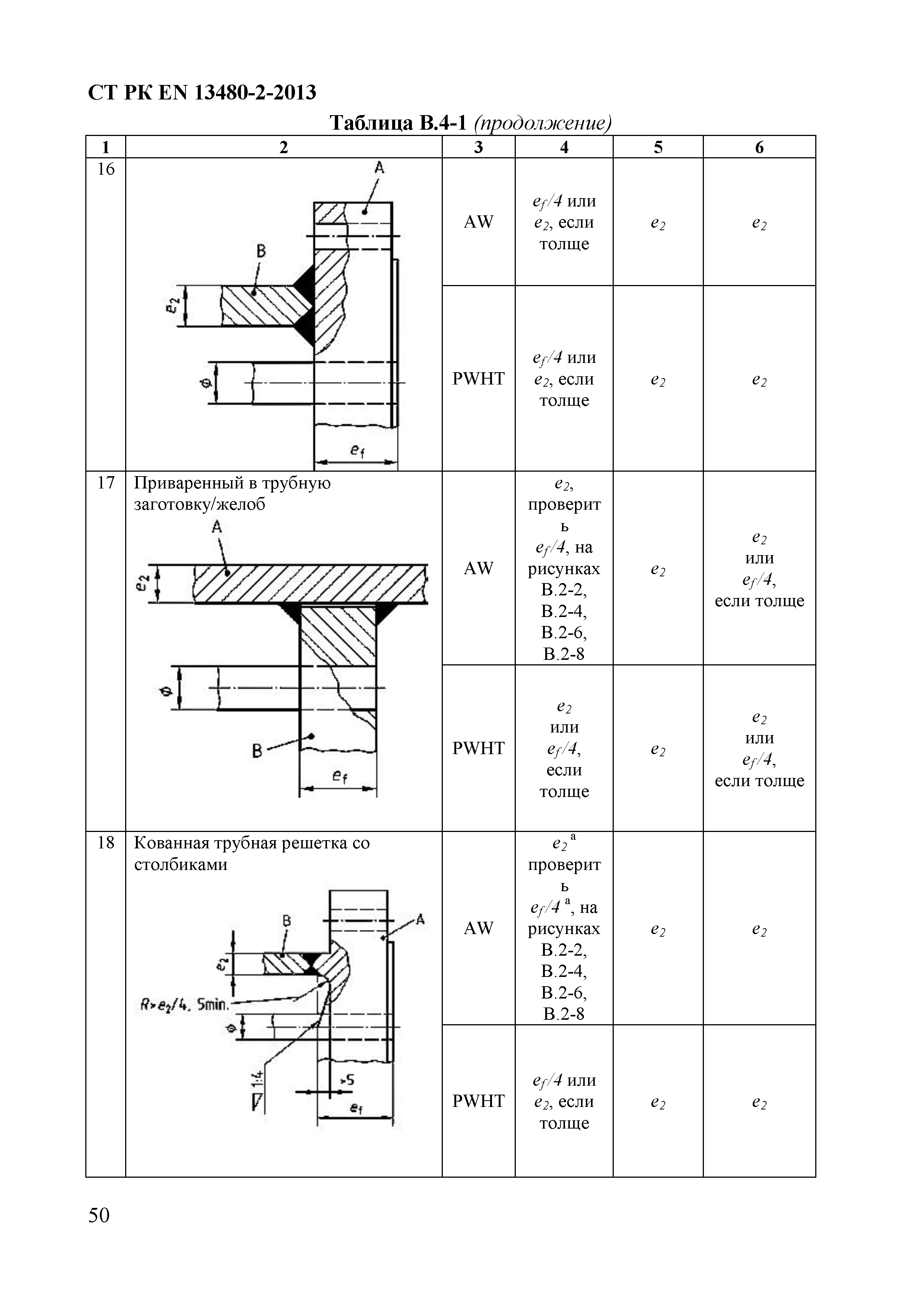
| Оглавление: | 1 Область применения 2 Нормативные ссылки 3 Термины, определения, символы и единицы 3.1 Термины и определения 3.2 Символы и единицы 4 Требования к материалам, применяемым для изготовления деталей, работающих под давлением 4.1 Общие положения 4.2 Особые положения 4.3 Технические условия поставки 4.4 Маркировка 5 Требования к материалам, для деталей, которые не подвергаются давлению Приложение A (обязательное) Система группирования стали, работающей под давлением Приложение B (обязательное) Требования к предотвращению хрупкого излома при низких температурах B.1 Общие положения B.2 Выбор материалов и требований к энергии удара B.2.1 Общие положения B.2.2 Метод 1 Нормы и правила B.2.3 Метод 2 B.2.4 Метод 3 — Анализ механики разрушения B.3 Общие требования к испытанию B.3.1 Общие требования B.3.2 Образцы меньшего размера B.3.3 Образцы меньшего размера B.4 Сварные швы B.4.1 Общие положения B.4.2 Метод сварки B.4.3 Пластины для испытания сварки B.5 Материалы для использования при повышенных температурах B.5.1 Общие положения B.5.2 Материалы B.5.3 Оценка сварочных процедур и испытательных пластин B.5.4 Процедуры запуска и отключения B.5.5 Испытания давлением Приложение C (обязательное) Временные технические условия поставки для плакированных изделий, предназначенных для работы под давлением C.1 Введение C.2 Требования к материалу-основе C.3 Требования к плакированному материалу C.4 Квалификация процедуры плакирования C.5 Испытания в ходе производства Приложение D (информационное) Европейские стандарты на стали для промышленных трубопроводов D.1 Европейские стандарты на стали и стальные компоненты для промышленных трубопроводов D.2 Стали, стандартизированные по Европейским стандартам, Приложение Y (информационное) Y.1 Различия между EN 13480:2002 и EN 13480:2012 Приложение ZA (информационное) Разделы данного Европейского стандарта, касающиеся важных требований безопасности или других положений директив ЕС Приложение ZB (информационное) Библиография Приложение Д.А. (информационное) |
| Разработан: | РГП Казахстанский институт стандартизации и сертификации |
| Утверждён: | 28.11.2013 Комитет технического регулирования и метрологии Министерства индустрии и новых технологий Республики Казахстан (548-од) |














































































































































































































