Скачать Инструкция по определению состояния стальных закладных деталей в конструкциях крупнопанельных зданий и рекомендации по их антикоррозионной защите и усилениюДата актуализации: 01.01.2021 |
| Статус: | справочные материалы, мп, тпр |
| Название рус.: | Инструкция по определению состояния стальных закладных деталей в конструкциях крупнопанельных зданий и рекомендации по их антикоррозионной защите и усилению |
| Дата добавления в базу: | 01.02.2020 |
| Дата актуализации: | 01.01.2021 |
| Область применения: | В инструкции содержатся указания по выбору конструктивных узлов, подлежащих обследованию в крупнопанельных домах, способам вскрытия, определения состояния и заделки стальных закладных деталей и связей. Даются рекомендации по защите стальных элементов от коррозии. Приводятся составы и физико-механические свойства антикоррозионных покрытий. Указываются способы усиления конструктивных узлов зданий. Инструкция предназначена для инженерно-технических работников жилищно-эксплуатационных и ремонтно-строительных организаций |
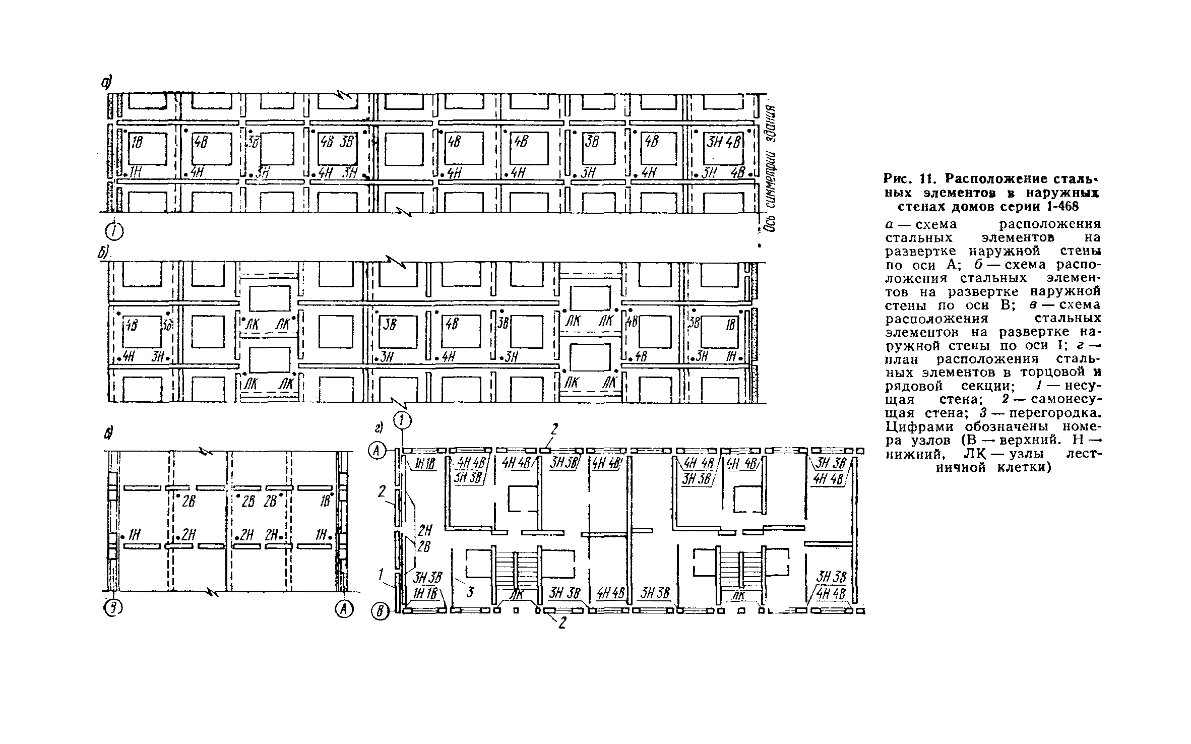
| Оглавление: | Предисловие Раздел 1. Инструкция по вскрытию, определению состояния стальных закладных деталей в конструкциях крупнопанельных зданий серий 1-355, ОД(К-7), 1-464, 1Лг-507, 1-468 1 Конструктивные схемы зданий и назначение закладных деталей 2 Периодичность контроля и выбор узлов для обследования 3 Порядок проведения работ 4 Контроль качества работ и техника безопасности Раздел 2. Рекомендации по антикоррозионной защите и усилению стальных закладных деталей в конструкциях крупнопанельных зданий серий 1-335, ОД(К-7), 1-464, 1Лг-507, 1-468 1 Общая часть 2 Подготовка поверхности стальных деталей под окраску 3 Нанесение лакокрасочных составов 4 Контроль качества антикоррозионных покрытий 5 Противопожарные правила и техника безопасности при работах по антикоррозионной защите стальных элементов 6 Усиление конструктивных узлов в наружных ограждениях зданий 7 Контроль качества работ по усилению закладных деталей и техника безопасности при выполнении работ Приложение 1. Перечень инструментов и оборудования, применяемых при обследовании состояния стальных элементов в наружных ограждениях крупнопанельных зданий Приложение 2. Журнал обследования состояния стальных закладных деталей Приложение 3. Физико-механические показатели систем покрытий Приложение 4. Материалы для рекомендуемых систем покрытий Приложение 5. Характеристики лакокрасочных материалов Приложение 6. Перечень инструментов, приспособлений и вспомогательных материалов, используемых при нанесении антикоррозионных лакокрасочных покрытий Приложение 7. Сменное рабочее оборудование - щетка металлическая к сверлильной электрической машинке ИЭ-1003 Приложение 8. Тележка для транспортирования железобетонных стоек и подвески их во время установки на место Приложение 9. Методика отбора проб для определения марки ячеистого бетона панелей эксплуатируемых зданий Список литературы |
| Разработан: | Академия коммунального хозяйства им. К.Д. Памфилова |
| Утверждён: | 18.06.1974 МЖКХ РСФСР |
| Издан: | Стройиздат (1977 г. ) |
| Нормативные ссылки: |
|
































































