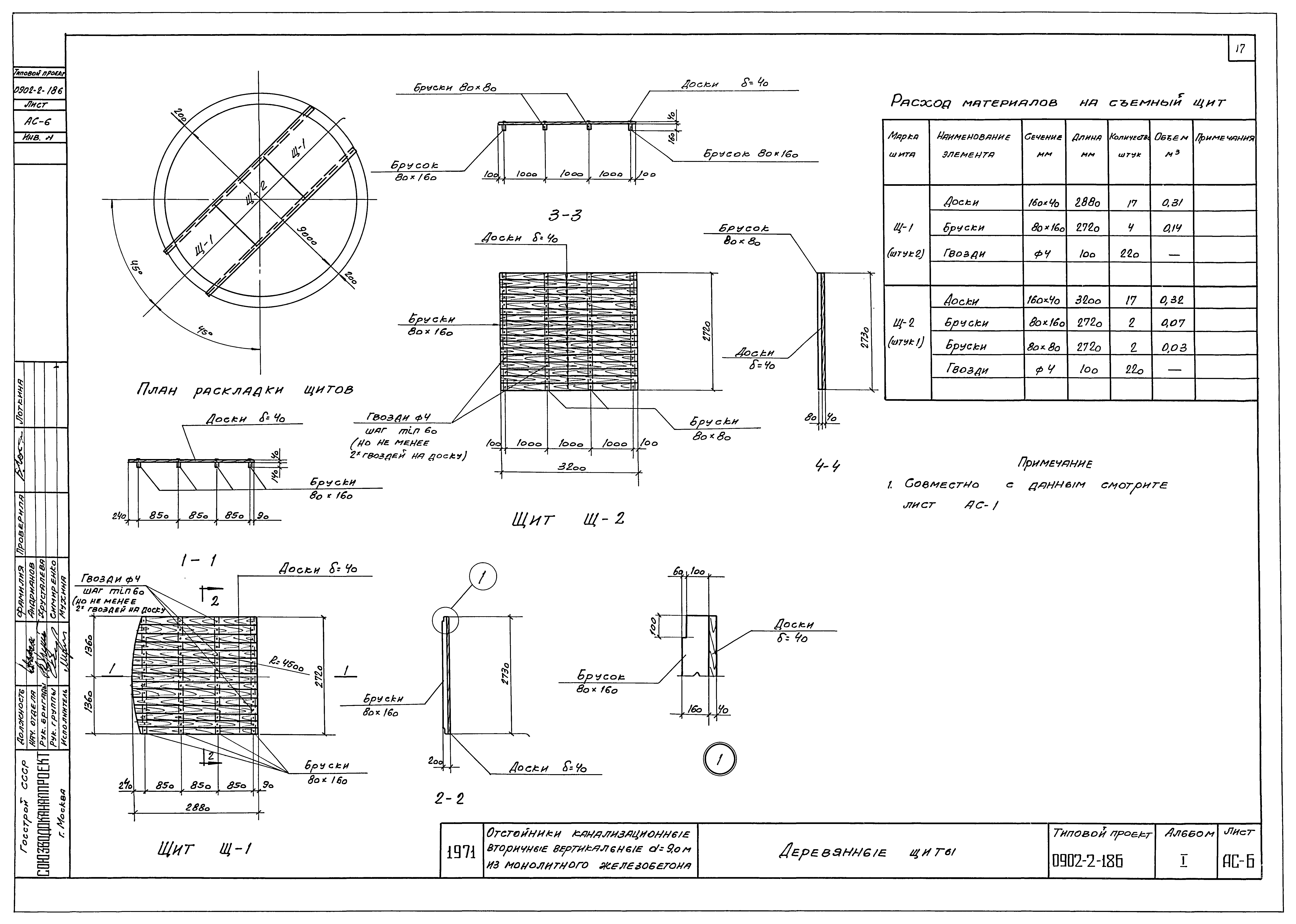
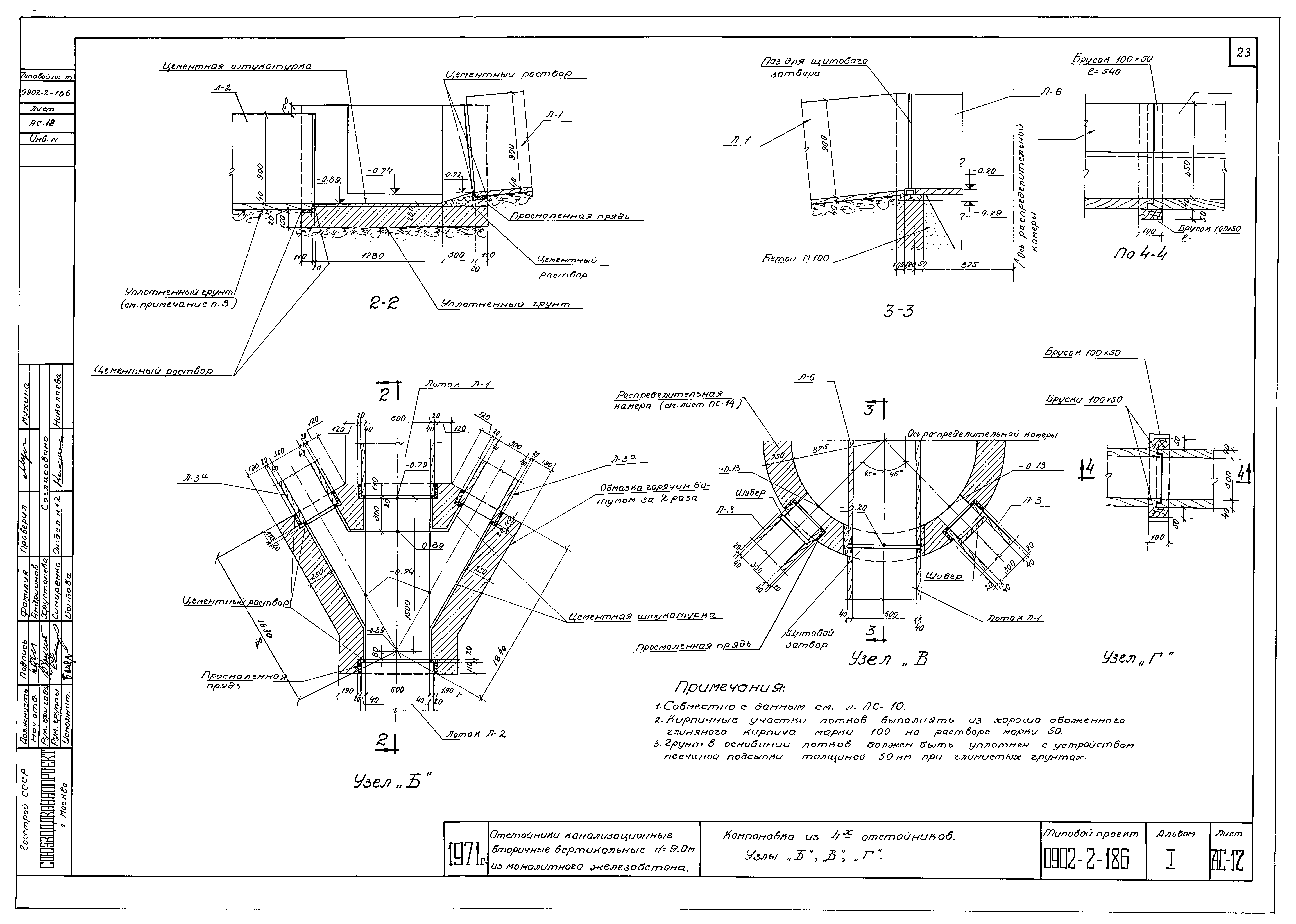
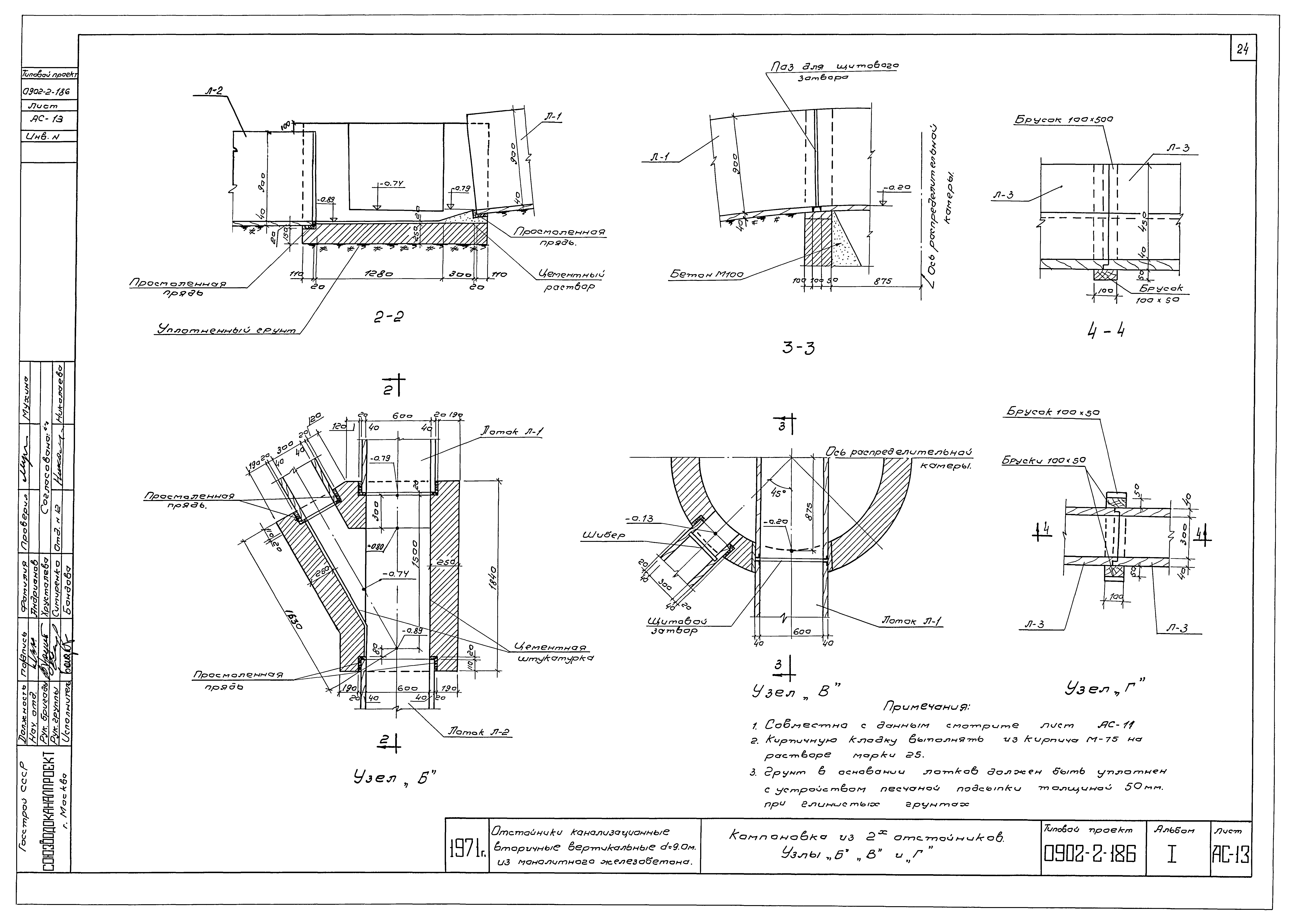
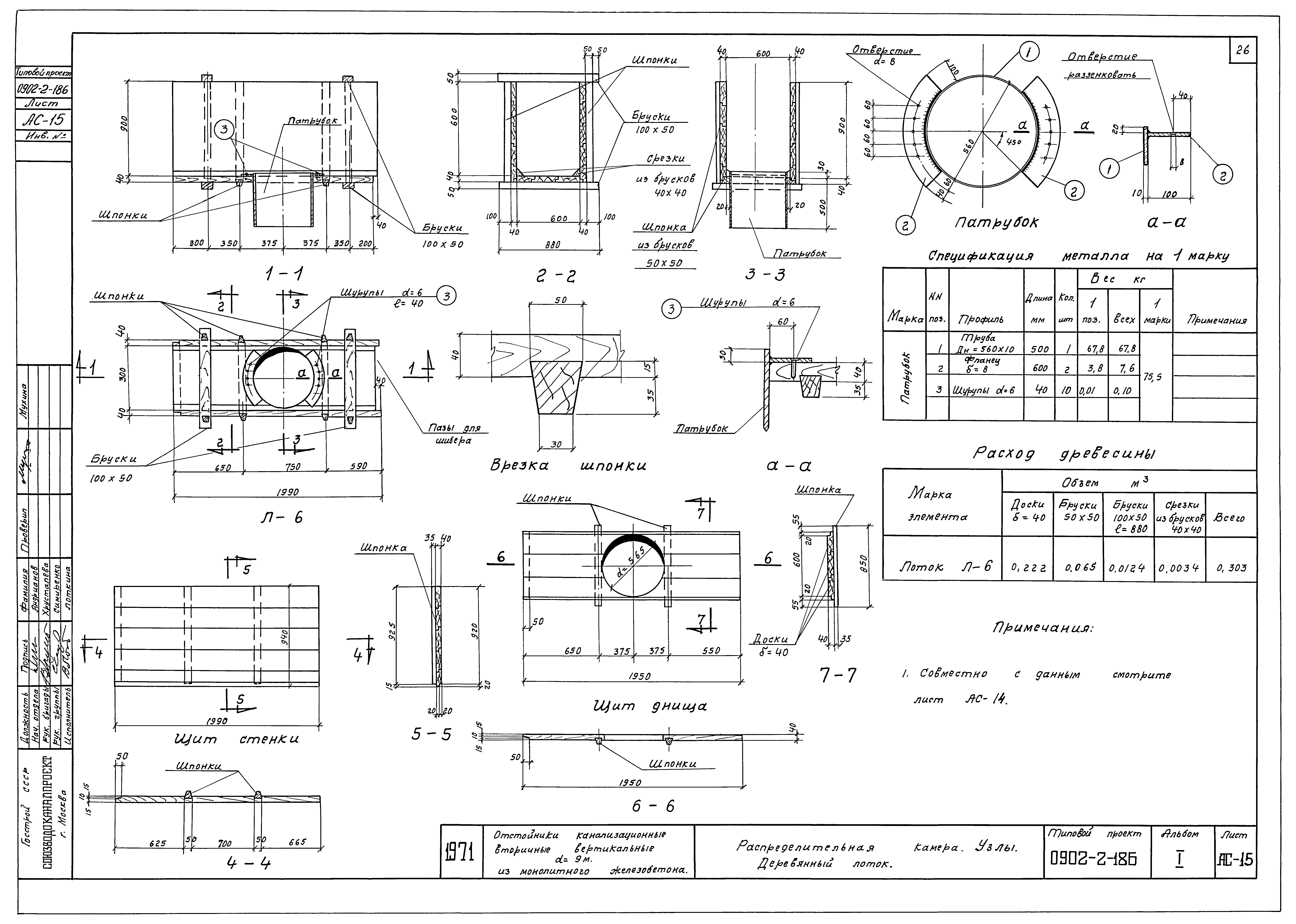
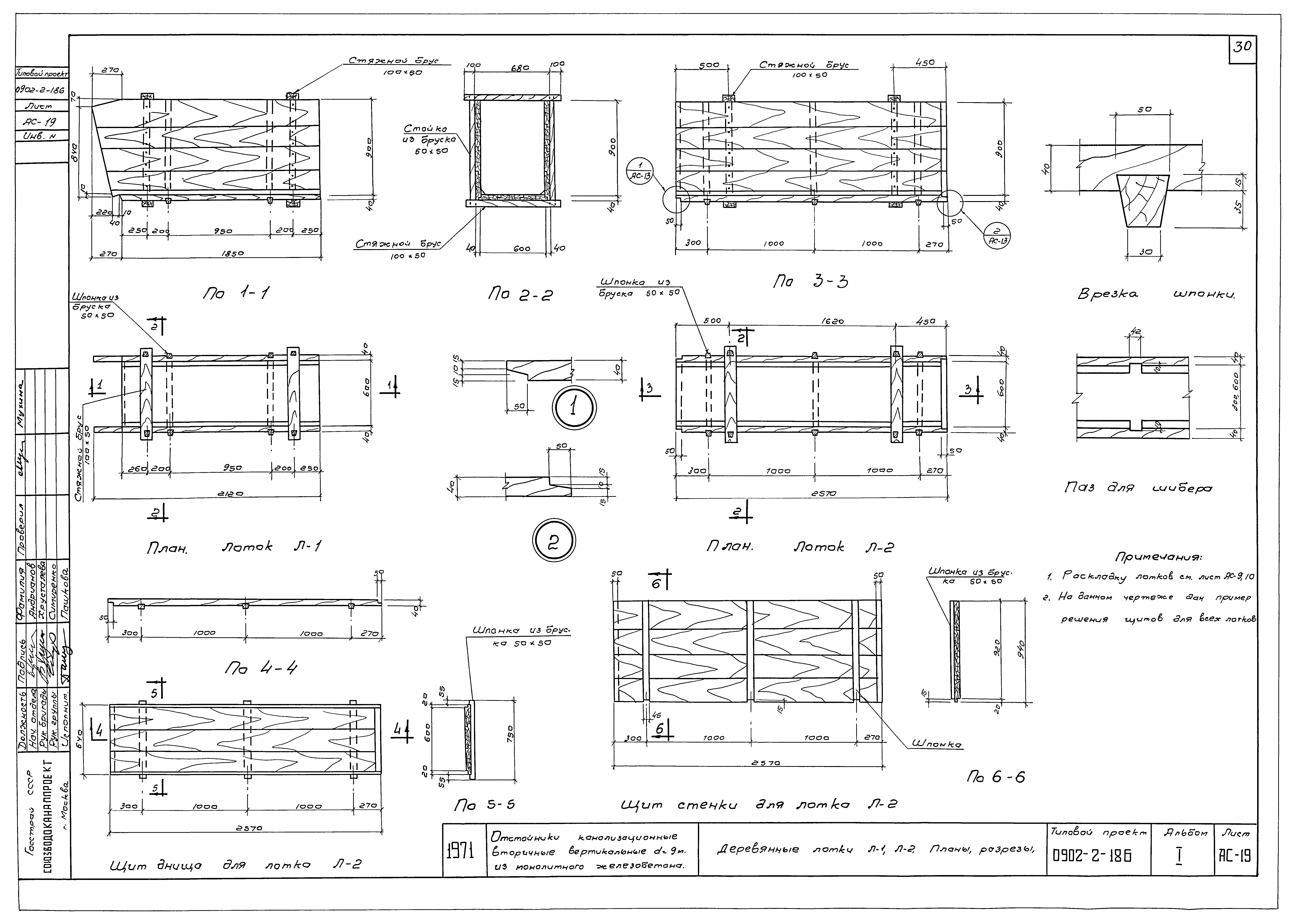
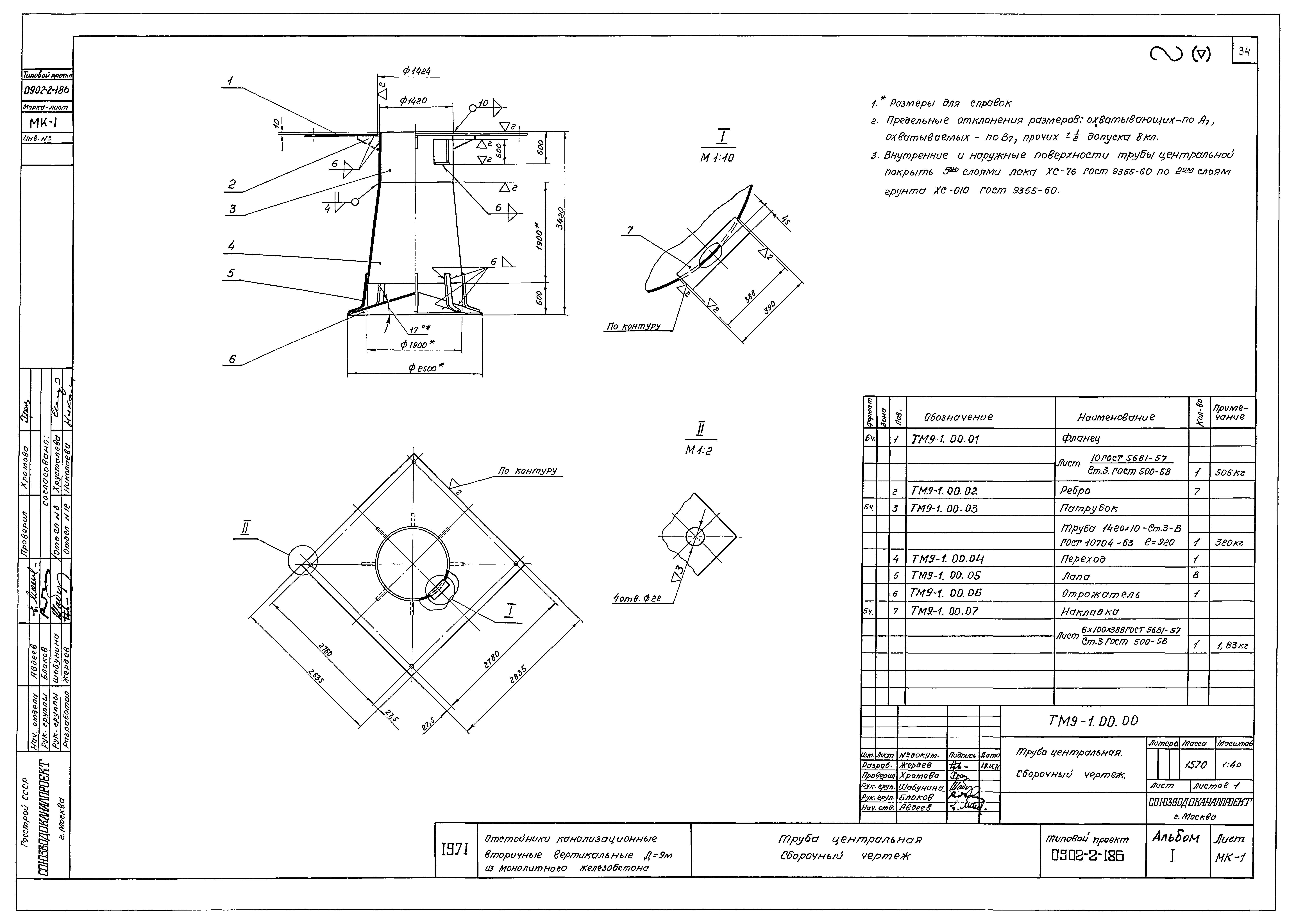
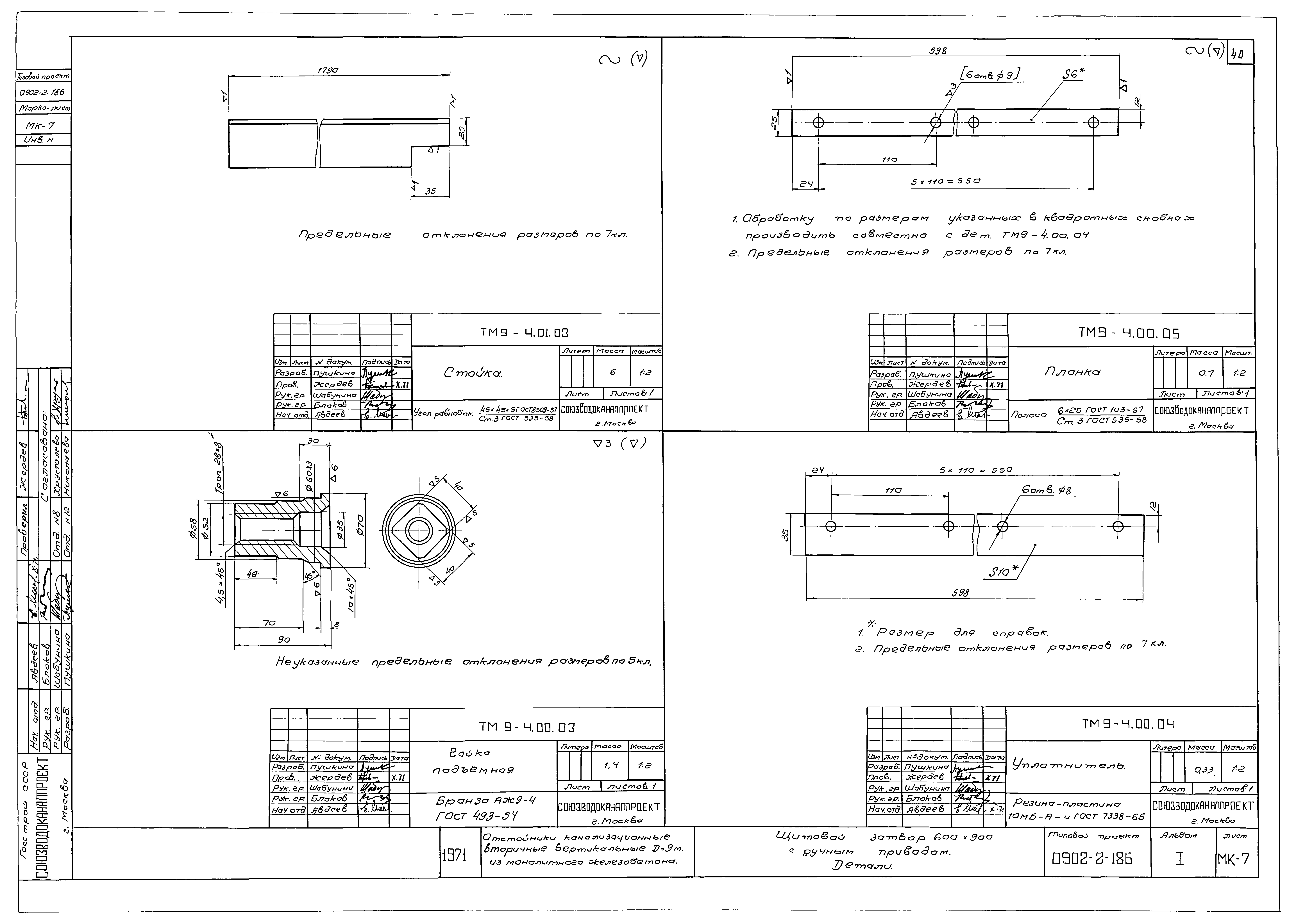
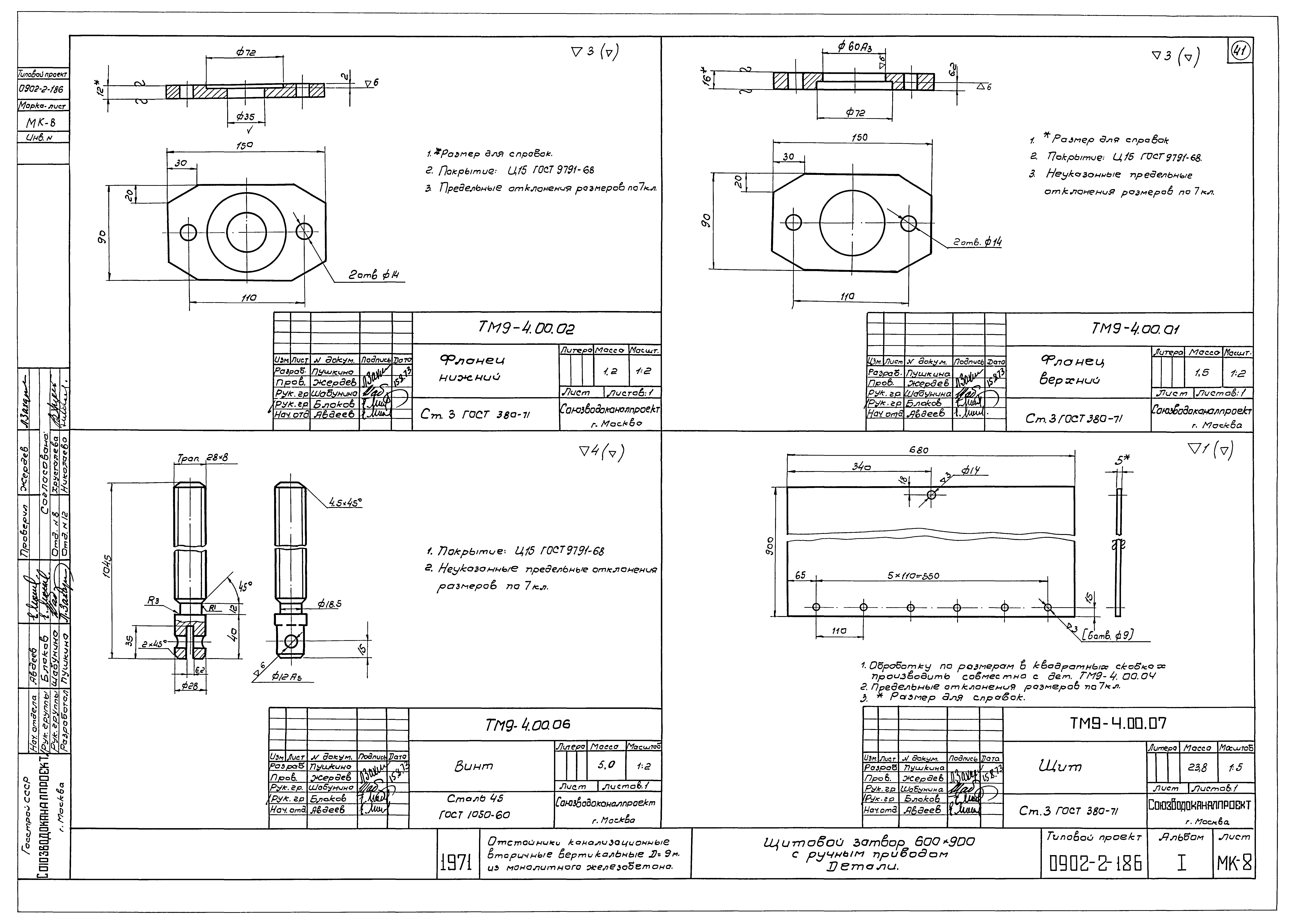
Скачать Типовой проект 0902-2-186 Альбом I. Пояснительная записка и чертежиДата актуализации: 01.01.2021
|
| Обозначение: | Типовой проект 0902-2-186 |
| Обозначение англ: | 0902-2-186 |
| Статус: | действует |
| Название рус.: | Альбом I. Пояснительная записка и чертежи |
| Дата добавления в базу: | 01.02.2020 |
| Дата актуализации: | 01.01.2021 |
| Дата введения: | 13.11.1973 |
| Разработан: | Союзводоканалпроект |
| Утверждён: | 13.11.1973 СоюзводоканалНИИпроект (SoyuzvodokanalNIIproject 240) |









































