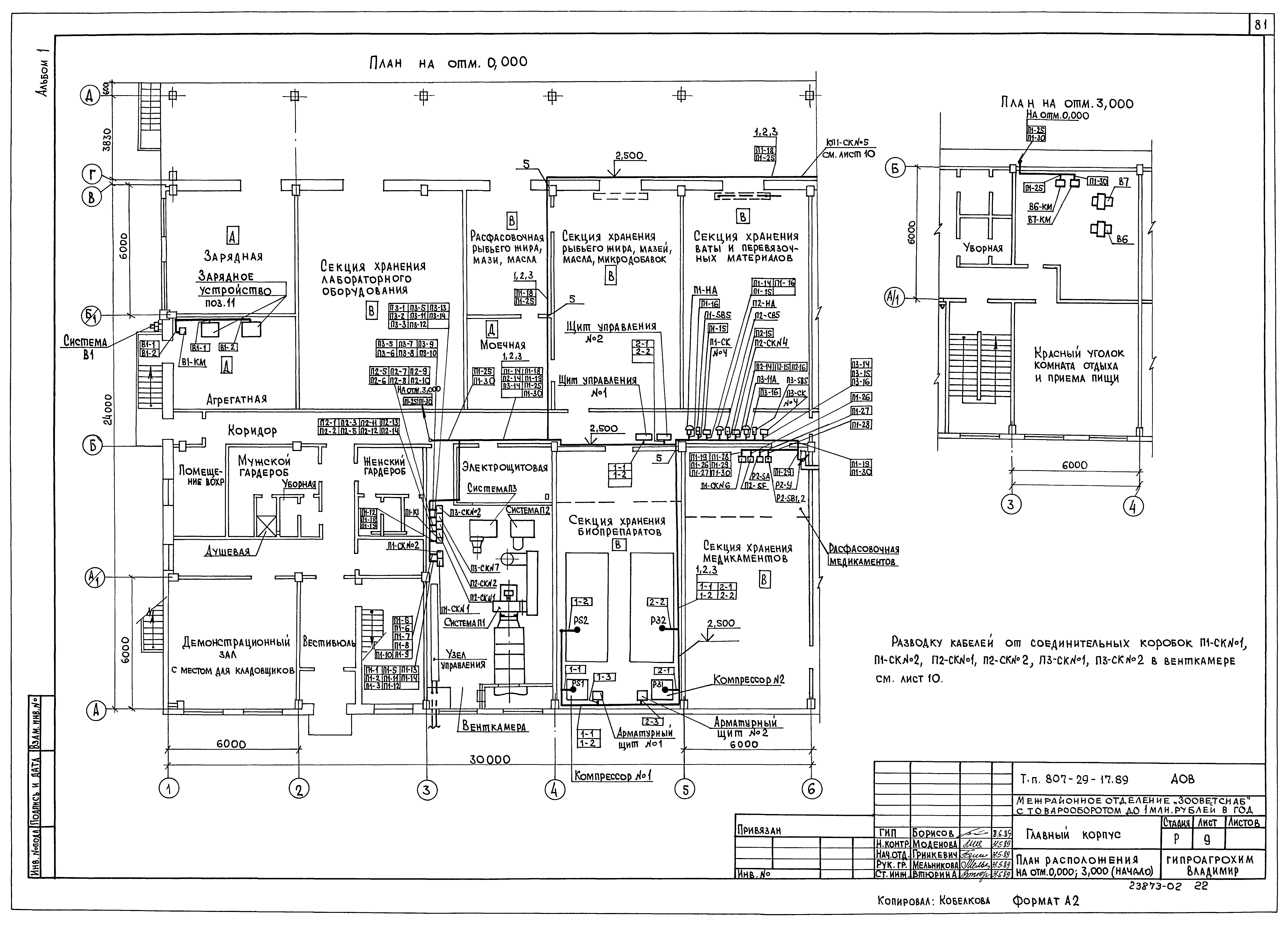
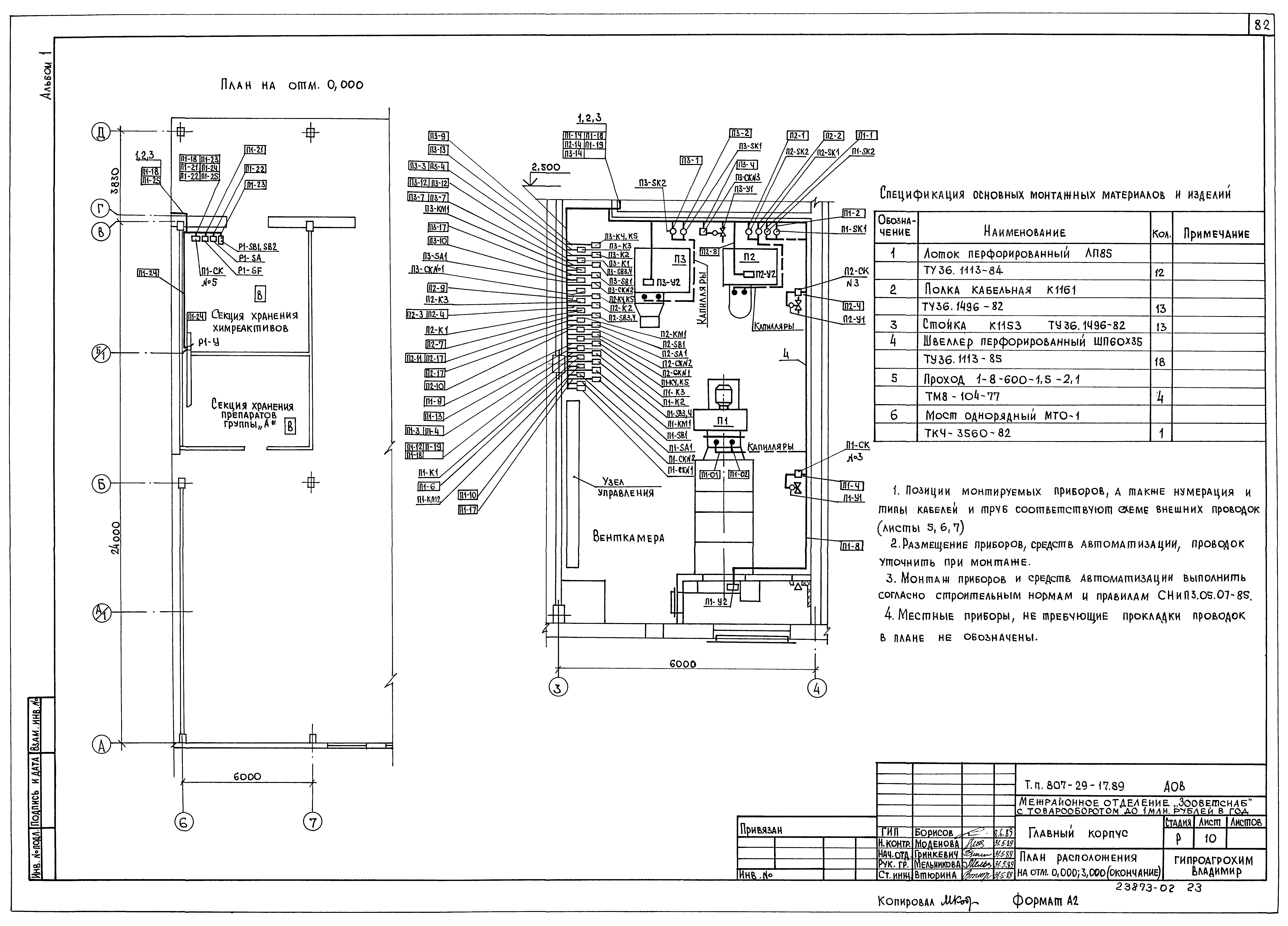
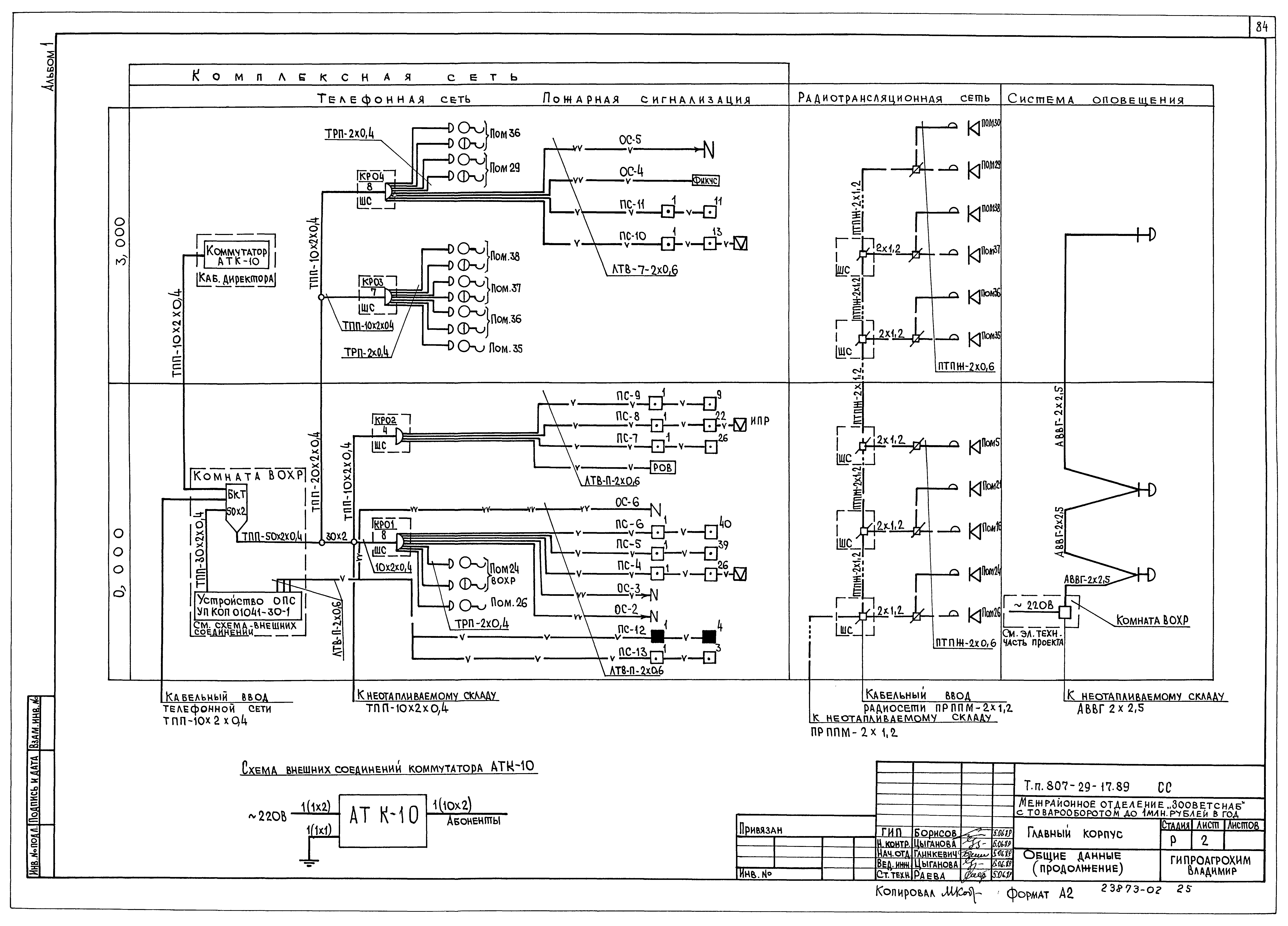
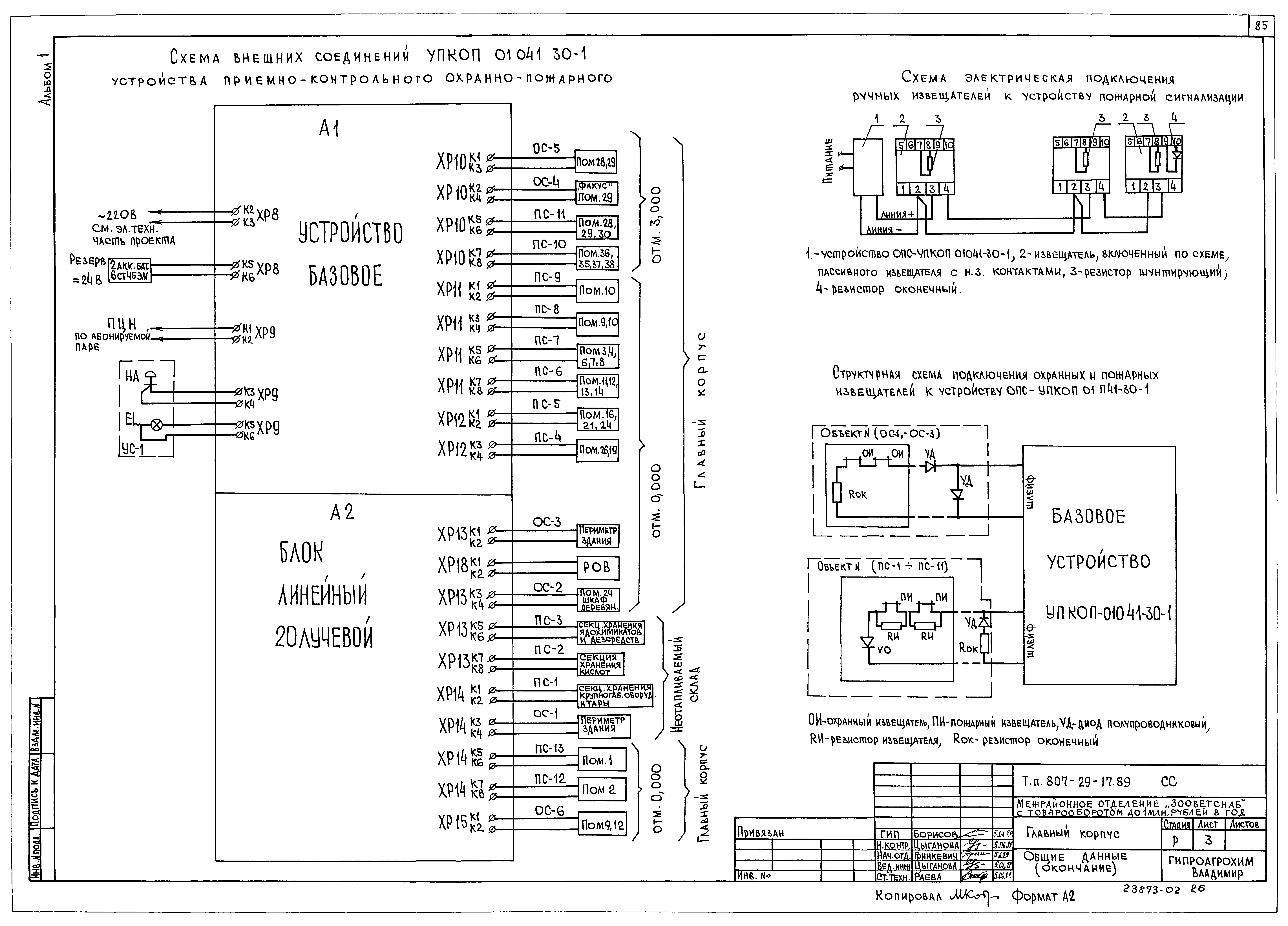
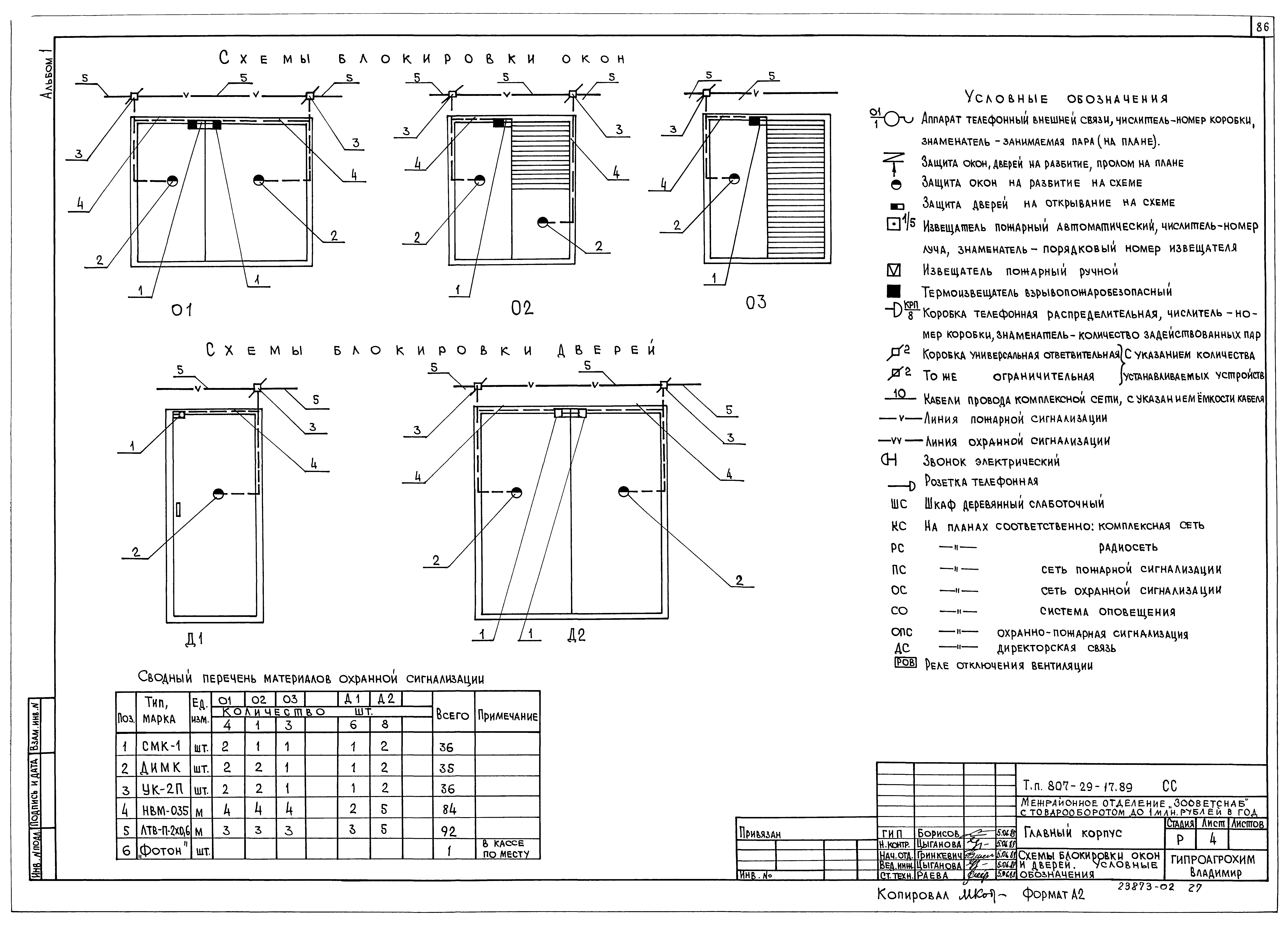
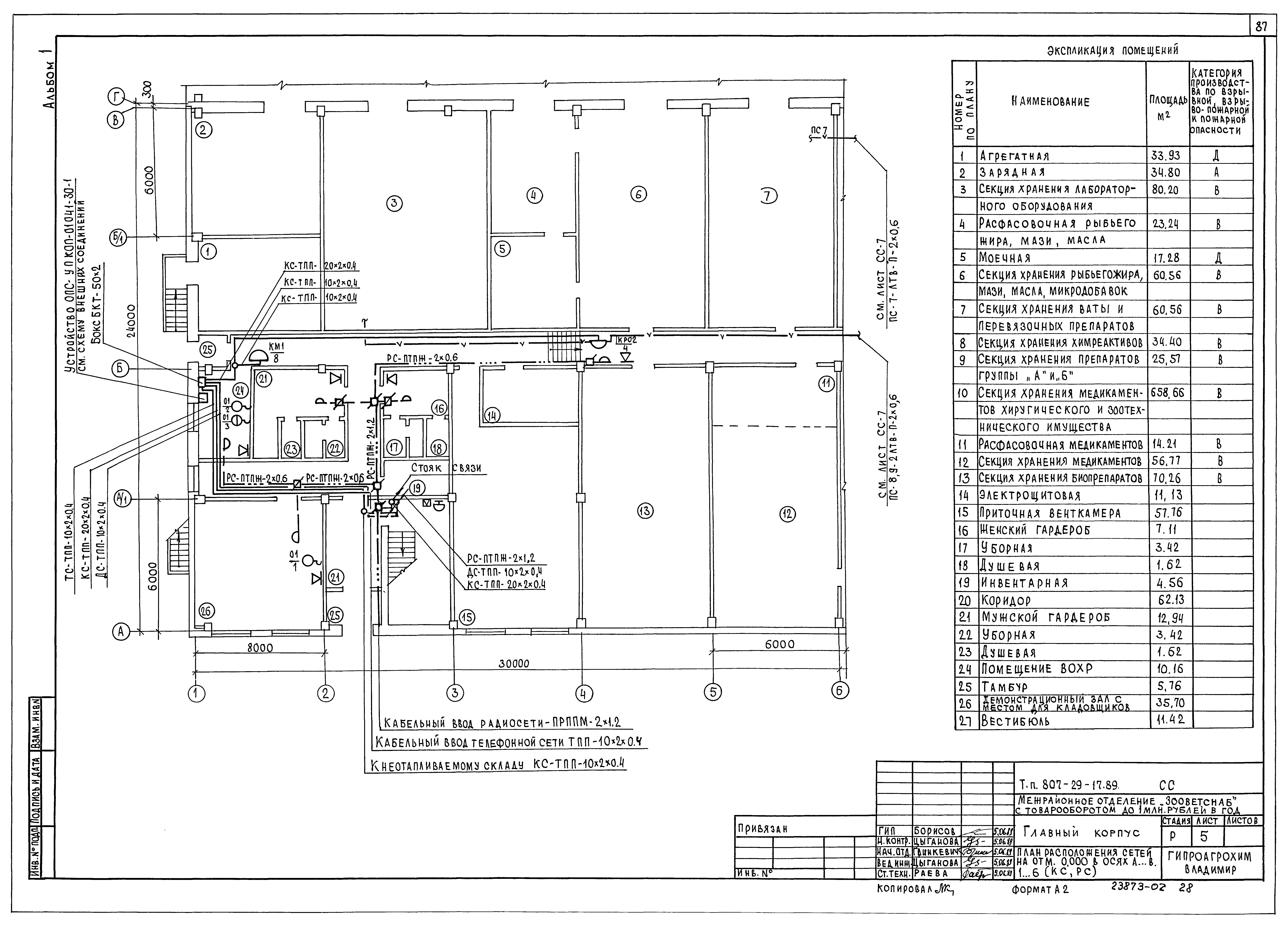
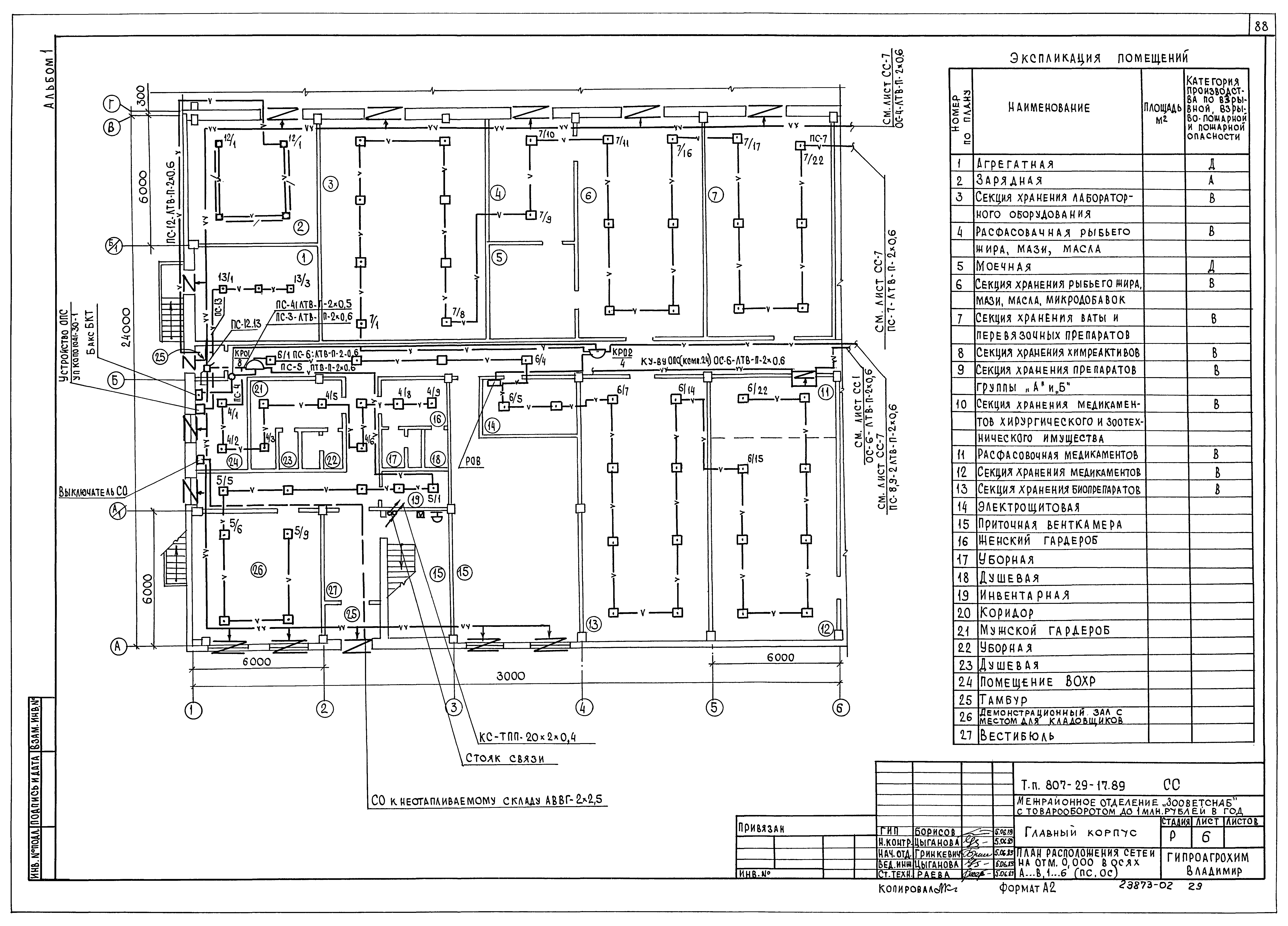
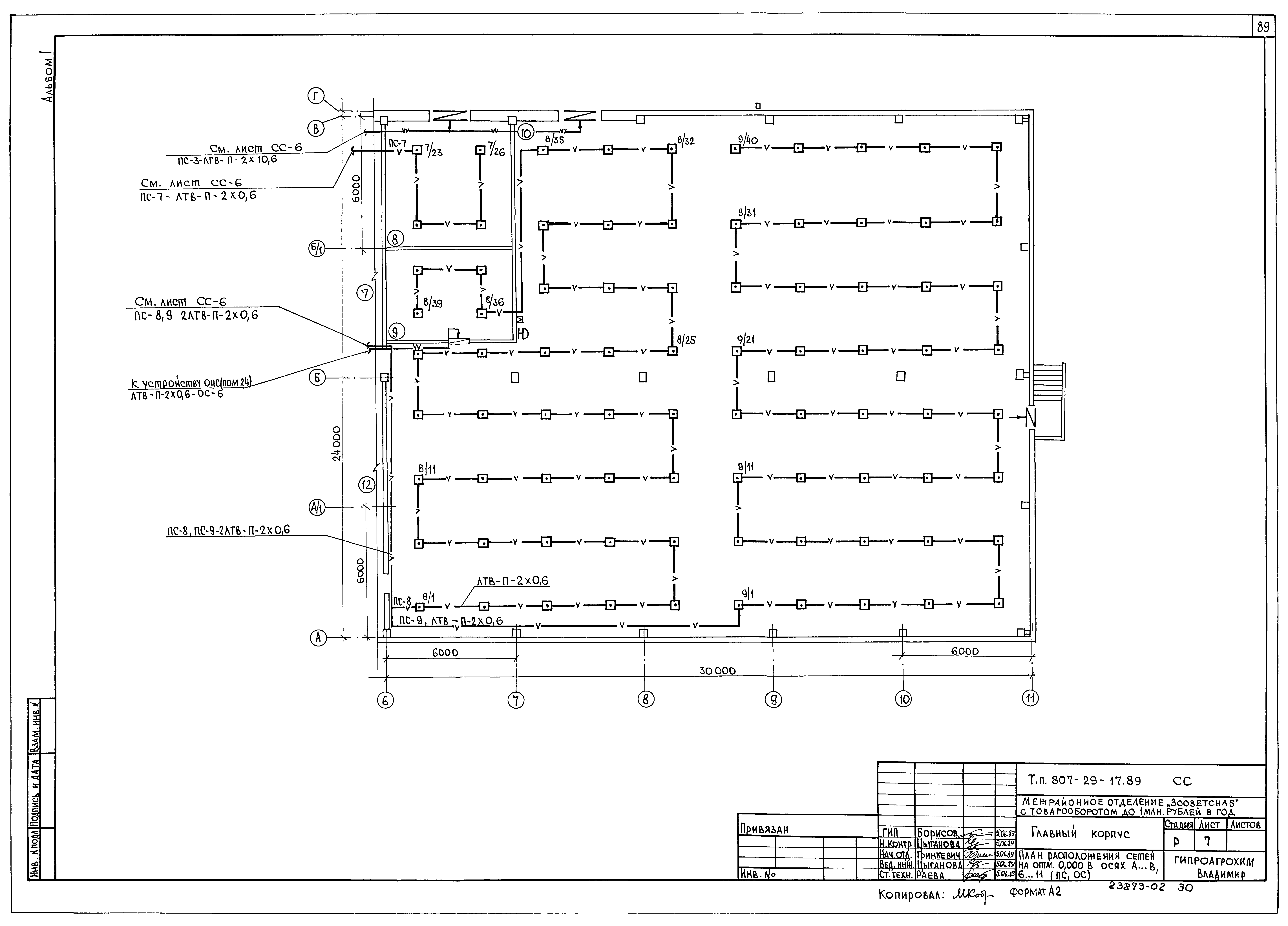
Скачать Типовой проект 807-29-17.89 Альбом 1. Часть 2. Силовое электрооборудование. Автоматизация отопления и вентиляции. Связь и сигнализацияДата актуализации: 01.01.2021
|
| Обозначение: | Типовой проект 807-29-17.89 |
| Обозначение англ: | 807-29-17.89 |
| Статус: | не определен законодательством |
| Название рус.: | Альбом 1. Часть 2. Силовое электрооборудование. Автоматизация отопления и вентиляции. Связь и сигнализация |
| Дата добавления в базу: | 01.02.2020 |
| Дата актуализации: | 01.01.2021 |
| Дата введения: | 09.06.1989 |
| Дата окончания срока действия: | 30.06.2003 |
| Разработан: | Гипроагрохим |
| Утверждён: | 09.06.1989 Гипроагрохим Госагропрома СССР (25-Э) |
| Заменяет собой: |
|






























