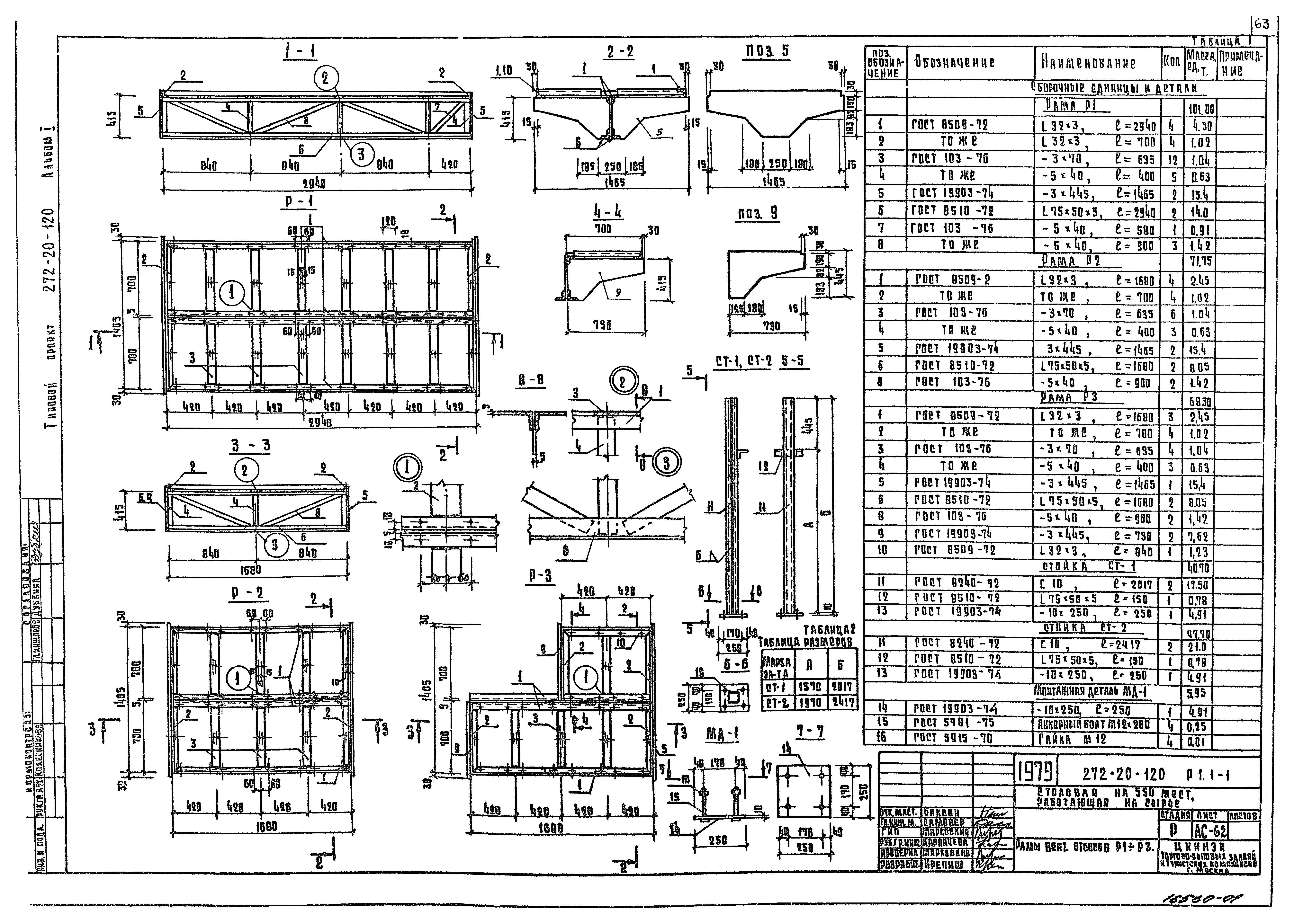
Скачать Типовой проект 272-20-120 Альбом I. Архитектурно-строительная часть. Технология и механизацияДата актуализации: 01.01.2021
|
| Обозначение: | Типовой проект 272-20-120 |
| Обозначение англ: | 272-20-120 |
| Статус: | действует |
| Название рус.: | Альбом I. Архитектурно-строительная часть. Технология и механизация |
| Дата добавления в базу: | 01.02.2020 |
| Дата актуализации: | 01.01.2021 |
| Дата введения: | 01.06.1980 |
| Разработан: | ЦНИИЭП торгово-бытовых зданий и туристских комплексов |
| Утверждён: | 17.11.1965 Госгражданстрой (Gosgrazhdanstroy 204) |
| Принят: | 28.12.1979 Госгражданстрой (Gosgrazhdanstroy С3-4-4665) |
| Заменяет собой: |
|











































































