Скачать Типовой проект 503-1-107.92 Альбом 4. Отопление и вентиляция. Эскизные чертежи общих видов нетиповых конструкций систем отопления и вентиляции. Внутренние водопровод и канализация. Эскизные чертежи общих видов нетиповых конструкций систем водопровода и канализации

Дата актуализации: 01.01.2021

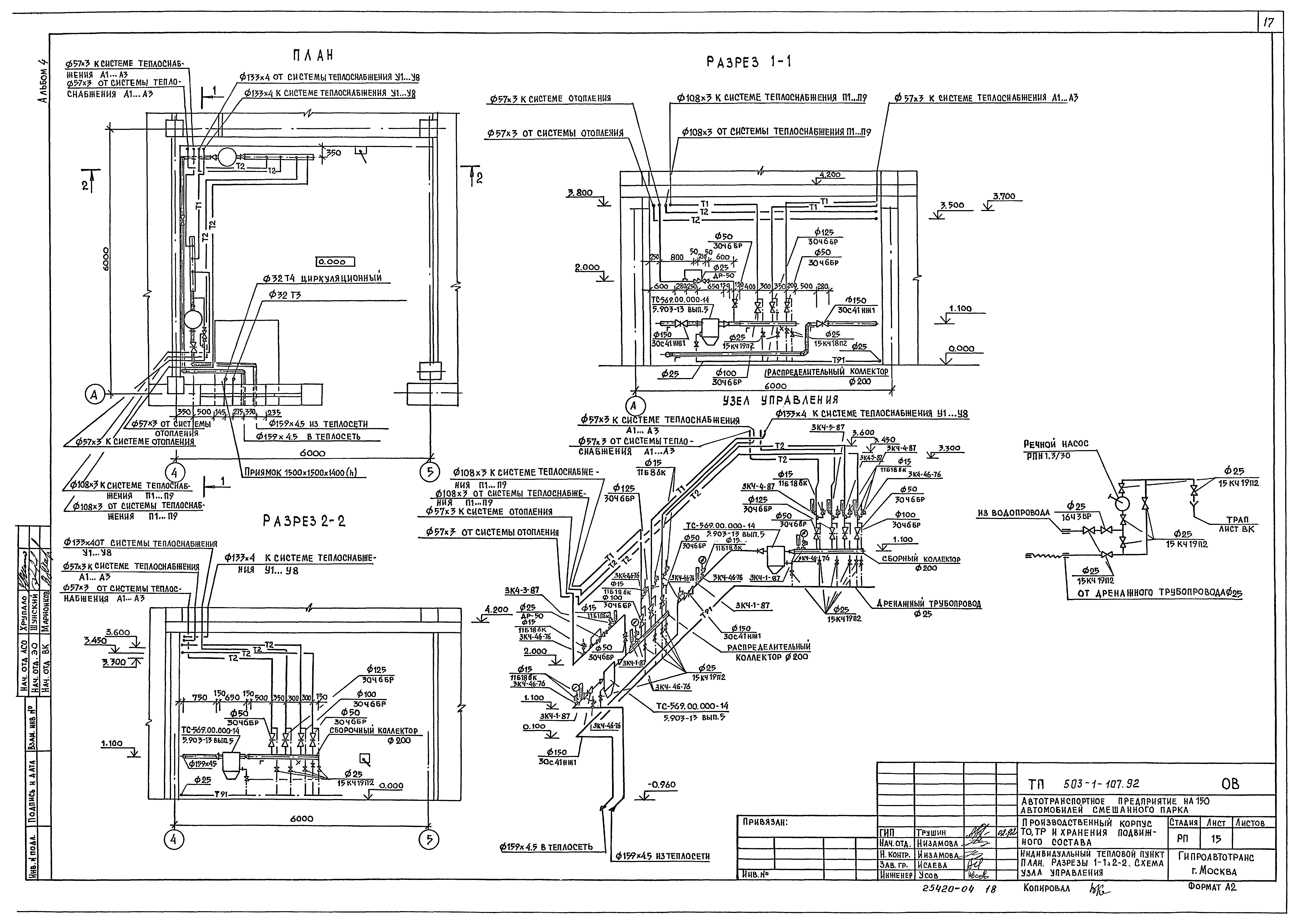
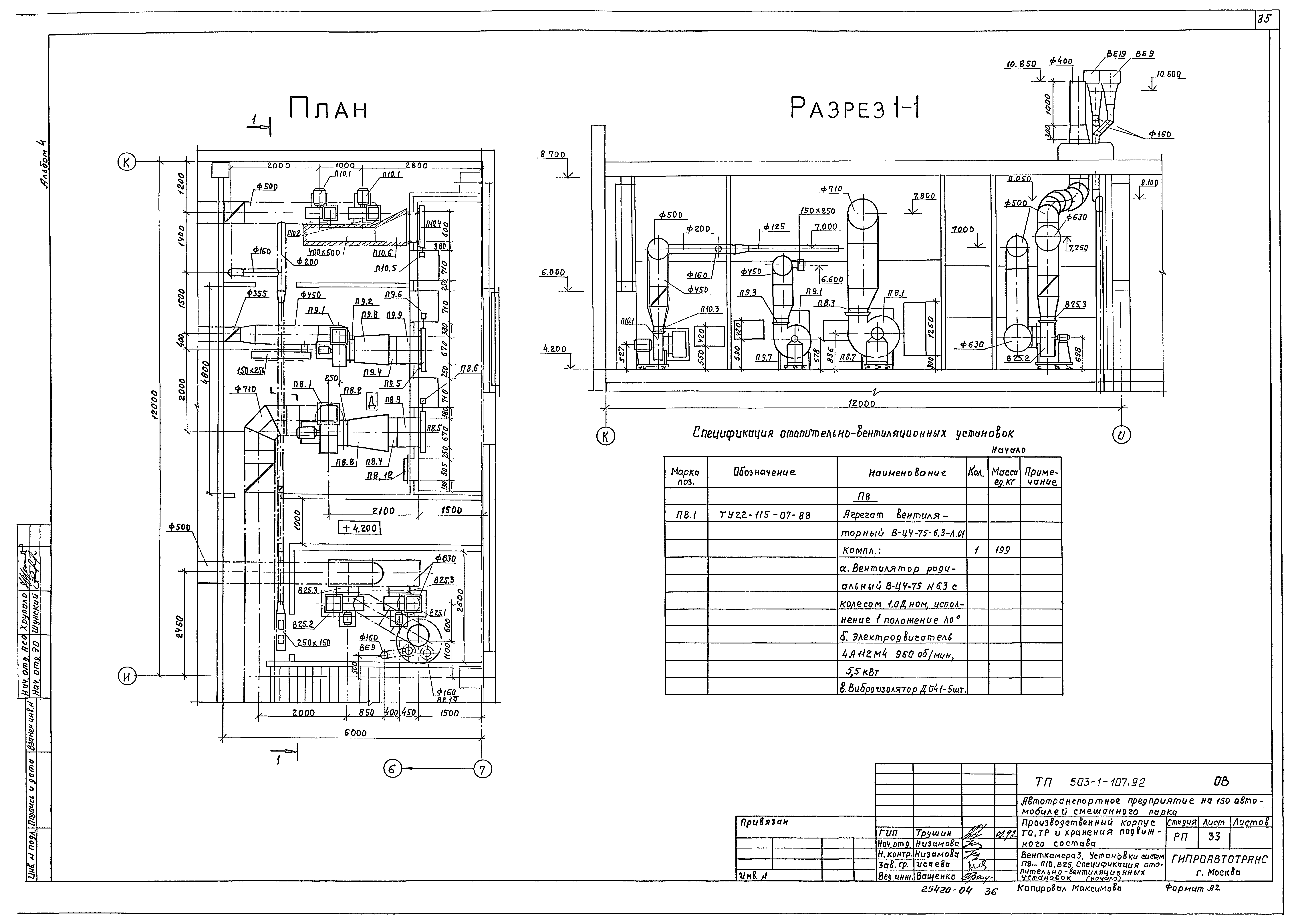
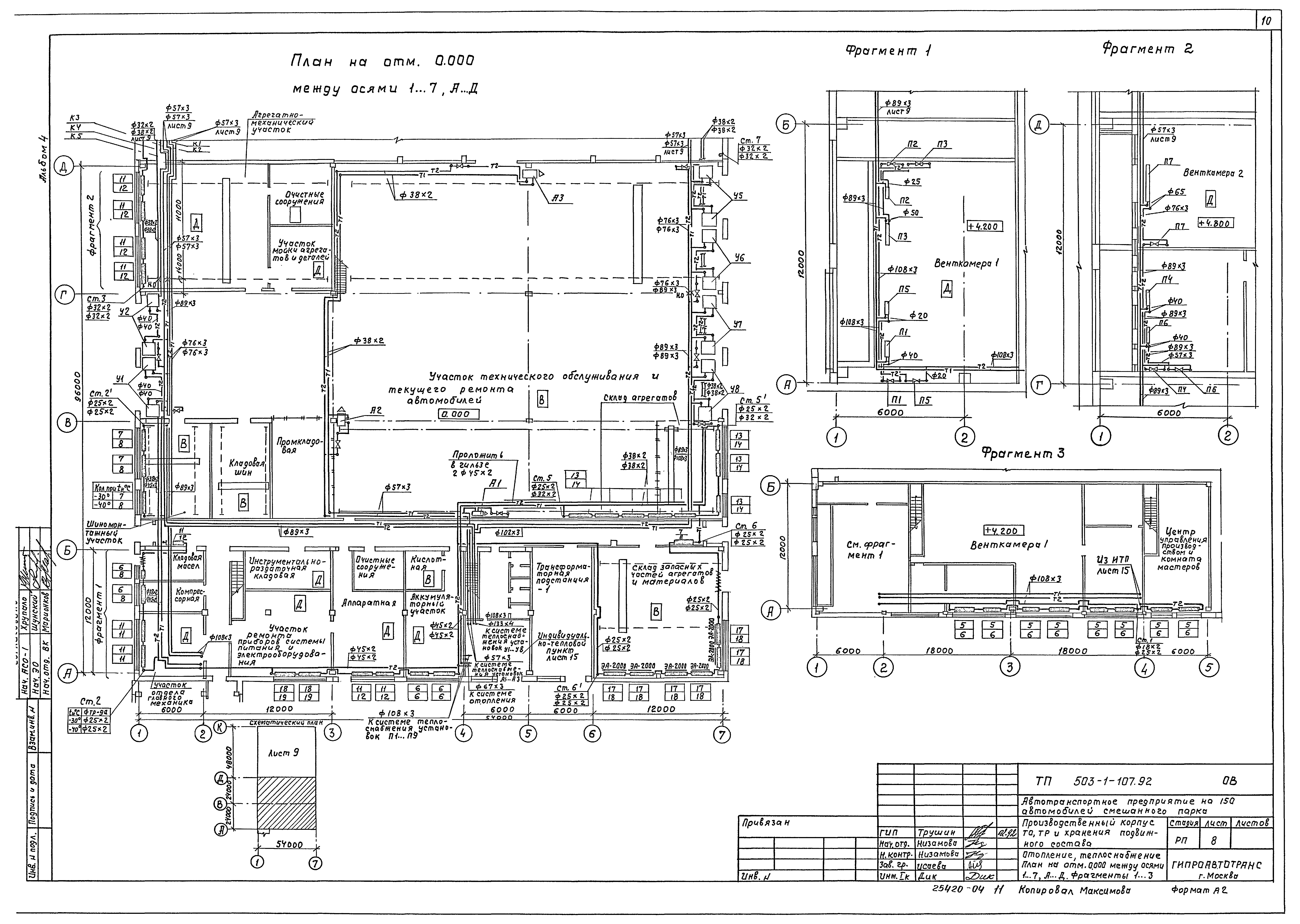
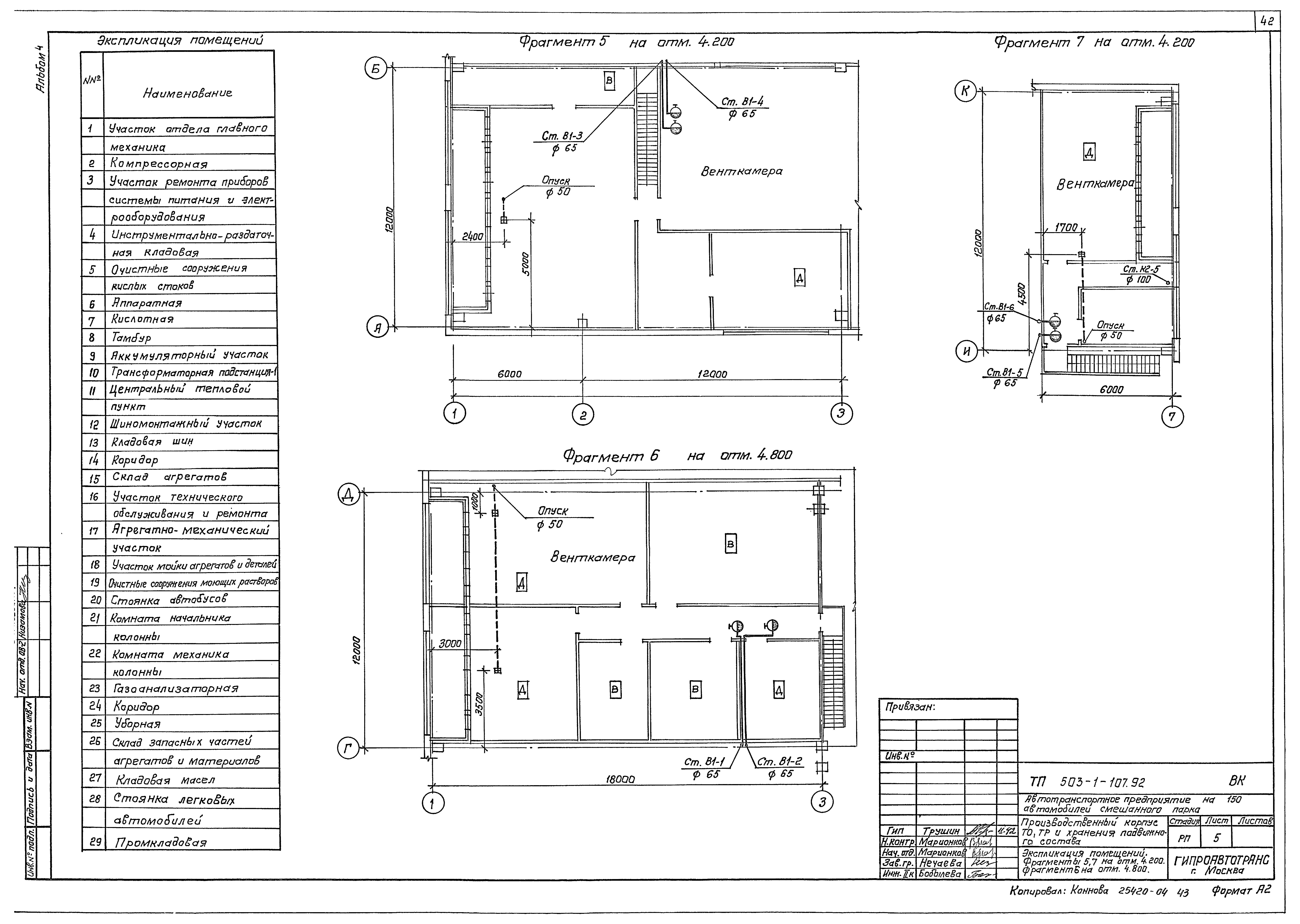
Типовой проект 503-1-107.92

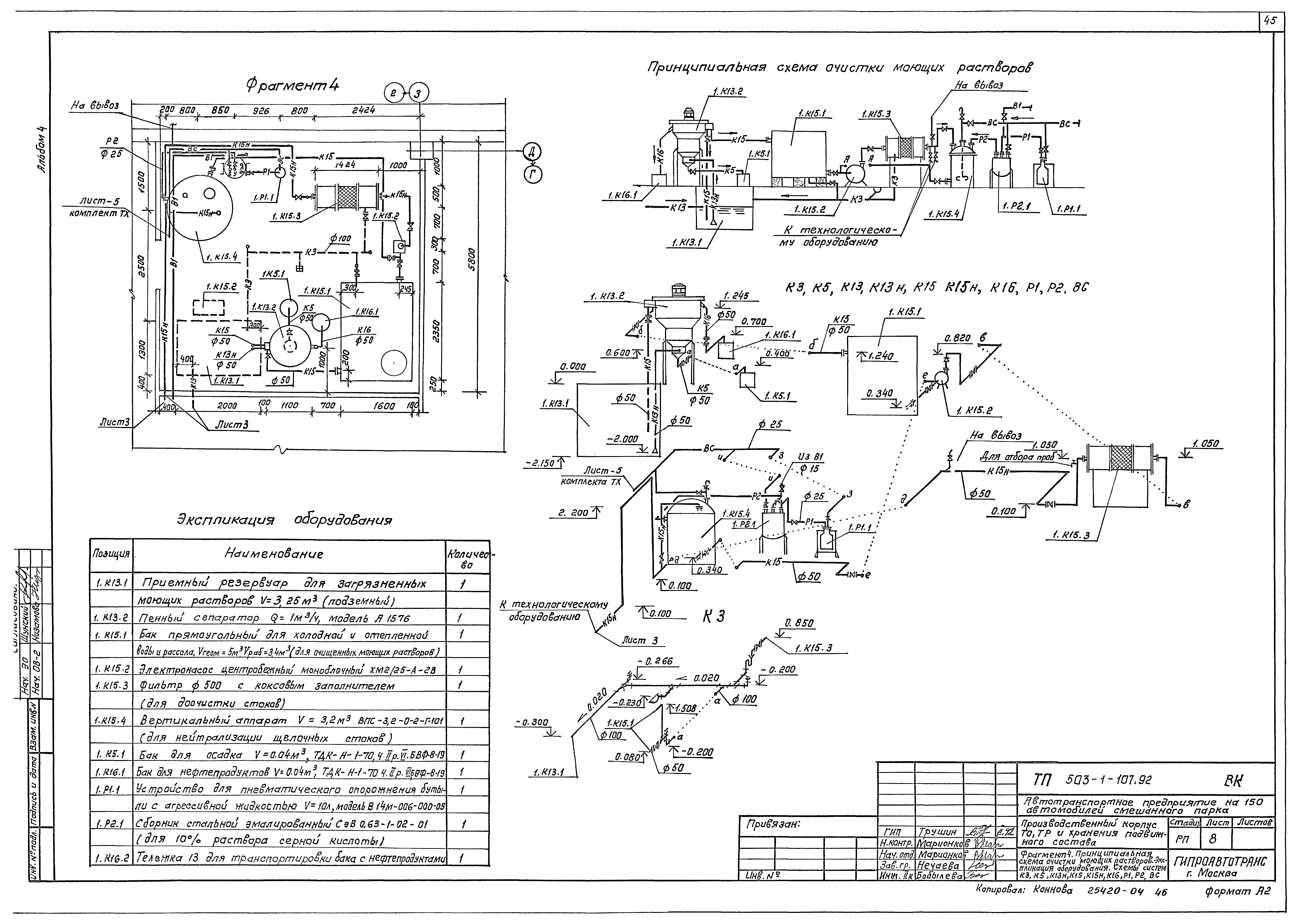
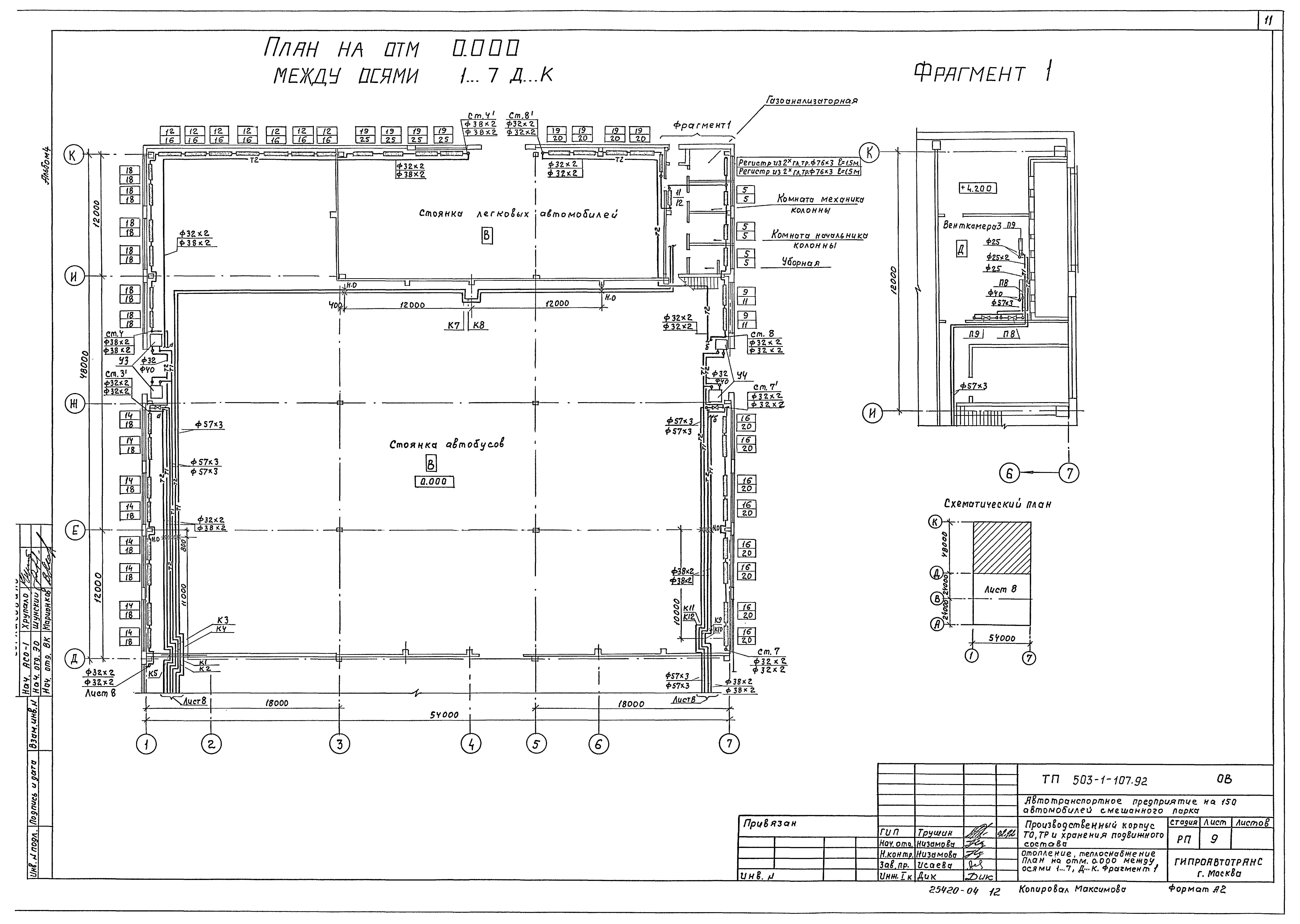
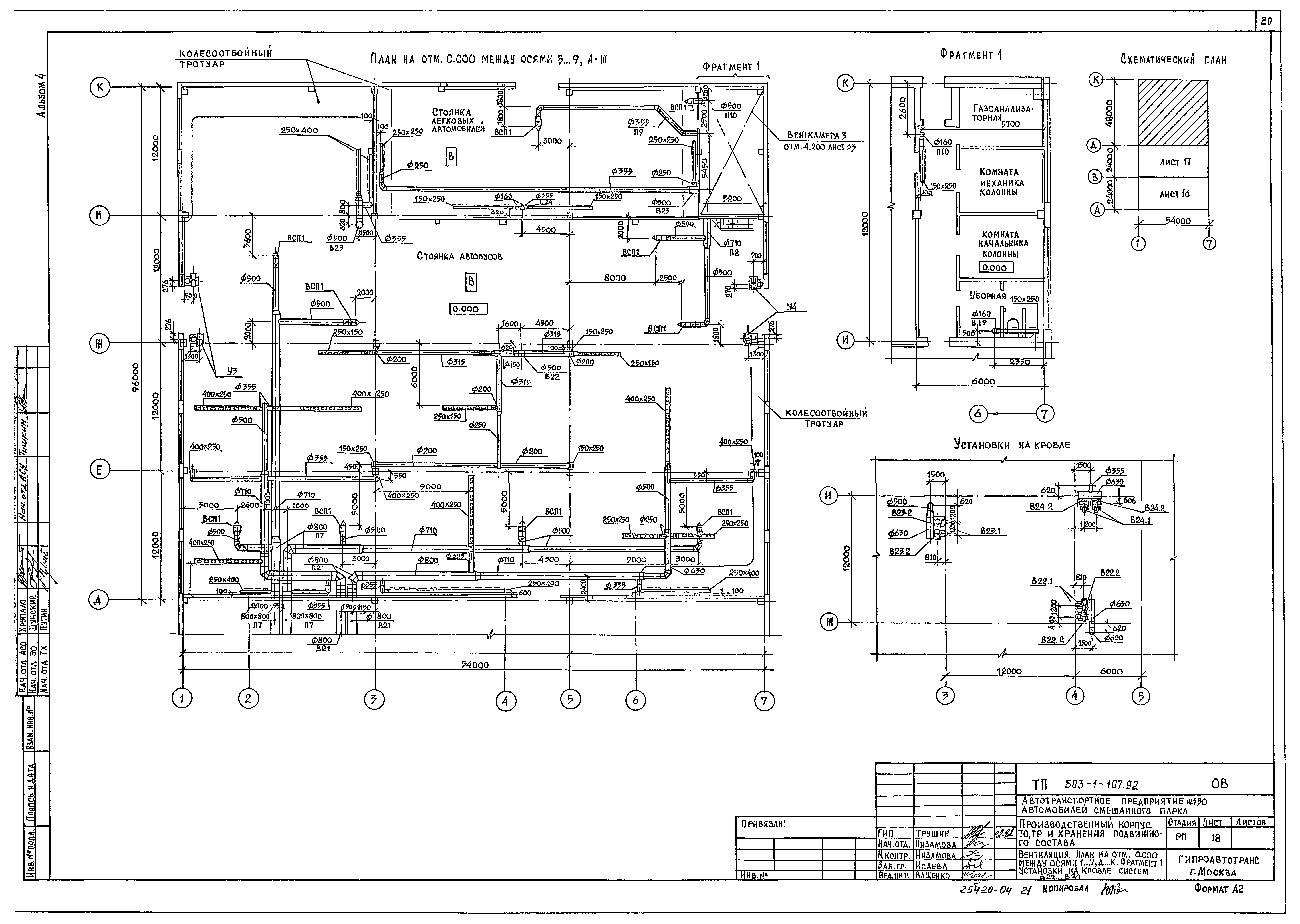
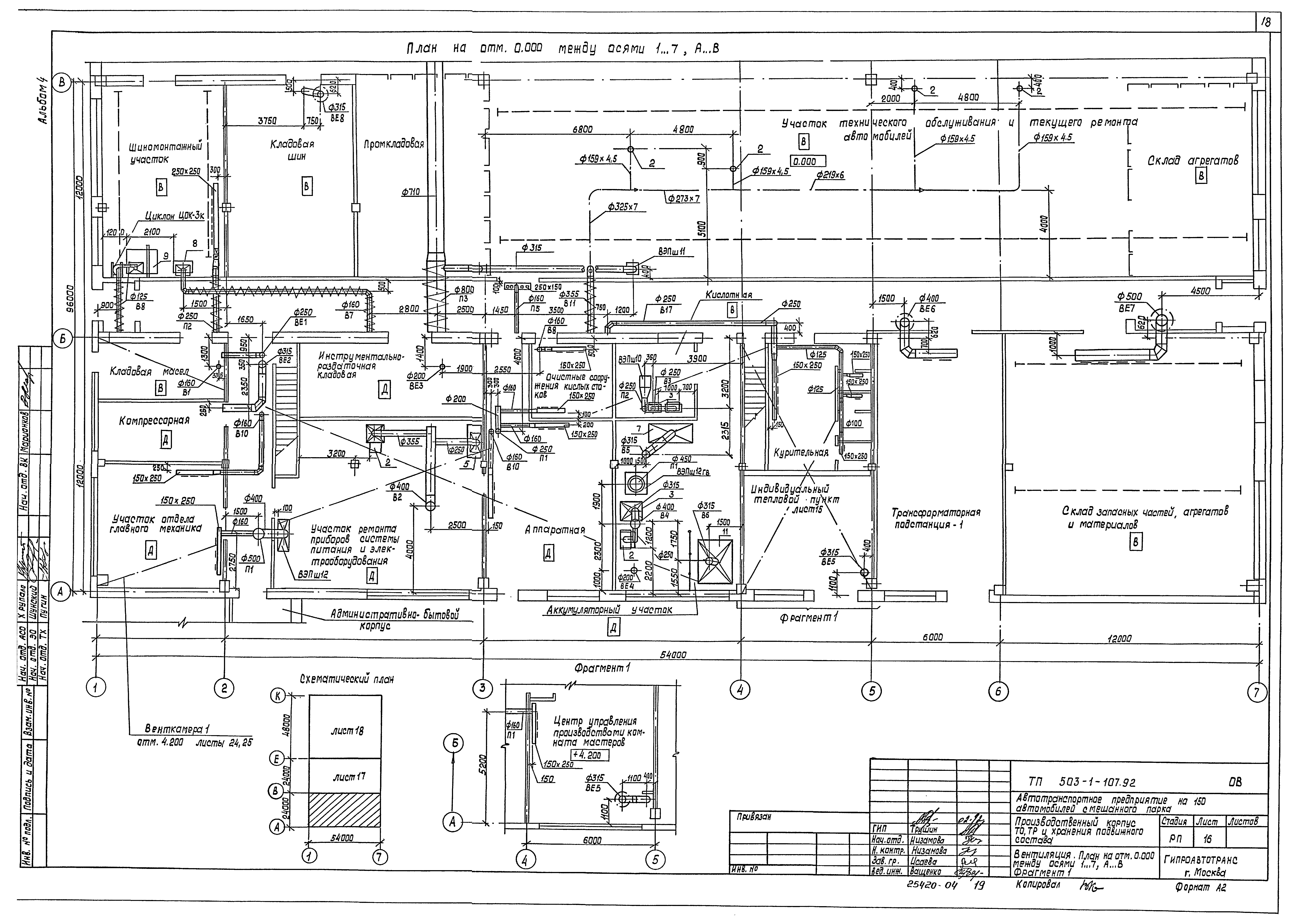
Альбом 4. Отопление и вентиляция. Эскизные чертежи общих видов нетиповых конструкций систем отопления и вентиляции. Внутренние водопровод и канализация. Эскизные чертежи общих видов нетиповых конструкций систем водопровода и канализации

Обозначение: Типовой проект 503-1-107.92
Обозначение англ: 503-1-107.92
Статус:не определен законодательством
Название рус.:Альбом 4. Отопление и вентиляция. Эскизные чертежи общих видов нетиповых конструкций систем отопления и вентиляции. Внутренние водопровод и канализация. Эскизные чертежи общих видов нетиповых конструкций систем водопровода и канализации
Дата добавления в базу:01.02.2020
Дата актуализации:01.01.2021
Дата введения:27.04.1992
Дата окончания срока действия:30.06.2003
Разработан: Гипроавтотранс
Утверждён:27.04.1992 Росавтотранс (4)
Типовой проект 503-1-107.92Типовой проект 503-1-107.92Типовой проект 503-1-107.92Типовой проект 503-1-107.92Типовой проект 503-1-107.92Типовой проект 503-1-107.92Типовой проект 503-1-107.92Типовой проект 503-1-107.92Типовой проект 503-1-107.92Типовой проект 503-1-107.92Типовой проект 503-1-107.92Типовой проект 503-1-107.92Типовой проект 503-1-107.92Типовой проект 503-1-107.92Типовой проект 503-1-107.92Типовой проект 503-1-107.92Типовой проект 503-1-107.92Типовой проект 503-1-107.92Типовой проект 503-1-107.92Типовой проект 503-1-107.92Типовой проект 503-1-107.92Типовой проект 503-1-107.92Типовой проект 503-1-107.92Типовой проект 503-1-107.92Типовой проект 503-1-107.92Типовой проект 503-1-107.92Типовой проект 503-1-107.92Типовой проект 503-1-107.92Типовой проект 503-1-107.92Типовой проект 503-1-107.92Типовой проект 503-1-107.92Типовой проект 503-1-107.92Типовой проект 503-1-107.92Типовой проект 503-1-107.92Типовой проект 503-1-107.92Типовой проект 503-1-107.92Типовой проект 503-1-107.92Типовой проект 503-1-107.92Типовой проект 503-1-107.92Типовой проект 503-1-107.92Типовой проект 503-1-107.92Типовой проект 503-1-107.92Типовой проект 503-1-107.92Типовой проект 503-1-107.92Типовой проект 503-1-107.92Типовой проект 503-1-107.92Типовой проект 503-1-107.92Типовой проект 503-1-107.92Типовой проект 503-1-107.92Типовой проект 503-1-107.92