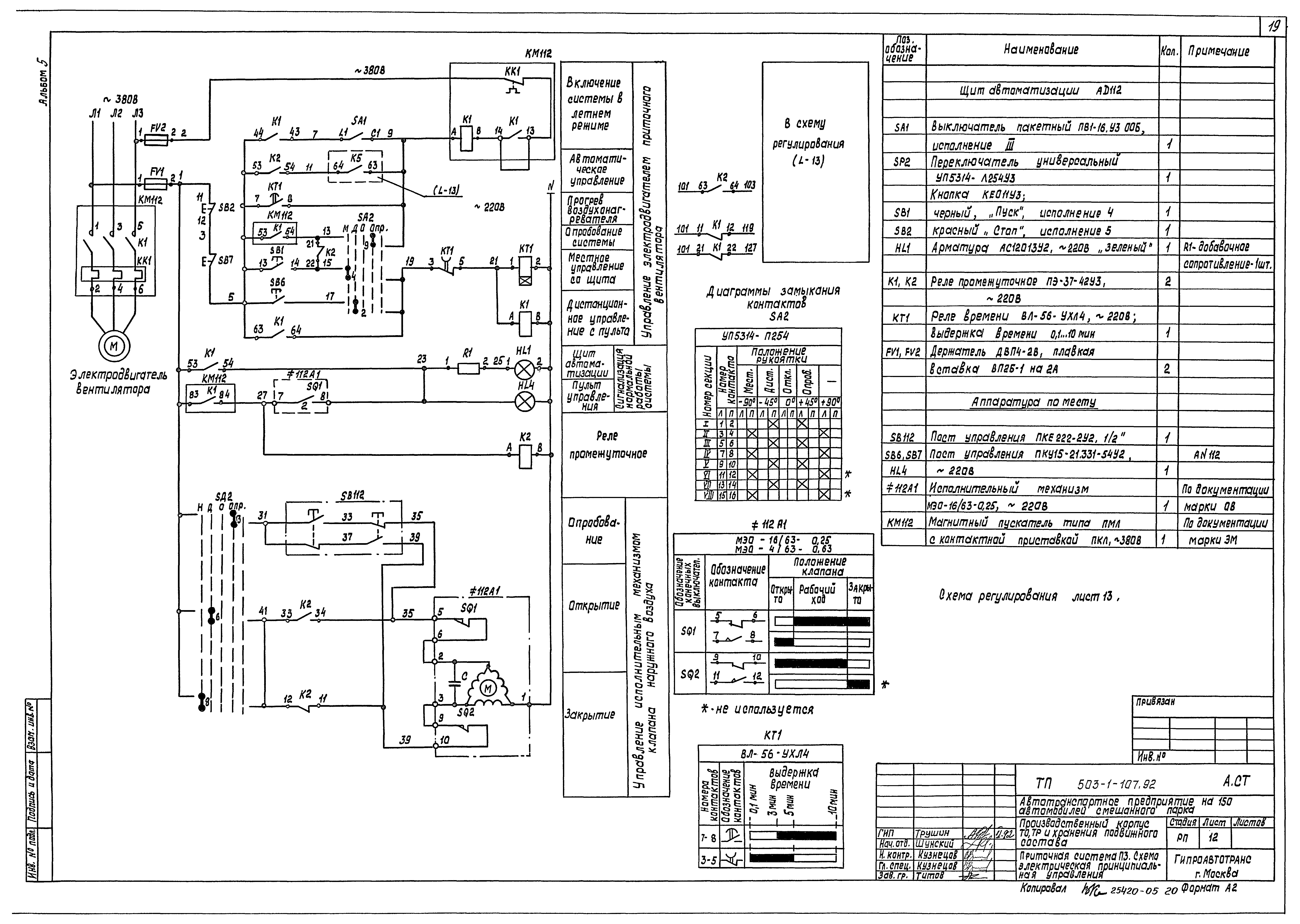
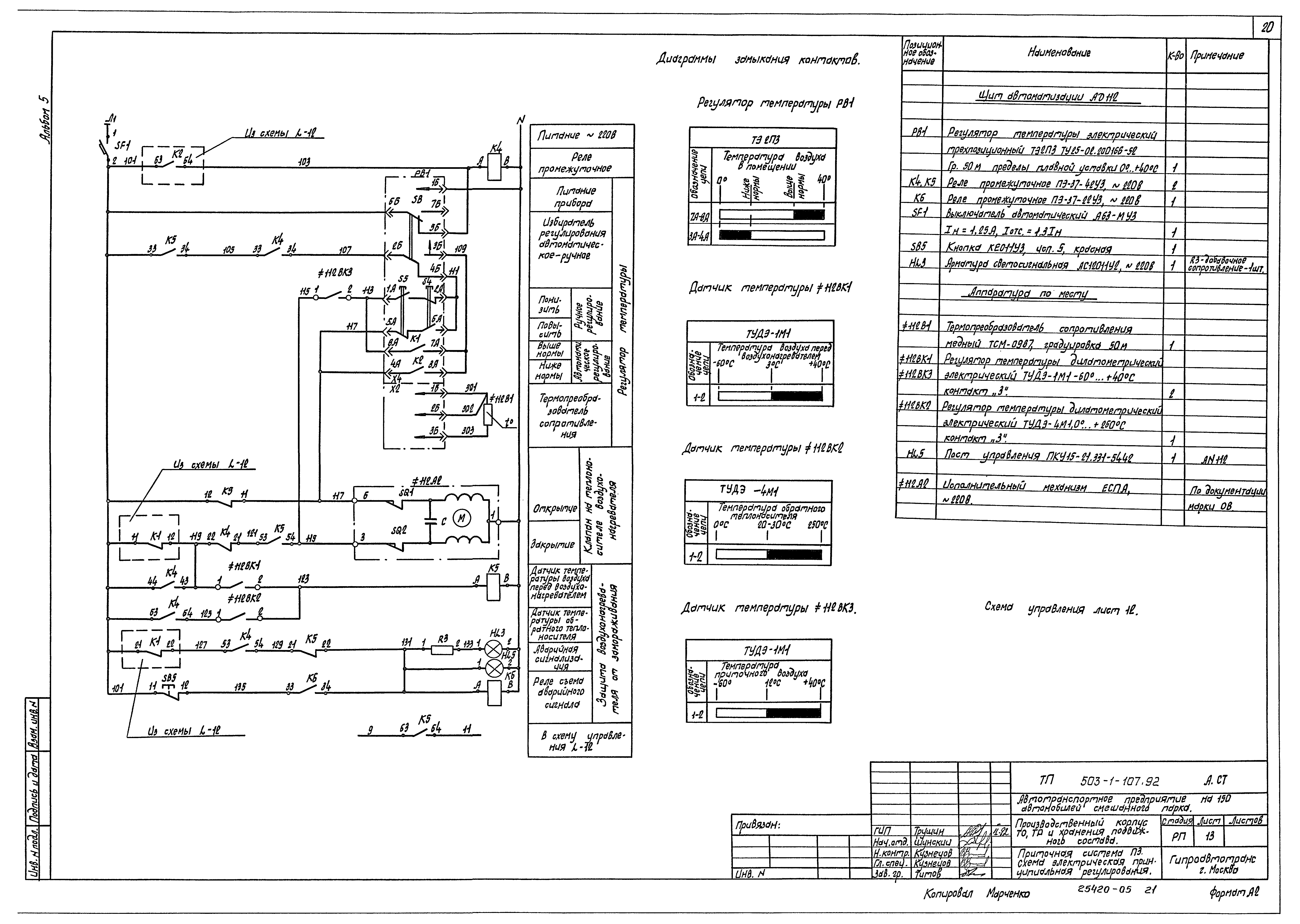
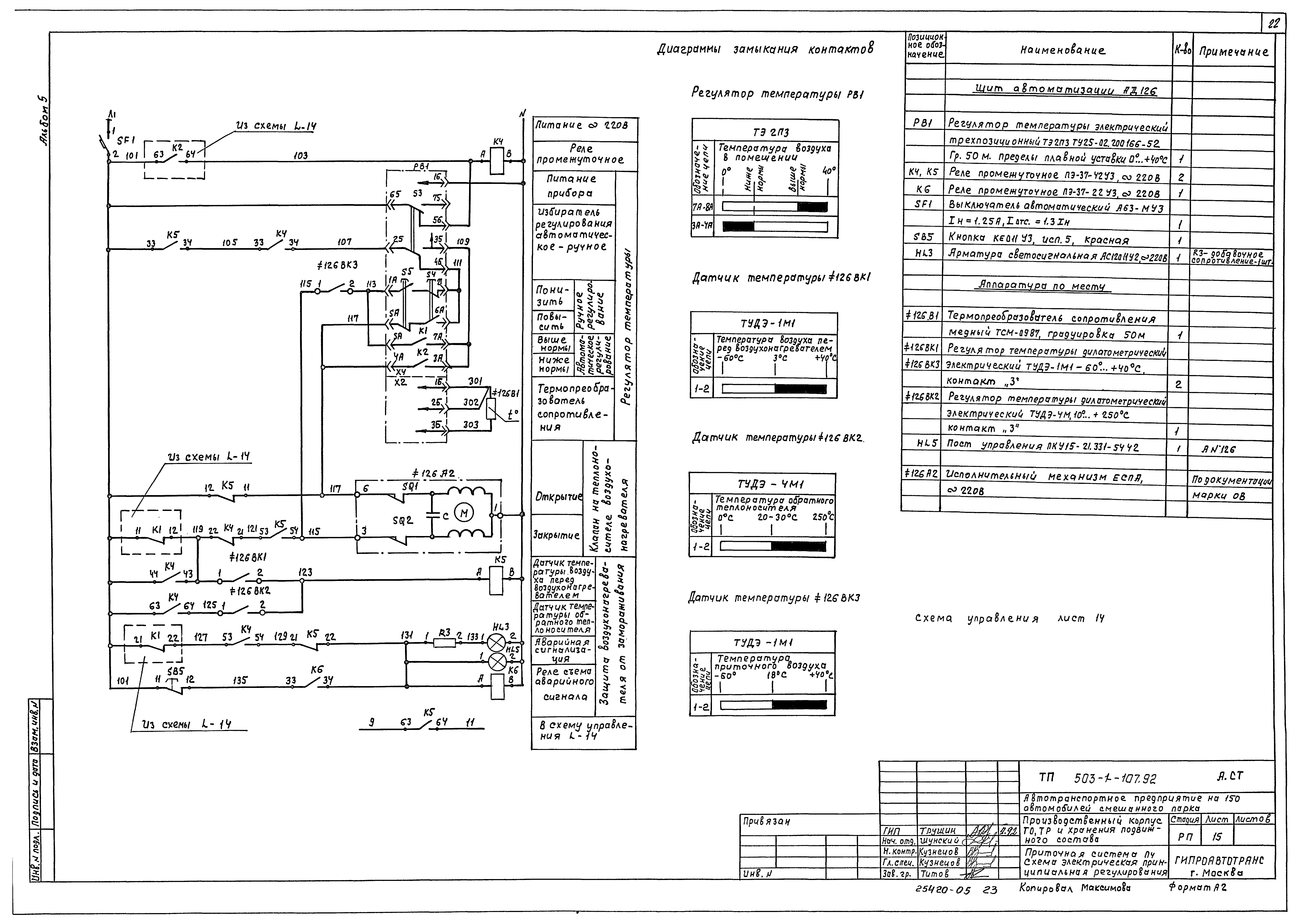
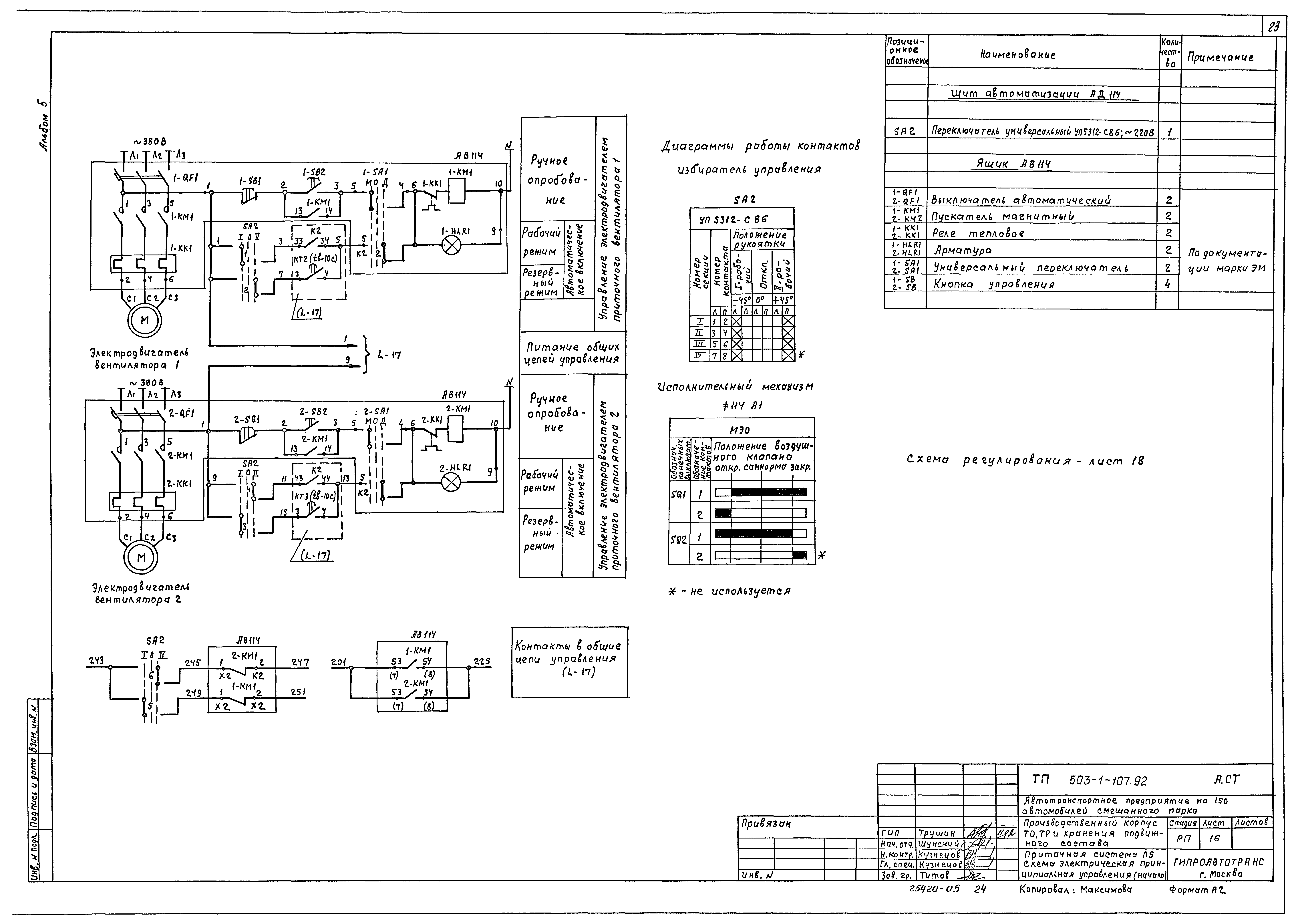
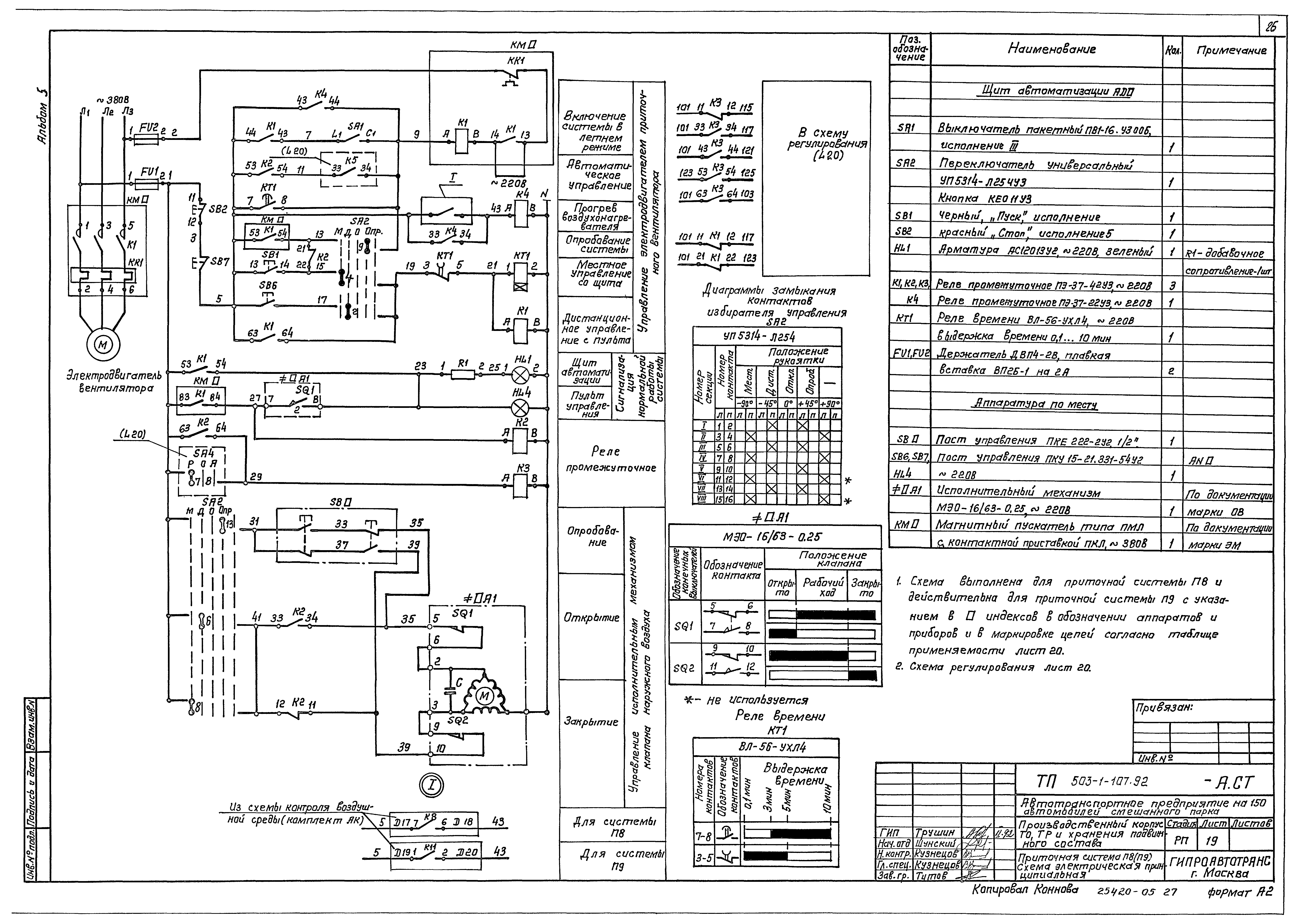
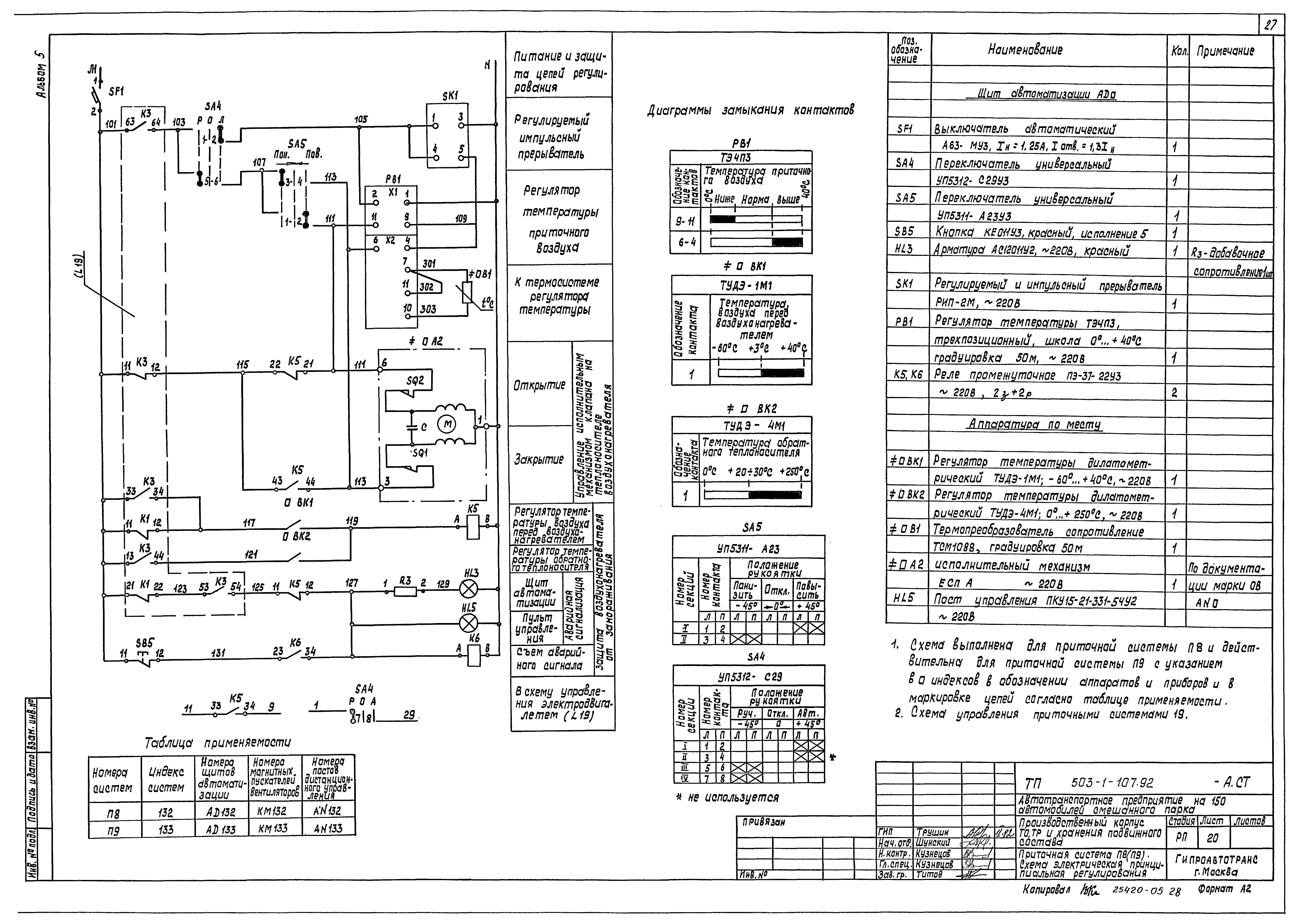
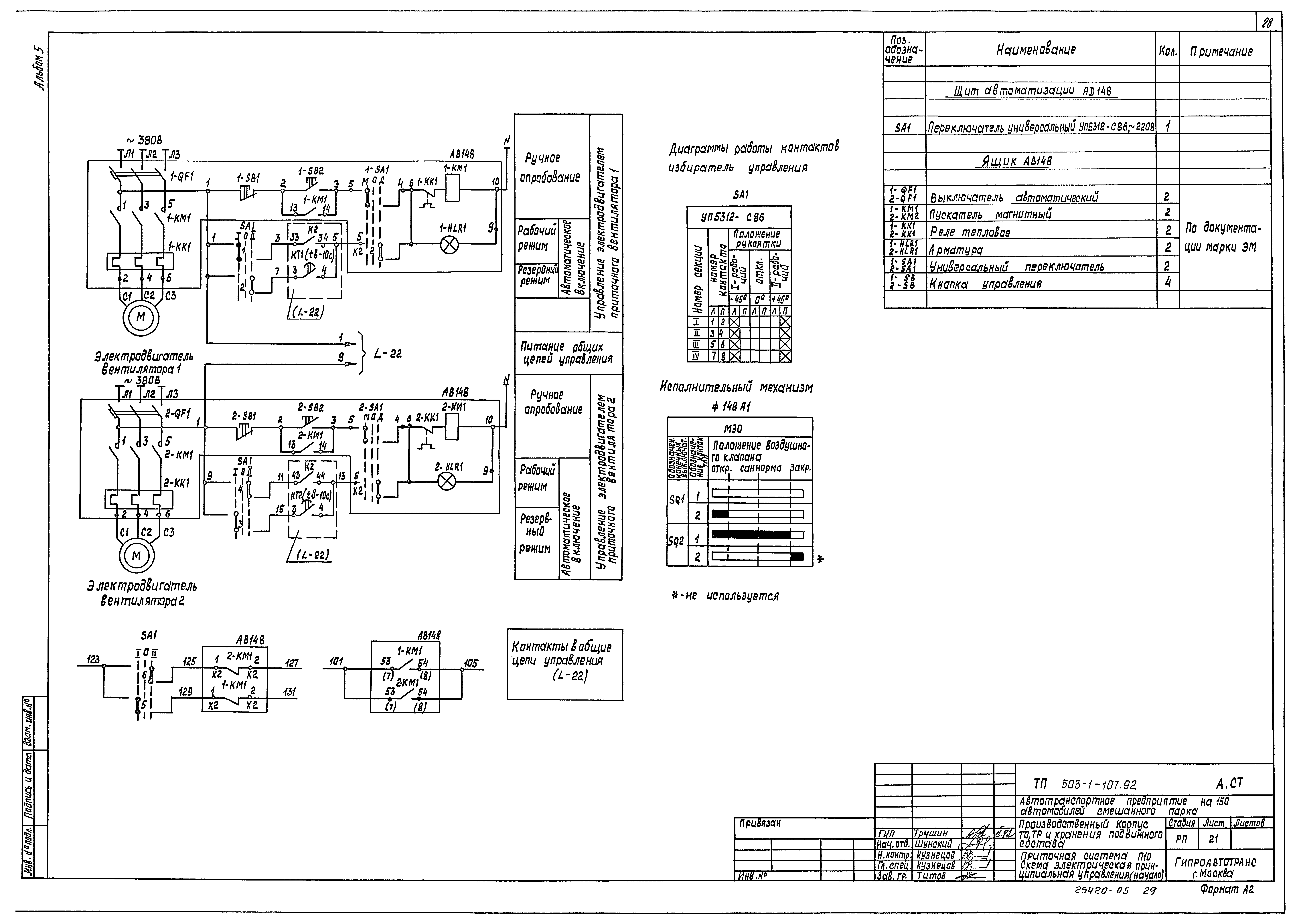
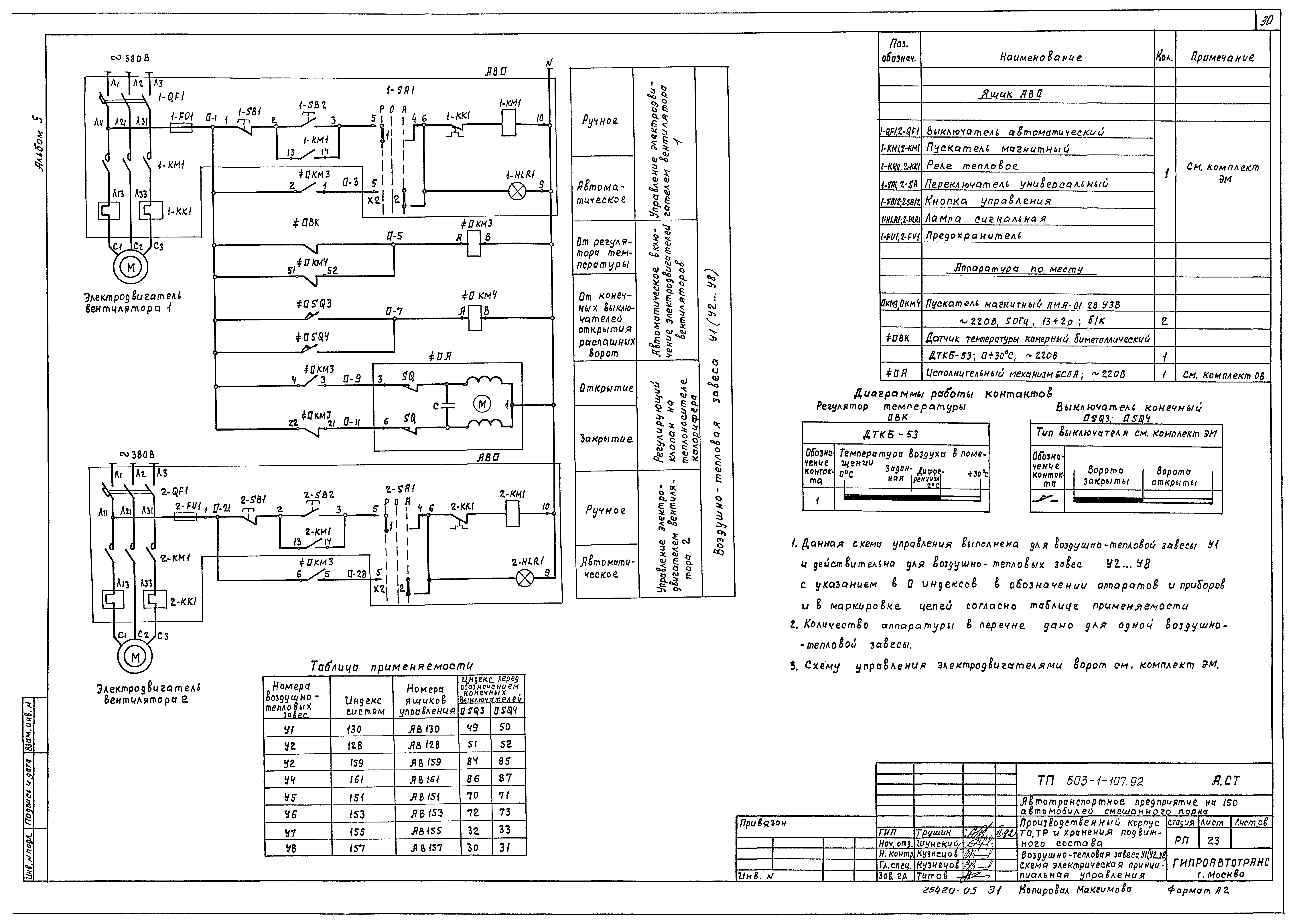
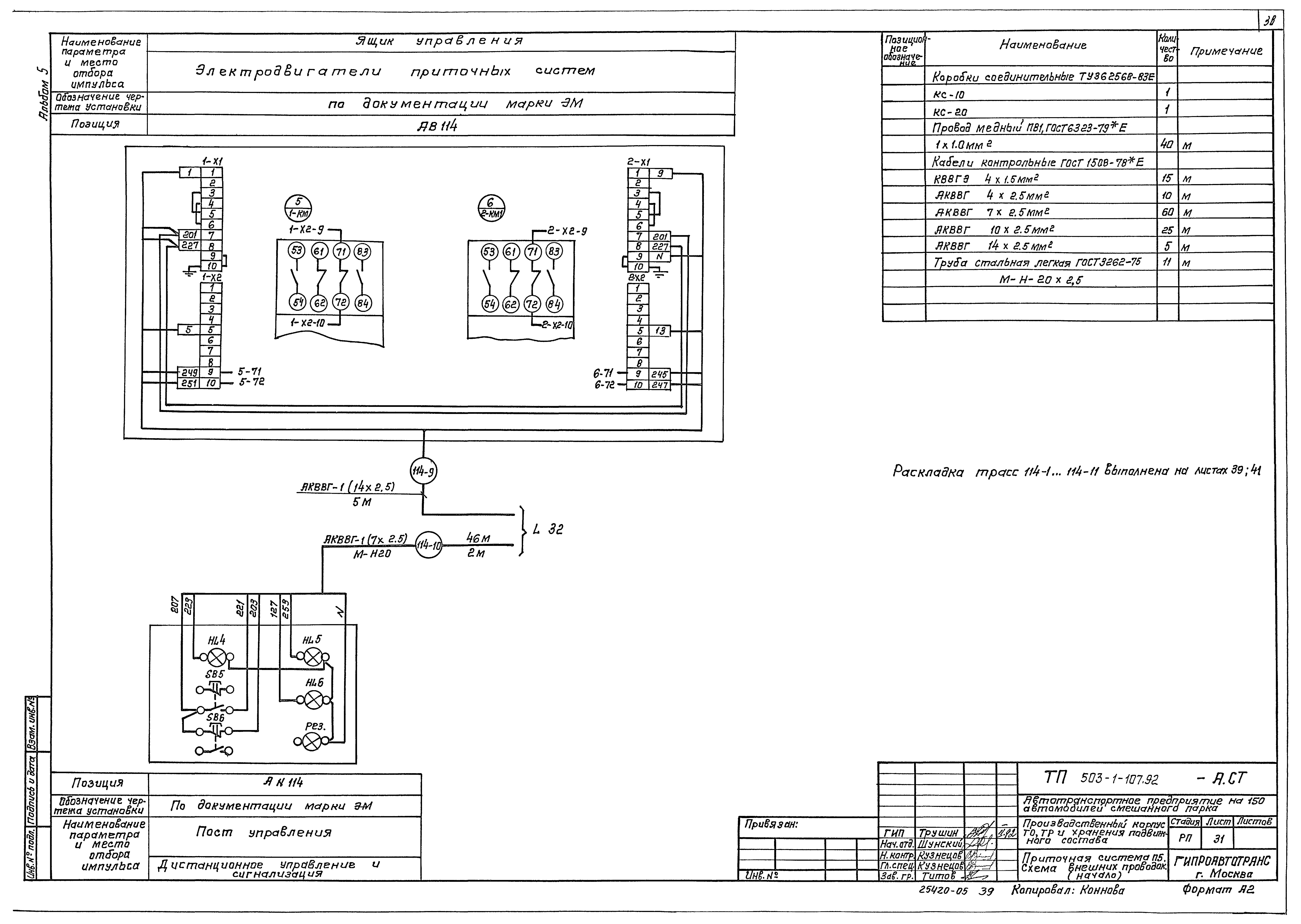
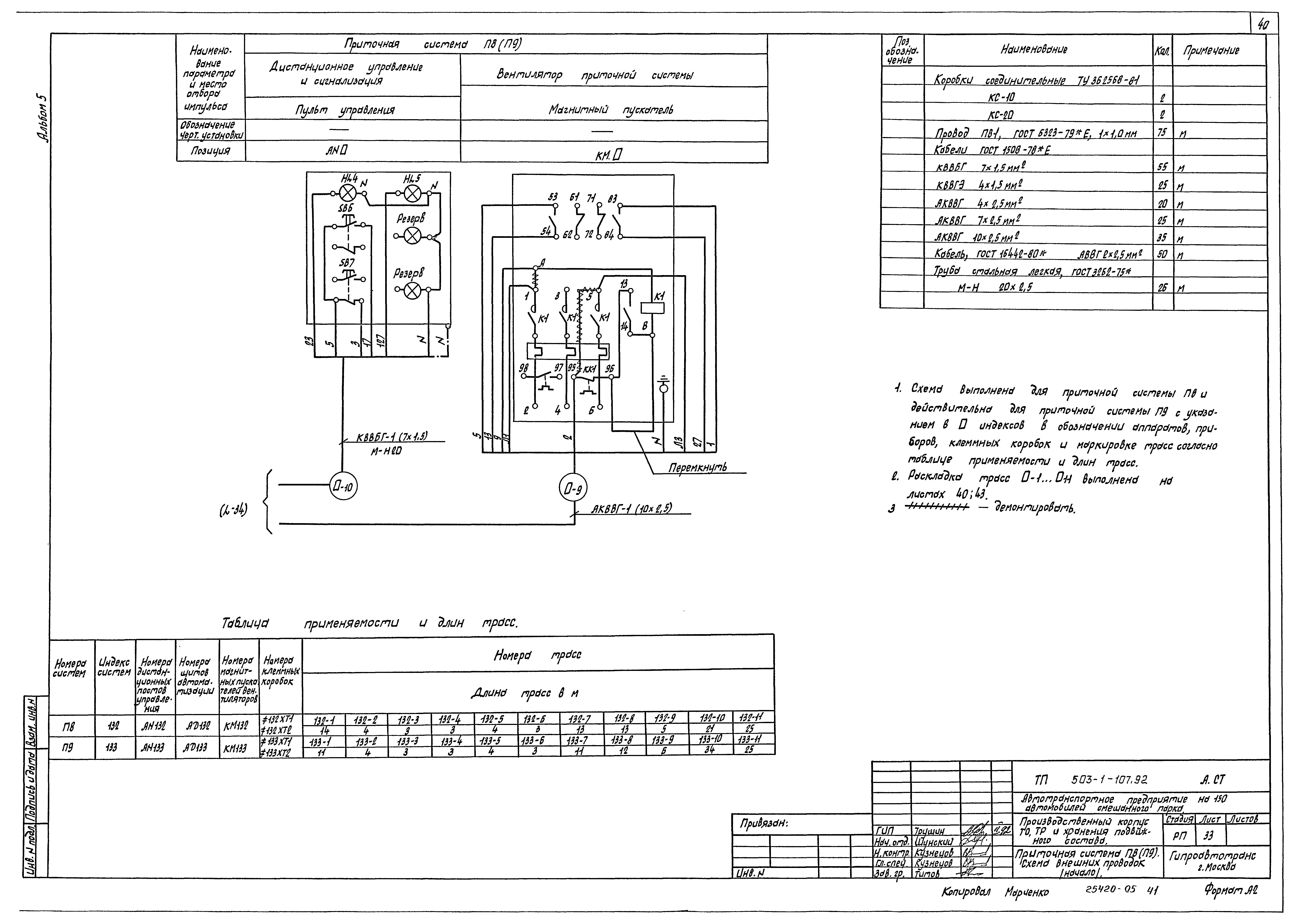
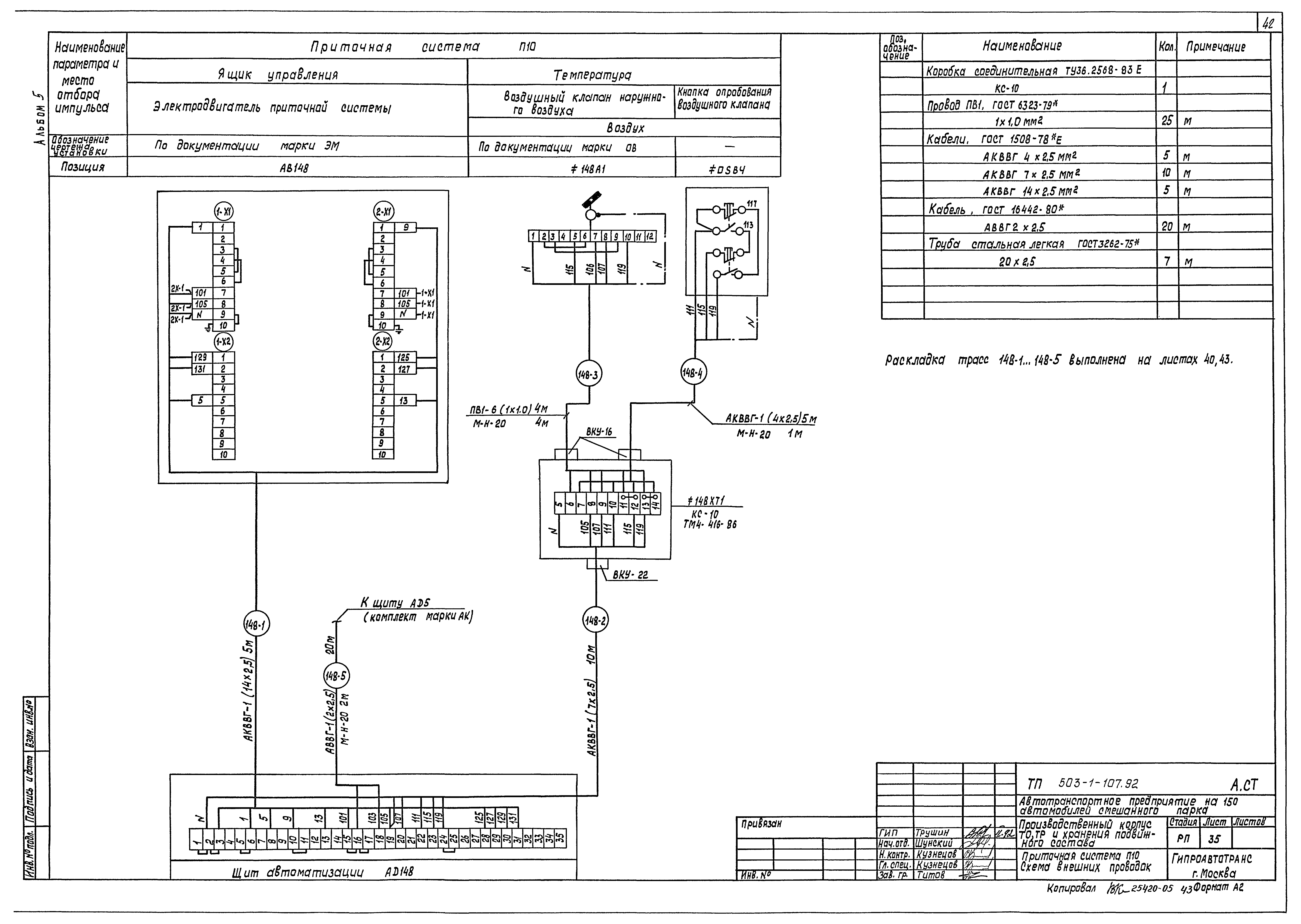
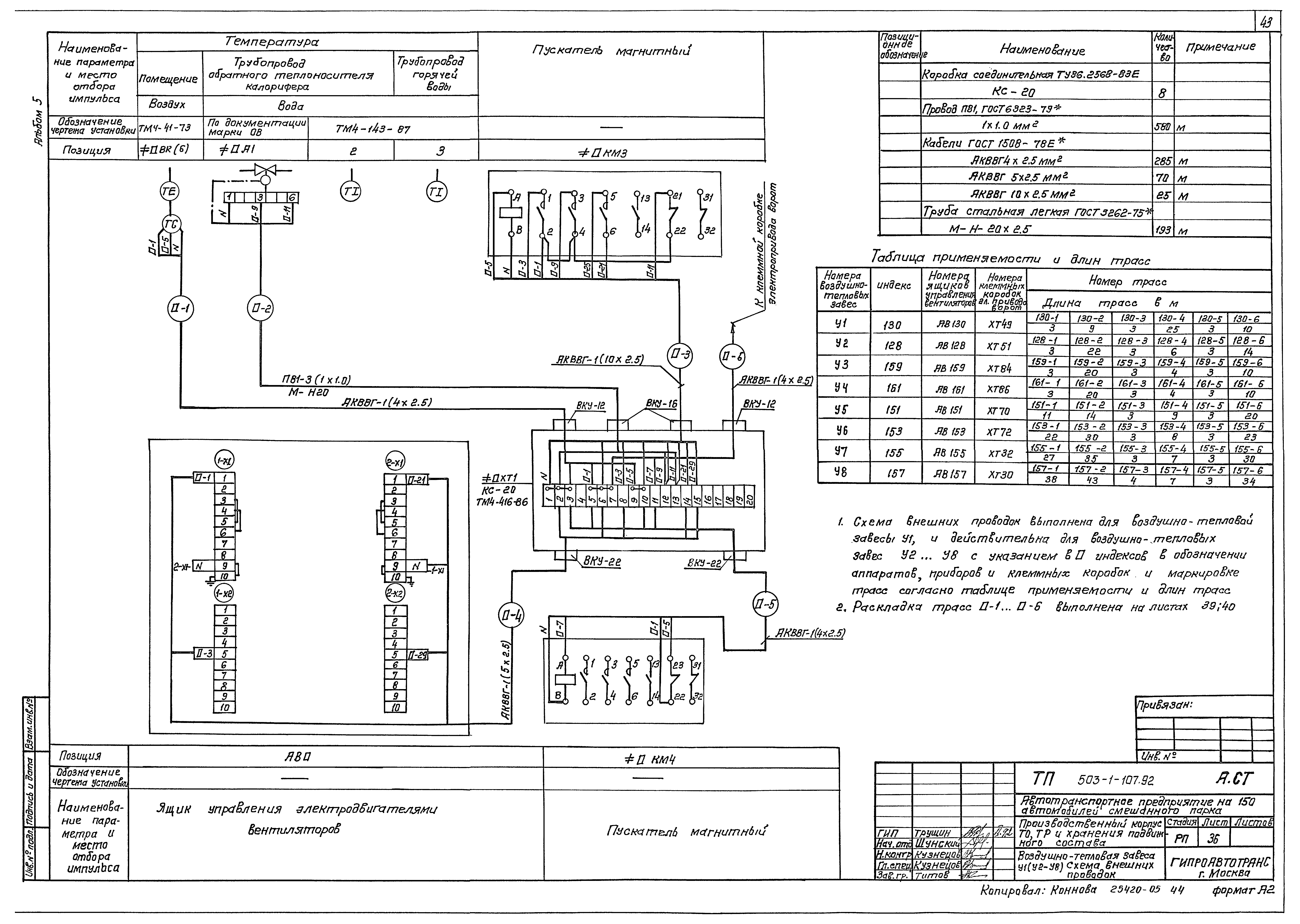
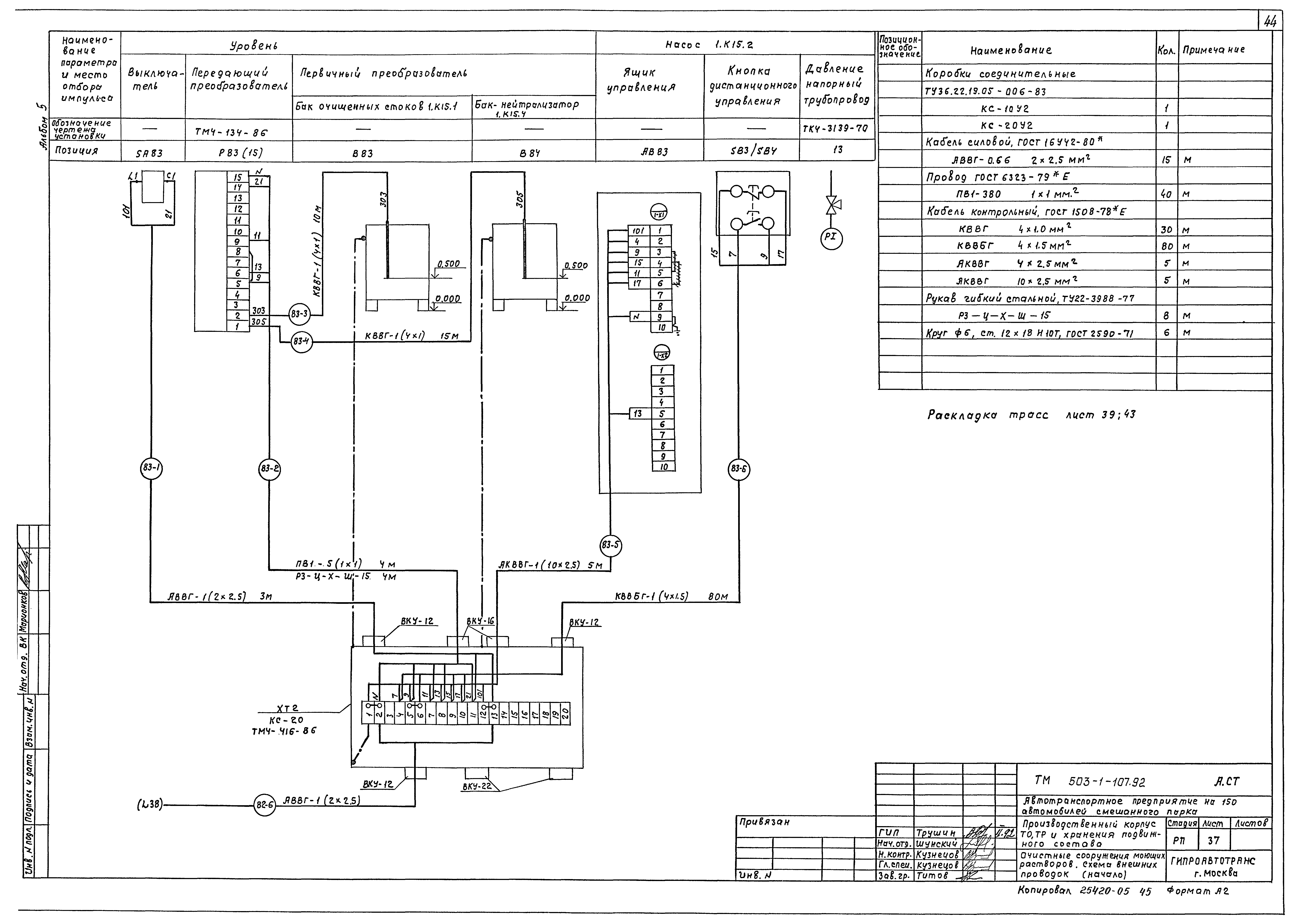
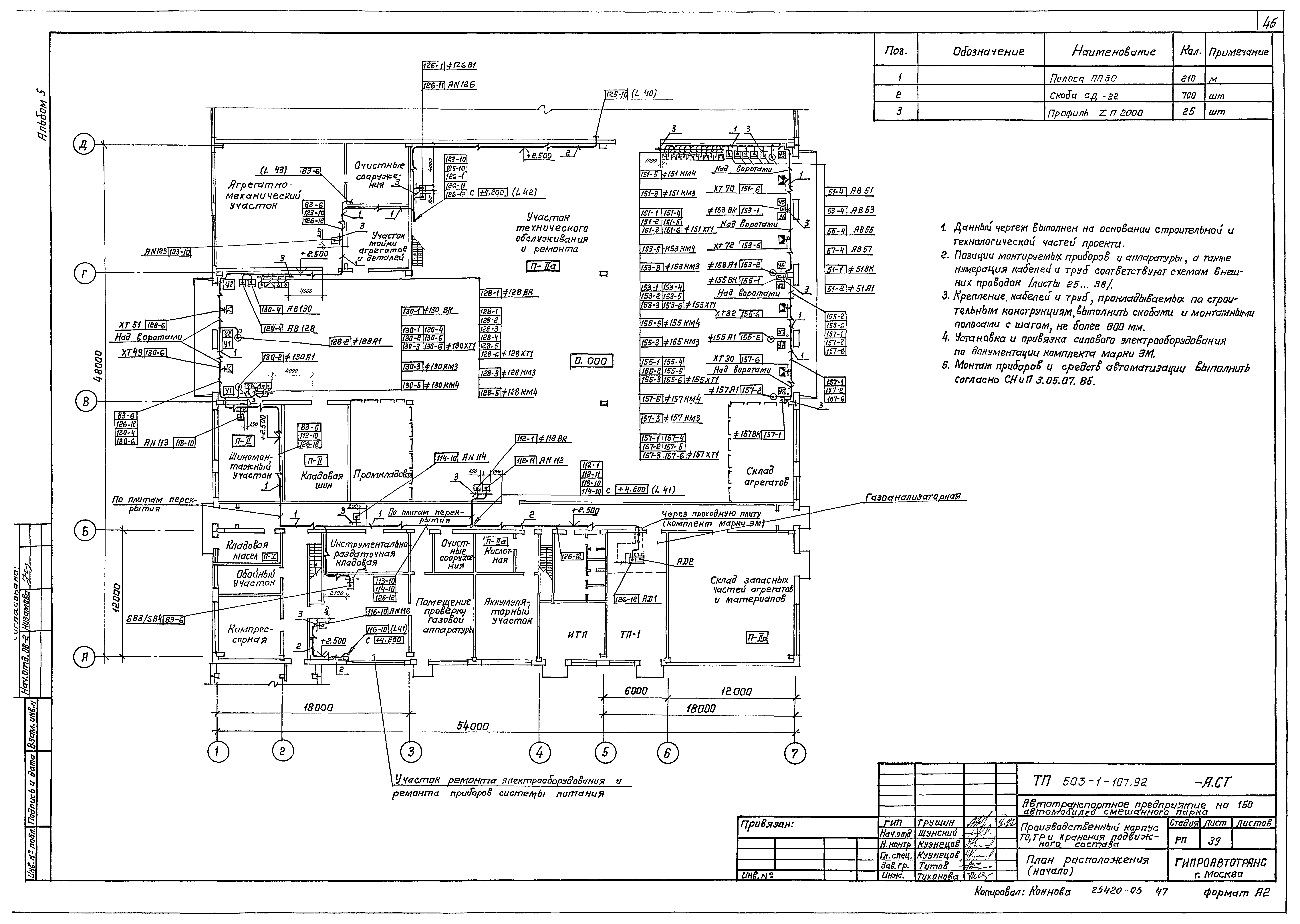
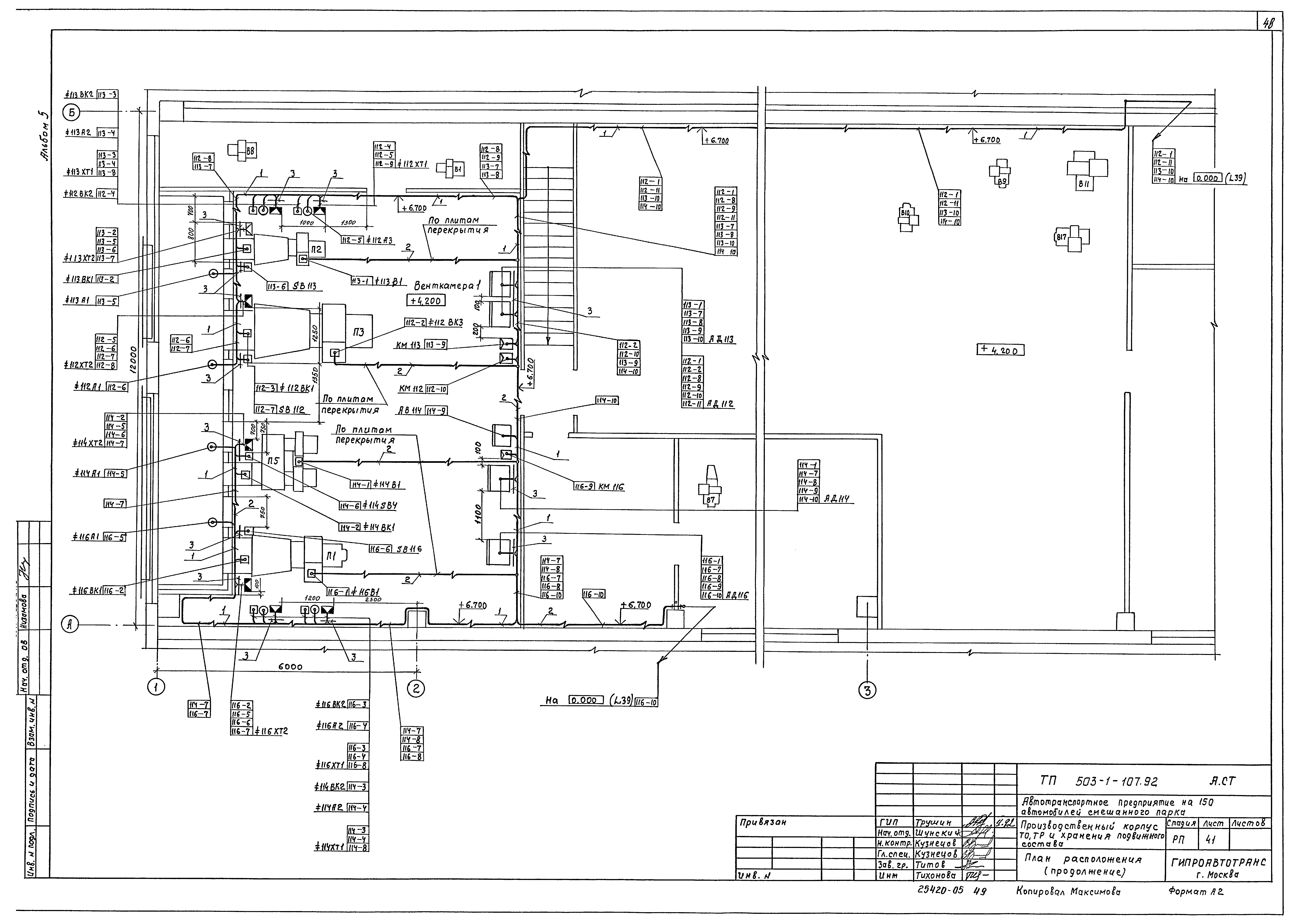
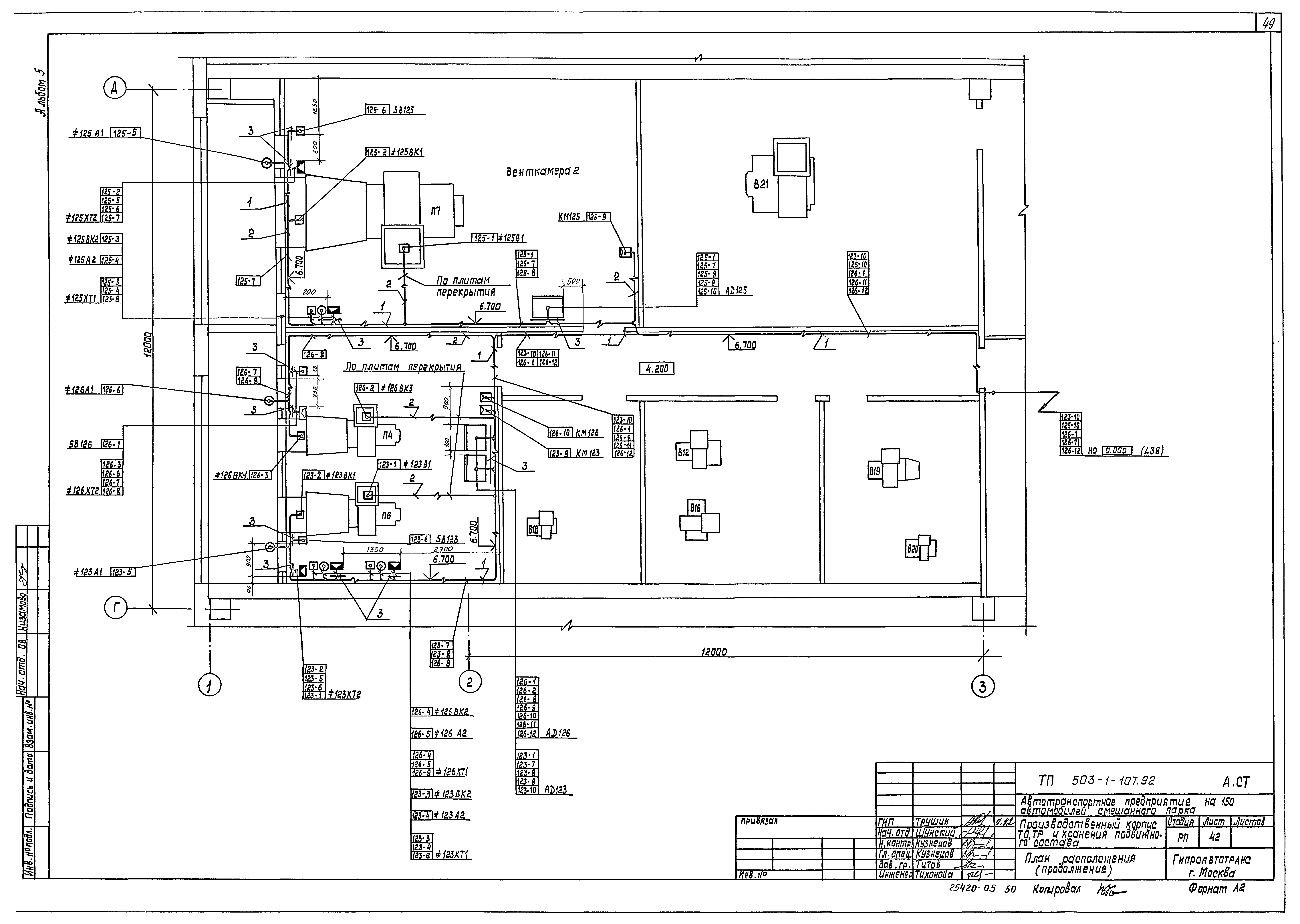
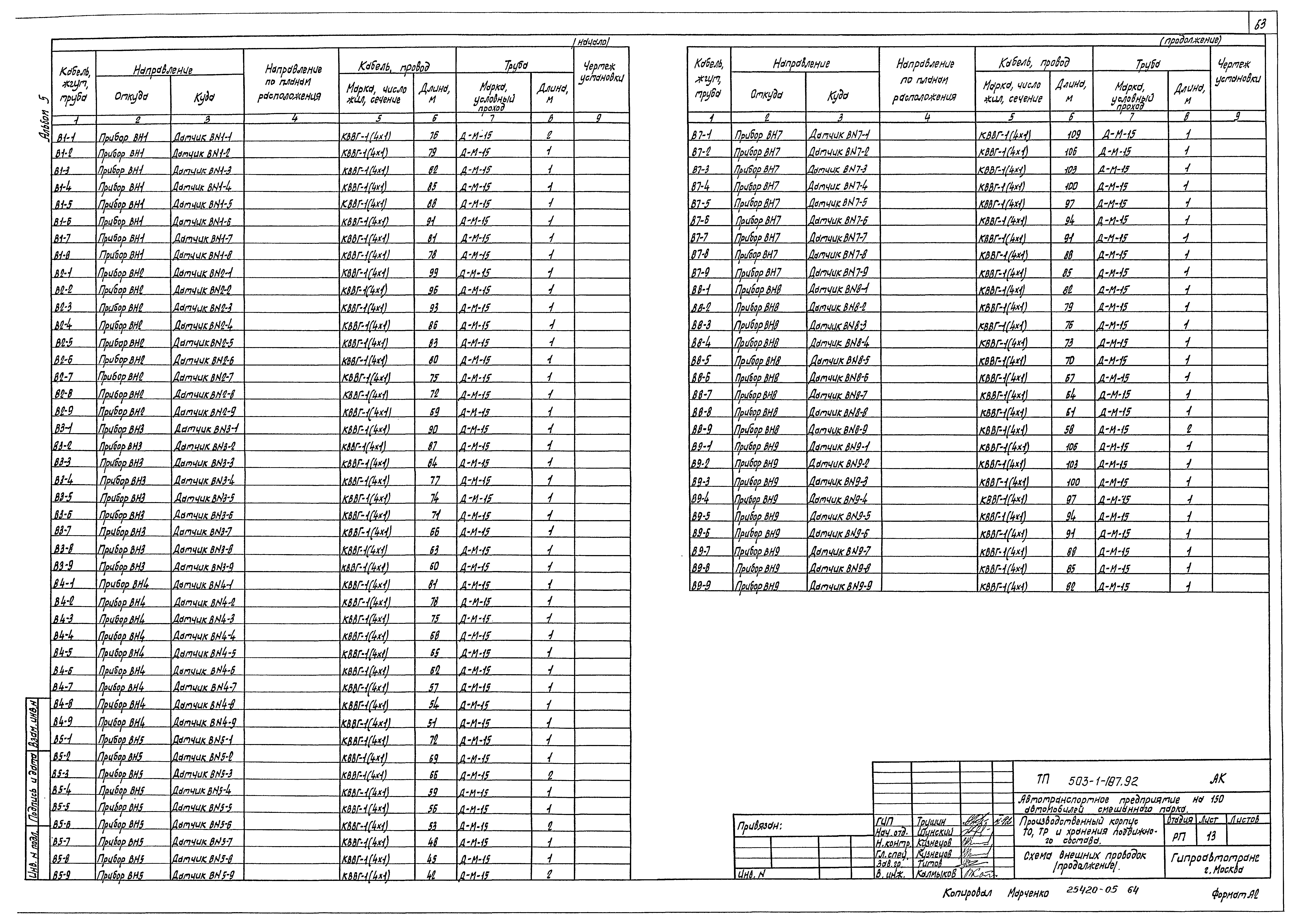
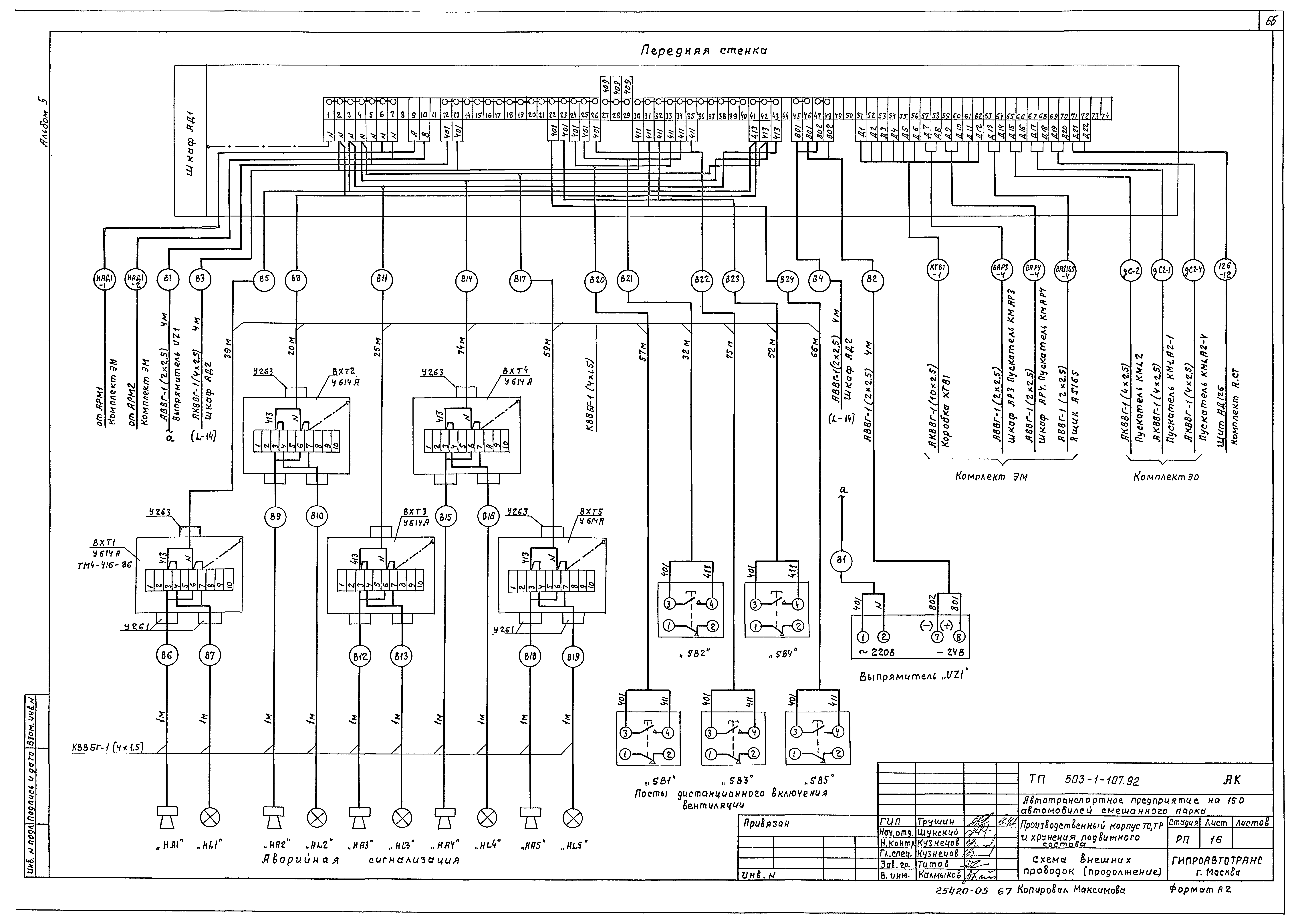
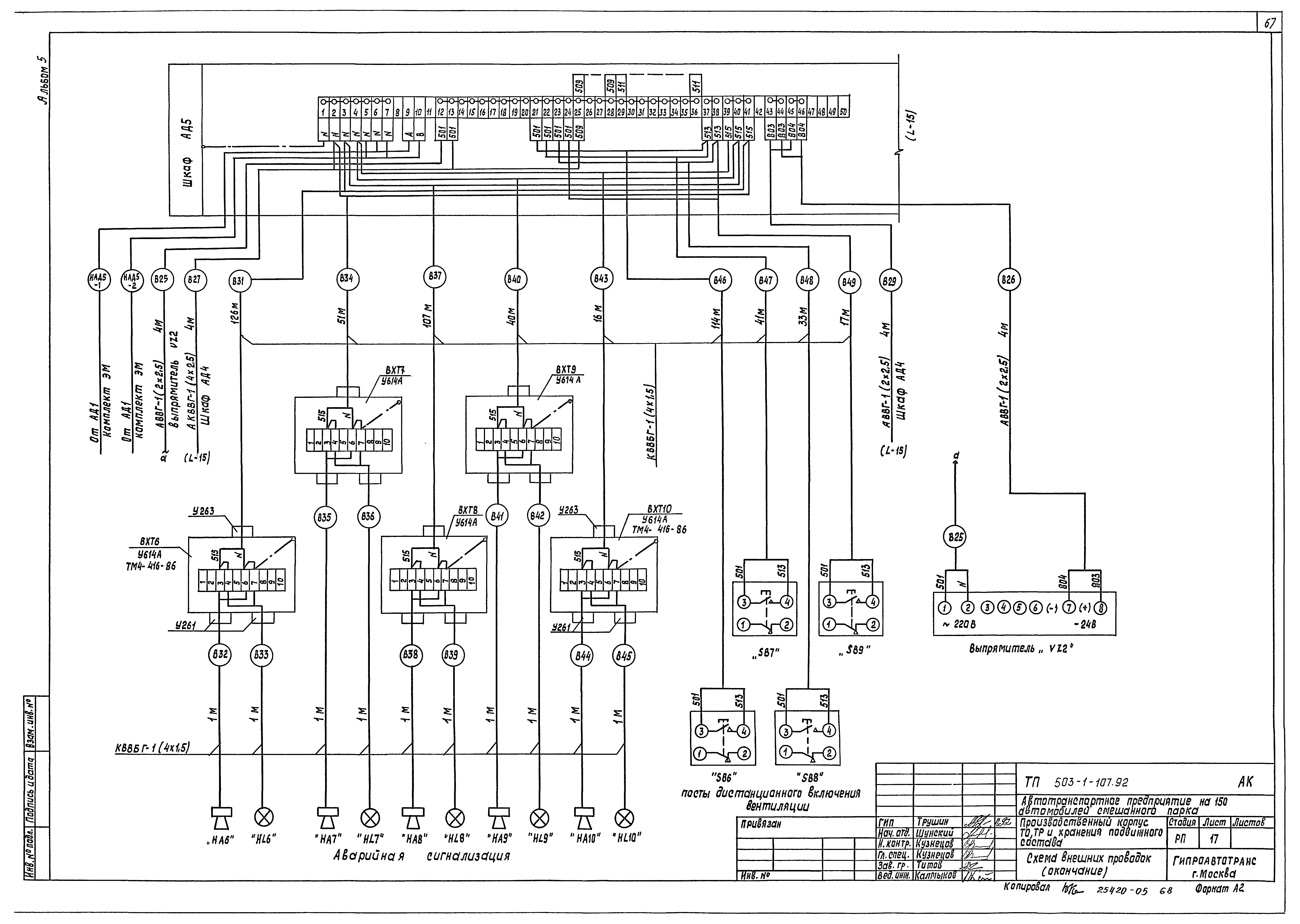
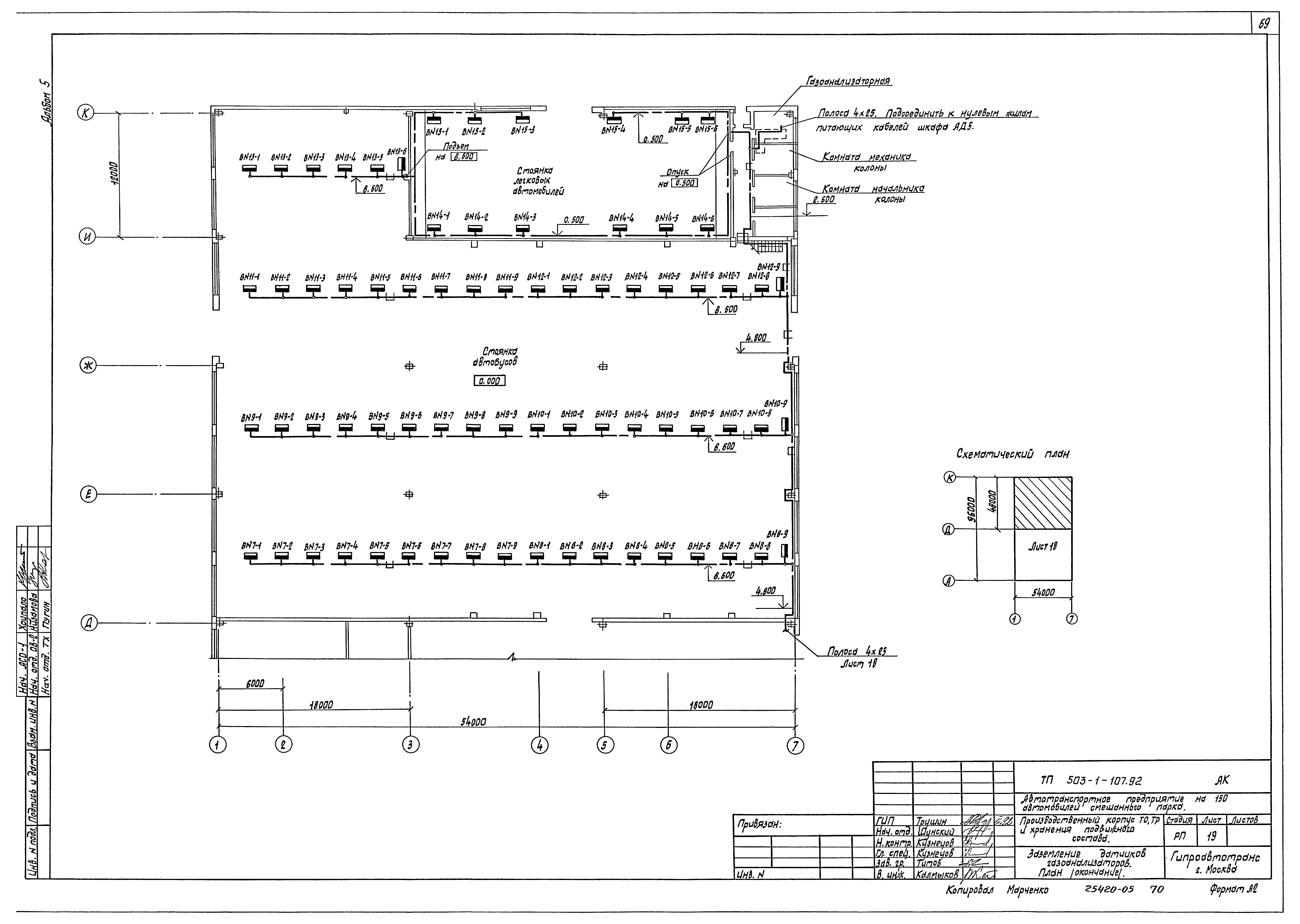
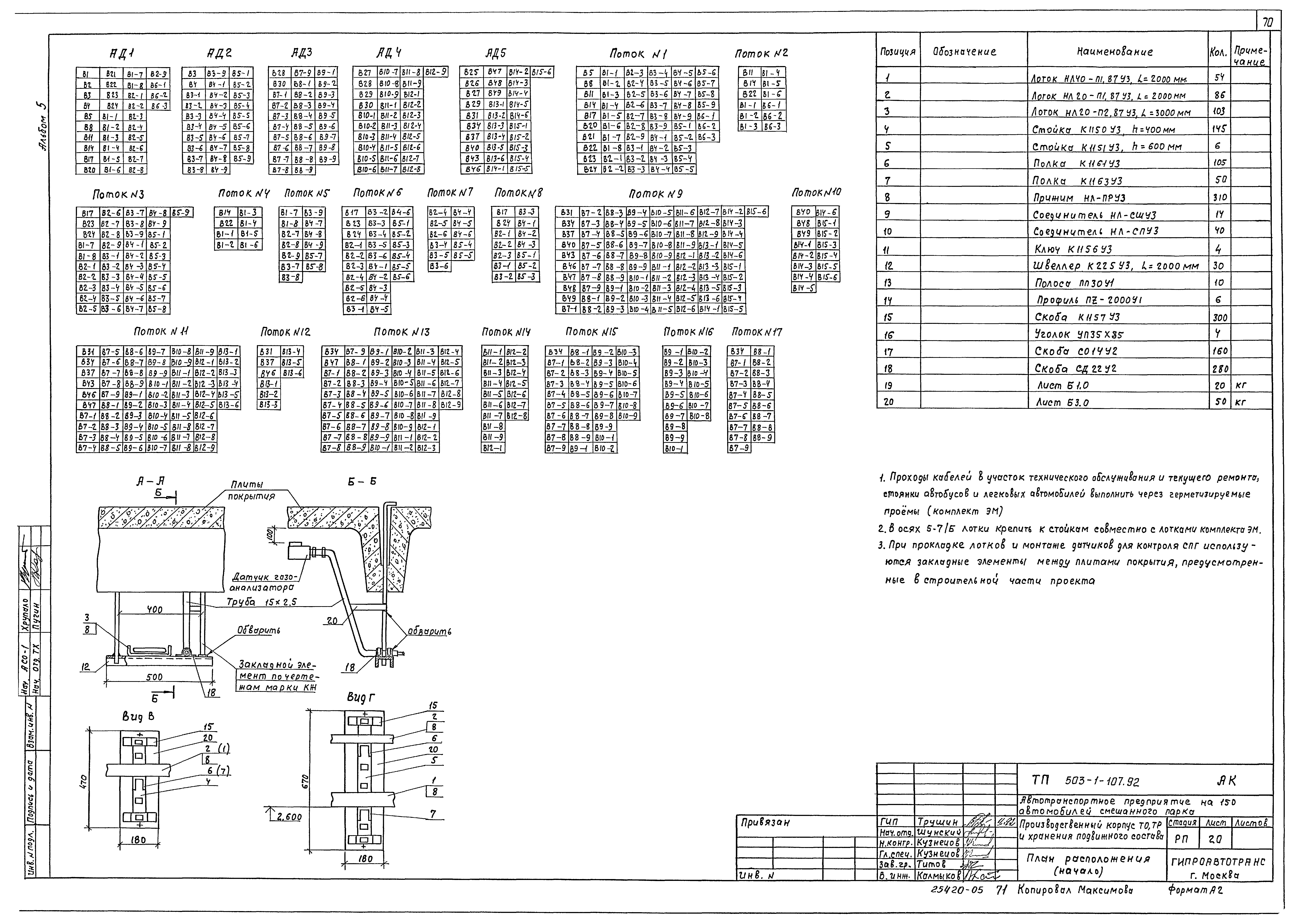
Скачать Типовой проект 503-1-107.92 Альбом 5. Автоматическая пожарная сигнализация. Автоматизация санитарно-технических систем. Автоматизация контроля воздушной средыДата актуализации: 01.01.2021
|
| Обозначение: | Типовой проект 503-1-107.92 |
| Обозначение англ: | 503-1-107.92 |
| Статус: | не определен законодательством |
| Название рус.: | Альбом 5. Автоматическая пожарная сигнализация. Автоматизация санитарно-технических систем. Автоматизация контроля воздушной среды |
| Дата добавления в базу: | 01.02.2020 |
| Дата актуализации: | 01.01.2021 |
| Дата введения: | 27.04.1992 |
| Дата окончания срока действия: | 30.06.2003 |
| Разработан: | Гипроавтотранс |
| Утверждён: | 27.04.1992 Росавтотранс (4) |








































































