Скачать Типовой проект 414-4-31.96 Альбом 3. Электрооборудование силовое. Электроосвещение внутреннее. Автоматизация технологии производства. Автоматизация отопления и вентиляции. Системы связи. Пожарно-охранная сигнализация

Дата актуализации: 01.01.2021

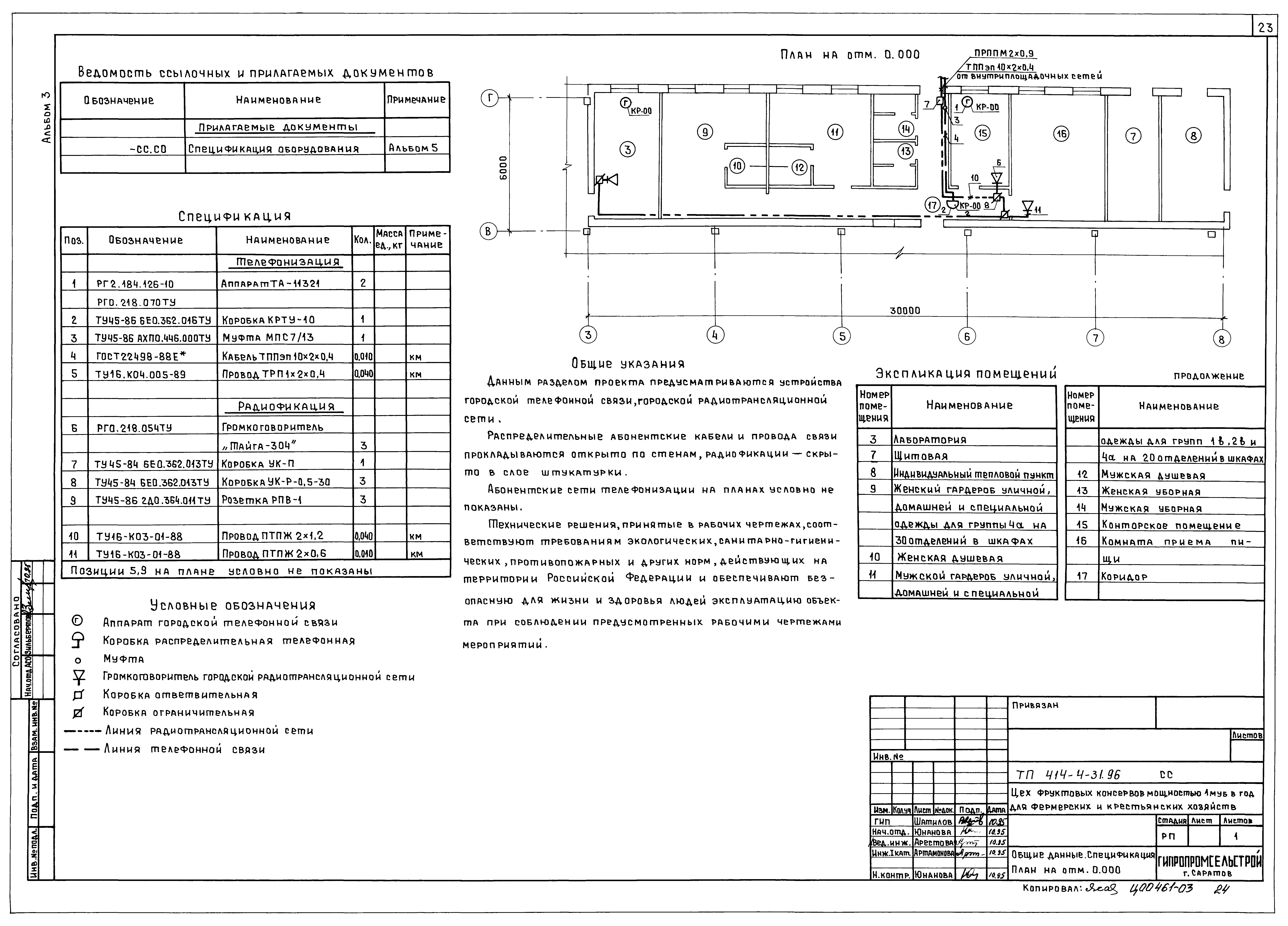
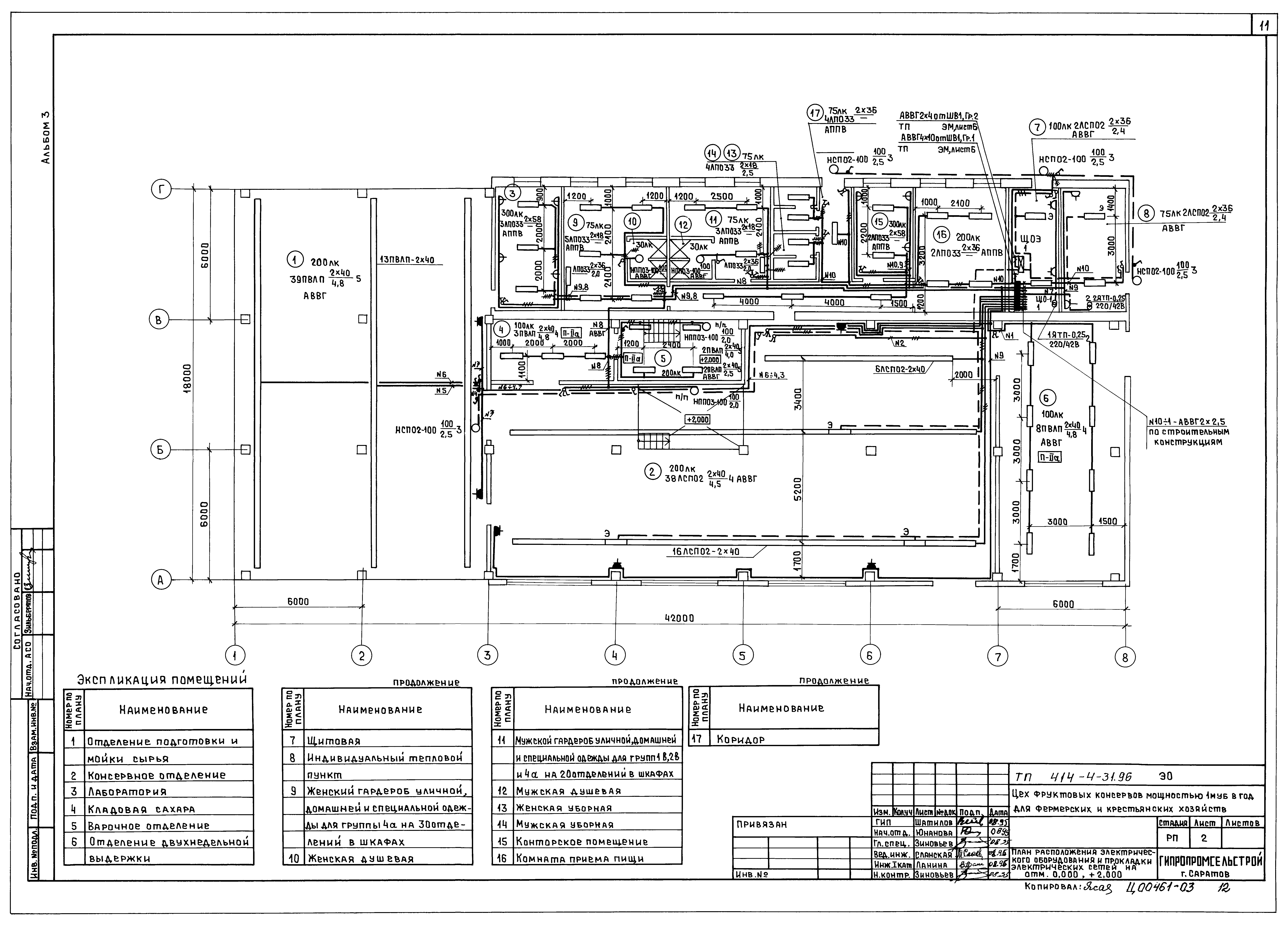
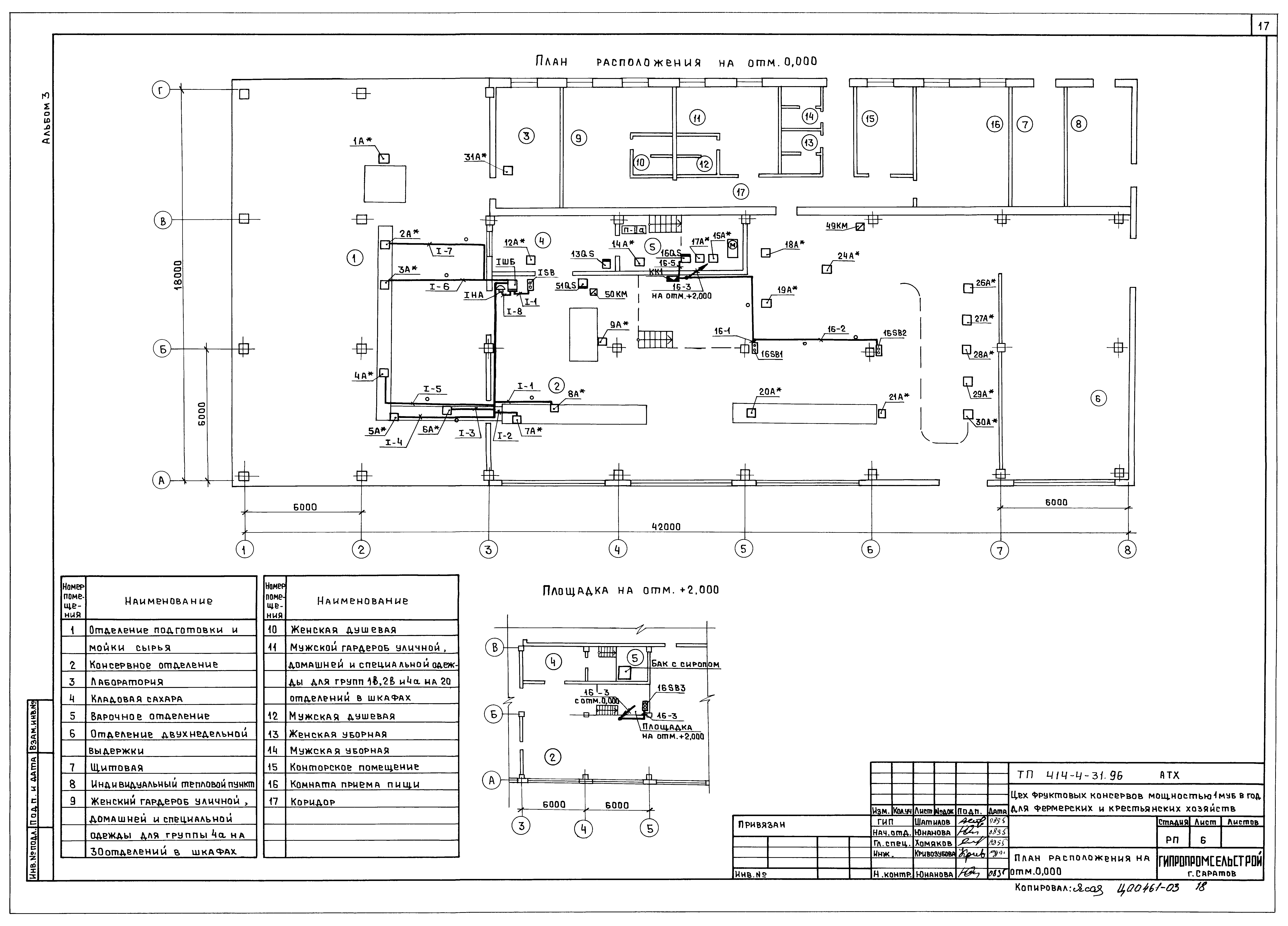
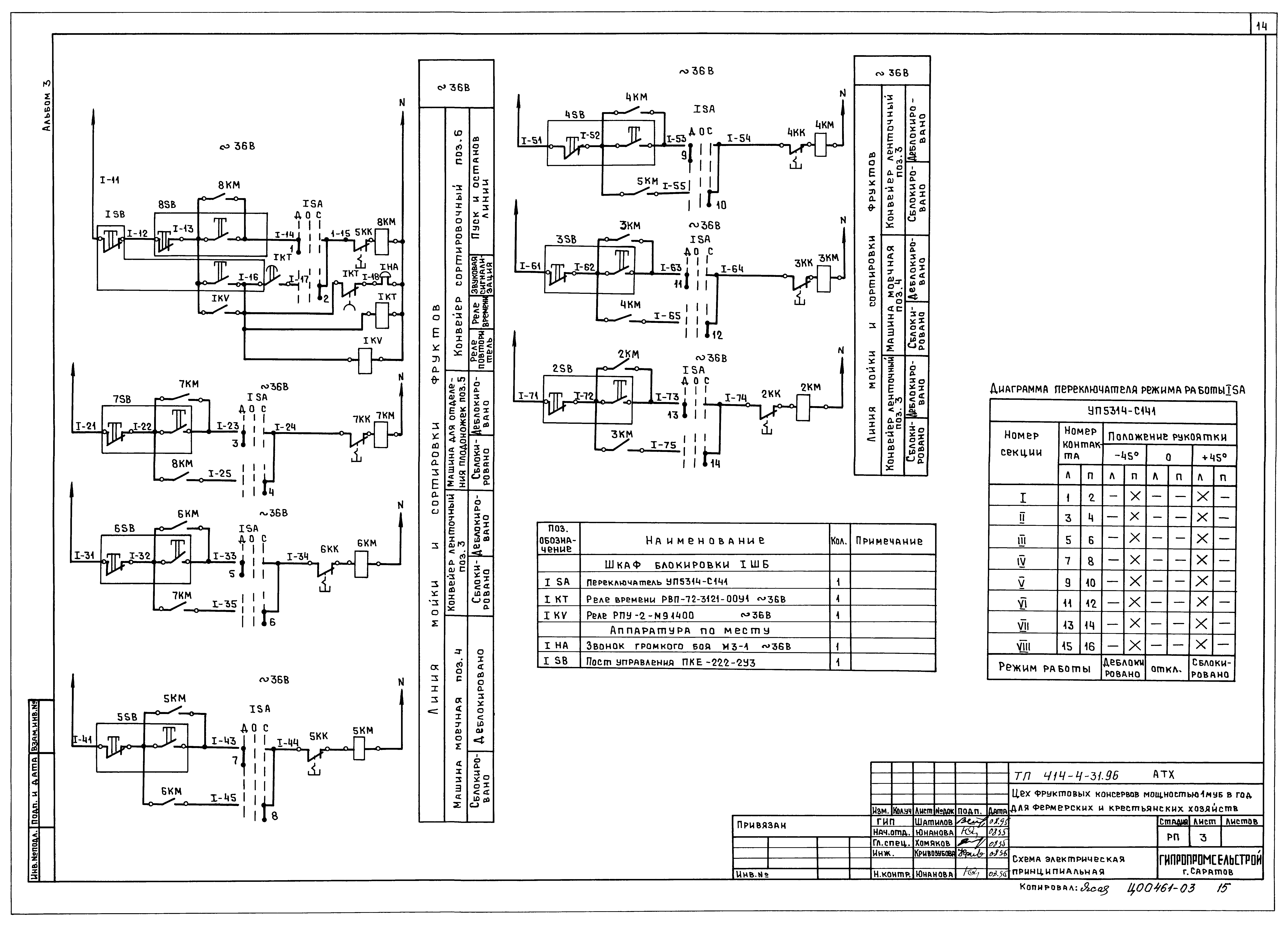
Типовой проект 414-4-31.96

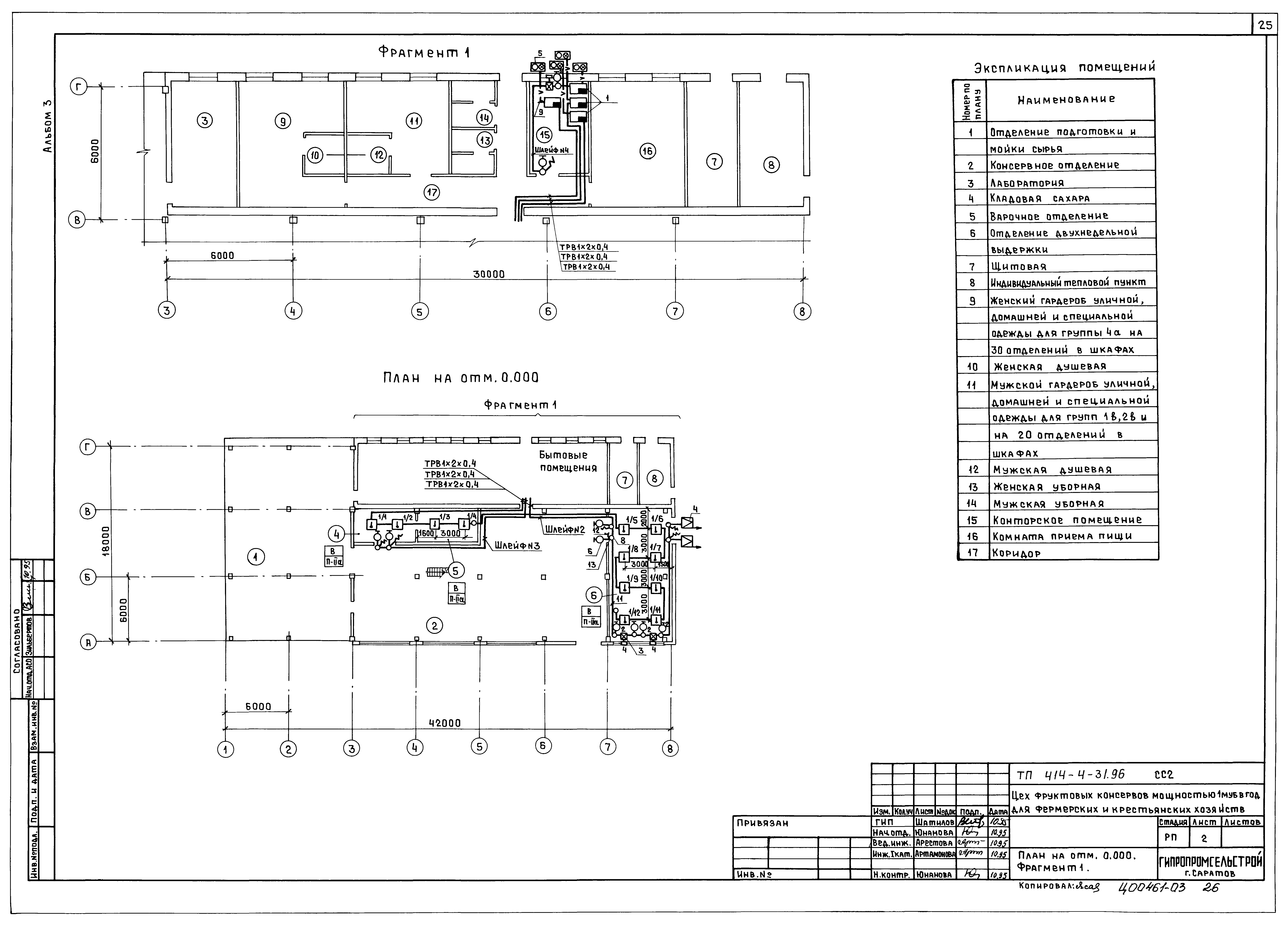
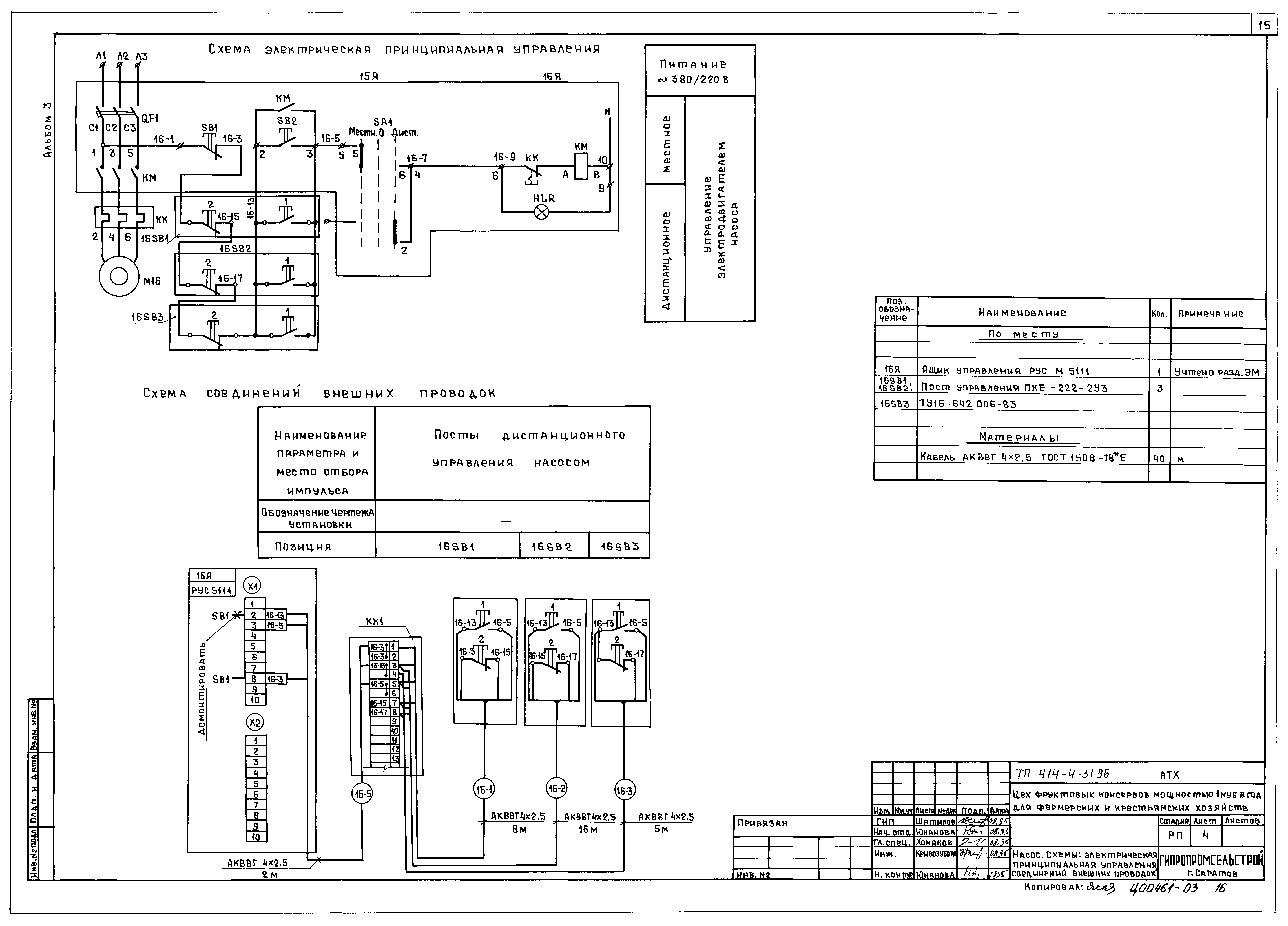
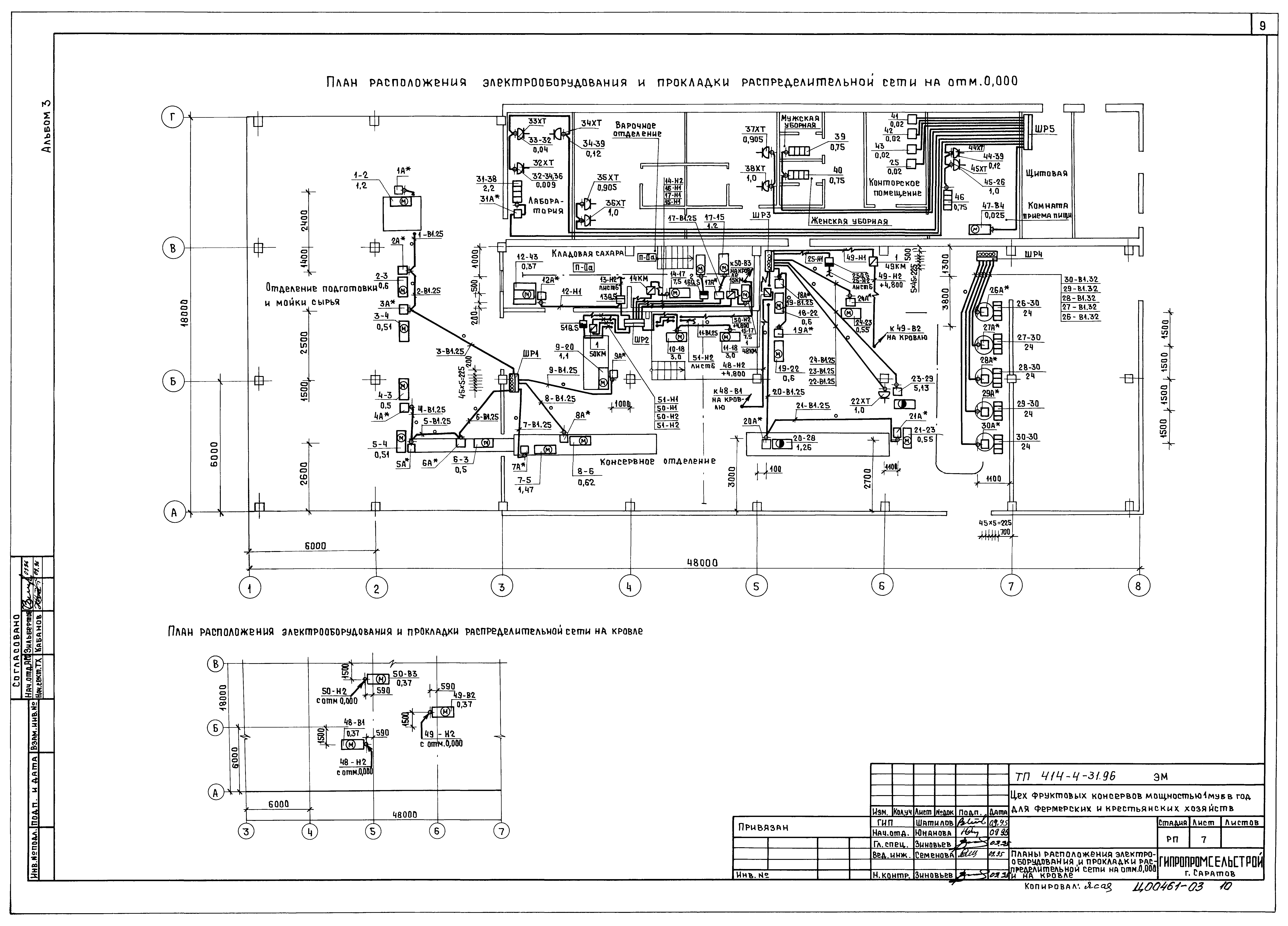
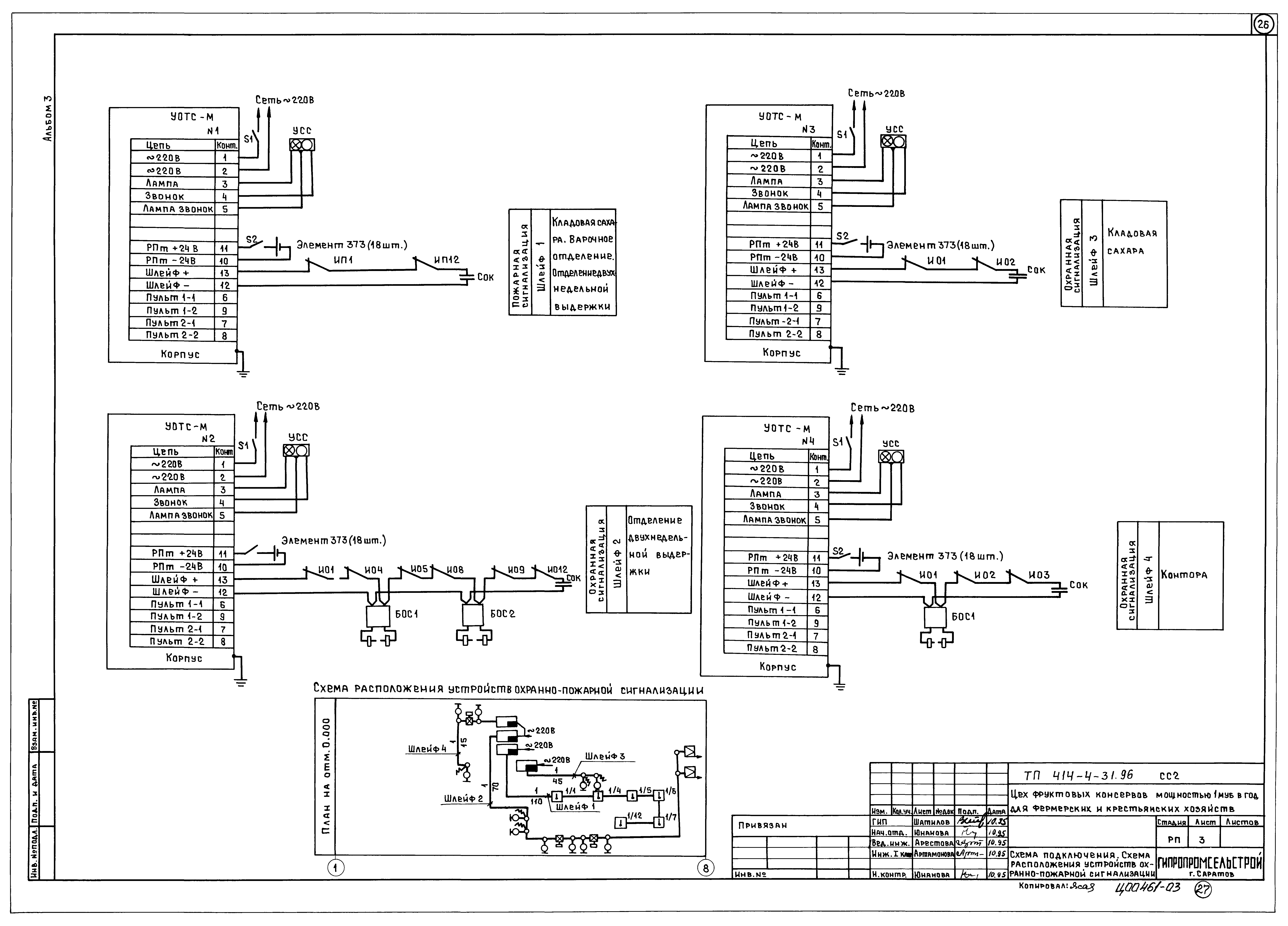
Альбом 3. Электрооборудование силовое. Электроосвещение внутреннее. Автоматизация технологии производства. Автоматизация отопления и вентиляции. Системы связи. Пожарно-охранная сигнализация

Обозначение: Типовой проект 414-4-31.96
Обозначение англ: 414-4-31.96
Статус:не определен законодательством
Название рус.:Альбом 3. Электрооборудование силовое. Электроосвещение внутреннее. Автоматизация технологии производства. Автоматизация отопления и вентиляции. Системы связи. Пожарно-охранная сигнализация
Дата добавления в базу:01.02.2020
Дата актуализации:01.01.2021
Дата введения:28.03.1996
Дата окончания срока действия:30.06.2003
Разработан: Гипропромсельстрой
Утверждён:06.03.1996 Минсельхозпрод России (Russian Federation Minselkhozprod 15)
Типовой проект 414-4-31.96Типовой проект 414-4-31.96Типовой проект 414-4-31.96Типовой проект 414-4-31.96Типовой проект 414-4-31.96Типовой проект 414-4-31.96Типовой проект 414-4-31.96Типовой проект 414-4-31.96Типовой проект 414-4-31.96Типовой проект 414-4-31.96Типовой проект 414-4-31.96Типовой проект 414-4-31.96Типовой проект 414-4-31.96Типовой проект 414-4-31.96Типовой проект 414-4-31.96Типовой проект 414-4-31.96Типовой проект 414-4-31.96Типовой проект 414-4-31.96Типовой проект 414-4-31.96Типовой проект 414-4-31.96Типовой проект 414-4-31.96Типовой проект 414-4-31.96Типовой проект 414-4-31.96Типовой проект 414-4-31.96Типовой проект 414-4-31.96Типовой проект 414-4-31.96Типовой проект 414-4-31.96