Скачать Типовой проект 801-3-15 Альбом II. Часть 1. Архитектурно-строительные решения. Конструкции железобетонные. Вариант с рамным каркасом

Дата актуализации: 01.01.2021

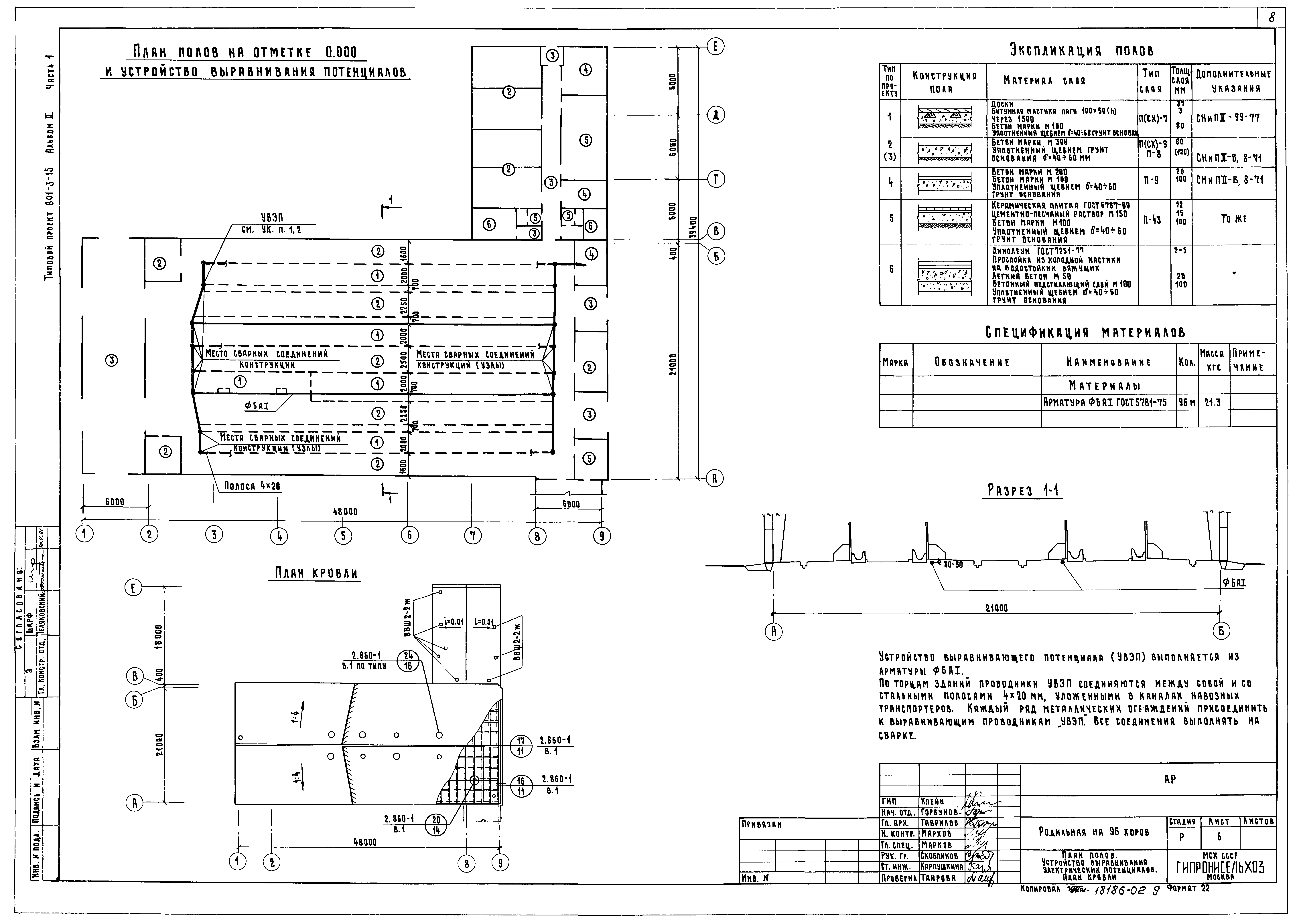
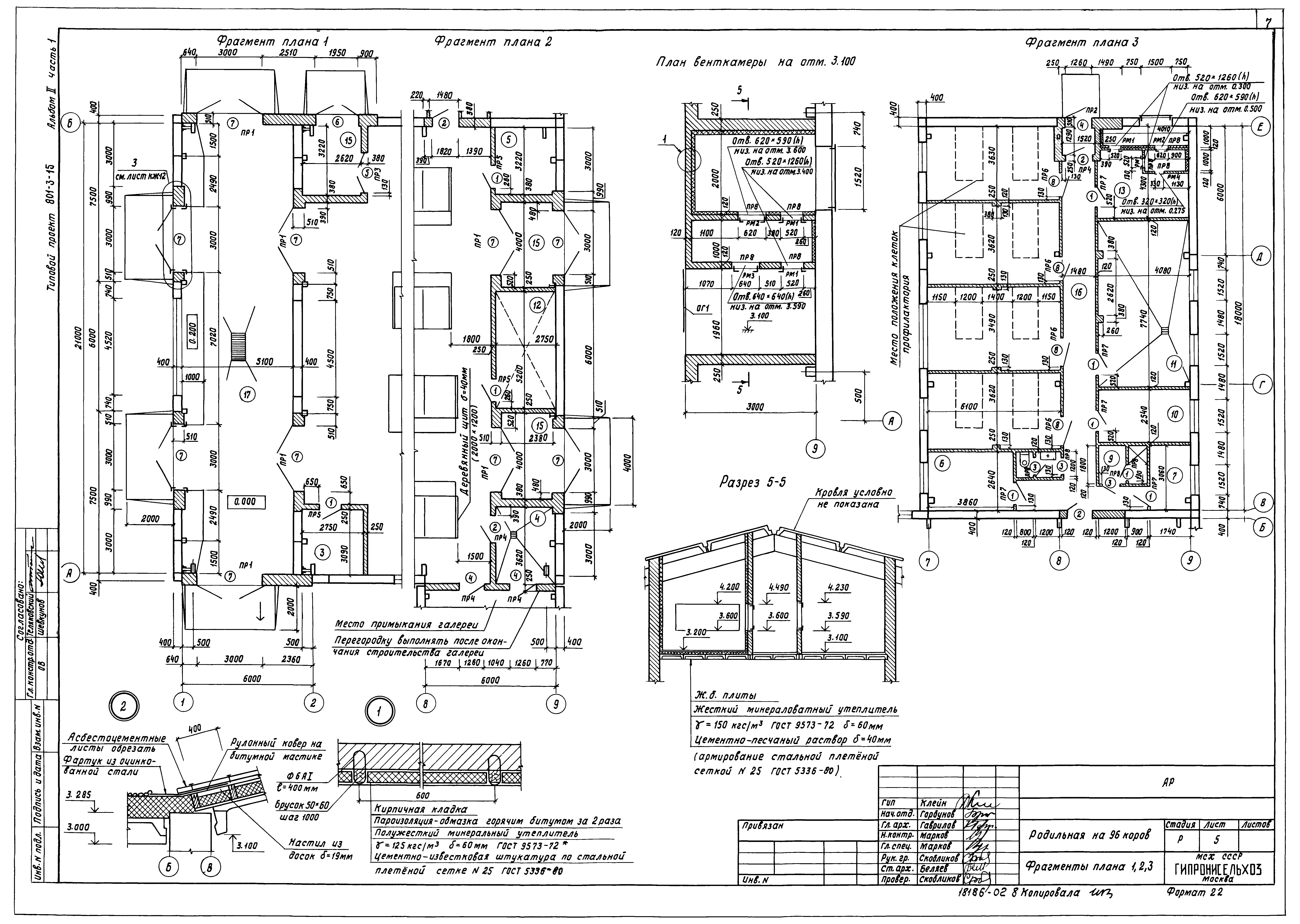
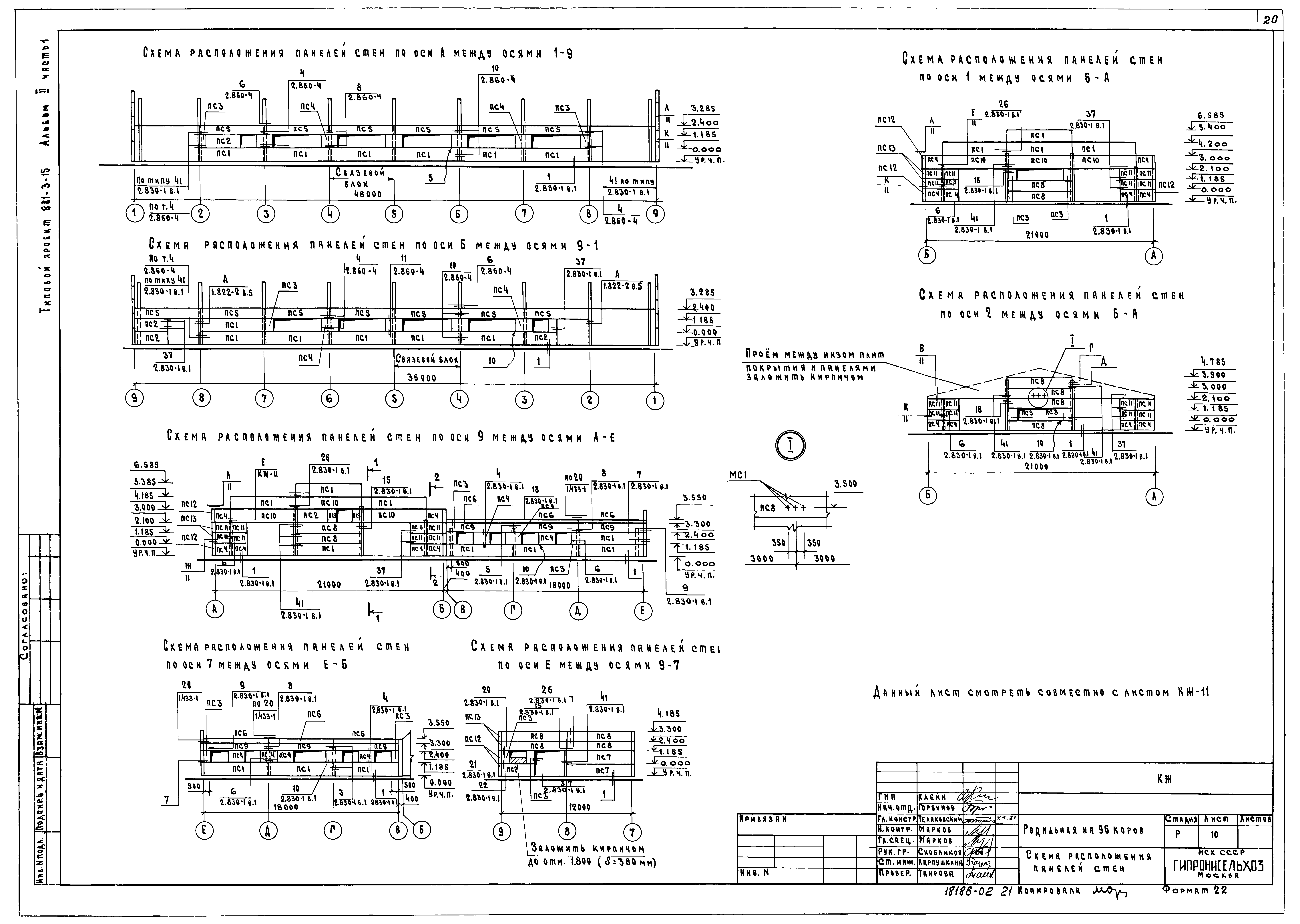
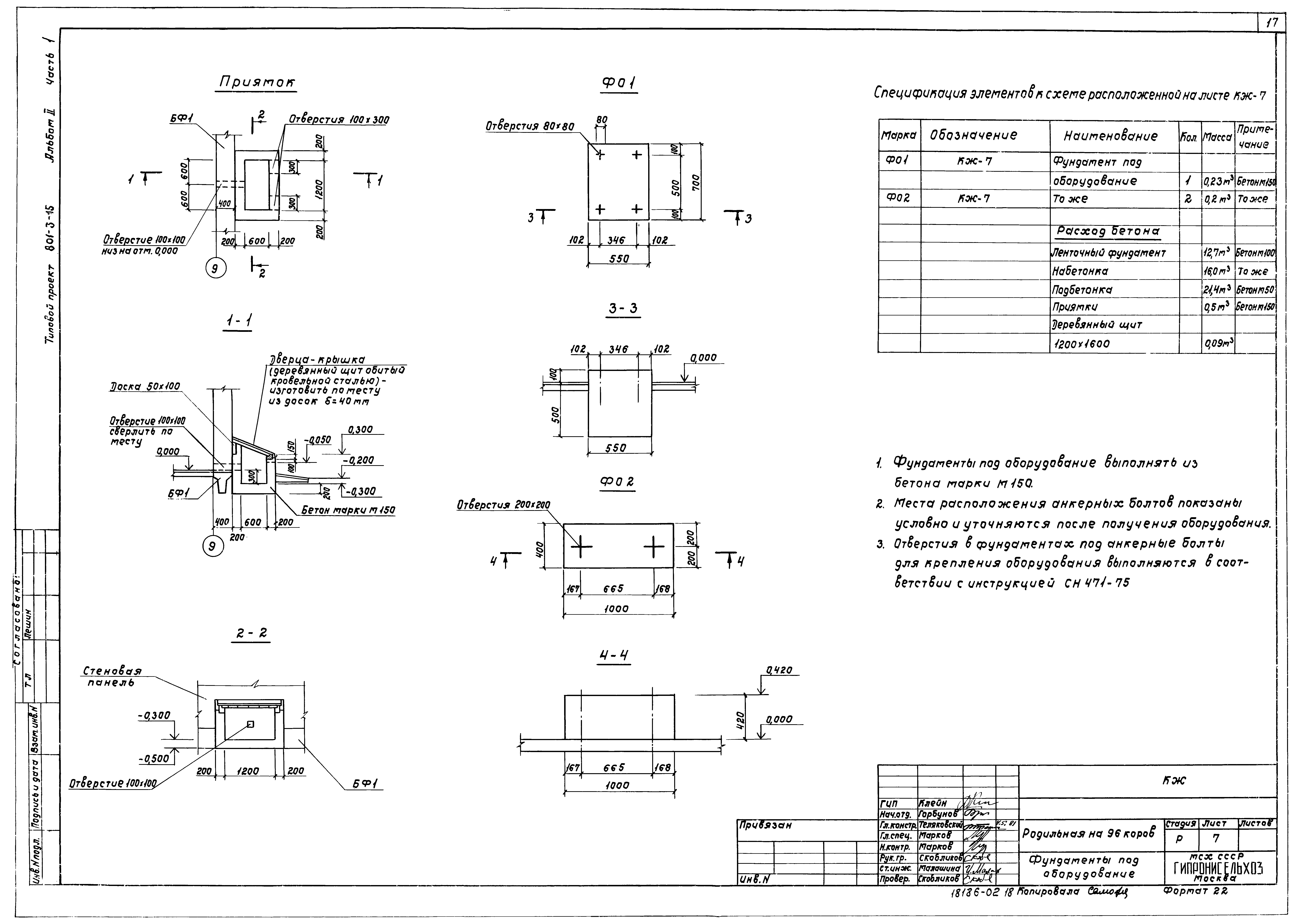
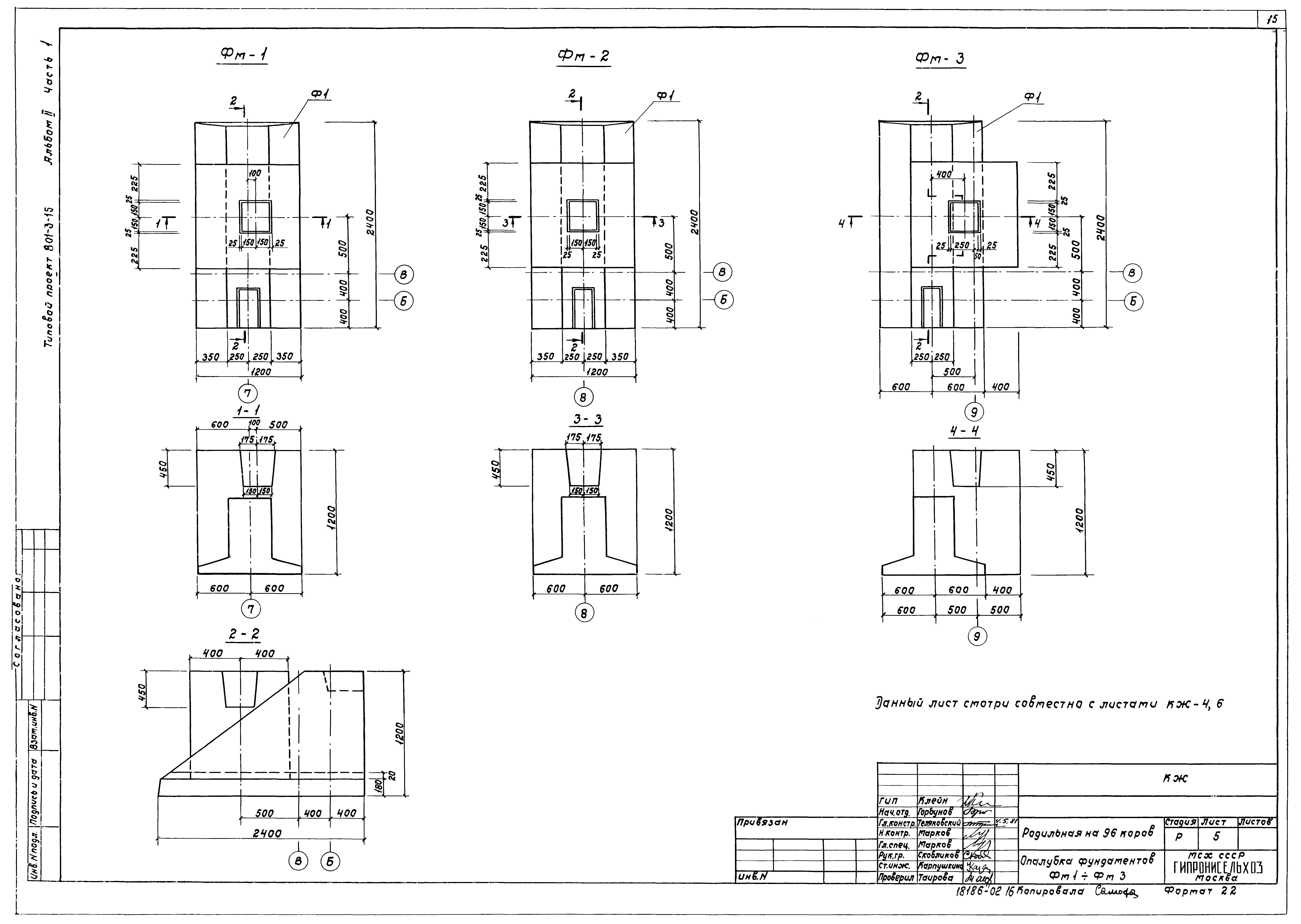
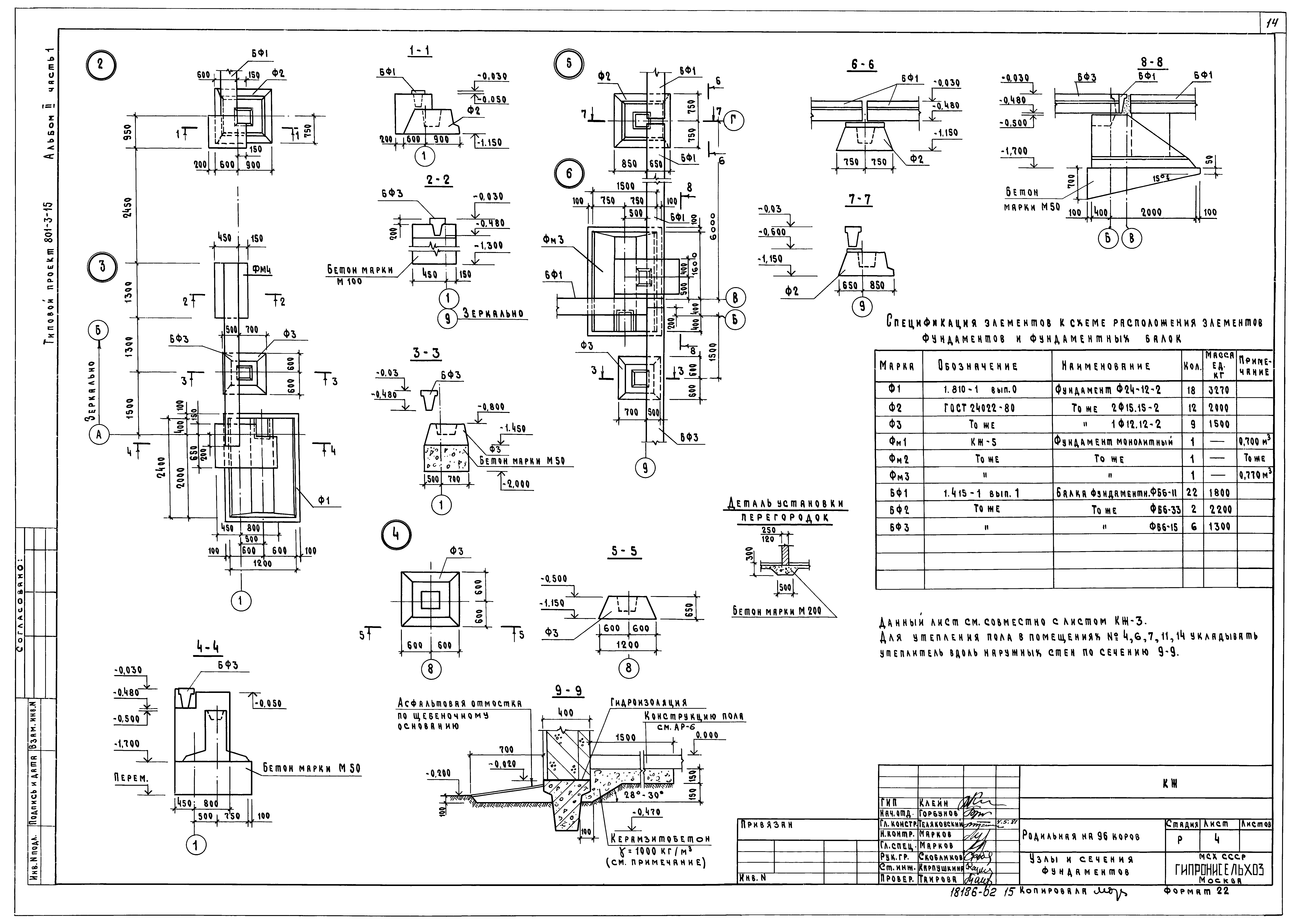
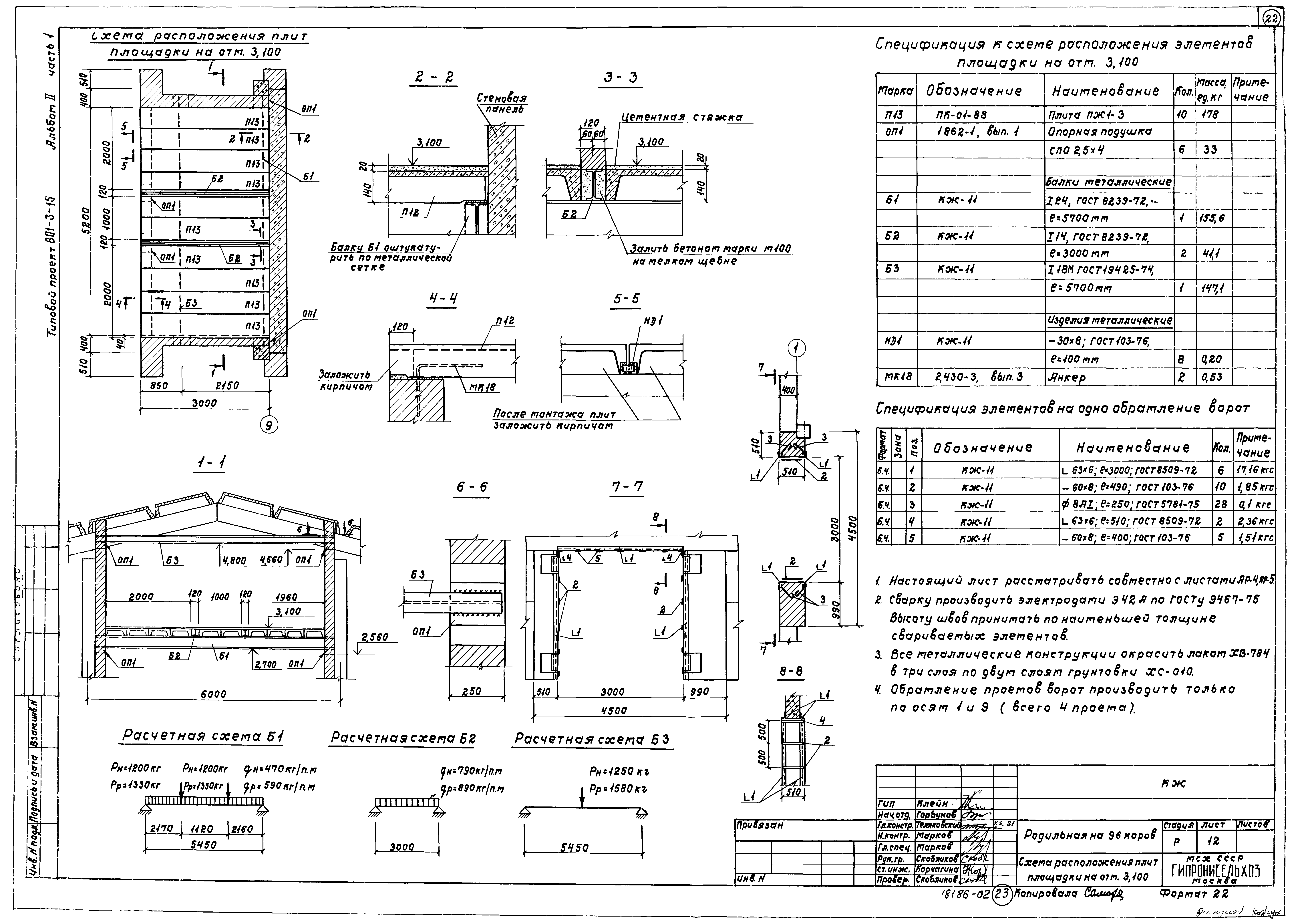
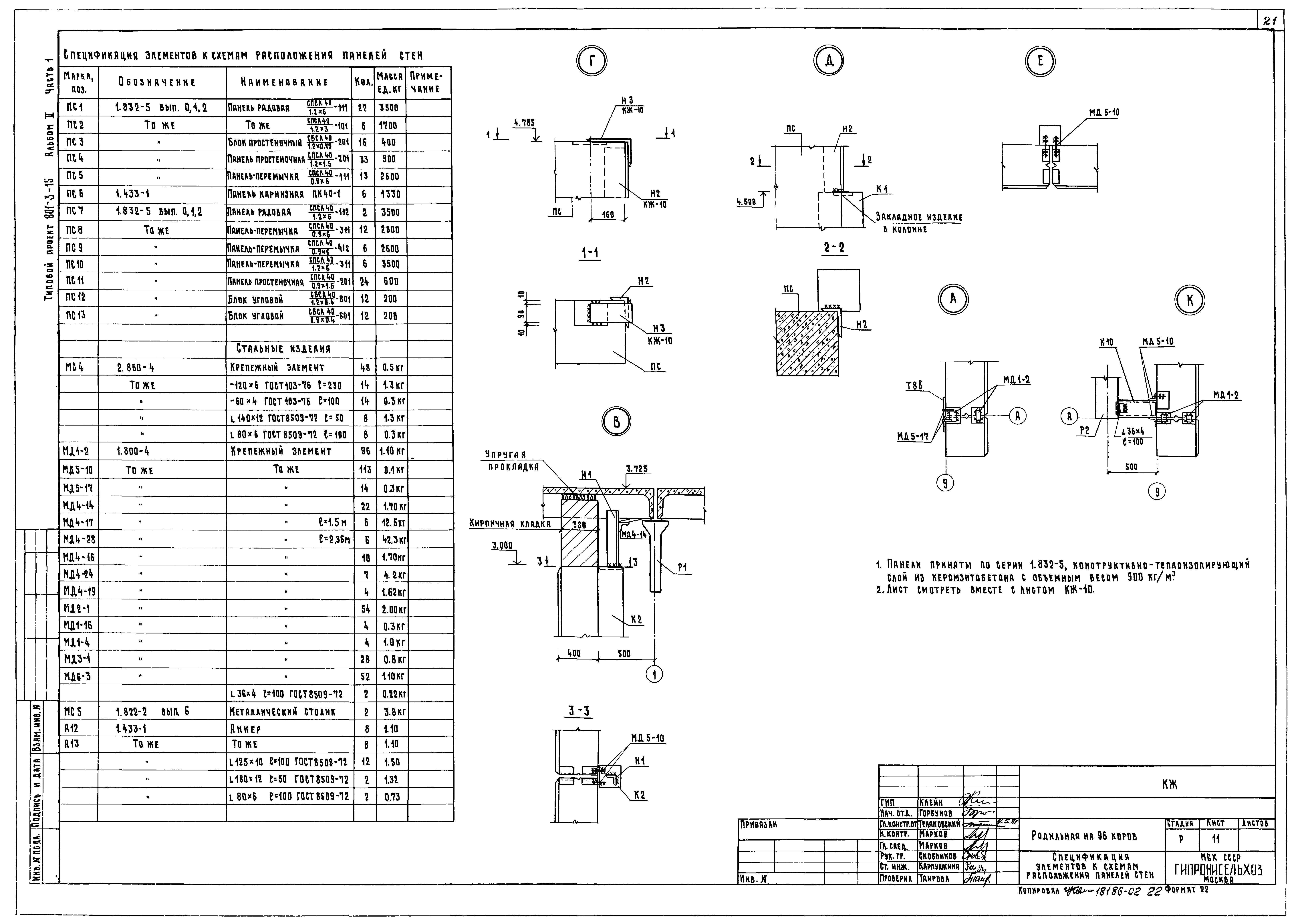
Типовой проект 801-3-15

Альбом II. Часть 1. Архитектурно-строительные решения. Конструкции железобетонные. Вариант с рамным каркасом

Обозначение: Типовой проект 801-3-15
Обозначение англ: 801-3-15
Статус:справочные материалы, мп, тпр
Название рус.:Альбом II. Часть 1. Архитектурно-строительные решения. Конструкции железобетонные. Вариант с рамным каркасом
Дата добавления в базу:01.02.2020
Дата актуализации:01.01.2021
Дата введения:24.09.1981
Дата окончания срока действия:01.03.1987
Разработан: ГипроНИсельхоз (Институт Гипронисельхоз )
Утверждён:23.07.1981 Главсельстройпроект Минсельхоза СССР (Glavselstroyproject, USSR Minselkhoz 75)
Издан: ЦИТП Госстроя СССР (CITP, Gosstroy (USSR) 1989 г. )
Заменяет собой:
  • Типовой проект 801-315
Типовой проект 801-3-15Типовой проект 801-3-15Типовой проект 801-3-15Типовой проект 801-3-15Типовой проект 801-3-15Типовой проект 801-3-15Типовой проект 801-3-15Типовой проект 801-3-15Типовой проект 801-3-15Типовой проект 801-3-15Типовой проект 801-3-15Типовой проект 801-3-15Типовой проект 801-3-15Типовой проект 801-3-15Типовой проект 801-3-15Типовой проект 801-3-15Типовой проект 801-3-15Типовой проект 801-3-15Типовой проект 801-3-15Типовой проект 801-3-15Типовой проект 801-3-15Типовой проект 801-3-15Типовой проект 801-3-15