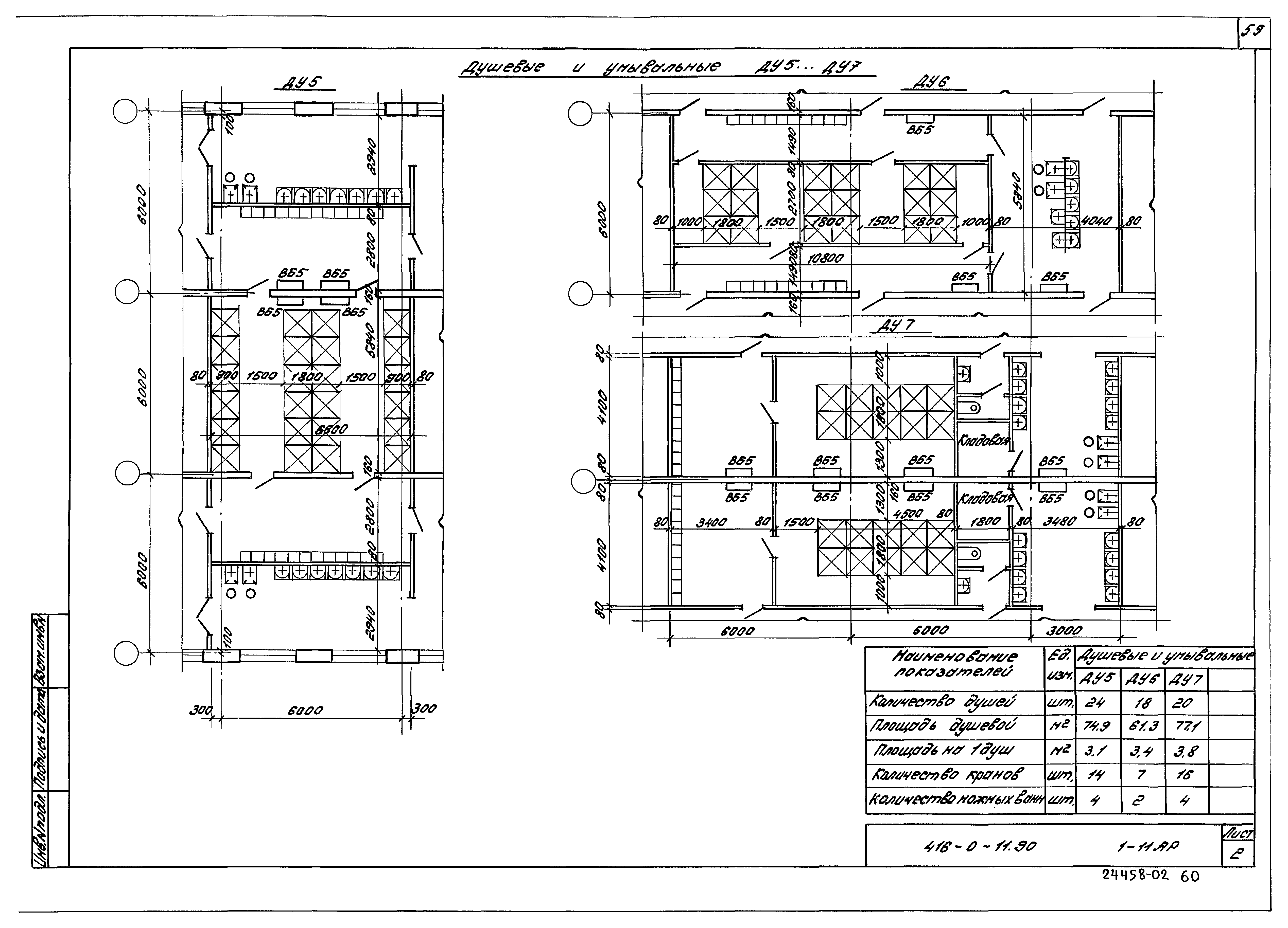
Скачать Типовые материалы для проектирования 416-0-11.90 Выпуск 1. Планировочные элементы санитарно-бытовых помещенийДата актуализации: 01.01.2021 Типовые материалы для проектирования 416-0-11.90
Выпуск 1. Планировочные элементы санитарно-бытовых помещений| Обозначение: | Типовые материалы для проектирования 416-0-11.90 | | Обозначение англ: | 416-0-11.90 | | Статус: | справочные материалы, мп, тпр | | Название рус.: | Выпуск 1. Планировочные элементы санитарно-бытовых помещений | | Дата добавления в базу: | 01.02.2020 | | Дата актуализации: | 01.01.2021 | | Дата введения: | 28.09.1990 | | Разработан: | ЦНИИпромзданий
| | Утверждён: | 28.09.1990 Госстрой СССР (13)
| | Издан: | ГУП ЦПП (CPP GUP 2001 г. )
|
                                                                                   
|