Скачать Типовой проект 903-2-41.91 Альбом 3. Мазутоснабжение. Блоки оборудования (из ТП 903-2-37.91)Дата актуализации: 01.01.2021
|
| Обозначение: | Типовой проект 903-2-41.91 |
| Обозначение англ: | 903-2-41.91 |
| Статус: | не определен законодательством |
| Название рус.: | Альбом 3. Мазутоснабжение. Блоки оборудования (из ТП 903-2-37.91) |
| Дата добавления в базу: | 01.02.2020 |
| Дата актуализации: | 01.01.2021 |
| Дата введения: | 22.01.1992 |
| Дата окончания срока действия: | 30.06.2003 |
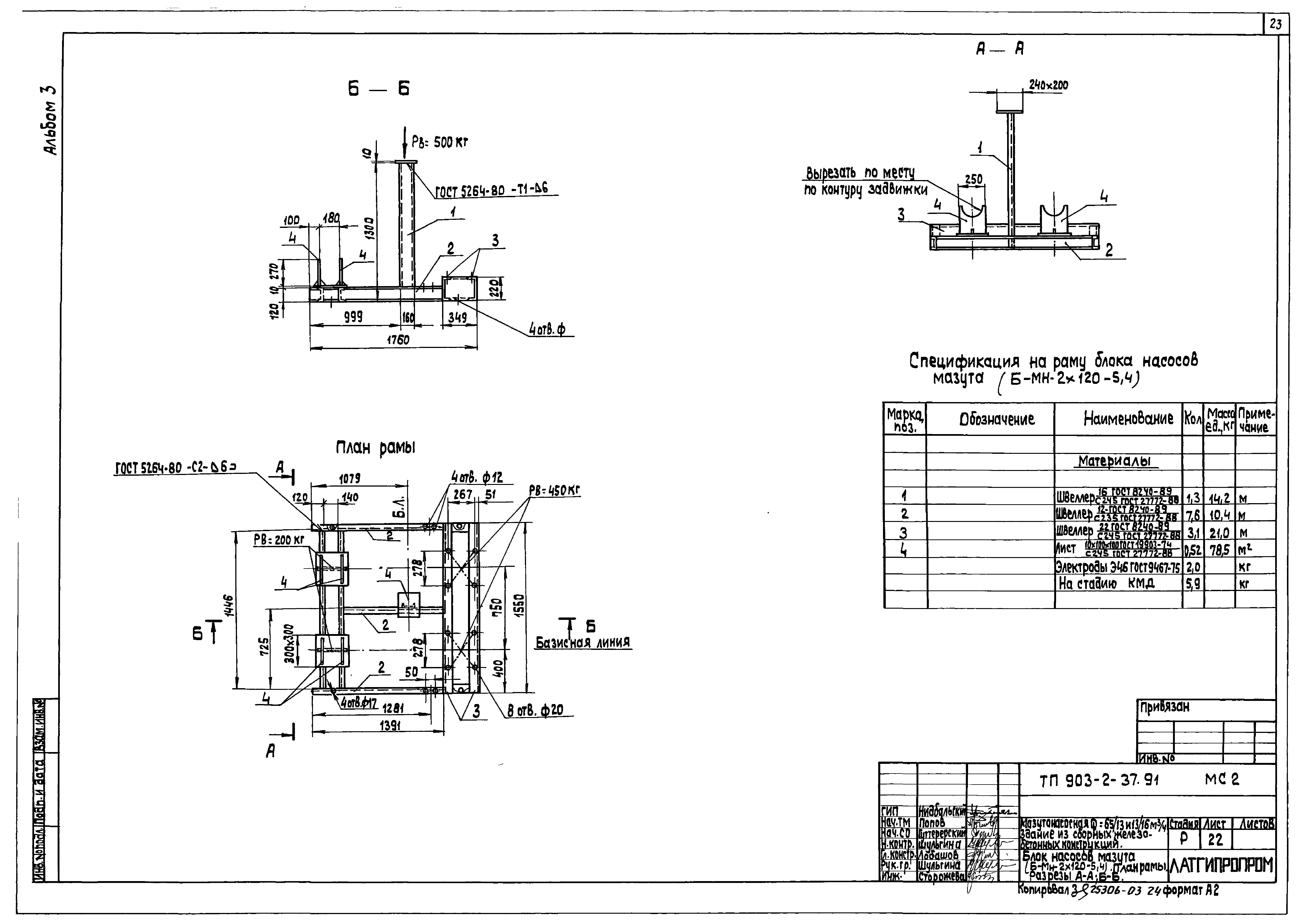
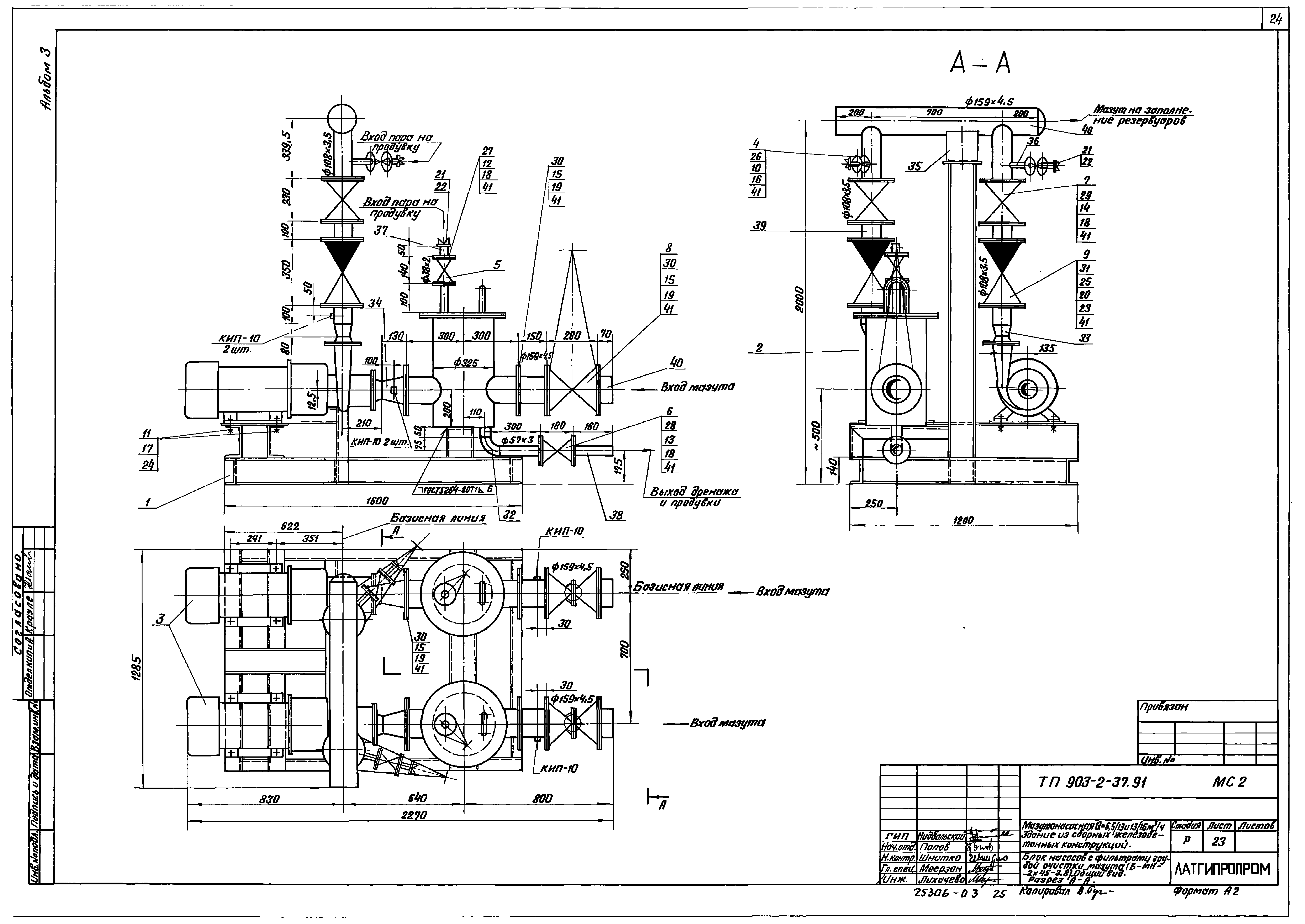
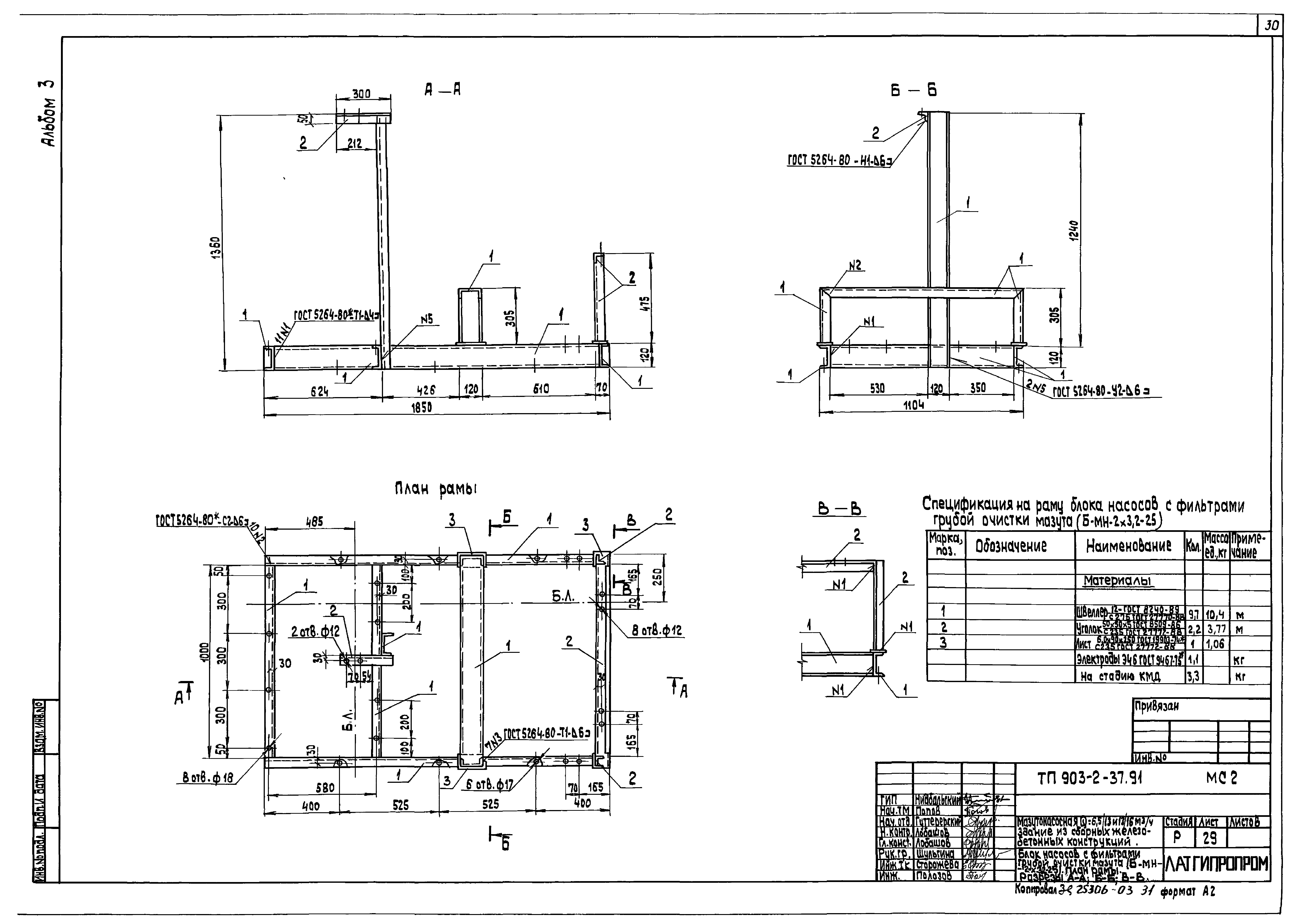
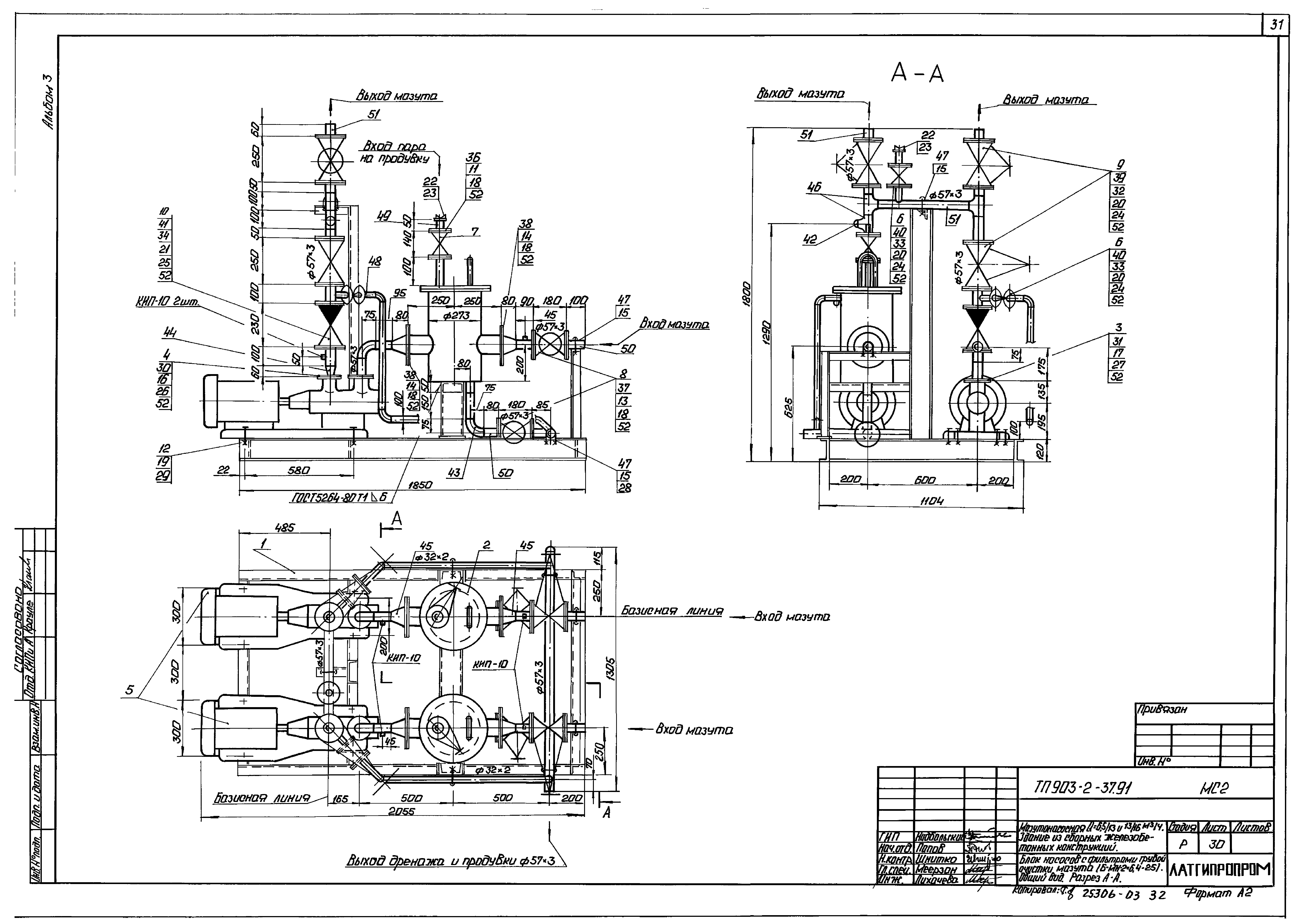
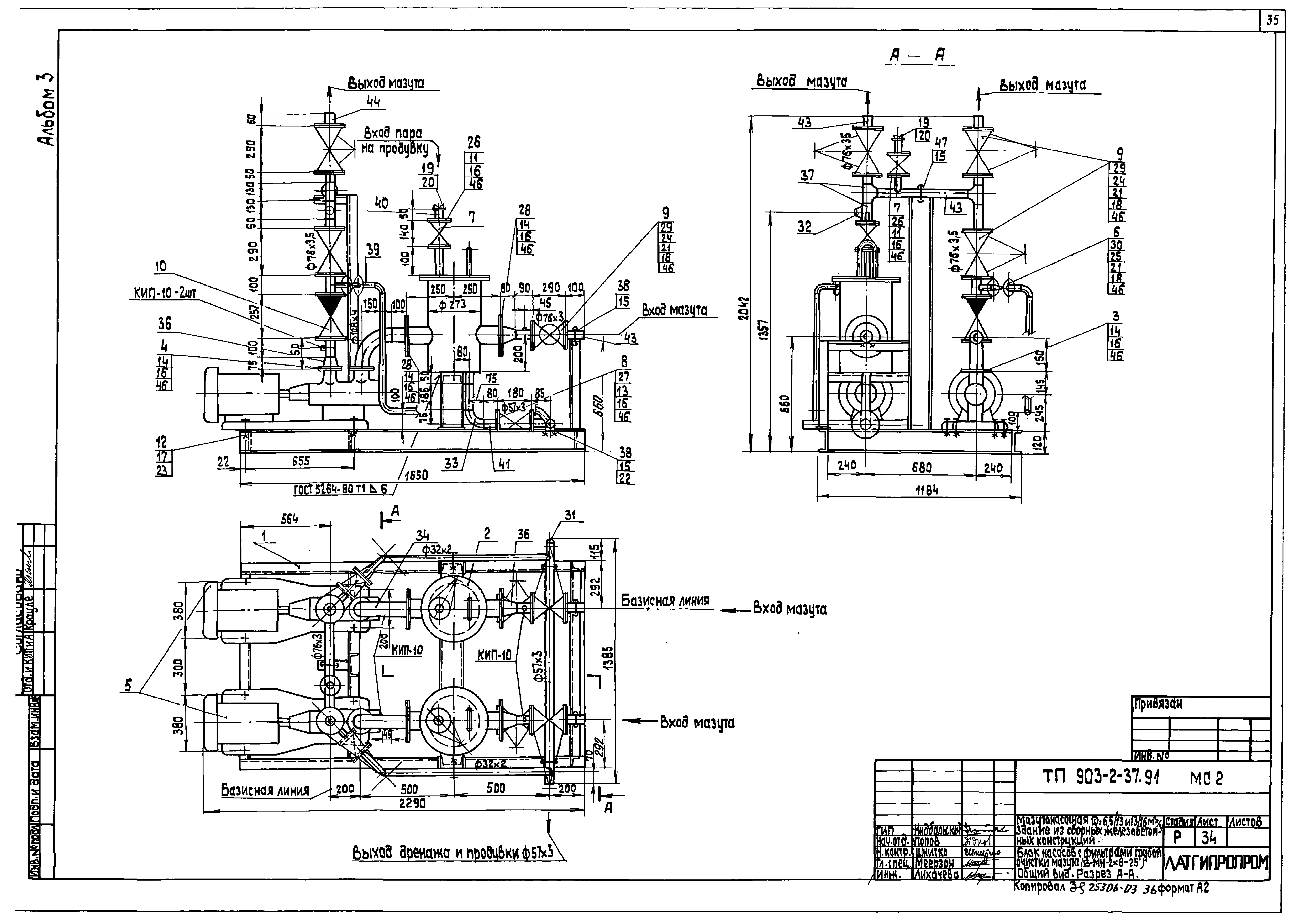
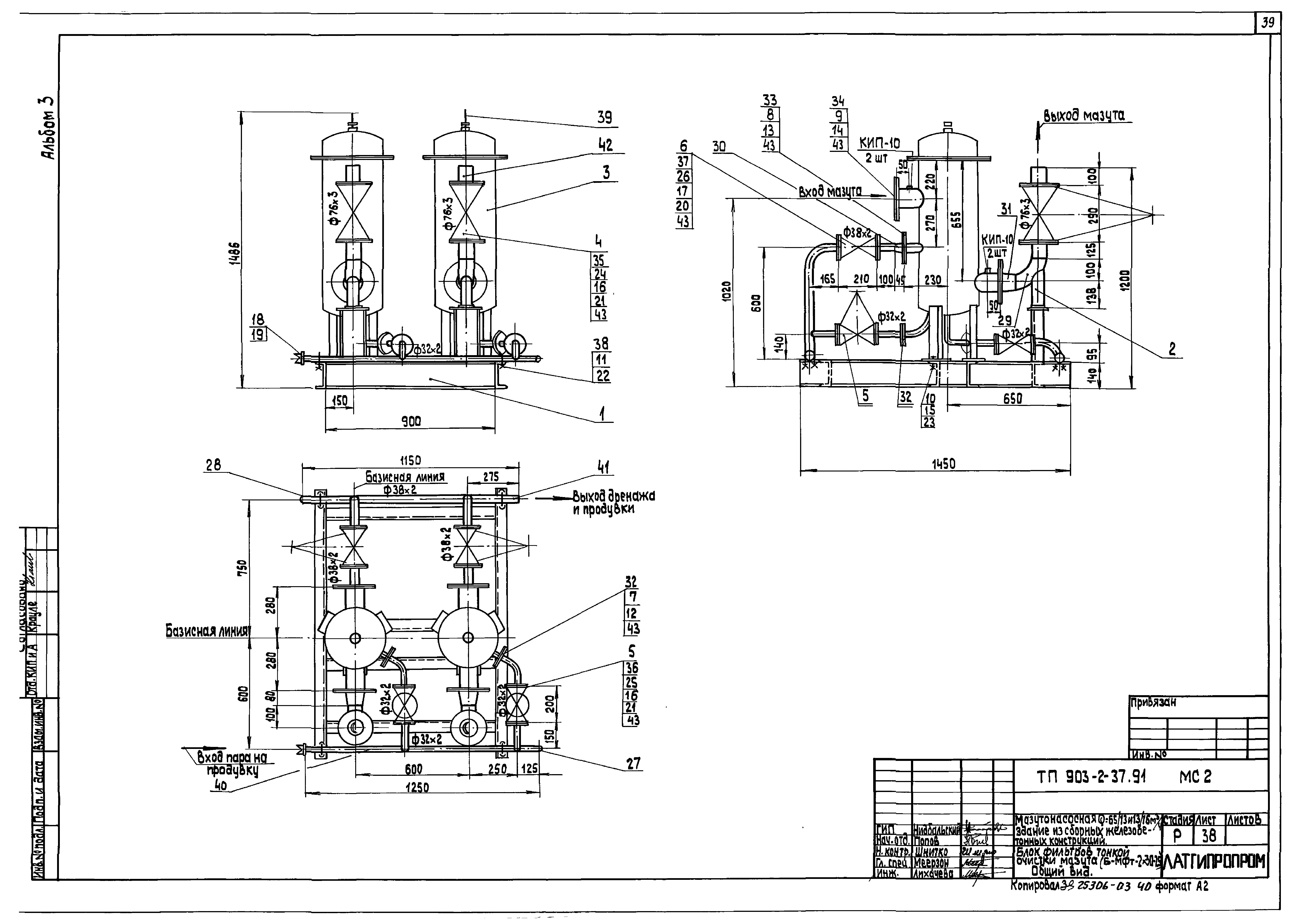
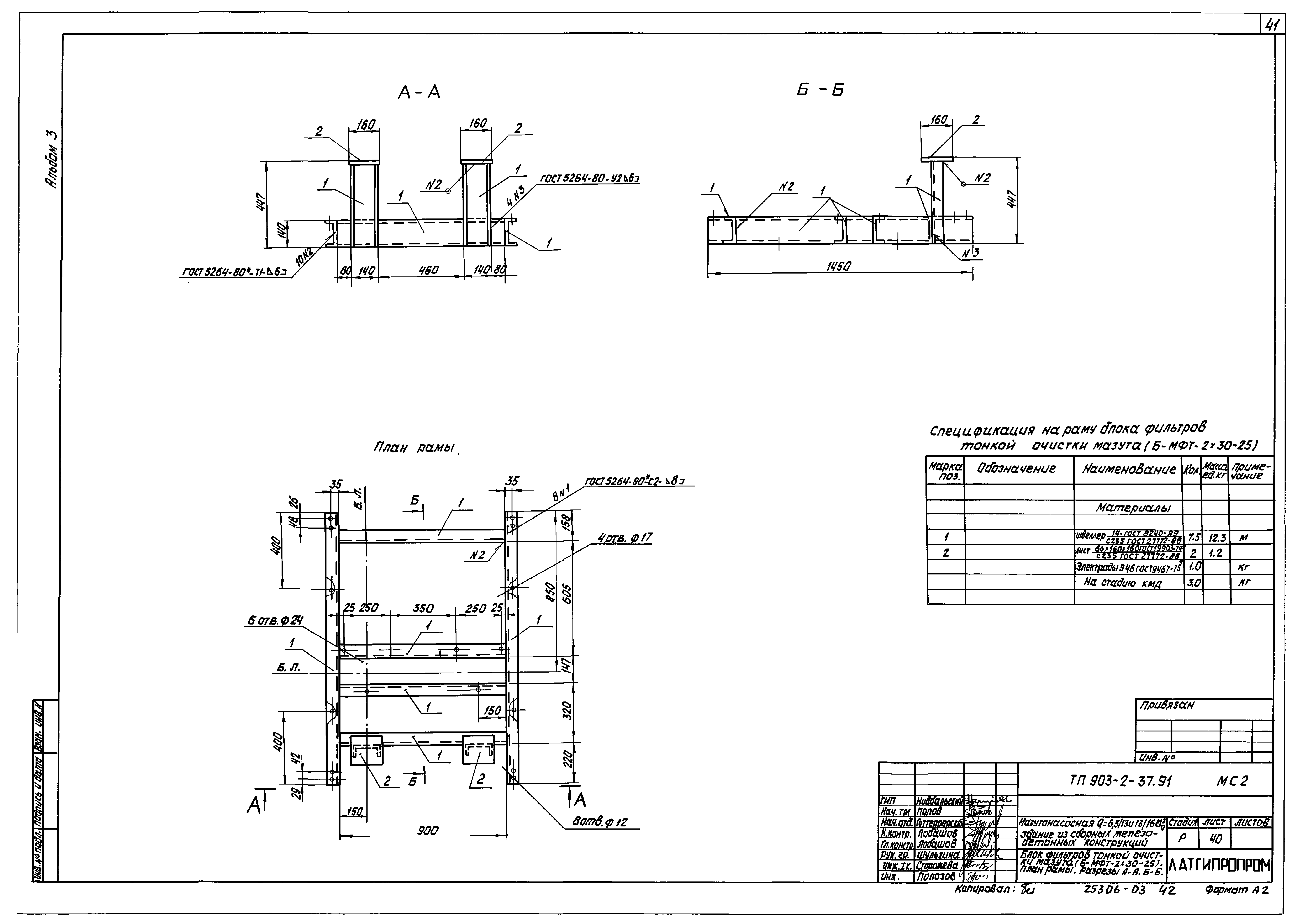
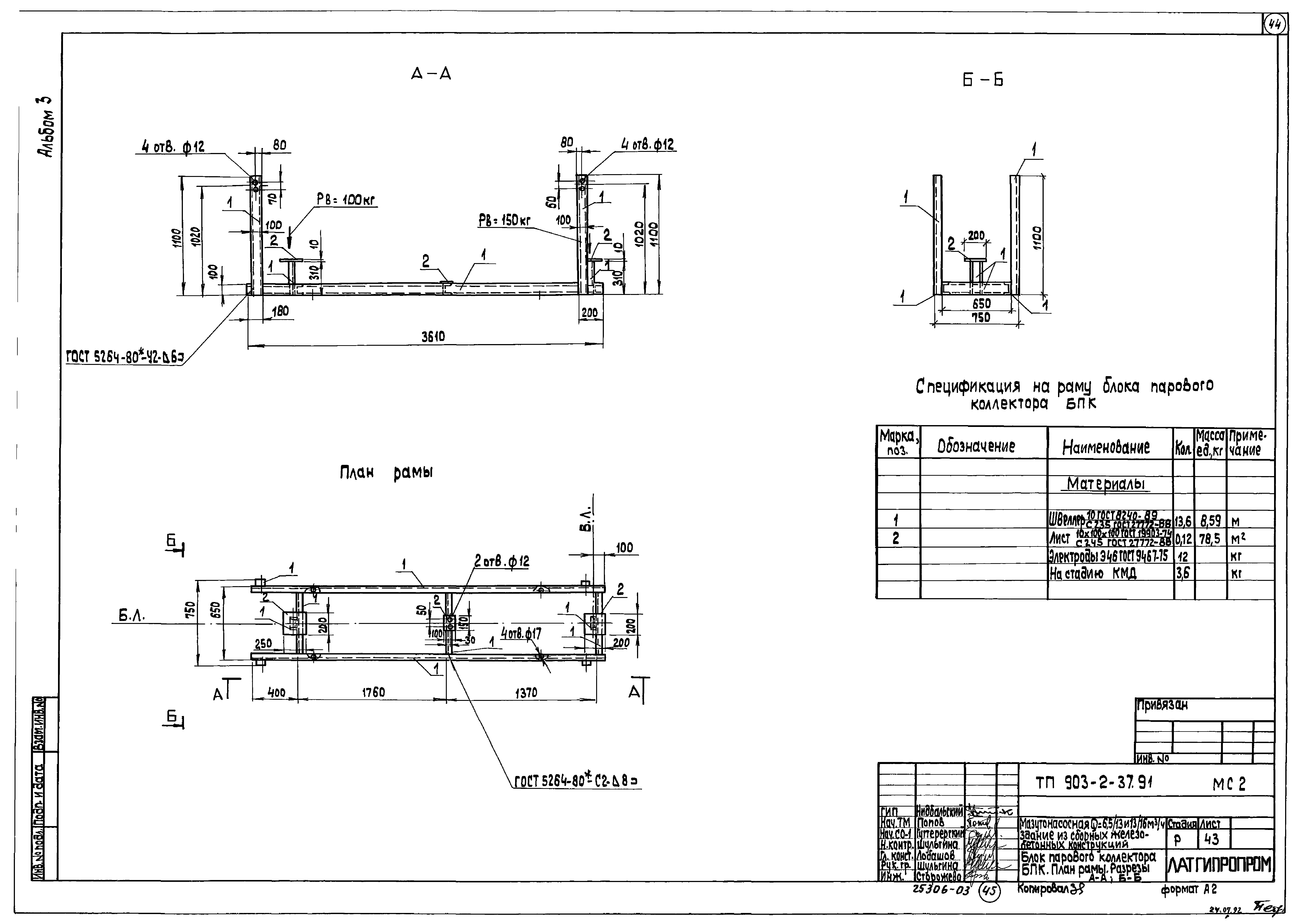
| Оглавление: | Общие данные Блок насосов мазута (Б-Мн-2х120-5,4). Общий вид. Схема блока Блок насосов мазута (Б-Мн-2х120-5,4). Спецификация Блок насосов мазута (Б-Мн-2х120-5,4). План рамы. Разрезы А-А, Б-Б Блок насосов с фильтрами грубой очистки мазута (Б-Мн-2х45-3,8). Общий вид. Разрез А-А Блок насосов с фильтрами грубой очистки мазута (Б-Мн-2х45-3,8). Схема блока Блок насосов с фильтрами грубой очистки мазута (Б-Мн-2х45-3,8). План рамы. Разрезы Блок насосов с фильтрами грубой очистки мазута (Б-Мн-2х3,2-25). Общий вид. Разрез А-А Блок насосов с фильтрами грубой очистки мазута (Б-Мн-2х3,2-25). Схема блока Блок насосов с фильтрами грубой очистки мазута (Б-Мн-2х3,2-25). Спецификация Блок насосов с фильтрами грубой очистки мазута (Б-Мн-2х3,2-25). План рамы. Разрезы А-А, Б-Б, В-В Блок насосов с фильтрами грубой очистки мазута (Б-Мн-2х6,4-25). Общий вид. Разрез А-А Блок насосов с фильтрами грубой очистки мазута (Б-Мн-2х6,4-25). Схема блока Блок насосов с фильтрами грубой очистки мазута (Б-Мн-2х6,4-25). Спецификация Блок насосов с фильтрами грубой очистки мазута (Б-Мн-2х6,4-25). План рамы. Разрезы А-А, Б-Б, В-В Блок насосов с фильтрами грубой очистки мазута (Б-Мн-2х8-25). Общий вид. Разрез А-А Блок насосов с фильтрами грубой очистки мазута (Б-Мн-2х8-25). Схема блока Блок насосов с фильтрами грубой очистки мазута (Б-Мн-2х8-25). Спецификация Блок насосов с фильтрами грубой очистки мазута (Б-Мн-2х8-25). План рамы. Разрезы А-А, Б-Б, В-В Блок фильтров тонкой очистки мазута (Б-МФТ-2х30-25). Общий вид Блок фильтров тонкой очистки мазута (Б-МФТ-2х30-25). Схема блока Блок фильтров тонкой очистки мазута (Б-МФТ-2х30-25). План рамы. Разрезы А-А, Б-Б, В-В Блок парового коллектора БПК. Общий вид. Схема блока. Разрезы А-А, Б-Б, В-В, Г-Г Блок парового коллектора БПК. Спецификация Блок парового коллектора БПК. План рамы. Разрезы А-А, Б-Б |
| Разработан: | Латгипропром |
| Утверждён: | 22.01.1992 ГПКНИИ Сантехниипроект (30) |












































