Скачать Типовой проект 409-14-78.92 Альбом 1. Общая пояснительная записка. Технологические решения. Технологические коммуникации. Основные положения по производству строительных и монтажных работ

Дата актуализации: 01.01.2021

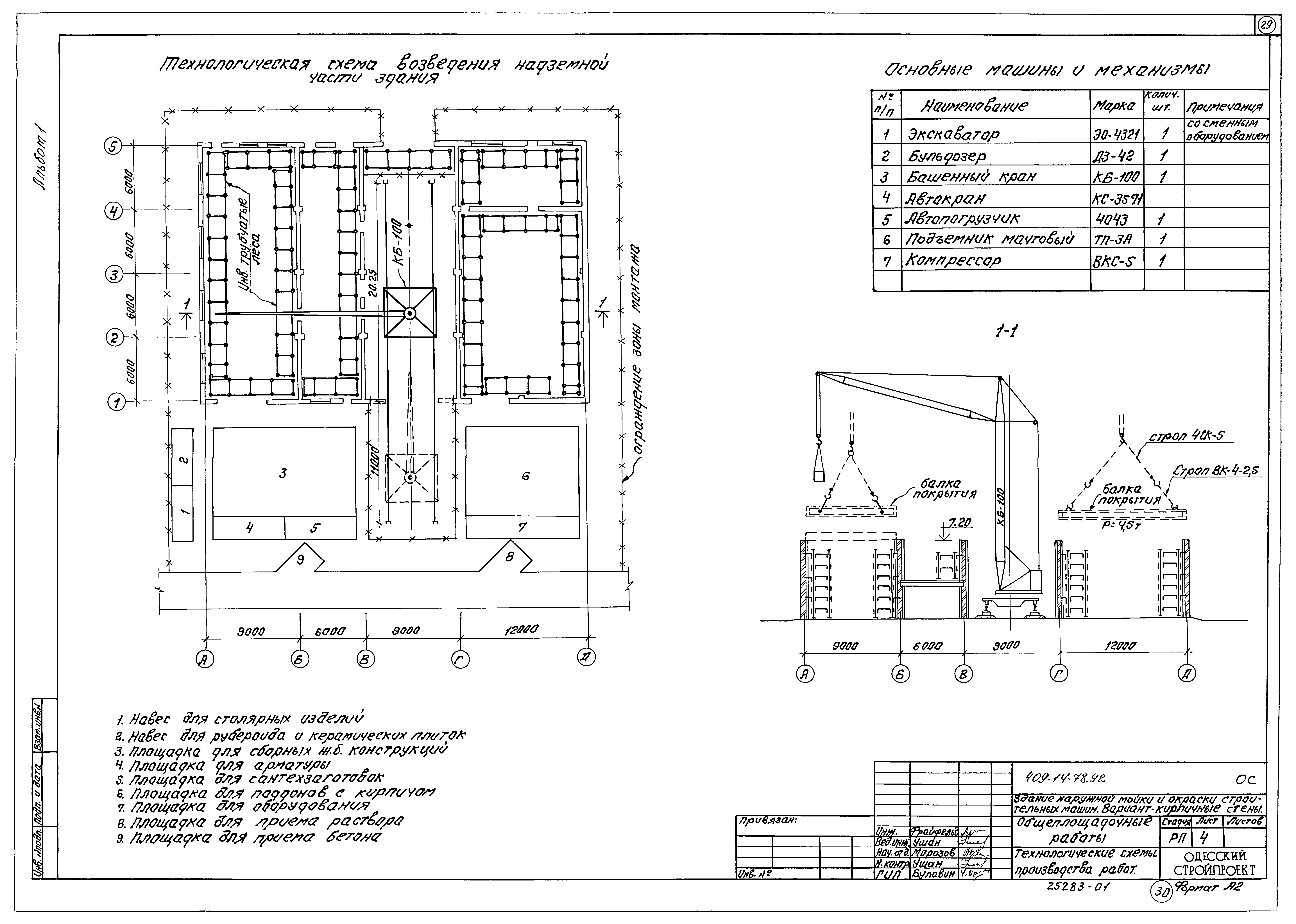
Типовой проект 409-14-78.92

Альбом 1. Общая пояснительная записка. Технологические решения. Технологические коммуникации. Основные положения по производству строительных и монтажных работ

Обозначение: Типовой проект 409-14-78.92
Обозначение англ: 409-14-78.92
Статус:не определен законодательством
Название рус.:Альбом 1. Общая пояснительная записка. Технологические решения. Технологические коммуникации. Основные положения по производству строительных и монтажных работ
Дата добавления в базу:01.02.2020
Дата актуализации:01.01.2021
Дата введения:15.01.1992
Дата окончания срока действия:30.06.2003
Разработан: Одесский стройпроект
Утверждён:15.01.1992 Одесский Стройпроект (62)
Издан: ЦИТП Госстроя СССР (CITP, Gosstroy (USSR) 1992 г. )
Заменяет собой:
Типовой проект 409-14-78.92Типовой проект 409-14-78.92Типовой проект 409-14-78.92Типовой проект 409-14-78.92Типовой проект 409-14-78.92Типовой проект 409-14-78.92Типовой проект 409-14-78.92Типовой проект 409-14-78.92Типовой проект 409-14-78.92Типовой проект 409-14-78.92Типовой проект 409-14-78.92Типовой проект 409-14-78.92Типовой проект 409-14-78.92Типовой проект 409-14-78.92Типовой проект 409-14-78.92Типовой проект 409-14-78.92Типовой проект 409-14-78.92Типовой проект 409-14-78.92Типовой проект 409-14-78.92Типовой проект 409-14-78.92Типовой проект 409-14-78.92Типовой проект 409-14-78.92Типовой проект 409-14-78.92Типовой проект 409-14-78.92Типовой проект 409-14-78.92Типовой проект 409-14-78.92Типовой проект 409-14-78.92Типовой проект 409-14-78.92Типовой проект 409-14-78.92Типовой проект 409-14-78.92