Скачать Типовой проект 409-14-77.92 Альбом 4. Силовое электрооборудование. Электрическое освещение. Автоматизация отопления и вентиляции. Автоматизация управления автоматическим пожаротушением. Связь и сигнализация

Дата актуализации: 01.01.2021

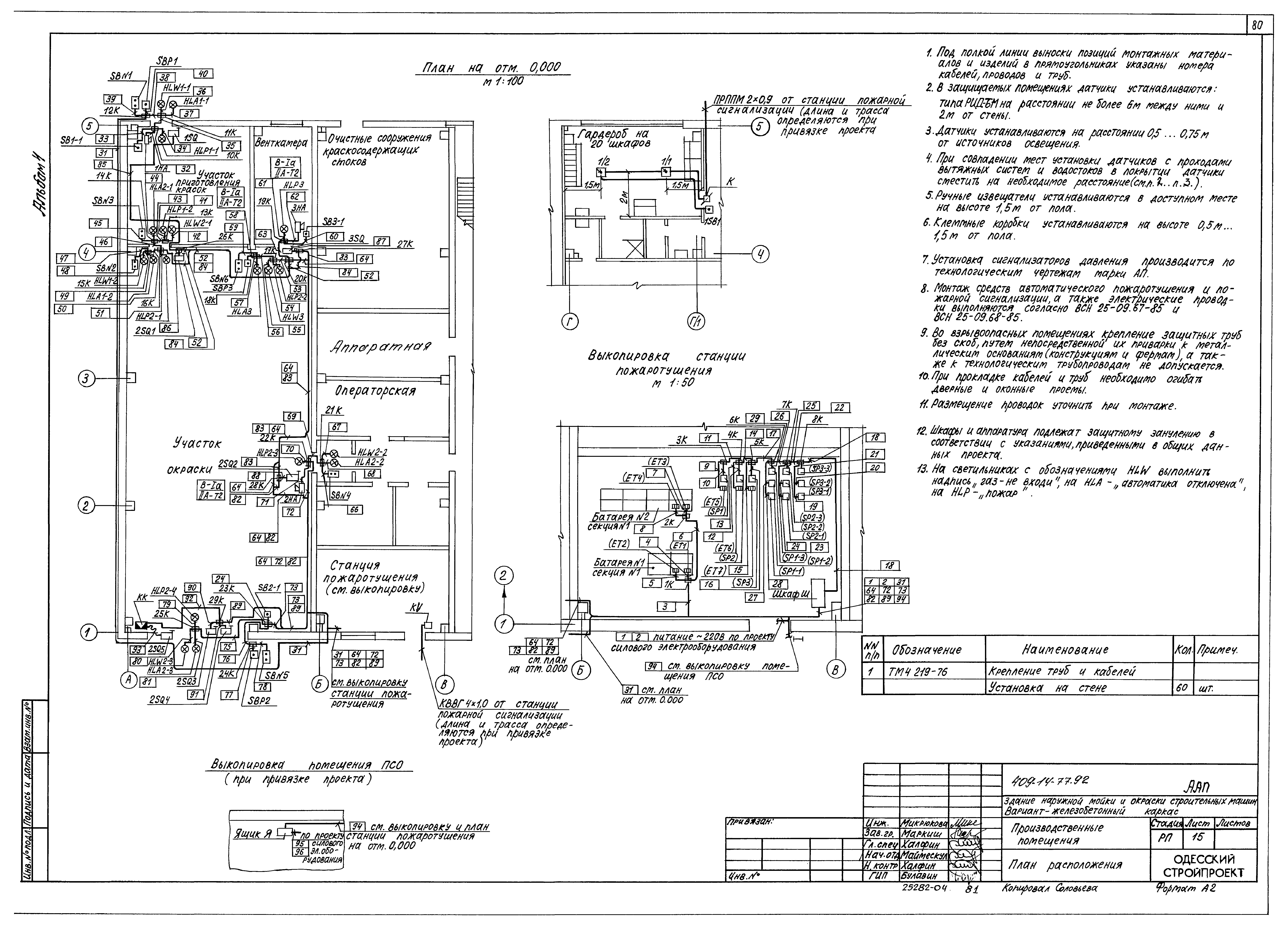
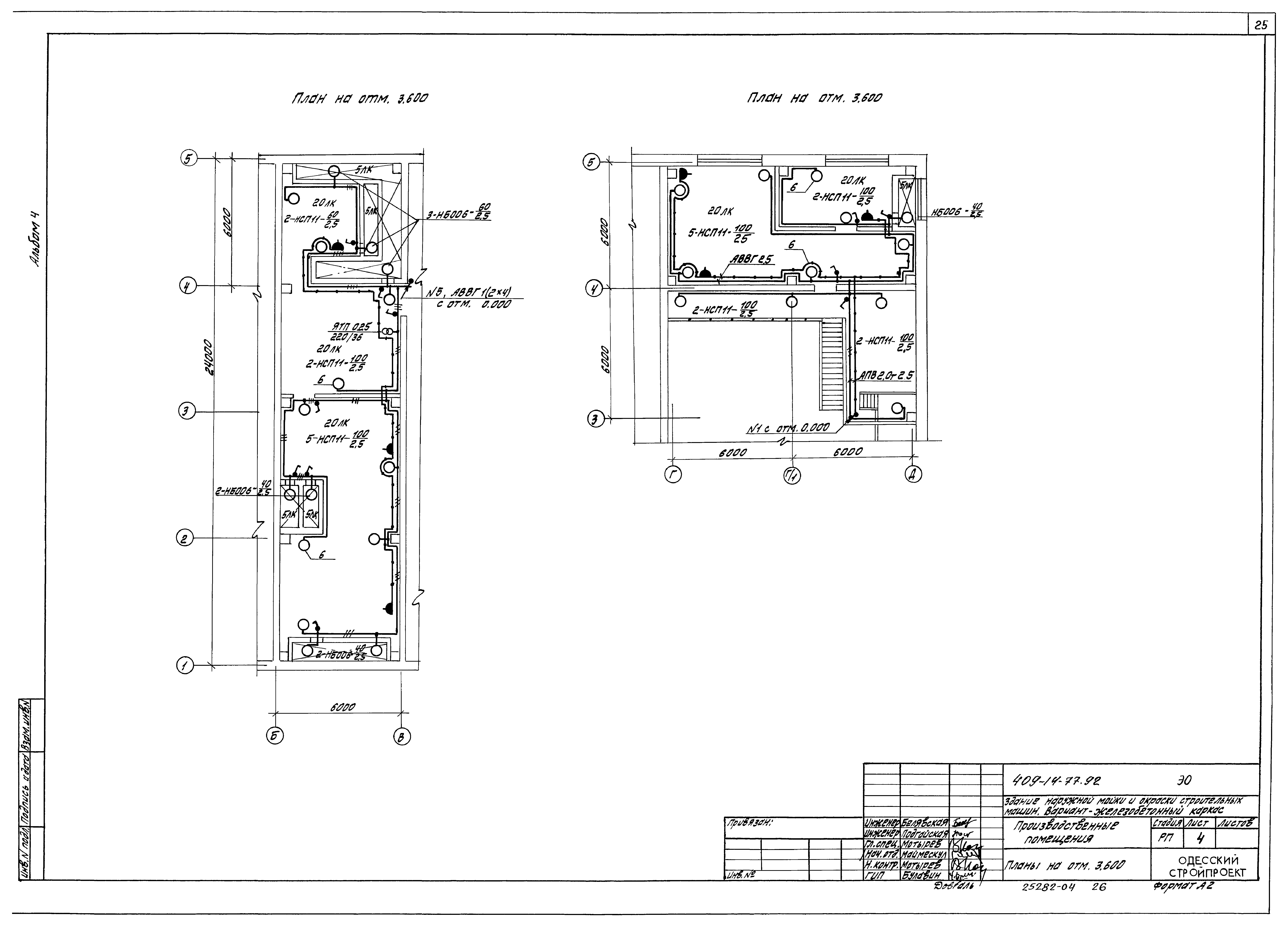
Типовой проект 409-14-77.92

Альбом 4. Силовое электрооборудование. Электрическое освещение. Автоматизация отопления и вентиляции. Автоматизация управления автоматическим пожаротушением. Связь и сигнализация

Обозначение: Типовой проект 409-14-77.92
Обозначение англ: 409-14-77.92
Статус:не определен законодательством
Название рус.:Альбом 4. Силовое электрооборудование. Электрическое освещение. Автоматизация отопления и вентиляции. Автоматизация управления автоматическим пожаротушением. Связь и сигнализация
Дата добавления в базу:01.02.2020
Дата актуализации:01.01.2021
Дата введения:15.01.1992
Дата окончания срока действия:30.06.2003
Разработан: Одесский стройпроект
Утверждён:15.01.1992 Одесский Стройпроект (62)
Заменяет собой:
  • Типовой проект 409-14-54.87
Типовой проект 409-14-77.92Типовой проект 409-14-77.92Типовой проект 409-14-77.92Типовой проект 409-14-77.92Типовой проект 409-14-77.92Типовой проект 409-14-77.92Типовой проект 409-14-77.92Типовой проект 409-14-77.92Типовой проект 409-14-77.92Типовой проект 409-14-77.92Типовой проект 409-14-77.92Типовой проект 409-14-77.92Типовой проект 409-14-77.92Типовой проект 409-14-77.92Типовой проект 409-14-77.92Типовой проект 409-14-77.92Типовой проект 409-14-77.92Типовой проект 409-14-77.92Типовой проект 409-14-77.92Типовой проект 409-14-77.92Типовой проект 409-14-77.92Типовой проект 409-14-77.92Типовой проект 409-14-77.92Типовой проект 409-14-77.92Типовой проект 409-14-77.92Типовой проект 409-14-77.92Типовой проект 409-14-77.92Типовой проект 409-14-77.92Типовой проект 409-14-77.92Типовой проект 409-14-77.92Типовой проект 409-14-77.92Типовой проект 409-14-77.92Типовой проект 409-14-77.92Типовой проект 409-14-77.92Типовой проект 409-14-77.92Типовой проект 409-14-77.92Типовой проект 409-14-77.92Типовой проект 409-14-77.92Типовой проект 409-14-77.92Типовой проект 409-14-77.92Типовой проект 409-14-77.92Типовой проект 409-14-77.92Типовой проект 409-14-77.92Типовой проект 409-14-77.92Типовой проект 409-14-77.92Типовой проект 409-14-77.92Типовой проект 409-14-77.92Типовой проект 409-14-77.92Типовой проект 409-14-77.92Типовой проект 409-14-77.92Типовой проект 409-14-77.92Типовой проект 409-14-77.92Типовой проект 409-14-77.92Типовой проект 409-14-77.92Типовой проект 409-14-77.92Типовой проект 409-14-77.92Типовой проект 409-14-77.92Типовой проект 409-14-77.92Типовой проект 409-14-77.92Типовой проект 409-14-77.92Типовой проект 409-14-77.92Типовой проект 409-14-77.92Типовой проект 409-14-77.92Типовой проект 409-14-77.92Типовой проект 409-14-77.92Типовой проект 409-14-77.92Типовой проект 409-14-77.92Типовой проект 409-14-77.92Типовой проект 409-14-77.92Типовой проект 409-14-77.92Типовой проект 409-14-77.92Типовой проект 409-14-77.92Типовой проект 409-14-77.92Типовой проект 409-14-77.92Типовой проект 409-14-77.92Типовой проект 409-14-77.92Типовой проект 409-14-77.92Типовой проект 409-14-77.92Типовой проект 409-14-77.92Типовой проект 409-14-77.92Типовой проект 409-14-77.92Типовой проект 409-14-77.92Типовой проект 409-14-77.92