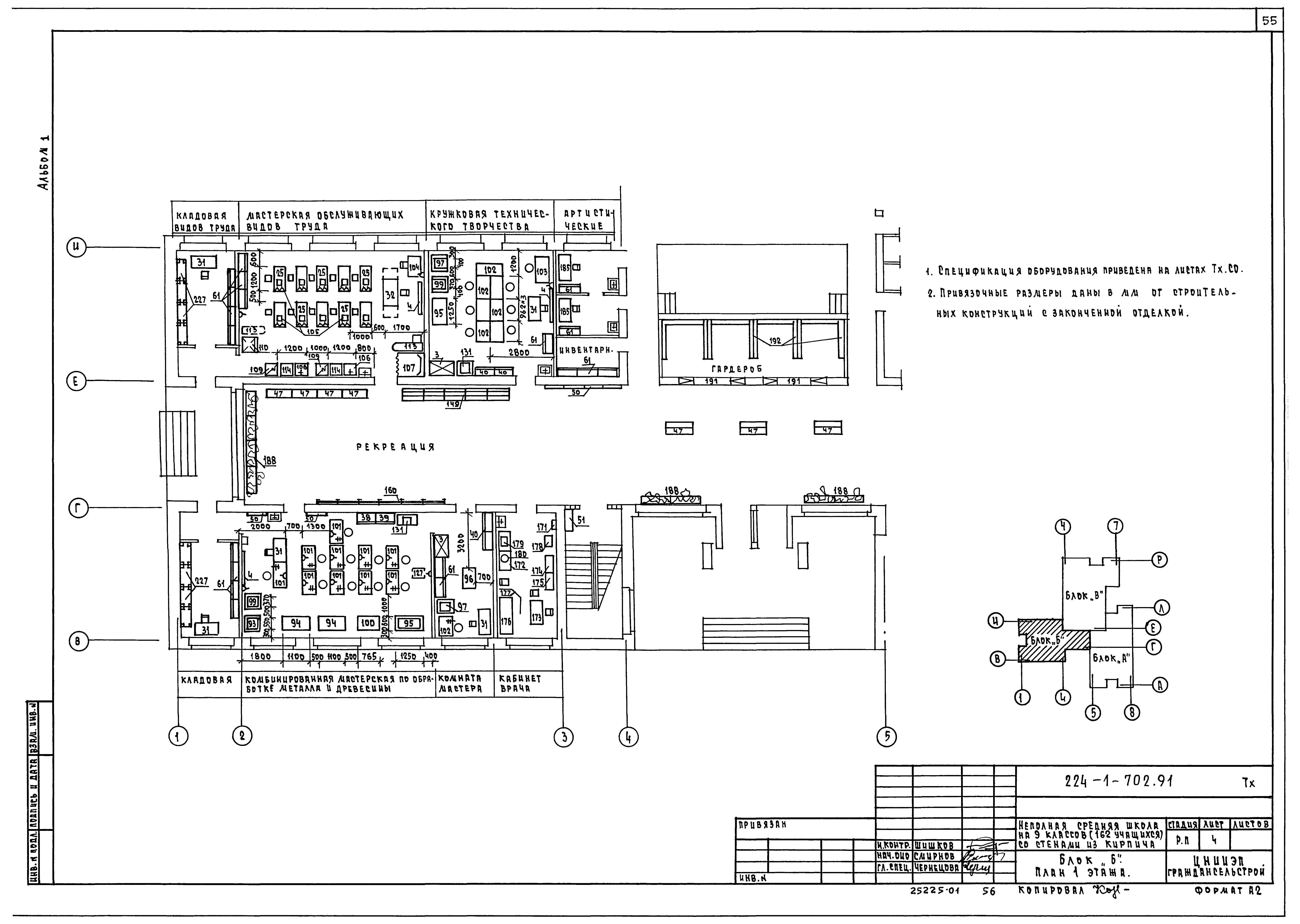
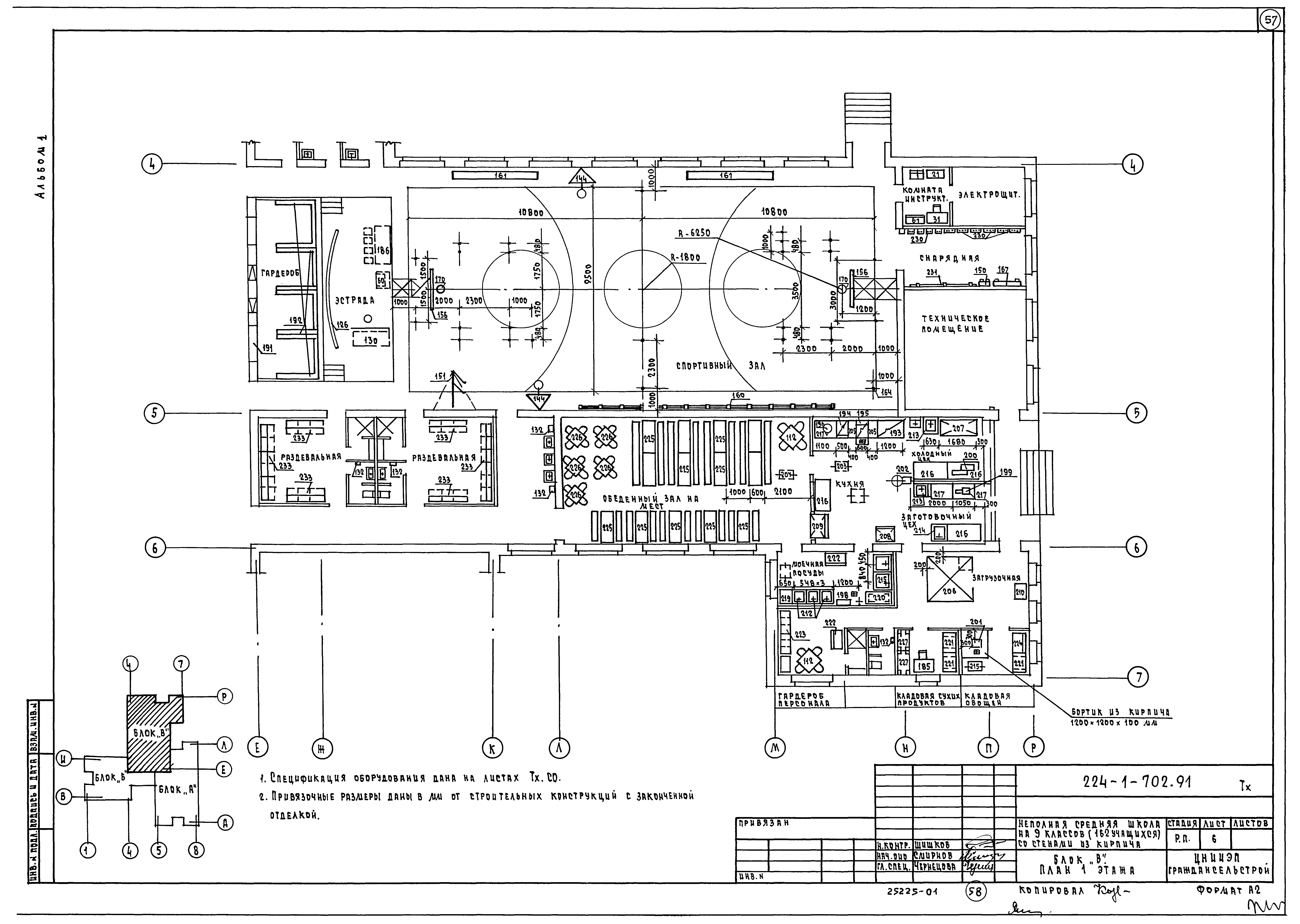
Скачать Типовой проект 224-1-702.91 Альбом 1. Пояснительная записка. Архитектурно-строительные решения. Технологические чертежиДата актуализации: 01.01.2021
|
| Обозначение: | Типовой проект 224-1-702.91 |
| Обозначение англ: | 224-1-702.91 |
| Статус: | не определен законодательством |
| Название рус.: | Альбом 1. Пояснительная записка. Архитектурно-строительные решения. Технологические чертежи |
| Дата добавления в базу: | 01.02.2020 |
| Дата актуализации: | 01.01.2021 |
| Дата введения: | 12.02.1992 |
| Дата окончания срока действия: | 30.06.2003 |
| Разработан: | ЦНИИЭП граждансельстрой |
| Утверждён: | 29.11.1991 Госкомархитектура (2-127) |

























































