Скачать НД 2-030101-009 Приложения к Руководству по техническому наблюдению за судами в эксплуатации (редакция 2020 года)Дата актуализации: 01.01.2021
|
| Обозначение: | НД 2-030101-009 |
| Обозначение англ: | ND 2-030101-009 |
| Статус: | взамен |
| Название рус.: | Приложения к Руководству по техническому наблюдению за судами в эксплуатации (редакция 2020 года) |
| Дата добавления в базу: | 01.01.2021 |
| Дата актуализации: | 01.01.2021 |
| Дата введения: | 01.01.2020 |
| Область применения: | Приложения к Руководству предназначены для инспекторского состава, экипажей судов и судовладельцев. В случае расхождений между текстами на русском и английском языках текст на русском языке имеет преимущественную силу. |
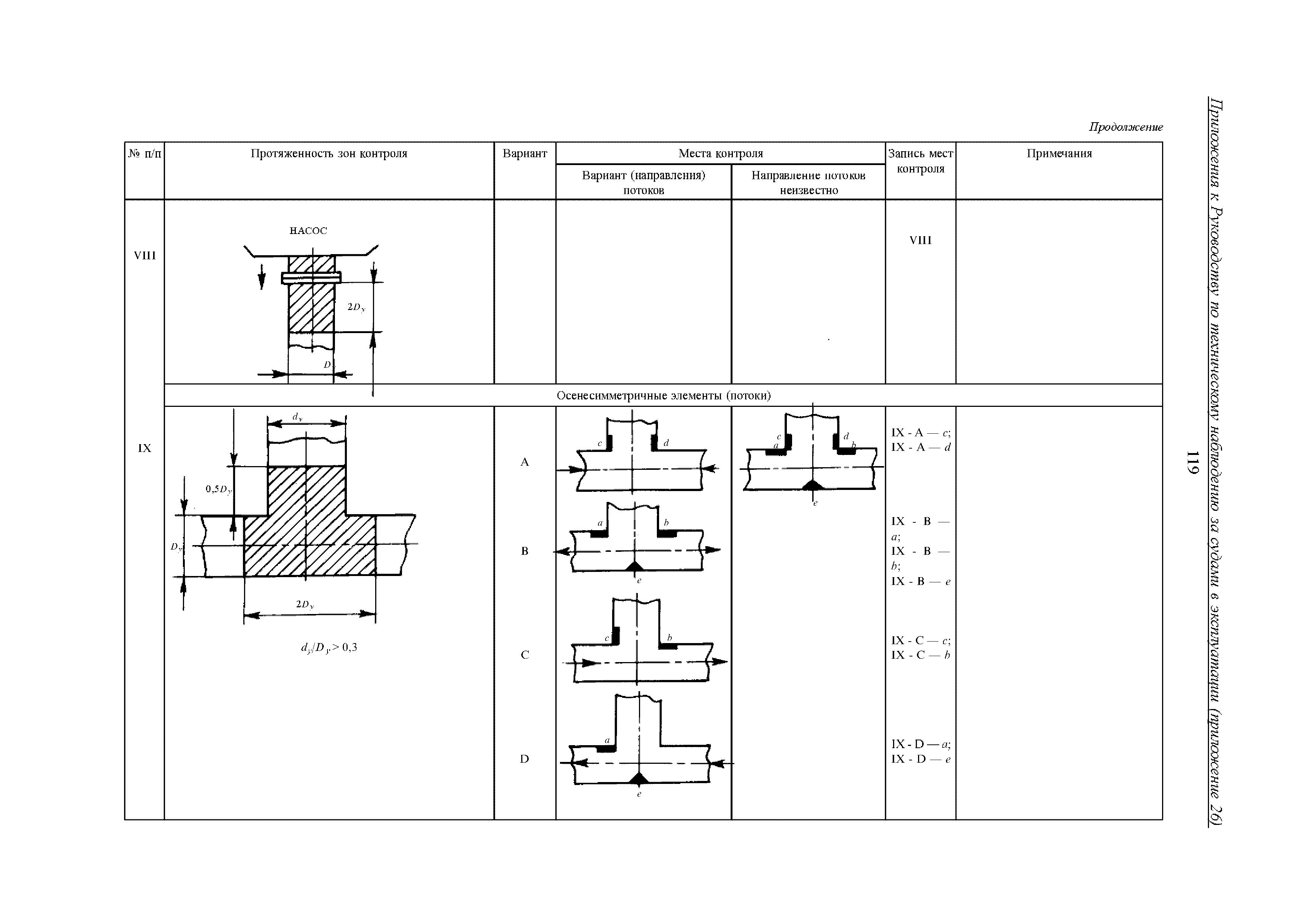
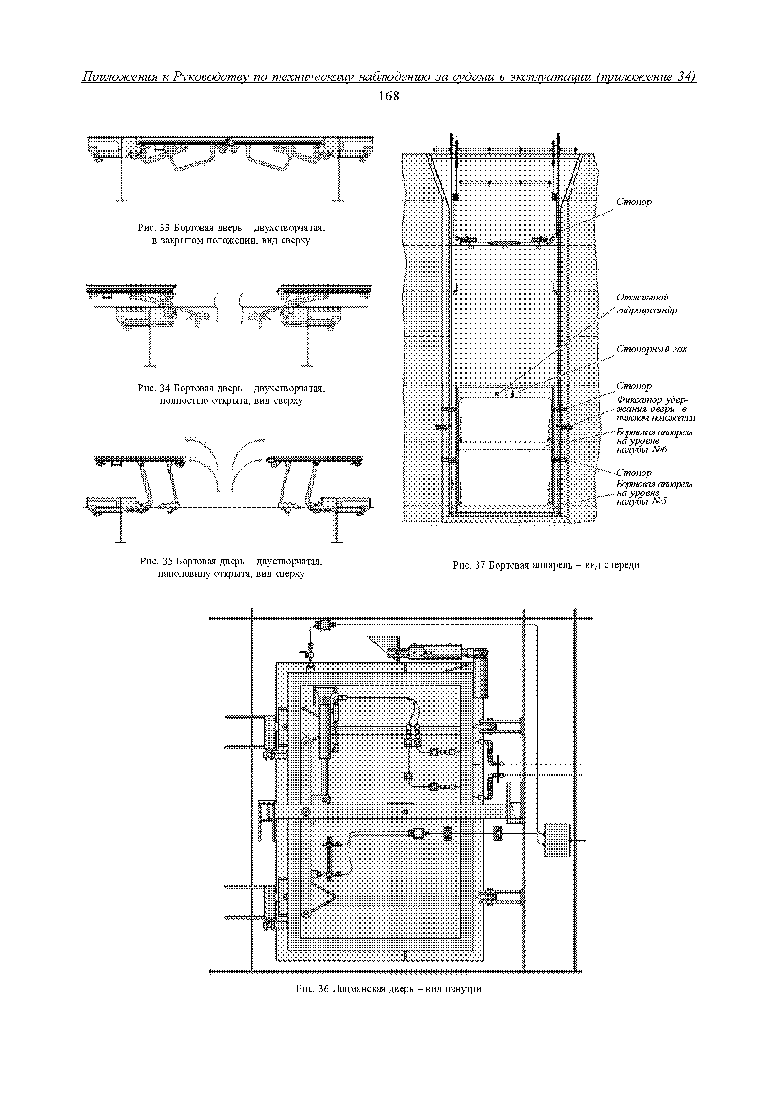
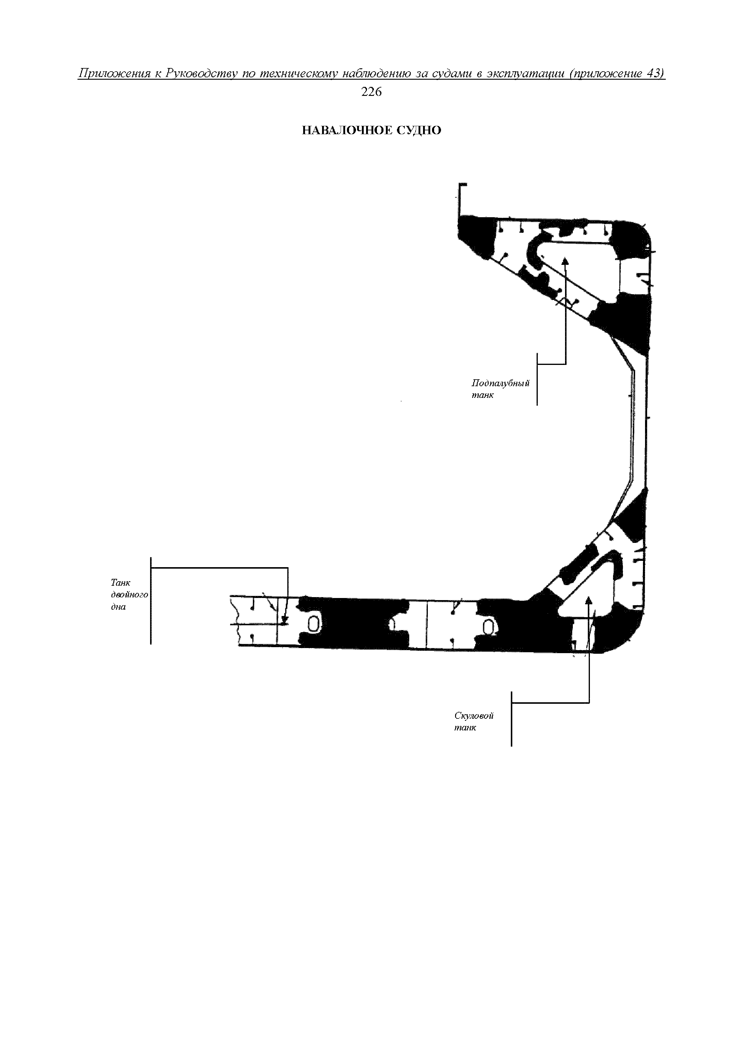
| Оглавление: | 1 Методика подводного освидетельствования судов и морских сооружений 2 Инструкция по непрерывному освидетельствованию судов 3 Инструкция по использованию средств диагностирования и неразрушающего контроля при освидетельствовании объектов технического наблюдения 4 Инструкция по освидетельствованию спасательных кругов и спасательных жилетов на специализированных участках по освидетельствованию, испытанию и ремонту спасательных средств индивидуального пользования 5 Оценка предельной балльности волнения по условиям обеспечения прочности корпуса судна 6 Оценка предельной балльности ветра по условиям обеспечения остойчивости судна 7 Снабжение плавучих доков якорями и якорными цепями для разового перегона 8 Снабжение плавучих доков буксирными тросами для разового перегона 9 Снабжение буксирующих судов буксирными тросами для разового перегона (рекомендации) 10 Испытание непроницаемости корпуса 11 12 Инструкция по освидетельствованию судов специального назначения 13 Положения по внедрению и поддержанию системы контроля состояния валопровода 14 Отчет теряющему обществу 15 Методика ежегодного освидетельствования радиооборудования ГМССБ 16 Циркулярное письмо Комитета по безопасности на море ИМО 17 Выставление, снятие и проверка выполнения требований Регистра 18 Рекомендация по условиям одобрения станций обслуживания надувных спасательных плотов 19 Образец Акта на спасательные круги и жилеты 20 Форма L 21 Форма G 22 Перечни документов радиотехнической службы на морских судах и судах смешанного (река-море) плавания, находящихся в ведении МТРФ (I), и на судах Госкомрыболовства РФ (II) 23 Инструкция по проверке корректировки навигационных карт и пособий 24 Схема предъявления судов по гармонизированной системе освидетельствований (международные конвенции) 25 Освидетельствование судов, перевозящих опасные грузы в упаковке и навалом 26 Инструкция по освидетельствованию судовых трубопроводов 27 Методика проведения освидетельствований судов в эксплуатации по инициативе Регистра (инициативные освидетельствования) 28 Руководство по безопасной океанской буксировке 29 Данные по судну (PR1A) 30 Проверка и эксплуатационные испытания средств посадки и высадки во время периодических освидетельствований грузовых и пассажирских судов 31 32 Инструкция по проведению испытаний штормтрапов, спасательных шкентелей с мусингами, предохранительных поясов и страховочных канатов 33 Руководство по освидетельствованиям в соответствии с требованиями полярного кодекса и правилом XIV/2.2 Конвенции СОЛАС-74 с поправками (см. Циркуляр ИМО MSC.1/Circ.1562) 34 Руководство для инспекторов Регистра по освидетельствованию носовых, бортовых, кормовых дверей и аппарелей и внутренних дверей накатных судов и пассажирских накатных судов (ро-ро) 35 Инструкция по освидетельствованию главных винторулевых колонок на основе мониторинга технического состояния 36 Требования к содержанию и оформлению планов технического обслуживания, ремонта и проверки противопожарных систем и средств, наставлений по подготовке персонала по противопожарной безопасности, пожарных планов и буклетов по мерам противопожарной безопасности 37 Инструкция по освидетельствованию автоматических головок воздушных труб 38 Методика диагностирования и определения остаточного ресурса силиконовых демпферов судовых ДВС 39 Руководство по применению технических средств дистанционного обследования при освидетельствовании судов и морских сооружений 40 Инструкция о порядке проведения обязательных ежегодных освидетельствований и проверок регистраторов данных рейса (РДР)/упрощенных регистраторов данных рейса (У-РДР) 41 Руководство по оценке остаточного углового сварного шва между настилом палубы и продольными балками 42 Руководство по ежегодным проверкам аппаратуры автоматической идентификационной системы (АИС) (MSC.1/Circ.1252 от 22 октября 2007 года)) 43 Руководство по освидетельствованию танков, в которых применено мягкое покрытие 44 Дополнительные указания по освидетельствованию ПБУ и МСП в соответствии с применимыми кодексами 45 Методические рекомендации по обеспечению проведения анализов топлива, смазочного масла, груза нефтепродуктов и нефтесодержащих вод 46 Руководство по безопасности буксируемых судов и других плавучих объектов, включая установки, сооружения и платформы (далее, буксируемые объекты), в море (внедрено Резолюцией ИМО А.765(18), принятой 04.11.1993) 47 Рекомендации по обеспечению мореходных качеств и назначению ограничений по условиям погоды во время совершения перегонов 48 SС 249. Внедрение правила II-1/3-5 Конвенции СОЛАС и циркуляра ИМО МSС.1/Сiгс.1379 (октябрь 2011 года) 49 Рекомендация МАКО № 122. Встроенные отсеки плавучести спасательных и дежурных шлюпок 50 Руководство по техническому наблюдению за якорным оборудованием в эксплуатации (с учетом положений Рекомендации МАКО № 79) 51 Руководство по экспериментальным программам расширенного периода между освидетельствованиями подводной части судна в доке 52 Руководство по освидетельствованию и оценке состояния покрытия судовых пространств 53 Руководство по освидетельствованию якорных цепей для позиционирования плавучих буровых установок 54 Инструкция по освидетельствованию судов, оборудованных надувными спасательными плотами с увеличенным интервалом периодического обслуживания |
| Разработан: | Российский морской регистр судоходства |
| Утверждён: | Российский морской регистр судоходства |
| Издан: | Российский морской регистр судоходства (2020 г. ) |
| Заменяет собой: | |
| Нормативные ссылки: |
|

































































































































































































































































































































