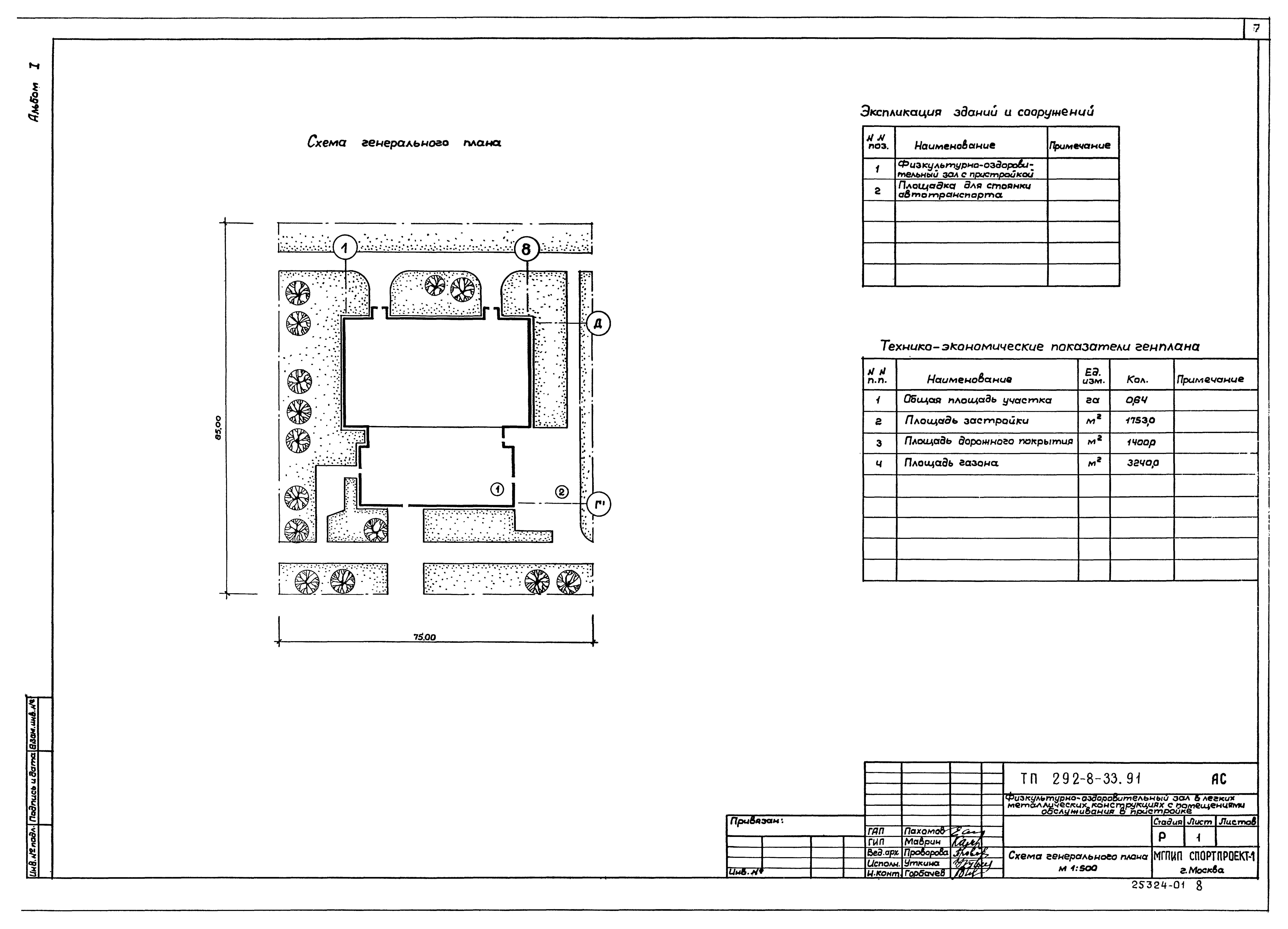
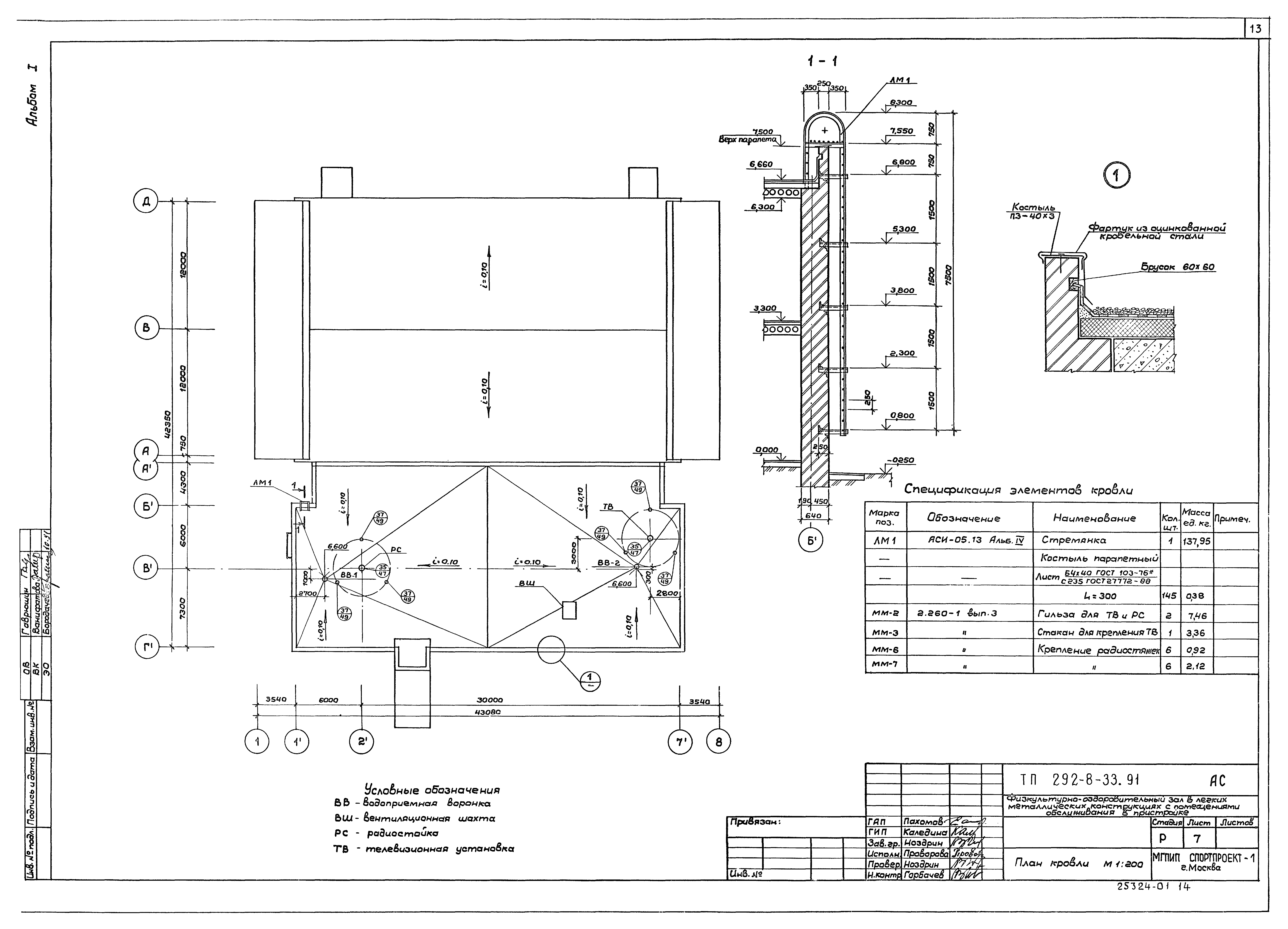
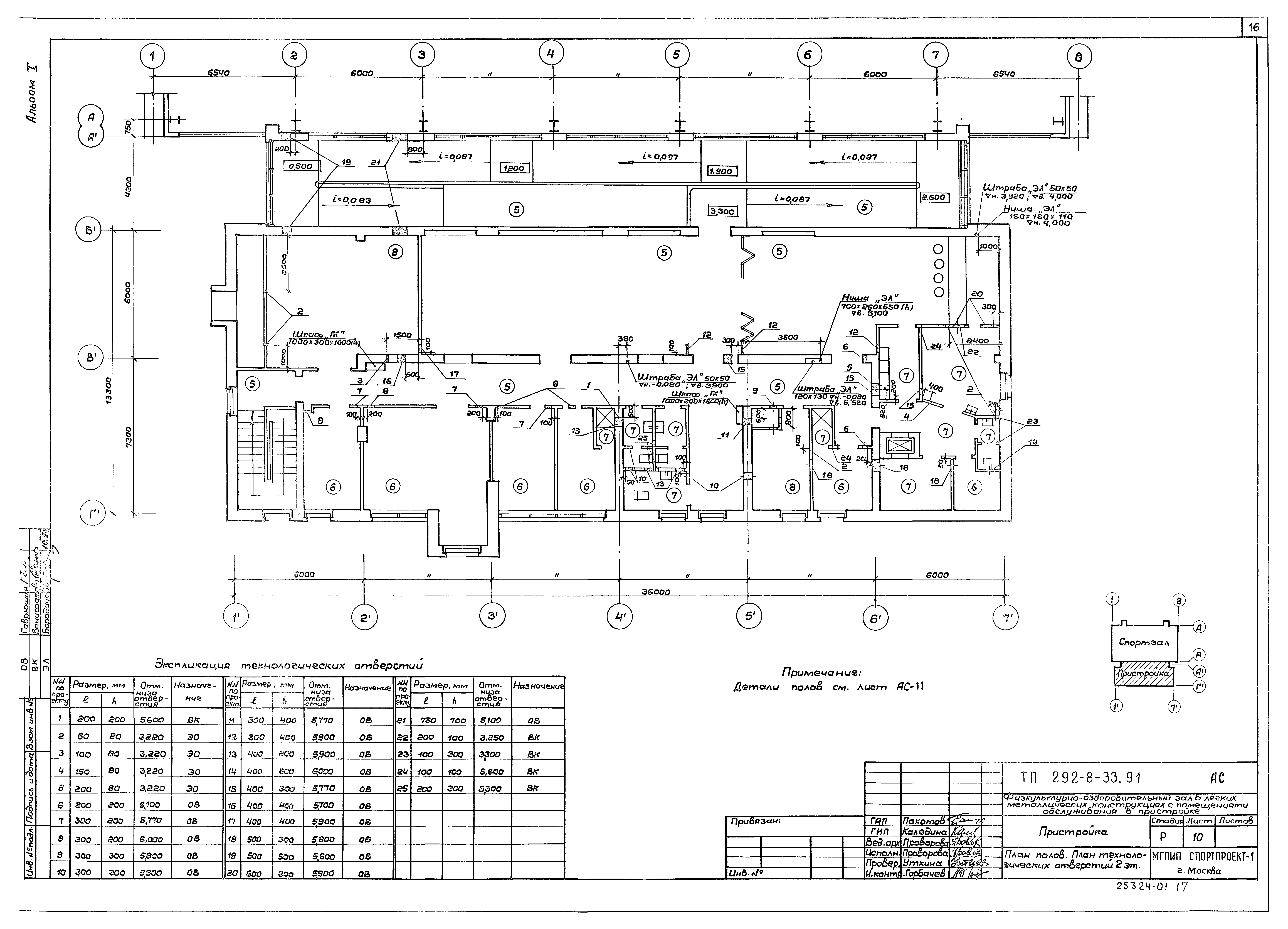
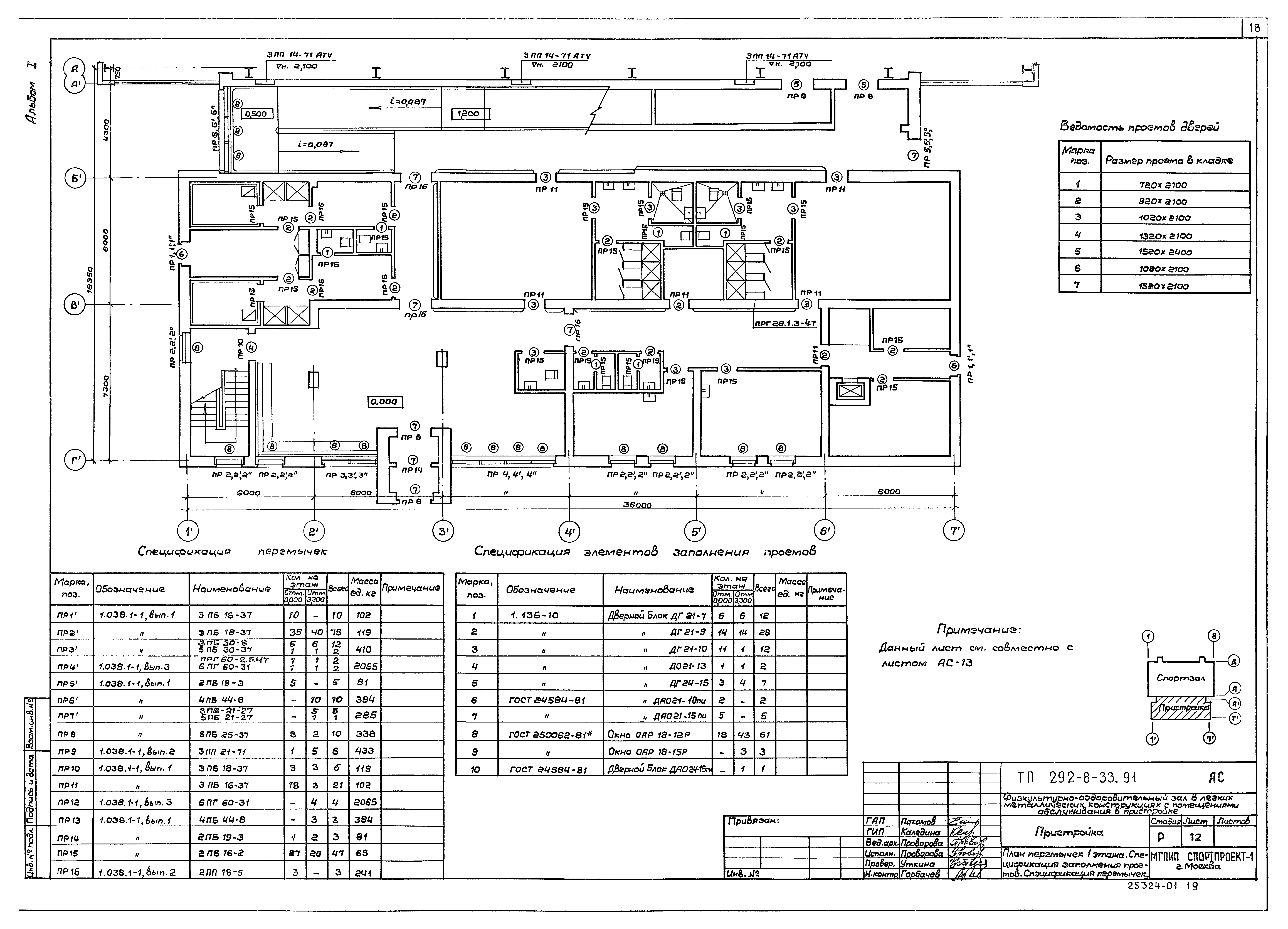
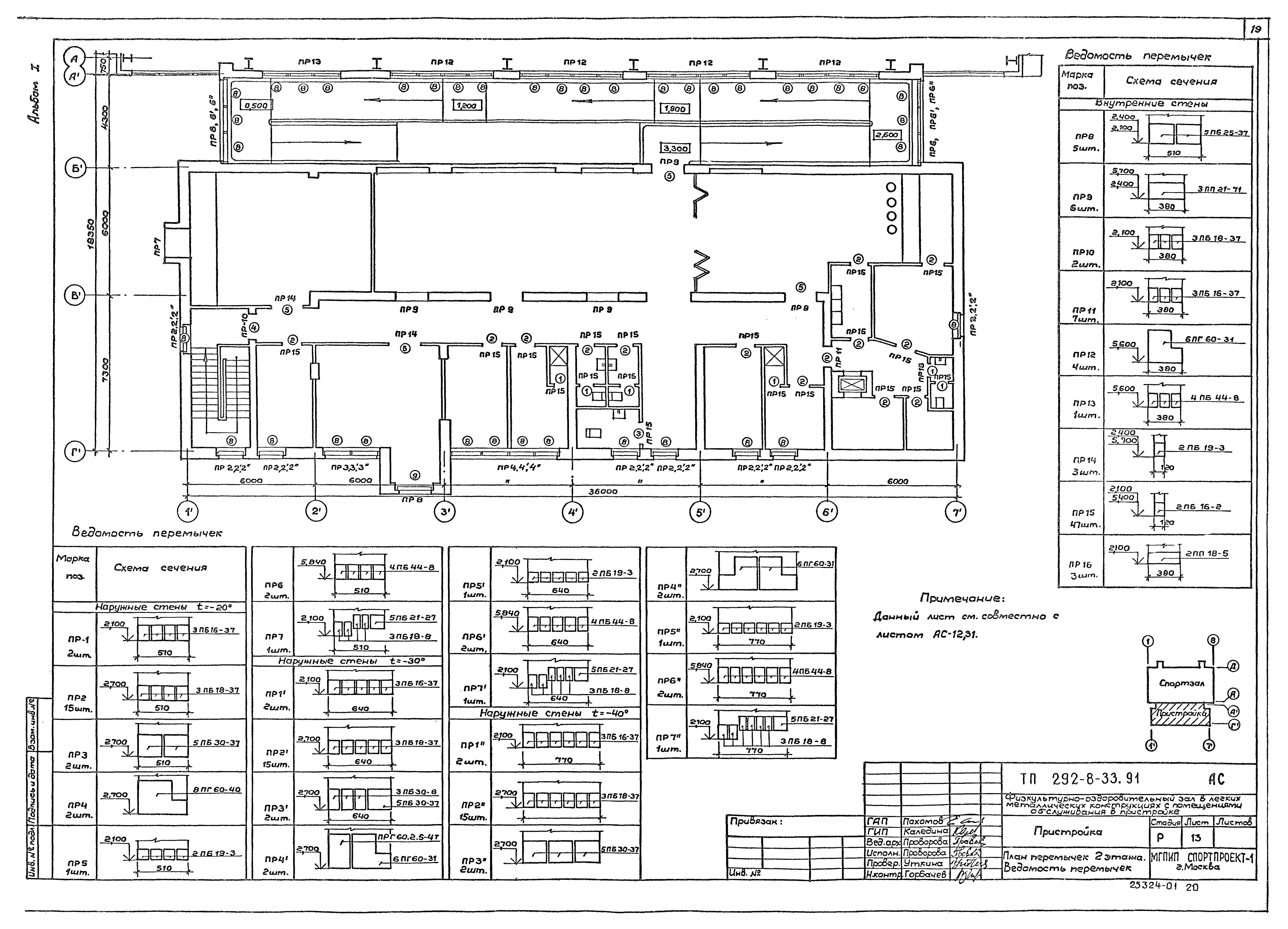
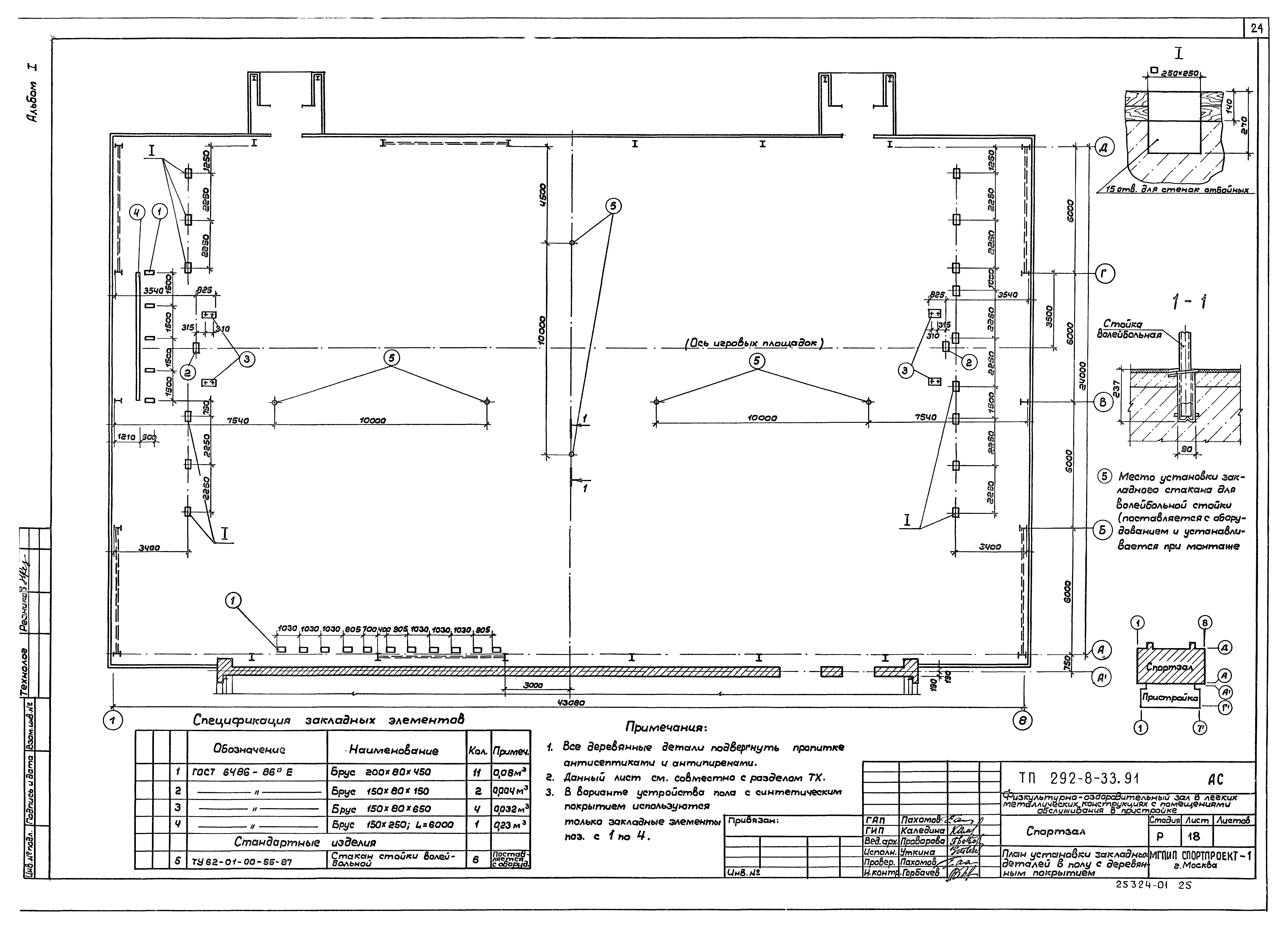
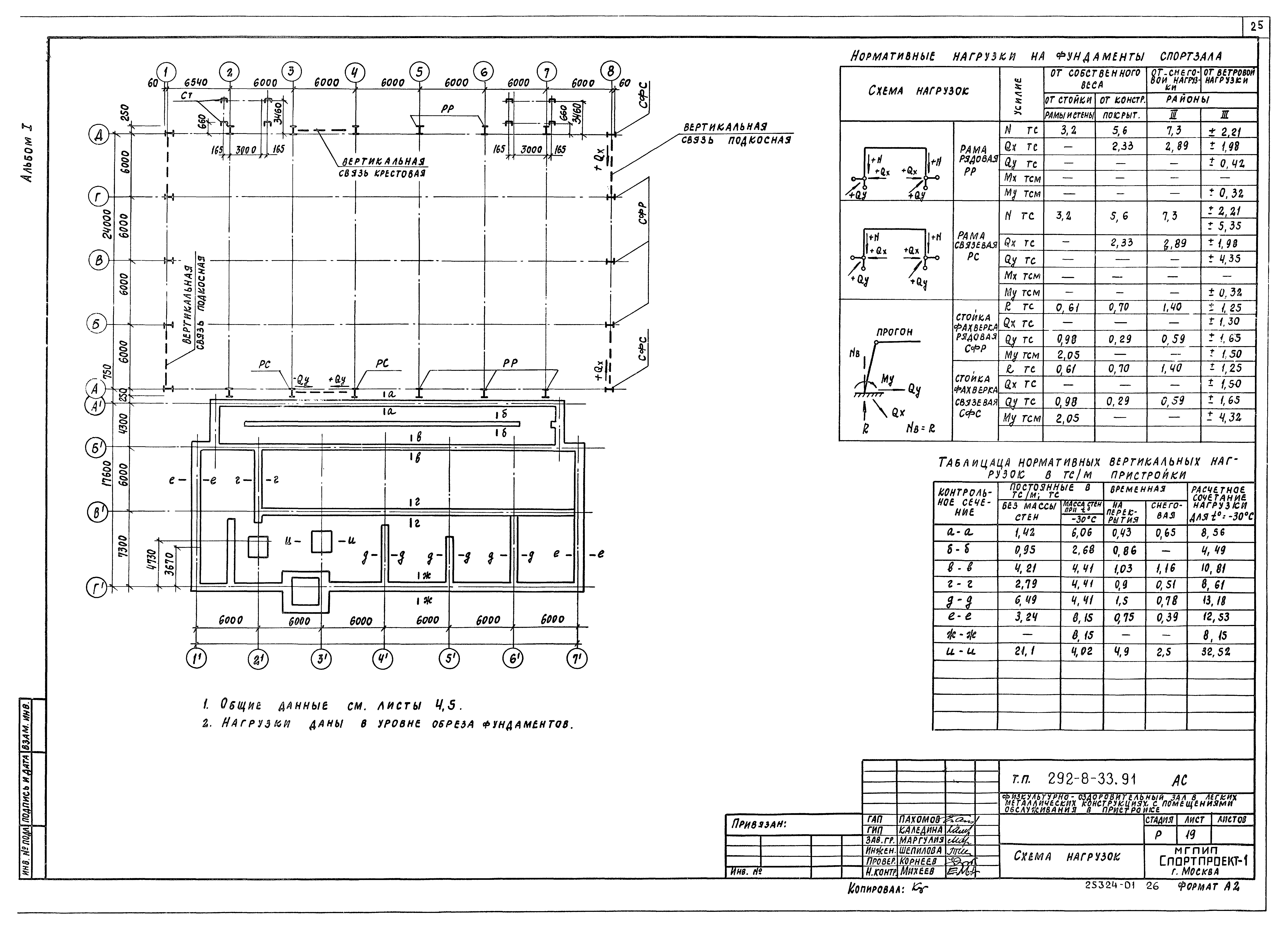
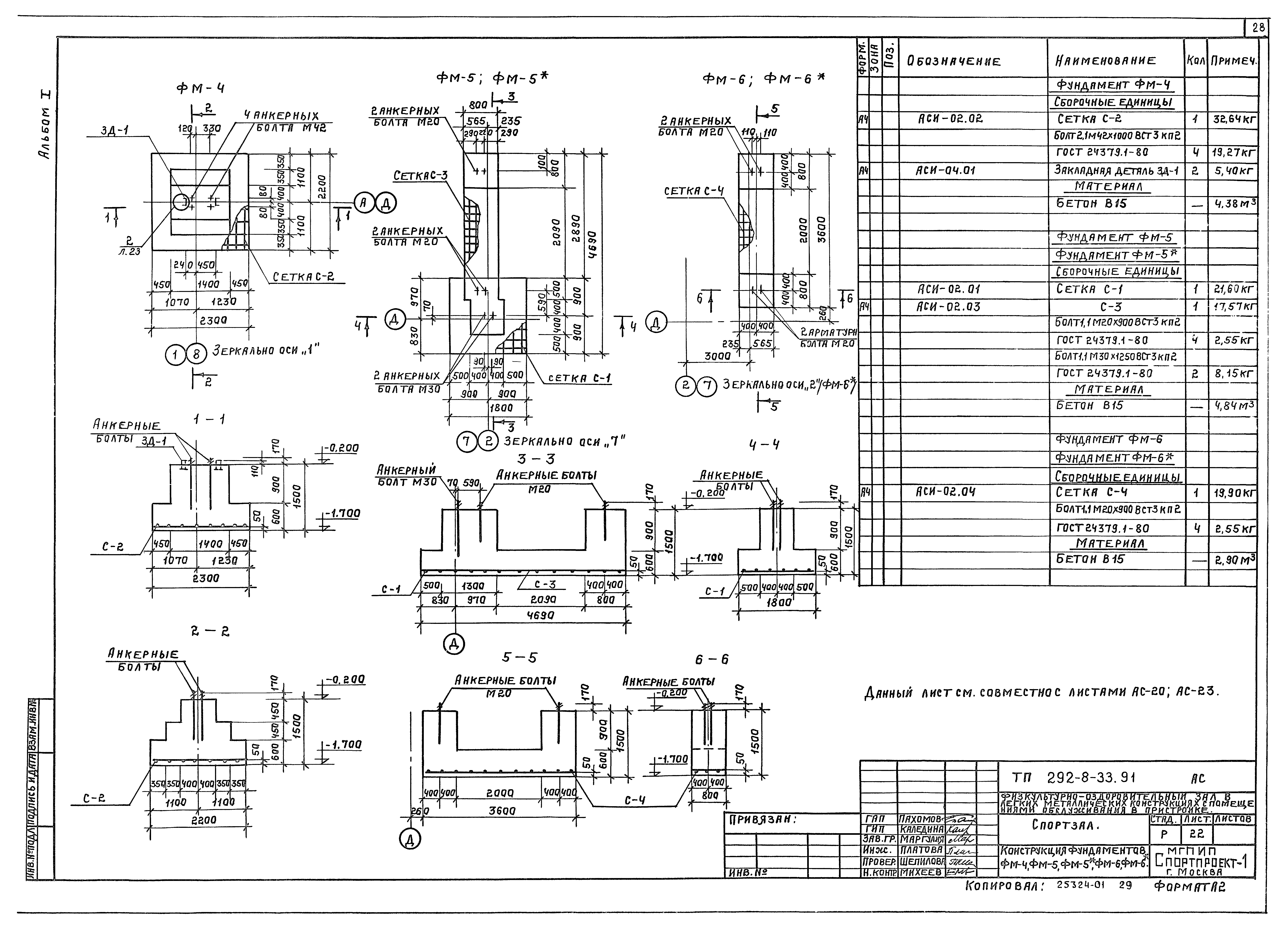
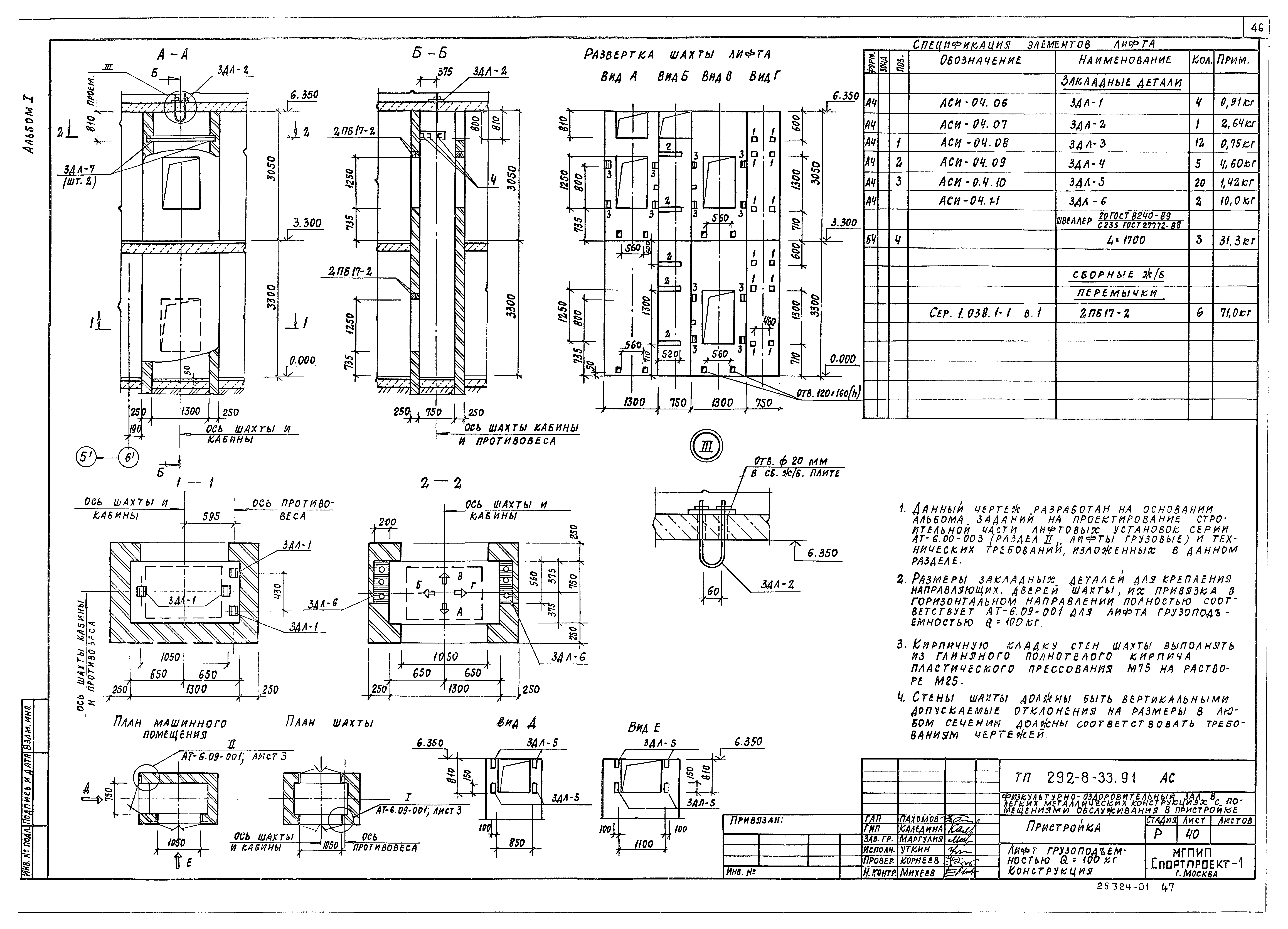
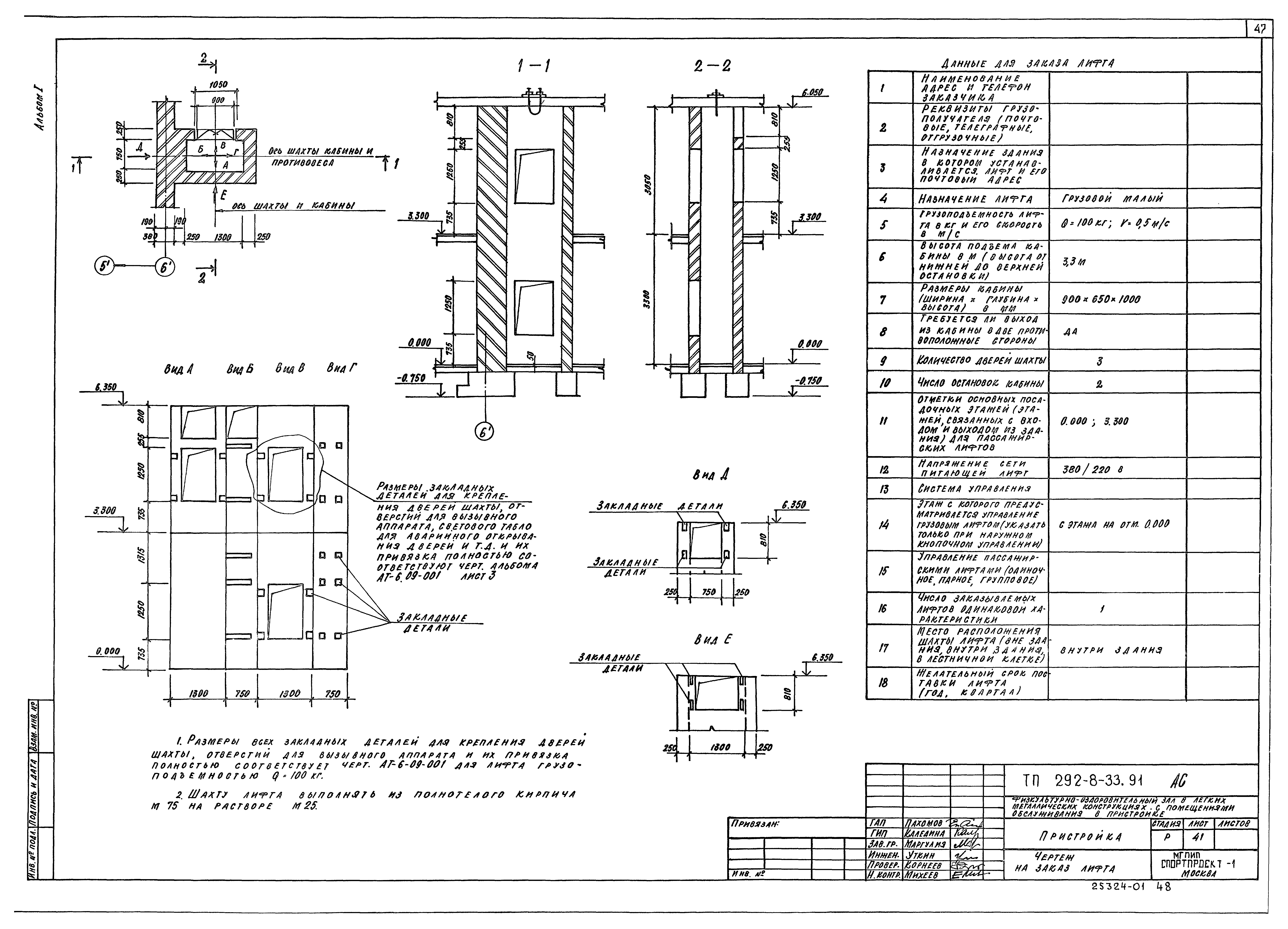
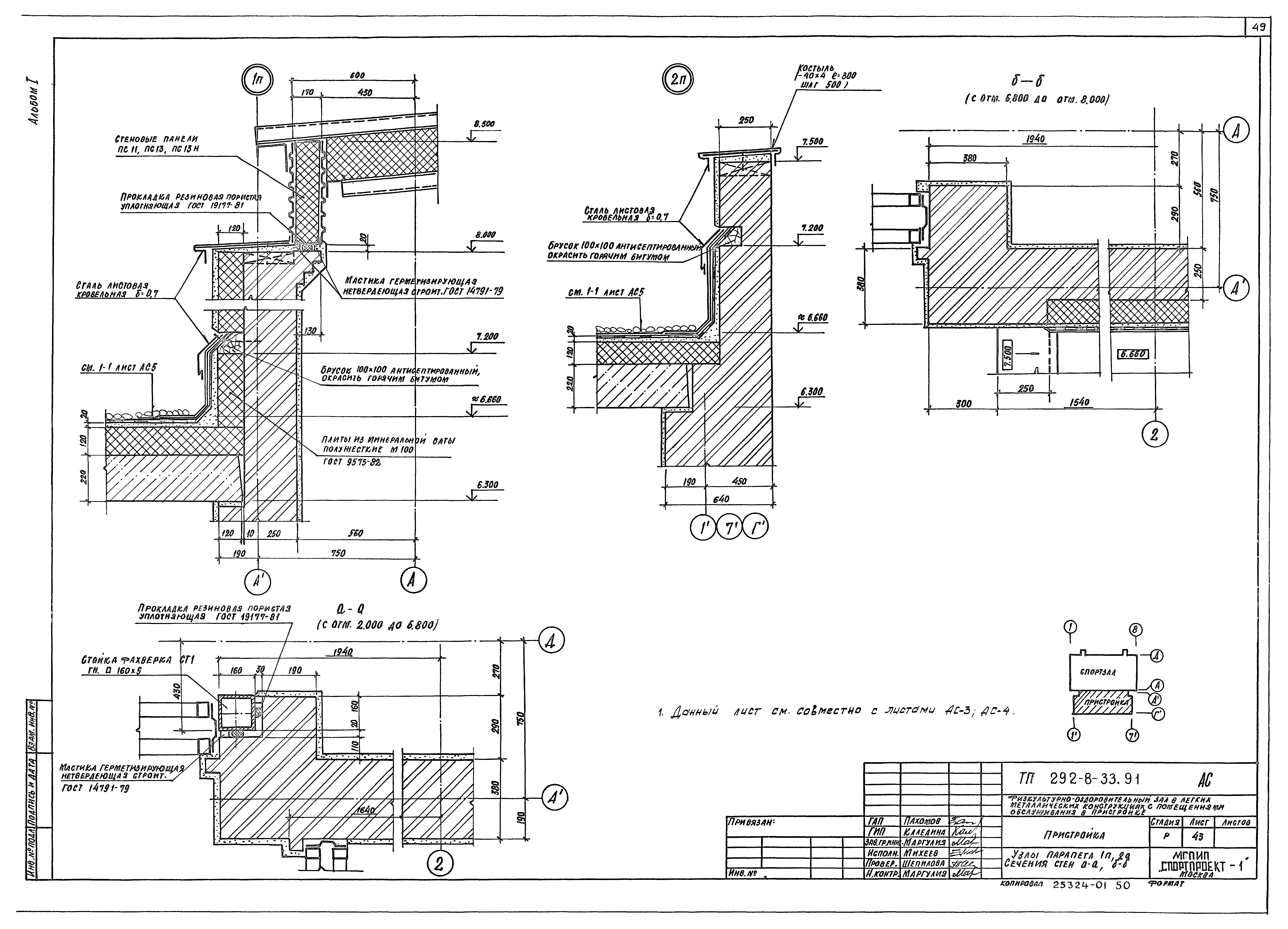
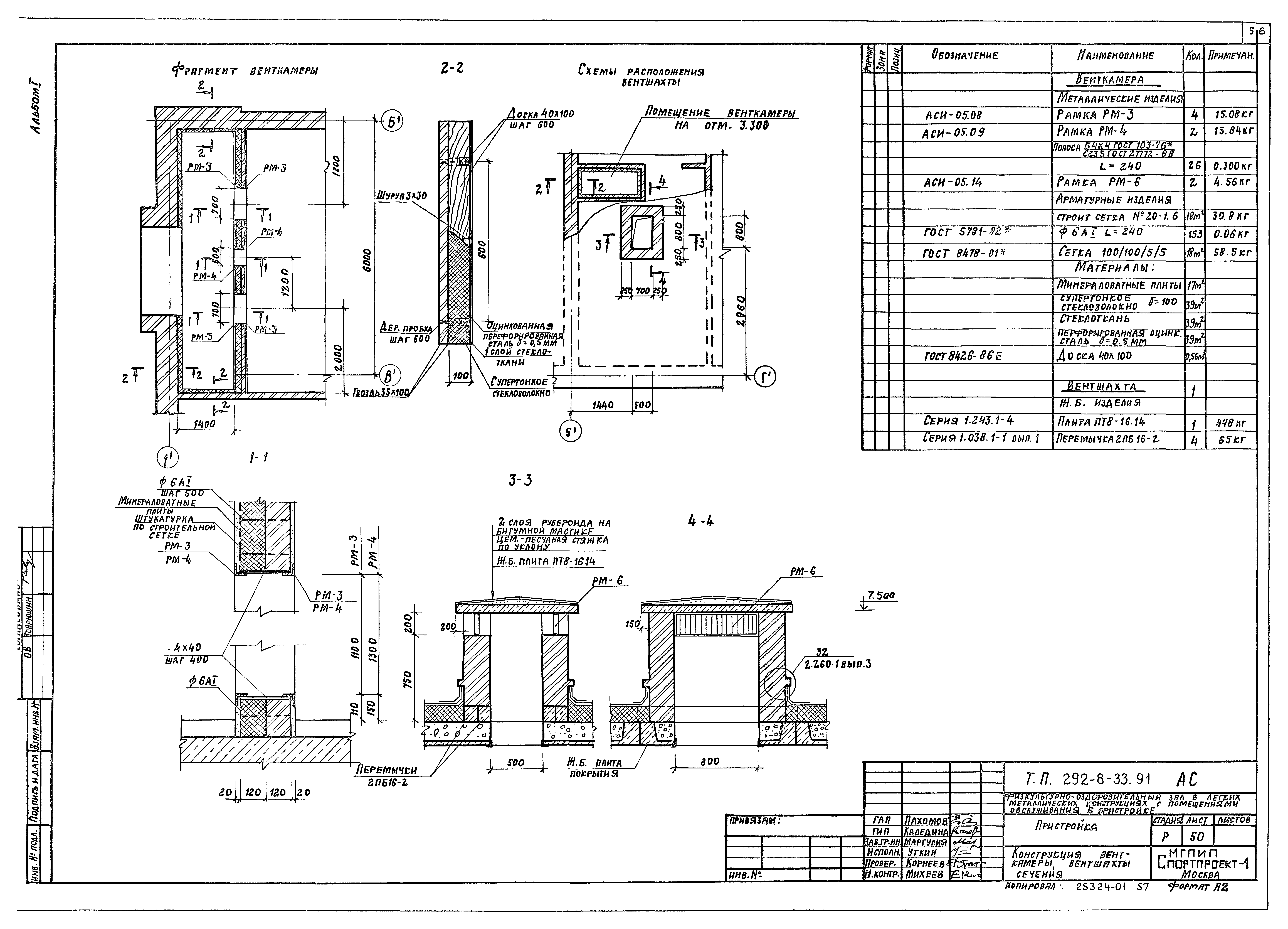
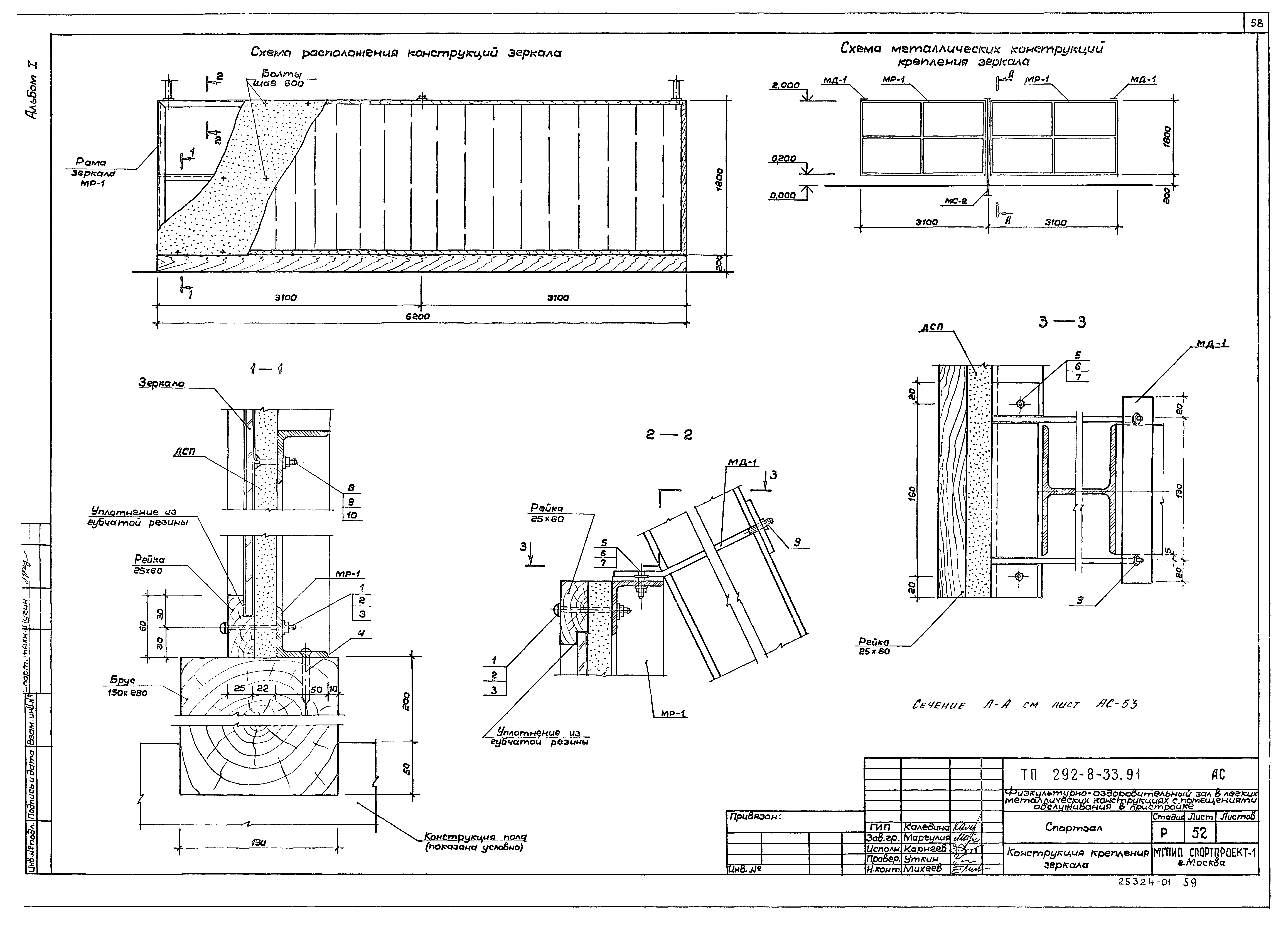
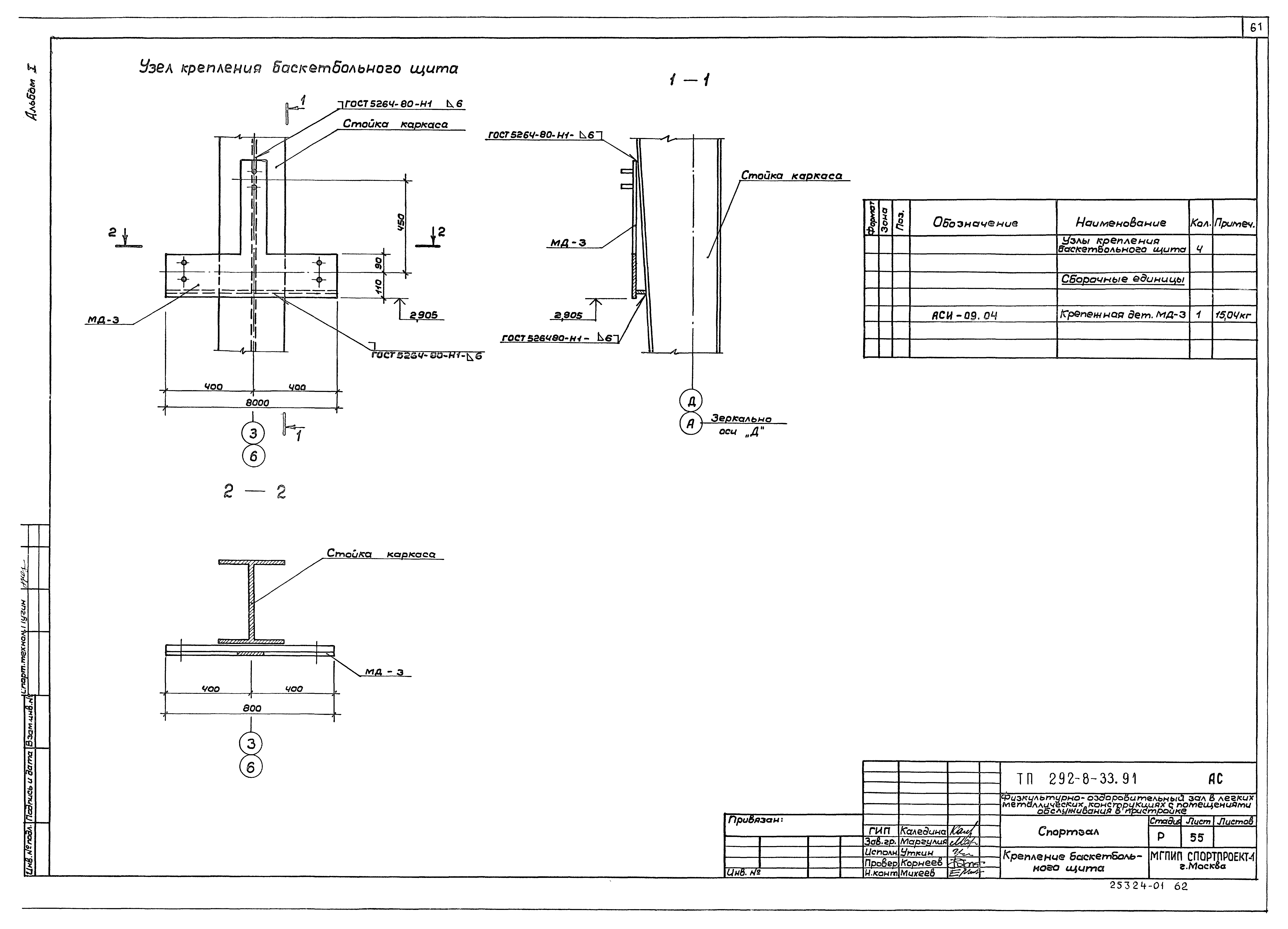
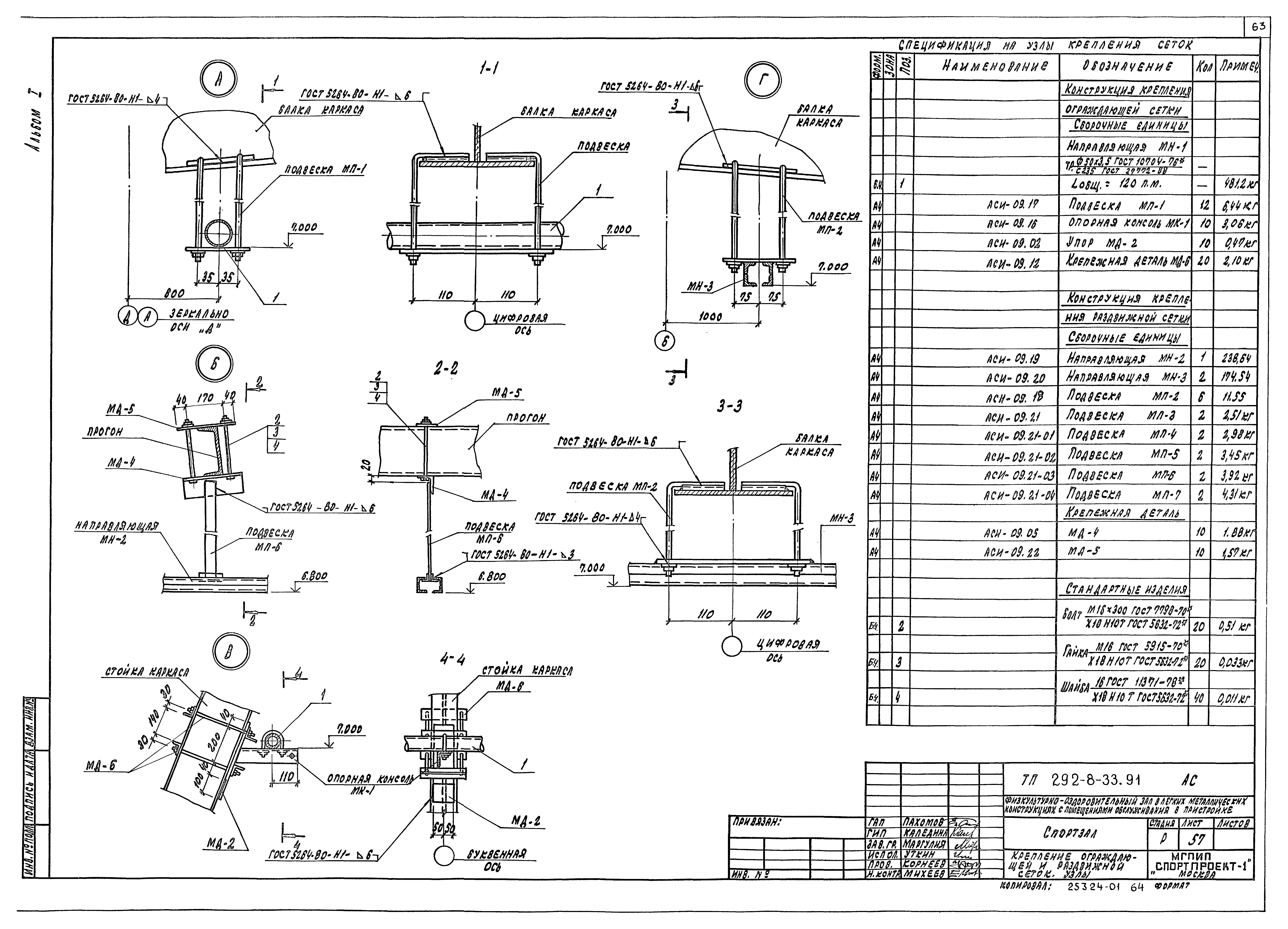
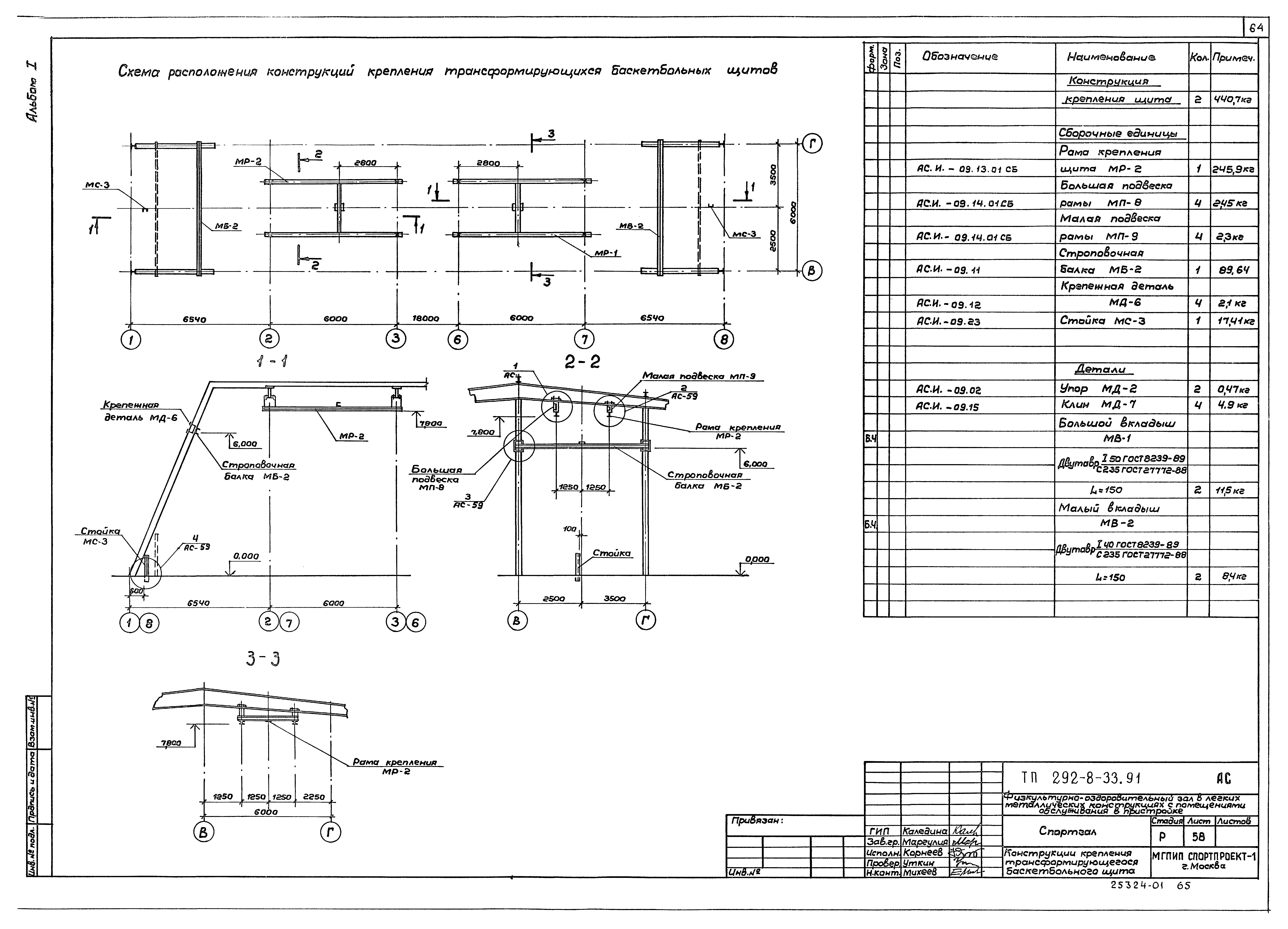
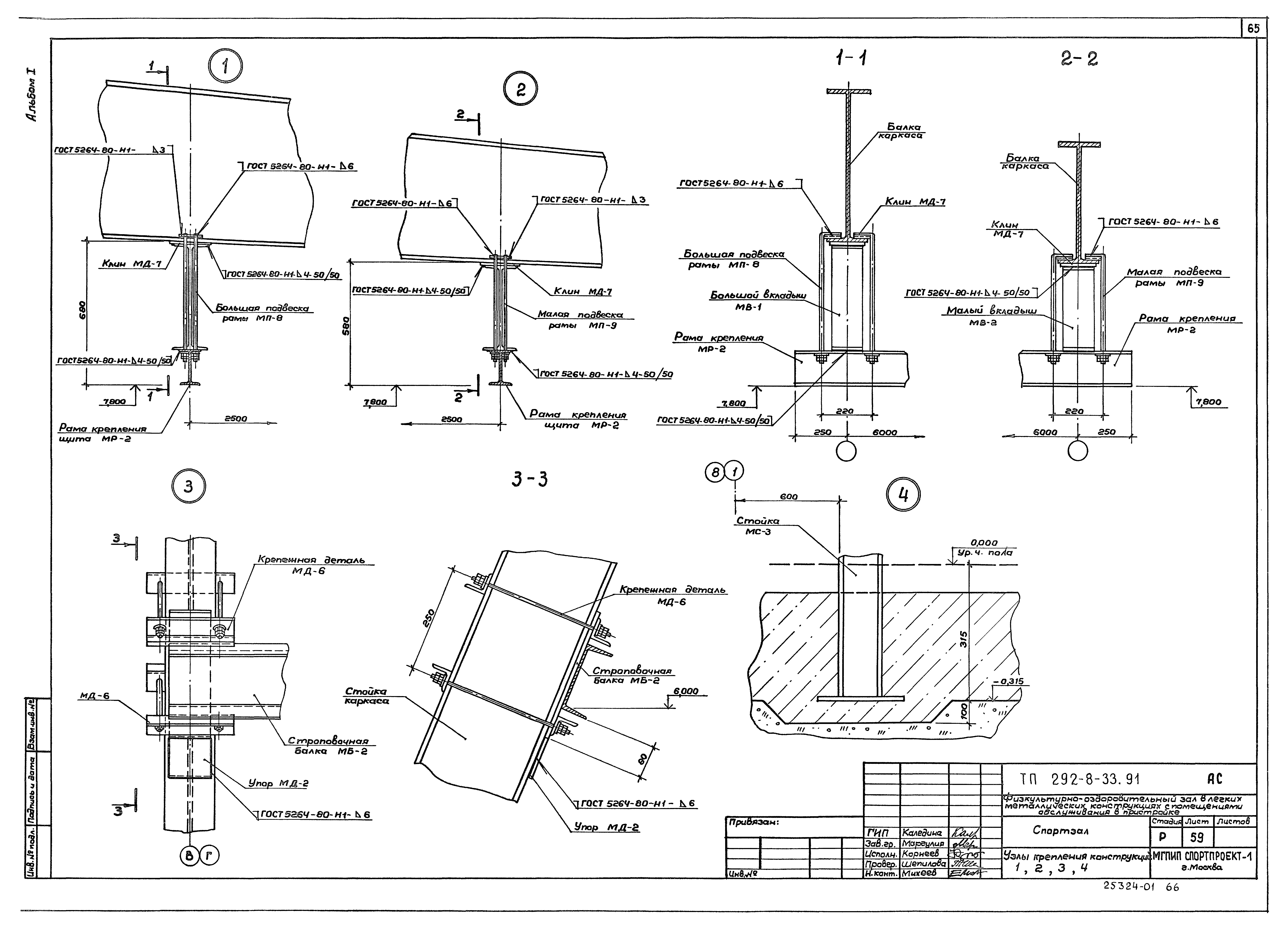
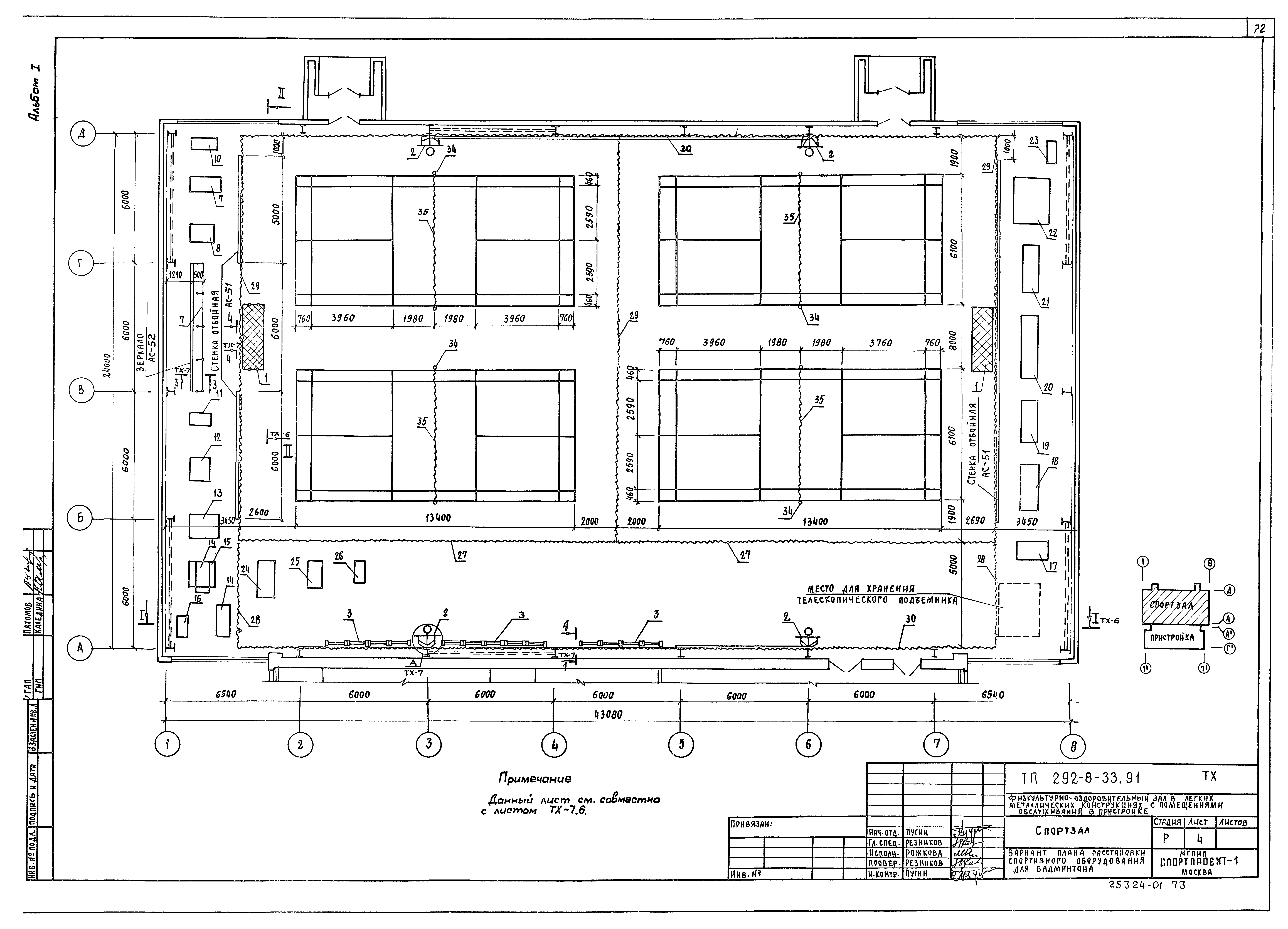
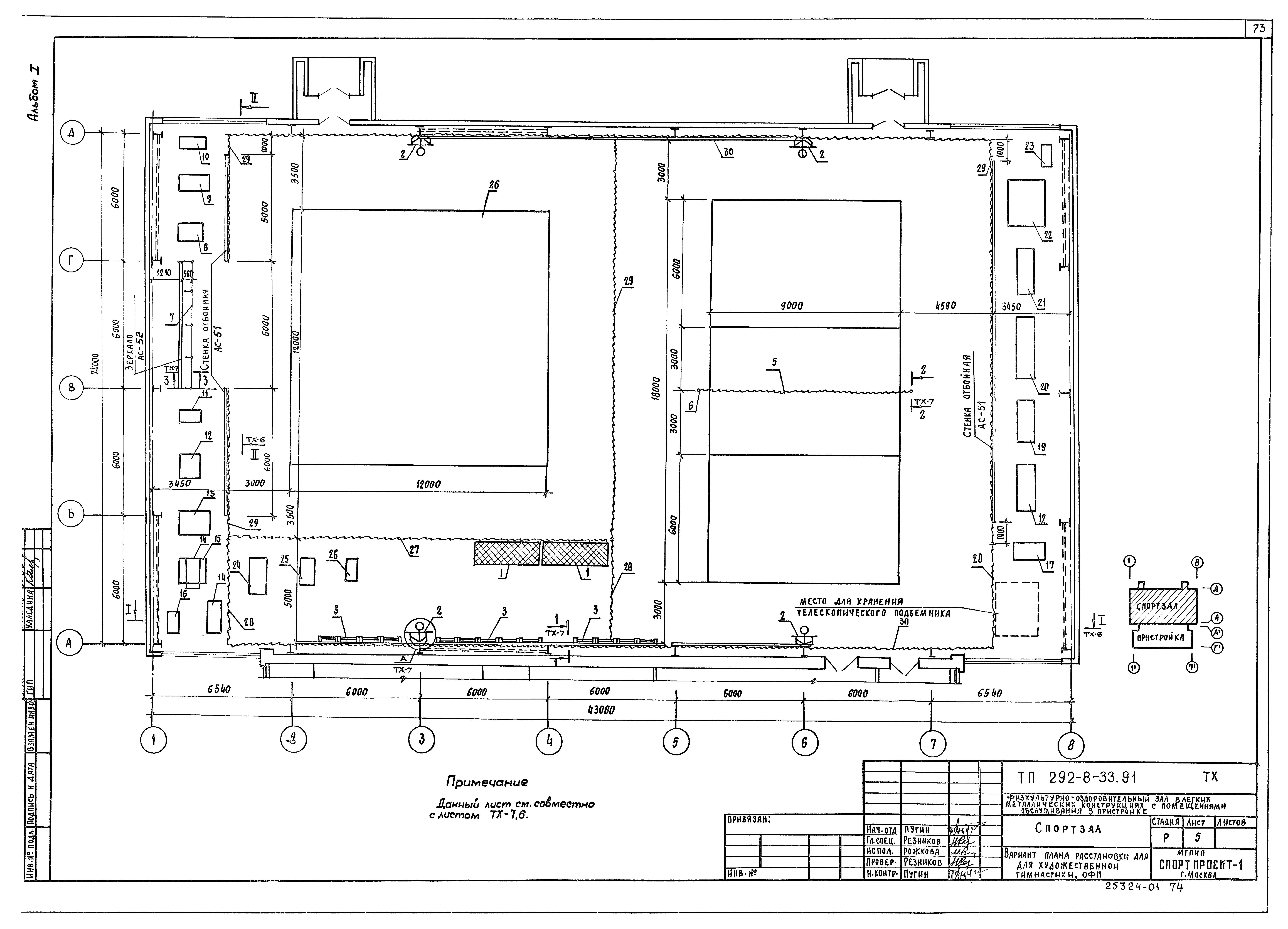
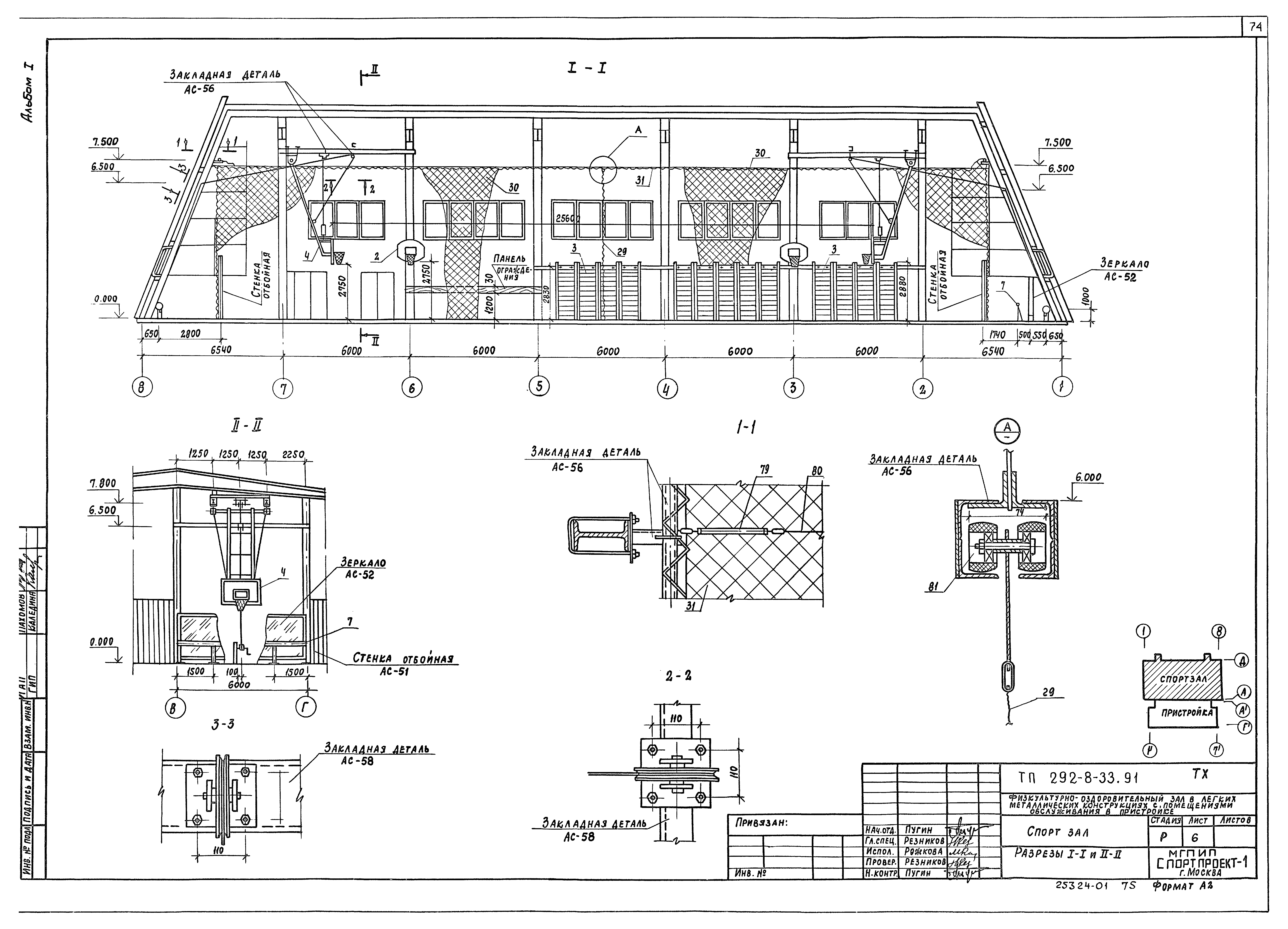
Скачать Типовой проект 292-8-33.91 Альбом I. Архитектурно-строительные и технологические чертежиДата актуализации: 01.01.2021
|
| Обозначение: | Типовой проект 292-8-33.91 |
| Обозначение англ: | 292-8-33.91 |
| Статус: | не определен законодательством |
| Название рус.: | Альбом I. Архитектурно-строительные и технологические чертежи |
| Дата добавления в базу: | 01.01.2021 |
| Дата актуализации: | 01.01.2021 |
| Дата введения: | 25.03.1992 |
| Дата окончания срока действия: | 30.06.2003 |
| Разработан: | Спортпроект-1 |
| Утверждён: | 26.12.1990 Госкомархитектура (263) |

















































































